·Î±×ÀÎ
38
µµ½ÃÇü»ýȰÁÖÅÃ
¼ö¿øÁö¹æ¹ý¿ø
 °¨Á¤°¡101,000,000 ¿ø
 ÃÖÀú°¡(100%) 101,000,000 ¿ø
 º¸Áõ±Ý(10%) 10,100,000 ¿ø
 Ã»±¸¾×136,500,000 ¿ø
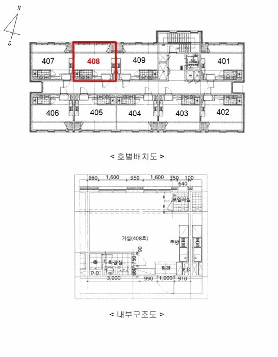
°æ±âµµ ¼ö¿ø½Ã ±Ç¼±±¸ ±Ç¼±µ¿ 1018-8 4Ãþ408È£
»ç°Ç¹øÈ£ 2025Ÿ°æ57968
°æ¸ÅÁ¾·ùºÎµ¿»ê°­Á¦°æ¸Å
¸Å°¢´ë»óÅäÁö ¹× °Ç¹°Àϰý ¸Å°¢
¸Å°¢±âÀÏ    2026.03.25(¼ö) 10:00 ÀÔÂû 4ÀÏÀü    
ÅäÁö¸éÀû9.20§³(2.78 Æò)
°Ç¹°¸éÀû22.91§³(6.93 Æò)
乫/¼ÒÀ¯ÀÚÁ¤OO / Á¤OO
ä±ÇÀÚ¹ÚOO
ÆäÀ̽ººÏ Æ®À§ÅÍ ±¸±Û+
īī¿À½ºÅ丮
īī¿ÀÅå sms¹®ÀÚº¸³»±â
 

±âÀϳ»¿ª

°æ°ú ³¯Â¥ Àú°¨ ÃÖÀú°¡ °á°ú
Á¢¼öÀÏ 2025-09-18 °æ¸ÅÁ¢¼ö
~11ÀÏ 
2025-09-29 °æ¸Å°³½Ã°áÁ¤
~95ÀÏ 
2025-12-22 ¹è´ç¿ä±¸Á¾±âÀÏ
~188ÀÏ 
2026-03-25 100%
101,000,000
ÁøÇà
¹°°Ç¸í¼¼¼­ ÇöȲÁ¶»ç¼­ ¹®°ÇÁ¢¼ö ¼Û´Þ³»¿ª

°¨Á¤Æò°¡ÇöȲ

¸ñ·Ï ÁÖ¼Ò ±¸Á¶/¿ëµµ/´ëÁö±Ç ¸éÀû ºñ°í
´ëÁö±Ç
±Ç¼±µ¿ 1018-8 710.5ºÐÀÇ 9.202 9.202 §³
(2.78Æò)
°Ç¹°
±Ç¼±µ¿ 1018-8 4Ãþ408È£ ö±ÙÄÜÅ©¸®Æ®±¸Á¶ 22.909 §³
(6.93Æò)
1) À§Ä¡/µµ½ÃÁö¿ª/Á߽ɻó¾÷Áö¿ª/Áö±¸´ÜÀ§°èȹ±¸¿ª/ÅäÁö°Å·¡°è¾à¿¡°üÇÑÇã°¡±¸¿ª/¹ö½ºÁ¤·ùÀå/ÁöÇÏö/ö±ÙÄÜÅ©¸®Æ®±¸Á¶/°³º°³­¹æ ´õº¸±â
°¨Á¤Æò°¡ ¿äÇ×Ç¥
1)À§Ä¡ ¹× ÁÖÀ§È¯°æ
º»°ÇÀº °æ±âµµ ¼ö¿ø½Ã ±Ç¼±±¸ ±Ç¼±µ¿ ¼ÒÀç "¿Ã¸²ÇȰø¿ø" ³²Ãø Àαٿ¡ À§Ä¡Çϸç ÁÖÀ§·Î´Â ¾Æ ÆÄÆ®, ´Üµ¶ÁÖÅà ¹× ´Ù¼¼´ëÁÖÅÃ, ¾÷¹«½Ã¼³ ¹× »ó¾÷½Ã¼³, Çб³, °ø¿ø, °ü°ø¼­µîÀÌ ¼ÒÀçÇϸç Á¦ ¹Ý ÁÖÀ§È¯°æÀº º¸ÅëÀÎ ÆíÀÓ.
2)±³Åë»óȲ
º»°Ç±îÁö Á¦¹Ý Â÷·® ÁøÃâÀÔÀÌ °¡´ÉÇϸç, Àαٿ¡ ¹ö½ºÁ¤·ùÀå ¹× ÁöÇÏö(¼ö¿ø½Ãû¿ª)ÀÌ ¼ÒÀç ÇÏ¿© Á¦¹Ý ´ëÁß±³Åë »óȲÀº ¾çÈ£ÇÑ ÆíÀÓ.
3)°Ç¹°ÀÇ ±¸Á¶
ö±ÙÄÜÅ©¸®Æ®±¸Á¶ (ö±Ù)ÄÜÅ©¸®Æ®(ÆòÁöºØ) ÁöÇÏ3Ãþ-10Ãþ °Ç Áß 4Ãþ 408È£·Î¼­, ¿Ü º® : È­°­¼® µ¹ºÙÀÓ. ³» º® : º®Áöµµ¹è ¹× ŸÀϺÙÀÓ. â È£ : ¾Ë·ç¹Ì´½¼¦½Ã ¹× °­È­À¯¸®Ã¢È£ ÀÓ.
4)ÀÌ¿ë»óÅÂ
µµ½ÃÇü»ýȰÁÖÅÃÀ¸·Î ÀÌ¿ëÁßÀÓ.
5)¼³ºñ³»¿ª
±âº»ÀûÀÎ À§»ý ±Þ¡¤¹è¼ö¼³ºñ, °³º°³­¹æ¼³ºñ, ¼Ò¹æ¼³ºñ, ½Â°­±â, °øµ¿Çö°üº¸¾È¼³ºñ, ÁöÇÏÁÖÂ÷ Àå¼³ºñ µîÀÓ.
6)ÅäÁöÀÇ Çü»ó ¹× ÀÌ¿ë»óÅÂ
ÀÎÁ¢µµ·Î¿Í µî°í ÆòźÇÑ °¡ÀåÇü ÅäÁö·Î¼­ °øµ¿ÁÖÅà °ÇºÎÁö·Î ÀÌ¿ëÁßÀÓ.
7)ÀÎÁ¢ µµ·Î»óŵî
º»°Ç ³²ÃøÀ¸·Î ·ÎÆø ¾à 8-10¹ÌÅÍ Æ÷Àåµµ·Î¿¡ Á¢ÇÔ.
8)ÅäÁöÀÌ¿ë°èȹ ¹× Á¦ÇÑ»óÅÂ
µµ½ÃÁö¿ª, Á߽ɻó¾÷Áö¿ª, ¹æÈ­Áö±¸, ½Ã°¡Áö°æ°üÁö±¸(ÀϹÝ), Áö±¸´ÜÀ§°èȹ±¸¿ª(½ÃûÁö±¸), ¼Ò·Î1·ù(Æø 10m~12m)(Á¢ÇÕ) °¡Ãà»çÀ°Á¦Çѱ¸¿ª<°¡ÃàºÐ´¢ÀÇ °ü¸® ¹× À̿뿡 °üÇÑ ¹ý·ü>, ºñÇà¾ÈÀüÁ¦6±¸¿ª(Àü¼ú)<±º»ç±âÁö ¹× ±º»ç½Ã¼³ º¸È£¹ý>, µµ½Ã±³ÅëÁ¤ºñÁö¿ª<µµ½Ã±³ÅëÁ¤ºñÃËÁø¹ý>, °ú¹Ð¾ïÁ¦±Ç¿ª<¼öµµ±ÇÁ¤ºñ°èȹ ¹ý> ÅäÁö°Å·¡°è¾à¿¡°üÇÑÇã°¡±¸¿ª(2025-08-26)(´ë»óÀÚ: ¿Ü±¹ÀÎ µî/´ë»ó¿ëµµ: ´Üµ¶, ´Ù°¡±¸, ¾ÆÆÄ Æ®, ¿¬¸³, ´Ù¼¼´ëÁÖÅÃ)
9)°øºÎ¿ÍÀÇ Â÷ÀÌ
-
10)±âŸÂü°í»çÇ×(ÀÓ´ë°ü·Ê ¹× ±âŸ)
ÀÓ´ë°ü°è µîÀÇ »çÇ×Àº ¹Ì»óÀÓ.
Âü°í
»çÇ×
½Åûä±ÇÀÚ °â ´ëÇ×·Â ÀÖ´Â ÀÓÂ÷ÀÎÀÇ º¸Áõ±Ý 136,500,000¿øÀÌ ¹è´ç¿¡¼­ Àü¾× º¯Á¦µÇÁö ¾ÊÀ» °æ¿ì Àܾ×À» ¸Å¼öÀÎÀÌ ÀμöÇϹǷΠÀÔÂû½Ã ÁÖÀÇ¿ä¸Á
ÇØ´ç ºÎµ¿»êÀÇ ÇöȲÀº ¿Ü°ü»ó °øºÎÀÇ ³»¿ë°ú ÀÏÄ¡ÇÏ´Â °ÍÀ¸·Î º¸ÀÓ.

°ÇÃ๰ÇöȲ

¼ÒÀçÁö °æ±âµµ ¼ö¿ø½Ã ±Ç¼±±¸ ±Ç¼±µ¿ 1018-8¹øÁö
´ëÁö¸éÀû 710.5§³
(215.3Æò)
¿¬¸éÀû 4119.838§³
(1248.44Æò)
°ÇÃà¸éÀû 401.64§³
(121.71Æò)
¿ëÀû·ü»êÁ¤
¿¬¸éÀû
2573.277§³
(779.78Æò)
°ÇÆóÀ² 56.53% ¿ëÀû·ü 362.18%
Áö»óÃþ¼ö 10Ãþ ÁöÇÏÃþ¼ö 3Ãþ
ÁÖ¿ëµµ °øµ¿ÁÖÅà ±¸Á¶ ö±ÙÄÜÅ©¸®Æ®±¸Á¶
Âø°øÀÏÀÚ 2016.09.01 »ç¿ë½ÂÀÎÀÏÀÚ 2018.09.20
°ÇÃ๰Ãþº°ÇöȲ [º¸±â]


µî±âºÎµîº» ¿ä¾à(°Ç¹°)

  Á¢¼öÀÏÀÚ µî±â¸ñÀû/±Ç¸®ÀÚ ±Ç¸®±Ý¾× ±âÁØ
1 2021³â1¿ù22ÀÏ
¼ÒÀ¯±Ç
Á¤OO
¼Ò¸ê
2 2025³â7¿ù8ÀÏ
¾Ð·ù
±¹
¼Ò¸ê±âÁØ
3 2025³â9¿ù11ÀÏ
ÀÓÂ÷±Ç¼³Á¤
¹ÚOO
130,000,000 ¼Ò¸ê
4 2025³â9¿ù29ÀÏ
°­Á¦°æ¸Å
¹ÚOO
¼Ò¸ê

ÀÓÂ÷ÀÎÇöȲ (¹è´ç¿ä±¸Á¾±âÀÏ: 2025-12-22)

ÀÓÂ÷ÀÎ ¿ëµµ/Á¡À¯ º¸Áõ±Ý/¿ù¼¼ ´ëÇ×·Â
ÀüÀÔÀÏ/È®Á¤ÀÏ ¹è´ç¿ä±¸ ºñ°í
¹ÚOO 408È£ 136,500,000
O
2021.01.22
2021.01.05
2025.10.14. 2021.01.22~2025.10.14

¿©ÀÇÁÖ°æ¸Å Á¶¾ð ÇÑ ¸¶µð


ÁÖÀÇ»çÇ× (ÃÖ¼±¼øÀ§ ¼³Á¤ÀÏ: 2025.7.8.¾Ð·ù ¼³Á¤)

¸Å°¢À¸·Î ¼Ò¸êµÇÁö ¾Ê´Â µî±âºÎ±Ç¸®:
¸Å°¢À¸·Î ¼³Á¤µÈ °ÍÀ¸·Î º¸´Â Áö»ó±Ç:
½Åûä±ÇÀÚ °â ´ëÇ×·Â ÀÖ´Â ÀÓÂ÷ÀÎÀÇ º¸Áõ±Ý 136,500,000¿øÀÌ ¹è´ç¿¡¼­ Àü¾× º¯Á¦µÇÁö ¾ÊÀ» °æ¿ì Àܾ×À» ¸Å¼öÀÎÀÌ ÀμöÇϹǷΠÀÔÂû½Ã ÁÖÀÇ¿ä¸Á
¡Ø¹Ì³³°ü¸®ºñ(°ø¿ë) Àμö¿©ºÎ¸¦ ÀÔÂû Àü¿¡ È®ÀÎÇϽñ⠹ٶø´Ï´Ù

 

Áö¿ªºÐ¼®

ÁöÇÏö¸í Á÷¼±°Å¸®

Çб³¸í ÀüÈ­¹øÈ£ ÁÖ¼Ò Á÷¼±°Å¸®

¹ý¿ø

¼ö¿øÁö¹æ¹ý¿ø (165-12)°æ±âµµ ¼ö¿ø½Ã ¿µÅ뱸 ¹ýÁ¶·Î 105, Çϵ¿, ¼ö¿ø¹ý¿øÁ¾ÇÕû»ç
´ëÇ¥ : 031)210-1114, ¾ß°£ : 031)210-1111
°üÇÒÁö¿ª : ¼ö¿ø½Ã, ¿À»ê½Ã, È­¼º½Ã, ¿ëÀνÃ

µî±â¼Ò ¼ö¿øÁö¹æ¹ý¿ø º»¿ø µ¿¼ö¿øµî±â¼Ò (´ëÇ¥:1544-0773, ÆÑ½º:(031)206-1934, 204-4677, °æ±âµµ ¼ö¿ø½Ã ¿µÅ뱸 û¸í·Î 127 (¿µÅ뵿 961-16))
¼¼¹«¼­ ¼ö¿ø¼¼¹«¼­ (´ëÇ¥:031-250-42, ÆÑ½º:031-258-9411, °æ±âµµ ¼ö¿ø½Ã ÆÈ´Þ±¸ ¸Å»ê·Î 61 (¸Å»ê·Î3°¡))

Àαٳ«ÂûÅë°è

±â°£ ¸Å°¢°Ç¼ö Æò±Õ°¨Á¤°¡
Æò±Õ¸Å°¢°¡
¸Å°¢°¡À²
Æò±ÕÀ¯Âû¼ö


º» °æ¸ÅÁ¤º¸´Â ¹ý¿øÀÚ·á¿Í ÀÏÄ¡Çϵµ·Ï ÇÏ¿´À¸³ª ±Ç¸®»çÇ׺¯µ¿, ÀÔ·ÂÂø¿À µîÀÇ ¿øÀÎÀ¸·Î »ç½Ç°ú ´Ù¸¦ ¼ö ÀÖ½À´Ï´Ù. ÀÌ¿ë¾à°ü¿¡ ÀǰЏéÃ¥Á¶°ÇÀ¸·Î Á¦°øµÊÀ» ¾Ë¸®¸ç, °æ¸ÅÀÔÂû½Ã ¹Ýµå½Ã °ü·Ã °øºÎ¸¦ ÀçÈ®ÀÎÇϽñ⠹ٶø´Ï´Ù. º¸´Ù Æí¸®ÇÑ °æ¸ÅÁ¤º¸ Á¦°øÀ» À§ÇØ Áö¼ÓÀûÀ¸·Î °³¼±ÇϰڽÀ´Ï´Ù. ÀÌ¿ëÇØ Áּż­ °¨»çÇÕ´Ï´Ù.