·Î±×ÀÎ
166
±Ù¸°»ó°¡
ÀÎõÁö¹æ¹ý¿ø ºÎõÁö¿ø
 °¨Á¤°¡300,000,000 ¿ø
 ÃÖÀú°¡(49%) 147,000,000 ¿ø
 º¸Áõ±Ý(10%) 14,700,000 ¿ø
 Ã»±¸¾×10,250,104 ¿ø
°æ±âµµ ºÎõ½Ã ¼Ò»ç±¸ ¹ü¹Úµ¿ 158 ´Ùû¸²¾ÆÆÄÆ® Áö1Ãþºñ01È£
»ç°Ç¹øÈ£ 2025Ÿ°æ33787
°æ¸ÅÁ¾·ùºÎµ¿»ê°­Á¦°æ¸Å
¸Å°¢´ë»óÅäÁö ¹× °Ç¹°Àϰý ¸Å°¢
¸Å°¢±âÀÏ    2026.06.09(È­) 10:00 ÀÔÂû 23ÀÏÀü    
ÅäÁö¸éÀû45.94§³(13.90 Æò)
°Ç¹°¸éÀû86.62§³(26.20 Æò)
乫/¼ÒÀ¯ÀÚ±èOO / ±èOO
ä±ÇÀÚÁÖOOO OOOOOOO
ÆäÀ̽ººÏ Æ®À§ÅÍ ±¸±Û+
īī¿À½ºÅ丮
īī¿ÀÅå sms¹®ÀÚº¸³»±â
 

±âÀϳ»¿ª

°æ°ú ³¯Â¥ Àú°¨ ÃÖÀú°¡ °á°ú
Á¢¼öÀÏ 2025-06-18 °æ¸ÅÁ¢¼ö
~0ÀÏ 
2025-06-18 °æ¸Å°³½Ã°áÁ¤
~72ÀÏ 
2025-08-29 ¹è´ç¿ä±¸Á¾±âÀÏ
~279ÀÏ 
2026-03-24 100%
300,000,000
À¯Âû
~316ÀÏ 
2026-04-30 70%
210,000,000
À¯Âû
~356ÀÏ 
2026-06-09 49%
147,000,000
ÁøÇà
¹°°Ç¸í¼¼¼­ ÇöȲÁ¶»ç¼­ ¹®°ÇÁ¢¼ö ¼Û´Þ³»¿ª

°¨Á¤Æò°¡ÇöȲ

¸ñ·Ï ÁÖ¼Ò ±¸Á¶/¿ëµµ/´ëÁö±Ç ¸éÀû ºñ°í
´ëÁö±Ç
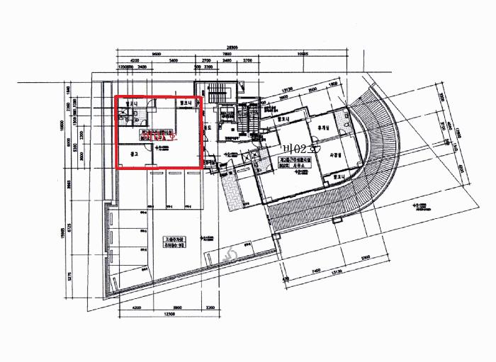
¹ü¹Úµ¿ 158 992.7ºÐÀÇ 45.94 45.94 §³
(13.90Æò)
°Ç¹°
¹ü¹Úµ¿ 158 Áö1Ãþºñ01È£ ö±ÙÄÜÅ©¸®Æ®±¸Á¶ 86.62 §³
(26.20Æò)
1) À§Ä¡/Á¦3Á¾ÀϹÝÁÖ°ÅÁö¿ª/Â÷·® Á¢±ÙÀÌ °¡´É/°£¼±µµ·Î/ö±ÙÄÜÅ©¸®Æ®±¸Á¶/Æò½º¶óºêÁöºØ/µµ½Ã°¡½º ´õº¸±â
°¨Á¤Æò°¡ ¿äÇ×Ç¥
1)À§Ä¡ ¹× ÁÖÀ§È¯°æ
´ë»ó¹°°ÇÀº °æ±âµµ ºÎõ½Ã ¼Ò»ç±¸ ¹ü¹Úµ¿ ¼ÒÀç ""ºÎõÀϽÅÃʵîÇб³"" ºÏÃø Àαٿ¡ À§Ä¡ÇÏ
¸ç, ÁÖÀ§´Â ¾ÆÆÄÆ®´ÜÁö ¹× °¢Á¾ ±Ù¸°»ýȰ½Ã¼³ µîÀÌ ¼ÒÀçÇÏ´Â Áö¿ªÀÓ.
2)±³Åë»óȲ
º»°Ç ÀαٱîÁö Â÷·® Á¢±ÙÀÌ °¡´ÉÇϸç, Àα٠±³Åë½Ã¼³ ¹× °£¼±µµ·Î¿ÍÀÇ °Å¸®, ÆíÀǼº µî
°í·Á ½Ã Á¦¹Ý ±³Åë»óȲÀº º¸Åë¼öÁØÀÓ.
3)°Ç¹°ÀÇ ±¸Á¶
ö±ÙÄÜÅ©¸®Æ®±¸Á¶ Æò½º¶óºêÁöºØ 10Ãþ °Ç¹°(´Ùû¸²¾ÆÆÄÆ®) ³» Áö1Ãþ ºñ01È£·Î¼­,
(»ç¿ë½ÂÀÎÀÏ: 2010.11.15)

¿Ü º® : ¸ôÅ»À§ ÆäÀÎÆÃ µî ¸¶°¨.
â È£ : ¼¦½Ãâȣ µî
4)ÀÌ¿ë»óÅÂ
´ë»ó¹°°ÇÀº ÁýÇÕ°ÇÃ๰´ëÀå»ó ¿ëµµ´Â ¼Ò¸ÅÁ¡À¸·Î µîÀçµÇ¾î ÀÖÀ¸³ª, ÇöȲ ÁÖ°Å¿ëÀ¸·Î ÀÌ
¿ë ÁßÀÎ °ÍÀ¸·Î ޹®¡¤Á¶»çµÇ¾úÀ½.
5)¼³ºñ³»¿ª
À§»ý ¹× ±Þ¹è¼ö¼³ºñ, µµ½Ã°¡½º¼³ºñ, ½Â°­±â¼³ºñ µîÀÌ °®Ãß¾îÁ® ÀÖÀ½.
6)ÅäÁöÀÇ Çü»ó ¹× ÀÌ¿ë»óÅÂ
»ç´Ù¸®Çü ÅäÁö·Î¼­, ¾ÆÆÄÆ® °ÇºÎÁö·Î ÀÌ¿ëÁßÀÓ.
7)ÀÎÁ¢ µµ·Î»óŵî
º»°Ç °Ç¹° ºÏ¼­ÃøÀÇ ±¤´ë·Î(¼Ò»çµ¿·Î)¿¡ Á¢ÇÑ Á¢¸é³Êºñ ¾à7¹ÌÅÍÀÇ ÁøÀÔµµ·Î¸¦ ÅëÇÏ¿©
Â÷·®ÀÌ ÁøÀÔÇÔ.
8)ÅäÁöÀÌ¿ë°èȹ ¹× Á¦ÇÑ»óÅÂ
Á¦3Á¾ÀϹÝÁÖ°ÅÁö¿ª, ¼Ò·Î3·ù(Æø 8m ¹Ì¸¸)(Á¢ÇÕ), °¡Ãà»çÀ°Á¦Çѱ¸¿ª(ÀüºÎÁ¦Çѱ¸¿ª)<°¡ÃàºÐ
´¢ÀÇ °ü¸® ¹× À̿뿡 °üÇÑ ¹ý·ü>, »ó´ëº¸È£±¸¿ª(¸à»çÀ¯Ä¡¿ø-±³À°Ã»¹®ÀÇ)<±³À°È¯°æ º¸È£¿¡
°üÇÑ ¹ý·ü>, »ó´ëº¸È£±¸¿ª(ÀϽÅÁß-ºÎõ±³À°Áö¿øÃ»¹®ÀÇ)<±³À°È¯°æ º¸È£¿¡ °üÇÑ ¹ý·ü>,»ó´ë
º¸È£±¸¿ª(ÀϽÅÃÊ-ºÎõ±³À°Áö¿øÃ»¹®ÀÇ)<±³À°È¯°æ º¸È£¿¡ °üÇÑ ¹ý·ü>, »ó´ëº¸È£±¸¿ª(⿵ÃÊ
-ºÎõ±³À°Áö¿øÃ»¹®ÀÇ)<±³À°È¯°æ º¸È£¿¡ °üÇÑ ¹ý·ü>, °ú¹Ð¾ïÁ¦±Ç¿ª<¼öµµ±ÇÁ¤ºñ°èȹ¹ý>
9)°øºÎ¿ÍÀÇ Â÷ÀÌ
´ë»ó¹°°ÇÀº °øºÎ(ÁýÇÕ°ÇÃ๰´ëÀå)»ó ¼Ò¸ÅÁ¡À¸·Î µîÀçµÇ¾î ÀÖÀ¸³ª, ÇöȲ ÁÖ°Å¿ëÀ¸·Î ÀÌ¿ë
ÁßÀÎ °ÍÀ¸·Î ޹®¡¤Á¶»çµÇ¾úÀ½.
10)±âŸÂü°í»çÇ×(ÀÓ´ë°ü·Ê ¹× ±âŸ)
- ÀÓ´ë°ü°è´Â ¹Ì»óÀÓ.
- ´ë»ó¹°°ÇÀº °øºÎ»ó Áö1ÃþÀ¸·Î µîÀçµÇ¾î ÀÖÀ¸³ª, ºÏ¼­Ãø ¼Ò»çµ¿·Î¸¦ ±âÁØÇÏ¿© 2Ãþ¿¡ ÇØ
´çµÇ¸ç ³²µ¿ÃøÀÇ ¹ü¹ÚÈú½ºÅ×ÀÌÆ®2´ÜÁö¾ÆÆÄÆ®¸¦ ±âÁØÇϸé ÁöÇÏ1Ãþ¿¡ ÇØ´çµÊ.
Âü°í
»çÇ×
ÁýÇÕ°ÇÃ๰´ëÀå»ó ¿ëµµ´Â ¼Ò¸ÅÁ¡À¸·Î µîÀçµÇ¾î ÀÖÀ¸³ª, ÇöȲ ÁÖ°Å¿ëÀ¸·Î ÀÌ¿ëÁßÀÓ

°ÇÃ๰ÇöȲ

¼ÒÀçÁö °æ±âµµ ºÎõ½Ã ¼Ò»ç±¸ ¹ü¹Úµ¿ 158¹øÁö
´ëÁö¸éÀû 992.7§³
(300.82Æò)
¿¬¸éÀû 2848.97§³
(863.32Æò)
°ÇÃà¸éÀû 271.11§³
(82.15Æò)
¿ëÀû·ü»êÁ¤
¿¬¸éÀû
1962.97§³
(594.84Æò)
°ÇÆóÀ² 27.31% ¿ëÀû·ü 197.74%
Áö»óÃþ¼ö 10Ãþ ÁöÇÏÃþ¼ö 2Ãþ
ÁÖ¿ëµµ °øµ¿ÁÖÅà ±¸Á¶ ö±ÙÄÜÅ©¸®Æ®±¸Á¶
Âø°øÀÏÀÚ 2010.01.27 »ç¿ë½ÂÀÎÀÏÀÚ 2010.11.15
°ÇÃ๰Ãþº°ÇöȲ [º¸±â]


µî±âºÎµîº» ¿ä¾à(°Ç¹°)

  Á¢¼öÀÏÀÚ µî±â¸ñÀû/±Ç¸®ÀÚ ±Ç¸®±Ý¾× ±âÁØ
1 2017³â10¿ù26ÀÏ
¼ÒÀ¯±Ç
±èOO
¼Ò¸ê
2 2011³â4¿ù11ÀÏ
±ÙÀú´ç±Ç
ºÎOOOO
143,000,000 ¼Ò¸ê±âÁØ
3 2024³â8¿ù26ÀÏ
¾Ð·ù
ºÎOO
¼Ò¸ê
4 2024³â11¿ù26ÀÏ
°¡¾Ð·ù
(OOOO
10,261,309 ¼Ò¸ê
5 2024³â12¿ù18ÀÏ
°¡¾Ð·ù
ÇÑOOOO
24,164,364 ¼Ò¸ê
6 2025³â6¿ù18ÀÏ
°­Á¦°æ¸Å
(OOOO
¼Ò¸ê
7 2025³â7¿ù10ÀÏ
¾Ð·ù
±¹OOOO
¼Ò¸ê

ÀÓÂ÷ÀÎÇöȲ (¹è´ç¿ä±¸Á¾±âÀÏ: 2025-08-29)


Á¶»çµÈ ÀÓÂ÷³»¿ªÀÌ ¾ø½À´Ï´Ù


¿©ÀÇÁÖ°æ¸Å Á¶¾ð ÇÑ ¸¶µð

ÃëÇÏ ¶Ç´Â Ãë¼ÒµÉ °¡´É¼º ÀÖ½À´Ï´Ù
ÀÌ ¹°°ÇÀÇ °¨Á¤°¡°ÝÀº 300,000,000¿øÀÔ´Ï´Ù. °æ¸Å¸¦ ½ÅûÇÑ Ã¤±ÇÀÚ°¡ ¹è´ç ¹Þ¾Æ¾ß ÇÒ ±Ý¾×Àº 10,250,104¿øÀ¸·Î °¨Á¤°¡°Ý ´ëºñ »ó´çÈ÷ ÀûÀº ±Ý¾×ÀÔ´Ï´Ù. ÀÌ·± °æ¿ì, 乫°¡°¡ º¯Á¦ÇÏ¿© °æ¸Å¸¦ ÃëÇϽÃŰ°Å³ª °æ¸Å½Åûä±ÇÀÚ°¡ ¹è´ç¹ÞÀº ±Ý¿øÀÌ ¾ø°ÔµÇ¾î À̸¥ ¹Ù "¹«À׿©¿¡ ÀÇÇÑ Ãë¼Ò"°¡ µÉ °¡´É¼ºÀÌ ÀÖ½À´Ï´Ù.

ÁÖÀÇ»çÇ× (ÃÖ¼±¼øÀ§ ¼³Á¤ÀÏ: 2011.4.11. ±ÙÀú´ç±Ç ¼³Á¤)

¸Å°¢À¸·Î ¼Ò¸êµÇÁö ¾Ê´Â µî±âºÎ±Ç¸®:
¸Å°¢À¸·Î ¼³Á¤µÈ °ÍÀ¸·Î º¸´Â Áö»ó±Ç:
ÁýÇÕ°ÇÃ๰´ëÀå»ó ¿ëµµ´Â ¼Ò¸ÅÁ¡À¸·Î µîÀçµÇ¾î ÀÖÀ¸³ª, ÇöȲ ÁÖ°Å¿ëÀ¸·Î ÀÌ¿ëÁßÀÓ
¡Ø¹Ì³³°ü¸®ºñ(°ø¿ë) Àμö¿©ºÎ¸¦ ÀÔÂû Àü¿¡ È®ÀÎÇϽñ⠹ٶø´Ï´Ù

 

Áö¿ªºÐ¼®

ÁöÇÏö¸í Á÷¼±°Å¸®

Çб³¸í ÀüÈ­¹øÈ£ ÁÖ¼Ò Á÷¼±°Å¸®

¹ý¿ø

ÀÎõÁö¹æ¹ý¿ø ºÎõÁö¿ø (146-02)°æ±âµµ ºÎõ½Ã ¿ø¹Ì±¸ »óÀÏ·Î 129(»óµ¿)
´ëÇ¥ : 032)320-1114, ¹Î¿ø : 032)320-1234
°üÇÒÁö¿ª : ºÎõ½Ã, ±èÆ÷½Ã

µî±â¼Ò ÀÎõÁö¹æ¹ý¿ø ºÎõÁö¿ø µî±â°ú (´ëÇ¥:1544-0773, ÆÑ½º:(032)320-1484, 320-1485, °æ±âµµ ºÎõ½Ã »óÀÏ·Î 129 (»óµ¿ 445-1))
¼¼¹«¼­ ¼¼¹«¼­ (´ëÇ¥:, ÆÑ½º:, )

Àαٳ«ÂûÅë°è

±â°£ ¸Å°¢°Ç¼ö Æò±Õ°¨Á¤°¡
Æò±Õ¸Å°¢°¡
¸Å°¢°¡À²
Æò±ÕÀ¯Âû¼ö
3°³¿ù 0°Ç 0¿ø
0¿ø
0%
0ȸ
6°³¿ù 0°Ç 0¿ø
0¿ø
0%
0ȸ
12°³¿ù 0°Ç 0¿ø
0¿ø
0%
0ȸ


º» °æ¸ÅÁ¤º¸´Â ¹ý¿øÀÚ·á¿Í ÀÏÄ¡Çϵµ·Ï ÇÏ¿´À¸³ª ±Ç¸®»çÇ׺¯µ¿, ÀÔ·ÂÂø¿À µîÀÇ ¿øÀÎÀ¸·Î »ç½Ç°ú ´Ù¸¦ ¼ö ÀÖ½À´Ï´Ù. ÀÌ¿ë¾à°ü¿¡ ÀǰЏéÃ¥Á¶°ÇÀ¸·Î Á¦°øµÊÀ» ¾Ë¸®¸ç, °æ¸ÅÀÔÂû½Ã ¹Ýµå½Ã °ü·Ã °øºÎ¸¦ ÀçÈ®ÀÎÇϽñ⠹ٶø´Ï´Ù. º¸´Ù Æí¸®ÇÑ °æ¸ÅÁ¤º¸ Á¦°øÀ» À§ÇØ Áö¼ÓÀûÀ¸·Î °³¼±ÇϰڽÀ´Ï´Ù. ÀÌ¿ëÇØ Áּż­ °¨»çÇÕ´Ï´Ù.