·Î±×ÀÎ
24
´Ù¼¼´ë(ºô¶ó)
¼ö¿øÁö¹æ¹ý¿ø ¼º³²Áö¿ø
 °¨Á¤°¡123,000,000 ¿ø
 ÃÖÀú°¡(100%) 123,000,000 ¿ø
 º¸Áõ±Ý(10%) 12,300,000 ¿ø
 Ã»±¸¾×90,000,000 ¿ø
°æ±âµµ ±¤Áֽà ÅÂÀç·Î 133-13, ÁöÃþºñ02È£
°æ±âµµ ±¤Áֽà ´ÉÆòµ¿ 429-21
»ç°Ç¹øÈ£ 2024Ÿ°æ68151
°æ¸ÅÁ¾·ùºÎµ¿»ê°­Á¦°æ¸Å
¸Å°¢´ë»óÅäÁö ¹× °Ç¹°Àϰý ¸Å°¢
¸Å°¢±âÀÏ    2026.03.23(¿ù) 10:00 ÀÔÂû 13ÀÏÀü    
ÅäÁö¸éÀû66.10§³(20.00 Æò)
°Ç¹°¸éÀû60.07§³(18.17 Æò)
乫/¼ÒÀ¯ÀÚ±èOO / ±èOO
ä±ÇÀÚ°­OO
ÆäÀ̽ººÏ Æ®À§ÅÍ ±¸±Û+
īī¿À½ºÅ丮
īī¿ÀÅå sms¹®ÀÚº¸³»±â
 

±âÀϳ»¿ª

°æ°ú ³¯Â¥ Àú°¨ ÃÖÀú°¡ °á°ú
Á¢¼öÀÏ 2024-10-12 °æ¸ÅÁ¢¼ö
~3ÀÏ 
2024-10-15 °æ¸Å°³½Ã°áÁ¤
~66ÀÏ 
2024-12-17 ¹è´ç¿ä±¸Á¾±âÀÏ
~527ÀÏ 
2026-03-23 100%
123,000,000
ÁøÇà
¹°°Ç¸í¼¼¼­ ÇöȲÁ¶»ç¼­ ¹®°ÇÁ¢¼ö ¼Û´Þ³»¿ª

°¨Á¤Æò°¡ÇöȲ

¸ñ·Ï ÁÖ¼Ò ±¸Á¶/¿ëµµ/´ëÁö±Ç ¸éÀû ºñ°í
´ëÁö±Ç
´ÉÆòµ¿ 429-29 661ºÐÀÇ 66.1 66.1 §³
(20.00Æò)
°Ç¹°
´ÉÆòµ¿ 429-29 ÁöÃþºñ02È£ ö±ÙÄÜÅ©¸®Æ®Á¶ 60.07 §³
(18.17Æò)
1) À§Ä¡/°èȹ°ü¸®Áö¿ª/ÁÖÂ÷Àå/°£¼±µµ·Î/ö±ÙÄÜÅ©¸®Æ®Á¶/½º¶óºêÁöºØ/µµ½Ã°¡½º/°³º°³­¹æ ´õº¸±â
°¨Á¤Æò°¡ ¿äÇ×Ç¥
1)À§Ä¡ ¹× ÁÖÀ§È¯°æ
º»°ÇÀº ±¤Áֽà ½ÅÇöµ¿ ¼ÒÀç "±¤ÁÖ±¤¸íÃʵîÇб³" µ¿Ãø Àαٿ¡ À§Ä¡Çϰí ÀÖÀ¸¸ç, ÁÖÀ§´Â
´Ù¼¼´ëÁÖÅÃÀÌ ¹ÐÁý(³«¿ø°ñµçÈú 13°³ µ¿ ¿Ü)ÇÏ¿© ¼ÒÀçÇϰí ÁÖÅÃÁö ÁÖº¯Àº ÀÓ¾ß, ³²Ãø
°£¼±µµ·Îº¯Àº ±Ù¸°»ýȰ½Ã¼³ÀÌ È¥ÀçÇϰí ÀÖ´Â Áö¿ªÀÓ.
2)±³Åë»óȲ
º»°Ç±îÁö ½Â¿ëÂ÷·® ÁøÃâÀÔÀÌ °¡´ÉÇϸç, º»°Ç ³²Ãø¿¡ ¼ÒÀçÇÏ´Â ÅÂÀç·Îº¯¿¡ ³ë¼±¹ö½º ´Ù¼ö°¡
¿îÇàµÇ°í ÀÖÀ½.
3)°Ç¹°ÀÇ ±¸Á¶
2002³â 8¿ù 14ÀÏ »ç¿ë½ÂÀÎµÈ Ã¶±ÙÄÜÅ©¸®Æ®Á¶ ½º¶óºêÁöºØ 4Ãþ °Ç¹°³» ÁöÃþ ºñ02È£·Î¼­,
³²ÇÏÇâ °æ»çÁö¿¡ °ÇÃàµÇ¾î ÁöÃþÀÇ °æ¿ìµµ ³²ÃøÀ¸·Î´Â ¸¹Àº ºÎºÐÀÌ ³ëÃâµÇ¾î ÀÖÀ¸¸ç,

¿Üº®: µ¹ºÙÀÓ ¹× ÀϺΠ¸ôÅ»À§ ÆäÀÎÆÃ ¸¶°­
âȣ: ÇÏÀ̼¦½Ã 2ÁßâÀÓ.
4)ÀÌ¿ë»óÅÂ
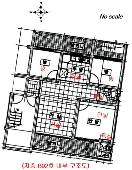
´Ù¼¼´ëÁÖÅà ´ÜÀ§ ¼¼´ë·Î¼­, ÀÌ¿ë»óȲÀº º°Ã· "³»ºÎ ±¸Á¶µµ" ÂüÁ¶ ¹Ù¶÷.
5)¼³ºñ³»¿ª
À§»ý ¹× ±Þ¹è¼ö ¼³ºñ, µµ½Ã°¡½º ¼³ºñ, °³º°³­¹æ ¼³ºñ µîÀÌ µÇ¾î ÀÖÀ½.
6)ÅäÁöÀÇ Çü»ó ¹× ÀÌ¿ë»óÅÂ
³²ÇÏÇâ °æ»çÁö´ë¸¦ ÆòźÇÏ°Ô Á¶¼ºÇÑ »ç´Ù¸®²Ã ÇüÅÂÀÇ ÅäÁö·Î¼­, ´Ù¼¼´ëÁÖÅà ºÎÁö·Î
ÀÌ¿ëÁßÀÓ.
7)ÀÎÁ¢ µµ·Î»óŵî
º»°Ç µ¿ÃøÀ¸·Î 6¹ÌÅÍ ³»¿ÜÀÇ ÁøÀÔµµ·Î ÀÎ ¾Æ½ºÆÈÆ® Æ÷Àåµµ·Î¿Í Á¢Çϸç, ¼­Ãø ¹× ³²ÃøÀ¸·Î
ÁÖº¯ ´ÜÁö¿Í ÇÔ²² »ç¿ëÇÏ´Â ´ÜÁö ³» µµ·Î°¡ °³¼³µÇ¾î ÀÖ°í, Áö»ó ÁÖÂ÷Àå ½Ã¼³ÀÌ ÀÖÀ½.
8)ÅäÁöÀÌ¿ë°èȹ ¹× Á¦ÇÑ»óÅÂ
°èȹ°ü¸®Áö¿ª, ¼ºÀå°ü¸®°èȹ±¸¿ª, °¡Ãà»çÀ°Á¦Çѱ¸¿ª, ¹èÃâ½Ã¼³¼³Ä¡Á¦ÇÑÁö¿ª, ÀÚ¿¬º¸Àü
±Ç¿ª, Ưº°´ëÃ¥Áö¿ªÀÓ.
9)°øºÎ¿ÍÀÇ Â÷ÀÌ
¾øÀ½.
10)±âŸÂü°í»çÇ×(ÀÓ´ë°ü·Ê ¹× ±âŸ)
ÀÓ´ë°ü°è´Â ¹Ì»óÀÓ.

°ÇÃ๰ÇöȲ

¼ÒÀçÁö °æ±âµµ ±¤Áֽà ´ÉÆòµ¿ 429-29¹øÁö
´ëÁö¸éÀû 661§³
(200.3Æò)
¿¬¸éÀû 658.3§³
(199.48Æò)
°ÇÃà¸éÀû 146.08§³
(44.27Æò)
¿ëÀû·ü»êÁ¤
¿¬¸éÀû
526.64§³
(159.59Æò)
°ÇÆóÀ² 22.1% ¿ëÀû·ü 79.67%
Áö»óÃþ¼ö 4Ãþ ÁöÇÏÃþ¼ö 1Ãþ
ÁÖ¿ëµµ °øµ¿ÁÖÅà ±¸Á¶ ö±ÙÄÜÅ©¸®Æ®±¸Á¶
Âø°øÀÏÀÚ 2002.03.20 »ç¿ë½ÂÀÎÀÏÀÚ 2002.08.14
°ÇÃ๰Ãþº°ÇöȲ [º¸±â]


±¹ÅäºÎ½Ç°Å·¡°¡ °æ±âµµ ±¤Áֽà ´ÉÆòµ¿

¡Ü ¸Å¸Å

¸éÀû(§³), ±Ý¾×(¸¸¿ø)

¡Ü Àü¼¼

¸éÀû(§³), ±Ý¾×(¸¸¿ø)

°è¾àÀϰǹ°¸íĪÃþ¿¬¸éÀûº¸Áõ±Ý¿ù¼¼°ÇÃà
26.02.28´õ³×½ºÆ¼¿ò302µ¿155.6720,20002021
26.02.27Èѹ̸®Å¸¿î(103µ¿)352.22518,1002015
26.02.26´õ³×½ºÆ¼¿ò302µ¿455.673,0001352021
26.02.26¸Þ¸£ÇîÇϿ콺(A,Bµ¿)450.1912,7002013
26.02.25³«¿ø°ñµçÈú(9µ¿)460.0714,00002002
¢Ñ ´õº¸±â

µî±âºÎµîº» ¿ä¾à(°Ç¹°)

  Á¢¼öÀÏÀÚ µî±â¸ñÀû/±Ç¸®ÀÚ ±Ç¸®±Ý¾× ±âÁØ
1 2003³â7¿ù25ÀÏ
¼ÒÀ¯±Ç
±èOO
¼Ò¸ê
2 2023³â12¿ù22ÀÏ
°¡¾Ð·ù
(OOOO
61,893,698 ¼Ò¸ê±âÁØ
3 2024³â10¿ù11ÀÏ
°¡¾Ð·ù
(OOOO
84,281,461 ¼Ò¸ê
4 2024³â10¿ù15ÀÏ
°­Á¦°æ¸Å
°­OO
¼Ò¸ê
5 2024³â10¿ù23ÀÏ
¾Ð·ù
±¹OOOO
¼Ò¸ê
6 2024³â12¿ù10ÀÏ
¾Ð·ù
±¹
¼Ò¸ê

ÀÓÂ÷ÀÎÇöȲ (¹è´ç¿ä±¸Á¾±âÀÏ: 2024-12-17)



¸Å°¢±âÀÏ 7ÀÏÀü¿¡ ¸Å°¢¹°°Ç¸í¼¼¼­°¡ °ø°íµÇ¿À´Ï È®ÀÎÇϽñ⠹ٶø´Ï´Ù.

ÀÓÂ÷ÀÎ ¿ëµµ/Á¡À¯ º¸Áõ±Ý/¿ù¼¼ ´ëÇ×·Â
ÀüÀÔÀÏ/È®Á¤ÀÏ ¹è´ç¿ä±¸ ºñ°í
°­OO ºñ2È£ÀüºÎ 90,000,000
O
2020.09.04.
2022.06.23.
2024.10.24. 2022.06.22.~2024.06.22.
ºñ°í
(¸Å°¢¹°°Ç
¸í¼¼¼­)
°­Á¤¿ì:ÀÌ »ç°Ç ½Åûä±ÇÀÚÀÓ

¿©ÀÇÁÖ°æ¸Å Á¶¾ð ÇÑ ¸¶µð


ÁÖÀÇ»çÇ× (ÃÖ¼±¼øÀ§ ¼³Á¤ÀÏ: 2023.12.22. °¡¾Ð·ù ¼³Á¤)

¸Å°¢À¸·Î ¼Ò¸êµÇÁö ¾Ê´Â µî±âºÎ±Ç¸®:
¸Å°¢À¸·Î ¼³Á¤µÈ °ÍÀ¸·Î º¸´Â Áö»ó±Ç:
¡Ø¹Ì³³°ü¸®ºñ(°ø¿ë) Àμö¿©ºÎ¸¦ ÀÔÂû Àü¿¡ È®ÀÎÇϽñ⠹ٶø´Ï´Ù

 

Áö¿ªºÐ¼®

ÁöÇÏö¸í Á÷¼±°Å¸®

Çб³¸í ÀüÈ­¹øÈ£ ÁÖ¼Ò Á÷¼±°Å¸®

¹ý¿ø

¼ö¿øÁö¹æ¹ý¿ø ¼º³²Áö¿ø (131-43)°æ±âµµ ¼º³²½Ã ¼öÁ¤±¸ »ê¼º´ë·Î 451 (´Ü´ëµ¿)
´ëÇ¥ : 031)737-1558, ¾ß°£ : 031)737-1120
°üÇÒÁö¿ª : ¼º³²½Ã, ±¤ÁÖ½Ã, Çϳ²½Ã

µî±â¼Ò ¼ö¿øÁö¹æ¹ý¿ø ¼º³²Áö¿ø ±¤ÁÖµî±â¼Ò (´ëÇ¥:1544-0773, ÆÑ½º:(031)765-2388, °æ±âµµ ±¤Áֽà ÇàÁ¤Å¸¿î·Î 49-15 (¼ÛÁ¤µ¿ 346-4))
¼¼¹«¼­ °æ±â±¤ÁÖ¼¼¹«¼­ (´ëÇ¥:031-880-92, ÆÑ½º:031-769-0417, °æ±âµµ ±¤Áֽà ¹®È­·Î 127)

Àαٳ«ÂûÅë°è

±â°£ ¸Å°¢°Ç¼ö Æò±Õ°¨Á¤°¡
Æò±Õ¸Å°¢°¡
¸Å°¢°¡À²
Æò±ÕÀ¯Âû¼ö


º» °æ¸ÅÁ¤º¸´Â ¹ý¿øÀÚ·á¿Í ÀÏÄ¡Çϵµ·Ï ÇÏ¿´À¸³ª ±Ç¸®»çÇ׺¯µ¿, ÀÔ·ÂÂø¿À µîÀÇ ¿øÀÎÀ¸·Î »ç½Ç°ú ´Ù¸¦ ¼ö ÀÖ½À´Ï´Ù. ÀÌ¿ë¾à°ü¿¡ ÀǰЏéÃ¥Á¶°ÇÀ¸·Î Á¦°øµÊÀ» ¾Ë¸®¸ç, °æ¸ÅÀÔÂû½Ã ¹Ýµå½Ã °ü·Ã °øºÎ¸¦ ÀçÈ®ÀÎÇϽñ⠹ٶø´Ï´Ù. º¸´Ù Æí¸®ÇÑ °æ¸ÅÁ¤º¸ Á¦°øÀ» À§ÇØ Áö¼ÓÀûÀ¸·Î °³¼±ÇϰڽÀ´Ï´Ù. ÀÌ¿ëÇØ Áּż­ °¨»çÇÕ´Ï´Ù.