·Î±×ÀÎ
307
±Ù¸°»ó°¡
ÀÎõÁö¹æ¹ý¿ø
 °¨Á¤°¡859,000,000 ¿ø
 ÃÖÀú°¡(49%) 420,910,000 ¿ø
 º¸Áõ±Ý(10%) 42,091,000 ¿ø
 Ã»±¸¾×120,000,000 ¿ø
ÀÎõ±¤¿ª½Ã Áß±¸ ÇÞ³»·Î13¹ø±æ 17, 1Ãþ 111È£ (¿î¼­µ¿,ÇÁ¶óÀÓ½ÃÆ¼1)
ÀÎõ±¤¿ª½Ã Áß±¸ ¿î¼­µ¿ 3093-1
»ç°Ç¹øÈ£ 2024Ÿ°æ578009
Áߺ¹»ç°ÇÁߺ¹ 2025Ÿ°æ513544,
°æ¸ÅÁ¾·ùºÎµ¿»êÀÓÀǰæ¸Å
¸Å°¢´ë»óÅäÁö ¹× °Ç¹°Àϰý ¸Å°¢
¸Å°¢±âÀÏ    2026.05.26(È­) 10:00 ÀÔÂû 3ÀÏÀü    
ÅäÁö¸éÀû11.50§³(3.48 Æò)
°Ç¹°¸éÀû43.82§³(13.26 Æò)
乫/¼ÒÀ¯ÀÚÁ¶OO / ÀÓOO
ä±ÇÀÚ±èOO
ÆäÀ̽ººÏ Æ®À§ÅÍ ±¸±Û+
īī¿À½ºÅ丮
īī¿ÀÅå sms¹®ÀÚº¸³»±â
 

±âÀϳ»¿ª

°æ°ú ³¯Â¥ Àú°¨ ÃÖÀú°¡ °á°ú
Á¢¼öÀÏ 2024-11-29 °æ¸ÅÁ¢¼ö
~3ÀÏ 
2024-12-02 °æ¸Å°³½Ã°áÁ¤
~90ÀÏ 
2025-02-27 ¹è´ç¿ä±¸Á¾±âÀÏ
~476ÀÏ 
2026-03-20 100%
859,000,000
À¯Âû
~508ÀÏ 
2026-04-21 70%
601,300,000
À¯Âû
~543ÀÏ 
2026-05-26 49%
420,910,000
ÁøÇà
¹°°Ç¸í¼¼¼­ ÇöȲÁ¶»ç¼­ ¹®°ÇÁ¢¼ö ¼Û´Þ³»¿ª

°¨Á¤Æò°¡ÇöȲ

¸ñ·Ï ÁÖ¼Ò ±¸Á¶/¿ëµµ/´ëÁö±Ç ¸éÀû ºñ°í
´ëÁö±Ç
¿î¼­µ¿ 3093-1 1758.1ºÐÀÇ 11.495 11.495 §³
(3.48Æò)
°Ç¹°
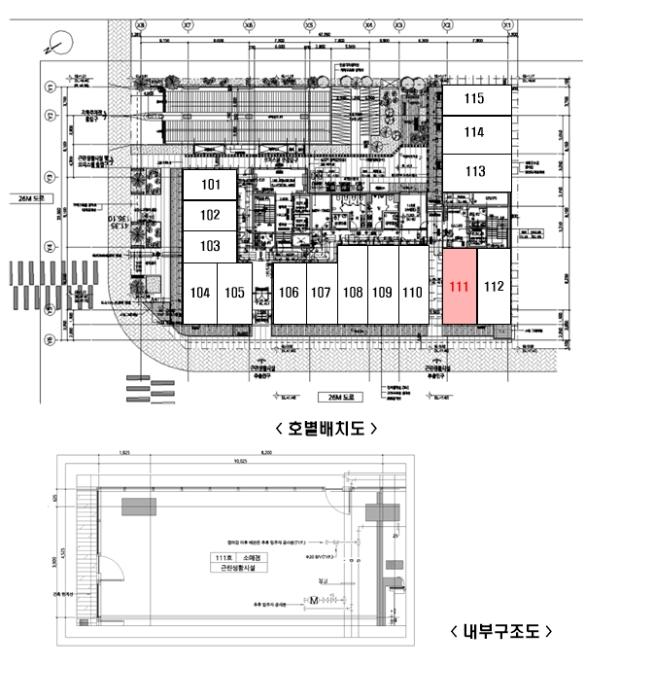
¿î¼­µ¿ 3093-1 1Ãþ 111È£ ö±ÙÄÜÅ©¸®Æ®±¸Á¶ 43.82 §³
(13.26Æò)
1) À§Ä¡/ÀϹݻó¾÷Áö¿ª/Áö±¸´ÜÀ§°èȹ±¸¿ª/³ë¼±¹ö½ºÁ¤·ùÀå/ö±ÙÄÜÅ©¸®Æ®±¸Á¶ ´õº¸±â
°¨Á¤Æò°¡ ¿äÇ×Ç¥
1)À§Ä¡ ¹× ÁÖÀ§È¯°æ
º»°ÇÀº ÀÎõ±¤¿ª½Ã Áß±¸ ¿î¼­µ¿ ¼ÒÀç "°øÇ×öµµ ¿î¼­¿ª" ³²µ¿Ãø Àαٿ¡ À§Ä¡ÇÏ´Â ºÎµ¿»êÀ¸·Î¼­, ÁÖÀ§´Â ´Ù¼¼´ëÁÖÅÃ, ¿ÀÇǽºÅÚ, °¢Á¾ ±Ù¸°»ýȰ½Ã¼³ µîÀÌ ¼ÒÀçÇϸç, Á¦¹Ý ÁÖÀ§È¯°æÀº º¸ÅëÀÓ.
2)±³Åë»óȲ
º»°Ç±îÁö Â÷·® ÁøÃâÀÔÀÌ °¡´ÉÇϸç, Àαٿ¡ ³ë¼±¹ö½ºÁ¤·ùÀå ¹× "°øÇ×öµµ ¿î¼­¿ª"ÀÌ ¼ÒÀçÇÏ´Â µî Á¦¹Ý ±³Åë»óȲÀº º¸ÅëÀÓ.
3)°Ç¹°ÀÇ ±¸Á¶
ö±ÙÄÜÅ©¸®Æ®±¸Á¶ ö±ÙÄÜÅ©¸®Æ®ÆòÁöºØ 10Ãþ °Ç¹° ³» Á¦1Ãþ Á¦111È£·Î¼­,
(»ç¿ë½ÂÀÎÀÏ : 2019.4.2.)
¿Ü º® : µ¹ ºÙÀÓ ¹× ÆÇ³Ú ºÙÀÓ ¸¶°¨ µî,
â È£ : ¼¦½Ã âȣ µîÀÓ.
4)ÀÌ¿ë»óÅÂ
Á¦1Á¾±Ù¸°»ýȰ½Ã¼³(¼Ò¸ÅÁ¡)À¸·Î ÀÌ¿ëÁßÀÓ.
5)¼³ºñ³»¿ª
±âº»ÀûÀÎ À§»ý ¹× ±Þ¹è¼ö¼³ºñ, ³­¹æ¼³ºñ µî ±¸ºñµÇ¾î ÀÖÀ½.


6)ÅäÁöÀÇ Çü»ó ¹× ÀÌ¿ë»óÅÂ
¼¼ÀåÇüÀÇ ÆòÁö·Î¼­, Á¦1,2Á¾±Ù¸°»ýȰ½Ã¼³ ¹× ¾÷¹«½Ã¼³(¿ÀÇǽºÅÚ)ºÎÁöÀÓ.
7)ÀÎÁ¢ µµ·Î»óŵî
º»°Ç ºÏ¼­Ãø ¹× ºÏµ¿ÃøÀ¸·Î ¿Õº¹ 6Â÷·ÎÀÇ Æ÷Àåµµ·Î¿Í Á¢ÇÔ.
8)ÅäÁöÀÌ¿ë°èȹ ¹× Á¦ÇÑ»óÅÂ
ÀϹݻó¾÷Áö¿ª(2013-02-04), Áö±¸´ÜÀ§°èȹ±¸¿ª, ´ë·Î3·ù(Æø 25m-30m)(2012-12-28)(Á¢ÇÕ), °æÁ¦ÀÚÀ¯±¸¿ª<°æÁ¦ÀÚÀ¯±¸¿ªÀÇ ÁöÁ¤ ¹× ¿î¿µ¿¡ °üÇÑ Æ¯º°¹ý>, Àå¾Ö¹°Á¦ÇÑÇ¥¸é±¸¿ª(2012-06-11)(¼öÆòÇ¥¸é)<°øÇ׽ü³¹ý>, ¼ºÀå°ü¸®±Ç¿ª(2014-11-03)<¼öµµ±ÇÁ¤ºñ°èȹ¹ý>ÀÓ.
9)°øºÎ¿ÍÀÇ Â÷ÀÌ
-
10)±âŸÂü°í»çÇ×(ÀÓ´ë°ü·Ê ¹× ±âŸ)
-
Âü°í
»çÇ×

- º»°ÇÀº °øÇ×öµµ ¿î¼­¿ª ºÎ±Ù¿¡ À§Ä¡ÇÑ »ó°¡ ÁÖº¯Àº »ó°¡, ¾ÆÆÄÆ® µîÀÌ ¹ÐÁýµÈ Áö¿ªÀÓ

°ÇÃ๰ÇöȲ

¼ÒÀçÁö ÀÎõ±¤¿ª½Ã Áß±¸ ¿î¼­µ¿ 3093-1¹øÁö
´ëÁö¸éÀû 1758.1§³
(532.76Æò)
¿¬¸éÀû 16913.66§³
(5125.35Æò)
°ÇÃà¸éÀû 1044.8§³
(316.61Æò)
¿ëÀû·ü»êÁ¤
¿¬¸éÀû
9472.25§³
(2870.38Æò)
°ÇÆóÀ² 59.43% ¿ëÀû·ü 538.78%
Áö»óÃþ¼ö 10Ãþ ÁöÇÏÃþ¼ö 6Ãþ
ÁÖ¿ëµµ ¾÷¹«½Ã¼³ ±¸Á¶ ö±ÙÄÜÅ©¸®Æ®±¸Á¶
Âø°øÀÏÀÚ 2017.05.15 »ç¿ë½ÂÀÎÀÏÀÚ 2019.04.02
°ÇÃ๰Ãþº°ÇöȲ [º¸±â]


µî±âºÎµîº» ¿ä¾à(°Ç¹°)

  Á¢¼öÀÏÀÚ µî±â¸ñÀû/±Ç¸®ÀÚ ±Ç¸®±Ý¾× ±âÁØ
1 2019³â6¿ù18ÀÏ
¼ÒÀ¯±Ç
ÀÓOO
¼Ò¸ê
2 2019³â6¿ù18ÀÏ
±ÙÀú´ç±Ç
¿µOOOO
528,000,000 ¼Ò¸ê±âÁØ
3 2024³â10¿ù14ÀÏ
±ÙÀú´ç±Ç
±èOO
120,000,000 ¼Ò¸ê
4 2024³â12¿ù2ÀÏ
ÀÓÀǰæ¸Å
±èOO
¼Ò¸ê
5 2025³â10¿ù30ÀÏ
ÀÓÀǰæ¸Å
¿µOOOO
¼Ò¸ê

ÀÓÂ÷ÀÎÇöȲ (¹è´ç¿ä±¸Á¾±âÀÏ: 2025-02-27)

ÀÓÂ÷ÀÎ ¿ëµµ/Á¡À¯ º¸Áõ±Ý/¿ù¼¼ ´ëÇ×·Â
ÀüÀÔÀÏ/È®Á¤ÀÏ ¹è´ç¿ä±¸ ºñ°í
±èOO 111È£ÀüºÎ 30,000,000
[¿ù]1,700,000
X
2023.11.06.
2023.11.06.
2025.01.08. 2023.10.23.~2025.10.23.

¿©ÀÇÁÖ°æ¸Å Á¶¾ð ÇÑ ¸¶µð

ÃëÇÏ ¶Ç´Â Ãë¼ÒµÉ °¡´É¼ºÀº ÀÖÀ¸³ª ±×´ë·Î ÁøÇàµÉ °¡´É¼ºµµ ¸¹½À´Ï´Ù
¼±Çà°æ¸Å¸¦ ½ÅûÇÑ Ã¤±ÇÀÚ°¡ ¹è´ç ¹Þ¾Æ¾ß ÇÒ ±Ý¾×Àº 120,000,000¿øÀ¸·Î °¨Á¤°¡°Ý ´ëºñ »ó´çÈ÷ ÀûÀº ±Ý¾×À̼­ °æ¸Å°¡ ÃëÇϵǰųª Ãë¼Ò µÉ °¡´É¼ºÀÌ ÀÖ½À´Ï´Ù. ±×·±µ¥ ÈÄÇà°æ¸Å »ç°Ç (Áߺ¹ 2025Ÿ°æ513544,)ÀÌ À־ ÃëÇÏ,Ãë¼ÒµÇÁö ¾Ê°í ÁøÇàµÉ °¡´É¼ºµµ ¸¹½À´Ï´Ù.

ÁÖÀÇ»çÇ× (ÃÖ¼±¼øÀ§ ¼³Á¤ÀÏ: 2019. 6. 18. ±ÙÀú´ç±Ç ¼³Á¤)

¸Å°¢À¸·Î ¼Ò¸êµÇÁö ¾Ê´Â µî±âºÎ±Ç¸®:
¸Å°¢À¸·Î ¼³Á¤µÈ °ÍÀ¸·Î º¸´Â Áö»ó±Ç:
2026.04.03 ±ÙÀú´ç±ÇÀÚ ³óOOOOOOOOOOO (OOO O OOOOOOOOO) ȯ±Þ°èÁ º¯°æ½Åû¼­ Á¦Ãâ
- ÇöȲ ¡®Á¦1Á¾±Ù¸°»ýȰ½Ã¼³(¼Ò¸ÅÁ¡)¡¯À¸·Î ÀÌ¿ë ÁßÀÓ
¡Ø¹Ì³³°ü¸®ºñ(°ø¿ë) Àμö¿©ºÎ¸¦ ÀÔÂû Àü¿¡ È®ÀÎÇϽñ⠹ٶø´Ï´Ù

 

Áö¿ªºÐ¼®

ÁöÇÏö¸í Á÷¼±°Å¸®

Çб³¸í ÀüÈ­¹øÈ£ ÁÖ¼Ò Á÷¼±°Å¸®

¹ý¿ø

ÀÎõÁö¹æ¹ý¿ø (222-20)ÀÎõ±¤¿ª½Ã ¹ÌÃßȦ±¸ ¼Ò¼º·Î 163¹ø±æ 17(ÇÐÀ͵¿)
´ëÇ¥ : 032)860-1113~4
°üÇÒÁö¿ª : Áß±¸, µ¿±¸, ³²±¸, ¿¬¼ö±¸, ³²µ¿±¸, ºÎÆò±¸, °è¾ç±¸, ¼­±¸, ¿ËÁø±º, °­È­±º

µî±â¼Ò ÀÎõÁö¹æ¹ý¿ø º»¿ø µî±â±¹ (´ëÇ¥:1544-0773, ÆÑ½º:(032)620-9099, ÀÎõ±¤¿ª½Ã ¹ÌÃßȦ±¸ °æ¿ø´ë·Î 881(Á־ȵ¿ 983))
¼¼¹«¼­ ÀÎõ¼¼¹«¼­ (´ëÇ¥:032-770-02, ÆÑ½º:032-777-8104, ÀÎõ±¤¿ª½Ã µ¿±¸ ¿ì°¢·Î 75 (⿵µ¿))

Àαٳ«ÂûÅë°è

±â°£ ¸Å°¢°Ç¼ö Æò±Õ°¨Á¤°¡
Æò±Õ¸Å°¢°¡
¸Å°¢°¡À²
Æò±ÕÀ¯Âû¼ö
3°³¿ù 11°Ç 1,764,081,520¿ø
762,088,587¿ø
41%
3.1ȸ
6°³¿ù 20°Ç 1,238,794,836¿ø
466,770,712¿ø
35%
3.9ȸ
12°³¿ù 41°Ç 782,938,976¿ø
301,414,865¿ø
35%
3.9ȸ


º» °æ¸ÅÁ¤º¸´Â ¹ý¿øÀÚ·á¿Í ÀÏÄ¡Çϵµ·Ï ÇÏ¿´À¸³ª ±Ç¸®»çÇ׺¯µ¿, ÀÔ·ÂÂø¿À µîÀÇ ¿øÀÎÀ¸·Î »ç½Ç°ú ´Ù¸¦ ¼ö ÀÖ½À´Ï´Ù. ÀÌ¿ë¾à°ü¿¡ ÀǰЏéÃ¥Á¶°ÇÀ¸·Î Á¦°øµÊÀ» ¾Ë¸®¸ç, °æ¸ÅÀÔÂû½Ã ¹Ýµå½Ã °ü·Ã °øºÎ¸¦ ÀçÈ®ÀÎÇϽñ⠹ٶø´Ï´Ù. º¸´Ù Æí¸®ÇÑ °æ¸ÅÁ¤º¸ Á¦°øÀ» À§ÇØ Áö¼ÓÀûÀ¸·Î °³¼±ÇϰڽÀ´Ï´Ù. ÀÌ¿ëÇØ Áּż­ °¨»çÇÕ´Ï´Ù.