·Î±×ÀÎ
140
´Ù¼¼´ë(ºô¶ó)
¼ö¿øÁö¹æ¹ý¿ø
 °¨Á¤°¡255,000,000 ¿ø
 ÃÖÀú°¡(70%) 178,500,000 ¿ø
 º¸Áõ±Ý(10%) 17,850,000 ¿ø
 Ã»±¸¾×61,104,657 ¿ø
°æ±âµµ ¿ëÀνà óÀα¸ ¿ªºÏµ¿ 454-39 501È£
»ç°Ç¹øÈ£ 2025Ÿ°æ54693
°æ¸ÅÁ¾·ùºÎµ¿»ê°­Á¦°æ¸Å
¸Å°¢´ë»óÅäÁö ¹× °Ç¹°Àϰý ¸Å°¢
¸Å°¢±âÀÏ    2026.04.21(È­) 10:00 ÀÔÂû 12ÀÏÀü    
ÅäÁö¸éÀû78.20§³(23.66 Æò)
°Ç¹°¸éÀû115.24§³(34.86 Æò)
乫/¼ÒÀ¯ÀÚ¹ÎOO / ¹ÎOO
ä±ÇÀÚ±èOO
ÆäÀ̽ººÏ Æ®À§ÅÍ ±¸±Û+
īī¿À½ºÅ丮
īī¿ÀÅå sms¹®ÀÚº¸³»±â
 

±âÀϳ»¿ª

°æ°ú ³¯Â¥ Àú°¨ ÃÖÀú°¡ °á°ú
Á¢¼öÀÏ 2025-02-18 °æ¸ÅÁ¢¼ö
~2ÀÏ 
2025-02-20 °æ¸Å°³½Ã°áÁ¤
~78ÀÏ 
2025-05-07 ¹è´ç¿ä±¸Á¾±âÀÏ
~395ÀÏ 
2026-03-20 100%
255,000,000
À¯Âû
~427ÀÏ 
2026-04-21 70%
178,500,000
ÁøÇà
¹°°Ç¸í¼¼¼­ ÇöȲÁ¶»ç¼­ ¹®°ÇÁ¢¼ö ¼Û´Þ³»¿ª

°¨Á¤Æò°¡ÇöȲ

¸ñ·Ï ÁÖ¼Ò ±¸Á¶/¿ëµµ/´ëÁö±Ç ¸éÀû ºñ°í
´ëÁö±Ç
¿ªºÏµ¿ 454-39 344ºÐÀÇ 78.2027 78.2027 §³
(23.66Æò)
°Ç¹°
¿ªºÏµ¿ 454-39 501È£ ö±ÙÄÜÅ©¸®Æ®Á¶ 115.24 §³
(34.86Æò)
1) À§Ä¡/µµ½ÃÁö¿ª/Á¦2Á¾ÀϹÝÁÖ°ÅÁö¿ª/¹ö½ºÁ¤·ùÀå/ö±ÙÄÜÅ©¸®Æ®Á¶/½º¶óºêÁöºØ ´õº¸±â
°¨Á¤Æò°¡ ¿äÇ×Ç¥
1)À§Ä¡ ¹× ÁÖÀ§È¯°æ
º»°ÇÀº °æ±âµµ ¿ëÀνà óÀα¸ ¿ªºÏµ¿ ¼ÒÀç ""¸íÁö´ë¿ª"" µ¿Ãø Àαٿ¡ ¼ÒÀçÇÏ´Â ±¸ºÐ°Ç¹°·Î¼­
ÀαÙÀº º»°Ç°ú À¯»çÇÑ ´Ù¼¼´ëÁÖÅÃ, ´Üµ¶ÁÖÅÃ, Áß¡¤¼ÒÇü ±Ù¸°»ýȰ½Ã¼³, ¾ÆÆÄÆ® ¹× Çб³ µîÀÌ
È¥ÀçÇÏ´Â Áö´ë·Î¼­ Á¦¹Ý ÁÖÀ§È¯°æÀº º¸ÅëÀÓ.

2)±³Åë»óȲ
º»°Ç±îÁö Â÷·®ÀÇ ÁøÃâÀÔ °¡´ÉÇϰí Àα٠¹ö½ºÁ¤·ùÀå±îÁöÀÇ °Å¸® ¹× ¿îÇàºóµµ µîÀ¸·Î º¸¾Æ
Á¦¹Ý ±³Åë»óȲÀº º¸ÅëÀÓ.
3)°Ç¹°ÀÇ ±¸Á¶
ö±ÙÄÜÅ©¸®Æ®Á¶ (ö±Ù)ÄÜÅ©¸®Æ® ½º¶óºêÁöºØ Áö»ó5Ãþ °Ç¹°·Î¼­(»ç¿ë½ÂÀÎÀÏ:2002.10.17)
¿Üº® : ¼®¹èºÙÀÓ ¹× µå¶óÀ̺ñÆ® ¸¶°¨ µî,
³»º® : º®Áöµµ¹è ¹× ÀϺΠŸÀϺÙÀÓ ¸¶°¨ µî,
(Çö»óÁ¶»ç½Ã Æó¹® ºÎÀç µîÀ¸·Î Åë»óÀûÀÎ ´Ù¼¼´ëÁÖÅà ³»¿ªÀ» ±âÁØÇÔ)
âȣ : »õ½Ãâȣ ±¸Á¶ÀÓ.
4)ÀÌ¿ë»óÅÂ
´Ù¼¼´ëÁÖÅà °³º°¼¼´ë·Î ÀÌ¿ëÁßÀÓ.
(ÇöÀåÁ¶»ç½Ã Æó¹® ºÎÀç µîÀ¸·Î °ÇÃ๰ ÇöȲµµ¸éÀ» ±âÁØÇÏ¿´À½)
5)¼³ºñ³»¿ª
À§»ý ¹× ±Þ¡¤¹è¼ö ¼³ºñ, ³­¹æ¼³ºñ µîÀ» °®Ãß¾úÀ½.
6)ÅäÁöÀÇ Çü»ó ¹× ÀÌ¿ë»óÅÂ
ÀÎÁ¢Áö¿Í µî°í ÆòźÇÑ Á¤¹æÇüÀÇ ÅäÁö·Î¼­ ´Ù¼¼´ëÁÖÅà °ÇºÎÁö·Î ÀÌ¿ëÁßÀÓ.
7)ÀÎÁ¢ µµ·Î»óŵî
³²ÃøÀ¸·Î ³ëÆø ¾à 4¹ÌÅÍ ³»¿ÜÀÇ Æ÷Àåµµ·Î¿Í Á¢ÇÔ.
8)ÅäÁöÀÌ¿ë°èȹ ¹× Á¦ÇÑ»óÅÂ
µµ½ÃÁö¿ª, Á¦2Á¾ÀϹÝÁÖ°ÅÁö¿ª °¡Ãà»çÀ°Á¦Çѱ¸¿ª<°¡ÃàºÐ´¢ÀÇ °ü¸® ¹× À̿뿡 °üÇÑ ¹ý·ü>,
»ó´ëº¸È£±¸¿ª<±³À°È¯°æ º¸È£¿¡ °üÇÑ ¹ý·ü>, ¹èÃâ½Ã¼³¼³Ä¡Á¦ÇÑÁö¿ª<¹°È¯°æº¸Àü¹ý>, ÀÚ¿¬º¸
Àü±Ç¿ª<¼öµµ±ÇÁ¤ºñ°èȹ¹ý>, ¼öÁúº¸ÀüƯº°´ëÃ¥Áö¿ª<ȯ°æÁ¤Ã¥±âº»¹ý> ÁßÁ¡°æ°ü°ü¸®±¸¿ªÀÓ.
9)°øºÎ¿ÍÀÇ Â÷ÀÌ
---.
10)±âŸÂü°í»çÇ×(ÀÓ´ë°ü·Ê ¹× ±âŸ)
ÀÓ´ë¹Ì»óÀÓ.
Âü°í
»çÇ×
ÅäÁö¿¡ °üÇÏ¿© º°µµµî±â ÀÖÀ¸³ª È¿·Â ¾øÀ½
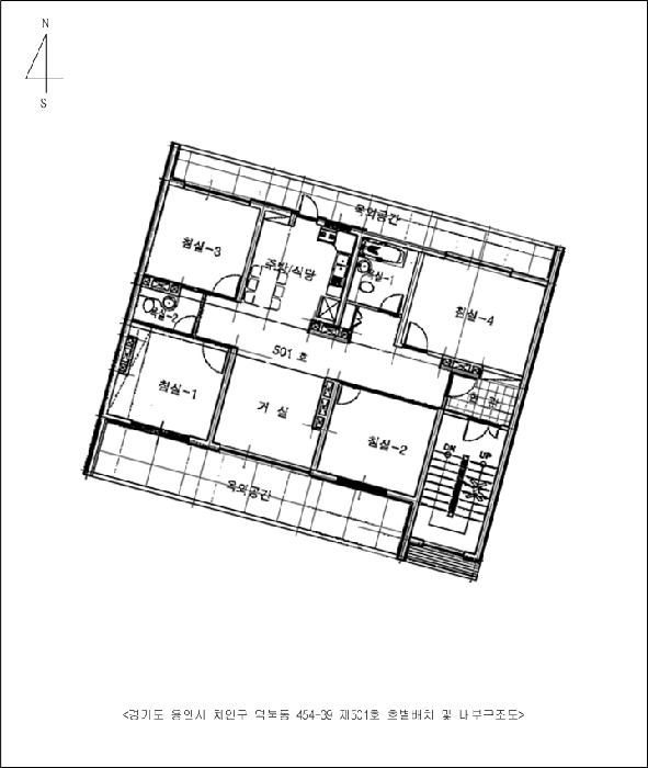
ÇØ´ç ºÎµ¿»êÀÇ ÇöȲÀº 501È£·Î 5

°ÇÃ๰ÇöȲ

¼ÒÀçÁö °æ±âµµ ¿ëÀνà óÀα¸ ¿ªºÏµ¿ 454-39¹øÁö
´ëÁö¸éÀû 344§³
(104.24Æò)
¿¬¸éÀû 657.8§³
(199.33Æò)
°ÇÃà¸éÀû 178.55§³
(54.11Æò)
¿ëÀû·ü»êÁ¤
¿¬¸éÀû
657.8§³
(199.33Æò)
°ÇÆóÀ² 51.9% ¿ëÀû·ü 191.22%
Áö»óÃþ¼ö 5Ãþ ÁöÇÏÃþ¼ö  
ÁÖ¿ëµµ °øµ¿ÁÖÅà ±¸Á¶ ö±ÙÄÜÅ©¸®Æ®±¸Á¶
Âø°øÀÏÀÚ 2002.04.25 »ç¿ë½ÂÀÎÀÏÀÚ 2002.10.17
°ÇÃ๰Ãþº°ÇöȲ [º¸±â]


µî±âºÎµîº» ¿ä¾à(°Ç¹°)

  Á¢¼öÀÏÀÚ µî±â¸ñÀû/±Ç¸®ÀÚ ±Ç¸®±Ý¾× ±âÁØ
1 2014³â12¿ù5ÀÏ
¼ÒÀ¯±Ç
¹ÎOO
¼Ò¸ê
2 2014³â12¿ù5ÀÏ
±ÙÀú´ç±Ç
(OOOO
110,000,000 ¼Ò¸ê±âÁØ
3 2024³â11¿ù6ÀÏ
¾Ð·ù
¿ëOOOO
¼Ò¸ê
4 2024³â11¿ù11ÀÏ
°¡¾Ð·ù
°æOOOO
21,280,000 ¼Ò¸ê
5 2025³â2¿ù21ÀÏ
°­Á¦°æ¸Å
±èOO
¼Ò¸ê

ÀÓÂ÷ÀÎÇöȲ (¹è´ç¿ä±¸Á¾±âÀÏ: 2025-05-07)

ÀÓÂ÷ÀÎ ¿ëµµ/Á¡À¯ º¸Áõ±Ý/¿ù¼¼ ´ëÇ×·Â
ÀüÀÔÀÏ/È®Á¤ÀÏ ¹è´ç¿ä±¸ ºñ°í
±èOO
O
2004.01.07

¿©ÀÇÁÖ°æ¸Å Á¶¾ð ÇÑ ¸¶µð

ÅäÁöº°µµµî±â°¡ ÀÖ´Â ¹°°ÇÀÔ´Ï´Ù
ÁýÇհǹ°¿¡¼­ ÅäÁöµî±âºÎ¿¡ ÀÖ´Â Àú´ç±Ç µî ºÎ´ãÀ» ÇØ¼ÒÇÏÁö ¸øÇØ ±×´ë·Î ³²¾Æ ÀÖ´Â °æ¿ì¿¡ ÁýÇհǹ°µî±âºÎ»ó¿¡ ±× »ç½ÇÀ» °ø½ÃÇÏ´Â °æ¿ìÀÔ´Ï´Ù. ³«ÂûÀÚ°¡ ÀμöÇÏ´Â °æ¿ìµµ ÀÖ°í ÅäÁöºÎºÐÀÇ ¸Å°¢´ë±Ý¿¡¼­ ¹è´çÀ» ¹Þ°í ¸»¼Ò°¡ µÇ´Â °æ¿ìµµ ÀÖ½À´Ï´Ù. ¸Å°¢¹°°Ç¸í¼¼¼­¿Í ÅäÁöµî±âºÎÀÇ È®ÀÎÀÌ ²À ÇÊ¿äÇÕ´Ï´Ù.
ÃëÇÏ ¶Ç´Â Ãë¼ÒµÉ °¡´É¼º ÀÖ½À´Ï´Ù
ÀÌ ¹°°ÇÀÇ °¨Á¤°¡°ÝÀº 255,000,000¿øÀÔ´Ï´Ù. °æ¸Å¸¦ ½ÅûÇÑ Ã¤±ÇÀÚ°¡ ¹è´ç ¹Þ¾Æ¾ß ÇÒ ±Ý¾×Àº 61,104,657¿øÀ¸·Î °¨Á¤°¡°Ý ´ëºñ »ó´çÈ÷ ÀûÀº ±Ý¾×ÀÔ´Ï´Ù. ÀÌ·± °æ¿ì, 乫°¡°¡ º¯Á¦ÇÏ¿© °æ¸Å¸¦ ÃëÇϽÃŰ°Å³ª °æ¸Å½Åûä±ÇÀÚ°¡ ¹è´ç¹ÞÀº ±Ý¿øÀÌ ¾ø°ÔµÇ¾î À̸¥ ¹Ù "¹«À׿©¿¡ ÀÇÇÑ Ãë¼Ò"°¡ µÉ °¡´É¼ºÀÌ ÀÖ½À´Ï´Ù.

ÁÖÀÇ»çÇ× (ÃÖ¼±¼øÀ§ ¼³Á¤ÀÏ: 2014.12.5. ±ÙÀú´ç ¼³Á¤)

¸Å°¢À¸·Î ¼Ò¸êµÇÁö ¾Ê´Â µî±âºÎ±Ç¸®:
¸Å°¢À¸·Î ¼³Á¤µÈ °ÍÀ¸·Î º¸´Â Áö»ó±Ç:
ÅäÁö¿¡ °üÇÏ¿© º°µµµî±â ÀÖÀ¸³ª È¿·Â ¾øÀ½
¡Ø¹Ì³³°ü¸®ºñ(°ø¿ë) Àμö¿©ºÎ¸¦ ÀÔÂû Àü¿¡ È®ÀÎÇϽñ⠹ٶø´Ï´Ù

 

Áö¿ªºÐ¼®

ÁöÇÏö¸í Á÷¼±°Å¸®

Çб³¸í ÀüÈ­¹øÈ£ ÁÖ¼Ò Á÷¼±°Å¸®

¹ý¿ø

¼ö¿øÁö¹æ¹ý¿ø (165-12)°æ±âµµ ¼ö¿ø½Ã ¿µÅ뱸 ¹ýÁ¶·Î 105, Çϵ¿, ¼ö¿ø¹ý¿øÁ¾ÇÕû»ç
´ëÇ¥ : 031)210-1114, ¾ß°£ : 031)210-1111
°üÇÒÁö¿ª : ¼ö¿ø½Ã, ¿À»ê½Ã, È­¼º½Ã, ¿ëÀνÃ

µî±â¼Ò ¼ö¿øÁö¹æ¹ý¿ø º»¿ø ¿ëÀεî±â¼Ò (´ëÇ¥:1544-0773, ÆÑ½º:(031)321-3919, °æ±âµµ ¿ëÀνà óÀα¸ ¼º»ê·Î 7 (¿ªºÏµ¿ 391-28))
¼¼¹«¼­ ¿ëÀμ¼¹«¼­ (´ëÇ¥:031-329-22, ÆÑ½º:031-329-2328, °æ±âµµ ¿ëÀνà óÀα¸ Áߺδë·Î1161¹ø±æ 71 (»ï°¡µ¿))

Àαٳ«ÂûÅë°è

±â°£ ¸Å°¢°Ç¼ö Æò±Õ°¨Á¤°¡
Æò±Õ¸Å°¢°¡
¸Å°¢°¡À²
Æò±ÕÀ¯Âû¼ö
3°³¿ù 6°Ç 192,666,667¿ø
121,056,945¿ø
65%
2ȸ
6°³¿ù 14°Ç 176,214,286¿ø
126,409,441¿ø
71%
1.9ȸ
12°³¿ù 31°Ç 213,258,065¿ø
157,813,905¿ø
74%
1.5ȸ


º» °æ¸ÅÁ¤º¸´Â ¹ý¿øÀÚ·á¿Í ÀÏÄ¡Çϵµ·Ï ÇÏ¿´À¸³ª ±Ç¸®»çÇ׺¯µ¿, ÀÔ·ÂÂø¿À µîÀÇ ¿øÀÎÀ¸·Î »ç½Ç°ú ´Ù¸¦ ¼ö ÀÖ½À´Ï´Ù. ÀÌ¿ë¾à°ü¿¡ ÀǰЏéÃ¥Á¶°ÇÀ¸·Î Á¦°øµÊÀ» ¾Ë¸®¸ç, °æ¸ÅÀÔÂû½Ã ¹Ýµå½Ã °ü·Ã °øºÎ¸¦ ÀçÈ®ÀÎÇϽñ⠹ٶø´Ï´Ù. º¸´Ù Æí¸®ÇÑ °æ¸ÅÁ¤º¸ Á¦°øÀ» À§ÇØ Áö¼ÓÀûÀ¸·Î °³¼±ÇϰڽÀ´Ï´Ù. ÀÌ¿ëÇØ Áּż­ °¨»çÇÕ´Ï´Ù.