·Î±×ÀÎ
233
¿ÀÇǽºÅÚ
ÀÎõÁö¹æ¹ý¿ø
 °¨Á¤°¡214,000,000 ¿ø
 ÃÖÀú°¡(49%) 104,860,000 ¿ø
 º¸Áõ±Ý(10%) 10,486,000 ¿ø
 Ã»±¸¾×210,000,000 ¿ø
ÀÎõ±¤¿ª½Ã ³²µ¿±¸ ¸¸¼öµ¿ 2-10 ¿ùµåÀÌŬ·¡½º 8Ãþ801È£
»ç°Ç¹øÈ£ 2025Ÿ°æ512977
°æ¸ÅÁ¾·ùºÎµ¿»ê°­Á¦°æ¸Å
¸Å°¢´ë»óÅäÁö ¹× °Ç¹°Àϰý ¸Å°¢
¸Å°¢±âÀÏ    2026.05.22(±Ý) 10:00 ÀÔÂû 6ÀÏÀü    
ÅäÁö¸éÀû14.60§³(4.42 Æò)
°Ç¹°¸éÀû57.94§³(17.53 Æò)
乫/¼ÒÀ¯ÀÚ±èOO / ±èOO
ä±ÇÀÚÁÖOOOOOOO
ÆäÀ̽ººÏ Æ®À§ÅÍ ±¸±Û+
īī¿À½ºÅ丮
īī¿ÀÅå sms¹®ÀÚº¸³»±â
 

±âÀϳ»¿ª

°æ°ú ³¯Â¥ Àú°¨ ÃÖÀú°¡ °á°ú
Á¢¼öÀÏ 2025-10-01 °æ¸ÅÁ¢¼ö
~1ÀÏ 
2025-10-02 °æ¸Å°³½Ã°áÁ¤
~75ÀÏ 
2025-12-15 ¹è´ç¿ä±¸Á¾±âÀÏ
~169ÀÏ 
2026-03-19 100%
214,000,000
À¯Âû
~201ÀÏ 
2026-04-20 70%
149,800,000
À¯Âû
~233ÀÏ 
2026-05-22 49%
104,860,000
ÁøÇà
¹°°Ç¸í¼¼¼­ ÇöȲÁ¶»ç¼­ ¹®°ÇÁ¢¼ö ¼Û´Þ³»¿ª

°¨Á¤Æò°¡ÇöȲ

¸ñ·Ï ÁÖ¼Ò ±¸Á¶/¿ëµµ/´ëÁö±Ç ¸éÀû ºñ°í
´ëÁö±Ç
¸¸¼öµ¿ 2-10 697ºÐÀÇ 14.604 14.604 §³
(4.42Æò)
°Ç¹°
¸¸¼öµ¿ 2-10 8Ãþ801È£ ö±ÙÄÜÅ©¸®Æ®±¸Á¶ 57.936 §³
(17.53Æò)
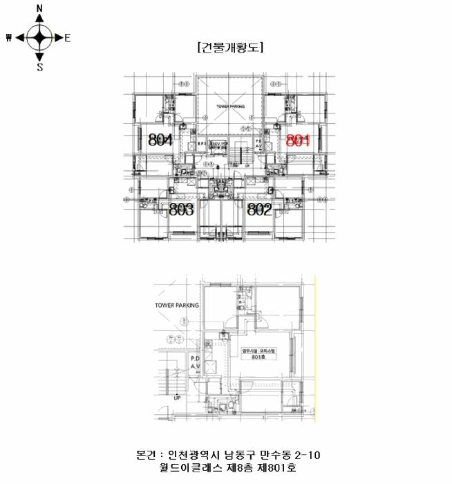
1) À§Ä¡/ÁØÁÖ°ÅÁö¿ª/³ë¼±¹ö½ºÁ¤·ùÀå/ö±ÙÄÜÅ©¸®Æ®Á¶ ´õº¸±â
°¨Á¤Æò°¡ ¿äÇ×Ç¥
1)À§Ä¡ ¹× ÁÖÀ§È¯°æ
º»°ÇÀº ÀÎõ±¤¿ª½Ã ³²µ¿±¸ ¸¸¼öµ¿ ¼ÒÀç "¸¸¼öºÏÁßÇб³" ºÏÃø Àαٿ¡ À§Ä¡Çϸç, ÁÖÀ§´Â ±Ù¸°»ýȰ½Ã¼³, °øµ¿ÁÖÅà µîÀÌ ¼ÒÀçÇÏ´Â Áö¿ªÀ¸·Î Á¦¹Ý ÁÖÀ§ ȯ°æÀº º¸Åë½ÃµÊ.
2)±³Åë»óȲ
º»°Ç±îÁö Â÷·®ÅëÇàÀÌ ¿ëÀÌÇϸç, Àαٿ¡ ³ë¼±¹ö½ºÁ¤·ùÀåÀÌ ¼ÒÀçÇÏ´Â µî Á¦¹Ý ´ëÁß±³Åë»óȲÀº º¸ÅëÀÓ.
3)°Ç¹°ÀÇ ±¸Á¶
ö±ÙÄÜÅ©¸®Æ®Á¶ (ö±Ù)ÄÜÅ©¸®Æ®ÁöºØ Áö»ó13Ãþ °Ç¹° ³» Á¦8Ãþ Á¦801È£·Î¼­, (»ç¿ë½ÂÀÎÀÏ : 2019.01.22) ¿Üº® : ¸ôÅ»À§ÆäÀÎÆÃ ¸¶°¨ µî. ³»º® : º®Áöµµ¹è ¹× ÀϺΠŸÀϺÙÀÓ ¸¶°¨ µîÀ¸·Î ÃßÁ¤µÊ. âȣ : ¼¦½Ã âȣ µîÀÓ.
4)ÀÌ¿ë»óÅÂ
º»°ÇÀº "¿ÀÇǽºÅÚ"·Î ÀÌ¿ëÁßÀÎ °ÍÀ¸·Î ÃßÁ¤µÊ.
5)¼³ºñ³»¿ª
º»°ÇÀº ±âº»ÀûÀÎ À§»ý¼³ºñ, ±Þ¹è¼ö¼³ºñ, ½Â°­±â¼³ºñ µîÀÌ µÇ¾îÀÖ´Â °ÍÀ¸·Î ÃßÁ¤µÊ.
6)ÅäÁöÀÇ Çü»ó ¹× ÀÌ¿ë»óÅÂ
º»°Ç ÅäÁö´Â ºÎÁ¤ÇüÀÇ ÅäÁö·Î¼­ ÇöÀç "¿ÀÇǽºÅÚ °ÇºÎÁö"·Î ÀÌ¿ë ÁßÀÓ.
7)ÀÎÁ¢ µµ·Î»óŵî
º»°Ç ºÏ¼­ÃøÀ¸·Î ¾à6m ³»¿ÜÀÇ µµ·Î¿Í Á¢Çϰí ÀÖÀ½.
8)ÅäÁöÀÌ¿ë°èȹ ¹× Á¦ÇÑ»óÅÂ
ÁØÁÖ°ÅÁö¿ª, °¡Ãà»çÀ°Á¦Çѱ¸¿ª(2013-03-08)((¹®ÀÇ:³²µ¿±¸È¯°æº¸Àü°ú 032-453-2343))<°¡ÃàºÐ ´¢ÀÇ °ü¸® ¹× À̿뿡 °üÇÑ ¹ý·ü>, »ó´ëº¸È£±¸¿ª(¹®ÀÇ: ÀÎõµ¿ºÎ±³À°Áö¿øÃ» Æò»ý±³À°°Ç°­°ú 460-6086)<±³À°È¯°æ º¸È£¿¡ °üÇÑ ¹ý·ü>, °ú¹Ð¾ïÁ¦±Ç¿ª<¼öµµ±ÇÁ¤ºñ°èȹ¹ý> µîÀÓ.
9)°øºÎ¿ÍÀÇ Â÷ÀÌ
¾ø À½.
10)±âŸÂü°í»çÇ×(ÀÓ´ë°ü·Ê ¹× ±âŸ)
ÀÓ´ë¹Ì»óÀÓ.
Âü°í
»çÇ×

º»°ÇÀº ºô¶ó ÁÖ°ÅÁö¿ª¿¡ À§Ä¡ÇÔ

°ÇÃ๰ÇöȲ

¼ÒÀçÁö ÀÎõ±¤¿ª½Ã ³²µ¿±¸ ¸¸¼öµ¿ 2-10¹øÁö
´ëÁö¸éÀû 697§³
(211.21Æò)
¿¬¸éÀû 3731.31§³
(1130.7Æò)
°ÇÃà¸éÀû 410.64§³
(124.44Æò)
¿ëÀû·ü»êÁ¤
¿¬¸éÀû
3343.08§³
(1013.05Æò)
°ÇÆóÀ² 58.92% ¿ëÀû·ü 479.64%
Áö»óÃþ¼ö 13Ãþ ÁöÇÏÃþ¼ö 1Ãþ
ÁÖ¿ëµµ ¾÷¹«½Ã¼³ ±¸Á¶ ö±ÙÄÜÅ©¸®Æ®±¸Á¶
Âø°øÀÏÀÚ 2018.01.02 »ç¿ë½ÂÀÎÀÏÀÚ 2019.01.22
°ÇÃ๰Ãþº°ÇöȲ [º¸±â]


±¹ÅäºÎ½Ç°Å·¡°¡ ÀÎõ±¤¿ª½Ã ³²µ¿±¸ ¸¸¼öµ¿

¡Ü ¸Å¸Å

¸éÀû(§³), ±Ý¾×(¸¸¿ø)

¡Ü Àü¼¼

¸éÀû(§³), ±Ý¾×(¸¸¿ø)

°è¾àÀϰǹ°¸íĪÃþÀü¿ëº¸Áõ±Ý¿ù¼¼°ÇÃà
26.01.14¿ùµåÀÌŬ·¡½º657.83953372019
26.01.14¿ùµåÀÌŬ·¡½º257.8317,50002019

µî±âºÎµîº» ¿ä¾à(°Ç¹°)

  Á¢¼öÀÏÀÚ µî±â¸ñÀû/±Ç¸®ÀÚ ±Ç¸®±Ý¾× ±âÁØ
1 2020³â4¿ù29ÀÏ
¼ÒÀ¯±Ç
±èOO
¼Ò¸ê
2 2022³â10¿ù24ÀÏ
¾àÁ¤/±ÝÁö»çÇ×/ȯ¸ÅƯ¾à
Àμö
3 2023³â9¿ù20ÀÏ
¾Ð·ù
³²OO
¼Ò¸ê±âÁØ
4 2023³â10¿ù17ÀÏ
¾Ð·ù
±¹
¼Ò¸ê
5 2023³â12¿ù28ÀÏ
ÀÓÂ÷±Ç¼³Á¤
ȫOO
210,000,000 ¼Ò¸ê
6 2025³â2¿ù26ÀÏ
¾Ð·ù
¼­OOOO
¼Ò¸ê
7 2025³â10¿ù2ÀÏ
°­Á¦°æ¸Å
ÁÖOOOO
¼Ò¸ê

ÀÓÂ÷ÀÎÇöȲ (¹è´ç¿ä±¸Á¾±âÀÏ: 2025-12-15)

ÀÓÂ÷ÀÎ ¿ëµµ/Á¡À¯ º¸Áõ±Ý/¿ù¼¼ ´ëÇ×·Â
ÀüÀÔÀÏ/È®Á¤ÀÏ ¹è´ç¿ä±¸ ºñ°í
ÁÖOOOOOOOOOOOOOOOO ÀüºÎ 210,000,000
O
2022.01.28.
2022.01.10.
2025.11.25. 2022.01.28.~2024.01.28.
È«OO ÀüºÎ 210,000,000
O
2022.01.28.
2022.01.10.
2022.01.28.
ºñ°í
(¸Å°¢¹°°Ç
¸í¼¼¼­)
ÁÖÅõµ½Ãº¸Áõ°ø»ç(ÀÓÂ÷ÀÎ:È«ÇØ¼÷) : ÀÓÂ÷ÀÎ È«ÇØ¼÷ÀÇ ÀÓÂ÷º¸Áõ±Ý¹Ýȯä±Ç ¾ç¼öÀÎÀ¸·Î¼­, º¸Áõ±Ý Àü¾×À» ¹è´ç¹ÞÁö ¸øÇÏ´õ¶óµµ È«ÇØ¼÷ : ÁÖÅÃÀÓÂ÷±Çµî±â±Ç¸®Àڷμ­ ÁÖÅÃÀÓÂ÷±Çµî±âÀÏÀº 2023.12.28.ÀÓ

¿©ÀÇÁÖ°æ¸Å Á¶¾ð ÇÑ ¸¶µð

¼±¼øÀ§ ÀÓÂ÷±Çµî±â°¡ µÇ¾î ÀÖ½À´Ï´Ù
´ëÇ×·ÂÀÌ ÀÖ´Â ¼±¼øÀ§ ÀÓÂ÷±Çµî±â ±Ç¸®ÀÚ°¡ ¹è´çÀ» Àü¾× ¹ÞÁö ¸øÇÒ °æ¿ì ³«ÂûÀÚ°¡ ÀÜ¿© º¸Áõ±ÝÀ» ÀμöÇØ¾ßÇÏ´Â °æ¿ìµµ ÀÖ½À´Ï´Ù.

ÁÖÀÇ»çÇ× (ÃÖ¼±¼øÀ§ ¼³Á¤ÀÏ: 2023.09.20. ¾Ð·ù ¼³Á¤)

¸Å°¢À¸·Î ¼Ò¸êµÇÁö ¾Ê´Â µî±âºÎ±Ç¸®: À»±¸ ¼øÀ§ 3¹ø ÁÖÅÃÀÓÂ÷±Çµî±â(´Ù¸¸, ÁÖÅõµ½Ãº¸Áõ°ø»çÀÇ ¸»¼Òµ¿ÀÇ È®¾à¼­°¡ Á¦Ãâ µÊ)
¸Å°¢À¸·Î ¼³Á¤µÈ °ÍÀ¸·Î º¸´Â Áö»ó±Ç:
¡Ø¹Ì³³°ü¸®ºñ(°ø¿ë) Àμö¿©ºÎ¸¦ ÀÔÂû Àü¿¡ È®ÀÎÇϽñ⠹ٶø´Ï´Ù

 

Áö¿ªºÐ¼®

ÁöÇÏö¸í Á÷¼±°Å¸®

Çб³¸í ÀüÈ­¹øÈ£ ÁÖ¼Ò Á÷¼±°Å¸®

¹ý¿ø

ÀÎõÁö¹æ¹ý¿ø (222-20)ÀÎõ±¤¿ª½Ã ¹ÌÃßȦ±¸ ¼Ò¼º·Î 163¹ø±æ 17(ÇÐÀ͵¿)
´ëÇ¥ : 032)860-1113~4
°üÇÒÁö¿ª : Áß±¸, µ¿±¸, ³²±¸, ¿¬¼ö±¸, ³²µ¿±¸, ºÎÆò±¸, °è¾ç±¸, ¼­±¸, ¿ËÁø±º, °­È­±º

µî±â¼Ò ÀÎõÁö¹æ¹ý¿ø º»¿ø µî±â±¹ (´ëÇ¥:1544-0773, ÆÑ½º:(032)620-9099, ÀÎõ±¤¿ª½Ã ¹ÌÃßȦ±¸ °æ¿ø´ë·Î 881(Á־ȵ¿ 983))
¼¼¹«¼­ ³²ÀÎõ¼¼¹«¼­ (´ëÇ¥:032-460-52, ÆÑ½º:032-463-5778, ÀÎõ±¤¿ª½Ã ³²µ¿±¸ ÀÎÇÏ·Î 548 (±¸¿ùµ¿))

Àαٳ«ÂûÅë°è

±â°£ ¸Å°¢°Ç¼ö Æò±Õ°¨Á¤°¡
Æò±Õ¸Å°¢°¡
¸Å°¢°¡À²
Æò±ÕÀ¯Âû¼ö
3°³¿ù 109°Ç 175,646,789¿ø
96,891,666¿ø
56%
2.3ȸ
6°³¿ù 238°Ç 180,348,739¿ø
115,987,201¿ø
65%
1.9ȸ
12°³¿ù 394°Ç 186,670,051¿ø
126,408,337¿ø
68%
1.7ȸ


º» °æ¸ÅÁ¤º¸´Â ¹ý¿øÀÚ·á¿Í ÀÏÄ¡Çϵµ·Ï ÇÏ¿´À¸³ª ±Ç¸®»çÇ׺¯µ¿, ÀÔ·ÂÂø¿À µîÀÇ ¿øÀÎÀ¸·Î »ç½Ç°ú ´Ù¸¦ ¼ö ÀÖ½À´Ï´Ù. ÀÌ¿ë¾à°ü¿¡ ÀǰЏéÃ¥Á¶°ÇÀ¸·Î Á¦°øµÊÀ» ¾Ë¸®¸ç, °æ¸ÅÀÔÂû½Ã ¹Ýµå½Ã °ü·Ã °øºÎ¸¦ ÀçÈ®ÀÎÇϽñ⠹ٶø´Ï´Ù. º¸´Ù Æí¸®ÇÑ °æ¸ÅÁ¤º¸ Á¦°øÀ» À§ÇØ Áö¼ÓÀûÀ¸·Î °³¼±ÇϰڽÀ´Ï´Ù. ÀÌ¿ëÇØ Áּż­ °¨»çÇÕ´Ï´Ù.