·Î±×ÀÎ
234
¾ÆÆÄÆ®
ÀÇÁ¤ºÎÁö¹æ¹ý¿ø °í¾çÁö¿ø
 °¨Á¤°¡514,000,000 ¿ø
 ÃÖÀú°¡(70%) 359,800,000 ¿ø
 º¸Áõ±Ý(10%) 35,980,000 ¿ø
 Ã»±¸¾×104,339,726 ¿ø
°æ±âµµ °í¾ç½Ã Àϻ꼭±¸ źÇöµ¿ 1640 ÀÏ»êµÎ»êÀ§ºê´õÁ¦´Ï½º 102µ¿ 20Ãþ2001È£
»ç°Ç¹øÈ£ 2025Ÿ°æ64263
°æ¸ÅÁ¾·ùºÎµ¿»êÀÓÀǰæ¸Å
¸Å°¢´ë»óÅäÁö ¹× °Ç¹°Àϰý ¸Å°¢
¸Å°¢±âÀÏ    2026.04.23(¸ñ) 10:00 ÀÔÂû 2ÀÏÀü    
ÅäÁö¸éÀû10.82§³(3.27 Æò)
°Ç¹°¸éÀû59.93§³(18.13 Æò)
乫/¼ÒÀ¯ÀÚ±èOO / ±èOO
ä±ÇÀÚÁöOO
ÆäÀ̽ººÏ Æ®À§ÅÍ ±¸±Û+
īī¿À½ºÅ丮
īī¿ÀÅå sms¹®ÀÚº¸³»±â
 

±âÀϳ»¿ª

°æ°ú ³¯Â¥ Àú°¨ ÃÖÀú°¡ °á°ú
Á¢¼öÀÏ 2025-09-18 °æ¸ÅÁ¢¼ö
~4ÀÏ 
2025-09-22 °æ¸Å°³½Ã°áÁ¤
~88ÀÏ 
2025-12-15 ¹è´ç¿ä±¸Á¾±âÀÏ
~182ÀÏ 
2026-03-19 100%
514,000,000
À¯Âû
~217ÀÏ 
2026-04-23 70%
359,800,000
ÁøÇà
¹°°Ç¸í¼¼¼­ ÇöȲÁ¶»ç¼­ ¹®°ÇÁ¢¼ö ¼Û´Þ³»¿ª

°¨Á¤Æò°¡ÇöȲ

¸ñ·Ï ÁÖ¼Ò ±¸Á¶/¿ëµµ/´ëÁö±Ç ¸éÀû ºñ°í
´ëÁö±Ç
źÇöµ¿ 1640 59023.9ºÐÀÇ 10.8187 10.8187 §³
(3.27Æò)
°Ç¹°
źÇöµ¿ 1640 102µ¿ 20Ãþ2001È£ ö±ÙÄÜÅ©¸®Æ®±¸Á¶ 59.9258 §³
(18.13Æò)
1) À§Ä¡/µµ½ÃÁö¿ª/ÀϹݻó¾÷Áö¿ª/Áö±¸´ÜÀ§°èȹ±¸¿ª/ÁÖÂ÷Àå/Â÷·® Á¢±ÙÀÌ °¡´É/³ë¼±¹ö½ºÁ¤·ùÀå/ö±ÙÄÜÅ©¸®Æ®±¸Á¶ ´õº¸±â
°¨Á¤Æò°¡ ¿äÇ×Ç¥
1)À§Ä¡ ¹× ÁÖÀ§È¯°æ
´ë»ó¹°°ÇÀº °æ±âµµ °í¾ç½Ã Àϻ꼭±¸ źÇöµ¿ ¼ÒÀç "°æÀÇÁß¾Ó¼± źÇö¿ª" µ¿Ãø Àαٿ¡ À§Ä¡Çϸç, ÁÖÀ§´Â ´ë±Ô¸ð °øµ¿ÁÖÅà ´ÜÁö, °¢Á¾ ±Ù¸°»ýȰ½Ã¼³ ¹× °¢±Þ Çб³ µîÀÌ È¥ÀçÇÏ´Â Áö¿ªÀ¸·Î¼­ Á¦¹Ý ÁÖÀ§È¯°æÀº º¸ÅëµÊ.
2)±³Åë»óȲ
´ë»ó¹°°Ç±îÁö Â÷·® Á¢±ÙÀÌ °¡´ÉÇϸç, Àαٿ¡ °æÀÇ Áß¾Ó¼± "źÇö¿ª"°ú ³ë¼±¹ö½ºÁ¤·ùÀå µîÀÌ ¼ÒÀçÇÏ´Â µî Á¦¹Ý ´ëÁß±³Åë»óȲÀº º¸Åë½Ã µÊ.
3)°Ç¹°ÀÇ ±¸Á¶
´ë»ó¹°°ÇÀº ö±ÙÄÜÅ©¸®Æ®±¸Á¶ ö±ÙÄÜÅ©¸®Æ®ÁöºØ 54Ãþ °Ç¹° ³» Á¦20Ãþ Á¦2001È£·Î¼­, (»ç¿ë½ÂÀÎÀÏ 2013-04-26) ¿Ü º®: ¸ôÅ»À§ÆäÀÎÆÃ ¸¶°¨ µî ³» º®: º®Áöµµ¹è ¹× ÀϺΠŸÀϺÙÀÓ ¸¶°¨ µî â È£: ÇÏÀ̼¦½Ãâȣ µîÀ¸·Î ޹®Á¶»çµÊ.
4)ÀÌ¿ë»óÅÂ
´ë»ó¹°°ÇÀº ¡®°øµ¿ÁÖÅÃ(¾ÆÆÄÆ®)¡¯·Î ÀÌ¿ë ÁßÀÎ °ÍÀ¸·Î Á¶»çµÊ.
5)¼³ºñ³»¿ª
´ë»ó¹°°ÇÀº ±âº»ÀûÀÎ À§»ý¼³ºñ ¹× ±Þ¡¤¹è¼ö¼³ºñ, ½Â°­±â¼³ºñ, ¼ÒÈ­Àü¼³ºñ, È­ÀçŽÁö¼³ºñ, È­Àç°æº¸¼³ºñ, ÁÖÂ÷Àå¼³ºñ µîÀ» °®Ãá °ÍÀ¸·Î Á¶»çµÊ.
6)ÅäÁöÀÇ Çü»ó ¹× ÀÌ¿ë»óÅÂ
´ë»ó¹°°ÇÀº ÀÎÁ¢ÇÊÁö ¹× µµ·Î´ëºñ µî°íÆòźÇÑ ºÎÁ¤Çü ÅäÁö·Î¼­, ¡®°øµ¿ÁÖÅÃ(¾ÆÆÄÆ®)¡¯ °ÇºÎÁö·Î ÀÌ¿ëÁßÀÓ.
7)ÀÎÁ¢ µµ·Î»óŵî
´ë»ó¹°°ÇÀº ´ÜÁö³» Æ÷Àåµµ·Î °³¼³µÇ¾î ÀÖÀ¸¸ç, ´ÜÁö³» Æ÷Àåµµ·Î¸¦ ÅëÇÏ¿© ÀÏÇö·Î¿Í ¿¬°èµÇ¾î ÀÖÀ½.
8)ÅäÁöÀÌ¿ë°èȹ ¹× Á¦ÇÑ»óÅÂ
ÀϹݻó¾÷Áö¿ª, Áö±¸´ÜÀ§°èȹ±¸¿ª(źÇöÁÖ»ó), ´ë·Î2·ù(Æø 30m~35m)(2023-01-19)(ÀúÃË), ´ë·Î3·ù(Æø 25m~30m)(Á¢ÇÕ), »çȸº¹Áö½Ã¼³(ÀúÃË), Áß·Î2·ù(Æø 15m~20m)(Á¢ÇÕ), û¼Ò³â¼ö·Ã½Ã¼³(ÀúÃË), °¡Ãà»çÀ°Á¦Çѱ¸¿ª(2024-11-12)(ÀüºÎÁ¦Çѱ¸¿ª [µµ½ÃÁö¿ª{ÁÖ°Å,»ó¾÷,°ø¾÷,³ìÁö(ÀÚ¿¬Ãë¶ôÁö±¸)}¹×ÁְŹÐÁýÁö¿ª])<°¡ÃàºÐ´¢ÀÇ °ü¸® ¹× À̿뿡 °üÇÑ ¹ý·ü>, »ó´ëº¸È£±¸¿ª<±³À°È¯°æ º¸È£¿¡ °üÇÑ ¹ý·ü>, »ó´ëº¸È£±¸¿ª(»óźÃʵîÇб³)<±³À°È¯°æ º¸È£¿¡ °üÇÑ ¹ý·ü>, »ó´ëº¸È£±¸¿ª(ÀÚ¿¬À¯Ä¡¿ø)<±³À°È¯°æ º¸È£¿¡ °üÇÑ ¹ý·ü>, Àý´ëº¸È£±¸¿ª<±³À°È¯°æ º¸È£¿¡ °üÇÑ ¹ý·ü>, °ú¹Ð¾ïÁ¦±Ç¿ª<¼öµµ±ÇÁ¤ºñ°èȹ¹ý>ÀÓ.
9)°øºÎ¿ÍÀÇ Â÷ÀÌ
¤Ñ
10)±âŸÂü°í»çÇ×(ÀÓ´ë°ü·Ê ¹× ±âŸ)
´ë»ó¹°°ÇÀÇ ÀÓ´ë°ü°è´Â ¹Ì»óÀÓ.
Âü°í
»çÇ×

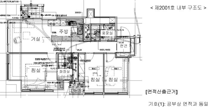
1. º»°Ç °Ç¹°Àº ö±ÙÄÜÅ©¸®Æ®±¸Á¶ (ö±Ù)ÄÜÅ©¸®Æ®ÁöºØ 54Ãþ ¾ÆÆÄÆ®ÀÓ. 2. °øµ¿Çö°üÃâÀÔ±¸¿¡ `102`µ¿ Ç¥½Ã ÀÖÀ½.

°ÇÃ๰ÇöȲ

¼ÒÀçÁö °æ±âµµ °í¾ç½Ã Àϻ꼭±¸ źÇöµ¿ 1640¹øÁö
´ëÁö¸éÀû   ¿¬¸éÀû 4809.52§³
(1457.43Æò)
°ÇÃà¸éÀû   ¿ëÀû·ü»êÁ¤
¿¬¸éÀû
163.83§³
(49.65Æò)
°ÇÆóÀ²   ¿ëÀû·ü  
Áö»óÃþ¼ö 1Ãþ ÁöÇÏÃþ¼ö 5Ãþ
ÁÖ¿ëµµ ¹®È­¹×Áýȸ½Ã¼³ ±¸Á¶ ö±ÙÄÜÅ©¸®Æ®±¸Á¶
Âø°øÀÏÀÚ 2009.10.07 »ç¿ë½ÂÀÎÀÏÀÚ 2013.04.26
°ÇÃ๰Ãþº°ÇöȲ [º¸±â]


µî±âºÎµîº» ¿ä¾à(°Ç¹°)

  Á¢¼öÀÏÀÚ µî±â¸ñÀû/±Ç¸®ÀÚ ±Ç¸®±Ý¾× ±âÁØ
1 2017³â12¿ù26ÀÏ
¼ÒÀ¯±Ç
±èOO
¼Ò¸ê
2 2022³â12¿ù6ÀÏ
¾àÁ¤/±ÝÁö»çÇ×/ȯ¸ÅƯ¾à
Àμö
3 2025³â7¿ù7ÀÏ
±ÙÀú´ç±Ç
ÁöOO
130,000,000 ¼Ò¸ê±âÁØ
4 2025³â8¿ù21ÀÏ
°¡¾Ð·ù
¾ÈOO
2,000,000,000 ¼Ò¸ê
5 2025³â9¿ù23ÀÏ
ÀÓÀǰæ¸Å
ÁöOO
¼Ò¸ê

ÀÓÂ÷ÀÎÇöȲ (¹è´ç¿ä±¸Á¾±âÀÏ: 2025-12-15)

ÀÓÂ÷ÀÎ ¿ëµµ/Á¡À¯ º¸Áõ±Ý/¿ù¼¼ ´ëÇ×·Â
ÀüÀÔÀÏ/È®Á¤ÀÏ ¹è´ç¿ä±¸ ºñ°í
¹ÚOOOOOOO 2001È£ÀüºÎ 350,000,000
O
2024.03.20.
2024.02.15.
2025.10.2. 2024.03.20.~2026.04.19.

¿©ÀÇÁÖ°æ¸Å Á¶¾ð ÇÑ ¸¶µð

ÃëÇÏ ¶Ç´Â Ãë¼ÒµÉ °¡´É¼º ÀÖ½À´Ï´Ù
ÀÌ ¹°°ÇÀÇ °¨Á¤°¡°ÝÀº 514,000,000¿øÀÔ´Ï´Ù. °æ¸Å¸¦ ½ÅûÇÑ Ã¤±ÇÀÚ°¡ ¹è´ç ¹Þ¾Æ¾ß ÇÒ ±Ý¾×Àº 104,339,726¿øÀ¸·Î °¨Á¤°¡°Ý ´ëºñ »ó´çÈ÷ ÀûÀº ±Ý¾×ÀÔ´Ï´Ù. ÀÌ·± °æ¿ì, 乫°¡°¡ º¯Á¦ÇÏ¿© °æ¸Å¸¦ ÃëÇϽÃŰ°Å³ª °æ¸Å½Åûä±ÇÀÚ°¡ ¹è´ç¹ÞÀº ±Ý¿øÀÌ ¾ø°ÔµÇ¾î À̸¥ ¹Ù "¹«À׿©¿¡ ÀÇÇÑ Ãë¼Ò"°¡ µÉ °¡´É¼ºÀÌ ÀÖ½À´Ï´Ù.

ÁÖÀÇ»çÇ× (ÃÖ¼±¼øÀ§ ¼³Á¤ÀÏ: 2025. 7. 7. ±ÙÀú´ç±Ç ¼³Á¤)

¸Å°¢À¸·Î ¼Ò¸êµÇÁö ¾Ê´Â µî±âºÎ±Ç¸®:
¸Å°¢À¸·Î ¼³Á¤µÈ °ÍÀ¸·Î º¸´Â Áö»ó±Ç:
¡Ø¹Ì³³°ü¸®ºñ(°ø¿ë) Àμö¿©ºÎ¸¦ ÀÔÂû Àü¿¡ È®ÀÎÇϽñ⠹ٶø´Ï´Ù

 

Áö¿ªºÐ¼®

ÁöÇÏö¸í Á÷¼±°Å¸®

Çб³¸í ÀüÈ­¹øÈ£ ÁÖ¼Ò Á÷¼±°Å¸®

¹ý¿ø

ÀÇÁ¤ºÎÁö¹æ¹ý¿ø °í¾çÁö¿ø (104-13)°æ±âµµ °í¾ç½Ã Àϻ굿±¸ Àå¹é·Î 209
´ëÇ¥ : 031)920-6114, ¾ß°£ : 031)920-6550, ÆÑ½º : 031)920-6119
°üÇÒÁö¿ª : °í¾ç½Ã, ÆÄÁÖ½Ã

µî±â¼Ò ÀÇÁ¤ºÎÁö¹æ¹ý¿ø °í¾çÁö¿ø °í¾çµî±â¼Ò (´ëÇ¥:1544-0773, ÆÑ½º:(031)920-5959, °æ±âµµ °í¾ç½Ã Àϻ굿±¸ Áß¾Ó·Î1275¹ø±æ 38-30 (ÀåÇ×µ¿ 773))
¼¼¹«¼­ °í¾ç¼¼¹«¼­ (´ëÇ¥:031-900-92, ÆÑ½º:031-907-9177, °æ±âµµ °í¾ç½Ã Àϻ굿±¸ Áß¾Ó·Î1275¹ø±æ 14-43 (ÀåÇ×µ¿) )

Àαٳ«ÂûÅë°è

±â°£ ¸Å°¢°Ç¼ö Æò±Õ°¨Á¤°¡
Æò±Õ¸Å°¢°¡
¸Å°¢°¡À²
Æò±ÕÀ¯Âû¼ö
3°³¿ù 51°Ç 597,705,882¿ø
456,360,791¿ø
76%
1.5ȸ
6°³¿ù 90°Ç 568,911,111¿ø
443,549,289¿ø
78%
1.3ȸ
12°³¿ù 180°Ç 535,566,667¿ø
428,763,799¿ø
80%
1.2ȸ


º» °æ¸ÅÁ¤º¸´Â ¹ý¿øÀÚ·á¿Í ÀÏÄ¡Çϵµ·Ï ÇÏ¿´À¸³ª ±Ç¸®»çÇ׺¯µ¿, ÀÔ·ÂÂø¿À µîÀÇ ¿øÀÎÀ¸·Î »ç½Ç°ú ´Ù¸¦ ¼ö ÀÖ½À´Ï´Ù. ÀÌ¿ë¾à°ü¿¡ ÀǰЏéÃ¥Á¶°ÇÀ¸·Î Á¦°øµÊÀ» ¾Ë¸®¸ç, °æ¸ÅÀÔÂû½Ã ¹Ýµå½Ã °ü·Ã °øºÎ¸¦ ÀçÈ®ÀÎÇϽñ⠹ٶø´Ï´Ù. º¸´Ù Æí¸®ÇÑ °æ¸ÅÁ¤º¸ Á¦°øÀ» À§ÇØ Áö¼ÓÀûÀ¸·Î °³¼±ÇϰڽÀ´Ï´Ù. ÀÌ¿ëÇØ Áּż­ °¨»çÇÕ´Ï´Ù.