·Î±×ÀÎ
94
¿ÀÇǽºÅÚ
ÀÇÁ¤ºÎÁö¹æ¹ý¿ø °í¾çÁö¿ø
 °¨Á¤°¡175,000,000 ¿ø
 ÃÖÀú°¡(70%) 122,500,000 ¿ø
 º¸Áõ±Ý(10%) 12,250,000 ¿ø
 Ã»±¸¾×158,220,618 ¿ø
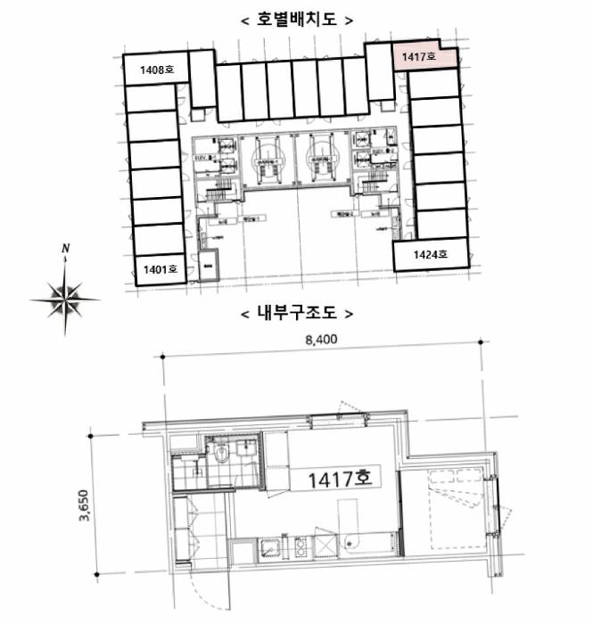
°æ±âµµ ÆÄÁֽà ¿Íµ¿µ¿ 1433 ¿îÁ¤¿ª¼¾Æ®·²ÇÏÀ̺ä 14Ãþ1417È£
»ç°Ç¹øÈ£ 2025Ÿ°æ62673
°æ¸ÅÁ¾·ùºÎµ¿»ê°­Á¦°æ¸Å
¸Å°¢´ë»óÅäÁö ¹× °Ç¹°Àϰý ¸Å°¢
¸Å°¢±âÀÏ    2026.04.23(¸ñ) 10:00 ÀÔÂû 32ÀÏÀü    
ÅäÁö¸éÀû5.06§³(1.53 Æò)
°Ç¹°¸éÀû24.48§³(7.41 Æò)
乫/¼ÒÀ¯ÀÚ°íOO / °íOO
ä±ÇÀÚÁÖOOOOOOO
ÆäÀ̽ººÏ Æ®À§ÅÍ ±¸±Û+
īī¿À½ºÅ丮
īī¿ÀÅå sms¹®ÀÚº¸³»±â
 

±âÀϳ»¿ª

°æ°ú ³¯Â¥ Àú°¨ ÃÖÀú°¡ °á°ú
Á¢¼öÀÏ 2025-03-19 °æ¸ÅÁ¢¼ö
~1ÀÏ 
2025-03-20 °æ¸Å°³½Ã°áÁ¤
~82ÀÏ 
2025-06-09 ¹è´ç¿ä±¸Á¾±âÀÏ
~365ÀÏ 
2026-03-19 100%
175,000,000
À¯Âû
~400ÀÏ 
2026-04-23 70%
122,500,000
ÁøÇà
¹°°Ç¸í¼¼¼­ ÇöȲÁ¶»ç¼­ ¹®°ÇÁ¢¼ö ¼Û´Þ³»¿ª

°¨Á¤Æò°¡ÇöȲ

¸ñ·Ï ÁÖ¼Ò ±¸Á¶/¿ëµµ/´ëÁö±Ç ¸éÀû ºñ°í
´ëÁö±Ç
¿Íµ¿µ¿ 1433 1995.8ºÐÀÇ 5.0588 5.0588 §³
(1.53Æò)
°Ç¹°
¿Íµ¿µ¿ 1433 14Ãþ1417È£ ö±ÙÄÜÅ©¸®Æ®±¸Á¶ 24.4800 §³
(7.41Æò)
1) À§Ä¡/µµ½ÃÁö¿ª/Á߽ɻó¾÷Áö¿ª/Á¦1Á¾Áö±¸´ÜÀ§°èȹ±¸¿ª/¹ö½ºÁ¤·ùÀå/ÁÖÂ÷Àå/Â÷·®ÁøÃâÀÔ °¡´É/Â÷·®ÁøÃâÀÔ °¡´É/ö±ÙÄÜÅ©¸®Æ®±¸Á¶ ´õº¸±â
°¨Á¤Æò°¡ ¿äÇ×Ç¥
1)À§Ä¡ ¹× ÁÖÀ§È¯°æ
º»°ÇÀº °æ±âµµ ÆÄÁֽà ¿Íµ¿µ¿ ¼ÒÀç '¿îÁ¤º¸°Ç¼Ò' µ¿Ãø Àαٿ¡ À§Ä¡ÇÏ¸ç ºÎ±ÙÀº °¢Á¾ ±Ù¸°»ýȰ½Ã¼³, ¿ÀÇǽºÅÚ µîÀÌ ¼ÒÀçÇÏ´Â »ó¾÷Áö´ë·Î ÁÖÀ§È¯°æÀº º¸ÅëÀÓ.
2)±³Åë»óȲ
º»°Ç±îÁö Â÷·®ÁøÃâÀÔ °¡´ÉÇϸç Àαٿ¡ ¹ö½ºÁ¤·ùÀå ¹× ¿îÁ¤¿ª(°æÀÇÁß¾Ó¼±)ÀÌ ¼ÒÀçÇÏ´Â µî ´ëÁß±³Åë»óȲÀº º¸ÅëÀÓ.
3)°Ç¹°ÀÇ ±¸Á¶
ö±ÙÄÜÅ©¸®Æ®±¸Á¶ (ö±Ù)ÄÜÅ©¸®Æ®ÁöºØ ÁöÇÏ2Ãþ/Áö»ó23Ãþ Áß Á¦1417È£·Î¼­

¿Üº®: º¹ÇÕÆÇ³Ú, µ¹ºÙÀÓ¸¶°¨ µî
âȣ: »õ½Ãâ µîÀÓ.
4)ÀÌ¿ë»óÅÂ
¿ÀÇǽºÅÚ·Î ÀÌ¿ëÁßÀÓ.
5)¼³ºñ³»¿ª
À§»ý ¹× ±Þ¹è¼ö¼³ºñ, ³­¹æ¼³ºñ, ½Â°­±â¼³ºñ, ÁÖÂ÷Àå¼³ºñ µî µÇ¾îÀÖÀ½.
6)ÅäÁöÀÇ Çü»ó ¹× ÀÌ¿ë»óÅÂ
»ç´Ù¸®Çü ÅäÁö·Î '¾÷¹«½Ã¼³(Á¦1.2Á¾±Ù¸°»ýȰ½Ã¼³)' °ÇºÎÁö·Î ÀÌ¿ëÁßÀÓ.
7)ÀÎÁ¢ µµ·Î»óŵî
¼­ÃøÀ¸·Î Æø ¾à 45m, ºÏÃøÀ¸·Î Æø ¾à 25m, µ¿ÃøÀ¸·Î Æø ¾à 15m ³»¿ÜÀÇ Æ÷Àåµµ·Î¿¡ °¢°¢ Á¢ÇÏ¸ç µ¿Ãø ÀÔ±¸¸¦ ÅëÇØ ÁøÃâÀÔ °¡´ÉÇÔ.
8)ÅäÁöÀÌ¿ë°èȹ ¹× Á¦ÇÑ»óÅÂ
µµ½ÃÁö¿ª, Á߽ɻó¾÷Áö¿ª, Á¦1Á¾Áö±¸´ÜÀ§°èȹ±¸¿ª, ´ë·Î3·ù(Æø 25m~30m)(ÆÄÁÖ¿îÁ¤Áö±¸)(Á¢ÇÕ), Áß·Î2·ù(Æø 15m~20m)(ÆÄÁÖ¿îÁ¤Áö±¸)(Á¢ÇÕ) °¡Ãà»çÀ°Á¦Çѱ¸¿ª(ÀüºÎÁ¦ÇÑ)<°¡ÃàºÐ´¢ÀÇ °ü¸® ¹× À̿뿡 °üÇÑ ¹ý·ü>
9)°øºÎ¿ÍÀÇ Â÷ÀÌ
¾ø À½.
10)±âŸÂü°í»çÇ×(ÀÓ´ë°ü·Ê ¹× ±âŸ)
µî±â»çÇ×ÀüºÎÁõ¸í¼­»ó ÀÓÂ÷º¸Áõ±Ý ¡®±Ý153,000,000¿ø¡¯, ÀÓÂ÷±ÇÀÚ ¡®±è»ó¾Æ¡¯ ·Î ÁÖÅÃÀÓÂ÷±Ç ¼³Á¤µÇ¾î ÀÖÀ¸¸ç, ±¸Ã¼ÀûÀÎ ÀÓ´ë³»¿ªÀº ¹Ì»óÀÓ.
Âü°í
»çÇ×
ÁÖÅõµ½Ãº¸Áõ°ø»ç(¾çµµÀü:±è»ó¾Æ·ÎºÎÅÍ 2025.08.01.ÀÚ¿¡ ¡®ÀÓÂ÷º¸Áõ±Ý¿¡ ´ëÇÏ¿© ¿ì¼±º¯Á¦±Ç¸¸ ÁÖÀåÇÏ°í ´ëÇ×·ÂÀº Æ÷±âÇϸç, Àü¾×À» º¯Á¦¹ÞÁö ¸øÇÏ´õ¶óµµ ÀÓÂ÷±Çµî±â¸¦ ¸»¼ÒÇØ ÁÖ°Ú´Ù.¡¯´Â ³»¿ëÀÇ È®¾à¼­°¡ Á¦ÃâµÊ
-ö±ÙÄÜÅ©¸®Æ®±¸Á¶ (ö±Ù)ÄÜÅ©¸®Æ®ÁöºØ ÁöÇÏ2Ãþ Áö»ó23Ãþ ¾÷¹«½Ã¼³(Á¦1.2Á¾±Ù¸°»ýȰ½Ã¼³)

°ÇÃ๰ÇöȲ

¼ÒÀçÁö °æ±âµµ ÆÄÁֽà ¿Íµ¿µ¿ 1433¹øÁö
´ëÁö¸éÀû 1995.8§³
(604.79Æò)
¿¬¸éÀû 22922.2181§³
(6946.13Æò)
°ÇÃà¸éÀû 1390.83§³
(421.46Æò)
¿ëÀû·ü»êÁ¤
¿¬¸éÀû
13969.15§³
(4233.08Æò)
°ÇÆóÀ² 69.69% ¿ëÀû·ü 699.93%
Áö»óÃþ¼ö 23Ãþ ÁöÇÏÃþ¼ö 2Ãþ
ÁÖ¿ëµµ ¾÷¹«½Ã¼³ ±¸Á¶ ö±ÙÄÜÅ©¸®Æ®±¸Á¶
Âø°øÀÏÀÚ 2018.11.22 »ç¿ë½ÂÀÎÀÏÀÚ 2021.01.08
°ÇÃ๰Ãþº°ÇöȲ [º¸±â]


µî±âºÎµîº» ¿ä¾à(°Ç¹°)

  Á¢¼öÀÏÀÚ µî±â¸ñÀû/±Ç¸®ÀÚ ±Ç¸®±Ý¾× ±âÁØ
1 2021³â3¿ù2ÀÏ
¼ÒÀ¯±Ç
°íOO
¼Ò¸ê
2 2024³â4¿ù5ÀÏ
ÀÓÂ÷±Ç¼³Á¤
±èOO
153,000,000 Àμö
3 2025³â3¿ù20ÀÏ
°­Á¦°æ¸Å
ÁÖOOOO
¼Ò¸ê±âÁØ

ÀÓÂ÷ÀÎÇöȲ (¹è´ç¿ä±¸Á¾±âÀÏ: 2025-06-09)

ÀÓÂ÷ÀÎ ¿ëµµ/Á¡À¯ º¸Áõ±Ý/¿ù¼¼ ´ëÇ×·Â
ÀüÀÔÀÏ/È®Á¤ÀÏ ¹è´ç¿ä±¸ ºñ°í
±èOO ÀüºÎ 153,000,000
O
2021.02.22
2021.02.23
2021.02.19~
ºñ°í
(¸Å°¢¹°°Ç
¸í¼¼¼­)
½Åûä±ÇÀÚ ÁÖÅõµ½Ãº¸Áõ°ø»ç´Â ÀÓÂ÷±ÇÀÚ ±è»ó¾ÆÀÇ ÀÓ´ëÂ÷º¸Áõ±Ý¹Ýȯä±ÇÀÇ ´ëÀ§º¯Á¦ÀÚÀÓ.

¿©ÀÇÁÖ°æ¸Å Á¶¾ð ÇÑ ¸¶µð

¼±¼øÀ§ ÀÓÂ÷±Çµî±â°¡ µÇ¾î ÀÖ½À´Ï´Ù
´ëÇ×·ÂÀÌ ÀÖ´Â ¼±¼øÀ§ ÀÓÂ÷±Çµî±â ±Ç¸®ÀÚ°¡ ¹è´çÀ» Àü¾× ¹ÞÁö ¸øÇÒ °æ¿ì ³«ÂûÀÚ°¡ ÀÜ¿© º¸Áõ±ÝÀ» ÀμöÇØ¾ßÇÏ´Â °æ¿ìµµ ÀÖ½À´Ï´Ù.

ÁÖÀÇ»çÇ× (ÃÖ¼±¼øÀ§ ¼³Á¤ÀÏ: 2025. 3. 20. °­Á¦°æ¸Å°³½Ã°áÁ¤ ¼³Á¤)

¸Å°¢À¸·Î ¼Ò¸êµÇÁö ¾Ê´Â µî±âºÎ±Ç¸®: ÇØ´ç»çÇ×¾øÀ½
¸Å°¢À¸·Î ¼³Á¤µÈ °ÍÀ¸·Î º¸´Â Áö»ó±Ç: ÇØ´ç»çÇ×¾øÀ½
ÁÖÅõµ½Ãº¸Áõ°ø»ç(¾çµµÀü:±è»ó¾Æ·ÎºÎÅÍ 2025.08.01.ÀÚ¿¡ ¡®ÀÓÂ÷º¸Áõ±Ý¿¡ ´ëÇÏ¿© ¿ì¼±º¯Á¦±Ç¸¸ ÁÖÀåÇÏ°í ´ëÇ×·ÂÀº Æ÷±âÇϸç, Àü¾× À» º¯Á¦¹ÞÁö ¸øÇÏ´õ¶óµµ ÀÓÂ÷±Çµî±â¸¦ ¸»¼ÒÇØ ÁÖ°Ú´Ù.¡¯´Â ³»¿ëÀÇ È®¾à¼­°¡ Á¦ÃâµÊ
¡Ø¹Ì³³°ü¸®ºñ(°ø¿ë) Àμö¿©ºÎ¸¦ ÀÔÂû Àü¿¡ È®ÀÎÇϽñ⠹ٶø´Ï´Ù

 

Áö¿ªºÐ¼®

ÁöÇÏö¸í Á÷¼±°Å¸®

Çб³¸í ÀüÈ­¹øÈ£ ÁÖ¼Ò Á÷¼±°Å¸®

¹ý¿ø

ÀÇÁ¤ºÎÁö¹æ¹ý¿ø °í¾çÁö¿ø (104-13)°æ±âµµ °í¾ç½Ã Àϻ굿±¸ Àå¹é·Î 209
´ëÇ¥ : 031)920-6114, ¾ß°£ : 031)920-6550, ÆÑ½º : 031)920-6119
°üÇÒÁö¿ª : °í¾ç½Ã, ÆÄÁÖ½Ã

µî±â¼Ò ÀÇÁ¤ºÎÁö¹æ¹ý¿ø °í¾çÁö¿ø ÆÄÁÖµî±â¼Ò (´ëÇ¥:1544-0773, ÆÑ½º:(031)945-4764, 3628, °æ±âµµ ÆÄÁֽà ±ÝÁ¤·Î 45 (±ÝÃ̵¿ 947-28))
¼¼¹«¼­ ÆÄÁÖ¼¼¹«¼­ (´ëÇ¥:031-956-02, ÆÑ½º:031-957-0315, °æ±âµµ ÆÄÁֽà ±Ý¸ª¿ª·Î 62 (±ÝÃ̵¿))

Àαٳ«ÂûÅë°è

±â°£ ¸Å°¢°Ç¼ö Æò±Õ°¨Á¤°¡
Æò±Õ¸Å°¢°¡
¸Å°¢°¡À²
Æò±ÕÀ¯Âû¼ö


º» °æ¸ÅÁ¤º¸´Â ¹ý¿øÀÚ·á¿Í ÀÏÄ¡Çϵµ·Ï ÇÏ¿´À¸³ª ±Ç¸®»çÇ׺¯µ¿, ÀÔ·ÂÂø¿À µîÀÇ ¿øÀÎÀ¸·Î »ç½Ç°ú ´Ù¸¦ ¼ö ÀÖ½À´Ï´Ù. ÀÌ¿ë¾à°ü¿¡ ÀǰЏéÃ¥Á¶°ÇÀ¸·Î Á¦°øµÊÀ» ¾Ë¸®¸ç, °æ¸ÅÀÔÂû½Ã ¹Ýµå½Ã °ü·Ã °øºÎ¸¦ ÀçÈ®ÀÎÇϽñ⠹ٶø´Ï´Ù. º¸´Ù Æí¸®ÇÑ °æ¸ÅÁ¤º¸ Á¦°øÀ» À§ÇØ Áö¼ÓÀûÀ¸·Î °³¼±ÇϰڽÀ´Ï´Ù. ÀÌ¿ëÇØ Áּż­ °¨»çÇÕ´Ï´Ù.