·Î±×ÀÎ
288
´Ù¼¼´ë(ºô¶ó)
ÀÇÁ¤ºÎÁö¹æ¹ý¿ø °í¾çÁö¿ø
 °¨Á¤°¡254,000,000 ¿ø
 ÃÖÀú°¡(49%) 124,460,000 ¿ø
 º¸Áõ±Ý(10%) 12,446,000 ¿ø
 Ã»±¸¾×269,712,093 ¿ø
°æ±âµµ ÆÄÁֽà »óÁö¼®µ¿ 606-15 3Ãþ302È£
»ç°Ç¹øÈ£ 2025Ÿ°æ62431
°æ¸ÅÁ¾·ùºÎµ¿»ê°­Á¦°æ¸Å
¸Å°¢´ë»óÅäÁö ¹× °Ç¹°Àϰý ¸Å°¢
¸Å°¢±âÀÏ    2026.05.28(¸ñ) 10:00 ÀÔÂû 11ÀÏÀü    
ÅäÁö¸éÀû65.92§³(19.94 Æò)
°Ç¹°¸éÀû65.31§³(19.76 Æò)
乫/¼ÒÀ¯ÀÚ±èOO / ±èOO
ä±ÇÀÚÁÖOOOOOOO
ÆäÀ̽ººÏ Æ®À§ÅÍ ±¸±Û+
īī¿À½ºÅ丮
īī¿ÀÅå sms¹®ÀÚº¸³»±â
 

±âÀϳ»¿ª

°æ°ú ³¯Â¥ Àú°¨ ÃÖÀú°¡ °á°ú
Á¢¼öÀÏ 2025-02-25 °æ¸ÅÁ¢¼ö
~1ÀÏ 
2025-02-26 °æ¸Å°³½Ã°áÁ¤
~83ÀÏ 
2025-05-19 ¹è´ç¿ä±¸Á¾±âÀÏ
~387ÀÏ 
2026-03-19 100%
254,000,000
À¯Âû
~422ÀÏ 
2026-04-23 70%
177,800,000
À¯Âû
~457ÀÏ 
2026-05-28 49%
124,460,000
ÁøÇà
¹°°Ç¸í¼¼¼­ ÇöȲÁ¶»ç¼­ ¹®°ÇÁ¢¼ö ¼Û´Þ³»¿ª

°¨Á¤Æò°¡ÇöȲ

¸ñ·Ï ÁÖ¼Ò ±¸Á¶/¿ëµµ/´ëÁö±Ç ¸éÀû ºñ°í
´ëÁö±Ç
»óÁö¼®µ¿ 606-15 525ºÐÀÇ 65.92 65.92 §³
(19.94Æò)
°Ç¹°
»óÁö¼®µ¿ 606-15 3Ãþ302È£ ö±ÙÄÜÅ©¸®Æ®±¸Á¶ 65.31 §³
(19.76Æò)
1) À§Ä¡/°èȹ°ü¸®Áö¿ª/³ë¼±¹ö½ºÁ¤·ùÀå/ö±ÙÄÜÅ©¸®Æ®±¸Á¶/°æ»çÁöºØ ´õº¸±â
°¨Á¤Æò°¡ ¿äÇ×Ç¥
1)À§Ä¡ ¹× ÁÖÀ§È¯°æ
´ë»ó¹°°ÇÀº °æ±âµµ ÆÄÁֽà »óÁö¼®µ¿ ¼ÒÀç ""»óÁö¼®4¸®¸¶À»È¸°ü"" ºÏ¼­Ãø Àαٿ¡ À§Ä¡Çϰí, ÁÖÀ§´Â °øµ¿ÁÖÅÃ, ±Ù¸°»ýȰ½Ã¼³ µîÀÌ ¼ÒÀçÇÏ´Â Áö¿ªÀ¸·Î ÁÖÀ§È¯°æÀº º¸ÅëÀÓ.
2)±³Åë»óȲ
´ë»ó¹°°Ç±îÁö Â÷·®ÃâÀÔÀÌ °¡´ÉÇϸç, Àαٿ¡ ³ë¼±¹ö½ºÁ¤·ùÀåÀÌ ¼ÒÀçÇÏ´Â µî ´ëÁß±³Åë»óȲÀº º¸ÅëÀÓ.
3)°Ç¹°ÀÇ ±¸Á¶
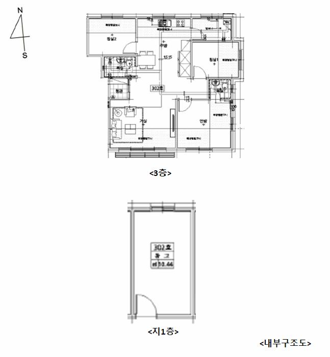
ö±ÙÄÜÅ©¸®Æ®±¸Á¶ °æ»çÁöºØ ÁöÇÏ 1Ãþ Áö»ó 4Ãþ °Ç¹° ³» Á¦3Ãþ Á¦302È£·Î¼­,
(»ç¿ë½ÂÀÎÀÏ : 2019.04.17)
¿Üº® : ¼®ÀçºÙÀÓ ¸¶°¨ ¹× µå¶óÀ̺ñÆ® ¸¶°¨ µî,
âȣ : ¼¦½Ã âȣ µîÀÓ.
4)ÀÌ¿ë»óÅÂ
°øºÎ»ó ¿ëµµ´Â ´Ù¼¼´ëÁÖÅÃ, â°íÀ̸ç, ³»ºÎÀÌ¿ë»óȲÀº ÈÄ÷ '³»ºÎ±¸Á¶µµ'Âü°í ¹Ù¶÷.
5)¼³ºñ³»¿ª
±âº»ÀûÀÎ À§»ý ¹× ±Þ¹è¼ö¼³ºñ, ³­¹æ¼³ºñ, ½Â°­±â¼³ºñ µîÀÌ µÇ¾î ÀÖÀ½.
6)ÅäÁöÀÇ Çü»ó ¹× ÀÌ¿ë»óÅÂ
´ë»ó¹°°ÇÀº ºÎÁ¤Çü ÅäÁö·Î¼­, °øµ¿ÁÖÅà °ÇºÎÁö·Î ÀÌ¿ëÁßÀÓ.
7)ÀÎÁ¢ µµ·Î»óŵî
´ë»ó¹°°Ç ºÏ¼­ÃøÀ¸·Î ³ëÆø ¾à 6m ³»¿ÜÀÇ Æ÷Àåµµ·Î¿Í Á¢ÇÔ.
8)ÅäÁöÀÌ¿ë°èȹ ¹× Á¦ÇÑ»óÅÂ
°èȹ°ü¸®Áö¿ª, ¼ºÀå°ü¸®°èȹ±¸¿ª(2024-01-26)(ÁØÁÖ°Å Zone), °¡Ãà»çÀ°Á¦Çѱ¸¿ª(ÀüºÎÁ¦ÇÑ)<°¡
ÃàºÐ´¢ÀÇ °ü¸® ¹× À̿뿡 °üÇÑ ¹ý·ü>ÀÓ.
9)°øºÎ¿ÍÀÇ Â÷ÀÌ
¾øÀ½.
10)±âŸÂü°í»çÇ×(ÀÓ´ë°ü·Ê ¹× ±âŸ)
- ÀÓ´ë°ü°è µî ¹Ì»óÀÓ.
- '³»ºÎ±¸Á¶µµ'ÀÇ ÀÛ¼ºÀº °ÇÃ๰´ëÀå»ó ÇöȲµµ¸é, ¿ÜºÎ°üÂû µî¿¡ ÀÇÇÏ¿´À¸¸ç, ³»ºÎ½Ç»ç½Ã ´Ù¼Ò »óÀÌÇÒ ¼ö ÀÖÀ¸´Ï °æ¸Å ÁøÇà½Ã À¯ÀÇÇϽñ⠹ٶ÷.
Âü°í
»çÇ×

-ö±ÙÄÜÅ©¸®Æ®±¸Á¶ °æ»çÁöºØ 4Ãþ °øµ¿ÁÖÅÃ

°ÇÃ๰ÇöȲ

¼ÒÀçÁö °æ±âµµ ÆÄÁֽà »óÁö¼®µ¿ 606-15¹øÁö
´ëÁö¸éÀû 525§³
(159.09Æò)
¿¬¸éÀû 654.16§³
(198.23Æò)
°ÇÃà¸éÀû 190.39§³
(57.69Æò)
¿ëÀû·ü»êÁ¤
¿¬¸éÀû
524.72§³
(159.01Æò)
°ÇÆóÀ² 36.26% ¿ëÀû·ü 99.95%
Áö»óÃþ¼ö 4Ãþ ÁöÇÏÃþ¼ö 1Ãþ
ÁÖ¿ëµµ °øµ¿ÁÖÅà ±¸Á¶ ö±ÙÄÜÅ©¸®Æ®±¸Á¶
Âø°øÀÏÀÚ 2018.05.15 »ç¿ë½ÂÀÎÀÏÀÚ 2019.04.17
°ÇÃ๰Ãþº°ÇöȲ [º¸±â]


±¹ÅäºÎ½Ç°Å·¡°¡ °æ±âµµ ÆÄÁֽà »óÁö¼®µ¿

¡Ü ¸Å¸Å

¸éÀû(§³), ±Ý¾×(¸¸¿ø)

¡Ü Àü¼¼

¸éÀû(§³), ±Ý¾×(¸¸¿ø)

°è¾àÀϰǹ°¸íĪÃþ¿¬¸éÀûº¸Áõ±Ý¿ù¼¼°ÇÃà
26.04.27°æ¾ÈÁÖÅÃ1µ¿-6µ¿1549,80001985
26.04.27°¶·¯¸®ÇϿ콺104105µ¿484.8615,000102014
26.04.16¼¼ÀÎÆ®ºô¸®Áö101,102µ¿467.2626,00002021
26.04.14¼­ºÎÁÖÅ𡵿-¶óµ¿242.91,000471988
26.04.13½ÅÈ­ÁÖÅÃ1µ¿347.76,50001991
¢Ñ ´õº¸±â

µî±âºÎµîº» ¿ä¾à(°Ç¹°)

  Á¢¼öÀÏÀÚ µî±â¸ñÀû/±Ç¸®ÀÚ ±Ç¸®±Ý¾× ±âÁØ
1 2023³â1¿ù10ÀÏ
¼ÒÀ¯±Ç
±èOO
¼Ò¸ê
2 2023³â6¿ù20ÀÏ
ÀÓÂ÷±Ç¼³Á¤
ÀåOOOO
250,000,000 Àμö
3 2025³â2¿ù26ÀÏ
°­Á¦°æ¸Å
ÁÖOOOO
¼Ò¸ê±âÁØ

ÀÓÂ÷ÀÎÇöȲ (¹è´ç¿ä±¸Á¾±âÀÏ: 2025-05-19)

ÀÓÂ÷ÀÎ ¿ëµµ/Á¡À¯ º¸Áõ±Ý/¿ù¼¼ ´ëÇ×·Â
ÀüÀÔÀÏ/È®Á¤ÀÏ ¹è´ç¿ä±¸ ºñ°í
¹ÚOO 302È£(65.31§³) 10,000,000
[¿ù]550,000
O
2024. 11. 15.
2025. 1. 10.
2025.3.21. 2024. 11.15.~

¿©ÀÇÁÖ°æ¸Å Á¶¾ð ÇÑ ¸¶µð

¼±¼øÀ§ ÀÓÂ÷±Çµî±â°¡ µÇ¾î ÀÖ½À´Ï´Ù
´ëÇ×·ÂÀÌ ÀÖ´Â ¼±¼øÀ§ ÀÓÂ÷±Çµî±â ±Ç¸®ÀÚ°¡ ¹è´çÀ» Àü¾× ¹ÞÁö ¸øÇÒ °æ¿ì ³«ÂûÀÚ°¡ ÀÜ¿© º¸Áõ±ÝÀ» ÀμöÇØ¾ßÇÏ´Â °æ¿ìµµ ÀÖ½À´Ï´Ù.

ÁÖÀÇ»çÇ× (ÃÖ¼±¼øÀ§ ¼³Á¤ÀÏ: 2025. 2. 26. °­Á¦°æ¸Å°³½Ã°áÁ¤ ¼³Á¤)

¸Å°¢À¸·Î ¼Ò¸êµÇÁö ¾Ê´Â µî±âºÎ±Ç¸®: ¸Å¼öÀο¡°Ô ´ëÇ×ÇÒ ¼ö ÀÖ´Â À»±¸ 1¹ø ÀÓÂ÷±Çµî±â(ÀÓ´ëÂ÷º¸Áõ±Ý 250,000,000¿ø, ÀüÀÔÀÏÀÚ 2021. 10. 19. È®Á¤ÀÏÀÚ 2021. 10. 19.) °¡ ÀÖÀ¸¹Ç·Î ¹è´ç¿¡¼­ Àü¾× º¯Á¦µÇÁö ¾Æ´ÏÇϸé Àܾ×Àº ¸Å¼öÀο¡°Ô ÀμöµÉ ¼ö ÀÖÀ½.
¸Å°¢À¸·Î ¼³Á¤µÈ °ÍÀ¸·Î º¸´Â Áö»ó±Ç:
¡Ø¹Ì³³°ü¸®ºñ(°ø¿ë) Àμö¿©ºÎ¸¦ ÀÔÂû Àü¿¡ È®ÀÎÇϽñ⠹ٶø´Ï´Ù

 

Áö¿ªºÐ¼®

ÁöÇÏö¸í Á÷¼±°Å¸®

Çб³¸í ÀüÈ­¹øÈ£ ÁÖ¼Ò Á÷¼±°Å¸®

¹ý¿ø

ÀÇÁ¤ºÎÁö¹æ¹ý¿ø °í¾çÁö¿ø (104-13)°æ±âµµ °í¾ç½Ã Àϻ굿±¸ Àå¹é·Î 209
´ëÇ¥ : 031)920-6114, ¾ß°£ : 031)920-6550, ÆÑ½º : 031)920-6119
°üÇÒÁö¿ª : °í¾ç½Ã, ÆÄÁÖ½Ã

µî±â¼Ò ÀÇÁ¤ºÎÁö¹æ¹ý¿ø °í¾çÁö¿ø ÆÄÁÖµî±â¼Ò (´ëÇ¥:1544-0773, ÆÑ½º:(031)945-4764, 3628, °æ±âµµ ÆÄÁֽà ±ÝÁ¤·Î 45 (±ÝÃ̵¿ 947-28))
¼¼¹«¼­ ÆÄÁÖ¼¼¹«¼­ (´ëÇ¥:031-956-02, ÆÑ½º:031-957-0315, °æ±âµµ ÆÄÁֽà ±Ý¸ª¿ª·Î 62 (±ÝÃ̵¿))

Àαٳ«ÂûÅë°è

±â°£ ¸Å°¢°Ç¼ö Æò±Õ°¨Á¤°¡
Æò±Õ¸Å°¢°¡
¸Å°¢°¡À²
Æò±ÕÀ¯Âû¼ö
3°³¿ù 28°Ç 261,535,714¿ø
151,056,031¿ø
59%
2ȸ
6°³¿ù 52°Ç 251,423,077¿ø
154,673,478¿ø
63%
1.8ȸ
12°³¿ù 69°Ç 254,716,217¿ø
160,337,034¿ø
64%
1.8ȸ


º» °æ¸ÅÁ¤º¸´Â ¹ý¿øÀÚ·á¿Í ÀÏÄ¡Çϵµ·Ï ÇÏ¿´À¸³ª ±Ç¸®»çÇ׺¯µ¿, ÀÔ·ÂÂø¿À µîÀÇ ¿øÀÎÀ¸·Î »ç½Ç°ú ´Ù¸¦ ¼ö ÀÖ½À´Ï´Ù. ÀÌ¿ë¾à°ü¿¡ ÀǰЏéÃ¥Á¶°ÇÀ¸·Î Á¦°øµÊÀ» ¾Ë¸®¸ç, °æ¸ÅÀÔÂû½Ã ¹Ýµå½Ã °ü·Ã °øºÎ¸¦ ÀçÈ®ÀÎÇϽñ⠹ٶø´Ï´Ù. º¸´Ù Æí¸®ÇÑ °æ¸ÅÁ¤º¸ Á¦°øÀ» À§ÇØ Áö¼ÓÀûÀ¸·Î °³¼±ÇϰڽÀ´Ï´Ù. ÀÌ¿ëÇØ Áּż­ °¨»çÇÕ´Ï´Ù.