·Î±×ÀÎ
292
¾ÆÆÄÆ®
´ëÀüÁö¹æ¹ý¿ø ¼­»êÁö¿ø
 °¨Á¤°¡260,000,000 ¿ø
 ÃÖÀú°¡(34%) 89,180,000 ¿ø
 º¸Áõ±Ý(10%) 8,918,000 ¿ø
 Ã»±¸¾×263,548,121 ¿ø
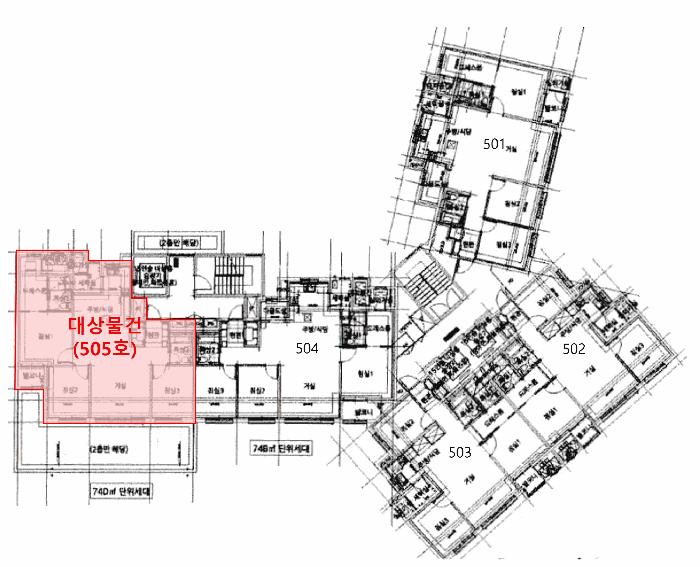
ÃæÃ»³²µµ ¼­»ê½Ã ¼®¸²µ¿ 962 ¼­»ê¼¾Æ®·²ÄÚ¾Æ·ç¾ÆÆÄÆ® 103µ¿ 5Ãþ505È£
»ç°Ç¹øÈ£ 2025Ÿ°æ51130
°æ¸ÅÁ¾·ùºÎµ¿»ê°­Á¦°æ¸Å
¸Å°¢´ë»óÅäÁö ¹× °Ç¹°Àϰý ¸Å°¢
¸Å°¢±âÀÏ    2026.06.17(¼ö) 10:00 ÀÔÂû 24ÀÏÀü    
ÅäÁö¸éÀû42.22§³(12.77 Æò)
°Ç¹°¸éÀû74.22§³(22.45 Æò)
乫/¼ÒÀ¯ÀÚ¾çOO / ¾çOO
ä±ÇÀÚÁÖOOOOOOO
ÆäÀ̽ººÏ Æ®À§ÅÍ ±¸±Û+
īī¿À½ºÅ丮
īī¿ÀÅå sms¹®ÀÚº¸³»±â
 

±âÀϳ»¿ª

°æ°ú ³¯Â¥ Àú°¨ ÃÖÀú°¡ °á°ú
Á¢¼öÀÏ 2025-03-14 °æ¸ÅÁ¢¼ö
~7ÀÏ 
2025-03-21 °æ¸Å°³½Ã°áÁ¤
~98ÀÏ 
2025-06-20 ¹è´ç¿ä±¸Á¾±âÀÏ
~369ÀÏ 
2026-03-18 100%
260,000,000
À¯Âû
~397ÀÏ 
2026-04-15 70%
182,000,000
À¯Âû
~432ÀÏ 
2026-05-20 49%
127,400,000
À¯Âû
~460ÀÏ 
2026-06-17 34%
89,180,000
ÁøÇà
¹°°Ç¸í¼¼¼­ ÇöȲÁ¶»ç¼­ ¹®°ÇÁ¢¼ö ¼Û´Þ³»¿ª

°¨Á¤Æò°¡ÇöȲ

¸ñ·Ï ÁÖ¼Ò ±¸Á¶/¿ëµµ/´ëÁö±Ç ¸éÀû ºñ°í
´ëÁö±Ç
¼®¸²µ¿ 962 13946ºÐÀÇ 42.2152 42.2152 §³
(12.77Æò)
°Ç¹°
¼®¸²µ¿ 962 103µ¿ 5Ãþ505È£ ö±ÙÄÜÅ©¸®Æ®±¸Á¶ 74.2216 §³
(22.45Æò)
1) À§Ä¡/µµ½ÃÁö¿ª/Á¦2Á¾ÀϹÝÁÖ°ÅÁö¿ª/Áö±¸´ÜÀ§°èȹ±¸¿ª/¹ö½ºÁ¤·ùÀå/ÁÖÂ÷Àå/Â÷·® Á¢±ÙÀÌ °¡´É/°£¼±µµ·Î/ö±ÙÄÜÅ©¸®Æ®±¸Á¶/µµ½Ã°¡½º/¹æ3/¿å½Ç2 ´õº¸±â
°¨Á¤Æò°¡ ¿äÇ×Ç¥
1)À§Ä¡ ¹× ÁÖÀ§È¯°æ
ÃæÃ»³²µµ ¼­»ê½Ã ¼ÒÀç 'Áß¾ÓÈ£¼ö°ø¿ø' µ¿Ãø Àαٿ¡ ¼ÒÀçÇÏ´Â ºÎµ¿»êÀ¸·Î¼­, ÁÖº¯Àº ´Üµ¶ÁÖÅÃ, ¿¬¸³ÁÖÅÃ, ´Ù¼¼´ëÁÖÅÃ, »ó°¡ÁÖÅà µîÀÌ ¼ÒÀçÇÏ´Â Áö´ë·Î¼­, Á¦¹Ý ÁÖÀ§È¯°æÀº ¹«³­½ÃµÊ.
2)±³Åë»óȲ
º»°Ç±îÁö Â÷·® Á¢±ÙÀÌ °¡´ÉÇϰí, ÀαÙÀ¸·Î °£¼±µµ·Î, ¹ö½ºÁ¤·ùÀå µîÀÌ ¼ÒÀçÇÏ¿© ´ëÁß±³Åë ¹× µµ·Î±³Åë ÀÌ¿ë»óȲÀº ¹«³­½ÃµÊ.
3)°Ç¹°ÀÇ ±¸Á¶
ö±ÙÄÜÅ©¸®Æ®±¸Á¶ Æò½½¶óºêÁöºØ 20Ãþ °øµ¿ÁÖÅÃ(¾ÆÆÄÆ®) ³» °³º°È£¼ö·Î¼­,
(»ç¿ë½ÂÀÎÀÏÀÚ: 2019.03.28)

¿Üº®: ¸ôÅ»À§ ÆäÀÎÆÃ ¸¶°¨ µî,
³»ºÎ: ÀÎÅ׸®¾î ¸¶°¨ µîÀÓ.
âȣ: ¼¦½Ã âȣ ¸¶°¨ µîÀÓ.
4)ÀÌ¿ë»óÅÂ
ÇöȲ ÁÖ°Å¿ë(¹æ3, ¿å½Ç2, µå·¹½º·ë, ÁÖ¹æ, Çö°ü µî)À¸·Î ÀÌ¿ëÁßÀÓ.
5)¼³ºñ³»¿ª
±âº»ÀûÀÎ À§»ý ¹× ±Þ¹è¼ö¼³ºñ, µµ½Ã°¡½º¿¡ ÀÇÇÑ ³­¹æ¼³ºñ, ¼ÒÈ­Àü¼³ºñ, ½Â°­±â½Ã¼³, ÁÖÂ÷Àå½Ã¼³ µîÀÌ ±¸ºñµÇ¾î ÀÖÀ½.
6)ÅäÁöÀÇ Çü»ó ¹× ÀÌ¿ë»óÅÂ
»ç´Ù¸® ÆòÁö·Î¼­, '¾ÆÆÄÆ®°ÇºÎÁö'·Î ÀÌ¿ëÁßÀÓ.
7)ÀÎÁ¢ µµ·Î»óŵî
º»°Ç ´ÜÁö¸¦ Æ÷Àåµµ·Î°¡ ¿¡¿ö½Î°í ÀÖ¾î, ´ÜÁö³»°øµµ¿Í ¿¬°èµÊ.
8)ÅäÁöÀÌ¿ë°èȹ ¹× Á¦ÇÑ»óÅÂ
µµ½ÃÁö¿ª, Á¦2Á¾ÀϹÝÁÖ°ÅÁö¿ª, Áö±¸´ÜÀ§°èȹ±¸¿ª, ¼Ò·Î1·ù(Æø 10m~12m)(Á¢ÇÕ), ¼Ò·Î2·ù(Æø 8m~10m)(Á¢ÇÕ), Áß·Î2·ù(Æø 15m~20m)(ÀúÃË),°¡Ãà»çÀ°Á¦Çѱ¸¿ª(ÀüºÎÁ¦ÇÑÁö¿ª:¸ðµç ÃàÁ¾ ºÒ°¡)<°¡ÃàºÐ´¢ÀÇ °ü¸® ¹× À̿뿡 °üÇÑ ¹ý·ü> .
9)°øºÎ¿ÍÀÇ Â÷ÀÌ
-.
10)±âŸÂü°í»çÇ×(ÀÓ´ë°ü·Ê ¹× ±âŸ)
ÀÓ´ë°ü°è´Â ¹Ì»óÀÓ.
Âü°í
»çÇ×
¸Å¼öÀο¡°Ô ´ëÇ×ÇÒ ¼ö ÀÖ´Â À»±¸ 1¹ø¿¡ ´ëÇÑ ÁÖÅÃÀÓÂ÷±Çµî±â(2024.3.5. Á¦6928È£) ÀÖÀ½.(ÀÓ´ëÂ÷º¸Áõ±Ý 250,000,000¿ø/ ÀüÀÔÀÏ 2022.2.28./ Á¡À¯°³½ÃÀÏÀÚ 2022.2.28./ È®Á¤ÀÏÀÚ 2022.2.18.)¹è´ç¿¡¼­ º¸Áõ±ÝÀÌ Àü¾× º¯Á¦µÇÁö ¾Æ´ÏÇϸé Àܾ×À» ¸Å¼öÀÎÀÌ ÀμöÇÔ(½Åûä±ÇÀÚÀÎ ÁÖÅõµ½Ãº¸Áõ°ø»ç°¡ ÀÓÂ÷ÀÎ ±Ç¸® ½Â°èÇÔ).
¸ñ·Ï1

°ÇÃ๰ÇöȲ

¼ÒÀçÁö ÃæÃ»³²µµ ¼­»ê½Ã ¼®¸²µ¿ 962¹øÁö
´ëÁö¸éÀû   ¿¬¸éÀû 7564.4694§³
(2292.26Æò)
°ÇÃà¸éÀû 633.9181§³
(192.1Æò)
¿ëÀû·ü»êÁ¤
¿¬¸éÀû
7564.4694§³
(2292.26Æò)
°ÇÆóÀ²   ¿ëÀû·ü  
Áö»óÃþ¼ö 20Ãþ ÁöÇÏÃþ¼ö  
ÁÖ¿ëµµ °øµ¿ÁÖÅà ±¸Á¶ ö±ÙÄÜÅ©¸®Æ®±¸Á¶
Âø°øÀÏÀÚ 2016.12.01 »ç¿ë½ÂÀÎÀÏÀÚ 2019.03.28
°ÇÃ๰Ãþº°ÇöȲ [º¸±â]


µî±âºÎµîº» ¿ä¾à(°Ç¹°)

  Á¢¼öÀÏÀÚ µî±â¸ñÀû/±Ç¸®ÀÚ ±Ç¸®±Ý¾× ±âÁØ
1 2023³â12¿ù28ÀÏ
¼ÒÀ¯±Ç
¾çOO
¼Ò¸ê
2 2024³â3¿ù5ÀÏ
ÀÓÂ÷±Ç¼³Á¤
¹ÚOO
250,000,000 Àμö
3 2025³â3¿ù24ÀÏ
°­Á¦°æ¸Å
ÁÖOOOO
¼Ò¸ê±âÁØ

ÀÓÂ÷ÀÎÇöȲ (¹è´ç¿ä±¸Á¾±âÀÏ: 2025-06-20)

ÀÓÂ÷ÀÎ ¿ëµµ/Á¡À¯ º¸Áõ±Ý/¿ù¼¼ ´ëÇ×·Â
ÀüÀÔÀÏ/È®Á¤ÀÏ ¹è´ç¿ä±¸ ºñ°í
¹ÚOO ÀüÀ¯ºÎºÐÀüºÎ 250,000,000
O
2022.2.28.
2022.2.18.
2022.2.28.~
ºñ°í
(¸Å°¢¹°°Ç
¸í¼¼¼­)
½Åûä±ÇÀÚ´Â ÀÓÂ÷±ÇÀÚÀÇ ¾ç¼öÀÎ

¿©ÀÇÁÖ°æ¸Å Á¶¾ð ÇÑ ¸¶µð

¼±¼øÀ§ ÀÓÂ÷±Çµî±â°¡ µÇ¾î ÀÖ½À´Ï´Ù
´ëÇ×·ÂÀÌ ÀÖ´Â ¼±¼øÀ§ ÀÓÂ÷±Çµî±â ±Ç¸®ÀÚ°¡ ¹è´çÀ» Àü¾× ¹ÞÁö ¸øÇÒ °æ¿ì ³«ÂûÀÚ°¡ ÀÜ¿© º¸Áõ±ÝÀ» ÀμöÇØ¾ßÇÏ´Â °æ¿ìµµ ÀÖ½À´Ï´Ù.

ÁÖÀÇ»çÇ× (ÃÖ¼±¼øÀ§ ¼³Á¤ÀÏ: 2025. 3. 21. ¼³Á¤ °­Á¦°æ¸Å°³½Ã°áÁ¤)

¸Å°¢À¸·Î ¼Ò¸êµÇÁö ¾Ê´Â µî±âºÎ±Ç¸®: ¸Å¼öÀο¡°Ô ´ëÇ×ÇÒ ¼ö ÀÖ´Â À»±¸ 1¹ø¿¡ ´ëÇÑ ÁÖÅÃÀÓÂ÷±Çµî±â(2024.3.5. Á¦6928È£) ÀÖÀ½.(ÀÓ´ëÂ÷º¸Áõ±Ý 250,000,000¿ø/ ÀüÀÔÀÏ 2022.2.28./ Á¡À¯°³½ÃÀÏÀÚ 2022.2.28./ È®Á¤ÀÏÀÚ 2022.2.18.)¹è´ç¿¡¼­ º¸Áõ±ÝÀÌ Àü¾× º¯Á¦µÇÁö ¾Æ´ÏÇϸé Àܾ×À» ¸Å¼öÀÎÀÌ ÀμöÇÔ (½Åûä±ÇÀÚÀÎ ÁÖÅõµ½Ãº¸Áõ°ø»ç°¡ ÀÓÂ÷ÀÎ ±Ç¸® ½Â°èÇÔ).
¸Å°¢À¸·Î ¼³Á¤µÈ °ÍÀ¸·Î º¸´Â Áö»ó±Ç:
¸Å¼öÀο¡°Ô ´ëÇ×ÇÒ ¼ö ÀÖ´Â À»±¸ 1¹ø¿¡ ´ëÇÑ ÁÖÅÃÀÓÂ÷±Çµî±â(2024.3.5. Á¦6928È£) ÀÖÀ½.(ÀÓ´ëÂ÷º¸Áõ±Ý 250,000,000¿ø/ ÀüÀÔÀÏ 2022.2.28./ Á¡À¯°³½ÃÀÏÀÚ 2022.2.28./ È®Á¤ÀÏÀÚ 2022.2.18.)¹è´ç¿¡¼­ º¸Áõ±ÝÀÌ Àü¾× º¯Á¦µÇÁö ¾Æ´ÏÇϸé Àܾ×À» ¸Å¼öÀÎÀÌ ÀμöÇÔ (½Åûä±ÇÀÚÀÎ ÁÖÅõµ½Ãº¸Áõ°ø»ç°¡ ÀÓÂ÷ÀÎ ±Ç¸® ½Â°èÇÔ).
¡Ø¹Ì³³°ü¸®ºñ(°ø¿ë) Àμö¿©ºÎ¸¦ ÀÔÂû Àü¿¡ È®ÀÎÇϽñ⠹ٶø´Ï´Ù

 

Áö¿ªºÐ¼®

ÁöÇÏö¸í Á÷¼±°Å¸®

Çб³¸í ÀüÈ­¹øÈ£ ÁÖ¼Ò Á÷¼±°Å¸®

¹ý¿ø

´ëÀüÁö¹æ¹ý¿ø ¼­»êÁö¿ø (319-88)ÃæÃ»³²µµ ¼­»ê½Ã °ø¸²4·Î 24 (¿¹Ãµµ¿ 600)
´ëÇ¥ : 041)660-0600, ¾ß°£ : 041)660-0725~6
°üÇÒÁö¿ª : ¼­»ê½Ã, ´çÁø½Ã, žȱº

µî±â¼Ò ´ëÀüÁö¹æ¹ý¿ø ¼­»êÁö¿ø µî±â°ú (´ëÇ¥:1544-0773, ÆÑ½º:(041)660-0719, Ãæ³² ¼­»ê½Ã °ø¸²4·Î 24 (¿¹Ãµµ¿ 600))
¼¼¹«¼­ ¼­»ê¼¼¹«¼­ (´ëÇ¥:041-660-92, ÆÑ½º:041-660-9259, ÃæÃ»³²µµ ¼­»ê½Ã ´öÁöõ·Î 145-6 (¼®¸²µ¿))

Àαٳ«ÂûÅë°è

±â°£ ¸Å°¢°Ç¼ö Æò±Õ°¨Á¤°¡
Æò±Õ¸Å°¢°¡
¸Å°¢°¡À²
Æò±ÕÀ¯Âû¼ö
3°³¿ù 12°Ç 172,718,250¿ø
133,570,083¿ø
74%
1.6ȸ
6°³¿ù 31°Ç 142,661,097¿ø
102,443,885¿ø
68%
1.9ȸ
12°³¿ù 70°Ç 164,425,629¿ø
125,669,118¿ø
73%
1.7ȸ


º» °æ¸ÅÁ¤º¸´Â ¹ý¿øÀÚ·á¿Í ÀÏÄ¡Çϵµ·Ï ÇÏ¿´À¸³ª ±Ç¸®»çÇ׺¯µ¿, ÀÔ·ÂÂø¿À µîÀÇ ¿øÀÎÀ¸·Î »ç½Ç°ú ´Ù¸¦ ¼ö ÀÖ½À´Ï´Ù. ÀÌ¿ë¾à°ü¿¡ ÀǰЏéÃ¥Á¶°ÇÀ¸·Î Á¦°øµÊÀ» ¾Ë¸®¸ç, °æ¸ÅÀÔÂû½Ã ¹Ýµå½Ã °ü·Ã °øºÎ¸¦ ÀçÈ®ÀÎÇϽñ⠹ٶø´Ï´Ù. º¸´Ù Æí¸®ÇÑ °æ¸ÅÁ¤º¸ Á¦°øÀ» À§ÇØ Áö¼ÓÀûÀ¸·Î °³¼±ÇϰڽÀ´Ï´Ù. ÀÌ¿ëÇØ Áּż­ °¨»çÇÕ´Ï´Ù.