·Î±×ÀÎ
134
¾ÆÆÄÆ®
ÀÇÁ¤ºÎÁö¹æ¹ý¿ø °í¾çÁö¿ø
 °¨Á¤°¡409,000,000 ¿ø
 ÃÖÀú°¡(70%) 286,300,000 ¿ø
 º¸Áõ±Ý(10%) 28,630,000 ¿ø
 Ã»±¸¾×320,000,000 ¿ø
°æ±âµµ ÆÄÁֽà µ¿ÆÐµ¿ 1698 Ã¥Çâ±â¸¶À»10´ÜÁöµ¿¹®±Â¸ð´×Èú 1001µ¿ 12Ãþ1205È£
»ç°Ç¹øÈ£ 2025Ÿ°æ64560
°æ¸ÅÁ¾·ùºÎµ¿»ê°­Á¦°æ¸Å
¸Å°¢´ë»óÅäÁö ¹× °Ç¹°Àϰý ¸Å°¢
¸Å°¢±âÀÏ    2026.04.22(¼ö) 10:00 ÀÔÂû 24ÀÏÀü    
ÅäÁö¸éÀû60.01§³(18.15 Æò)
°Ç¹°¸éÀû84.88§³(25.68 Æò)
乫/¼ÒÀ¯ÀÚ±èOO (OO O OO O OOO) / ±èOO (OO O OO O OOO)
ä±ÇÀÚÁÖOOOOOOO
ÆäÀ̽ººÏ Æ®À§ÅÍ ±¸±Û+
īī¿À½ºÅ丮
īī¿ÀÅå sms¹®ÀÚº¸³»±â
 

±âÀϳ»¿ª

°æ°ú ³¯Â¥ Àú°¨ ÃÖÀú°¡ °á°ú
Á¢¼öÀÏ 2025-10-24 °æ¸ÅÁ¢¼ö
~3ÀÏ 
2025-10-27 °æ¸Å°³½Ã°áÁ¤
~87ÀÏ 
2026-01-19 ¹è´ç¿ä±¸Á¾±âÀÏ
~145ÀÏ 
2026-03-18 100%
409,000,000
À¯Âû
~180ÀÏ 
2026-04-22 70%
286,300,000
ÁøÇà
¹°°Ç¸í¼¼¼­ ÇöȲÁ¶»ç¼­ ¹®°ÇÁ¢¼ö ¼Û´Þ³»¿ª

°¨Á¤Æò°¡ÇöȲ

¸ñ·Ï ÁÖ¼Ò ±¸Á¶/¿ëµµ/´ëÁö±Ç ¸éÀû ºñ°í
´ëÁö±Ç
µ¿ÆÐµ¿ 1698 63529.1ºÐÀÇ 60.01 60.01 §³
(18.15Æò)
°Ç¹°
µ¿ÆÐµ¿ 1698 1001µ¿ 12Ãþ1205È£ ö±ÙÄÜÅ©¸®Æ®Á¶ 84.881 §³
(25.68Æò)
1) À§Ä¡/Á¦3Á¾ÀϹÝÁÖ°ÅÁö¿ª/Á¦1Á¾Áö±¸´ÜÀ§°èȹ±¸¿ª/ÅäÁö°Å·¡°è¾à¿¡°üÇÑÇã°¡±¸¿ª/³ë¼±¹ö½º Á¤·ùÀå/ö±ÙÄÜÅ©¸®Æ®Á¶/½º¶óºêÁöºØ ´õº¸±â
°¨Á¤Æò°¡ ¿äÇ×Ç¥
1)À§Ä¡ ¹× ÁÖÀ§È¯°æ
º»°ÇÀº °æ±âµµ ÆÄÁֽà µ¿ÆÐµ¿ ¼ÒÀç "¼®°ùÃʵîÇб³" ¼­Ãø Àαٿ¡ À§Ä¡Çϸç, ÁÖÀ§´Â ´ë±Ô¸ð ¾ÆÆÄÆ®´ÜÁö ¹× ±Ù¸°»ýȰ½Ã¼³ µîÀÌ ¼ÒÀçÇϸç Á¦¹Ý ÁÖÀ§È¯°æÀº º¸ÅëÀÔ´Ï´Ù.
2)±³Åë»óȲ
º»°Ç±îÁö Â÷·® Áø,ÃâÀÔÀÌ °¡´ÉÇϸç, Àαٿ¡ ³ë¼±¹ö½º Á¤·ùÀåÀÌ ¼ÒÀçÇÏ´Â µî Á¦¹Ý ´ëÁß±³Åë»óȲÀº ¾çÈ£ÇÕ´Ï´Ù.
3)°Ç¹°ÀÇ ±¸Á¶
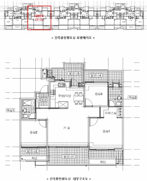
ö±ÙÄÜÅ©¸®Æ®Á¶ °æ»ç½º¶óºêÁöºØ 15Ãþ Áß 12Ãþ 1205È£·Î¼­, ¿Üº®: ¸ôÅ» À§ ÆäÀÎÆÃ ¸¶°¨ µî, âȣ: ¼¦½Ã âȣÀÔ´Ï´Ù.
4)ÀÌ¿ë»óÅÂ
¾ÆÆÄÆ®(ÈÄ÷ "³»ºÎ±¸Á¶µµ" ÂüÁ¶)·Î ÀÌ¿ë ÁßÀÔ´Ï´Ù.
5)¼³ºñ³»¿ª
±Þ,¹è¼ö¼³ºñ, ½Â°­±â¼³ºñ, È­ÀçŽÁö¼³ºñ ¹× Àü±â¼³ºñ µîÀÌ µÇ¾îÀÖ½À´Ï´Ù.
6)ÅäÁöÀÇ Çü»ó ¹× ÀÌ¿ë»óÅÂ
ÀÎÁ¢Áö´ëºñ µî°íÆòźÇÑ ºÎÁ¤ÇüÀÇ ÅäÁö·Î ¾ÆÆÄÆ® °ÇºÎÁö·Î ÀÌ¿ë ÁßÀÔ´Ï´Ù.
7)ÀÎÁ¢ µµ·Î»óŵî
´ÜÁö ³» µµ·Î¸¦ ÅëÇÏ¿© ¿Ü°û °øµµ¿Í Á¢ÇÕ´Ï´Ù.
8)ÅäÁöÀÌ¿ë°èȹ ¹× Á¦ÇÑ»óÅÂ
Á¦3Á¾ÀϹÝÁÖ°ÅÁö¿ª, Á¦1Á¾Áö±¸´ÜÀ§°èȹ±¸¿ª, Áß·Î1·ù(Æø 20m~25m)(Áß1-4(Áý))(Á¢ÇÕ), Áß·Î2·ù(Æø 15m~20m)(Áß2-5(Áý))(Á¢ÇÕ) °¡Ãà»çÀ°Á¦Çѱ¸¿ª(ÀüºÎÁ¦Çѱ¸¿ª)<°¡ÃàºÐ´¢ÀÇ °ü¸® ¹× À̿뿡 °üÇÑ ¹ý·ü>, »ó´ëº¸È£±¸¿ª(¹Ýµå½Ã ±³À°Áö¿øÃ»¿¡ ÀçÈ®Àιٶ÷(TEL.940-7244))<±³À°È¯°æ º¸È£¿¡ °üÇÑ ¹ý·ü>, »ó´ëº¸È£±¸¿ª(¼®°ùÃʵîÇб³,¹Ýµå½Ã ±³À°Áö¿øÃ»¿¡ ÀçÈ®ÀÎ ¹Ù¶÷(940-7244))<±³À°È¯°æ º¸È£¿¡ °üÇÑ ¹ý·ü>, Àý´ëº¸È£±¸¿ª(¼®°ùÃʵîÇб³,¹Ýµå½Ã ±³À°Áö¿øÃ»¿¡ ÀçÈ®ÀÎ ¹Ù¶÷(940-7244))<±³À°È¯°æ º¸È£¿¡ °üÇÑ ¹ý·ü>, Çö»óº¯°æÇã°¡ ´ë»ó±¸¿ª(±³ÇϹ°Çª·¹³ª¹«(300¹ÌÅÍÀ̳»))<¹®È­À¯»êÀÇ º¸Á¸ ¹× Ȱ¿ë¿¡ °üÇÑ ¹ý·ü> ÅäÁö°Å·¡°è¾à¿¡°üÇÑÇã°¡±¸¿ª(25.8.26~26.8.25 ¿Ü±¹ÀÎ µîÀÇ ´Üµ¶ÁÖÅÃ, ´Ù°¡±¸ÁÖÅÃ, ¾ÆÆÄÆ®, ¿¬¸³ÁÖÅÃ, ´Ù¼¼´ëÁÖÅÃ)
9)°øºÎ¿ÍÀÇ Â÷ÀÌ
°øºÎ¿ÍÀÇ Â÷ÀÌ ¾ø½À´Ï´Ù.
10)±âŸÂü°í»çÇ×(ÀÓ´ë°ü·Ê ¹× ±âŸ)
ÀÓ´ë°ü°è ¹Ì»óÀÔ´Ï´Ù. º»°ÇÀº ³»ºÎ±¸Á¶ È®ÀÎ ¹× ÀÛ¼ºÀº ÀÌÇØ°ü°èÀÎÀÇ Æó¹® ¹× ºÎÀç·Î ÀÎÇÏ¿© °Ç¹° ¿Ü°ü ¹× ޹®Á¶»ç, °ÇÃ๰ÇöȲµµ¸é¿¡ ÀǰÅÇÏ¿© Ç¥ÁØÀûÀ̰í ÀϹÝÀûÀÎ ÀÌ¿ë ¹× °ü¸®»óŸ¦ ±âÁØÇÏ¿© ÀÛ¼ºÇÏ¿´À¸¹Ç·Î °æ¸Å ÁøÇà½Ã Âü°íÇϽñ⠹ٶø´Ï´Ù.
Âü°í
»çÇ×
¸Å¼öÀο¡°Ô ´ëÇ×ÇÒ ¼ö ÀÖ´Â À»±¸ 5¹ø ÀÓÂ÷±Çµî±â(ÀÓ´ëÂ÷º¸Áõ±Ý 320,000,000¿ø, ÀüÀÔÀÏÀÚ 2022. 7. 1. È®Á¤ÀÏÀÚ 2022.7.1.)°¡ ÀÖÀ¸¹Ç·Î ¹è´ç¿¡¼­ Àü¾× º¯Á¦µÇÁö ¾Æ´ÏÇϸé Àܾ×Àº ¸Å¼öÀο¡°Ô ÀμöµÉ ¼ö ÀÖÀ½.
-ö±ÙÄÜÅ©¸®Æ®Á¶ °æ»ç½º¶óºêÁöºØ 15Ãþ ¾ÆÆÄÆ®

°ÇÃ๰ÇöȲ

¼ÒÀçÁö °æ±âµµ ÆÄÁֽà µ¿ÆÐµ¿ 1698¹øÁö
´ëÁö¸éÀû   ¿¬¸éÀû 10204.068§³
(3092.14Æò)
°ÇÃà¸éÀû 771.144§³
(233.68Æò)
¿ëÀû·ü»êÁ¤
¿¬¸éÀû
9544.77§³
(2892.35Æò)
°ÇÆóÀ²   ¿ëÀû·ü  
Áö»óÃþ¼ö 15Ãþ ÁöÇÏÃþ¼ö 1Ãþ
ÁÖ¿ëµµ °øµ¿ÁÖÅà ±¸Á¶ ö±ÙÄÜÅ©¸®Æ®±¸Á¶
Âø°øÀÏÀÚ 2003.10.29 »ç¿ë½ÂÀÎÀÏÀÚ 2005.12.15
°ÇÃ๰Ãþº°ÇöȲ [º¸±â]


µî±âºÎµîº» ¿ä¾à(°Ç¹°)

  Á¢¼öÀÏÀÚ µî±â¸ñÀû/±Ç¸®ÀÚ ±Ç¸®±Ý¾× ±âÁØ
1 2006³â3¿ù3ÀÏ
¼ÒÀ¯±Ç
±èOO
¼Ò¸ê
2 2024³â7¿ù15ÀÏ
ÀÓÂ÷±Ç¼³Á¤
ÀÌOO
320,000,000 Àμö
3 2025³â10¿ù27ÀÏ
°­Á¦°æ¸Å
ÁÖOOOO
¼Ò¸ê±âÁØ
4 2026³â1¿ù30ÀÏ
¾Ð·ù
ÆÄOO
¼Ò¸ê

ÀÓÂ÷ÀÎÇöȲ (¹è´ç¿ä±¸Á¾±âÀÏ: 2026-01-19)

ÀÓÂ÷ÀÎ ¿ëµµ/Á¡À¯ º¸Áõ±Ý/¿ù¼¼ ´ëÇ×·Â
ÀüÀÔÀÏ/È®Á¤ÀÏ ¹è´ç¿ä±¸ ºñ°í
ÀÌOO 1205È£ 320,000,000
O
2022.7.1.
2022.7.1.
2026.1.15. 2022.7.1.~2024.6.30.
ºñ°í
(¸Å°¢¹°°Ç
¸í¼¼¼­)
À̰æÈ­ : ÀÓ´ëÂ÷º¸Áõ±Ý¹Ýȯä±Ç ½Åûä±ÇÀÚ ÁÖÅõµ½Ãº¸Áõ°ø»ç¿¡°Ô ¾çµµ

¾ÆÆÄÆ® Á¤º¸

ÁÖ¼Ò
½Ã°ø»ç ´ÜÁö±Ô¸ð 6°³µ¿ ¼¼´ë
³­¹æ »ç¿ë½ÂÀÎ
°ü¸®¼Ò
Àü¿ë¸éÀû ¼¼´ë¼ö
´ëÁö±Ç
Çö°ü/±¸Á¶ ½Ä / ¹æ, ¿å½Ç
  • Çб³
  • ÁÖº¯½Ã¼³
  • ´ëÁß±³Åë

¿©ÀÇÁÖ°æ¸Å Á¶¾ð ÇÑ ¸¶µð

¼±¼øÀ§ ÀÓÂ÷±Çµî±â°¡ µÇ¾î ÀÖ½À´Ï´Ù
´ëÇ×·ÂÀÌ ÀÖ´Â ¼±¼øÀ§ ÀÓÂ÷±Çµî±â ±Ç¸®ÀÚ°¡ ¹è´çÀ» Àü¾× ¹ÞÁö ¸øÇÒ °æ¿ì ³«ÂûÀÚ°¡ ÀÜ¿© º¸Áõ±ÝÀ» ÀμöÇØ¾ßÇÏ´Â °æ¿ìµµ ÀÖ½À´Ï´Ù.

ÁÖÀÇ»çÇ× (ÃÖ¼±¼øÀ§ ¼³Á¤ÀÏ: 2025.10.27. °³½Ã°áÁ¤ ¼³Á¤)

¸Å°¢À¸·Î ¼Ò¸êµÇÁö ¾Ê´Â µî±âºÎ±Ç¸®: ¸Å¼öÀο¡°Ô ´ëÇ×ÇÒ ¼ö ÀÖ´Â À»±¸ 5¹ø ÀÓÂ÷±Çµî±â(ÀÓ´ëÂ÷º¸Áõ±Ý 320,000,000¿ø, ÀüÀÔÀÏÀÚ 2022. 7. 1. È®Á¤ÀÏÀÚ 2022.7.1.)°¡ ÀÖ À¸¹Ç·Î ¹è´ç¿¡¼­ Àü¾× º¯Á¦µÇÁö ¾Æ´ÏÇϸé Àܾ×Àº ¸Å¼öÀο¡°Ô ÀμöµÉ ¼ö ÀÖÀ½.
¸Å°¢À¸·Î ¼³Á¤µÈ °ÍÀ¸·Î º¸´Â Áö»ó±Ç: ÇØ´ç»çÇ×¾øÀ½
¡Ø¹Ì³³°ü¸®ºñ(°ø¿ë) Àμö¿©ºÎ¸¦ ÀÔÂû Àü¿¡ È®ÀÎÇϽñ⠹ٶø´Ï´Ù

 

Áö¿ªºÐ¼®

ÁöÇÏö¸í Á÷¼±°Å¸®

Çб³¸í ÀüÈ­¹øÈ£ ÁÖ¼Ò Á÷¼±°Å¸®

¹ý¿ø

ÀÇÁ¤ºÎÁö¹æ¹ý¿ø °í¾çÁö¿ø (104-13)°æ±âµµ °í¾ç½Ã Àϻ굿±¸ Àå¹é·Î 209
´ëÇ¥ : 031)920-6114, ¾ß°£ : 031)920-6550, ÆÑ½º : 031)920-6119
°üÇÒÁö¿ª : °í¾ç½Ã, ÆÄÁÖ½Ã

µî±â¼Ò ÀÇÁ¤ºÎÁö¹æ¹ý¿ø °í¾çÁö¿ø ÆÄÁÖµî±â¼Ò (´ëÇ¥:1544-0773, ÆÑ½º:(031)945-4764, 3628, °æ±âµµ ÆÄÁֽà ±ÝÁ¤·Î 45 (±ÝÃ̵¿ 947-28))
¼¼¹«¼­ ÆÄÁÖ¼¼¹«¼­ (´ëÇ¥:031-956-02, ÆÑ½º:031-957-0315, °æ±âµµ ÆÄÁֽà ±Ý¸ª¿ª·Î 62 (±ÝÃ̵¿))

Àαٳ«ÂûÅë°è

±â°£ ¸Å°¢°Ç¼ö Æò±Õ°¨Á¤°¡
Æò±Õ¸Å°¢°¡
¸Å°¢°¡À²
Æò±ÕÀ¯Âû¼ö


º» °æ¸ÅÁ¤º¸´Â ¹ý¿øÀÚ·á¿Í ÀÏÄ¡Çϵµ·Ï ÇÏ¿´À¸³ª ±Ç¸®»çÇ׺¯µ¿, ÀÔ·ÂÂø¿À µîÀÇ ¿øÀÎÀ¸·Î »ç½Ç°ú ´Ù¸¦ ¼ö ÀÖ½À´Ï´Ù. ÀÌ¿ë¾à°ü¿¡ ÀǰЏéÃ¥Á¶°ÇÀ¸·Î Á¦°øµÊÀ» ¾Ë¸®¸ç, °æ¸ÅÀÔÂû½Ã ¹Ýµå½Ã °ü·Ã °øºÎ¸¦ ÀçÈ®ÀÎÇϽñ⠹ٶø´Ï´Ù. º¸´Ù Æí¸®ÇÑ °æ¸ÅÁ¤º¸ Á¦°øÀ» À§ÇØ Áö¼ÓÀûÀ¸·Î °³¼±ÇϰڽÀ´Ï´Ù. ÀÌ¿ëÇØ Áּż­ °¨»çÇÕ´Ï´Ù.