·Î±×ÀÎ
238
¿ÀÇǽºÅÚ
ÀÎõÁö¹æ¹ý¿ø ºÎõÁö¿ø
 °¨Á¤°¡110,000,000 ¿ø
 ÃÖÀú°¡(49%) 53,900,000 ¿ø
 º¸Áõ±Ý(10%) 5,390,000 ¿ø
 Ã»±¸¾×108,000,000 ¿ø
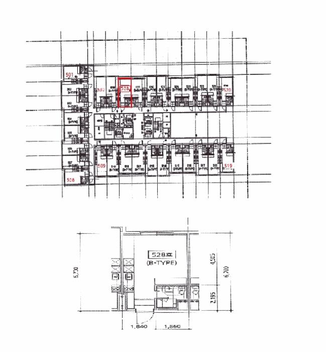
°æ±âµµ ±èÆ÷½Ã ±¸·¡µ¿ 6878-7 ÁßÀ϶óÅ©¸®¿ò 5Ãþ 528È£
»ç°Ç¹øÈ£ 2025Ÿ°æ33118
°æ¸ÅÁ¾·ùºÎµ¿»ê°­Á¦°æ¸Å
¸Å°¢´ë»óÅäÁö ¹× °Ç¹°Àϰý ¸Å°¢
¸Å°¢±âÀÏ    2026.06.10(¼ö) 10:00 ÀÔÂû 14ÀÏÀü    
ÅäÁö¸éÀû6.17§³(1.87 Æò)
°Ç¹°¸éÀû21.27§³(6.44 Æò)
乫/¼ÒÀ¯ÀÚÀÌOO / ÀÌOO
ä±ÇÀÚÁÖOOOOOOO
ÆäÀ̽ººÏ Æ®À§ÅÍ ±¸±Û+
īī¿À½ºÅ丮
īī¿ÀÅå sms¹®ÀÚº¸³»±â
 

±âÀϳ»¿ª

°æ°ú ³¯Â¥ Àú°¨ ÃÖÀú°¡ °á°ú
Á¢¼öÀÏ 2025-03-27 °æ¸ÅÁ¢¼ö
~1ÀÏ 
2025-03-28 °æ¸Å°³½Ã°áÁ¤
~68ÀÏ 
2025-06-03 ¹è´ç¿ä±¸Á¾±âÀÏ
~356ÀÏ 
2026-03-18 100%
110,000,000
À¯Âû
~398ÀÏ 
2026-04-29 70%
77,000,000
À¯Âû
~440ÀÏ 
2026-06-10 49%
53,900,000
ÁøÇà
¹°°Ç¸í¼¼¼­ ÇöȲÁ¶»ç¼­ ¹®°ÇÁ¢¼ö ¼Û´Þ³»¿ª

°¨Á¤Æò°¡ÇöȲ

¸ñ·Ï ÁÖ¼Ò ±¸Á¶/¿ëµµ/´ëÁö±Ç ¸éÀû ºñ°í
´ëÁö±Ç
±¸·¡µ¿ 6878-7 3048.2ºÐÀÇ 6.17 6.17 §³
(1.87Æò)
°Ç¹°
±¸·¡µ¿ 6878-7 5Ãþ 528È£ ö±ÙÄÜÅ©¸®Æ®±¸Á¶ 21.273 §³
(6.44Æò)
1) À§Ä¡/ÀϹݻó¾÷Áö¿ª/Á¦1Á¾Áö±¸´ÜÀ§°èȹ±¸¿ª/¹ö½ºÁ¤·ùÀå/Á¦¹ÝÂ÷·® ÃâÀÔ/ö±ÙÄÜÅ©¸®Æ®±¸Á¶ ´õº¸±â
°¨Á¤Æò°¡ ¿äÇ×Ç¥
1)À§Ä¡ ¹× ÁÖÀ§È¯°æ
º»°ÇÀº °æ±âµµ ±èÆ÷½Ã ±¸·¡µ¿ ¼ÒÀç ÇѰ¡¶÷ÃʵîÇб³ ³²¼­Ãø Àαٿ¡ À§Ä¡Çϸç ÁÖº¯Àº ¾ÆÆÄÆ®, ¿ÀÇǽºÅÚ, ±Ù¸°»ýȰ½Ã¼³, ¼Ò±Ô¸ð °øÀå µîÀÌ ¼ÒÀçÇϰí ÀÖÀ½.
2)±³Åë»óȲ
º»°Ç±îÁö Á¦¹ÝÂ÷·® ÃâÀÔ °¡´ÉÇϰí Àαٿ¡ ¹ö½ºÁ¤·ùÀåÀÌ ¼ÒÀçÇÏ¸ç µ¿Ãø ±Ù°Å¸®¿¡ ±èÆ÷°ñµå¶óÀÎ ±¸·¡¿ª ¹× ¼­Ãø Àαٿ¡ ¾çÃÌ¿ªÀÌ ¼ÒÀçÇϰí ÀÖ´Â µî Á¦¹Ý ±³Åë»çÁ¤Àº ¹«³­ÇÑ ÆíÀÓ.
3)°Ç¹°ÀÇ ±¸Á¶
ö±ÙÄÜÅ©¸®Æ®±¸Á¶ ö±ÙÄÜÅ©¸®Æ®ÆòÁöºØÀÇ 15Ãþ °Ç¹°ÀÌ¸ç »ç¿ë½ÂÀÎÀÏÀº 2021-04-08 ÀÓ.
¿Üº® : ¼®ÀçºÙÀÓ, ÆäÀÎÆ® ¸¶°¨ µî
³»¸è : ÆäÀÎÆ® ¸¶°¨ µî
âȣ : »ñ½ÃâÀÓ.
4)ÀÌ¿ë»óÅÂ
¿ÀÇǽºÅÚ·Î ÀÌ¿ëÁßÀÓ.
(* º°Ã· ³»ºÎ±¸Á¶µµ ÂüÁ¶)
5)¼³ºñ³»¿ª
À§»ý ¹× ±Þ¹è¼ö ¼³ºñ, ½Â°­±â ¼³ºñ, ¼ÒÈ­ ¼³ºñ µî µÇ¾î ÀÖÀ½.
6)ÅäÁöÀÇ Çü»ó ¹× ÀÌ¿ë»óÅÂ
°¡ÀåÇüÀÇ ÅäÁö·Î¼­ ¾÷¹«½Ã¼³ ¹× Á¦1.2Á¾±Ù¸°»ýȰ½Ã¼³ÀÇ °ÇºÎÁö·Î ÀÌ¿ëÁßÀÓ.
7)ÀÎÁ¢ µµ·Î»óŵî
¼­ÃøÀ¸·Î ¾à 35m µµ·Î, µ¿ÃøÀ¸·Î ¾à 15m µµ·Î¿¡ °¢°¢ Á¢ÇÔ.
8)ÅäÁöÀÌ¿ë°èȹ ¹× Á¦ÇÑ»óÅÂ
ÀϹݻó¾÷Áö¿ª, Á¦1Á¾Áö±¸´ÜÀ§°èȹ±¸¿ª(±èÆ÷ÇѰ­½Åµµ½Ã), ´ë·Î2·ù(Æø 30m~35m)(Á¢ÇÕ), Áß·Î2·ù(Æø 15m~20m)(Á¢ÇÕ), °¡Ãà»çÀ°Á¦Çѱ¸¿ª(¸ðµçÃàÁ¾ Á¦ÇÑ)<°¡ÃàºÐ´¢ÀÇ °ü¸® ¹× À̿뿡 °üÇÑ ¹ý·ü>, ¼ºÀå°ü¸®±Ç¿ª<¼öµµ±ÇÁ¤ºñ°èȹ¹ý>, öµµº¸È£Áö±¸<öµµ¾ÈÀü¹ý>, ÅÃÁö°³¹ßÁö±¸(±èÆ÷½Åµµ½ÃÅÃÁö°³¹ß)<ÅÃÁö°³¹ßÃËÁø¹ý>, Çϼö󸮱¸¿ª(¾çÃÌ󸮺б¸)<Çϼöµµ¹ý>
9)°øºÎ¿ÍÀÇ Â÷ÀÌ
--
10)±âŸÂü°í»çÇ×(ÀÓ´ë°ü·Ê ¹× ±âŸ)
¹Ì»óÀÓ.

°ÇÃ๰ÇöȲ

¼ÒÀçÁö °æ±âµµ ±èÆ÷½Ã ±¸·¡µ¿ 6878-7¹øÁö
´ëÁö¸éÀû 3048.2§³
(923.7Æò)
¿¬¸éÀû 26015.646§³
(7883.53Æò)
°ÇÃà¸éÀû 1820.83§³
(551.77Æò)
¿ëÀû·ü»êÁ¤
¿¬¸éÀû
15190.719§³
(4603.25Æò)
°ÇÆóÀ² 59.73% ¿ëÀû·ü 498.35%
Áö»óÃþ¼ö 15Ãþ ÁöÇÏÃþ¼ö 4Ãþ
ÁÖ¿ëµµ ¾÷¹«½Ã¼³ ±¸Á¶ ö±ÙÄÜÅ©¸®Æ®±¸Á¶
Âø°øÀÏÀÚ 2018.08.14 »ç¿ë½ÂÀÎÀÏÀÚ 2021.04.08
°ÇÃ๰Ãþº°ÇöȲ [º¸±â]


±¹ÅäºÎ½Ç°Å·¡°¡ °æ±âµµ ±èÆ÷½Ã ±¸·¡µ¿

¡Ü ¸Å¸Å

¸éÀû(§³), ±Ý¾×(¸¸¿ø)

¡Ü Àü¼¼

¸éÀû(§³), ±Ý¾×(¸¸¿ø)

°è¾àÀϰǹ°¸íĪÃþÀü¿ëº¸Áõ±Ý¿ù¼¼°ÇÃà
26.05.16ÁßÀÏ ¶óÅ©¸®¿ò420.69150552021
26.05.12ÁßÀÏ ¶óÅ©¸®¿ò520.697,65002021
26.05.09ÁßÀÏ ¶óÅ©¸®¿ò621.277,65002021
26.05.09ÁßÀÏ ¶óÅ©¸®¿ò1220.69300502021
26.05.01ÁßÀÏ ¶óÅ©¸®¿ò1421.279,00002021
¢Ñ ´õº¸±â

µî±âºÎµîº» ¿ä¾à(°Ç¹°)

  Á¢¼öÀÏÀÚ µî±â¸ñÀû/±Ç¸®ÀÚ ±Ç¸®±Ý¾× ±âÁØ
1 2022³â3¿ù29ÀÏ
¼ÒÀ¯±Ç
ÀÌOO
¼Ò¸ê
2 2022³â8¿ù26ÀÏ
¾àÁ¤/±ÝÁö»çÇ×/ȯ¸ÅƯ¾à
Àμö
3 2024³â4¿ù8ÀÏ
ÀÓÂ÷±Ç¼³Á¤
ÇÔOO
108,000,000 Àμö
4 2024³â6¿ù11ÀÏ
¾Ð·ù
±¹
¼Ò¸ê±âÁØ
5 2024³â10¿ù31ÀÏ
¾Ð·ù
ºÎOO
¼Ò¸ê
6 2025³â3¿ù28ÀÏ
°­Á¦°æ¸Å
ÁÖOOOO
¼Ò¸ê

ÀÓÂ÷ÀÎÇöȲ (¹è´ç¿ä±¸Á¾±âÀÏ: 2025-06-03)

ÀÓÂ÷ÀÎ ¿ëµµ/Á¡À¯ º¸Áõ±Ý/¿ù¼¼ ´ëÇ×·Â
ÀüÀÔÀÏ/È®Á¤ÀÏ ¹è´ç¿ä±¸ ºñ°í
±èOO
X
2024.09.03
ÁÖOOOOOOOOOOOOOOO ÀüºÎ 108,000,000
O
2022.03.29.
2022.03.16.
2025.5.30. 2022.03.29.~2024.03.28.
ÇÔOO ÀüºÎ 108,000,000
O
2022.03.29.
2022.03.16.
2022.03.29.
ºñ°í
(¸Å°¢¹°°Ç
¸í¼¼¼­)
ÇÔÀ¯¸²: ÁÖÅÃÀÓÂ÷±Çµî±â±Ç¸®Àڷμ­ ÁÖÅÃÀÓÂ÷±Çµî±âÀÏÀº 2024. 4. 8.ÀÓ ÁÖÅõµ½Ãº¸Áõ°ø»ç: °æ¸Å½Åûä±ÇÀÚÀ̰í ÀÓÂ÷ÀÎ ÇÔÀ¯¸²ÀÇ ÀÓÂ÷º¸Áõ±Ý¹Ýȯä±Ç ¾ç¼öÀÎÀ¸·Î¼­, º¸Áõ±Ý Àü¾×À» ¹è´ç¹ÞÁö ¸øÇÏ´õ¶ó µµ ÀÜÁ¸ ÀÓÂ÷º¸Áõ±Ý¹Ýȯä±ÇÀ» Æ÷±âÇϰí ÁÖÅÃÀÓÂ÷±Çµî±â ¸»¼Ò¿¡ µ¿ÀÇÇÑ´Ù´Â ÃëÁöÀÇ È®¾à¼­¸¦ Á¦ÃâÇÔ

¿©ÀÇÁÖ°æ¸Å Á¶¾ð ÇÑ ¸¶µð

¼±¼øÀ§ ÀÓÂ÷±Çµî±â°¡ µÇ¾î ÀÖ½À´Ï´Ù
´ëÇ×·ÂÀÌ ÀÖ´Â ¼±¼øÀ§ ÀÓÂ÷±Çµî±â ±Ç¸®ÀÚ°¡ ¹è´çÀ» Àü¾× ¹ÞÁö ¸øÇÒ °æ¿ì ³«ÂûÀÚ°¡ ÀÜ¿© º¸Áõ±ÝÀ» ÀμöÇØ¾ßÇÏ´Â °æ¿ìµµ ÀÖ½À´Ï´Ù.

ÁÖÀÇ»çÇ× (ÃÖ¼±¼øÀ§ ¼³Á¤ÀÏ: )

¸Å°¢À¸·Î ¼Ò¸êµÇÁö ¾Ê´Â µî±âºÎ±Ç¸®: À»±¸ ¼øÀ§ 1¹ø ÁÖÅÃÀÓÂ÷±Çµî±â(´Ù¸¸ ÁÖÅõµ½Ãº¸Áõ°ø»çÀÇ ¸»¼Òµ¿ÀÇ È®¾à¼­°¡ Á¦ÃâµÊ)
¸Å°¢À¸·Î ¼³Á¤µÈ °ÍÀ¸·Î º¸´Â Áö»ó±Ç:
¡Ø¹Ì³³°ü¸®ºñ(°ø¿ë) Àμö¿©ºÎ¸¦ ÀÔÂû Àü¿¡ È®ÀÎÇϽñ⠹ٶø´Ï´Ù

 

Áö¿ªºÐ¼®

ÁöÇÏö¸í Á÷¼±°Å¸®

Çб³¸í ÀüÈ­¹øÈ£ ÁÖ¼Ò Á÷¼±°Å¸®

¹ý¿ø

ÀÎõÁö¹æ¹ý¿ø ºÎõÁö¿ø (146-02)°æ±âµµ ºÎõ½Ã ¿ø¹Ì±¸ »óÀÏ·Î 129(»óµ¿)
´ëÇ¥ : 032)320-1114, ¹Î¿ø : 032)320-1234
°üÇÒÁö¿ª : ºÎõ½Ã, ±èÆ÷½Ã

µî±â¼Ò ÀÎõÁö¹æ¹ý¿ø ºÎõÁö¿ø ±èÆ÷µî±â¼Ò (´ëÇ¥:1544-0773, ÆÑ½º:(031)982-6997, °æ±âµµ ±èÆ÷½Ã ºÀÈ­·Î 16 (»ç¿ìµ¿ 240-2))
¼¼¹«¼­ ±èÆ÷¼¼¹«¼­ (´ëÇ¥:031-980-32, ÆÑ½º:031-987-9932, °æ±âµµ ±èÆ÷½Ã ±èÆ÷ÇѰ­1·Î 22 (Àå±âµ¿))

Àαٳ«ÂûÅë°è

±â°£ ¸Å°¢°Ç¼ö Æò±Õ°¨Á¤°¡
Æò±Õ¸Å°¢°¡
¸Å°¢°¡À²
Æò±ÕÀ¯Âû¼ö
3°³¿ù 14°Ç 151,428,571¿ø
85,253,939¿ø
55%
2.9ȸ
6°³¿ù 22°Ç 146,500,000¿ø
87,262,538¿ø
60%
2.6ȸ
12°³¿ù 73°Ç 185,589,041¿ø
126,354,960¿ø
67%
2.1ȸ


º» °æ¸ÅÁ¤º¸´Â ¹ý¿øÀÚ·á¿Í ÀÏÄ¡Çϵµ·Ï ÇÏ¿´À¸³ª ±Ç¸®»çÇ׺¯µ¿, ÀÔ·ÂÂø¿À µîÀÇ ¿øÀÎÀ¸·Î »ç½Ç°ú ´Ù¸¦ ¼ö ÀÖ½À´Ï´Ù. ÀÌ¿ë¾à°ü¿¡ ÀǰЏéÃ¥Á¶°ÇÀ¸·Î Á¦°øµÊÀ» ¾Ë¸®¸ç, °æ¸ÅÀÔÂû½Ã ¹Ýµå½Ã °ü·Ã °øºÎ¸¦ ÀçÈ®ÀÎÇϽñ⠹ٶø´Ï´Ù. º¸´Ù Æí¸®ÇÑ °æ¸ÅÁ¤º¸ Á¦°øÀ» À§ÇØ Áö¼ÓÀûÀ¸·Î °³¼±ÇϰڽÀ´Ï´Ù. ÀÌ¿ëÇØ Áּż­ °¨»çÇÕ´Ï´Ù.