·Î±×ÀÎ
21
µµ½ÃÇü»ýȰÁÖÅÃ
¼­¿ïÁß¾ÓÁö¹æ¹ý¿ø
 °¨Á¤°¡646,000,000 ¿ø
 ÃÖÀú°¡(100%) 646,000,000 ¿ø
 º¸Áõ±Ý(10%) 64,600,000 ¿ø
 Ã»±¸¾×550,320,000 ¿ø
¼­¿ïƯº°½Ã ¼­Ãʱ¸ ¾çÀ絿 252 »ïÀÍÀÌ¿ÀÀÌ 6Ãþ604È£
»ç°Ç¹øÈ£ 2025Ÿ°æ102698
°æ¸ÅÁ¾·ùºÎµ¿»êÀÓÀǰæ¸Å
¸Å°¢´ë»óÅäÁö ¹× °Ç¹°Àϰý ¸Å°¢
¸Å°¢±âÀÏ    2026.03.17(È­) 10:00 ÀÔÂû 10ÀÏÀü    
ÅäÁö¸éÀû18.99§³(5.74 Æò)
°Ç¹°¸éÀû27.80§³(8.41 Æò)
乫/¼ÒÀ¯ÀÚÁÖOOO OOOOO / ÁÖOOO OOOOO
ä±ÇÀÚ½ÅOOOOOOO
ÆäÀ̽ººÏ Æ®À§ÅÍ ±¸±Û+
īī¿À½ºÅ丮
īī¿ÀÅå sms¹®ÀÚº¸³»±â
 

±âÀϳ»¿ª

°æ°ú ³¯Â¥ Àú°¨ ÃÖÀú°¡ °á°ú
Á¢¼öÀÏ 2025-04-14 °æ¸ÅÁ¢¼ö
~4ÀÏ 
2025-04-18 °æ¸Å°³½Ã°áÁ¤
~84ÀÏ 
2025-07-07 ¹è´ç¿ä±¸Á¾±âÀÏ
~337ÀÏ 
2026-03-17 100%
646,000,000
ÁøÇà
¹°°Ç¸í¼¼¼­ ÇöȲÁ¶»ç¼­ ¹®°ÇÁ¢¼ö ¼Û´Þ³»¿ª

°¨Á¤Æò°¡ÇöȲ

¸ñ·Ï ÁÖ¼Ò ±¸Á¶/¿ëµµ/´ëÁö±Ç ¸éÀû ºñ°í
´ëÁö±Ç
¾çÀ絿 252 379.7ºÐÀÇ 18.985 18.985 §³
(5.74Æò)
°Ç¹°
¾çÀ絿 252 6Ãþ604È£ ö±ÙÄÜÅ©¸®Æ®±¸Á¶ 27.8 §³
(8.41Æò)
1) À§Ä¡/µµ½ÃÁö¿ª/Á¦2Á¾ÀϹÝÁÖ°ÅÁö¿ª/Á¦1Á¾Áö±¸´ÜÀ§°èȹ±¸¿ª/¹ö½ºÁ¤·ùÀå/ÁöÇÏö/ö±ÙÄÜÅ©¸®Æ®±¸Á¶/Æò½º¶óºêÁöºØ ´õº¸±â
°¨Á¤Æò°¡ ¿äÇ×Ç¥
1)À§Ä¡ ¹× ÁÖÀ§È¯°æ
´ë»ó¹°°ÇÀº ¼­¿ïƯº°½Ã ¼­Ãʱ¸ ¾çÀ絿 ¼ÒÀç¡®¾ð³²°íµîÇб³¡¯ºÏ¼­Ãø Àαٿ¡ À§Ä¡Çϸç, ÁÖÀ§´Â
´Üµ¶ÁÖÅÃ, ´Ù¼¼´ëÁÖÅà ¹× ±Ù¸°»ýȰ½Ã¼³ µîÀÌ ¼ÒÀçÇÏ´Â µî ÁÖÀ§È¯°æÀº º¸ÅëÀÓ.
2)±³Åë»óȲ
´ë»ó¹°°Ç±îÁö Â÷·®ÀÇ Áø¡¤ÃâÀÔ °¡´ÉÇϸç Àαٿ¡ ³ë¼± ¹ö½ºÁ¤·ùÀå ¹× ÁöÇÏö¿ª µîÀÌ ¼ÒÀçÇÏ´Â
µî ±³Åë»óȲÀº º¸ÅëÀÓ.
3)°Ç¹°ÀÇ ±¸Á¶
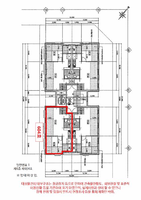
ö±ÙÄÜÅ©¸®Æ®±¸Á¶ Æò½º¶óºêÁöºØ 6Ãþ °Ç¹° ³» Á¦6Ãþ Á¦604È£·Î¼­,
¿Ü º® : ¼®ÀçºÙÀÓ ¸¶°¨ µî,
â È£ : »õ½Ã âȣ µîÀÓ.
4)ÀÌ¿ë»óÅÂ
ÀϷùøÈ£ 1Àº ¡®µµ½ÃÇü»ýȰÁÖÅá¯À¸·Î ÀÌ¿ëÁßÀÓ.
5)¼³ºñ³»¿ª
Åë»óÀÇ ±Þ¡¤¹è¼ö¼³ºñ ¹× À§»ý¼³ºñ, ³­¹æ¼³ºñ, ½Â°­±â¼³ºñ µîÀÌ µÇ¾îÀÖÀ½.




6)ÅäÁöÀÇ Çü»ó ¹× ÀÌ¿ë»óÅÂ
ÀÎÁ¢ÇÊÁö ´ëºñ µî°íÆòźÇÑ ¼¼ÀåÇü ÅäÁö·Î¼­, °ÇºÎÁö·Î ÀÌ¿ëÁßÀÓ.
7)ÀÎÁ¢ µµ·Î»óŵî
´ë»ó¹°°ÇÀÇ ºÏ¼­ÃøÀ¸·Î ³ëÆø ¾à 8¹ÌÅÍ, ºÏµ¿ÃøÀ¸·Î ³ëÆø ¾à 6¹ÌÅÍÀÇ µµ·Î¿¡ Á¢ÇÔ.
8)ÅäÁöÀÌ¿ë°èȹ ¹× Á¦ÇÑ»óÅÂ
µµ½ÃÁö¿ª, Á¦2Á¾ÀϹÝÁÖ°ÅÁö¿ª(7ÃþÀÌÇÏ), Á¦1Á¾Áö±¸´ÜÀ§°èȹ±¸¿ª(¾çÀçÅÃÁöÀÚ¼¼ÇÑ »çÇ×Àº µµ½Ã
°èȹ°ú º°µµÈ®ÀÎ ¿äÇÔ), Áö±¸´ÜÀ§°èȹ±¸¿ª(¾çÀçÅÃÁö), »ó´ëº¸È£±¸¿ª(ÅäÁöÀü»ê¸ÁÀÇ ³»¿ëÀº Âü
°í»çÇ×ÀÏ»Ó ±³À°Ã»¿¡ ¹Ýµå½Ã È®Àοä¸Á)<±³À°È¯°æ º¸È£¿¡ °üÇÑ ¹ý·ü>, ´ë°ø¹æ¾îÇùÁ¶±¸¿ª(À§Å¹
°íµµ:77-257m)<±º»ç±âÁö ¹× ±º»ç½Ã¼³ º¸È£¹ý>, °ú¹Ð¾ïÁ¦±Ç¿ª<¼öµµ±ÇÁ¤ºñ°èȹ¹ý>, ÅäÁö°Å·¡°è
¾à¿¡°üÇÑÇã°¡±¸¿ª(Çã°¡´ë»ó:°ÇÃ๰ÀÇ ¿ëµµ(¾ÆÆÄÆ®)·Î »ç¿ëµÇ´Â ºÎÁö, ÁöÁ¤±â°£:2025.3.24.~
2025.9.30.).
9)°øºÎ¿ÍÀÇ Â÷ÀÌ
¾øÀ½.
10)±âŸÂü°í»çÇ×(ÀÓ´ë°ü·Ê ¹× ±âŸ)
- ÀÓ´ë°ü°è ¹Ì»óÀÓ.

- ±âŸ ¾øÀ½.

°ÇÃ๰ÇöȲ

¼ÒÀçÁö ¼­¿ïƯº°½Ã ¼­Ãʱ¸ ¾çÀ絿 252¹øÁö
´ëÁö¸éÀû 379.7§³
(115.06Æò)
¿¬¸éÀû 659.72§³
(199.92Æò)
°ÇÃà¸éÀû 210.92§³
(63.92Æò)
¿ëÀû·ü»êÁ¤
¿¬¸éÀû
659.72§³
(199.92Æò)
°ÇÆóÀ² 55.55% ¿ëÀû·ü 173.75%
Áö»óÃþ¼ö 6Ãþ ÁöÇÏÃþ¼ö  
ÁÖ¿ëµµ °øµ¿ÁÖÅà ±¸Á¶ ö±ÙÄÜÅ©¸®Æ®±¸Á¶
Âø°øÀÏÀÚ 2021.02.22 »ç¿ë½ÂÀÎÀÏÀÚ 2021.09.29
°ÇÃ๰Ãþº°ÇöȲ [º¸±â]


µî±âºÎµîº» ¿ä¾à(°Ç¹°)

  Á¢¼öÀÏÀÚ µî±â¸ñÀû/±Ç¸®ÀÚ ±Ç¸®±Ý¾× ±âÁØ
1 2023³â6¿ù22ÀÏ
¼ÒÀ¯±Ç
(OOOO
¼Ò¸ê
2 2023³â6¿ù22ÀÏ
±ÙÀú´ç±Ç
(OOOO
550,320,000 ¼Ò¸ê±âÁØ
3 2025³â4¿ù9ÀÏ
°¡¾Ð·ù
±èOO
101,666,666 ¼Ò¸ê
4 2025³â4¿ù18ÀÏ
ÀÓÀǰæ¸Å
½ÅOOOO
¼Ò¸ê
5 2025³â5¿ù15ÀÏ
°¡¾Ð·ù
¹éOO
269,500,000 ¼Ò¸ê
6 2025³â5¿ù28ÀÏ
°¡¾Ð·ù
±èOOOO
126,000,000 ¼Ò¸ê

ÀÓÂ÷ÀÎÇöȲ (¹è´ç¿ä±¸Á¾±âÀÏ: 2025-07-07)



¸Å°¢±âÀÏ 7ÀÏÀü¿¡ ¸Å°¢¹°°Ç¸í¼¼¼­°¡ °ø°íµÇ¿À´Ï È®ÀÎÇϽñ⠹ٶø´Ï´Ù.

ÀÓÂ÷ÀÎ ¿ëµµ/Á¡À¯ º¸Áõ±Ý/¿ù¼¼ ´ëÇ×·Â
ÀüÀÔÀÏ/È®Á¤ÀÏ ¹è´ç¿ä±¸ ºñ°í
¹éOO
X
2025.01.21

¿©ÀÇÁÖ°æ¸Å Á¶¾ð ÇÑ ¸¶µð


ÁÖÀÇ»çÇ× (ÃÖ¼±¼øÀ§ ¼³Á¤ÀÏ: 2023.6.22. ±ÙÀú´ç ¼³Á¤)

¸Å°¢À¸·Î ¼Ò¸êµÇÁö ¾Ê´Â µî±âºÎ±Ç¸®:
¸Å°¢À¸·Î ¼³Á¤µÈ °ÍÀ¸·Î º¸´Â Áö»ó±Ç:
¡Ø¹Ì³³°ü¸®ºñ(°ø¿ë) Àμö¿©ºÎ¸¦ ÀÔÂû Àü¿¡ È®ÀÎÇϽñ⠹ٶø´Ï´Ù

 

Áö¿ªºÐ¼®

ÁöÇÏö¸í Á÷¼±°Å¸®

Çб³¸í ÀüÈ­¹øÈ£ ÁÖ¼Ò Á÷¼±°Å¸®

¹ý¿ø

¼­¿ïÁß¾ÓÁö¹æ¹ý¿ø (065-94)¼­¿ïƯº°½Ã ¼­Ãʱ¸ ¼­ÃÊÁß¾Ó·Î 157 (¼­Ãʵ¿)
´ëÇ¥ : 02)530-1114, ¾ß°£ : 02)530-1280/536-8003
°üÇÒÁö¿ª : Á¾·Î±¸, Áß±¸, °­³²±¸, ¼­Ãʱ¸, °ü¾Ç±¸, µ¿ÀÛ±¸

µî±â¼Ò ¼­¿ïÁß¾ÓÁö¹æ¹ý¿ø º»¿ø µî±â±¹ (´ëÇ¥:1544-0773, ÆÑ½º:(02)590-1881, ¼­¿ïƯº°½Ã ¼­Ãʱ¸ ¹ý¿ø·Î3±æ 14 (¼­Ãʵ¿ 1707-4))
¼¼¹«¼­ ¼­Ãʼ¼¹«¼­ (´ëÇ¥:02-3011-62, ÆÑ½º:02-563-8030, ¼­¿ïƯº°½Ã °­³²±¸ Å×Çì¶õ·Î 114 (¿ª»ïµ¿) ¿ª»ïºôµù 3,4Ãþ)

Àαٳ«ÂûÅë°è

±â°£ ¸Å°¢°Ç¼ö Æò±Õ°¨Á¤°¡
Æò±Õ¸Å°¢°¡
¸Å°¢°¡À²
Æò±ÕÀ¯Âû¼ö


º» °æ¸ÅÁ¤º¸´Â ¹ý¿øÀÚ·á¿Í ÀÏÄ¡Çϵµ·Ï ÇÏ¿´À¸³ª ±Ç¸®»çÇ׺¯µ¿, ÀÔ·ÂÂø¿À µîÀÇ ¿øÀÎÀ¸·Î »ç½Ç°ú ´Ù¸¦ ¼ö ÀÖ½À´Ï´Ù. ÀÌ¿ë¾à°ü¿¡ ÀǰЏéÃ¥Á¶°ÇÀ¸·Î Á¦°øµÊÀ» ¾Ë¸®¸ç, °æ¸ÅÀÔÂû½Ã ¹Ýµå½Ã °ü·Ã °øºÎ¸¦ ÀçÈ®ÀÎÇϽñ⠹ٶø´Ï´Ù. º¸´Ù Æí¸®ÇÑ °æ¸ÅÁ¤º¸ Á¦°øÀ» À§ÇØ Áö¼ÓÀûÀ¸·Î °³¼±ÇϰڽÀ´Ï´Ù. ÀÌ¿ëÇØ Áּż­ °¨»çÇÕ´Ï´Ù.