·Î±×ÀÎ
17
ÁÖÅÃ
¼ö¿øÁö¹æ¹ý¿ø
 °¨Á¤°¡1,274,785,600 ¿ø
 ÃÖÀú°¡(100%) 1,274,785,600 ¿ø
 º¸Áõ±Ý(10%) 127,478,560 ¿ø
 Ã»±¸¾×473,631,293 ¿ø
°æ±âµµ ¿ëÀνà ±âÈﱸ µ¿¹éµ¿ 75-268
»ç°Ç¹øÈ£ 2024Ÿ°æ13332
°æ¸ÅÁ¾·ùºÎµ¿»êÀÓÀǰæ¸Å
¸Å°¢´ë»óÅäÁö ¹× °Ç¹°Àϰý¸Å°¢
¸Å°¢±âÀÏ    2026.03.17(È­) 10:00 ÀÔÂû 11ÀÏÀü    
ÅäÁö¸éÀû640.00§³(193.60 Æò)
°Ç¹°¸éÀû244.31§³(73.90 Æò)
乫/¼ÒÀ¯ÀÚ¼ÕOO / ¼ÕOO
ä±ÇÀÚÀ¯OOOOOOOOOOOO OOOO(OOOO OOOO OOOO)
ÆäÀ̽ººÏ Æ®À§ÅÍ ±¸±Û+
īī¿À½ºÅ丮
īī¿ÀÅå sms¹®ÀÚº¸³»±â
 

±âÀϳ»¿ª

°æ°ú ³¯Â¥ Àú°¨ ÃÖÀú°¡ °á°ú
Á¢¼öÀÏ 2024-12-06 °æ¸ÅÁ¢¼ö
~3ÀÏ 
2024-12-09 °æ¸Å°³½Ã°áÁ¤
~76ÀÏ 
2025-02-20 ¹è´ç¿ä±¸Á¾±âÀÏ
~466ÀÏ 
2026-03-17 100%
1,274,785,600
ÁøÇà
¹°°Ç¸í¼¼¼­ ÇöȲÁ¶»ç¼­ ¹®°ÇÁ¢¼ö ¼Û´Þ³»¿ª

°¨Á¤Æò°¡ÇöȲ

¸ñ·Ï ÁÖ¼Ò ±¸Á¶/¿ëµµ/´ëÁö±Ç ¸éÀû ºñ°í
ÅäÁö
µ¿¹éµ¿ 75-268 ´ë 640 §³
(193.60Æò)
°Ç¹°
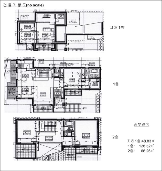
µ¿¹éµ¿ 75-268 ÁöÇÏ1Ãþ ÁÖÅà ö±ÙÄÜÅ©¸®Æ®Á¶ 48.83 §³
(14.77Æò)
µ¿¹éµ¿ 75-268 1Ãþ ÁÖÅà ö±ÙÄÜÅ©¸®Æ®Á¶ 128.52 §³
(38.88Æò)
µ¿¹éµ¿ 75-268 2Ãþ ÁÖÅà ö±ÙÄÜÅ©¸®Æ®Á¶ 66.96 §³
(20.26Æò)
1) À§Ä¡/µµ½ÃÁö¿ª/ÀÚ¿¬³ìÁöÁö¿ª/¹ö½ºÁ¤·ùÀå/ö±ÙÄÜÅ©¸®Æ®Á¶/°³º°³­¹æ ´õº¸±â
°¨Á¤Æò°¡ ¿äÇ×Ç¥
1)À§Ä¡ ¹× ÁÖÀ§È¯°æ
º»°ÇÀº °æ±âµµ ¿ëÀνà ±âÈﱸ µ¿¹éµ¿ ¼ÒÀç Ç⸰µ¿»ê ºÏµ¿Ãø ºÎºÐ¿¡ À§Ä¡Çϸç, ºÎ±ÙÀº Àü¿ø
ÁÖÅà ¹× ÁְųªÁöµéÀÌ È¥ÀçÇÏ´Â Àü¿øÁÖÅÃÁö´ëÀÓ.
2)±³Åë»óȲ
º»°Ç°¡Áö Â÷·® Á¢±Ù°¡´ÉÇϳª ¹ö½ºÁ¤·ùÀåÀÇ À§Ä¡ µîÀ» °í·ÁÇÒ ¶§ ´ëÁß±³Åë»çÁ¤Àº ºÒÆíÇÔ.
3)ÇüÅ ¹× ÀÌ¿ë»óÅÂ
»ç´Ù¸®ÇüÀÇ ±Þ°æ»çÁö·Î¼­ ´Üµ¶ÁÖÅà °ÇºÎÁö·Î ÀÌ¿ëÁßÀÓ.
4)ÀÎÁ¢ µµ·Î»óÅÂ
º»°Ç ³²µ¿ÃøÀ¸·Î ³ëÆø 4-10m µµ·Î¿¡ Á¢ÇÔ.
5)ÅäÁöÀÌ¿ë°èȹ ¹× Á¦ÇÑ»óÅÂ
µµ½ÃÁö¿ª, ÀÚ¿¬³ìÁöÁö¿ª, ¼ºÀå°ü¸®°èȹ±¸¿ª(ÁÖ°ÅÇü) °¡Ãà»çÀ°Á¦Çѱ¸¿ª<°¡ÃàºÐ´¢ÀÇ °ü¸® ¹×
À̿뿡 °üÇÑ ¹ý·ü>, ¼ºÀå°ü¸®±Ç¿ª<¼öµµ±ÇÁ¤ºñ°èȹ¹ý>
6)Á¦½Ã¸ñ·Ï ¿ÜÀÇ ¹°°Ç
¾øÀ½
7)°øºÎ¿ÍÀÇ Â÷ÀÌ
¾øÀ½
8)±âŸÂü°í»çÇ×(ÀÓ´ë°ü·Ê ¹× ±âŸ)
ÀÓ´ë°ü°è ¹Ì»óÀÓ.
1)°Ç¹°ÀÇ ±¸Á¶
ö±ÙÄÜÅ©¸®Æ®Á¶ ö±ÙÄÜ۸¬½½¶óºêÁöºØ 2Ãþ ´Üµ¶ÁÖÅÃÀ¸·Î¼­,
¿Üº®: Ä¡À庮µ¹ ½×±â
³»º®: º®Áö¸¶°¨ ¹× ÀÎÅ׸®¾î, ÀϺΠŸÀÏ ¸¶°¨.
âȣ: ¼¦½ÃâȣÀÓ.
¹Ù´Ú: ¸ñÀç ÆÇ³Ú¸¶°¨
2)ÀÌ¿ë»óÅÂ
´Üµ¶ÁÖÅÃÀ¸·Î ÀÌ¿ëÁßÀÓ.(ÈÄ¸é °Ç¹°°³£¿µµ ¹× »çÁø¿ëÁö ÂüÁ¶)
3)¼³ºñ³»¿ª
À§»ý ¹× ±Þ¹è¼ö¼³ºñ, ½É¾ßÀü±â º¸ÀÏ·¯ °³º°³­¹æ, ž籤¹ßÀü¼³ºñ µî ÀÖÀ½.
4)ºÎÇÕ¹° ¹× Á¾¹°
--
5)°øºÎ¿ÍÀÇ Â÷ÀÌ
--
6)±âŸÂü°í»çÇ×(ÀÓ´ë°ü·Ê ¹× ±âŸ)
ÀÓ´ë°ü°è ¹Ì»óÀÓ.
Âü°í
»çÇ×
Àϰý¸Å°¢. ¸ñ·Ï1. Áö»ó¿¡ ¼ÒÀçÇÏ´Â Á¶°æ¼ö(¼Ò³ª¹« 7~8ÁÖ, ÁÖ¸ñ 4~5ÁÖ¿Ü ±âŸ ¼ö¸ñ µî)Àº ÅäÁö°¡°Ý¿¡ Æ÷ÇÔÇÏ¿© Æò°¡ÇÔ. ¸ñ·Ï1. Áö»ó¿¡ ¼ÒÀçÇÏ´Â Á¶°æ¹° µîÀº Æò°¡ ¹× ¸Å°¢¿¡¼­ Á¦¿ÜÇÔ.
ÇØ´ç ºÎµ¿»êÀÇ ÇöȲÀº ¿Ü°ü»ó °øºÎÀÇ ³»¿ë°ú ÀÏÄ¡ÇÏ´Â °ÍÀ¸·Î º¸ÀÓ.

°ÇÃ๰ÇöȲ

¼ÒÀçÁö °æ±âµµ ¿ëÀνà ±âÈﱸ µ¿¹éµ¿ 75-268¹øÁö
´ëÁö¸éÀû 640§³
(193.94Æò)
¿¬¸éÀû 244.31§³
(74.03Æò)
°ÇÃà¸éÀû 130.62§³
(39.58Æò)
¿ëÀû·ü»êÁ¤
¿¬¸éÀû
195.48§³
(59.24Æò)
°ÇÆóÀ² 20.41% ¿ëÀû·ü 30.54%
Áö»óÃþ¼ö 2Ãþ ÁöÇÏÃþ¼ö 1Ãþ
ÁÖ¿ëµµ ´Üµ¶ÁÖÅà ±¸Á¶ ö±ÙÄÜÅ©¸®Æ®±¸Á¶
Âø°øÀÏÀÚ 2000.05.25 »ç¿ë½ÂÀÎÀÏÀÚ 2002.06.04
°ÇÃ๰Ãþº°ÇöȲ [º¸±â]


µî±âºÎµîº» ¿ä¾à(ÅäÁö)

  Á¢¼öÀÏÀÚ µî±â¸ñÀû/±Ç¸®ÀÚ ±Ç¸®±Ý¾× ±âÁØ
1 2002³â9¿ù26ÀÏ
¼ÒÀ¯±Ç
¼ÕOO
¼Ò¸ê
2 2002³â9¿ù26ÀÏ
±ÙÀú´ç±Ç
(OOOO
420,000,000 ¼Ò¸ê±âÁØ
3 2008³â10¿ù27ÀÏ
±ÙÀú´ç±Ç
(OOOO
132,000,000 ¼Ò¸ê
4 2024³â12¿ù9ÀÏ
ÀÓÀǰæ¸Å
(OOOO
¼Ò¸ê

µî±âºÎµîº» ¿ä¾à(°Ç¹°)

  Á¢¼öÀÏÀÚ µî±â¸ñÀû/±Ç¸®ÀÚ ±Ç¸®±Ý¾× ±âÁØ
1 2002³â9¿ù26ÀÏ
¼ÒÀ¯±Ç
¼ÕOO
¼Ò¸ê
2 2002³â9¿ù26ÀÏ
±ÙÀú´ç±Ç
(OOOO
420,000,000 ¼Ò¸ê±âÁØ
3 2008³â10¿ù27ÀÏ
±ÙÀú´ç±Ç
(OOOO
132,000,000 ¼Ò¸ê
4 2024³â12¿ù9ÀÏ
ÀÓÀǰæ¸Å
(OOOO
¼Ò¸ê

ÀÓÂ÷ÀÎÇöȲ (¹è´ç¿ä±¸Á¾±âÀÏ: 2025-02-20)



¸Å°¢±âÀÏ 7ÀÏÀü¿¡ °ø°íµÇ¿À´Ï È®ÀÎÇϽñ⠹ٶø´Ï´Ù.


¿©ÀÇÁÖ°æ¸Å Á¶¾ð ÇÑ ¸¶µð


ÁÖÀÇ»çÇ× (ÃÖ¼±¼øÀ§ ¼³Á¤ÀÏ: 2002.9.26. ±ÙÀú´ç±Ç ¼³Á¤)

¸Å°¢À¸·Î ¼Ò¸êµÇÁö ¾Ê´Â µî±âºÎ±Ç¸®:
¸Å°¢À¸·Î ¼³Á¤µÈ °ÍÀ¸·Î º¸´Â Áö»ó±Ç:
Àϰý¸Å°¢. ¸ñ·Ï1. Áö»ó¿¡ ¼ÒÀçÇÏ´Â Á¶°æ¼ö(¼Ò³ª¹« 7~8ÁÖ, ÁÖ¸ñ 4~5ÁÖ¿Ü ±âŸ ¼ö¸ñ µî)Àº ÅäÁö°¡°Ý¿¡ Æ÷ÇÔÇÏ¿© Æò°¡ÇÔ. ¸ñ·Ï1. Áö»ó¿¡ ¼ÒÀçÇÏ´Â Á¶°æ¹° µîÀº Æò°¡ ¹× ¸Å°¢¿¡¼­ Á¦¿ÜÇÔ.
¡Ø¹Ì³³°ü¸®ºñ(°ø¿ë) Àμö¿©ºÎ¸¦ ÀÔÂû Àü¿¡ È®ÀÎÇϽñ⠹ٶø´Ï´Ù

 

Áö¿ªºÐ¼®

ÁöÇÏö¸í Á÷¼±°Å¸®

Çб³¸í ÀüÈ­¹øÈ£ ÁÖ¼Ò Á÷¼±°Å¸®

¹ý¿ø

¼ö¿øÁö¹æ¹ý¿ø (165-12)°æ±âµµ ¼ö¿ø½Ã ¿µÅ뱸 ¹ýÁ¶·Î 105, Çϵ¿, ¼ö¿ø¹ý¿øÁ¾ÇÕû»ç
´ëÇ¥ : 031)210-1114, ¾ß°£ : 031)210-1111
°üÇÒÁö¿ª : ¼ö¿ø½Ã, ¿À»ê½Ã, È­¼º½Ã, ¿ëÀνÃ

µî±â¼Ò ¼ö¿øÁö¹æ¹ý¿ø º»¿ø ¿ëÀεî±â¼Ò (´ëÇ¥:1544-0773, ÆÑ½º:(031)321-3919, °æ±âµµ ¿ëÀνà óÀα¸ ¼º»ê·Î 7 (¿ªºÏµ¿ 391-28))
¼¼¹«¼­ ±âÈï¼¼¹«¼­ (´ëÇ¥:031-8007-1, ÆÑ½º:031-895-4902, °æ±âµµ ¿ëÀνà ±âÈﱸ Èï´ö2·Î117¹ø±æ 15(¿µ´öµ¿))

Àαٳ«ÂûÅë°è

±â°£ ¸Å°¢°Ç¼ö Æò±Õ°¨Á¤°¡
Æò±Õ¸Å°¢°¡
¸Å°¢°¡À²
Æò±ÕÀ¯Âû¼ö


º» °æ¸ÅÁ¤º¸´Â ¹ý¿øÀÚ·á¿Í ÀÏÄ¡Çϵµ·Ï ÇÏ¿´À¸³ª ±Ç¸®»çÇ׺¯µ¿, ÀÔ·ÂÂø¿À µîÀÇ ¿øÀÎÀ¸·Î »ç½Ç°ú ´Ù¸¦ ¼ö ÀÖ½À´Ï´Ù. ÀÌ¿ë¾à°ü¿¡ ÀǰЏéÃ¥Á¶°ÇÀ¸·Î Á¦°øµÊÀ» ¾Ë¸®¸ç, °æ¸ÅÀÔÂû½Ã ¹Ýµå½Ã °ü·Ã °øºÎ¸¦ ÀçÈ®ÀÎÇϽñ⠹ٶø´Ï´Ù. º¸´Ù Æí¸®ÇÑ °æ¸ÅÁ¤º¸ Á¦°øÀ» À§ÇØ Áö¼ÓÀûÀ¸·Î °³¼±ÇϰڽÀ´Ï´Ù. ÀÌ¿ëÇØ Áּż­ °¨»çÇÕ´Ï´Ù.