·Î±×ÀÎ
127
¾ÆÆÄÆ®
´ëÀüÁö¹æ¹ý¿ø õ¾ÈÁö¿ø
 °¨Á¤°¡228,000,000 ¿ø
 ÃÖÀú°¡(70%) 159,600,000 ¿ø
 º¸Áõ±Ý(10%) 15,960,000 ¿ø
 Ã»±¸¾×140,547,600 ¿ø
ÃæÃ»³²µµ õ¾È½Ã ¼­ºÏ±¸ ¹é¼®µ¿ 915 ÁÖ°ø±×¸°ºô 104µ¿ 2Ãþ205È£
»ç°Ç¹øÈ£ 2025Ÿ°æ12222
°æ¸ÅÁ¾·ùºÎµ¿»êÀÓÀǰæ¸Å
¸Å°¢´ë»óÅäÁö ¹× °Ç¹°Àϰý ¸Å°¢
¸Å°¢±âÀÏ    2026.04.20(¿ù) 10:00 ÀÔÂû 24ÀÏÀü    
ÅäÁö¸éÀû67.89§³(20.54 Æò)
°Ç¹°¸éÀû84.80§³(25.65 Æò)
乫/¼ÒÀ¯ÀÚÀ¯OO / À¯OO
ä±ÇÀÚÄÉOOOOOOOOOOOOOO OOOO(OOO OOOO OOOO)
ÆäÀ̽ººÏ Æ®À§ÅÍ ±¸±Û+
īī¿À½ºÅ丮
īī¿ÀÅå sms¹®ÀÚº¸³»±â
 

±âÀϳ»¿ª

°æ°ú ³¯Â¥ Àú°¨ ÃÖÀú°¡ °á°ú
Á¢¼öÀÏ 2025-08-13 °æ¸ÅÁ¢¼ö
~5ÀÏ 
2025-08-18 °æ¸Å°³½Ã°áÁ¤
~97ÀÏ 
2025-11-18 ¹è´ç¿ä±¸Á¾±âÀÏ
~215ÀÏ 
2026-03-16 100%
228,000,000
À¯Âû
~250ÀÏ 
2026-04-20 70%
159,600,000
ÁøÇà
¹°°Ç¸í¼¼¼­ ÇöȲÁ¶»ç¼­ ¹®°ÇÁ¢¼ö ¼Û´Þ³»¿ª

°¨Á¤Æò°¡ÇöȲ

¸ñ·Ï ÁÖ¼Ò ±¸Á¶/¿ëµµ/´ëÁö±Ç ¸éÀû ºñ°í
´ëÁö±Ç
¹é¼®µ¿ 915 34371.7ºÐÀÇ 67.89 67.89 §³
(20.54Æò)
°Ç¹°
¹é¼®µ¿ 915 104µ¿ 2Ãþ205È£ ö±ÙÄÜÅ©¸®Æ®º®½ÄÁ¶ 84.80 §³
(25.65Æò)
1) À§Ä¡/µµ½ÃÁö¿ª/Á¦2Á¾ÀϹÝÁÖ°ÅÁö¿ª/Á¦1Á¾Áö±¸´ÜÀ§°èȹ±¸¿ª/¹ö½ºÁ¤·ùÀå/Â÷·®ÀÇ Á¢±ÙÀÌ °¡´É/°æ»çÁöºØ/µµ½Ã°¡½º/¹æ3/¿å½Ç2 ´õº¸±â
°¨Á¤Æò°¡ ¿äÇ×Ç¥
1)À§Ä¡ ¹× ÁÖÀ§È¯°æ
º»°ÇÀº ÃæÃ»³²µµ õ¾È½Ã ¼­ºÏ±¸ ¹é¼®µ¿ ¼ÒÀç ""õ¾ÈÁ¾ÇտÀå"" ºÏµ¿Ãø Àαٿ¡ À§Ä¡ÇÏ´Â
ÁÖ°ø±×¸°ºô Á¦104µ¿ Á¦2Ãþ Á¦205È£·Î¼­, ÁÖÀ§´Â ¾ÆÆÄÆ®, ´Üµ¶ÁÖÅà ¹× ±×¸°»ýȰ½Ã¼³ µîÀÌ
È¥ÀçÇÏ´Â ÁÖ°ÅÁö´ë·Î¼­ Á¦¹Ý ÁÖÀ§È¯°æÀº º¸ÅëÀÓ.
2)±³Åë»óȲ
º»°Ç±îÁö Â÷·®ÀÇ Á¢±ÙÀÌ °¡´ÉÇϰí Àαٿ¡ ´ëÁß±³Åë¼ö´ÜÀÎ ¹ö½ºÁ¤·ùÀåÀÌ ¼ÒÀçÇÔ.
3)°Ç¹°ÀÇ ±¸Á¶
ö±ÙÄÜÅ©¸®Æ®º®½ÄÁ¶ °æ»çÁöºØ½½·¡ºê 15Ãþ ³» Á¦2Ãþ Á¦205È£
(»ç¿ë½ÂÀÎÀÏ : 2002. 12.03)
¿Üº® : ½Ã¸àÆ®¸ôÅ»À§ ÆäÀÎÆ® µî ¸¶°¨
³»º® : º®Áö ¹× ŸÀÏ µî ¸¶°¨
¹Ù´Ú : ÀåÆÇÁö ¹× ŸÀÏ µî ¸¶°¨
âȣ : »õ½Ã âȣÀÓ.
4)ÀÌ¿ë»óÅÂ
¾ÆÆÄÆ®·Î ÀÌ¿ëÁßÀÓ.
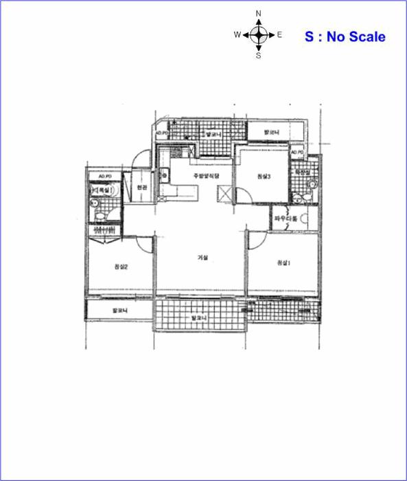
(¹æ3, ¿å½Ç2, °Å½Ç, ÁÖ¹æ, ¹ßÄÚ´Ï µî)
5)¼³ºñ³»¿ª
µµ½Ã°¡½º¿¡ ÀÇÇÑ ³­¹æ¼³ºñ, À§»ý ¹× ±Þ¹è¼ö¼³ºñ, ¼ÒÈ­Àü¼³ºñ, ½Â°­±â¼³ºñ µîÀÌ µÇ¾îÀÖÀ½.
6)ÅäÁöÀÇ Çü»ó ¹× ÀÌ¿ë»óÅÂ
ºÎÁ¤Çü ÆòÁöÀÇ ÅäÁö·Î¼­ ¾ÆÆÄÆ® °ÇºÎÁö·Î ÀÌ¿ëÁßÀÓ.
7)ÀÎÁ¢ µµ·Î»óŵî
º»°Ç ´ÜÁö ÁÖº¯À¸·Î Á¦¹Ýµµ·Î¿ÍÀÇ Á¢±ÙÀÌ °¡´ÉÇϰí, µµ·Î»óÅ ¹× ÁÖÂ÷¿©°ÇÀº º¸Åë½ÃµÊ.
8)ÅäÁöÀÌ¿ë°èȹ ¹× Á¦ÇÑ»óÅÂ
µµ½ÃÁö¿ª(õ¾Èµµ½ÃÁö¿ª) , Á¦2Á¾ÀϹÝÁÖ°ÅÁö¿ª , Á¦1Á¾Áö±¸´ÜÀ§°èȹ±¸¿ª ,
¼Ò·Î3·ù(Æø 8m ¹Ì¸¸)(¼Ò·Î3-1010, º¸ÇàÀÚÀü¿ëµµ·Î)(Á¢ÇÕ) , Áß·Î1·ù(Æø 20m~25m)(Á¢ÇÕ)
°¡Ãà»çÀ°Á¦Çѱ¸¿ª(Ÿ¹ý¿¡ÀÇÇÑÀüºÎÁ¦Çѱ¸¿ª)
<°¡ÃàºÐ´¢ÀÇ °ü¸® ¹× À̿뿡 °üÇÑ ¹ý·ü>, »ó´ëº¸È£±¸¿ª(õ¾È¹é¼®ÃʵîÇб³(»ó´ëÁ¤È­±¸¿ª))
<±³À°È¯°æ º¸È£¿¡ °üÇÑ ¹ý·ü>
9)°øºÎ¿ÍÀÇ Â÷ÀÌ
¾ø À½.
10)±âŸÂü°í»çÇ×(ÀÓ´ë°ü·Ê ¹× ±âŸ)
¾ø À½.
Âü°í
»çÇ×

ºÙÀÓ »çÁø°ú °°À½

°ÇÃ๰ÇöȲ

¼ÒÀçÁö ÃæÃ»³²µµ õ¾È½Ã ¼­ºÏ±¸ ¹é¼®µ¿ 915¹øÁö
´ëÁö¸éÀû   ¿¬¸éÀû 7690.494§³
(2330.45Æò)
°ÇÃà¸éÀû 812.907§³
(246.34Æò)
¿ëÀû·ü»êÁ¤
¿¬¸éÀû
7577.476§³
(2296.2Æò)
°ÇÆóÀ²   ¿ëÀû·ü  
Áö»óÃþ¼ö 14Ãþ ÁöÇÏÃþ¼ö 1Ãþ
ÁÖ¿ëµµ °øµ¿ÁÖÅà ±¸Á¶ ö±ÙÄÜÅ©¸®Æ®±¸Á¶
Âø°øÀÏÀÚ 2001.03.02 »ç¿ë½ÂÀÎÀÏÀÚ 2002.12.03
°ÇÃ๰Ãþº°ÇöȲ [º¸±â]


µî±âºÎµîº» ¿ä¾à(°Ç¹°)

  Á¢¼öÀÏÀÚ µî±â¸ñÀû/±Ç¸®ÀÚ ±Ç¸®±Ý¾× ±âÁØ
1 2019³â12¿ù18ÀÏ
¼ÒÀ¯±Ç
À¯OO
¼Ò¸ê
2 2019³â12¿ù18ÀÏ
±ÙÀú´ç±Ç
(OOOO
157,850,000 ¼Ò¸ê±âÁØ
3 2022³â2¿ù28ÀÏ
±ÙÀú´ç±Ç
(OOOO
111,600,000 ¼Ò¸ê
4 2025³â8¿ù18ÀÏ
ÀÓÀǰæ¸Å
ÄÉOOOO
¼Ò¸ê

ÀÓÂ÷ÀÎÇöȲ (¹è´ç¿ä±¸Á¾±âÀÏ: 2025-11-18)


Á¶»çµÈ ÀÓÂ÷³»¿ªÀÌ ¾ø½À´Ï´Ù


¾ÆÆÄÆ® Á¤º¸

ÁÖ¼Ò
½Ã°ø»ç ´ÜÁö±Ô¸ð 6°³µ¿ ¼¼´ë
³­¹æ »ç¿ë½ÂÀÎ
°ü¸®¼Ò
Àü¿ë¸éÀû ¼¼´ë¼ö
´ëÁö±Ç
Çö°ü/±¸Á¶ ½Ä / ¹æ, ¿å½Ç
  • Çб³
  • ÁÖº¯½Ã¼³
  • ´ëÁß±³Åë

¿©ÀÇÁÖ°æ¸Å Á¶¾ð ÇÑ ¸¶µð


ÁÖÀÇ»çÇ× (ÃÖ¼±¼øÀ§ ¼³Á¤ÀÏ: 2019. 12. 18.±ÙÀú´ç±Ç ¼³Á¤)

¸Å°¢À¸·Î ¼Ò¸êµÇÁö ¾Ê´Â µî±âºÎ±Ç¸®:
¸Å°¢À¸·Î ¼³Á¤µÈ °ÍÀ¸·Î º¸´Â Áö»ó±Ç:
¡Ø¹Ì³³°ü¸®ºñ(°ø¿ë) Àμö¿©ºÎ¸¦ ÀÔÂû Àü¿¡ È®ÀÎÇϽñ⠹ٶø´Ï´Ù

 

Áö¿ªºÐ¼®

ÁöÇÏö¸í Á÷¼±°Å¸®

Çб³¸í ÀüÈ­¹øÈ£ ÁÖ¼Ò Á÷¼±°Å¸®

¹ý¿ø

´ëÀüÁö¹æ¹ý¿ø Ãµ¾ÈÁö¿ø (311-98)ÃæÃ»³²µµ õ¾È½Ã µ¿³²±¸ û¼ö14·Î 77 (û´çµ¿ 476)
´ëÇ¥ : 041)620-3000, ¹Î¿ø : 041)620-3058
°üÇÒÁö¿ª : õ¾È½Ã, ¾Æ»ê½Ã

µî±â¼Ò ´ëÀüÁö¹æ¹ý¿ø Ãµ¾ÈÁö¿ø µî±â°ú (´ëÇ¥:1544-0773, ÆÑ½º:(041)530-0420, Ãæ³² õ¾È½Ã µ¿³²±¸ û¼ö14·Î 77 (û´çµ¿ 476))
¼¼¹«¼­ õ¾È¼¼¹«¼­ (´ëÇ¥:041-559-82, ÆÑ½º:041-555-9556, ÃæÃ»³²µµ õ¾È½Ã µ¿³²±¸ û¼ö14·Î 80 (û´çµ¿))

Àαٳ«ÂûÅë°è

±â°£ ¸Å°¢°Ç¼ö Æò±Õ°¨Á¤°¡
Æò±Õ¸Å°¢°¡
¸Å°¢°¡À²
Æò±ÕÀ¯Âû¼ö


º» °æ¸ÅÁ¤º¸´Â ¹ý¿øÀÚ·á¿Í ÀÏÄ¡Çϵµ·Ï ÇÏ¿´À¸³ª ±Ç¸®»çÇ׺¯µ¿, ÀÔ·ÂÂø¿À µîÀÇ ¿øÀÎÀ¸·Î »ç½Ç°ú ´Ù¸¦ ¼ö ÀÖ½À´Ï´Ù. ÀÌ¿ë¾à°ü¿¡ ÀǰЏéÃ¥Á¶°ÇÀ¸·Î Á¦°øµÊÀ» ¾Ë¸®¸ç, °æ¸ÅÀÔÂû½Ã ¹Ýµå½Ã °ü·Ã °øºÎ¸¦ ÀçÈ®ÀÎÇϽñ⠹ٶø´Ï´Ù. º¸´Ù Æí¸®ÇÑ °æ¸ÅÁ¤º¸ Á¦°øÀ» À§ÇØ Áö¼ÓÀûÀ¸·Î °³¼±ÇϰڽÀ´Ï´Ù. ÀÌ¿ëÇØ Áּż­ °¨»çÇÕ´Ï´Ù.