·Î±×ÀÎ
172
¿ÀÇǽºÅÚ
´ëÀüÁö¹æ¹ý¿ø õ¾ÈÁö¿ø
 °¨Á¤°¡153,000,000 ¿ø
 ÃÖÀú°¡(70%) 107,100,000 ¿ø
 º¸Áõ±Ý(10%) 10,710,000 ¿ø
 Ã»±¸¾×148,699,017 ¿ø
ÃæÃ»³²µµ ¾Æ»ê½Ã ¹è¹æÀ¾ ÀåÀ縮 1721 ÄھƷçÅ×Å©³ë½ÃƼ¿ÀÇǽºÅÚ 9Ãþ909È£
»ç°Ç¹øÈ£ 2025Ÿ°æ11836
°æ¸ÅÁ¾·ùºÎµ¿»ê°­Á¦°æ¸Å
¸Å°¢´ë»óÅäÁö ¹× °Ç¹°Àϰý ¸Å°¢
¸Å°¢±âÀÏ    2026.04.20(¿ù) 10:00 ÀÔÂû 1ÀÏÀü    
ÅäÁö¸éÀû6.04§³(1.83 Æò)
°Ç¹°¸éÀû33.66§³(10.18 Æò)
乫/¼ÒÀ¯ÀÚ°­OO / °­OO
ä±ÇÀÚÁÖOOOOOOO
ÆäÀ̽ººÏ Æ®À§ÅÍ ±¸±Û+
īī¿À½ºÅ丮
īī¿ÀÅå sms¹®ÀÚº¸³»±â
 

±âÀϳ»¿ª

°æ°ú ³¯Â¥ Àú°¨ ÃÖÀú°¡ °á°ú
Á¢¼öÀÏ 2025-05-30 °æ¸ÅÁ¢¼ö
~3ÀÏ 
2025-06-02 °æ¸Å°³½Ã°áÁ¤
~101ÀÏ 
2025-09-08 ¹è´ç¿ä±¸Á¾±âÀÏ
~290ÀÏ 
2026-03-16 100%
153,000,000
À¯Âû
~325ÀÏ 
2026-04-20 70%
107,100,000
ÁøÇà
¹°°Ç¸í¼¼¼­ ÇöȲÁ¶»ç¼­ ¹®°ÇÁ¢¼ö ¼Û´Þ³»¿ª

°¨Á¤Æò°¡ÇöȲ

¸ñ·Ï ÁÖ¼Ò ±¸Á¶/¿ëµµ/´ëÁö±Ç ¸éÀû ºñ°í
´ëÁö±Ç
ÀåÀ縮 1721 4226.4ºÐÀÇ 6.04429 6.04429 §³
(1.83Æò)
°Ç¹°
ÀåÀ縮 1721 9Ãþ909È£ ö±ÙÄÜÅ©¸®Æ®±¸Á¶ 33.66 §³
(10.18Æò)
1) À§Ä¡/µµ½ÃÁö¿ª/ÀϹݻó¾÷Áö¿ª/Áö±¸´ÜÀ§°èȹ±¸¿ª/ÁöÇÏÁÖÂ÷Àå/ö±ÙÄÜÅ©¸®Æ®±¸Á¶ ´õº¸±â
°¨Á¤Æò°¡ ¿äÇ×Ç¥
1)À§Ä¡ ¹× ÁÖÀ§È¯°æ
º»°Ç ¿ÀÇǽºÅÚÀº ÃæÃ»³²µµ ¾Æ»ê½Ã ¹è¹æÀ¾ ÀåÀ縮 ¼ÒÀç ""KTX õ¾È¾Æ»ê¿ª"" ºÏµ¿Ãø Àαٿ¡
À§Ä¡ÇÏ´Â ÄھƷçÅ×Å©³ë½ÃƼ¿ÀÇǽºÅÚ 9Ãþ 909È£·Î½á
ÁÖÀ§´Â °¢Á¾ ±Ù¸°»ýȰ½Ã¼³ ¹× ¿ÀÇǽºÅÚÀÌ ¼ÒÀçÇÏ´Â µî Á¦¹ÝÁÖÀ§È¯°æÀº º¸ÅëÀÎ ÆíÀÓ.
2)±³Åë»óȲ
º»°Ç±îÁö °¢Á¾ Â÷·® Á¢±ÙÀÌ ¿ëÀÌÇÏ°í ´ëÁß±³Åë¼ö´ÜÀÇ À̿뵵 º¸ÅëÀÎ ÆíÀÓ.
3)°Ç¹°ÀÇ ±¸Á¶
ö±ÙÄÜÅ©¸®Æ®±¸Á¶ (ö±Ù)ÄÜÅ©¸®Æ®ÁöºØ ÁöÇÏ5Ãþ, Áö»ó 20Ãþ °Ç¹° ³» 9Ãþ 909È£·Î
(»ç¿ë½ÂÀÎÀÏ : 2021.09.24)
¿Üº®Àº ÀϺΠÀÎÁ¶¼® ºÙÀÓ, ¼®Àç ºÙÀÓ, ¸ôÅ» À§ ÆäÀÎÆÃ
³»º®Àº º®Áö ¹× ¸ôÅ» À§ ÆäÀÎÆÃ
âȣ´Â ¼¦½Ã ÀÓ.
4)ÀÌ¿ë»óÅÂ
ÁýÇÕ°ÇÃ๰´ëÀå »ó ¾÷¹«½Ã¼³(¿ÀÇǽºÅÚ)ÀÓ
5)¼³ºñ³»¿ª
À§»ý ±Þ¹è¼ö ¼³ºñ, ³­¹æ¼³ºñ, ½Â°­±â ¼³ºñ, È­Àç ŽÁö ¼³ºñ, ÁöÇÏÁÖÂ÷Àå µî µÇ¾î ÀÖÀ½.
6)ÅäÁöÀÇ Çü»ó ¹× ÀÌ¿ë»óÅÂ
´ëü·Î °¡·ÎÀ广ÇüÀÇ ÅäÁö·Î ¿ÀÇǽºÅÚ °ÇºÎÁö·Î ÀÌ¿ëÁßÀÓ.
7)ÀÎÁ¢ µµ·Î»óŵî
¼­ÃøÀ¸·Î Æø ¾à 45m, ºÏÃøÀ¸·Î ¾à 20m, µ¿ÃøÀ¸·Î ¾à15mÀÇ Æ÷Àåµµ·Î¿¡ Á¢ÇÔ.
8)ÅäÁöÀÌ¿ë°èȹ ¹× Á¦ÇÑ»óÅÂ
µµ½ÃÁö¿ª , ÀϹݻó¾÷Áö¿ª , Áö±¸´ÜÀ§°èȹ±¸¿ª(¾Æ»ê¹è¹æ) , ±¤·Î3·ù(Æø 40m~50m)(Á¢ÇÕ) ,
Áß·Î1·ù(Æø 20m~25m)(Á¢ÇÕ) , Áß·Î2·ù(Æø 15m~20m)(Á¢ÇÕ)
°¡Ãà»çÀ°Á¦Çѱ¸¿ª(2021-07-22)(ÀüºÎÁ¦Çѱ¸¿ª)<°¡ÃàºÐ´¢ÀÇ °ü¸® ¹× À̿뿡 °üÇÑ ¹ý·ü>,
ÅÃÁö°³¹ßÁö±¸<ÅÃÁö°³¹ßÃËÁø¹ý>
ÁßÁ¡°æ°ü°ü¸®±¸¿ª(¾Æ»ê½Åµµ½Ã)
9)°øºÎ¿ÍÀÇ Â÷ÀÌ
¾ø À½.
10)±âŸÂü°í»çÇ×(ÀÓ´ë°ü·Ê ¹× ±âŸ)
¹Ì»óÀÓ

°ÇÃ๰ÇöȲ

¼ÒÀçÁö ÃæÃ»³²µµ ¾Æ»ê½Ã ¹è¹æÀ¾ ÀåÀ縮 1721¹øÁö
´ëÁö¸éÀû 4226.4§³
(1280.73Æò)
¿¬¸éÀû 50279.07§³
(15236.08Æò)
°ÇÃà¸éÀû 2573.27§³
(779.78Æò)
¿ëÀû·ü»êÁ¤
¿¬¸éÀû
33773.64§³
(10234.44Æò)
°ÇÆóÀ² 60.89% ¿ëÀû·ü 799.11%
Áö»óÃþ¼ö 20Ãþ ÁöÇÏÃþ¼ö 5Ãþ
ÁÖ¿ëµµ ¾÷¹«½Ã¼³ ±¸Á¶ ö±ÙÄÜÅ©¸®Æ®±¸Á¶
Âø°øÀÏÀÚ 2018.11.16 »ç¿ë½ÂÀÎÀÏÀÚ 2021.09.24
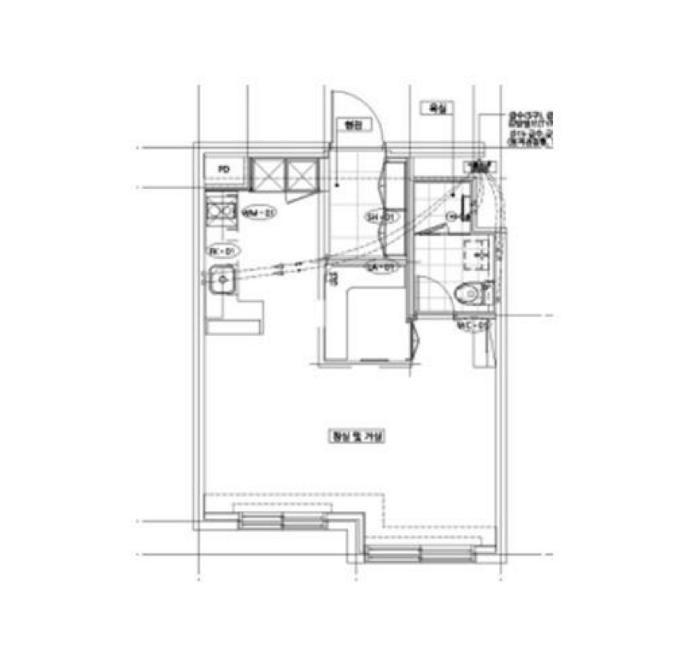
°ÇÃ๰Ãþº°ÇöȲ [º¸±â]


µî±âºÎµîº» ¿ä¾à(°Ç¹°)

  Á¢¼öÀÏÀÚ µî±â¸ñÀû/±Ç¸®ÀÚ ±Ç¸®±Ý¾× ±âÁØ
1 2021³â11¿ù26ÀÏ
¼ÒÀ¯±Ç
°­OO
¼Ò¸ê
2 2024³â9¿ù3ÀÏ
ÀÓÂ÷±Ç¼³Á¤
Á¶OO
144,000,000 Àμö
3 2025³â6¿ù2ÀÏ
°­Á¦°æ¸Å
ÁÖOOOO
¼Ò¸ê±âÁØ

ÀÓÂ÷ÀÎÇöȲ (¹è´ç¿ä±¸Á¾±âÀÏ: 2025-09-08)

ÀÓÂ÷ÀÎ ¿ëµµ/Á¡À¯ º¸Áõ±Ý/¿ù¼¼ ´ëÇ×·Â
ÀüÀÔÀÏ/È®Á¤ÀÏ ¹è´ç¿ä±¸ ºñ°í
Á¶OO °Ç¹°ÀÇÀüºÎ 144,000,000
O
2022.09.01.
2022.08.19.
2022.08.19.~
ºñ°í
(¸Å°¢¹°°Ç
¸í¼¼¼­)
Á¶¿µÃ¢:½Åûä±ÇÀÚ ÁÖÅõµ½Ãº¸Áõ°ø»ç´Â ÀÓÂ÷±ÇÀÚ Á¶¿µÃ¢ÀÇ ½Â°èÀÎÀÓ

¿©ÀÇÁÖ°æ¸Å Á¶¾ð ÇÑ ¸¶µð

¼±¼øÀ§ ÀÓÂ÷±Çµî±â°¡ µÇ¾î ÀÖ½À´Ï´Ù
´ëÇ×·ÂÀÌ ÀÖ´Â ¼±¼øÀ§ ÀÓÂ÷±Çµî±â ±Ç¸®ÀÚ°¡ ¹è´çÀ» Àü¾× ¹ÞÁö ¸øÇÒ °æ¿ì ³«ÂûÀÚ°¡ ÀÜ¿© º¸Áõ±ÝÀ» ÀμöÇØ¾ßÇÏ´Â °æ¿ìµµ ÀÖ½À´Ï´Ù.

ÁÖÀÇ»çÇ× (ÃÖ¼±¼øÀ§ ¼³Á¤ÀÏ: 2025. 6. 2. °æ¸Å°³½Ã°áÁ¤ ¼³Á¤)

¸Å°¢À¸·Î ¼Ò¸êµÇÁö ¾Ê´Â µî±âºÎ±Ç¸®: ¸Å¼öÀο¡°Ô ´ëÇ×ÇÒ ¼ö ÀÖ´Â À»±¸ ¼øÀ§ 1¹ø ÁÖÅÃÀÓÂ÷±Çµî±â(2024. 9. 3. Á¢¼ö Á¦55468È£)ÀÖÀ½(ÀÓ´ëÂ÷º¸Áõ±Ý 144,000,000¿ø, ÀüÀÔ ÀÏÀÚ 2022. 9. 1. È®Á¤ÀÏÀÚ 2022. 8. 19.) ¹è´ç¿¡¼­ º¸Áõ±ÝÀÌ Àü¾× º¯Á¦µÇÁö ¾Æ´ÏÇϸé Àܾ×À» ¸Å¼öÀÎÀÌ ÀμöÇÔ.
¸Å°¢À¸·Î ¼³Á¤µÈ °ÍÀ¸·Î º¸´Â Áö»ó±Ç:
Á¶¿µÃ¢:½Åûä±ÇÀÚ. ÁÖÅõµ½Ãº¸Áõ°ø»ç´Â ÀÓÂ÷±ÇÀÚ Á¶¿µÃ¢ÀÇ ½Â°èÀÎÀÓ
¡Ø¹Ì³³°ü¸®ºñ(°ø¿ë) Àμö¿©ºÎ¸¦ ÀÔÂû Àü¿¡ È®ÀÎÇϽñ⠹ٶø´Ï´Ù

 

Áö¿ªºÐ¼®

ÁöÇÏö¸í Á÷¼±°Å¸®

Çб³¸í ÀüÈ­¹øÈ£ ÁÖ¼Ò Á÷¼±°Å¸®

¹ý¿ø

´ëÀüÁö¹æ¹ý¿ø Ãµ¾ÈÁö¿ø (311-98)ÃæÃ»³²µµ õ¾È½Ã µ¿³²±¸ û¼ö14·Î 77 (û´çµ¿ 476)
´ëÇ¥ : 041)620-3000, ¹Î¿ø : 041)620-3058
°üÇÒÁö¿ª : õ¾È½Ã, ¾Æ»ê½Ã

µî±â¼Ò ´ëÀüÁö¹æ¹ý¿ø Ãµ¾ÈÁö¿ø ¾Æ»êµî±â¼Ò (´ëÇ¥:1544-0773, ÆÑ½º:(041)546-2695, Ãæ³² ¾Æ»ê½Ã ¿ëÈ­·Î76¹ø±æ 7 (¿ëÈ­µ¿ 970))
¼¼¹«¼­ ¾Æ»ê¼¼¹«¼­ (´ëÇ¥:041-536-72, ÆÑ½º:041-533-1351, ÃæÃ»³²µµ ¾Æ»ê½Ã ¹è¹æÀ¾ ¹è¹æ·Î 57-29(°ø¼ö¸® 280-5))

Àαٳ«ÂûÅë°è

±â°£ ¸Å°¢°Ç¼ö Æò±Õ°¨Á¤°¡
Æò±Õ¸Å°¢°¡
¸Å°¢°¡À²
Æò±ÕÀ¯Âû¼ö
3°³¿ù 4°Ç 111,500,000¿ø
74,090,000¿ø
70%
1.5ȸ
6°³¿ù 8°Ç 112,000,000¿ø
74,870,000¿ø
68%
1.6ȸ
12°³¿ù 14°Ç 143,142,857¿ø
68,975,000¿ø
54%
3.1ȸ


º» °æ¸ÅÁ¤º¸´Â ¹ý¿øÀÚ·á¿Í ÀÏÄ¡Çϵµ·Ï ÇÏ¿´À¸³ª ±Ç¸®»çÇ׺¯µ¿, ÀÔ·ÂÂø¿À µîÀÇ ¿øÀÎÀ¸·Î »ç½Ç°ú ´Ù¸¦ ¼ö ÀÖ½À´Ï´Ù. ÀÌ¿ë¾à°ü¿¡ ÀǰЏéÃ¥Á¶°ÇÀ¸·Î Á¦°øµÊÀ» ¾Ë¸®¸ç, °æ¸ÅÀÔÂû½Ã ¹Ýµå½Ã °ü·Ã °øºÎ¸¦ ÀçÈ®ÀÎÇϽñ⠹ٶø´Ï´Ù. º¸´Ù Æí¸®ÇÑ °æ¸ÅÁ¤º¸ Á¦°øÀ» À§ÇØ Áö¼ÓÀûÀ¸·Î °³¼±ÇϰڽÀ´Ï´Ù. ÀÌ¿ëÇØ Áּż­ °¨»çÇÕ´Ï´Ù.