·Î±×ÀÎ
124
ÁÖÅÃ
ÃáõÁö¹æ¹ý¿ø °­¸ªÁö¿ø
 °¨Á¤°¡321,418,000 ¿ø
 ÃÖÀú°¡(70%) 224,993,000 ¿ø
 º¸Áõ±Ý(10%) 22,499,300 ¿ø
 Ã»±¸¾×160,000,000 ¿ø
°­¿øÆ¯º°ÀÚÄ¡µµ °­¸ª½Ã °­µ¿¸é ¸ðÀü¸® 189-32
»ç°Ç¹øÈ£ 2025Ÿ°æ30596
°æ¸ÅÁ¾·ùºÎµ¿»êÀÓÀǰæ¸Å
¸Å°¢´ë»óÅäÁö ¹× °Ç¹°Àϰý¸Å°¢
¸Å°¢±âÀÏ    2026.04.20(¿ù) 10:00 ÀÔÂû 14ÀÏÀü    
ÅäÁö¸éÀû348.00§³(105.27 Æò)
°Ç¹°¸éÀû130.36§³(39.43 Æò)
乫/¼ÒÀ¯ÀÚ±èOO / ±èOO
ä±ÇÀÚ±èOO(OOOO OOO)
ÆäÀ̽ººÏ Æ®À§ÅÍ ±¸±Û+
īī¿À½ºÅ丮
īī¿ÀÅå sms¹®ÀÚº¸³»±â
 

±âÀϳ»¿ª

°æ°ú ³¯Â¥ Àú°¨ ÃÖÀú°¡ °á°ú
Á¢¼öÀÏ 2025-06-09 °æ¸ÅÁ¢¼ö
~1ÀÏ 
2025-06-10 °æ¸Å°³½Ã°áÁ¤
~94ÀÏ 
2025-09-11 ¹è´ç¿ä±¸Á¾±âÀÏ
~280ÀÏ 
2026-03-16 100%
321,418,000
À¯Âû
~315ÀÏ 
2026-04-20 70%
224,993,000
ÁøÇà
¹°°Ç¸í¼¼¼­ ÇöȲÁ¶»ç¼­ ¹®°ÇÁ¢¼ö ¼Û´Þ³»¿ª

°¨Á¤Æò°¡ÇöȲ

¸ñ·Ï ÁÖ¼Ò ±¸Á¶/¿ëµµ/´ëÁö±Ç ¸éÀû ºñ°í
ÅäÁö
¸ðÀü¸® 189-32 ´ë 348 §³
(105.27Æò)
°Ç¹°
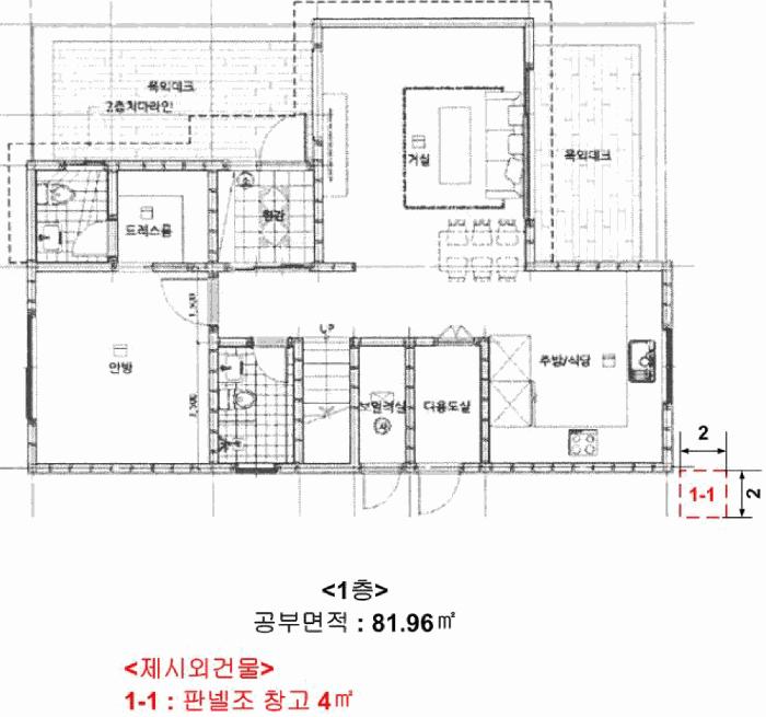
¸ðÀü¸® 189-32 1Ãþ ´Üµ¶ÁÖÅà ÀϹݸñ±¸Á¶ 81.96 §³
(24.79Æò)
¸ðÀü¸® 189-32 2Ãþ ´Üµ¶ÁÖÅà ÀϹݸñ±¸Á¶ 44.4 §³
(13.43Æò)
Á¦½Ã¿Ü
°Ç¹°
¸ðÀü¸® 189-32 â°í 4 §³
(1.21Æò)
Æ÷ÇÔ
1) À§Ä¡/°èȹ°ü¸®Áö¿ª/Â÷·®Á¢±ÙÀÌ °¡´É/°æ»çÁöºØ ´õº¸±â
°¨Á¤Æò°¡ ¿äÇ×Ç¥
1)À§Ä¡ ¹× ÁÖÀ§È¯°æ
°­¿øÆ¯º°ÀÚÄ¡µµ °­¸ª½Ã °­µ¿¸é ¸ðÀü¸® ¼ÒÀç ¡®°­µ¿ÃʵîÇб³¡¯ ³²µ¿Ãø ¿ø°Å¸®¿¡ À§Ä¡Çϸç ÁÖÀ§´Â ±¹µµÁÖº¯ ³ó°æÁö´ë·Î ȯ°æÀº º¸Åë.
2)±³Åë»óȲ
Â÷·®Á¢±ÙÀÌ °¡´ÉÇÏ°í ´ëÁß±³ÅëÀº º¸ÅëÀÓ.
3)ÇüÅ ¹× ÀÌ¿ë»óÅÂ
¼¼ÀåÇü ÆòÁö·Î ´Üµ¶ÁÖÅà °ÇºÎÁö.
4)ÀÎÁ¢ µµ·Î»óÅÂ
¼­ÃøÀ¸·Î ¿Õº¹2Â÷¼± µµ·Î¿¡ Á¢ÇÔ.
5)ÅäÁöÀÌ¿ë°èȹ ¹× Á¦ÇÑ»óÅÂ
°èȹ°ü¸®Áö¿ª, °¡Ãà»çÀ°Á¦Çѱ¸¿ª(2024-10-30)(¸ðµçÃàÁ¾ »çÀ°Á¦Çѱ¸¿ª)<°¡ÃàºÐ´¢ÀÇ °ü¸® ¹× À̿뿡 °üÇÑ ¹ý·ü>, ºñÇà¾ÈÀüÁ¦6±¸¿ª(Àü¼ú)<±º»ç±âÁö ¹× ±º»ç½Ã¼³ º¸È£¹ý>
6)Á¦½Ã¸ñ·Ï ¿ÜÀÇ ¹°°Ç
ÇØ´ç»çÇѾøÀ½.
7)°øºÎ¿ÍÀÇ Â÷ÀÌ
ÇØ´ç»çÇѾøÀ½.
8)±âŸÂü°í»çÇ×(ÀÓ´ë°ü·Ê ¹× ±âŸ)
-
1)°Ç¹°ÀÇ ±¸Á¶
¸ñ±¸Á¶ °æ»çÁöºØ 2Ãþ °Ç¹°·Î¼­,
¿Üº® : ÆäÀÎÆ®
³»º® : º®Áö ¹× ŸÀÏ
âȣ : »þ½Ãâȣ
2)ÀÌ¿ë»óÅÂ
´Üµ¶ÁÖÅÃ.
3)¼³ºñ³»¿ª
À§»ý¼³ºñ, ±Þ¹è¼ö¼³ºñ, ³­¹æ¼³ºñ.

4)ºÎÇÕ¹° ¹× Á¾¹°
1-1 : ÆÇ³ÚÁ¶ â°í 4§³
5)°øºÎ¿ÍÀÇ Â÷ÀÌ
ÇØ´ç»çÇ×¾øÀ½.
6)±âŸÂü°í»çÇ×(ÀÓ´ë°ü·Ê ¹× ±âŸ)
-
Âü°í
»çÇ×
- Àϰý¸Å°¢. Á¦½Ã¿Ü °Ç¹°(1-1 ÆÇ³ÚÁ¶ â°í ¾à 4§³) Æ÷ÇÔ
¼ÒÀç : °­¸ª½Ã °­µ¿¸é ¸ðÀü¸® °­µ¿ÃʵîÇб³ ³²Ãø Àαٿ¡ À§Ä¡ÇÔ. ÇöȲ : º»°Ç ±âÈ£1¹ø, 2¹øÀº °èȹ°ü¸®Áö¿ªÀÇ ´ëÁö ¹× ´Üµ¶ÁÖÅÃÀ¸·Î ÀÓÂ÷ÀÎ ±èºÎ °æÀÌ Á¡À¯ »ç¿ëÇϰí ÀÖÀ½. ÀüÀÔ¼¼´ëÈ®Àμ­»ó¿¡ ¼¼´ëÁÖÀÎ ¾È¼º¹ÎÀº º»°Ç ä±ÇÀÚÀÌÀÚ Àü¼¼±ÇÀÚÀÎ ±è ºÎ°æÀÇ ¹è¿ìÀÚÀÓ. (ÇöÀå¿¡¼­ ¾È¼º¹ÎÀ» ¸¸³ª È®ÀÎÇÔ) ÇöȲ : º»°Ç ±âÈ£2¹ø Áö»ó ÀϺδ ÁÖÂ÷ÀåÀ¸·Î ÀÌ¿ëÇϰí ÀÖÀ¸¸ç ÁöÇÏ °üÁ¤ ½Ã¼³ ÀÌ ¼ÒÀçÇϰí ÀÖ°í Á¢°æ ÇÊÁö¿Í Á¤È®ÇÑ °æ°èÃø·®ÀÌ ¿ä±¸µÊ.

°ÇÃ๰ÇöȲ

¼ÒÀçÁö °­¿øÆ¯º°ÀÚÄ¡µµ °­¸ª½Ã °­µ¿¸é ¸ðÀü¸® 189-32¹øÁö
´ëÁö¸éÀû 348§³
(105.45Æò)
¿¬¸éÀû 126.36§³
(38.29Æò)
°ÇÃà¸éÀû 81.96§³
(24.84Æò)
¿ëÀû·ü»êÁ¤
¿¬¸éÀû
126.36§³
(38.29Æò)
°ÇÆóÀ²   ¿ëÀû·ü 36.31%
Áö»óÃþ¼ö 2Ãþ ÁöÇÏÃþ¼ö  
ÁÖ¿ëµµ ´Üµ¶ÁÖÅà ±¸Á¶ ÀϹݸñ±¸Á¶
Âø°øÀÏÀÚ 2018.12.20 »ç¿ë½ÂÀÎÀÏÀÚ 2022.06.03
°ÇÃ๰Ãþº°ÇöȲ [º¸±â]


±¹ÅäºÎ½Ç°Å·¡°¡ °­¿øÆ¯º°ÀÚÄ¡µµ °­¸ª½Ã °­µ¿¸é

¡Ü ¸Å¸Å

¸éÀû(§³), ±Ý¾×(¸¸¿ø)

¡Ü Àü¼¼

¸éÀû(§³), ±Ý¾×(¸¸¿ø)

°è¾àÀÏ¿¬¸éÀûº¸Áõ±Ý¿ù¼¼°ÇÃà
26.03.31139.5735,00002022
26.02.1298.5712,5002003
26.01.3133.350402018
26.01.072250352015
25.12.1386.783,00080
¢Ñ ´õº¸±â

µî±âºÎµîº» ¿ä¾à(ÅäÁö)

  Á¢¼öÀÏÀÚ µî±â¸ñÀû/±Ç¸®ÀÚ ±Ç¸®±Ý¾× ±âÁØ
1 2022³â8¿ù19ÀÏ
¼ÒÀ¯±Ç
±èOO
¼Ò¸ê
2 2021³â10¿ù7ÀÏ
¼ÒÀ¯±Ç
±èOO
¼Ò¸ê
3 2023³â1¿ù31ÀÏ
Àü¼¼±Ç
±èOO
160,000,000 Àμö
4 2025³â6¿ù10ÀÏ
ÀÓÀǰæ¸Å
±èOO
¼Ò¸ê±âÁØ
5 2025³â12¿ù1ÀÏ
¾Ð·ù
±¹
¼Ò¸ê

µî±âºÎµîº» ¿ä¾à(°Ç¹°)

  Á¢¼öÀÏÀÚ µî±â¸ñÀû/±Ç¸®ÀÚ ±Ç¸®±Ý¾× ±âÁØ
1 2022³â6¿ù16ÀÏ
¼ÒÀ¯±Ç
±èOO
¼Ò¸ê
2 2023³â1¿ù31ÀÏ
Àü¼¼±Ç
±èOO
160,000,000 Àμö
3 2025³â6¿ù10ÀÏ
ÀÓÀǰæ¸Å
±èOO
¼Ò¸ê±âÁØ

ÀÓÂ÷ÀÎÇöȲ (¹è´ç¿ä±¸Á¾±âÀÏ: 2025-09-11)

ÀÓÂ÷ÀÎ ¿ëµµ/Á¡À¯ º¸Áõ±Ý/¿ù¼¼ ´ëÇ×·Â
ÀüÀÔÀÏ/È®Á¤ÀÏ ¹è´ç¿ä±¸ ºñ°í
±èOOOOOOOOOOO °Ç¹°ÀüºÎ 160,000,000
O
2023.01.31
2023.01.31.(Àü¼¼±Ç¼³Á¤)
2025.6.20. 2023.01.31~
ºñ°í
(¸Å°¢¹°°Ç
¸í¼¼¼­)
±èºÎ°æ(°³¸íÀü: ±è¾Æ¿µ) : °æ¸Å½ÅûÀΰâÀü¼¼±ÇÀÚÀÓ

¿©ÀÇÁÖ°æ¸Å Á¶¾ð ÇÑ ¸¶µð

Á¦½Ã¿Ü ¹°°ÇÀÌ Æ÷ÇԵǾî ÀÖ½À´Ï´Ù
¡®Á¦½Ã¿Ü ¹°°Ç¡¯Àº ÇØ´ç °øºÎ»ó¿¡´Â Á¸ÀçÇÏÁö ¾ÊÁö¸¸, ÇöÀå¿¡ Á¸Àç°¡ È®ÀεǴ ¿©·¯ ÇüÅÂÀÇ °Ç¹°, ±â°è±â±¸ µîÀ» ¸»ÇÕ´Ï´Ù. ÀÌµé ´ëºÎºÐÀº ¹«Çã°¡, ¹«½Å°íÀ̰ųª »ç¿ë½ÂÀÎÀ» ¹ÞÁö ¾ÊÀº °ÍÀÔ´Ï´Ù. ¡®Á¦½Ã¿Ü ¹°°Ç¡¯ÀÌ °æ¸Å´ë»ó¿¡ Æ÷ÇԵǾî ÀÖ´Ù¸é ³«ÂûÀÚÀÇ ¼ÒÀ¯±Ç Ãëµæ¿¡´Â ¾Æ¹«·± ¹®Á¦°¡ ¾ø½À´Ï´Ù.

ÁÖÀÇ»çÇ× (ÃÖ¼±¼øÀ§ ¼³Á¤ÀÏ: )

¸Å°¢À¸·Î ¼Ò¸êµÇÁö ¾Ê´Â µî±âºÎ±Ç¸®: ÇØ´ç»çÇ×¾øÀ½
¸Å°¢À¸·Î ¼³Á¤µÈ °ÍÀ¸·Î º¸´Â Áö»ó±Ç: ÇØ´ç»çÇ×¾øÀ½
- Àϰý¸Å°¢. Á¦½Ã¿Ü °Ç¹°(1-1 ÆÇ³ÚÁ¶ â°í ¾à 4§³) Æ÷ÇÔ
¡Ø¹Ì³³°ü¸®ºñ(°ø¿ë) Àμö¿©ºÎ¸¦ ÀÔÂû Àü¿¡ È®ÀÎÇϽñ⠹ٶø´Ï´Ù

 

Áö¿ªºÐ¼®

ÁöÇÏö¸í Á÷¼±°Å¸®

Çб³¸í ÀüÈ­¹øÈ£ ÁÖ¼Ò Á÷¼±°Å¸®

¹ý¿ø

ÃáõÁö¹æ¹ý¿ø °­¸ªÁö¿ø (254-63)°­¿øµµ °­¸ª½Ã µ¿ÇØ´ë·Î 3288-18 (³­°îµ¿)
´ëÇ¥ : 033)640-1000, ¾ß°£ : 033)640-1199
°üÇÒÁö¿ª : °­¸ª½Ã, µ¿ÇؽÃ, »ïô½Ã

µî±â¼Ò ÃáõÁö¹æ¹ý¿ø °­¸ªÁö¿ø µî±â°ú (´ëÇ¥:1544-0773, ÆÑ½º:(033)647-5110, °­¿øµµ °­¸ª½Ã µ¿ÇØ´ë·Î 3288-18 (³­°îµ¿ 117-1))
¼¼¹«¼­ °­¸ª¼¼¹«¼­ (´ëÇ¥:033-610-92, ÆÑ½º:033-641-4186, °­¿øµµ °­¸ª½Ã ¼ö¸®°ñ±æ 65 (±³µ¿))

Àαٳ«ÂûÅë°è

±â°£ ¸Å°¢°Ç¼ö Æò±Õ°¨Á¤°¡
Æò±Õ¸Å°¢°¡
¸Å°¢°¡À²
Æò±ÕÀ¯Âû¼ö
3°³¿ù 1°Ç 12,390,370¿ø
12,391,000¿ø
100%
0ȸ
6°³¿ù 3°Ç 196,609,023¿ø
107,387,000¿ø
69%
2.3ȸ
12°³¿ù 6°Ç 361,241,412¿ø
247,610,167¿ø
69%
1.8ȸ


º» °æ¸ÅÁ¤º¸´Â ¹ý¿øÀÚ·á¿Í ÀÏÄ¡Çϵµ·Ï ÇÏ¿´À¸³ª ±Ç¸®»çÇ׺¯µ¿, ÀÔ·ÂÂø¿À µîÀÇ ¿øÀÎÀ¸·Î »ç½Ç°ú ´Ù¸¦ ¼ö ÀÖ½À´Ï´Ù. ÀÌ¿ë¾à°ü¿¡ ÀǰЏéÃ¥Á¶°ÇÀ¸·Î Á¦°øµÊÀ» ¾Ë¸®¸ç, °æ¸ÅÀÔÂû½Ã ¹Ýµå½Ã °ü·Ã °øºÎ¸¦ ÀçÈ®ÀÎÇϽñ⠹ٶø´Ï´Ù. º¸´Ù Æí¸®ÇÑ °æ¸ÅÁ¤º¸ Á¦°øÀ» À§ÇØ Áö¼ÓÀûÀ¸·Î °³¼±ÇϰڽÀ´Ï´Ù. ÀÌ¿ëÇØ Áּż­ °¨»çÇÕ´Ï´Ù.