·Î±×ÀÎ
230
´Ù¼¼´ë(ºô¶ó)
ÀÎõÁö¹æ¹ý¿ø
 °¨Á¤°¡104,000,000 ¿ø
 ÃÖÀú°¡(34%) 35,672,000 ¿ø
 º¸Áõ±Ý(10%) 3,567,200 ¿ø
 Ã»±¸¾×130,000,000 ¿ø
ÀÎõ±¤¿ª½Ã ¹ÌÃßȦ±¸ ¹®Çе¿ 378-13 4Ãþ402È£
»ç°Ç¹øÈ£ 2025Ÿ°æ510221
°æ¸ÅÁ¾·ùºÎµ¿»ê°­Á¦°æ¸Å
¸Å°¢´ë»óÅäÁö ¹× °Ç¹°Àϰý ¸Å°¢
¸Å°¢±âÀÏ    2026.06.24(¼ö) 10:00 ÀÔÂû 30ÀÏÀü    
ÅäÁö¸éÀû19.91§³(6.02 Æò)
°Ç¹°¸éÀû45.66§³(13.81 Æò)
乫/¼ÒÀ¯ÀÚ¸Á OOOO OOO OOO / ¸Á OOOO OOO OOO
ä±ÇÀÚÁÖOOOOOOO
ÆäÀ̽ººÏ Æ®À§ÅÍ ±¸±Û+
īī¿À½ºÅ丮
īī¿ÀÅå sms¹®ÀÚº¸³»±â
 

±âÀϳ»¿ª

°æ°ú ³¯Â¥ Àú°¨ ÃÖÀú°¡ °á°ú
Á¢¼öÀÏ 2025-06-23 °æ¸ÅÁ¢¼ö
~64ÀÏ 
2025-08-26 °æ¸Å°³½Ã°áÁ¤
~147ÀÏ 
2025-11-17 ¹è´ç¿ä±¸Á¾±âÀÏ
~263ÀÏ 
2026-03-13 100%
104,000,000
À¯Âû
~296ÀÏ 
2026-04-15 70%
72,800,000
À¯Âû
~329ÀÏ 
2026-05-18 49%
50,960,000
À¯Âû
~366ÀÏ 
2026-06-24 34%
35,672,000
ÁøÇà
¹°°Ç¸í¼¼¼­ ÇöȲÁ¶»ç¼­ ¹®°ÇÁ¢¼ö ¼Û´Þ³»¿ª

°¨Á¤Æò°¡ÇöȲ

¸ñ·Ï ÁÖ¼Ò ±¸Á¶/¿ëµµ/´ëÁö±Ç ¸éÀû ºñ°í
´ëÁö±Ç
¹®Çе¿ 378-13 246.8ºÐÀÇ 19.91 19.91 §³
(6.02Æò)
°Ç¹°
¹®Çе¿ 378-13 4Ãþ402È£ ö±ÙÄÜÅ©¸®Æ®Á¶ 45.66 §³
(13.81Æò)
1) À§Ä¡/Á¦2Á¾ÀϹÝÁÖ°ÅÁö¿ª/Áö±¸´ÜÀ§°èȹ±¸¿ª/³ë¼±¹ö½ºÁ¤·ùÀå/ö±ÙÄÜÅ©¸®Æ®Á¶/½½·¡ºêÁöºØ ´õº¸±â
°¨Á¤Æò°¡ ¿äÇ×Ç¥
1)À§Ä¡ ¹× ÁÖÀ§È¯°æ
º»°ÇÀº ÀÎõ±¤¿ª½Ã ¹ÌÃßȦ±¸ ¹®Çе¿ ¼ÒÀç '¹®ÇÐÃʵîÇб³' ³²µ¿Ãø Àαٿ¡ À§Ä¡Çϸç, ÁÖÀ§
ÀÏ´ë´Â ´Ù¼¼´ëÁÖÅÃ, ´Üµ¶ÁÖÅà ¹× ±Ù¸°»ýȰ½Ã¼³ µîÀÌ È¥ÀçÇϸç, Á¦¹Ý ÁÖÀ§¿©°Ç º¸Åë½ÃµÊ.
2)±³Åë»óȲ
º»°Ç±îÁö Â÷·®Á¢±Ù °¡´ÉÇϸç, Àαٿ¡ ³ë¼±¹ö½ºÁ¤·ùÀåÀÌ À§Ä¡Çϰí ÀÖ¾î Á¦¹Ý ´ëÁß±³Åë»çÁ¤
º¸ÅëÀÓ.
3)°Ç¹°ÀÇ ±¸Á¶
ö±ÙÄÜÅ©¸®Æ®Á¶ ½½·¡ºêÁöºØ 4Ãþ °Ç¹°³»ÀÇ Á¦4Ãþ Á¦402È£·Î¼­,
(»ç¿ë½ÂÀÎÀÏ : 2001.10.27.)
¿Üº® : ÀÎÁ¶¼® ºÙÀÓ ¹× µå¶óÀ̺ñÆ® ¸¶°¨
³»º® : º®Áö ¹× ÀϺΠŸÀÏ µî ¸¶°¨
âȣ : PVC»õ½Ã âȣÀÓ.
4)ÀÌ¿ë»óÅÂ
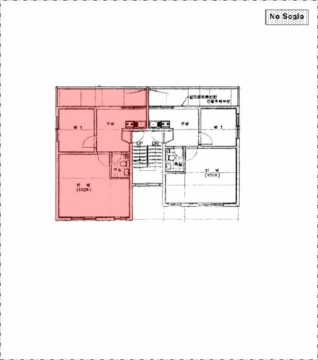
´Ù¼¼´ëÁÖÅÃ(4Ãþ 402È£)·Î ÀÌ¿ëÁßÀÓ
(º°Áö '³»ºÎ±¸Á¶µµ' ÂüÁ¶).
5)¼³ºñ³»¿ª
±âº»ÀûÀÎ À§»ý ¹× ±Þ¹è¼ö¼³ºñ, È­ÀçŽÁö¼³ºñ, ³­¹æ¼³ºñ µî ±¸ºñ µÇ¾î ÀÖÀ½.
6)ÅäÁöÀÇ Çü»ó ¹× ÀÌ¿ë»óÅÂ
»ç´Ù¸®ÇüÀÇ ÅäÁö·Î¼­ ÀÎÁ¢Áö´ë¿Í µî°í ÆòźÇϸç, ´Ù¼¼´ëÁÖÅà °ÇºÎÁö·Î ÀÌ¿ëÁßÀÓ.
7)ÀÎÁ¢ µµ·Î»óŵî
³²ÃøÀ¸·Î ·ÎÆø ¾à 8¹ÌÅÍÀÇ Á¤µµÀÇ Æ÷Àåµµ·Î¿¡ Á¢ÇÔ.
8)ÅäÁöÀÌ¿ë°èȹ ¹× Á¦ÇÑ»óÅÂ
Á¦2Á¾ÀϹÝÁÖ°ÅÁö¿ª, Áö±¸´ÜÀ§°èȹ±¸¿ª, °¡Ãà»çÀ°Á¦Çѱ¸¿ª, »ó´ëº¸È£±¸¿ª,
Çö»óº¯°æÇã°¡ ´ë»ó±¸¿ª, °ú¹Ð¾ïÁ¦±Ç¿ª, ÁßÁ¡°æ°ü°ü¸®±¸¿ª.
9)°øºÎ¿ÍÀÇ Â÷ÀÌ
¾ø À½.
10)±âŸÂü°í»çÇ×(ÀÓ´ë°ü·Ê ¹× ±âŸ)
ÇöÀåÁ¶»ç½Ã ÀÌÇØ°ü°èÀÎ ºÎÀç µîÀ¸·Î ÀÓ´ë°ü°è ¹Ì»óÀ̸ç, °Ç¹°ÀÇ ³»ºÎÇöȲÀº ޹®Á¶»ç¿Í
ÁýÇÕ°ÇÃ๰´ë»ó»óÀÇ °ÇÃ๰ÇöȲµµ(³»ºÎ±¸Á¶µµ) ¹× Åë»óÀûÀÎ ÀÌ¿ë»óÅ µîÀ» Âü°íÇÏ¿´À½.
Âü°í
»çÇ×

- ¼¼´ëÈ£Ãâ ¹«ÀÀ´ä, Æó¹®ºÎÀç, °Ç¹°¿Ü°ü¿¡ ±ÃÀüºô¶ó·Î Ç¥½ÄµÇ¾î

°ÇÃ๰ÇöȲ

¼ÒÀçÁö ÀÎõ±¤¿ª½Ã ¹ÌÃßȦ±¸ ¹®Çе¿ 378-13¹øÁö
´ëÁö¸éÀû 246.8§³
(74.79Æò)
¿¬¸éÀû 615.96§³
(186.65Æò)
°ÇÃà¸éÀû 147§³
(44.55Æò)
¿ëÀû·ü»êÁ¤
¿¬¸éÀû
482.46§³
(146.2Æò)
°ÇÆóÀ² 59.56% ¿ëÀû·ü 195.49%
Áö»óÃþ¼ö 4Ãþ ÁöÇÏÃþ¼ö 1Ãþ
ÁÖ¿ëµµ °øµ¿ÁÖÅà ±¸Á¶ ö±ÙÄÜÅ©¸®Æ®±¸Á¶
Âø°øÀÏÀÚ 2001.02.22 »ç¿ë½ÂÀÎÀÏÀÚ 2001.10.27
°ÇÃ๰Ãþº°ÇöȲ [º¸±â]


±¹ÅäºÎ½Ç°Å·¡°¡ ÀÎõ±¤¿ª½Ã ¹ÌÃßȦ±¸ ¹®Çе¿

¡Ü ¸Å¸Å

¸éÀû(§³), ±Ý¾×(¸¸¿ø)

¡Ü Àü¼¼

¸éÀû(§³), ±Ý¾×(¸¸¿ø)

°è¾àÀϰǹ°¸íĪÃþ¿¬¸éÀûº¸Áõ±Ý¿ù¼¼°ÇÃà
26.05.14¸í¼Ûµå¸²ºô(329-9)438.795,5002001
26.05.14õ¿ìÀ̺êºô430.965,3002001
26.05.12µ¿¼ºÆÄÅ©ºô1Â÷486.9211,90002002
26.05.12·°Å°ºô¶óB430.89300402013
26.05.12¹Ì·¡Å¸¿î³ªµ¿259.5811,8002001
¢Ñ ´õº¸±â

µî±âºÎµîº» ¿ä¾à(°Ç¹°)

  Á¢¼öÀÏÀÚ µî±â¸ñÀû/±Ç¸®ÀÚ ±Ç¸®±Ý¾× ±âÁØ
1 2025³â8¿ù19ÀÏ
¼ÒÀ¯±Ç
À¯OO
¼Ò¸ê
2 2023³â12¿ù14ÀÏ
ÀÓÂ÷±Ç¼³Á¤
Á¤OO
130,000,000 Àμö
3 2025³â8¿ù26ÀÏ
°­Á¦°æ¸Å
ÁÖOOOO
¼Ò¸ê±âÁØ
4 2025³â9¿ù2ÀÏ
¾Ð·ù
±¹OOOO
¼Ò¸ê

ÀÓÂ÷ÀÎÇöȲ (¹è´ç¿ä±¸Á¾±âÀÏ: 2025-11-17)

ÀÓÂ÷ÀÎ ¿ëµµ/Á¡À¯ º¸Áõ±Ý/¿ù¼¼ ´ëÇ×·Â
ÀüÀÔÀÏ/È®Á¤ÀÏ ¹è´ç¿ä±¸ ºñ°í
Á¤OO ÀüºÎ 130,000,000
O
2021.9.28.
2021.8.25.
2021.9.30.~
ÁÖOOOOOOOOOOOOOOOO ÀüºÎ 130,000,000
O
2021.9.28.
2021.8.25.
2025.11.17. 2021.9.30.~2023.9.29.
ºñ°í
(¸Å°¢¹°°Ç
¸í¼¼¼­)
ÁÖÅõµ½Ãº¸Áõ°ø»ç(ÀÓÂ÷ÀÎ:Á¤¿µÂù):ÁÖÅÃÀÓÂ÷±ÇÀÚÀÎ Á¤¿µÂùÀÇ ÀÓÂ÷º¸Áõ±Ý¹Ýȯä±ÇÀ» ¾ç¼öÇÑ ½Â°èÀÎÀ¸·Î¼­ ½Åûä±ÇÀÚÀÓ. ÀÌ »ç°Ç ¿¡¼­ ÀÓÂ÷º¸Áõ±Ý Àü¾×À» ¹è´ç¹ÞÁö ¸øÇÏ´õ¶óµµ ¸Å¼öÀο¡ ´ëÇÑ ÀÜÁ¸ ÀÓÂ÷º¸Áõ±Ý¹Ýȯä±ÇÀ» Æ÷±âÇϰí ÁÖÅÃÀÓÂ÷±Çµî±âÀÇ ¸»¼Ò¿¡ µ¿ÀÇÇÑ´Ù´Â ÃëÁöÀÇ È®¾à¼­¸¦ Á¦ÃâÇÔ

¿©ÀÇÁÖ°æ¸Å Á¶¾ð ÇÑ ¸¶µð

¼±¼øÀ§ ÀÓÂ÷±Çµî±â°¡ µÇ¾î ÀÖ½À´Ï´Ù
´ëÇ×·ÂÀÌ ÀÖ´Â ¼±¼øÀ§ ÀÓÂ÷±Çµî±â ±Ç¸®ÀÚ°¡ ¹è´çÀ» Àü¾× ¹ÞÁö ¸øÇÒ °æ¿ì ³«ÂûÀÚ°¡ ÀÜ¿© º¸Áõ±ÝÀ» ÀμöÇØ¾ßÇÏ´Â °æ¿ìµµ ÀÖ½À´Ï´Ù.

ÁÖÀÇ»çÇ× (ÃÖ¼±¼øÀ§ ¼³Á¤ÀÏ: 2025.8.26. °­Á¦°æ¸Å °³½Ã ¼³Á¤ °áÁ¤)

¸Å°¢À¸·Î ¼Ò¸êµÇÁö ¾Ê´Â µî±âºÎ±Ç¸®: À»±¸ ¼øÀ§ 9¹ø ÁÖÅÃÀÓÂ÷±Çµî±â(´Ù¸¸ ÁÖÅõµ½Ãº¸Áõ°ø»çÀÇ ¸»¼Òµ¿ÀÇ È®¾à¼­°¡ Á¦ÃâµÊ)
¸Å°¢À¸·Î ¼³Á¤µÈ °ÍÀ¸·Î º¸´Â Áö»ó±Ç:
¡Ø¹Ì³³°ü¸®ºñ(°ø¿ë) Àμö¿©ºÎ¸¦ ÀÔÂû Àü¿¡ È®ÀÎÇϽñ⠹ٶø´Ï´Ù

 

Áö¿ªºÐ¼®

ÁöÇÏö¸í Á÷¼±°Å¸®

Çб³¸í ÀüÈ­¹øÈ£ ÁÖ¼Ò Á÷¼±°Å¸®

¹ý¿ø

ÀÎõÁö¹æ¹ý¿ø (222-20)ÀÎõ±¤¿ª½Ã ¹ÌÃßȦ±¸ ¼Ò¼º·Î 163¹ø±æ 17(ÇÐÀ͵¿)
´ëÇ¥ : 032)860-1113~4
°üÇÒÁö¿ª : Áß±¸, µ¿±¸, ³²±¸, ¿¬¼ö±¸, ³²µ¿±¸, ºÎÆò±¸, °è¾ç±¸, ¼­±¸, ¿ËÁø±º, °­È­±º

µî±â¼Ò ÀÎõÁö¹æ¹ý¿ø º»¿ø µî±â±¹ (´ëÇ¥:1544-0773, ÆÑ½º:(032)620-9099, ÀÎõ±¤¿ª½Ã ¹ÌÃßȦ±¸ °æ¿ø´ë·Î 881(Á־ȵ¿ 983))
¼¼¹«¼­ ÀÎõ¼¼¹«¼­ (´ëÇ¥:032-770-02, ÆÑ½º:032-777-8104, ÀÎõ±¤¿ª½Ã µ¿±¸ ¿ì°¢·Î 75 (⿵µ¿))

Àαٳ«ÂûÅë°è

±â°£ ¸Å°¢°Ç¼ö Æò±Õ°¨Á¤°¡
Æò±Õ¸Å°¢°¡
¸Å°¢°¡À²
Æò±ÕÀ¯Âû¼ö
3°³¿ù 2°Ç 149,500,000¿ø
71,050,000¿ø
47%
3ȸ
6°³¿ù 8°Ç 121,125,000¿ø
58,048,679¿ø
49%
2.8ȸ
12°³¿ù 14°Ç 127,285,714¿ø
61,523,312¿ø
48%
2.9ȸ


º» °æ¸ÅÁ¤º¸´Â ¹ý¿øÀÚ·á¿Í ÀÏÄ¡Çϵµ·Ï ÇÏ¿´À¸³ª ±Ç¸®»çÇ׺¯µ¿, ÀÔ·ÂÂø¿À µîÀÇ ¿øÀÎÀ¸·Î »ç½Ç°ú ´Ù¸¦ ¼ö ÀÖ½À´Ï´Ù. ÀÌ¿ë¾à°ü¿¡ ÀǰЏéÃ¥Á¶°ÇÀ¸·Î Á¦°øµÊÀ» ¾Ë¸®¸ç, °æ¸ÅÀÔÂû½Ã ¹Ýµå½Ã °ü·Ã °øºÎ¸¦ ÀçÈ®ÀÎÇϽñ⠹ٶø´Ï´Ù. º¸´Ù Æí¸®ÇÑ °æ¸ÅÁ¤º¸ Á¦°øÀ» À§ÇØ Áö¼ÓÀûÀ¸·Î °³¼±ÇϰڽÀ´Ï´Ù. ÀÌ¿ëÇØ Áּż­ °¨»çÇÕ´Ï´Ù.