·Î±×ÀÎ
33
´Ù¼¼´ë(ºô¶ó)
ÀÎõÁö¹æ¹ý¿ø
 °¨Á¤°¡180,000,000 ¿ø
 ÃÖÀú°¡(100%) 180,000,000 ¿ø
 º¸Áõ±Ý(10%) 18,000,000 ¿ø
 Ã»±¸¾×189,000,000 ¿ø
ÀÎõ±¤¿ª½Ã ¿¬¼ö±¸ ¿Á·Ãµ¿ 352-18 Á¦ÀÌÄÉÀÌÆç¸®½º 3Ãþ303È£
»ç°Ç¹øÈ£ 2025Ÿ°æ507731
°æ¸ÅÁ¾·ùºÎµ¿»ê°­Á¦°æ¸Å
¸Å°¢´ë»óÅäÁö ¹× °Ç¹°Àϰý ¸Å°¢
¸Å°¢±âÀÏ    2026.03.13(±Ý) 10:00 ÀÔÂû 10ÀÏÀü    
ÅäÁö¸éÀû39.71§³(12.01 Æò)
°Ç¹°¸éÀû43.42§³(13.13 Æò)
乫/¼ÒÀ¯ÀÚÀÌOO / ÀÌOO
ä±ÇÀÚÁÖOOOOOOO
ÆäÀ̽ººÏ Æ®À§ÅÍ ±¸±Û+
īī¿À½ºÅ丮
īī¿ÀÅå sms¹®ÀÚº¸³»±â
 

±âÀϳ»¿ª

°æ°ú ³¯Â¥ Àú°¨ ÃÖÀú°¡ °á°ú
Á¢¼öÀÏ 2025-02-21 °æ¸ÅÁ¢¼ö
~3ÀÏ 
2025-02-24 °æ¸Å°³½Ã°áÁ¤
~87ÀÏ 
2025-05-19 ¹è´ç¿ä±¸Á¾±âÀÏ
~385ÀÏ 
2026-03-13 100%
180,000,000
ÁøÇà
¹°°Ç¸í¼¼¼­ ÇöȲÁ¶»ç¼­ ¹®°ÇÁ¢¼ö ¼Û´Þ³»¿ª

°¨Á¤Æò°¡ÇöȲ

¸ñ·Ï ÁÖ¼Ò ±¸Á¶/¿ëµµ/´ëÁö±Ç ¸éÀû ºñ°í
´ëÁö±Ç
¿Á·Ãµ¿ 352-18 500ºÐÀÇ 39.705 39.705 §³
(12.01Æò)
°Ç¹°
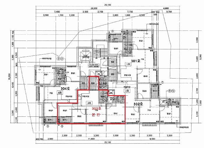
¿Á·Ãµ¿ 352-18 3Ãþ303È£ ö±ÙÄÜÅ©¸®Æ®±¸Á¶ 43.42 §³
(13.13Æò)
1) À§Ä¡/Á¦1Á¾ÀϹÝÁÖ°ÅÁö¿ª/¹ö½ºÁ¤·ùÀå/ÁÖÂ÷Àå/ö±ÙÄÜÅ©¸®Æ®±¸Á¶/½º¶óºêÁöºØ ´õº¸±â
°¨Á¤Æò°¡ ¿äÇ×Ç¥
1)À§Ä¡ ¹× ÁÖÀ§È¯°æ
º»°ÇÀº ÀÎõ±¤¿ª½Ã ¿¬¼ö±¸ ¿Á·Ãµ¿ ¼ÒÀç ""ÃàÇöÃʵîÇб³"" ºÏµ¿Ãø Àαٿ¡ À§Ä¡Çϰí
ºÎ±ÙÀº ´Ù¼¼´ëÁÖÅÃ,»ó¾÷¿ë ¹× ¾÷¹«¿ë ±Ù¸°»ýȰ½Ã¼³ µîÀÌ ¼ÒÀçÇϰí ÀÖ´Â Áö¿ªÀÓ.
2)±³Åë»óȲ
º»°Ç±îÁö Á¦¹ÝÂ÷·®ÀÇ ÁøÃâÀÔÀÌ °¡´ÉÇϰí Àαٿ¡ ¹ö½ºÁ¤·ùÀåÀÌ ¼ÒÀçÇϰí ÀÖ¾î
Á¦¹Ý±³Åë»çÁ¤Àº º¸Åë½Ã µÊ.
3)°Ç¹°ÀÇ ±¸Á¶
2019³â 7¿ù 31ÀÏ »ç¿ë½ÂÀÎÀ» ¹ÞÀº ö±ÙÄÜÅ©¸®Æ®±¸Á¶ ½º¶óºêÁöºØ 3Ãþ°ÇÁß Á¦3Ãþ Á¦303È£·Î
¿Üº®:Ä¡ÀåŸÀϺÙÀÓ ¹× ÆäÀÎÆÃ¸¶°¨µî
³»º®:º®Áö ¹× ÀϺΟÀϸ¶°¨µî
âȣ:»þ½Ãâȣµî
4)ÀÌ¿ë»óÅÂ
´Ù¼¼´ëÁÖÅÃÀ¸·Î ÀÌ¿ëµÇ°í ÀÖÀ½.
5)¼³ºñ³»¿ª
À§»ý¼³ºñ,»óÇϼöµµ¼³ºñ,½Â°­±â,ÁÖÂ÷Àå,³­¹æ¼³ºñµî µÇ¾îÀÖÀ½.
6)ÅäÁöÀÇ Çü»ó ¹× ÀÌ¿ë»óÅÂ
1ÇÊÁö ´ëü·Î »ç´Ù¸®²Ã ¸ð¾çÀÇ ÅäÁö·Î ´Ù¼¼´ëÁÖÅÃÀÇ °ÇºÎÁö·Î ÀÌ¿ëµÇ°í ÀÖÀ½.
7)ÀÎÁ¢ µµ·Î»óŵî
ºÏµ¿ÃøÀ¸·Î Æ÷Àåµµ·Î¿Í Á¢Çϰí ÀÖÀ½.
8)ÅäÁöÀÌ¿ë°èȹ ¹× Á¦ÇÑ»óÅÂ
Á¦1Á¾ÀϹÝÁÖ°ÅÁö¿ª,»ó´ëº¸È£±¸¿ª<±³À°È¯°æ º¸È£¿¡ °üÇÑ ¹ý·ü>,
»ó´ëº¸È£±¸¿ª(2012-05-21)(ÀÎõµ¿ºÎ±³À°Áö¿øÃ» Çлý°Ç°­¾ÈÀü°ú¹®ÀÇ(460-6334))
<±³À°È¯°æ º¸È£¿¡ °üÇÑ ¹ý·ü>,°ú¹Ð¾ïÁ¦±Ç¿ª<¼öµµ±ÇÁ¤ºñ°èȹ¹ý>.
9)°øºÎ¿ÍÀÇ Â÷ÀÌ
ÇØ´ç»çÇ×¾øÀ½.
10)±âŸÂü°í»çÇ×(ÀÓ´ë°ü·Ê ¹× ±âŸ)
°¡.º»°Ç ÇöÀ广¹®ÇÏ¿´À¸³ª °ÅÁÖÀÎ µî ÀÌÇØ°ü°èÀÎÀÇ ºÎÀç°ü°è·Î ³»±¸±¸Á¶ µîÀº °øºÎ ¹×
Àα٠À¯»ç¹°°ÇÀÇ Æò°¡Àü·Ê µîÀ» Âü°íÇÏ¿© ÀϹÝÀûÀÎ »ç¾çÀ» ±âÁØÀ¸·Î Æò°¡ÇÏ¿´À¸¸ç
ÀÓ´ë¿©ºÎ´Â ÆÄ¾ÇÇÏÁö ¸øÇÏ¿´´Â ¹Ù °æ¸ÅÁøÇà½Ã Âü°í¹Ù¶ø´Ï´Ù.

³ª.º»°Ç µî±â»çÇ×ÀüºÎÁõ¸í¼­»ó ¾Æ·¡¿Í °°ÀÌ ÀÓÂ÷±Çµî±â¸í·ÉÀÌ µîÀçµÇ¾îÀÖÀ½.

2023Ä«ÀÓ468ÁÖÅÃÀÓÂ÷±Çµî±â(2023.03.03)

ÀÓÂ÷º¸Áõ±Ý: 189,000,000¿ø(2022.04.06: 9,000,000¿ø Áõ¾×)
¹ü À§: 3Ãþ 303È£ 43.42Á¦°ö¹ÌÅÍ ÀüºÎ
ÀÓ´ëÂ÷°è¾àÀÏÀÚ: (1)2020.04.09, (2)2020.05.21, (3)2020.04.06)
Áֹεî·ÏÀÏÀÚ: 2020.04.29
Á¡À¯°³½ÃÀÏÀÚ: 2020.04.29
È®Á¤ÀÏÀÚ: 2020.04.09(180,000,000¿ø), 2022.04.06(Áõ¾×µÈ 9,000,000¿ø)
ÀÓÂ÷±ÇÀÚ: ÀÓ**(740404-*******),ÀÎõ ¿¬¼ö±¸ Çѳª·ç·Î 160-1, 303È£
Âü°í
»çÇ×

- º»°ÇÀº ÀÎõÃàÇöÃʵîÇб³ ºÎ±Ù¿¡ À§

°ÇÃ๰ÇöȲ

¼ÒÀçÁö ÀÎõ±¤¿ª½Ã ¿¬¼ö±¸ ¿Á·Ãµ¿ 352-18¹øÁö
´ëÁö¸éÀû 500§³
(151.52Æò)
¿¬¸éÀû 992.25§³
(300.68Æò)
°ÇÃà¸éÀû 283.03§³
(85.77Æò)
¿ëÀû·ü»êÁ¤
¿¬¸éÀû
659.88§³
(199.96Æò)
°ÇÆóÀ² 56.61% ¿ëÀû·ü 131.98%
Áö»óÃþ¼ö 3Ãþ ÁöÇÏÃþ¼ö 1Ãþ
ÁÖ¿ëµµ °øµ¿ÁÖÅà ±¸Á¶ ö±ÙÄÜÅ©¸®Æ®±¸Á¶
Âø°øÀÏÀÚ 2017.10.18 »ç¿ë½ÂÀÎÀÏÀÚ 2019.07.31
°ÇÃ๰Ãþº°ÇöȲ [º¸±â]


±¹ÅäºÎ½Ç°Å·¡°¡ ÀÎõ±¤¿ª½Ã ¿¬¼ö±¸ ¿Á·Ãµ¿

¡Ü ¸Å¸Å

¸éÀû(§³), ±Ý¾×(¸¸¿ø)

¡Ü Àü¼¼

¸éÀû(§³), ±Ý¾×(¸¸¿ø)

°è¾àÀϰǹ°¸íĪÃþ¿¬¸éÀûº¸Áõ±Ý¿ù¼¼°ÇÃà
26.02.11½Å¿ìºô¶ó(118-16)136.481,000501991
26.02.07´ë¸²ºô¶ó355.858,5001992
26.02.06»ï¼º¾ÆÆ®ºô(143-5)144.58,1002002
26.02.05Çö´ë¶óºñŸ1´ÜÁö459.4214,40002017
26.02.05¾çÁöºô¶ó(248-21)335.13500401991
¢Ñ ´õº¸±â


ÀÓÂ÷ÀÎÇöȲ (¹è´ç¿ä±¸Á¾±âÀÏ: 2025-05-19)



¸Å°¢±âÀÏ 7ÀÏÀü¿¡ ¸Å°¢¹°°Ç¸í¼¼¼­°¡ °ø°íµÇ¿À´Ï È®ÀÎÇϽñ⠹ٶø´Ï´Ù.

ÀÓÂ÷ÀÎ ¿ëµµ/Á¡À¯ º¸Áõ±Ý/¿ù¼¼ ´ëÇ×·Â
ÀüÀÔÀÏ/È®Á¤ÀÏ ¹è´ç¿ä±¸ ºñ°í
¾ÈOO 303È£ÀüºÎ 189,000,000
2020.04.29
(1)2020.4.9.(2)2022.4.6.
2020.04.29.
ÁÖOOOOOOOOOOOOOOOO 303È£ÀüºÎ 189,000,000
2020.04.29
2020.4.9.
2025.5.1. 2020.04.29.~2023.05.22
ºñ°í
(¸Å°¢¹°°Ç
¸í¼¼¼­)
¾ÈÇöÁÖ:ÀÓÂ÷º¸Áõ±Ý Áß ±Ý9,000,000¿øÀº 2022.4.6.ÀÚ·Î Áõ¾×µÇ¾úÀ¸¸ç, Áõ¾×ºÐ¿¡ ´ëÇÑ È®Á¤ÀÏÀÚ´Â 2022.4.6.ÀÓ ÁÖÅõµ½Ãº¸Áõ°ø»ç (ÀÓÂ÷ÀÎ:¾ÈÇöÁÖ):ÁÖÅÃÀÓÂ÷±ÇÀÚÀÎ ¾ÈÇöÁÖÀÇ ÀÓÂ÷º¸Áõ±Ý¹Ýȯä±ÇÀ» ¾ç¼öÇÑ ½Â°èÀÎÀ¸·Î¼­ ½Åûä±ÇÀÚÀÓ. ÀÌ »ç°Ç ¿¡¼­ ÀÓÂ÷º¸Áõ±Ý Àü¾×À» ¹è´ç¹ÞÁö ¸øÇÏ´õ¶óµµ ¸Å¼öÀο¡ ´ëÇÑ ÀÜÁ¸ ÀÓÂ÷º¸Áõ±Ý¹Ýȯä±ÇÀ» Æ÷±âÇϰí ÁÖÅÃÀÓÂ÷±Çµî±âÀÇ ¸»¼Ò¿¡ µ¿ÀÇÇÑ´Ù´Â ÃëÁöÀÇ È®¾à¼­¸¦ Á¦ÃâÇÔ

¿©ÀÇÁÖ°æ¸Å Á¶¾ð ÇÑ ¸¶µð

¼±¼øÀ§ ÀÓÂ÷±Çµî±â°¡ µÇ¾î ÀÖ½À´Ï´Ù
´ëÇ×·ÂÀÌ ÀÖ´Â ¼±¼øÀ§ ÀÓÂ÷±Çµî±â ±Ç¸®ÀÚ°¡ ¹è´çÀ» Àü¾× ¹ÞÁö ¸øÇÒ °æ¿ì ³«ÂûÀÚ°¡ ÀÜ¿© º¸Áõ±ÝÀ» ÀμöÇØ¾ßÇÏ´Â °æ¿ìµµ ÀÖ½À´Ï´Ù.

ÁÖÀÇ»çÇ× (ÃÖ¼±¼øÀ§ ¼³Á¤ÀÏ: 2023.5.18. °¡¾Ð·ù ¼³Á¤)

¸Å°¢À¸·Î ¼Ò¸êµÇÁö ¾Ê´Â µî±âºÎ±Ç¸®: À»±¸ ¼øÀ§ 3¹ø ÁÖÅÃÀÓÂ÷±Çµî±â(´Ù¸¸ ÁÖÅõµ½Ãº¸Áõ°ø»çÀÇ ¸»¼Òµ¿ÀÇ È®¾à¼­°¡ Á¦ÃâµÊ)
¸Å°¢À¸·Î ¼³Á¤µÈ °ÍÀ¸·Î º¸´Â Áö»ó±Ç:
¡Ø¹Ì³³°ü¸®ºñ(°ø¿ë) Àμö¿©ºÎ¸¦ ÀÔÂû Àü¿¡ È®ÀÎÇϽñ⠹ٶø´Ï´Ù

 

Áö¿ªºÐ¼®

ÁöÇÏö¸í Á÷¼±°Å¸®

Çб³¸í ÀüÈ­¹øÈ£ ÁÖ¼Ò Á÷¼±°Å¸®

¹ý¿ø

ÀÎõÁö¹æ¹ý¿ø (222-20)ÀÎõ±¤¿ª½Ã ¹ÌÃßȦ±¸ ¼Ò¼º·Î 163¹ø±æ 17(ÇÐÀ͵¿)
´ëÇ¥ : 032)860-1113~4
°üÇÒÁö¿ª : Áß±¸, µ¿±¸, ³²±¸, ¿¬¼ö±¸, ³²µ¿±¸, ºÎÆò±¸, °è¾ç±¸, ¼­±¸, ¿ËÁø±º, °­È­±º

µî±â¼Ò ÀÎõÁö¹æ¹ý¿ø º»¿ø µî±â±¹ (´ëÇ¥:1544-0773, ÆÑ½º:(032)620-9099, ÀÎõ±¤¿ª½Ã ¹ÌÃßȦ±¸ °æ¿ø´ë·Î 881(Á־ȵ¿ 983))
¼¼¹«¼­ ³²ÀÎõ¼¼¹«¼­ (´ëÇ¥:032-460-52, ÆÑ½º:032-463-5778, ÀÎõ±¤¿ª½Ã ³²µ¿±¸ ÀÎÇÏ·Î 548 (±¸¿ùµ¿))

Àαٳ«ÂûÅë°è

±â°£ ¸Å°¢°Ç¼ö Æò±Õ°¨Á¤°¡
Æò±Õ¸Å°¢°¡
¸Å°¢°¡À²
Æò±ÕÀ¯Âû¼ö


º» °æ¸ÅÁ¤º¸´Â ¹ý¿øÀÚ·á¿Í ÀÏÄ¡Çϵµ·Ï ÇÏ¿´À¸³ª ±Ç¸®»çÇ׺¯µ¿, ÀÔ·ÂÂø¿À µîÀÇ ¿øÀÎÀ¸·Î »ç½Ç°ú ´Ù¸¦ ¼ö ÀÖ½À´Ï´Ù. ÀÌ¿ë¾à°ü¿¡ ÀǰЏéÃ¥Á¶°ÇÀ¸·Î Á¦°øµÊÀ» ¾Ë¸®¸ç, °æ¸ÅÀÔÂû½Ã ¹Ýµå½Ã °ü·Ã °øºÎ¸¦ ÀçÈ®ÀÎÇϽñ⠹ٶø´Ï´Ù. º¸´Ù Æí¸®ÇÑ °æ¸ÅÁ¤º¸ Á¦°øÀ» À§ÇØ Áö¼ÓÀûÀ¸·Î °³¼±ÇϰڽÀ´Ï´Ù. ÀÌ¿ëÇØ Áּż­ °¨»çÇÕ´Ï´Ù.