·Î±×ÀÎ
104
¿ÀÇǽºÅÚ
ÀÎõÁö¹æ¹ý¿ø
 °¨Á¤°¡173,000,000 ¿ø
 ÃÖÀú°¡(70%) 121,100,000 ¿ø
 º¸Áõ±Ý(10%) 12,110,000 ¿ø
 Ã»±¸¾×190,000,000 ¿ø
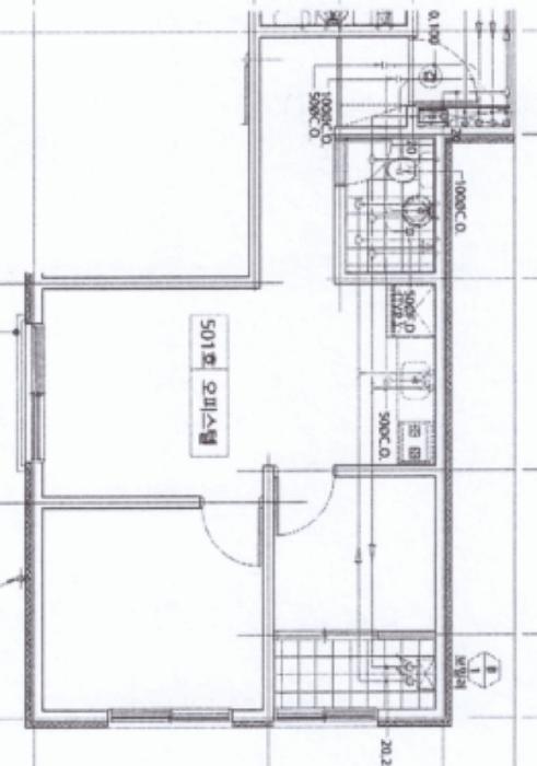
ÀÎõ±¤¿ª½Ã ¹ÌÃßȦ±¸ Á־ȵ¿ 62-1 ¸¶Àκí·çºô 5Ãþ501È£
»ç°Ç¹øÈ£ 2025Ÿ°æ507321
°æ¸ÅÁ¾·ùºÎµ¿»ê°­Á¦°æ¸Å
¸Å°¢´ë»óÅäÁö ¹× °Ç¹°Àϰý ¸Å°¢
¸Å°¢±âÀÏ    2026.04.15(¼ö) 10:00 ÀÔÂû 20ÀÏÀü    
ÅäÁö¸éÀû9.62§³(2.91 Æò)
°Ç¹°¸éÀû47.15§³(14.26 Æò)
乫/¼ÒÀ¯ÀÚ¹ÚOO / ¹ÚOO
ä±ÇÀÚÁÖOOOOOOO
ÆäÀ̽ººÏ Æ®À§ÅÍ ±¸±Û+
īī¿À½ºÅ丮
īī¿ÀÅå sms¹®ÀÚº¸³»±â
 

±âÀϳ»¿ª

°æ°ú ³¯Â¥ Àú°¨ ÃÖÀú°¡ °á°ú
Á¢¼öÀÏ 2025-02-10 °æ¸ÅÁ¢¼ö
~3ÀÏ 
2025-02-13 °æ¸Å°³½Ã°áÁ¤
~86ÀÏ 
2025-05-07 ¹è´ç¿ä±¸Á¾±âÀÏ
~396ÀÏ 
2026-03-13 100%
173,000,000
À¯Âû
~429ÀÏ 
2026-04-15 70%
121,100,000
ÁøÇà
¹°°Ç¸í¼¼¼­ ÇöȲÁ¶»ç¼­ ¹®°ÇÁ¢¼ö ¼Û´Þ³»¿ª

°¨Á¤Æò°¡ÇöȲ

¸ñ·Ï ÁÖ¼Ò ±¸Á¶/¿ëµµ/´ëÁö±Ç ¸éÀû ºñ°í
´ëÁö±Ç
Á־ȵ¿ 62-1 285.2ºÐÀÇ 9.62 9.62 §³
(2.91Æò)
°Ç¹°
Á־ȵ¿ 62-1 5Ãþ501È£ ö±ÙÄÜÅ©¸®Æ®±¸Á¶ 47.15 §³
(14.26Æò)
1) À§Ä¡/ÀϹݻó¾÷Áö¿ª/½Ã³»¹ö½ºÁ¤·ùÀå/ÁöÇÏö/ö±ÙÄÜÅ©¸®Æ®±¸Á¶ ´õº¸±â
°¨Á¤Æò°¡ ¿äÇ×Ç¥
1)À§Ä¡ ¹× ÁÖÀ§È¯°æ
¹ÌÃßȦ±¸ Á־ȵ¿ ¼ÒÀç ""¼®¾ÏÃʵîÇб³ ""³²ÃøÀαٿ¡ À§Ä¡ÇÏ´Â ¿ÀÇǽºÅÚ ""¸¶Àιɷçºô"" Á¦5Ãþ Á¦501È£·Î¼­ ÀαÙÀº ¿ÀÇǽºÅÚ, ´Ù¼¼´ëÁÖÅà ¹× ±Ù¸°»ýȰ½Ã¼³ µîÀÌ È¥ÀçµÈ ÁÖ»óÁö´ëÀÓ.

2)±³Åë»óȲ
°æÀα¹µµ ºÏÃøÀαٿ¡ À§Ä¡Çϰí, ½Ã³»¹ö½ºÁ¤·ùÀåÀÌ ÀÎÁ¢ÇÏ¸ç ºÏ¼­Ãø ¹× ºÏµ¿Ãø ±Ù°Å¸®¿¡ °æÀÎÀüö ""Á־ȿª"" ¹× ""°£¼®¿ª""ÀÌ °¢°¢ À§Ä¡ÇÏ°í ³²¼­Ãø ¹× ³²µ¿Ãø Àαٿ¡ ÀÎõÁöÇÏö2È£¼± ""½Ã¹Î°ø¿ø¿ª"" ¹× ""¼®¹ÙÀ§½ÃÀ忪""ÀÌ À§Ä¡ÇÏ´Â µî ´ëÁß±³Åë»óȲ Æí¸®ÇÑ Áö¿ªÀÓ.
3)°Ç¹°ÀÇ ±¸Á¶
ö±ÙÄÜÅ©¸®Æ®±¸Á¶ ÁöÇÏ2Ãþ Áö»ó10Ãþ °Ç¹° ³» Á¦5Ãþ Á¦501È£·Î¼­

¿Üº® : ÄÜÅ©¸®Æ® À§ ´Ü¿­Àç µî ¸¶°¨
âȣ : ¼¨½ÃâȣÀÓ.
4)ÀÌ¿ë»óÅÂ
°øºÎ»ó ¿ëµµ ¿ÀÇǽºÅÚÀÓ.
5)¼³ºñ³»¿ª
ÀϹÝÀûÀÎ »óÇϼöµµ¼³ºñ ¹× À§»ý¼³ºñ °®Ãß°í ÀÖÀ½.
6)ÅäÁöÀÇ Çü»ó ¹× ÀÌ¿ë»óÅÂ
Á־ȵ¿ 62-1 ¹× 62-3 2ÇÊ1´ÜÀÇ ºÎÁ¤Çü ÅäÁö·Î¼­ ¿ÀÇǽºÅÚ ºÎÁö·Î ÀÌ¿ëÁßÀÓ.
7)ÀÎÁ¢ µµ·Î»óŵî
³²ÃøÀ¸·Î Á߷ο¡ Á¢ÇÔ.
8)ÅäÁöÀÌ¿ë°èȹ ¹× Á¦ÇÑ»óÅÂ
ÀϹݻó¾÷Áö¿ª, ¹æÈ­Áö±¸, °¡Ãà»çÀ°Á¦Çѱ¸¿ª(°¡ÃàºÐ´¢ÀÇ °ü¸® ¹× À̿뿡 °üÇÑ ¹ý·ü), »ó´ëº¸È£±¸¿ª(±³À°È¯°æ º¸È£¿¡ °üÇÑ ¹ý·ü), °ú¹Ð¾ïÁ¦±Ç¿ª(¼öµµ±ÇÁ¤ºñ°èȹ¹ý) ³» ÅäÁöÀÓ.
9)°øºÎ¿ÍÀÇ Â÷ÀÌ
¾øÀ½.
10)±âŸÂü°í»çÇ×(ÀÓ´ë°ü·Ê ¹× ±âŸ)
ÀÓ´ëÂ÷°ü°è ¹Ì»óÀÓ.
Âü°í
»çÇ×

º»°Ç ÁÖº¯¿¡´Â ÁÖ°Å

°ÇÃ๰ÇöȲ

¼ÒÀçÁö ÀÎõ±¤¿ª½Ã ¹ÌÃßȦ±¸ Á־ȵ¿ 62-1¹øÁö
´ëÁö¸éÀû 285.2§³
(86.42Æò)
¿¬¸éÀû 1928.04§³
(584.25Æò)
°ÇÃà¸éÀû 210.28§³
(63.72Æò)
¿ëÀû·ü»êÁ¤
¿¬¸éÀû
1583.5§³
(479.85Æò)
°ÇÆóÀ² 73.73% ¿ëÀû·ü 555.22%
Áö»óÃþ¼ö 10Ãþ ÁöÇÏÃþ¼ö 2Ãþ
ÁÖ¿ëµµ ¾÷¹«½Ã¼³ ±¸Á¶ ö±ÙÄÜÅ©¸®Æ®±¸Á¶
Âø°øÀÏÀÚ 2012.05.24 »ç¿ë½ÂÀÎÀÏÀÚ 2018.11.05
°ÇÃ๰Ãþº°ÇöȲ [º¸±â]


±¹ÅäºÎ½Ç°Å·¡°¡ ÀÎõ±¤¿ª½Ã ¹ÌÃßȦ±¸ Á־ȵ¿

¡Ü ¸Å¸Å

¸éÀû(§³), ±Ý¾×(¸¸¿ø)

¡Ü Àü¼¼

¸éÀû(§³), ±Ý¾×(¸¸¿ø)

°è¾àÀϰǹ°¸íĪÃþÀü¿ëº¸Áõ±Ý¿ù¼¼°ÇÃà
26.01.16¸¶Àκí·çºô542.0912,50002018
25.11.25¸¶Àκí·çºô542.0912,50002018
25.11.14¸¶Àκí·çºô442.0912,50002018
25.09.19¸¶Àκí·çºô542.0913,0002018
25.09.19¸¶Àκí·çºô442.0913,0002018
¢Ñ ´õº¸±â

µî±âºÎµîº» ¿ä¾à(°Ç¹°)

  Á¢¼öÀÏÀÚ µî±â¸ñÀû/±Ç¸®ÀÚ ±Ç¸®±Ý¾× ±âÁØ
1 2021³â11¿ù11ÀÏ
¼ÒÀ¯±Ç
¹ÚOO
¼Ò¸ê
2 2022³â3¿ù8ÀÏ
¾Ð·ù
¹ÌOOO
¼Ò¸ê±âÁØ
3 2024³â1¿ù15ÀÏ
ÀÓÂ÷±Ç¼³Á¤
±èOO
190,000,000 ¼Ò¸ê
4 2025³â2¿ù13ÀÏ
°­Á¦°æ¸Å
ÁÖOOOO
¼Ò¸ê

ÀÓÂ÷ÀÎÇöȲ (¹è´ç¿ä±¸Á¾±âÀÏ: 2025-05-07)

ÀÓÂ÷ÀÎ ¿ëµµ/Á¡À¯ º¸Áõ±Ý/¿ù¼¼ ´ëÇ×·Â
ÀüÀÔÀÏ/È®Á¤ÀÏ ¹è´ç¿ä±¸ ºñ°í
±èOO ÀüºÎ 190,000,000
O
2021.11.11.
2021.11.11.
2021.11.11.~
ÁÖOOOOOOOOOOOOOOOO ÀüºÎ 190,000,000
O
2021.11.11.
2021.11.11.
2025.2.10. 2021.11.11.~2023.11.10.
ºñ°í
(¸Å°¢¹°°Ç
¸í¼¼¼­)
ÁÖÅõµ½Ãº¸Áõ°ø»ç(ÀÓÂ÷ÀÎ:±èÅ¿ë):ÁÖÅÃÀÓÂ÷±ÇÀÚÀÎ ±èÅ¿ëÀÇ ÀÓÂ÷º¸Áõ±Ý¹Ýȯä±ÇÀ» ¾ç¼öÇÑ ½Â°èÀÎÀ¸·Î¼­ ½Åûä±ÇÀÚÀÌ¸ç ±Ç¸® ½Å°í ¹× ¹è´ç¿ä±¸ÀÏÀÚ´Â ÀÌ »ç°Ç ½ÅûÀÏÀÓ. ÀÌ »ç°Ç¿¡¼­ ÀÓÂ÷º¸Áõ±Ý Àü¾×À» ¹è´ç¹ÞÁö ¸øÇÏ´õ¶óµµ ¸Å¼öÀο¡ ´ëÇÑ ÀÜÁ¸ ÀÓÂ÷º¸ Áõ±Ý¹Ýȯä±ÇÀ» Æ÷±âÇϰí ÁÖÅÃÀÓÂ÷±Ç µî±âÀÇ ¸»¼Ò¿¡ µ¿ÀÇÇÑ´Ù´Â ÃëÁöÀÇ È®¾à¼­¸¦ Á¦ÃâÇÔ.

¿©ÀÇÁÖ°æ¸Å Á¶¾ð ÇÑ ¸¶µð

¼±¼øÀ§ ÀÓÂ÷±Çµî±â°¡ µÇ¾î ÀÖ½À´Ï´Ù
´ëÇ×·ÂÀÌ ÀÖ´Â ¼±¼øÀ§ ÀÓÂ÷±Çµî±â ±Ç¸®ÀÚ°¡ ¹è´çÀ» Àü¾× ¹ÞÁö ¸øÇÒ °æ¿ì ³«ÂûÀÚ°¡ ÀÜ¿© º¸Áõ±ÝÀ» ÀμöÇØ¾ßÇÏ´Â °æ¿ìµµ ÀÖ½À´Ï´Ù.

ÁÖÀÇ»çÇ× (ÃÖ¼±¼øÀ§ ¼³Á¤ÀÏ: 2022.3.8. ¾Ð·ù ¼³Á¤)

¸Å°¢À¸·Î ¼Ò¸êµÇÁö ¾Ê´Â µî±âºÎ±Ç¸®: À»±¸ ¼øÀ§ 1¹ø ÁÖÅÃÀÓÂ÷±Çµî±â(´Ù¸¸ ÁÖÅõµ½Ãº¸Áõ°ø»çÀÇ ¸»¼Òµ¿ÀÇ È®¾à¼­°¡ Á¦ÃâµÊ)
¸Å°¢À¸·Î ¼³Á¤µÈ °ÍÀ¸·Î º¸´Â Áö»ó±Ç:
¡Ø¹Ì³³°ü¸®ºñ(°ø¿ë) Àμö¿©ºÎ¸¦ ÀÔÂû Àü¿¡ È®ÀÎÇϽñ⠹ٶø´Ï´Ù

 

Áö¿ªºÐ¼®

ÁöÇÏö¸í Á÷¼±°Å¸®

Çб³¸í ÀüÈ­¹øÈ£ ÁÖ¼Ò Á÷¼±°Å¸®

¹ý¿ø

ÀÎõÁö¹æ¹ý¿ø (222-20)ÀÎõ±¤¿ª½Ã ¹ÌÃßȦ±¸ ¼Ò¼º·Î 163¹ø±æ 17(ÇÐÀ͵¿)
´ëÇ¥ : 032)860-1113~4
°üÇÒÁö¿ª : Áß±¸, µ¿±¸, ³²±¸, ¿¬¼ö±¸, ³²µ¿±¸, ºÎÆò±¸, °è¾ç±¸, ¼­±¸, ¿ËÁø±º, °­È­±º

µî±â¼Ò ÀÎõÁö¹æ¹ý¿ø º»¿ø µî±â±¹ (´ëÇ¥:1544-0773, ÆÑ½º:(032)620-9099, ÀÎõ±¤¿ª½Ã ¹ÌÃßȦ±¸ °æ¿ø´ë·Î 881(Á־ȵ¿ 983))
¼¼¹«¼­ ÀÎõ¼¼¹«¼­ (´ëÇ¥:032-770-02, ÆÑ½º:032-777-8104, ÀÎõ±¤¿ª½Ã µ¿±¸ ¿ì°¢·Î 75 (⿵µ¿))

Àαٳ«ÂûÅë°è

±â°£ ¸Å°¢°Ç¼ö Æò±Õ°¨Á¤°¡
Æò±Õ¸Å°¢°¡
¸Å°¢°¡À²
Æò±ÕÀ¯Âû¼ö


º» °æ¸ÅÁ¤º¸´Â ¹ý¿øÀÚ·á¿Í ÀÏÄ¡Çϵµ·Ï ÇÏ¿´À¸³ª ±Ç¸®»çÇ׺¯µ¿, ÀÔ·ÂÂø¿À µîÀÇ ¿øÀÎÀ¸·Î »ç½Ç°ú ´Ù¸¦ ¼ö ÀÖ½À´Ï´Ù. ÀÌ¿ë¾à°ü¿¡ ÀǰЏéÃ¥Á¶°ÇÀ¸·Î Á¦°øµÊÀ» ¾Ë¸®¸ç, °æ¸ÅÀÔÂû½Ã ¹Ýµå½Ã °ü·Ã °øºÎ¸¦ ÀçÈ®ÀÎÇϽñ⠹ٶø´Ï´Ù. º¸´Ù Æí¸®ÇÑ °æ¸ÅÁ¤º¸ Á¦°øÀ» À§ÇØ Áö¼ÓÀûÀ¸·Î °³¼±ÇϰڽÀ´Ï´Ù. ÀÌ¿ëÇØ Áּż­ °¨»çÇÕ´Ï´Ù.