·Î±×ÀÎ
164
´Ù¼¼´ë(ºô¶ó)
ÀÎõÁö¹æ¹ý¿ø
 °¨Á¤°¡175,000,000 ¿ø
 ÃÖÀú°¡(70%) 122,500,000 ¿ø
 º¸Áõ±Ý(10%) 12,250,000 ¿ø
 Ã»±¸¾×196,000,000 ¿ø
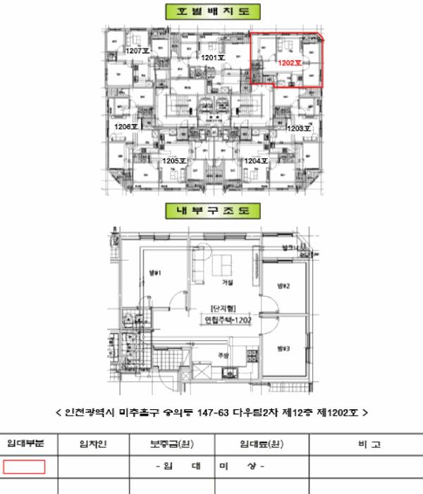
ÀÎõ±¤¿ª½Ã ¹ÌÃßȦ±¸ ¼þÀǵ¿ 147-63 ´Ù¿ì¸²2Â÷ 12Ãþ1202È£
»ç°Ç¹øÈ£ 2025Ÿ°æ507459
°æ¸ÅÁ¾·ùºÎµ¿»ê°­Á¦°æ¸Å
¸Å°¢´ë»óÅäÁö ¹× °Ç¹°Àϰý ¸Å°¢
¸Å°¢±âÀÏ    2026.04.14(È­) 10:00 (¿À´Ã ÀÔÂû)    
ÅäÁö¸éÀû8.12§³(2.46 Æò)
°Ç¹°¸éÀû58.11§³(17.58 Æò)
乫/¼ÒÀ¯ÀÚ±èOO / ±èOO
ä±ÇÀÚÁÖOOOOOOO
ÆäÀ̽ººÏ Æ®À§ÅÍ ±¸±Û+
īī¿À½ºÅ丮
īī¿ÀÅå sms¹®ÀÚº¸³»±â
 

±âÀϳ»¿ª

°æ°ú ³¯Â¥ Àú°¨ ÃÖÀú°¡ °á°ú
Á¢¼öÀÏ 2025-02-13 °æ¸ÅÁ¢¼ö
~1ÀÏ 
2025-02-14 °æ¸Å°³½Ã°áÁ¤
~88ÀÏ 
2025-05-12 ¹è´ç¿ä±¸Á¾±âÀÏ
~392ÀÏ 
2026-03-12 100%
175,000,000
À¯Âû
~425ÀÏ 
2026-04-14 70%
122,500,000
ÁøÇà
¹°°Ç¸í¼¼¼­ ÇöȲÁ¶»ç¼­ ¹®°ÇÁ¢¼ö ¼Û´Þ³»¿ª

°¨Á¤Æò°¡ÇöȲ

¸ñ·Ï ÁÖ¼Ò ±¸Á¶/¿ëµµ/´ëÁö±Ç ¸éÀû ºñ°í
´ëÁö±Ç
¼þÀǵ¿ 147-63 832ºÐÀÇ 8.12 8.12 §³
(2.46Æò)
°Ç¹°
¼þÀǵ¿ 147-63 12Ãþ1202È£ ö±ÙÄÜÅ©¸®Æ®±¸Á¶ 58.11 §³
(17.58Æò)
1) À§Ä¡/ÀϹݻó¾÷Áö¿ª/³ë¼±¹ö½º Á¤·ùÀå/ö±ÙÄÜÅ©¸®Æ®±¸Á¶/µµ½Ã°¡½º ´õº¸±â
°¨Á¤Æò°¡ ¿äÇ×Ç¥
1)À§Ä¡ ¹× ÁÖÀ§È¯°æ
º»°ÇÀº ÀÎõ±¤¿ª½Ã ¹ÌÃßȦ±¸ ¼þÀǵ¿ ¼ÒÀç ""¹ÌÃßȦ±¸Ã»"" ºÏ¼­Ãø¿¡ À§Ä¡Çϸç, ºÎ±ÙÀº º»°Ç°ú
À¯»çÇÑ ¿ÀÇǽºÅÚ ¹× °øµ¿ÁÖÅÃ, ¼Ò±Ô¸ð ±Ù¸°»ýȰ½Ã¼³ µîÀ¸·Î Çü¼ºµÇ¾î ÀÖ´Â ÁÖÅà ¹× »ó°¡È¥¿ë
Áö´ë·Î¼­ Á¦¹Ý ÁÖÀ§È¯°æÀº º¸Åë ¼öÁØÀÔ´Ï´Ù.
2)±³Åë»óȲ
º»°Å±îÁö Â÷·® ÃâÀÔ °¡´ÉÇϸç, Àαٿ¡ ³ë¼±¹ö½º Á¤·ùÀå ¹× ¼öµµ±Ç1È£¼± ""µµ¿ø¿ª"", ""Á¦¹°Æ÷¿ª""ÀÌ ¼ÒÀçÇÏ¿© Àü¹ÝÀûÀÎ ´ëÁß±³Åë ¿©°ÇÀº ¹«³­ÇÑ ÆíÀÔ´Ï´Ù.
3)°Ç¹°ÀÇ ±¸Á¶
ö±ÙÄÜÅ©¸®Æ®±¸Á¶ (ö±Ù)ÄÜÅ©¸®Æ®ÁöºØ ÁöÇÏ2Ãþ/Áö»ó14Ãþ °Ç¹°³» Á¦12Ãþ Á¦1202È£·Î¼­,
(»ç¿ë½ÂÀÎÀÏ : 2017. 02. 14)

¿Üº® : ¸ôÅ»À§ ÆäÀÎÆÃ ¸¶°¨ µî
³»º® : -
âȣ : ÇÏÀÌ»õ½Ã âȣ µî ÀÔ´Ï´Ù.

4)ÀÌ¿ë»óÅÂ
º»°ÇÀº ¿¬¸³ÁÖÅÃÀ¸·Î ÀÌ¿ë ÁßÀÔ´Ï´Ù.
5)¼³ºñ³»¿ª
º»°ÇÀº ±âº»ÀûÀÎ À§»ý ¹× ±Þ¹è¼ö¼³ºñ, ¼ÒÈ­Àü¼³ºñ, CCTV¼³ºñ, ½Â°­±â¼³ºñ(2´ë), µµ½Ã°¡½º¿¡ ÀÇÇÑ ³­¹æ¼³ºñ µîÀ» °®Ãß°í ÀÖ½À´Ï´Ù.
6)ÅäÁöÀÇ Çü»ó ¹× ÀÌ¿ë»óÅÂ
º»°ÇÀº ÀÎÁ¢Áö¿Í ´ëü·Î µî°íÆòźÇÑ ¼¼ÀåÇüÀÇ ÅäÁö·Î¼­, ¾÷¹«½Ã¼³(¿ÀÇǽºÅÚ) ¹× °øµ¿ÁÖÅà °ÇºÎÁö·Î ÀÌ¿ë ÁßÀÔ´Ï´Ù.
7)ÀÎÁ¢ µµ·Î»óŵî
¼­ÃøÀ¸·Î ³ëÆø ¾à 8¹ÌÅÍ, ³²Ãø ¹× ºÏÃøÀ¸·Î ³ëÆø ¾à 6¹ÌÅÍ, µ¿ÃøÀ¸·Î ³ëÆø ¾à 3~4¹ÌÅÍÀÇ ¾Æ½ºÆÈÆ®Æ÷Àåµµ·Î¿Í °¢°¢ Á¢Çϰí ÀÖ½À´Ï´Ù.
8)ÅäÁöÀÌ¿ë°èȹ ¹× Á¦ÇÑ»óÅÂ
ÀϹݻó¾÷Áö¿ª(2022-06-13), ¹æÈ­Áö±¸ °¡Ãà»çÀ°Á¦Çѱ¸¿ª(ÀÎõ±¤¿ª½Ã ¹ÌÃßȦ±¸ °¡Ãà»çÀ°Á¦ÇÑ¿¡ °üÇÑ Á¶·Ê[2018. 7. 1.])<°¡ÃàºÐ´¢ÀÇ °ü¸® ¹× À̿뿡 °üÇÑ ¹ý·ü>, °ú¹Ð¾ïÁ¦±Ç¿ª<¼öµµ±ÇÁ¤ºñ°èȹ¹ý>
9)°øºÎ¿ÍÀÇ Â÷ÀÌ
ÇØ´ç»çÇ× ¾ø½À´Ï´Ù.
10)±âŸÂü°í»çÇ×(ÀÓ´ë°ü·Ê ¹× ±âŸ)
ÀÓ´ë°ü°è : ÀÌÇØ°ü°èÀÎ ºÎÀç ¹× Æó¹®À¸·Î ÀÎÇÏ¿© ¹Ì»óÀÔ´Ï´Ù.
±âŸ : ÇØ´ç»çÇ× ¾ø½À´Ï´Ù.
Âü°í
»çÇ×

º»°Ç ¿Üº®¿¡

°ÇÃ๰ÇöȲ

¼ÒÀçÁö ÀÎõ±¤¿ª½Ã ¹ÌÃßȦ±¸ ¼þÀǵ¿ 147-63¹øÁö
´ëÁö¸éÀû 832§³
(252.12Æò)
¿¬¸éÀû 8582.69§³
(2600.82Æò)
°ÇÃà¸éÀû 616.43§³
(186.8Æò)
¿ëÀû·ü»êÁ¤
¿¬¸éÀû
7484.77§³
(2268.11Æò)
°ÇÆóÀ² 74.09% ¿ëÀû·ü 899.61%
Áö»óÃþ¼ö 14Ãþ ÁöÇÏÃþ¼ö 2Ãþ
ÁÖ¿ëµµ ¾÷¹«½Ã¼³ ±¸Á¶ ö±ÙÄÜÅ©¸®Æ®±¸Á¶
Âø°øÀÏÀÚ 2016.03.29 »ç¿ë½ÂÀÎÀÏÀÚ 2017.02.14
°ÇÃ๰Ãþº°ÇöȲ [º¸±â]


±¹ÅäºÎ½Ç°Å·¡°¡ ÀÎõ±¤¿ª½Ã ¹ÌÃßȦ±¸ ¼þÀǵ¿

¡Ü ¸Å¸Å

¸éÀû(§³), ±Ý¾×(¸¸¿ø)

¡Ü Àü¼¼

¸éÀû(§³), ±Ý¾×(¸¸¿ø)

°è¾àÀϰǹ°¸íĪÃþ¿¬¸éÀûº¸Áõ±Ý¿ù¼¼°ÇÃà
26.03.30Á¦¹°Æ÷¿ø·ë418.39500342002
26.03.27¾È¼º¸Ç¼Ç243.275,8001993
26.03.25½Å¿µ¾ÆÆ®ºô(248-164)262.1510,8002003
26.03.23ÀºÃ¢½ºÆäÀ̽ººô439.325,00002003
26.03.23ÇØ´ã¾ÆÆ®ºô2Â÷(166-28)451.0513,3002016
¢Ñ ´õº¸±â

µî±âºÎµîº» ¿ä¾à(°Ç¹°)

  Á¢¼öÀÏÀÚ µî±â¸ñÀû/±Ç¸®ÀÚ ±Ç¸®±Ý¾× ±âÁØ
1 2021³â10¿ù8ÀÏ
¼ÒÀ¯±Ç
±èOO
¼Ò¸ê
2 2023³â8¿ù9ÀÏ
¾Ð·ù
±¹OOOO
¼Ò¸ê±âÁØ
3 2023³â10¿ù20ÀÏ
ÀÓÂ÷±Ç¼³Á¤
ȲOO
196,000,000 ¼Ò¸ê
4 2025³â2¿ù14ÀÏ
°­Á¦°æ¸Å
ÁÖOOOO
¼Ò¸ê

ÀÓÂ÷ÀÎÇöȲ (¹è´ç¿ä±¸Á¾±âÀÏ: 2025-05-12)

ÀÓÂ÷ÀÎ ¿ëµµ/Á¡À¯ º¸Áõ±Ý/¿ù¼¼ ´ëÇ×·Â
ÀüÀÔÀÏ/È®Á¤ÀÏ ¹è´ç¿ä±¸ ºñ°í
ÁÖOOOOOOOOOOOOOOO ÀüºÎ 196,000,000
O
2021. 9. 23.
2021. 8. 24.
2025. 5. 12. 2021. 9. 17.~2021. 12. 5.
ȲOO ÀüºÎ 196,000,000
O
2021. 9. 23.
2021. 8. 24.
2021. 9. 17.~
ºñ°í
(¸Å°¢¹°°Ç
¸í¼¼¼­)
- Ȳ¿µÂù : ÁÖÅÃÀÓÂ÷±Çµî±â±ÇÀڷμ­ ÁÖÅÃÀÓÂ÷±Çµî±âÀÏÀº 2023. 10. 20.ÀÓ - ÁÖÅõµ½Ãº¸Áõ°ø»ç(ÀÓÂ÷ÀΠȲ¿µÂù) : °æ¸Å½Åû±ÇÀÚÀ̸ç ÁÖÅÃÀÓ´ëÂ÷º¸È£¹ý Á¦3Á¶ÀÇ2 Á¦7Ç× Á¦9È£ÀÇ ±â°üÀ¸·Î ÀÓÂ÷ÀΠȲ¿µÂùÀ¸

¿©ÀÇÁÖ°æ¸Å Á¶¾ð ÇÑ ¸¶µð

¼±¼øÀ§ ÀÓÂ÷±Çµî±â°¡ µÇ¾î ÀÖ½À´Ï´Ù
´ëÇ×·ÂÀÌ ÀÖ´Â ¼±¼øÀ§ ÀÓÂ÷±Çµî±â ±Ç¸®ÀÚ°¡ ¹è´çÀ» Àü¾× ¹ÞÁö ¸øÇÒ °æ¿ì ³«ÂûÀÚ°¡ ÀÜ¿© º¸Áõ±ÝÀ» ÀμöÇØ¾ßÇÏ´Â °æ¿ìµµ ÀÖ½À´Ï´Ù.

ÁÖÀÇ»çÇ× (ÃÖ¼±¼øÀ§ ¼³Á¤ÀÏ: 2023. 8. 9. ¾Ð·ù ¼³Á¤)

¸Å°¢À¸·Î ¼Ò¸êµÇÁö ¾Ê´Â µî±âºÎ±Ç¸®: À»±¸ ¼øÀ§ 1¹ø ÁÖÅÃÀÓÂ÷±Çµî±â(´Ù¸¸ ÁÖÅõµ½Ãº¸Áõ°ø»çÀÇ ¸»¼Òµ¿ÀÇ È®¾à¼­°¡ Á¦ÃâµÊ)
¸Å°¢À¸·Î ¼³Á¤µÈ °ÍÀ¸·Î º¸´Â Áö»ó±Ç:
- º»°Ç ¿Üº®¿¡ ¡®´Ù¿ì¸²¾ÆÆÄÆ® 102µ¿¡¯À¸·Î Ç¥±âµÊ.
¡Ø¹Ì³³°ü¸®ºñ(°ø¿ë) Àμö¿©ºÎ¸¦ ÀÔÂû Àü¿¡ È®ÀÎÇϽñ⠹ٶø´Ï´Ù

 

Áö¿ªºÐ¼®

ÁöÇÏö¸í Á÷¼±°Å¸®

Çб³¸í ÀüÈ­¹øÈ£ ÁÖ¼Ò Á÷¼±°Å¸®

¹ý¿ø

ÀÎõÁö¹æ¹ý¿ø (222-20)ÀÎõ±¤¿ª½Ã ¹ÌÃßȦ±¸ ¼Ò¼º·Î 163¹ø±æ 17(ÇÐÀ͵¿)
´ëÇ¥ : 032)860-1113~4
°üÇÒÁö¿ª : Áß±¸, µ¿±¸, ³²±¸, ¿¬¼ö±¸, ³²µ¿±¸, ºÎÆò±¸, °è¾ç±¸, ¼­±¸, ¿ËÁø±º, °­È­±º

µî±â¼Ò ÀÎõÁö¹æ¹ý¿ø º»¿ø µî±â±¹ (´ëÇ¥:1544-0773, ÆÑ½º:(032)620-9099, ÀÎõ±¤¿ª½Ã ¹ÌÃßȦ±¸ °æ¿ø´ë·Î 881(Á־ȵ¿ 983))
¼¼¹«¼­ ÀÎõ¼¼¹«¼­ (´ëÇ¥:032-770-02, ÆÑ½º:032-777-8104, ÀÎõ±¤¿ª½Ã µ¿±¸ ¿ì°¢·Î 75 (⿵µ¿))

Àαٳ«ÂûÅë°è

±â°£ ¸Å°¢°Ç¼ö Æò±Õ°¨Á¤°¡
Æò±Õ¸Å°¢°¡
¸Å°¢°¡À²
Æò±ÕÀ¯Âû¼ö
3°³¿ù 15°Ç 214,866,667¿ø
123,266,258¿ø
58%
2.1ȸ
6°³¿ù 41°Ç 219,365,854¿ø
124,684,965¿ø
58%
2.3ȸ
12°³¿ù 99°Ç 222,393,939¿ø
129,093,879¿ø
59%
2.2ȸ


º» °æ¸ÅÁ¤º¸´Â ¹ý¿øÀÚ·á¿Í ÀÏÄ¡Çϵµ·Ï ÇÏ¿´À¸³ª ±Ç¸®»çÇ׺¯µ¿, ÀÔ·ÂÂø¿À µîÀÇ ¿øÀÎÀ¸·Î »ç½Ç°ú ´Ù¸¦ ¼ö ÀÖ½À´Ï´Ù. ÀÌ¿ë¾à°ü¿¡ ÀǰЏéÃ¥Á¶°ÇÀ¸·Î Á¦°øµÊÀ» ¾Ë¸®¸ç, °æ¸ÅÀÔÂû½Ã ¹Ýµå½Ã °ü·Ã °øºÎ¸¦ ÀçÈ®ÀÎÇϽñ⠹ٶø´Ï´Ù. º¸´Ù Æí¸®ÇÑ °æ¸ÅÁ¤º¸ Á¦°øÀ» À§ÇØ Áö¼ÓÀûÀ¸·Î °³¼±ÇϰڽÀ´Ï´Ù. ÀÌ¿ëÇØ Áּż­ °¨»çÇÕ´Ï´Ù.