·Î±×ÀÎ
174
ÁÖÅÃ
ÀÇÁ¤ºÎÁö¹æ¹ý¿ø ³²¾çÁÖÁö¿ø
 °¨Á¤°¡420,093,000 ¿ø
 ÃÖÀú°¡(70%) 294,065,000 ¿ø
 º¸Áõ±Ý(10%) 29,406,500 ¿ø
 Ã»±¸¾×229,288,320 ¿ø
°æ±âµµ °¡Æò±º ¼³¾Ç¸é ¹¬¾È¸® 509
»ç°Ç¹øÈ£ 2024Ÿ°æ82862
°æ¸ÅÁ¾·ùºÎµ¿»êÀÓÀǰæ¸Å
¸Å°¢´ë»óÅäÁöÁöºÐ ¹× °Ç¹°Àüü¸Å°¢
¸Å°¢±âÀÏ    2026.04.16(¸ñ) 10:30 ÀÔÂû 27ÀÏÀü    
ÅäÁö¸éÀû499.50§³(151.10 Æò)
°Ç¹°¸éÀû129.88§³(39.29 Æò)
乫/¼ÒÀ¯ÀÚÁÖOOO OOOOOOO / ÁÖOOO OOOOOOO
ä±ÇÀÚ³óOOOOOOOOOOO(OOOOOOOOOOOOO)
ÆäÀ̽ººÏ Æ®À§ÅÍ ±¸±Û+
īī¿À½ºÅ丮
īī¿ÀÅå sms¹®ÀÚº¸³»±â
 

±âÀϳ»¿ª

°æ°ú ³¯Â¥ Àú°¨ ÃÖÀú°¡ °á°ú
Á¢¼öÀÏ 2024-09-13 °æ¸ÅÁ¢¼ö
~6ÀÏ 
2024-09-19 °æ¸Å°³½Ã°áÁ¤
~82ÀÏ 
2024-12-04 ¹è´ç¿ä±¸Á¾±âÀÏ
~545ÀÏ 
2026-03-12 100%
420,093,000
À¯Âû
~580ÀÏ 
2026-04-16 70%
294,065,000
ÁøÇà
¹°°Ç¸í¼¼¼­ ÇöȲÁ¶»ç¼­ ¹®°ÇÁ¢¼ö ¼Û´Þ³»¿ª

°¨Á¤Æò°¡ÇöȲ

¸ñ·Ï ÁÖ¼Ò ±¸Á¶/¿ëµµ/´ëÁö±Ç ¸éÀû ºñ°í
ÅäÁö
¹¬¾È¸® 509 ´ë 322 §³
(97.41Æò)
¹¬¾È¸® 509-18 ´ë 119 §³
(36.00Æò)
¹¬¾È¸® 509-17 µµ·Î 58.5 §³
(17.70Æò)
1/2 ÁöºÐ
°Ç¹°
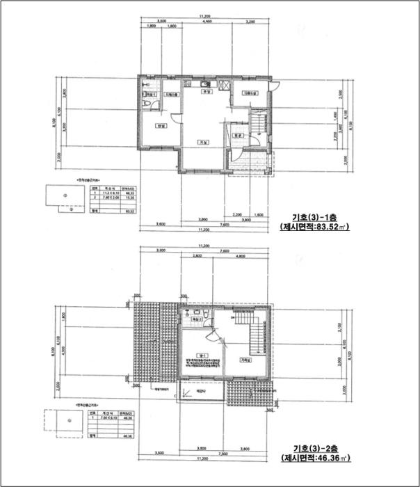
¹¬¾È¸® 509 1Ãþ ´Üµ¶ÁÖÅà ö±ÙÄÜÅ©¸®Æ®±¸Á¶ 83.52 §³
(25.26Æò)
¹¬¾È¸® 509 2Ãþ ´Üµ¶ÁÖÅà ö±ÙÄÜÅ©¸®Æ®±¸Á¶ 46.36 §³
(14.02Æò)
1) À§Ä¡/º¸Àü°ü¸®Áö¿ª/¹ö½ºÁ¤·ùÀå/ö±ÙÄÜÅ©¸®Æ®±¸Á¶/°æ»çÁöºØ ´õº¸±â
°¨Á¤Æò°¡ ¿äÇ×Ç¥
1)À§Ä¡ ¹× ÁÖÀ§È¯°æ
º»°ÇÀº °æ±âµµ °¡Æò±º ¼³¾Ç¸é ¹¬¾È¸® ¼ÒÀç "¹¬¾È±³" ºÏ¼­Ãø Àαٿ¡ À§Ä¡Çϰí, ºÎ±ÙÀº Àü¿øÁÖÅÃ, ³ó°æÁö ¹× ÀӾߵîÀÌ È¥ÀçµÇ¾î ÀÖ½À´Ï´Ù.
2)±³Åë»óȲ
º»°Ç±îÁö Â÷·®ÃâÀÔÀÌ °¡´ÉÇϰí, Àαٿ¡ ¹ö½ºÁ¤·ùÀåÀÌ ¼ÒÀçÇÏ¿© ´ëÁß±³ÅëÆíÀº ºñ±³Àû ¹«³­ÇÑ »óÅÂÀÔ´Ï´Ù.
3)ÇüÅ ¹× ÀÌ¿ë»óÅÂ
2ÇÊÁö ÀÏ´ÜÀÇ ÅäÁö·Î ÁÖÅðǺÎÁö·Î ÀÌ¿ëÁßÀÔ´Ï´Ù.
4)ÀÎÁ¢ µµ·Î»óÅÂ
ºÏ¼­ÃøÀ¸·Î Æø ¾à 4¹ÌÅÍ ³»¿ÜÀÇ µµ·Î¿Í Á¢ÇØ ÀÖ½À´Ï´Ù.
5)ÅäÁöÀÌ¿ë°èȹ ¹× Á¦ÇÑ»óÅÂ
°øÈ÷ º¸Àü°ü¸®Áö¿ª, °¡Ãà»çÀ°Á¦Çѱ¸¿ª, ÀÚ¿¬º¸Àü±Ç¿ªÀÔ´Ï´Ù.
6)Á¦½Ã¸ñ·Ï ¿ÜÀÇ ¹°°Ç
-



7)°øºÎ¿ÍÀÇ Â÷ÀÌ
-
8)±âŸÂü°í»çÇ×(ÀÓ´ë°ü·Ê ¹× ±âŸ)
ÀÓ´ë°ü°è´Â ¹Ì»óÀÔ´Ï´Ù.
1)°Ç¹°ÀÇ ±¸Á¶
2024.01.11. »ç¿ë½ÂÀÎµÈ Ã¶±ÙÄÜÅ©¸®Æ®±¸Á¶ °æ»çÁöºØ(ö±ÙÄÜÅ©¸®Æ®) 2Ãþ°ÇÀ¸·Î
¿Üº®: ¸ôÅ»À§ÆäÀÎÆ®,
âȣ: ¼¦½ÃâÀÔ´Ï´Ù.
2)ÀÌ¿ë»óÅÂ
´Üµ¶ÁÖÅÃÀ¸·Î ÀÌ¿ëÁßÀÔ´Ï´Ù.
3)¼³ºñ³»¿ª
³­¹æ¼³ºñ, À§»ý¼³ºñµîÀÌ ±¸ºñµÇ¾î ÀÖ½À´Ï´Ù.
4)ºÎÇÕ¹° ¹× Á¾¹°
-
5)°øºÎ¿ÍÀÇ Â÷ÀÌ
-
6)±âŸÂü°í»çÇ×(ÀÓ´ë°ü·Ê ¹× ±âŸ)
ÀÓ´ë°ü°è´Â ¹Ì»óÀÔ´Ï´Ù.
Âü°í
»çÇ×
Àϰý¸Å°¢ ¸ñ·Ï4-ÁöºÐ¸Å°¢


±¹ÅäºÎ½Ç°Å·¡°¡ °æ±âµµ °¡Æò±º ¼³¾Ç¸é ¹¬¾È¸®

¡Ü ¸Å¸Å

¸éÀû(§³), ±Ý¾×(¸¸¿ø)

¡Ü Àü¼¼

¸éÀû(§³), ±Ý¾×(¸¸¿ø)

°è¾àÀÏ¿¬¸éÀûº¸Áõ±Ý¿ù¼¼°ÇÃà
26.01.1398.9530,0001997
25.12.03187.861,000502014
25.10.1783.897,0001994
25.07.31168.095001002025
25.04.14213,7002014
¢Ñ ´õº¸±â

µî±âºÎµîº» ¿ä¾à(ÅäÁö)

  Á¢¼öÀÏÀÚ µî±â¸ñÀû/±Ç¸®ÀÚ ±Ç¸®±Ý¾× ±âÁØ
1 2024³â2¿ù8ÀÏ
¼ÒÀ¯±Ç
(OOOO
¼Ò¸ê
2 2024³â2¿ù8ÀÏ
±ÙÀú´ç±Ç
³óOOOO
264,000,000 ¼Ò¸ê±âÁØ
3 2024³â9¿ù19ÀÏ
ÀÓÀǰæ¸Å
°¡OOOO
¼Ò¸ê
4 2024³â11¿ù29ÀÏ
±ÙÀú´ç±Ç
Á¤OO
50,000,000 ¼Ò¸ê

µî±âºÎµîº» ¿ä¾à(°Ç¹°)

  Á¢¼öÀÏÀÚ µî±â¸ñÀû/±Ç¸®ÀÚ ±Ç¸®±Ý¾× ±âÁØ
1 2024³â2¿ù8ÀÏ
¼ÒÀ¯±Ç
(OOOO
¼Ò¸ê
2 2024³â2¿ù8ÀÏ
±ÙÀú´ç±Ç
³óOOOO
264,000,000 ¼Ò¸ê±âÁØ
3 2024³â5¿ù8ÀÏ
°¡¾Ð·ù
(OOOO
13,748,768 ¼Ò¸ê
4 2024³â9¿ù19ÀÏ
ÀÓÀǰæ¸Å
°¡OOOO
¼Ò¸ê
5 2024³â10¿ù2ÀÏ
¾Ð·ù
±¹OOOO
¼Ò¸ê
6 2024³â11¿ù29ÀÏ
±ÙÀú´ç±Ç
Á¤OO
50,000,000 ¼Ò¸ê
7 2025³â7¿ù29ÀÏ
¾Ð·ù
±¹
¼Ò¸ê

ÀÓÂ÷ÀÎÇöȲ (¹è´ç¿ä±¸Á¾±âÀÏ: 2024-12-04)


Á¶»çµÈ ÀÓÂ÷³»¿ªÀÌ ¾ø½À´Ï´Ù


¿©ÀÇÁÖ°æ¸Å Á¶¾ð ÇÑ ¸¶µð

ÁöºÐ°æ¸Å ¹°°ÇÀÌ Æ÷ÇԵǾî ÀÖ½À´Ï´Ù
¿©·¯ ¸íÀÌ °øµ¿À¸·Î ¼ÒÀ¯ÇÏ´Â ºÎµ¿»êÀÇ ÀϺθ¸ °æ¸Å·Î ³ª¿Â °ÍÀ» ÁöºÐ°æ¸Å¶ó°í ÇÕ´Ï´Ù. ¼ÒÀ¯ºÎºÐÀÌ Æ¯Á¤µÇÁö ¾Ê¾Æ »ç¿ë¿¡ Á¦¾àÀÌ µû¸¦ ¼ö ÀÖÀ¸¸ç °øÀ¯ÀÚ°£¿¡ ºÐÀïµµ ¹ß»ýÇÒ ¼ö ÀÖ½À´Ï´Ù. °øÀ¯ÀÚ´Â °øÀ¯ÀÚ¿ì¼±¸Å¼öû±¸±Ç¸®°¡ ÀÖ½À´Ï´Ù.

ÁÖÀÇ»çÇ× (ÃÖ¼±¼øÀ§ ¼³Á¤ÀÏ: 2024. 2. 8. ±ÙÀú´ç±Ç ¼³Á¤)

¸Å°¢À¸·Î ¼Ò¸êµÇÁö ¾Ê´Â µî±âºÎ±Ç¸®:
¸Å°¢À¸·Î ¼³Á¤µÈ °ÍÀ¸·Î º¸´Â Áö»ó±Ç:
2025.03.06 ä±ÇÀÚ ³óOOOOOOOOOOO (OOOO OOOOOOOOO) ȯ±Þ°èÁº¯°æ½Åû Á¦Ãâ
Àϰý¸Å°¢ ¸ñ·Ï4-ÁöºÐ¸Å°¢
¡Ø¹Ì³³°ü¸®ºñ(°ø¿ë) Àμö¿©ºÎ¸¦ ÀÔÂû Àü¿¡ È®ÀÎÇϽñ⠹ٶø´Ï´Ù

 

Áö¿ªºÐ¼®

ÁöÇÏö¸í Á÷¼±°Å¸®

Çб³¸í ÀüÈ­¹øÈ£ ÁÖ¼Ò Á÷¼±°Å¸®

¹ý¿ø

ÀÇÁ¤ºÎÁö¹æ¹ý¿ø ³²¾çÁÖÁö¿ø (122-49)°æ±âµµ ³²¾çÁֽà ´Ù»êÁß¾Ó·Î82¹ø¾È±æ 161(´Ù»êµ¿)
´ëÇ¥ : 031)869-4114
°üÇÒÁö¿ª : °¡Æò±º, ±¸¸®½Ã, ³²¾çÁÖ½Ã

µî±â¼Ò ÀÇÁ¤ºÎÁö¹æ¹ý¿ø º»¿ø °¡Æòµî±â¼Ò (´ëÇ¥:1544-0773, ÆÑ½º:(031) 582-9948, °æ±âµµ °¡Æò±º °¡ÆòÀ¾ °¡È­·Î 180 (À¾³»¸® 685-1))
¼¼¹«¼­ ³²¾çÁÖ¼¼¹«¼­ (´ëÇ¥:031-550-32, ÆÑ½º:031-566-1808, °æ±âµµ ±¸¸®½Ã ¾È°ñ·Î 36 (±³¹®µ¿))

Àαٳ«ÂûÅë°è

±â°£ ¸Å°¢°Ç¼ö Æò±Õ°¨Á¤°¡
Æò±Õ¸Å°¢°¡
¸Å°¢°¡À²
Æò±ÕÀ¯Âû¼ö


º» °æ¸ÅÁ¤º¸´Â ¹ý¿øÀÚ·á¿Í ÀÏÄ¡Çϵµ·Ï ÇÏ¿´À¸³ª ±Ç¸®»çÇ׺¯µ¿, ÀÔ·ÂÂø¿À µîÀÇ ¿øÀÎÀ¸·Î »ç½Ç°ú ´Ù¸¦ ¼ö ÀÖ½À´Ï´Ù. ÀÌ¿ë¾à°ü¿¡ ÀǰЏéÃ¥Á¶°ÇÀ¸·Î Á¦°øµÊÀ» ¾Ë¸®¸ç, °æ¸ÅÀÔÂû½Ã ¹Ýµå½Ã °ü·Ã °øºÎ¸¦ ÀçÈ®ÀÎÇϽñ⠹ٶø´Ï´Ù. º¸´Ù Æí¸®ÇÑ °æ¸ÅÁ¤º¸ Á¦°øÀ» À§ÇØ Áö¼ÓÀûÀ¸·Î °³¼±ÇϰڽÀ´Ï´Ù. ÀÌ¿ëÇØ Áּż­ °¨»çÇÕ´Ï´Ù.