·Î±×ÀÎ
174
±Ù¸°»ó°¡
ÀÇÁ¤ºÎÁö¹æ¹ý¿ø ³²¾çÁÖÁö¿ø
 °¨Á¤°¡482,000,000 ¿ø
 ÃÖÀú°¡(70%) 337,400,000 ¿ø
 º¸Áõ±Ý(10%) 33,740,000 ¿ø
 Ã»±¸¾×156,238,081 ¿ø
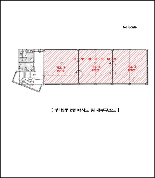
°æ±âµµ ³²¾çÁֽà ÁøÁ¢À¾ ÇØ¹Ð¿¹´ç2·Î 8, »ó°¡2µ¿ 2Ãþ201È£ (½Å¾ÈÀνººô)
°æ±âµµ ³²¾çÁֽà ÁøÁ¢À¾ ±Ý°î¸® 1080
»ç°Ç¹øÈ£ 2024Ÿ°æ5438
°æ¸ÅÁ¾·ùºÎµ¿»êÀÓÀǰæ¸Å
¸Å°¢´ë»óÅäÁö ¹× °Ç¹°Àϰý ¸Å°¢
¸Å°¢±âÀÏ    2026.04.16(¸ñ) 10:30 ÀÔÂû 7ÀÏÀü    
ÅäÁö¸éÀû169.10§³(51.15 Æò)
°Ç¹°¸éÀû139.87§³(42.31 Æò)
乫/¼ÒÀ¯ÀÚÁ¤OO / Á¤OO
ä±ÇÀÚÀ¯OOOOOOOOOOOOOOOO(OOOOOOOOOOOO)
ÆäÀ̽ººÏ Æ®À§ÅÍ ±¸±Û+
īī¿À½ºÅ丮
īī¿ÀÅå sms¹®ÀÚº¸³»±â
 

±âÀϳ»¿ª

°æ°ú ³¯Â¥ Àú°¨ ÃÖÀú°¡ °á°ú
Á¢¼öÀÏ 2024-10-14 °æ¸ÅÁ¢¼ö
~1ÀÏ 
2024-10-15 °æ¸Å°³½Ã°áÁ¤
~80ÀÏ 
2025-01-02 ¹è´ç¿ä±¸Á¾±âÀÏ
~514ÀÏ 
2026-03-12 100%
482,000,000
À¯Âû
~549ÀÏ 
2026-04-16 70%
337,400,000
ÁøÇà
¹°°Ç¸í¼¼¼­ ÇöȲÁ¶»ç¼­ ¹®°ÇÁ¢¼ö ¼Û´Þ³»¿ª

°¨Á¤Æò°¡ÇöȲ

¸ñ·Ï ÁÖ¼Ò ±¸Á¶/¿ëµµ/´ëÁö±Ç ¸éÀû ºñ°í
´ëÁö±Ç
±Ý°î¸® 1080 66518.7ºÐÀÇ 53.1719 53.1719 §³
(16.08Æò)
±Ý°î¸® 1080 66518.7ºÐÀÇ 52.1431 52.1431 §³
(15.77Æò)
±Ý°î¸® 1080 66518.7ºÐÀÇ 63.7843 63.7843 §³
(19.29Æò)
°Ç¹°
±Ý°î¸® 1080 »ó°¡2µ¿ 2Ãþ201È£ ö±ÙÄÜÅ©¸®Æ®±¸Á¶ 43.9810 §³
(13.30Æò)
±Ý°î¸® 1080 »ó°¡2µ¿ 2Ãþ202È£ ö±ÙÄÜÅ©¸®Æ®±¸Á¶ 43.1300 §³
(13.05Æò)
±Ý°î¸® 1080 »ó°¡2µ¿ 2Ãþ203È£ ö±ÙÄÜÅ©¸®Æ®±¸Á¶ 52.7590 §³
(15.96Æò)
1) À§Ä¡/Á¦3Á¾ÀϹÝÁÖ°ÅÁö¿ª/ÀÚ¿¬³ìÁöÁö¿ª/Áö±¸´ÜÀ§°èȹ±¸¿ª/¹ö½ºÁ¤·ùÀå/ö±ÙÄÜÅ©¸®Æ®±¸Á¶ ´õº¸±â
°¨Á¤Æò°¡ ¿äÇ×Ç¥
1)À§Ä¡ ¹× ÁÖÀ§È¯°æ
º»°ÇÀº °æ±âµµ ³²¾çÁֽà ÁøÁ¢À¾ ±Ý°î¸® ¼ÒÀç "ÁøÁ¢°íµîÇб³" ³²Ãø Àαٿ¡ À§Ä¡Çϸç, ÁÖÀ§´Â
Áß´ë ±Ô¸ðÀÇ ¾ÆÆÄÆ®´ÜÁö, ±Ù¸°»ýȰ½Ã¼³ µîÀÌ È¥ÀçÇÏ´Â Áö¿ªÀ¸·Î¼­ Á¦¹Ý ÀÔÁöÁ¶°Ç ¹× ÁÖÀ§
ȯ°æÀº ¹«³­ÇÔ.
2)±³Åë»óȲ
º»°Ç±îÁö Á¦ Â÷·®ÀÇ ÁøÀÔÀÌ ¿ëÀÌÇϸç Àαٿ¡ ¹ö½ºÁ¤·ùÀåÀÌ ¼ÒÀçÇϰí ÀÖ¾î Àü¹ÝÀûÀÎ ±³Åë
»óÅ´ ¹«³­ÇÔ.
3)°Ç¹°ÀÇ ±¸Á¶
ö±ÙÄÜÅ©¸®Æ®±¸Á¶ (ö±Ù)ÄÜÅ©¸®Æ®ÁöºØ 2Ãþ Áß 2Ãþ 201È£,202È£,203È£·Î¼­,
(°Ç¹°»ç¿ë½ÂÀÎÀÏ : 2010.02.24)
¿Üº® : ¼®Àç ¸¶°¨ µî
³»º® : ¸ôÅ» À§ ÆäÀÎÆÃ, ÀÎÅ׸®¾î ¸¶°¨, ÀϺΠŸÀÏ ºÙÀÓ
âȣ : ¼¦½Ã âȣÀÓ
4)ÀÌ¿ë»óÅÂ
Á¦2Á¾±Ù¸°»ýȰ½Ã¼³(±âÈ£ 1 - 3, 201È£, 202È£, 203È£ Àüü È«·æÅ±ǵµÇпø)·Î ÀÌ¿ëÁßÀÓ.
5)¼³ºñ³»¿ª
±Þ¹è¼ö, »óÇϼöµµ, À§»ý¼³ºñ, È­Àç°æº¸¼³ºñ µîÀ» °®Ãß¾úÀ½.


6)ÅäÁöÀÇ Çü»ó ¹× ÀÌ¿ë»óÅÂ
»ç´Ù¸®ÇüÀÇ ÅäÁö·Î¼­ ÀÎÁ¢Áö¿Í ÆòźÇÏ¸ç ¾ÆÆÄÆ® ¹× ±Ù¸°»÷Ȱ½Ã¼³ °ÇºÎÁö·Î ÀÌ¿ë ÁßÀÓ.
7)ÀÎÁ¢ µµ·Î»óŵî
¾ÆÆÄÆ®´ÜÁö ¹× »ó°¡µ¿ ³»,¿Ü·Î Æ÷Àåµµ·Î°¡ °³¼³µÇ¾î ÀÖÀ½.
8)ÅäÁöÀÌ¿ë°èȹ ¹× Á¦ÇÑ»óÅÂ
ÀÚ¿¬³ìÁöÁö¿ª, Á¦3Á¾ÀϹÝÁÖ°ÅÁö¿ª, Áö±¸´ÜÀ§°èȹ±¸¿ª(ÁøÁ¢ÅÃÁöÁö±¸), ´ë·Î2·ù(Æø 30m-35m)
(Á¢ÇÕ), ¼Ò·Î3·ù(Æø 8m ¹Ì¸¸)(Á¢ÇÕ), Áß·Î1·ù(Æø 20m-25m)(Á¢ÇÕ), Áß·Î2·ù(Æø 15m-20m)
(Á¢ÇÕ), °¡Ãà»çÀ°Á¦Çѱ¸¿ª, »ó´ëº¸È£±¸¿ª(ÁøÁ¢°íµîÇб³), Àý´ëº¸È£±¸¿ª(ÁøÁ¢°íµîÇб³),
¹èÃâ½Ã¼³¼³Ä¡Á¦ÇÑÁö¿ª, ¼ºÀå°ü¸®±Ç¿ª, ÅÃÁö°³¹ßÁö±¸(ÁøÁ¢ÅÃÁö°³¹ßÁö±¸), (ÇѰ­)Æó±â¹°¸Å¸³
½Ã¼³ ¼³Ä¡Á¦ÇÑÁö¿ª.
9)°øºÎ¿ÍÀÇ Â÷ÀÌ
¾øÀ½.
10)±âŸÂü°í»çÇ×(ÀÓ´ë°ü·Ê ¹× ±âŸ)
ÀÓ´ë°ü°è : ¹Ì»ó
±â Ÿ : -
Âü°í
»çÇ×
Àϰý¸Å°¢
¸ñ·Ï1. ºÎµ¿»ê(201È£), ¸ñ·Ï2. ºÎµ¿»ê(202È£), ¸ñ·Ï3. ºÎµ¿»ê(203È£)À» º®Ã¼±¸ºÐ¾øÀÌ Å±ǵµÀåÀ¸·Î ÀÌ¿ëÁßÀÓ.

°ÇÃ๰ÇöȲ

¼ÒÀçÁö °æ±âµµ ³²¾çÁֽà ÁøÁ¢À¾ ±Ý°î¸® 1080¹øÁö
´ëÁö¸éÀû   ¿¬¸éÀû 6753.045§³
(2046.38Æò)
°ÇÃà¸éÀû 666.483§³
(201.96Æò)
¿ëÀû·ü»êÁ¤
¿¬¸éÀû
6753.045§³
(2046.38Æò)
°ÇÆóÀ²   ¿ëÀû·ü  
Áö»óÃþ¼ö 15Ãþ ÁöÇÏÃþ¼ö  
ÁÖ¿ëµµ °øµ¿ÁÖÅà ±¸Á¶ ö±ÙÄÜÅ©¸®Æ®±¸Á¶
Âø°øÀÏÀÚ 2007.08.20 »ç¿ë½ÂÀÎÀÏÀÚ 2010.02.24


µî±âºÎµîº» ¿ä¾à(°Ç¹°)

  Á¢¼öÀÏÀÚ µî±â¸ñÀû/±Ç¸®ÀÚ ±Ç¸®±Ý¾× ±âÁØ
1 2011³â8¿ù12ÀÏ
¼ÒÀ¯±Ç
Á¤OO
¼Ò¸ê
2 2011³â8¿ù12ÀÏ
±ÙÀú´ç±Ç
(OOOO
270,400,000 ¼Ò¸ê±âÁØ
3 2011³â8¿ù17ÀÏ
±ÙÀú´ç±Ç
ÃÖOO
96,000,000 ¼Ò¸ê
4 2024³â10¿ù15ÀÏ
ÀÓÀǰæ¸Å
(OOOO
¼Ò¸ê
5 2024³â11¿ù13ÀÏ
¾Ð·ù
³²OOO
¼Ò¸ê

ÀÓÂ÷ÀÎÇöȲ (¹è´ç¿ä±¸Á¾±âÀÏ: 2025-01-02)

ÀÓÂ÷ÀÎ ¿ëµµ/Á¡À¯ º¸Áõ±Ý/¿ù¼¼ ´ëÇ×·Â
ÀüÀÔÀÏ/È®Á¤ÀÏ ¹è´ç¿ä±¸ ºñ°í
¹ÚOO ¹Ì»ó 1Â÷30,000,000¿ø,2Â÷15,000,000¿ø
[¿ù]1Â÷1,430,000¿ø,2Â÷1,000,000¿ø
1Â÷2010.06.03,2Â÷ 2016.04.29
1Â÷2010.06.03,2Â÷2016.04.29
1Â÷2010.6.1~2012.6.1, 2Â÷2016.5.4.~2019.5.4
ÀÓOO 201È£ 50,000,000¿ø
[¿ù]2,500,000¿ø(ºÎ°¡°¡Ä¡¼¼º°µµ)
¹Ì»ó
¹Ì»ó
¹Ì»ó

¿©ÀÇÁÖ°æ¸Å Á¶¾ð ÇÑ ¸¶µð

ÃëÇÏ ¶Ç´Â Ãë¼ÒµÉ °¡´É¼º ÀÖ½À´Ï´Ù
ÀÌ ¹°°ÇÀÇ °¨Á¤°¡°ÝÀº 482,000,000¿øÀÔ´Ï´Ù. °æ¸Å¸¦ ½ÅûÇÑ Ã¤±ÇÀÚ°¡ ¹è´ç ¹Þ¾Æ¾ß ÇÒ ±Ý¾×Àº 156,238,081¿øÀ¸·Î °¨Á¤°¡°Ý ´ëºñ »ó´çÈ÷ ÀûÀº ±Ý¾×ÀÔ´Ï´Ù. ÀÌ·± °æ¿ì, 乫°¡°¡ º¯Á¦ÇÏ¿© °æ¸Å¸¦ ÃëÇϽÃŰ°Å³ª °æ¸Å½Åûä±ÇÀÚ°¡ ¹è´ç¹ÞÀº ±Ý¿øÀÌ ¾ø°ÔµÇ¾î À̸¥ ¹Ù "¹«À׿©¿¡ ÀÇÇÑ Ãë¼Ò"°¡ µÉ °¡´É¼ºÀÌ ÀÖ½À´Ï´Ù.

ÁÖÀÇ»çÇ× (ÃÖ¼±¼øÀ§ ¼³Á¤ÀÏ: 2011. 8. 12. ±ÙÀú´ç±Ç ¼³Á¤)

¸Å°¢À¸·Î ¼Ò¸êµÇÁö ¾Ê´Â µî±âºÎ±Ç¸®:
¸Å°¢À¸·Î ¼³Á¤µÈ °ÍÀ¸·Î º¸´Â Áö»ó±Ç:
1. Àϰý¸Å°¢ 2. ¸ñ·Ï 1,2,3 Àüü º®Ã¼ ±¸ºÐ¾øÀÌ Á¦2Á¾±Ù¸°»ýȰ½Ã¼³(È«·æÅ±ǵµÇпø)·Î ÀÌ¿ëÁßÀÓ
¡Ø¹Ì³³°ü¸®ºñ(°ø¿ë) Àμö¿©ºÎ¸¦ ÀÔÂû Àü¿¡ È®ÀÎÇϽñ⠹ٶø´Ï´Ù

 

Áö¿ªºÐ¼®

ÁöÇÏö¸í Á÷¼±°Å¸®

Çб³¸í ÀüÈ­¹øÈ£ ÁÖ¼Ò Á÷¼±°Å¸®

¹ý¿ø

ÀÇÁ¤ºÎÁö¹æ¹ý¿ø ³²¾çÁÖÁö¿ø (122-49)°æ±âµµ ³²¾çÁֽà ´Ù»êÁß¾Ó·Î82¹ø¾È±æ 161(´Ù»êµ¿)
´ëÇ¥ : 031)869-4114
°üÇÒÁö¿ª : °¡Æò±º, ±¸¸®½Ã, ³²¾çÁÖ½Ã

µî±â¼Ò ÀÇÁ¤ºÎÁö¹æ¹ý¿ø º»¿ø ³²¾çÁÖµî±â¼Ò (´ëÇ¥:1544-0773, ÆÑ½º:(031)551-2010, °æ±âµµ ³²¾çÁֽà °æÃá·Î 514 (Áö±Ýµ¿ 158-4))
¼¼¹«¼­ ³²¾çÁÖ¼¼¹«¼­ (´ëÇ¥:031-550-32, ÆÑ½º:031-566-1808, °æ±âµµ ±¸¸®½Ã ¾È°ñ·Î 36 (±³¹®µ¿))

Àαٳ«ÂûÅë°è

±â°£ ¸Å°¢°Ç¼ö Æò±Õ°¨Á¤°¡
Æò±Õ¸Å°¢°¡
¸Å°¢°¡À²
Æò±ÕÀ¯Âû¼ö
3°³¿ù 4°Ç 427,500,000¿ø
197,817,450¿ø
45%
3ȸ
6°³¿ù 18°Ç 551,111,111¿ø
293,011,007¿ø
54%
2.3ȸ
12°³¿ù 29°Ç 459,310,345¿ø
253,132,694¿ø
59%
2ȸ


º» °æ¸ÅÁ¤º¸´Â ¹ý¿øÀÚ·á¿Í ÀÏÄ¡Çϵµ·Ï ÇÏ¿´À¸³ª ±Ç¸®»çÇ׺¯µ¿, ÀÔ·ÂÂø¿À µîÀÇ ¿øÀÎÀ¸·Î »ç½Ç°ú ´Ù¸¦ ¼ö ÀÖ½À´Ï´Ù. ÀÌ¿ë¾à°ü¿¡ ÀǰЏéÃ¥Á¶°ÇÀ¸·Î Á¦°øµÊÀ» ¾Ë¸®¸ç, °æ¸ÅÀÔÂû½Ã ¹Ýµå½Ã °ü·Ã °øºÎ¸¦ ÀçÈ®ÀÎÇϽñ⠹ٶø´Ï´Ù. º¸´Ù Æí¸®ÇÑ °æ¸ÅÁ¤º¸ Á¦°øÀ» À§ÇØ Áö¼ÓÀûÀ¸·Î °³¼±ÇϰڽÀ´Ï´Ù. ÀÌ¿ëÇØ Áּż­ °¨»çÇÕ´Ï´Ù.