·Î±×ÀÎ
45
´Ù¼¼´ë(ºô¶ó)
ÀÎõÁö¹æ¹ý¿ø ºÎõÁö¿ø
 °¨Á¤°¡274,000,000 ¿ø
 ÃÖÀú°¡(100%) 274,000,000 ¿ø
 º¸Áõ±Ý(10%) 27,400,000 ¿ø
 Ã»±¸¾×272,000,000 ¿ø
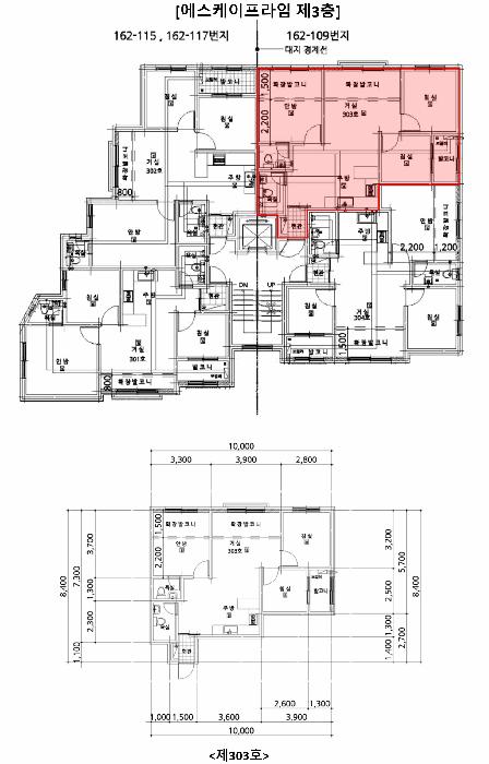
°æ±âµµ ºÎõ½Ã ¿ø¹Ì±¸ ¿ø¹Ìµ¿ 162-109 ¿¡½ºÄÉÀÌÇÁ¶óÀÓ 3Ãþ 303È£
»ç°Ç¹øÈ£ 2025Ÿ°æ32666
°æ¸ÅÁ¾·ùºÎµ¿»ê°­Á¦°æ¸Å
¸Å°¢´ë»óÅäÁö ¹× °Ç¹°Àϰý ¸Å°¢
¸Å°¢±âÀÏ    2026.03.11(¼ö) 10:00 ÀÔÂû 7ÀÏÀü    
ÅäÁö¸éÀû31.85§³(9.63 Æò)
°Ç¹°¸éÀû53.28§³(16.12 Æò)
乫/¼ÒÀ¯ÀÚ±èOO / ±èOO
ä±ÇÀÚÁÖOOOOOOO
ÆäÀ̽ººÏ Æ®À§ÅÍ ±¸±Û+
īī¿À½ºÅ丮
īī¿ÀÅå sms¹®ÀÚº¸³»±â
 

±âÀϳ»¿ª

°æ°ú ³¯Â¥ Àú°¨ ÃÖÀú°¡ °á°ú
Á¢¼öÀÏ 2025-02-18 °æ¸ÅÁ¢¼ö
~1ÀÏ 
2025-02-19 °æ¸Å°³½Ã°áÁ¤
~97ÀÏ 
2025-05-26 ¹è´ç¿ä±¸Á¾±âÀÏ
~386ÀÏ 
2026-03-11 100%
274,000,000
ÁøÇà
¹°°Ç¸í¼¼¼­ ÇöȲÁ¶»ç¼­ ¹®°ÇÁ¢¼ö ¼Û´Þ³»¿ª

°¨Á¤Æò°¡ÇöȲ

¸ñ·Ï ÁÖ¼Ò ±¸Á¶/¿ëµµ/´ëÁö±Ç ¸éÀû ºñ°í
´ëÁö±Ç
¿ø¹Ìµ¿ 162-109 221ºÐÀÇ 31.8507 31.8507 §³
(9.63Æò)
°Ç¹°
¿ø¹Ìµ¿ 162-109 3Ãþ 303È£ ö±ÙÄÜÅ©¸®Æ®±¸Á¶ 53.28 §³
(16.12Æò)
1) À§Ä¡/Á¦3Á¾ÀϹÝÁÖ°ÅÁö¿ª/Áö±¸´ÜÀ§°èȹ±¸¿ª/¹ö½ºÁ¤·ùÀå/Â÷·® Á¢±ÙÀÌ °¡´É/ö±ÙÄÜÅ©¸®Æ®±¸Á¶ ´õº¸±â
°¨Á¤Æò°¡ ¿äÇ×Ç¥
1)À§Ä¡ ¹× ÁÖÀ§È¯°æ
º»°ÇÀº °æ±âµµ ºÎõ½Ã ¿ø¹Ì±¸ ¿ø¹Ìµ¿ ¼ÒÀç 'ºÎõºÏÃʵîÇб³' µ¿Ãø Àαٿ¡ À§Ä¡Çϸç, ÁÖÀ§´Â ±Ù¸°»ýȰ½Ã¼³, ´Üµ¶ÁÖÅÃ, ´Ù¼¼´ëÁÖÅà ¹× ¾ÆÆÄÆ® µîÀÌ È¥ÀçÇÏ´Â Áö´ëÀÓ.
2)±³Åë»óȲ
º»°Ç±îÁö Â÷·® Á¢±ÙÀÌ °¡´ÉÇϰí Àαٿ¡ ¹ö½ºÁ¤·ùÀåÀÌ ¼ÒÀçÇÏ¿© Á¦¹Ý ´ëÁß±³Åë ¿©°ÇÀº º¸ÅëÀÓ.

3)°Ç¹°ÀÇ ±¸Á¶
ö±ÙÄÜÅ©¸®Æ®±¸Á¶ ö±ÙÄÜÅ©¸®Æ®ÁöºØ 5Ãþ °Ç¹° ³» Á¦3Ãþ Á¦303È£·Î¼­,
¿Üº® : ¼®ÀçºÙÀÓ, Ä¡À庮µ¹ ¹× ÆäÀÎÆÃ µî ¸¶°¨.
âȣ : »þ½Ã âȣ µîÀÓ.
4)ÀÌ¿ë»óÅÂ
°øµ¿ÁÖÅÃ(µµ½ÃÇü»ýȰÁÖÅÃ)À¸·Î ÀÌ¿ë ÁßÀÓ.

5)¼³ºñ³»¿ª
À§»ý¼³ºñ, ±Þ¹è¼ö¼³ºñ, ³­¹æ¼³ºñ, ¿¤¸®º£ÀÌÅͼ³ºñ µîÀ» ±¸ºñÇϰí ÀÖÀ½.

6)ÅäÁöÀÇ Çü»ó ¹× ÀÌ¿ë»óÅÂ
´ëü·Î À广Çü ÅäÁö·Î ÇöȲ °øµ¿ÁÖÅÃÀÇ °ÇºÎÁö·Î ÀÌ¿ë ÁßÀÓ.

7)ÀÎÁ¢ µµ·Î»óŵî
º»°ÇÀº ºÏÃøÀ¸·Î Æ÷Àåµµ·Î¿Í Á¢ÇÔ.

8)ÅäÁöÀÌ¿ë°èȹ ¹× Á¦ÇÑ»óÅÂ
Á¦3Á¾ÀϹÝÁÖ°ÅÁö¿ª , Áö±¸´ÜÀ§°èȹ±¸¿ª
°¡Ãà»çÀ°Á¦Çѱ¸¿ª(ÀüºÎÁ¦Çѱ¸¿ª)<°¡ÃàºÐ´¢ÀÇ °ü¸® ¹× À̿뿡 °üÇÑ ¹ý·ü>, µµ½É °ø°øÁÖÅà º¹ÇÕÁö±¸<°ø°øÁÖÅà Ưº°¹ý>, »ó´ëº¸È£±¸¿ª(·ëºñ´ÏÀ¯Ä¡¿ø-±³À°Ã»¹®ÀÇ)<±³À°È¯°æ º¸È£¿¡ °üÇÑ ¹ý·ü>, °ú¹Ð¾ïÁ¦±Ç¿ª<¼öµµ±ÇÁ¤ºñ°èȹ¹ý>
9)°øºÎ¿ÍÀÇ Â÷ÀÌ
ÇØ´ç»çÇ× ¾øÀ½.

10)±âŸÂü°í»çÇ×(ÀÓ´ë°ü·Ê ¹× ±âŸ)
ÀÓ´ë°ü°è ¹Ì»óÀÓ.

°ÇÃ๰ÇöȲ

¼ÒÀçÁö °æ±âµµ ºÎõ½Ã ¿ø¹Ì±¸ ¿ø¹Ìµ¿ 162-109¹øÁö
´ëÁö¸éÀû 221§³
(66.97Æò)
¿¬¸éÀû 419.085§³
(127Æò)
°ÇÃà¸éÀû 142.15§³
(43.08Æò)
¿ëÀû·ü»êÁ¤
¿¬¸éÀû
419.085§³
(127Æò)
°ÇÆóÀ² 64.32% ¿ëÀû·ü 189.63%
Áö»óÃþ¼ö 5Ãþ ÁöÇÏÃþ¼ö  
ÁÖ¿ëµµ °øµ¿ÁÖÅà ±¸Á¶ ö±ÙÄÜÅ©¸®Æ®±¸Á¶
Âø°øÀÏÀÚ 2018.07.30 »ç¿ë½ÂÀÎÀÏÀÚ 2019.01.18
°ÇÃ๰Ãþº°ÇöȲ [º¸±â]


µî±âºÎµîº» ¿ä¾à(°Ç¹°)

  Á¢¼öÀÏÀÚ µî±â¸ñÀû/±Ç¸®ÀÚ ±Ç¸®±Ý¾× ±âÁØ
1 2020³â10¿ù14ÀÏ
¼ÒÀ¯±Ç
±èOO
¼Ò¸ê
2 2022³â11¿ù8ÀÏ
¾àÁ¤/±ÝÁö»çÇ×/ȯ¸ÅƯ¾à
Àμö
3 2023³â10¿ù17ÀÏ
¾Ð·ù
±¹
¼Ò¸ê±âÁØ
4 2024³â4¿ù2ÀÏ
ÀÓÂ÷±Ç¼³Á¤
½ÅOO
264,000,000 ¼Ò¸ê
5 2024³â8¿ù19ÀÏ
¾Ð·ù
ºÎOO
¼Ò¸ê
6 2025³â2¿ù19ÀÏ
°­Á¦°æ¸Å
ÁÖOOOO
¼Ò¸ê

ÀÓÂ÷ÀÎÇöȲ (¹è´ç¿ä±¸Á¾±âÀÏ: 2025-05-26)



¸Å°¢±âÀÏ 7ÀÏÀü¿¡ ¸Å°¢¹°°Ç¸í¼¼¼­°¡ °ø°íµÇ¿À´Ï È®ÀÎÇϽñ⠹ٶø´Ï´Ù.

ÀÓÂ÷ÀÎ ¿ëµµ/Á¡À¯ º¸Áõ±Ý/¿ù¼¼ ´ëÇ×·Â
ÀüÀÔÀÏ/È®Á¤ÀÏ ¹è´ç¿ä±¸ ºñ°í
½ÅOO ÀüºÎ (1)264,000,000(2)272,000,000
O
2020.09.11.
(1)2020.08.18.(2)2022.07.20.
2020.09.10.
ÁÖOOOOOOOOOOOOOOO ÀüºÎ (1)264,000,000(2)272,000,000
O
2020.09.11.
(1)2020.08.18.(2)2022.07.20.
2025.5.23. (1)2020.09.10.~2022.09.09.(2)2022.08.25.~2024.05.24.
ºñ°í
(¸Å°¢¹°°Ç
¸í¼¼¼­)
½ÅÇà³²: ÁÖÅÃÀÓÂ÷±Çµî±â±Ç¸®Àڷμ­ ÁÖÅÃÀÓÂ÷±Çµî±âÀÏÀº 2024. 4. 2.ÀÓ ÁÖÅõµ½Ãº¸Áõ°ø»ç(ÀÓÂ÷ÀÎ ½ÅÇà³²): °æ¸Å½Åûä±ÇÀÚÀ̰í ÀÓÂ÷ÀÎ ½ÅÇà³²ÀÇ ÀÓÂ÷º¸Áõ±Ý¹Ýȯä±Ç ¾ç¼öÀÎÀ¸·Î¼­, º¸Áõ±Ý Àü¾×À» ¹è ´ç¹ÞÁö ¸øÇÏ´õ¶óµµ ÀÜÁ¸ ÀÓÂ÷º¸Áõ±Ý¹Ýȯä±ÇÀ» Æ÷±âÇϰí ÁÖÅÃÀÓÂ÷±Çµî±â ¸»¼Ò¿¡ µ¿ÀÇÇÑ´Ù´Â ÃëÁöÀÇ È®¾à¼­¸¦ Á¦ÃâÇÔ

¿©ÀÇÁÖ°æ¸Å Á¶¾ð ÇÑ ¸¶µð

¼±¼øÀ§ ÀÓÂ÷±Çµî±â°¡ µÇ¾î ÀÖ½À´Ï´Ù
´ëÇ×·ÂÀÌ ÀÖ´Â ¼±¼øÀ§ ÀÓÂ÷±Çµî±â ±Ç¸®ÀÚ°¡ ¹è´çÀ» Àü¾× ¹ÞÁö ¸øÇÒ °æ¿ì ³«ÂûÀÚ°¡ ÀÜ¿© º¸Áõ±ÝÀ» ÀμöÇØ¾ßÇÏ´Â °æ¿ìµµ ÀÖ½À´Ï´Ù.

ÁÖÀÇ»çÇ× (ÃÖ¼±¼øÀ§ ¼³Á¤ÀÏ: 2023.10.17.¾Ð·ù ¼³Á¤)

¸Å°¢À¸·Î ¼Ò¸êµÇÁö ¾Ê´Â µî±âºÎ±Ç¸®: À»±¸ ¼øÀ§ 1¹ø ÁÖÅÃÀÓÂ÷±Çµî±â(´Ù¸¸ ÁÖÅõµ½Ãº¸Áõ°ø»çÀÇ ¸»¼Òµ¿ÀÇ È®¾à¼­°¡ Á¦ÃâµÊ)
¸Å°¢À¸·Î ¼³Á¤µÈ °ÍÀ¸·Î º¸´Â Áö»ó±Ç:
¡Ø¹Ì³³°ü¸®ºñ(°ø¿ë) Àμö¿©ºÎ¸¦ ÀÔÂû Àü¿¡ È®ÀÎÇϽñ⠹ٶø´Ï´Ù

 

Áö¿ªºÐ¼®

ÁöÇÏö¸í Á÷¼±°Å¸®

Çб³¸í ÀüÈ­¹øÈ£ ÁÖ¼Ò Á÷¼±°Å¸®

¹ý¿ø

ÀÎõÁö¹æ¹ý¿ø ºÎõÁö¿ø (146-02)°æ±âµµ ºÎõ½Ã ¿ø¹Ì±¸ »óÀÏ·Î 129(»óµ¿)
´ëÇ¥ : 032)320-1114, ¹Î¿ø : 032)320-1234
°üÇÒÁö¿ª : ºÎõ½Ã, ±èÆ÷½Ã

µî±â¼Ò ÀÎõÁö¹æ¹ý¿ø ºÎõÁö¿ø µî±â°ú (´ëÇ¥:1544-0773, ÆÑ½º:(032)320-1484, 320-1485, °æ±âµµ ºÎõ½Ã »óÀÏ·Î 129 (»óµ¿ 445-1))
¼¼¹«¼­ ¼¼¹«¼­ (´ëÇ¥:, ÆÑ½º:, )

Àαٳ«ÂûÅë°è

±â°£ ¸Å°¢°Ç¼ö Æò±Õ°¨Á¤°¡
Æò±Õ¸Å°¢°¡
¸Å°¢°¡À²
Æò±ÕÀ¯Âû¼ö


º» °æ¸ÅÁ¤º¸´Â ¹ý¿øÀÚ·á¿Í ÀÏÄ¡Çϵµ·Ï ÇÏ¿´À¸³ª ±Ç¸®»çÇ׺¯µ¿, ÀÔ·ÂÂø¿À µîÀÇ ¿øÀÎÀ¸·Î »ç½Ç°ú ´Ù¸¦ ¼ö ÀÖ½À´Ï´Ù. ÀÌ¿ë¾à°ü¿¡ ÀǰЏéÃ¥Á¶°ÇÀ¸·Î Á¦°øµÊÀ» ¾Ë¸®¸ç, °æ¸ÅÀÔÂû½Ã ¹Ýµå½Ã °ü·Ã °øºÎ¸¦ ÀçÈ®ÀÎÇϽñ⠹ٶø´Ï´Ù. º¸´Ù Æí¸®ÇÑ °æ¸ÅÁ¤º¸ Á¦°øÀ» À§ÇØ Áö¼ÓÀûÀ¸·Î °³¼±ÇϰڽÀ´Ï´Ù. ÀÌ¿ëÇØ Áּż­ °¨»çÇÕ´Ï´Ù.