·Î±×ÀÎ
77
¾ÆÆÄÆ®
¼ö¿øÁö¹æ¹ý¿ø ¾È¾çÁö¿ø
 °¨Á¤°¡714,000,000 ¿ø
 ÃÖÀú°¡(100%) 714,000,000 ¿ø
 º¸Áõ±Ý(10%) 71,400,000 ¿ø
 Ã»±¸¾×611,989,343 ¿ø
°æ±âµµ Àǿսà ÇÐÀǵ¿ 1152 ¹é¿î¹ë¸®·¹ÀÌÅ©Æ÷·¹4´ÜÁö 402µ¿ 10Ãþ1005È£
»ç°Ç¹øÈ£ 2025Ÿ°æ101024
°æ¸ÅÁ¾·ùºÎµ¿»êÀÓÀǰæ¸Å
¸Å°¢´ë»óÅäÁö ¹× °Ç¹°Àϰý ¸Å°¢
¸Å°¢±âÀÏ    2026.03.10(È­) 10:00 ÀÔÂû 6ÀÏÀü    
ÅäÁö¸éÀû54.62§³(16.52 Æò)
°Ç¹°¸éÀû74.89§³(22.66 Æò)
乫/¼ÒÀ¯ÀÚ±èOO / ±èOO
ä±ÇÀÚ¿¥OOOOO OOOO
ÆäÀ̽ººÏ Æ®À§ÅÍ ±¸±Û+
īī¿À½ºÅ丮
īī¿ÀÅå sms¹®ÀÚº¸³»±â
 

±âÀϳ»¿ª

°æ°ú ³¯Â¥ Àú°¨ ÃÖÀú°¡ °á°ú
Á¢¼öÀÏ 2025-04-28 °æ¸ÅÁ¢¼ö
~1ÀÏ 
2025-04-29 °æ¸Å°³½Ã°áÁ¤
~84ÀÏ 
2025-07-21 ¹è´ç¿ä±¸Á¾±âÀÏ
~316ÀÏ 
2026-03-10 100%
714,000,000
ÁøÇà
¹°°Ç¸í¼¼¼­ ÇöȲÁ¶»ç¼­ ¹®°ÇÁ¢¼ö ¼Û´Þ³»¿ª

°¨Á¤Æò°¡ÇöȲ

¸ñ·Ï ÁÖ¼Ò ±¸Á¶/¿ëµµ/´ëÁö±Ç ¸éÀû ºñ°í
´ëÁö±Ç
ÇÐÀǵ¿ 1152 18275ºÐÀÇ 54.6185 54.6185 §³
(16.52Æò)
°Ç¹°
ÇÐÀǵ¿ 1152 402µ¿ 10Ãþ1005È£ ö±ÙÄÜÅ©¸®Æ®±¸Á¶ 74.8941 §³
(22.66Æò)
1) À§Ä¡/°ü¸®Áö¿ª/Á¦2Á¾ÀϹÝÁÖ°ÅÁö¿ª/Áö±¸´ÜÀ§°èȹ±¸¿ª/ÁöÇÏö/ö±ÙÄÜÅ©¸®Æ®±¸Á¶/°æ»çÁöºØ/Áö¿ª³­¹æ ´õº¸±â
°¨Á¤Æò°¡ ¿äÇ×Ç¥
1)À§Ä¡ ¹× ÁÖÀ§È¯°æ
°æ±âµµ Àǿսà ÇÐÀǵ¿, ¹é¿îÈ£¼öÃʵîÇб³ ³²¼­Ãø Àαٿ¡ À§Ä¡Çϸç, ÁÖÀ§´Â
¾ÆÆÄÆ®, ´Ù¼¼´ëÁÖÅà µîÀÌ ¾î¿ì·¯Áø ÀϹÝÁÖ°ÅÁö´ëÀÓ.
2)±³Åë»óȲ
³ë¼±¹ö½º°¡ Åë°úÇÏ´Â ¹é¿îÈ£¼ö·Î ÁÖº¯À̰í, ÁöÇÏö 4È£¼± Àδö¿ø¿ª±îÁö´Â 5.5ų·Î¹ÌÅÍ
°Å¸®ÀÓ.
3)°Ç¹°ÀÇ ±¸Á¶
ö±ÙÄÜÅ©¸®Æ®±¸Á¶ (ö±Ù)ÄÜÅ©¸®Æ®°æ»çÁöºØ 16Ãþ ¾ÆÆÄÆ®ÀÇ Á¦10ÃþÀ¸·Î¼­
¿Üº®Àº ¸ð¸£ÅÍÀ§ ÆäÀÎÆ®Ä¥ µî,
³»º®Àº º®Áöµµ¹è, ŸÀϺÙÀÓ µîÀ̰í,
âȣ´Â »û½ÃâȣÀÓ.
4)ÀÌ¿ë»óÅÂ
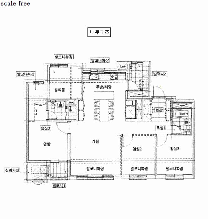
¾ÆÆÄÆ® ´ÜÀ§¼¼´ë·Î¼­ ¹æ(3°³), ¿å½Ç(2°³), °Å½Ç, ÁÖ¹æ/½Ä´ç µîÀ¸·Î ±¸¼ºµÇ¾î ÀÖÀ½.
5)¼³ºñ³»¿ª
À§»ý¼³ºñ, ±Þ¹è¼ö¼³ºñ, ³­¹æ¼³ºñ(Áö¿ª³­¹æ), ½Â°­±â¼³ºñ, ¼Ò¹æ¼³ºñ µî.
6)ÅäÁöÀÇ Çü»ó ¹× ÀÌ¿ë»óÅÂ
ºÎÁ¤Çü ÆòÁö·Î¼­, ¾ÆÆÄÆ®´ÜÁö·Î ÀÌ¿ëµÇ°í ÀÖÀ½.
7)ÀÎÁ¢ µµ·Î»óŵî
Æø 12¹ÌÅÍ Æ÷Àåµµ·ÎÀÎ ¹é¿îÈ£¼ö·Î1±æÀ» ÅçÇÏ¿© ÃâÀÔÇϸç, Á¢±Ù¼º º¸ÅëÀÓ.
8)ÅäÁöÀÌ¿ë°èȹ ¹× Á¦ÇÑ»óÅÂ
Á¦2Á¾ÀϹÝÁÖ°ÅÁö¿ª, Áö±¸´ÜÀ§°èȹ±¸¿ª, ¼Ò·Î2·ù(Æø8m~10m)(ÀúÃË), Áß·Î3·ù(Æø12m
~15m)(Á¢ÇÕ), °¡Ãà»çÀ°Á¦Çѱ¸¿ª(ÀüºÎÁ¦Çѱ¸¿ª), ´ë±â°ü¸®±Ç¿ª, ´ë±âȯ°æ±ÔÁ¦Áö¿ª,
±³Åë±âŸ¿ëµµÁö¿ªÁö±¸¹ÌºÐ·ù, µµ½Ã°³¹ß±¸¿ª, µµ½Ã±³ÅëÁ¤ºñÁö¿ª, °ú¹Ð¾ïÁ¦Áö¿ª,
»ýȰ¼ÒÀ½Áøµ¿°ü¸®Áö¿ª, °ú¹Ð¾ïÁ¦±Ç¿ª, ¹è¼ö±¸¿ª(Æ÷ÀϹè¼ö±¸¿ª), Çϼö󸮱¸¿ª(Æ÷ÀÏ
󸮱¸¿ª).
9)°øºÎ¿ÍÀÇ Â÷ÀÌ
¾øÀ½.
10)±âŸÂü°í»çÇ×(ÀÓ´ë°ü·Ê ¹× ±âŸ)
ÀÓ´ë°ü°è ¹Ì»óÀÓ.

°ÇÃ๰ÇöȲ

¼ÒÀçÁö °æ±âµµ Àǿսà ÇÐÀǵ¿ 1152¹øÁö
´ëÁö¸éÀû   ¿¬¸éÀû 6101.3183§³
(1848.88Æò)
°ÇÃà¸éÀû 591.0879§³
(179.12Æò)
¿ëÀû·ü»êÁ¤
¿¬¸éÀû
6101.3183§³
(1848.88Æò)
°ÇÆóÀ²   ¿ëÀû·ü  
Áö»óÃþ¼ö 16Ãþ ÁöÇÏÃþ¼ö  
ÁÖ¿ëµµ °øµ¿ÁÖÅà ±¸Á¶ ö±ÙÄÜÅ©¸®Æ®±¸Á¶
Âø°øÀÏÀÚ 2017.10.18 »ç¿ë½ÂÀÎÀÏÀÚ 2020.01.20
°ÇÃ๰Ãþº°ÇöȲ [º¸±â]


µî±âºÎµîº» ¿ä¾à(°Ç¹°)

  Á¢¼öÀÏÀÚ µî±â¸ñÀû/±Ç¸®ÀÚ ±Ç¸®±Ý¾× ±âÁØ
1 2020³â5¿ù28ÀÏ
¼ÒÀ¯±Ç
±èOO
¼Ò¸ê
2 2024³â3¿ù27ÀÏ
±ÙÀú´ç±Ç
¿¥OOOO
696,000,000 ¼Ò¸ê±âÁØ
3 2025³â2¿ù17ÀÏ
¾Ð·ù
ÀÇOO
¼Ò¸ê
4 2025³â4¿ù29ÀÏ
ÀÓÀǰæ¸Å
¿¥OOOO
¼Ò¸ê
5 2025³â6¿ù12ÀÏ
°¡¾Ð·ù
¼­OOOO
11,312,307 ¼Ò¸ê

ÀÓÂ÷ÀÎÇöȲ (¹è´ç¿ä±¸Á¾±âÀÏ: 2025-07-21)


Á¶»çµÈ ÀÓÂ÷³»¿ªÀÌ ¾ø½À´Ï´Ù.


¿©ÀÇÁÖ°æ¸Å Á¶¾ð ÇÑ ¸¶µð


ÁÖÀÇ»çÇ× (ÃÖ¼±¼øÀ§ ¼³Á¤ÀÏ: 2024.3.27. ±ÙÀú´ç±Ç ¼³Á¤)

¸Å°¢À¸·Î ¼Ò¸êµÇÁö ¾Ê´Â µî±âºÎ±Ç¸®:
¸Å°¢À¸·Î ¼³Á¤µÈ °ÍÀ¸·Î º¸´Â Áö»ó±Ç:
¡Ø¹Ì³³°ü¸®ºñ(°ø¿ë) Àμö¿©ºÎ¸¦ ÀÔÂû Àü¿¡ È®ÀÎÇϽñ⠹ٶø´Ï´Ù

 

Áö¿ªºÐ¼®

ÁöÇÏö¸í Á÷¼±°Å¸®

Çб³¸í ÀüÈ­¹øÈ£ ÁÖ¼Ò Á÷¼±°Å¸®

¹ý¿ø

¼ö¿øÁö¹æ¹ý¿ø ¾È¾çÁö¿ø (140-54)°æ±âµµ ¾È¾ç½Ã µ¿¾È±¸ °üÆò·Î 212¹ø±æ 70 (°ü¾çµ¿)
´ëÇ¥ : 031)8086-1114, ¾ß°£ : 031)8086-1380
°üÇÒÁö¿ª : ¾È¾ç½Ã, ±ºÆ÷½Ã, ÀǿսÃ, °úõ½Ã

µî±â¼Ò ¼ö¿øÁö¹æ¹ý¿ø ¾È¾çÁö¿ø ¾È¾çµî±â¼Ò (´ëÇ¥:1544-0773, ÆÑ½º:(031)8086-4599, °æ±âµµ ¾È¾ç½Ã µ¿¾È±¸ °üÆò·Î212¹ø±æ 69 (°ü¾çµ¿ 1588-18))
¼¼¹«¼­ µ¿¾È¾ç¼¼¹«¼­ (´ëÇ¥:031-389-82, ÆÑ½º:0503-112-9375, °æ±âµµ ¾È¾ç½Ã µ¿¾È±¸ °üÆò·Î202¹ø±æ 27 (°ü¾çµ¿))

Àαٳ«ÂûÅë°è

±â°£ ¸Å°¢°Ç¼ö Æò±Õ°¨Á¤°¡
Æò±Õ¸Å°¢°¡
¸Å°¢°¡À²
Æò±ÕÀ¯Âû¼ö


º» °æ¸ÅÁ¤º¸´Â ¹ý¿øÀÚ·á¿Í ÀÏÄ¡Çϵµ·Ï ÇÏ¿´À¸³ª ±Ç¸®»çÇ׺¯µ¿, ÀÔ·ÂÂø¿À µîÀÇ ¿øÀÎÀ¸·Î »ç½Ç°ú ´Ù¸¦ ¼ö ÀÖ½À´Ï´Ù. ÀÌ¿ë¾à°ü¿¡ ÀǰЏéÃ¥Á¶°ÇÀ¸·Î Á¦°øµÊÀ» ¾Ë¸®¸ç, °æ¸ÅÀÔÂû½Ã ¹Ýµå½Ã °ü·Ã °øºÎ¸¦ ÀçÈ®ÀÎÇϽñ⠹ٶø´Ï´Ù. º¸´Ù Æí¸®ÇÑ °æ¸ÅÁ¤º¸ Á¦°øÀ» À§ÇØ Áö¼ÓÀûÀ¸·Î °³¼±ÇϰڽÀ´Ï´Ù. ÀÌ¿ëÇØ Áּż­ °¨»çÇÕ´Ï´Ù.