·Î±×ÀÎ
73
¾ÆÆÄÆ®
ÀÇÁ¤ºÎÁö¹æ¹ý¿ø °í¾çÁö¿ø
 °¨Á¤°¡900,000,000 ¿ø
 ÃÖÀú°¡(100%) 900,000,000 ¿ø
 º¸Áõ±Ý(10%) 90,000,000 ¿ø
 Ã»±¸¾×684,000,000 ¿ø
°æ±âµµ °í¾ç½Ã Àϻ굿±¸ ½Ä»çµ¿ 1565 À§½ÃƼºí·ç¹Ö5´ÜÁö 507µ¿ 19Ãþ1903È£
»ç°Ç¹øÈ£ 2025Ÿ°æ5632
°æ¸ÅÁ¾·ùºÎµ¿»êÀÓÀǰæ¸Å
¸Å°¢´ë»óÅäÁö ¹× °Ç¹°Àϰý ¸Å°¢
¸Å°¢±âÀÏ    2026.03.10(È­) 10:00 ÀÔÂû 7ÀÏÀü    
ÅäÁö¸éÀû87.12§³(26.35 Æò)
°Ç¹°¸éÀû154.74§³(46.81 Æò)
乫/¼ÒÀ¯ÀÚäOO OOOO OOOOO OOO / äOO OOOO OOOOO OOO
ä±ÇÀÚÁÖOOO OOOO
ÆäÀ̽ººÏ Æ®À§ÅÍ ±¸±Û+
īī¿À½ºÅ丮
īī¿ÀÅå sms¹®ÀÚº¸³»±â
 

±âÀϳ»¿ª

°æ°ú ³¯Â¥ Àú°¨ ÃÖÀú°¡ °á°ú
Á¢¼öÀÏ 2025-09-17 °æ¸ÅÁ¢¼ö
~1ÀÏ 
2025-09-18 °æ¸Å°³½Ã°áÁ¤
~82ÀÏ 
2025-12-08 ¹è´ç¿ä±¸Á¾±âÀÏ
~174ÀÏ 
2026-03-10 100%
900,000,000
ÁøÇà
¹°°Ç¸í¼¼¼­ ÇöȲÁ¶»ç¼­ ¹®°ÇÁ¢¼ö ¼Û´Þ³»¿ª

°¨Á¤Æò°¡ÇöȲ

¸ñ·Ï ÁÖ¼Ò ±¸Á¶/¿ëµµ/´ëÁö±Ç ¸éÀû ºñ°í
´ëÁö±Ç
½Ä»çµ¿ 1565 65847.7ºÐÀÇ 87.1233 87.1233 §³
(26.35Æò)
°Ç¹°
½Ä»çµ¿ 1565 507µ¿ 19Ãþ1903È£ ö±ÙÄÜÅ©¸®Æ®Á¶ 154.74 §³
(46.81Æò)
1) À§Ä¡/µµ½ÃÁö¿ª/Á¦3Á¾ÀϹÝÁÖ°ÅÁö¿ª/Áö±¸´ÜÀ§°èȹ±¸¿ª/ÁöÇÏÁÖÂ÷Àå/ÁÖÁ¤Â÷°¡ °¡´É/³ë¼±¹ö½º Á¤·ùÀå/ö±ÙÄÜÅ©¸®Æ®±¸Á¶/Áö¿ª³­¹æ/¿­º´ÇÕ/¹æ4/¿å½Ç2 ´õº¸±â
°¨Á¤Æò°¡ ¿äÇ×Ç¥
1)À§Ä¡ ¹× ÁÖÀ§È¯°æ
º»°ÇÀº °æ±âµµ °í¾ç½Ã Àϻ굿±¸ ½Ä»çµ¿ ¼ÒÀç '¿øÁßÃʵîÇб³' ¼­Ãø Àαٿ¡ À§Ä¡Çϸç ÁÖÀ§´Â ´ë±Ô¸ð ¾ÆÆÄÆ®´ÜÁö, °¢Á¾ ±Ù¸°»ýȰ½Ã¼³ µîÀÌ È¥ÀçÇÏ´Â ÀϹÝÁÖ°ÅÁö´ëÀÓ.
2)±³Åë»óȲ
º»°Ç±îÁö Â÷·® ÁøÀÔ ¹× ÁÖÁ¤Â÷°¡ °¡´ÉÇϰí Àαٿ¡ ³ë¼±¹ö½º Á¤·ùÀåÀÌ ¼ÒÀçÇÏ´Â ¹Ù, Á¤·ùÀå±î ÁöÀÇ °Å¸® ¹× ¿îÇà»óÅ µîÀ¸·Î º¸¾Æ Á¦¹Ý ´ëÁß±³Åë »çÁ¤Àº º¸ÅëÀÎ ÆíÀÓ.
3)°Ç¹°ÀÇ ±¸Á¶
ö±ÙÄÜÅ©¸®Æ®±¸Á¶ (ö±Ù)ÄÜÅ©¸®Æ®ÁöºØ 30Ãþ °Ç¹° ³» 19Ãþ 1903È£·Î¼­, ¿Ü º® : ÀÎÁ¶¼® ºÙÀÓ ¸¶°¨ µî, ³» º® : º®Áö ¹× ÀϺΠŸÀÏ ¸¶°¨, â È£ : ¼¦½Ã âȣÀÓ.
4)ÀÌ¿ë»óÅÂ
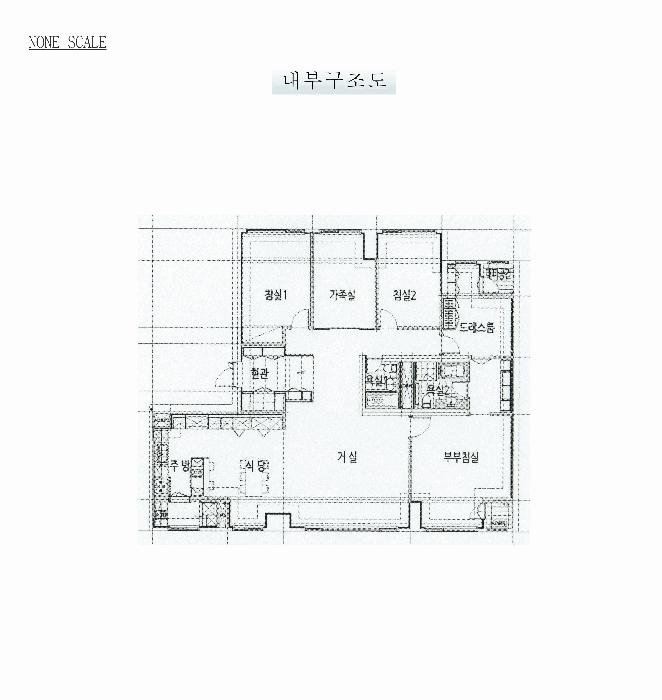
¾ÆÆÄÆ®(¹æ4, °Å½Ç, ÁÖ¹æ, ½Ä´ç, ¿å½Ç2, µå·¹½º·ë µî)·Î ÀÌ¿ëÁßÀÓ.
5)¼³ºñ³»¿ª
¿­º´ÇÕ¹ßÀü¿¡ ÀÇÇÑ Áö¿ª³­¹æ¼³ºñ, ½Â°­±â¼³ºñ, ÁöÇÏÁÖÂ÷Àå½Ã¼³, À§»ý¼³ºñ ¹× ±Þ¹è¼ö½Ã¼³ µî ÀÌ µÇ¾î ÀÖÀ½.
6)ÅäÁöÀÇ Çü»ó ¹× ÀÌ¿ë»óÅÂ
ÀÎÁ¢Áö ´ëºñ ´ëü·Î µî°í ÆòźÇÑ ºÎÁ¤Çü ÅäÁö·Î¼­ ÁÖ»ó¿ë °ÇºÎÁö·Î ÀÌ¿ëÁßÀÓ.
7)ÀÎÁ¢ µµ·Î»óŵî
Àüü ´ÜÁö µ¿ÃøÀ¸·Î °³¼³µÈ ¿Õº¹ 2Â÷¼±ÀÇ Æ÷Àåµµ·Î°¡ ´ÜÁö ÁÖÃâÀÔ·Î¿Í ¿¬°áµÇ¾î ÀÖÀ½.
8)ÅäÁöÀÌ¿ë°èȹ ¹× Á¦ÇÑ»óÅÂ
Á¦3Á¾ÀϹÝÁÖ°ÅÁö¿ª, Áö±¸´ÜÀ§°èȹ±¸¿ª(°í¾ç½Ä»ç±¸¿ª), Áß·Î1·ù(Æø 20m~25m)(Á¢ÇÔ), Áß·Î2·ù( Æø 15m~20m)(Á¢ÇÔ), °¡Ãà»çÀ°Á¦Çѱ¸¿ª(2024-11-12)(ÀϺÎÁ¦Çѱ¸¿ª [ÀüºÎÁ¦Çѱ¸¿ªÀ¸·ÎºÎÅÍ Á¦ ÇѰŸ® 500m (¼Ò,Á¥¼Ò,¸» Á¦ÇÑ)]), °¡Ãà»çÀ°Á¦Çѱ¸¿ª(2024-11-12)(ÀüºÎÁ¦Çѱ¸¿ª [µµ½ÃÁö¿ª{ ÁÖ°Å,»ó¾÷,°ø¾÷,³ìÁö(ÀÚ¿¬Ãë¶ôÁö±¸)}¹×ÁְŹÐÁýÁö¿ª]), »ó´ëº¸È£±¸¿ª(µ¿±¹´ëÇб³), »ó´ëº¸È£ ±¸¿ª(¼Ö¸¶·çÀ¯Ä¡¿ø), »ó´ëº¸È£±¸¿ª(½Ä»ç2Áö±¸À¯Ä¡¿ø), »ó´ëº¸È£±¸¿ª(½Ä»ç2Áö±¸ÃʵîÇб³), »ó ´ëº¸È£±¸¿ª(¿øÁßÃʵîÇб³), Àý´ëº¸È£±¸¿ª(¿øÁßÃʵîÇб³), µµ½Ã°³¹ß±¸¿ª, °ú¹Ð¾ïÁ¦±Ç¿ª, ÅäÁö °Å·¡°è¾à¿¡°üÇÑÇã°¡±¸¿ª(2025-08-26)(¿Ü±¹Àεî´ë»ó,´ë»ó¿ëµµ(´Üµ¶,´Ù°¡±¸,¿¬¸³,´Ù¼¼´ëÁÖÅÃ, ¾ÆÆÄÆ®)·Î»ç¿ëµÇ´ÂÅäÁö)ÀÓ.
9)°øºÎ¿ÍÀÇ Â÷ÀÌ
¾ø À½.
10)±âŸÂü°í»çÇ×(ÀÓ´ë°ü·Ê ¹× ±âŸ)
ÀÓ´ë°ü°è´Â ¹Ì»óÀÓ.
Âü°í
»çÇ×

1. º»°Ç °Ç¹°Àº ö±ÙÄÜÅ©¸®Æ®±¸Á¶ (ö±Ù)ÄÜÅ©¸®Æ®ÁöºØ 30Ãþ ¾ÆÆÄÆ®ÀÓ. 2. °Ç¹°¿Üº®°ú °øµ¿Çö°üÃâÀÔ±¸¿¡ `507`µ¿ Ç¥½Ã ÀÖÀ½.

°ÇÃ๰ÇöȲ

¼ÒÀçÁö °æ±âµµ °í¾ç½Ã Àϻ굿±¸ ½Ä»çµ¿ 1565¹øÁö
´ëÁö¸éÀû   ¿¬¸éÀû 21500.02§³
(6515.16Æò)
°ÇÃà¸éÀû 968.18§³
(293.39Æò)
¿ëÀû·ü»êÁ¤
¿¬¸éÀû
21500.02§³
(6515.16Æò)
°ÇÆóÀ²   ¿ëÀû·ü  
Áö»óÃþ¼ö 30Ãþ ÁöÇÏÃþ¼ö  
ÁÖ¿ëµµ °øµ¿ÁÖÅà ±¸Á¶ ö±ÙÄÜÅ©¸®Æ®±¸Á¶
Âø°øÀÏÀÚ 2007.11.27 »ç¿ë½ÂÀÎÀÏÀÚ 2010.10.29
°ÇÃ๰Ãþº°ÇöȲ [º¸±â]


µî±âºÎµîº» ¿ä¾à(°Ç¹°)

  Á¢¼öÀÏÀÚ µî±â¸ñÀû/±Ç¸®ÀÚ ±Ç¸®±Ý¾× ±âÁØ
1 2011³â5¿ù16ÀÏ
¼ÒÀ¯±Ç
¾ÈOO
¼Ò¸ê

ÀÓÂ÷ÀÎÇöȲ (¹è´ç¿ä±¸Á¾±âÀÏ: 2025-12-08)



¸Å°¢±âÀÏ 7ÀÏÀü¿¡ ¸Å°¢¹°°Ç¸í¼¼¼­°¡ °ø°íµÇ¿À´Ï È®ÀÎÇϽñ⠹ٶø´Ï´Ù.

ÀÓÂ÷ÀÎ ¿ëµµ/Á¡À¯ º¸Áõ±Ý/¿ù¼¼ ´ëÇ×·Â
ÀüÀÔÀÏ/È®Á¤ÀÏ ¹è´ç¿ä±¸ ºñ°í
ÁÖOO ÀüºÎ 70,000,000
[¿ù]2,250,000
2022.10.14.
2022.10.14.
2022.11.18.ºÎÅÍ

¾ÆÆÄÆ® Á¤º¸ À§½ÃƼºí·ç¹Ö5´ÜÁö

ÁÖ¼Ò °æ±â °í¾ç½Ã Àϻ굿±¸ ½Ä»çµ¿ 1565
½Ã°ø»ç º®»ê°Ç¼³ ´ÜÁö±Ô¸ð 6°³µ¿ 915°¡±¸(8°³µ¿)¼¼´ë
³­¹æ °³º° »ç¿ë½ÂÀÎ 2010-10
°ü¸®¼Ò null
Àü¿ë¸éÀû 101~154 ¼¼´ë¼ö 915°¡±¸(8°³µ¿)
´ëÁö±Ç
Çö°ü/±¸Á¶ null½Ä / ¹æ, ¿å½Ç
  • Çб³ ¾çÀÏÃÊ,¾çÀÏÁß,ÀúÇö°í, ±¹Á¦°í,
  • ÁÖº¯½Ã¼³ µ¿±¹´ëº´¿ø, ·Ôµ¥¹éÈ­Á¡,
  • ´ëÁß±³Åë ±³Åë : º¸Åë ±¹Ã¶, 5~10ºÐÀ̳»

¿©ÀÇÁÖ°æ¸Å Á¶¾ð ÇÑ ¸¶µð


ÁÖÀÇ»çÇ× (ÃÖ¼±¼øÀ§ ¼³Á¤ÀÏ: 2011.05.16. ±ÙÀú´ç±Ç ¼³Á¤)

¸Å°¢À¸·Î ¼Ò¸êµÇÁö ¾Ê´Â µî±âºÎ±Ç¸®:
¸Å°¢À¸·Î ¼³Á¤µÈ °ÍÀ¸·Î º¸´Â Áö»ó±Ç:
¡Ø¹Ì³³°ü¸®ºñ(°ø¿ë) Àμö¿©ºÎ¸¦ ÀÔÂû Àü¿¡ È®ÀÎÇϽñ⠹ٶø´Ï´Ù

 

Áö¿ªºÐ¼®

ÁöÇÏö¸í Á÷¼±°Å¸®

Çб³¸í ÀüÈ­¹øÈ£ ÁÖ¼Ò Á÷¼±°Å¸®

¹ý¿ø

ÀÇÁ¤ºÎÁö¹æ¹ý¿ø °í¾çÁö¿ø (104-13)°æ±âµµ °í¾ç½Ã Àϻ굿±¸ Àå¹é·Î 209
´ëÇ¥ : 031)920-6114, ¾ß°£ : 031)920-6550, ÆÑ½º : 031)920-6119
°üÇÒÁö¿ª : °í¾ç½Ã, ÆÄÁÖ½Ã

µî±â¼Ò ÀÇÁ¤ºÎÁö¹æ¹ý¿ø °í¾çÁö¿ø °í¾çµî±â¼Ò (´ëÇ¥:1544-0773, ÆÑ½º:(031)920-5959, °æ±âµµ °í¾ç½Ã Àϻ굿±¸ Áß¾Ó·Î1275¹ø±æ 38-30 (ÀåÇ×µ¿ 773))
¼¼¹«¼­ °í¾ç¼¼¹«¼­ (´ëÇ¥:031-900-92, ÆÑ½º:031-907-9177, °æ±âµµ °í¾ç½Ã Àϻ굿±¸ Áß¾Ó·Î1275¹ø±æ 14-43 (ÀåÇ×µ¿) )

Àαٳ«ÂûÅë°è

±â°£ ¸Å°¢°Ç¼ö Æò±Õ°¨Á¤°¡
Æò±Õ¸Å°¢°¡
¸Å°¢°¡À²
Æò±ÕÀ¯Âû¼ö


º» °æ¸ÅÁ¤º¸´Â ¹ý¿øÀÚ·á¿Í ÀÏÄ¡Çϵµ·Ï ÇÏ¿´À¸³ª ±Ç¸®»çÇ׺¯µ¿, ÀÔ·ÂÂø¿À µîÀÇ ¿øÀÎÀ¸·Î »ç½Ç°ú ´Ù¸¦ ¼ö ÀÖ½À´Ï´Ù. ÀÌ¿ë¾à°ü¿¡ ÀǰЏéÃ¥Á¶°ÇÀ¸·Î Á¦°øµÊÀ» ¾Ë¸®¸ç, °æ¸ÅÀÔÂû½Ã ¹Ýµå½Ã °ü·Ã °øºÎ¸¦ ÀçÈ®ÀÎÇϽñ⠹ٶø´Ï´Ù. º¸´Ù Æí¸®ÇÑ °æ¸ÅÁ¤º¸ Á¦°øÀ» À§ÇØ Áö¼ÓÀûÀ¸·Î °³¼±ÇϰڽÀ´Ï´Ù. ÀÌ¿ëÇØ Áּż­ °¨»çÇÕ´Ï´Ù.