·Î±×ÀÎ
64
¿ÀÇǽºÅÚ
¼­¿ï³²ºÎÁö¹æ¹ý¿ø
 °¨Á¤°¡120,000,000 ¿ø
 ÃÖÀú°¡(100%) 120,000,000 ¿ø
 º¸Áõ±Ý(10%) 12,000,000 ¿ø
 Ã»±¸¾×122,876,712 ¿ø
¼­¿ïƯº°½Ã °­¼­±¸ È­°îµ¿ 916-6 õ¿ì³×¿ÀÁ¨¾ÆÆÄÆ® 9Â÷ Á¦2Ãþ Á¦204È£
»ç°Ç¹øÈ£ 2025Ÿ°æ12486
°æ¸ÅÁ¾·ùºÎµ¿»ê°­Á¦°æ¸Å
¸Å°¢´ë»óÅäÁö ¹× °Ç¹°Àϰý ¸Å°¢
¸Å°¢±âÀÏ    2026.03.10(È­) 10:00 ÀÔÂû 7ÀÏÀü    
ÅäÁö¸éÀû7.38§³(2.23 Æò)
°Ç¹°¸éÀû23.00§³(6.96 Æò)
乫/¼ÒÀ¯ÀÚ·ùOO / ·ùOO
ä±ÇÀÚ¼­OOOOO OOOO
ÆäÀ̽ººÏ Æ®À§ÅÍ ±¸±Û+
īī¿À½ºÅ丮
īī¿ÀÅå sms¹®ÀÚº¸³»±â
 

±âÀϳ»¿ª

°æ°ú ³¯Â¥ Àú°¨ ÃÖÀú°¡ °á°ú
Á¢¼öÀÏ 2025-10-01 °æ¸ÅÁ¢¼ö
~20ÀÏ 
2025-10-21 °æ¸Å°³½Ã°áÁ¤
~112ÀÏ 
2026-01-21 ¹è´ç¿ä±¸Á¾±âÀÏ
~160ÀÏ 
2026-03-10 100%
120,000,000
ÁøÇà
¹°°Ç¸í¼¼¼­ ÇöȲÁ¶»ç¼­ ¹®°ÇÁ¢¼ö ¼Û´Þ³»¿ª

°¨Á¤Æò°¡ÇöȲ

¸ñ·Ï ÁÖ¼Ò ±¸Á¶/¿ëµµ/´ëÁö±Ç ¸éÀû ºñ°í
´ëÁö±Ç
È­°îµ¿ 916-6 473.9ºÐÀÇ 7.381 7.381 §³
(2.23Æò)
°Ç¹°
È­°îµ¿ 916-6 Á¦2Ãþ Á¦204È£ ö±ÙÄÜÅ©¸®Æ®±¸Á¶ 23 §³
(6.96Æò)
1) À§Ä¡/µµ½ÃÁö¿ª/ÀϹݻó¾÷Áö¿ª/Áö±¸´ÜÀ§°èȹ±¸¿ª/ÅäÁö°Å·¡°è¾à¿¡°üÇÑÇã°¡±¸¿ª/ÁöÇÏö/³ë¼±¹ö½º Á¤·ùÀå/ö±ÙÄÜÅ©¸®Æ®±¸Á¶ ´õº¸±â
°¨Á¤Æò°¡ ¿äÇ×Ç¥
1)À§Ä¡ ¹× ÁÖÀ§È¯°æ
º»°ÇÀº ¼­¿ïƯº°½Ã °­¼­±¸ È­°îµ¿ ¼ÒÀç ÁöÇÏö 2,5È£¼± "±îÄ¡»ê¿ª" ³²¼­Ãø Àαٿ¡ À§Ä¡Çϸç, ÁÖÀ§´Â °øµ¿ÁÖÅà ¹× ´Üµ¶ÁÖÅÃ, ÁÖ»óº¹Çհǹ°, »ó¾÷¿ë°Ç¹° ¹× ±Ù¸°»ýȰ½Ã¼³ µîÀÌ È¥ÀçÇÏ´Â Áö¿ªÀ¸·Î Á¦¹Ý ÁÖÀ§È¯°æÀº º¸ÅëÀÓ.
2)±³Åë»óȲ
º»°Ç ±îÁö Â÷·®Á¢±Ù °¡´ÉÇϸç, Àαٿ¡ ³ë¼±¹ö½º Á¤·ùÀå ¹× ÁöÇÏö 2,5È£¼± "±îÄ¡»ê¿ª"ÀÌ ¼ÒÀçÇÏ´Â µî Á¦¹Ý±³Åë»óȲÀº º¸ÅëÀÓ.
3)°Ç¹°ÀÇ ±¸Á¶
±âÈ£(°¡)´Â ö±ÙÄÜÅ©¸®Æ®±¸Á¶ ÆòÁöºØ 9Ãþ °Ç¹° ³» Á¦2Ãþ Á¦204È£·Î¼­, (ÁýÇÕ°ÇÃ๰ ´ëÀå»ó »ç¿ë½ÂÀÎÀÏ : 2009³â 9¿ù 4ÀÏ) ¿Üº®: ¼®Àç ºÙÀÓ µî ¸¶°¨, ³»º®: ÀÎÅ׸®¾î µî ¸¶°¨, âȣ: ÇÏÀ̼§½Ã âȣÀÓ.
4)ÀÌ¿ë»óÅÂ
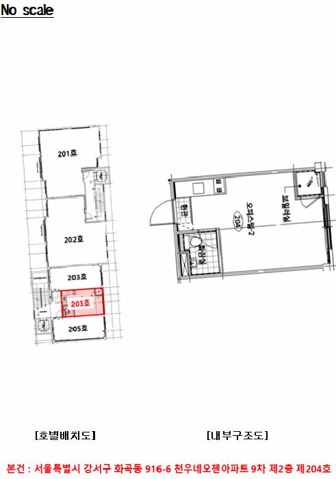
¿ÀÇǽºÅÚ·Î ÀÌ¿ëÁßÀÓ.(º°Ã· '³»ºÎ±¸Á¶µµ' ÂüÁ¶)
5)¼³ºñ³»¿ª
À§»ý¼³ºñ, ±Þ¹è¼ö¼³ºñ, ³­¹æ¼³ºñ, ½Â°­±â ¹× ÁÖÂ÷½Ã¼³ µîÀÌ µÇ¾î ÀÖÀ½.
6)ÅäÁöÀÇ Çü»ó ¹× ÀÌ¿ë»óÅÂ
ÆòźÇÑ ¼¼ÀåÇü ÅäÁö·Î¼­, °øµ¿ÁÖÅÃ(¾ÆÆÄÆ®) ¹× ¾÷¹«½Ã¼³(¿ÀÇǽºÅÚ) °ÇºÎÁö·Î ÀÌ¿ëÁßÀÓ.
7)ÀÎÁ¢ µµ·Î»óŵî
º»°Ç ³²Ãø ¹× ¼­ÃøÀ¸·Î ¾à 8m ¹× 6mÀÇ Æ÷Àåµµ·Î¿¡ Á¢ÇÔ.
8)ÅäÁöÀÌ¿ë°èȹ ¹× Á¦ÇÑ»óÅÂ
±âÈ£(1)Àº µµ½ÃÁö¿ª, ÀϹݻó¾÷Áö¿ª, Áß¿ä½Ã¼³¹°º¸È£Áö±¸(°øÇ×), Áö±¸´ÜÀ§°èȹ±¸¿ª, ¼Ò·Î2·ù(Æø 8m~10m)(Á¢ÇÕ), ¼Ò·Î3·ù(Æø 8m ¹Ì¸¸)(Á¢ÇÕ), °¡Ãà»çÀ°Á¦Çѱ¸¿ª(Áö¿ª°æÁ¦°ú È®ÀÎ ¿ä¸Á)<°¡ÃàºÐ´¢ÀÇ °ü¸® ¹× À̿뿡 °üÇÑ ¹ý·ü>, ¼öÆòÇ¥¸é±¸¿ª(¼öÆòÇ¥¸é)<°øÇ׽ü³¹ý>, ´ë°ø¹æ¾îÇùÁ¶±¸¿ª(À§Å¹°íµµ:77-257m)<±º»ç±âÁö ¹× ±º»ç½Ã¼³ º¸È£¹ý>, °ú¹Ð¾ïÁ¦±Ç¿ª<¼öµµ±ÇÁ¤ºñ°èȹ¹ý>, ÅäÁö°Å·¡°è¾à¿¡°üÇÑÇã°¡±¸¿ª(´ë»óÀÚ: ¿Ü±¹ÀÎ µî. ¿ëµµ: ´Üµ¶ ´Ù°¡±¸ ¾ÆÆÄÆ® ¿¬¸³ ´Ù¼¼´ë. ÁöÁ¤±â°£: 2025.8.26.~2026.8.25.), ÅäÁö°Å·¡°è¾à¿¡°üÇÑÇã°¡±¸¿ª(¿ëµµ:¾ÆÆÄÆ® ±â°£:2025.10.20.~2026.12.31)ÀÓ.
9)°øºÎ¿ÍÀÇ Â÷ÀÌ
¾øÀ½.
10)±âŸÂü°í»çÇ×(ÀÓ´ë°ü·Ê ¹× ±âŸ)
ÀÓ´ë°ü°è´Â ¹Ì»óÀÓ.
Âü°í
»çÇ×
½Åûä±ÇÀÚ´Â ¸Å¼öÀο¡°Ô ¹è´ç¹ÞÁö ¸øÇÏ´Â ÀÜ¾× »ó´ç ÀÓ´ëÂ÷º¸Áõ±Ý¹Ýȯû±¸±ÇÀ» Æ÷±âÇϰí, ÀÓÂ÷±Çµî±â¸¦ ¸»¼ÒÇÏ´Â °ÍÀ» Á¶°ÇÀ¸·Î ¸Å°¢

°ÇÃ๰ÇöȲ

¼ÒÀçÁö ¼­¿ïƯº°½Ã °­¼­±¸ È­°îµ¿ 916-6¹øÁö
´ëÁö¸éÀû 473.9§³
(143.61Æò)
¿¬¸éÀû 2404.39§³
(728.6Æò)
°ÇÃà¸éÀû 283.33§³
(85.86Æò)
¿ëÀû·ü»êÁ¤
¿¬¸éÀû
1923.63§³
(582.92Æò)
°ÇÆóÀ² 59.79% ¿ëÀû·ü 405.91%
Áö»óÃþ¼ö 9Ãþ ÁöÇÏÃþ¼ö 2Ãþ
ÁÖ¿ëµµ °øµ¿ÁÖÅà ±¸Á¶ ö±ÙÄÜÅ©¸®Æ®±¸Á¶
Âø°øÀÏÀÚ 2008.04.28 »ç¿ë½ÂÀÎÀÏÀÚ 2009.09.04
°ÇÃ๰Ãþº°ÇöȲ [º¸±â]


±¹ÅäºÎ½Ç°Å·¡°¡ ¼­¿ïƯº°½Ã °­¼­±¸ È­°îµ¿

¡Ü ¸Å¸Å

¸éÀû(§³), ±Ý¾×(¸¸¿ø)

¡Ü Àü¼¼

¸éÀû(§³), ±Ý¾×(¸¸¿ø)

°è¾àÀϰǹ°¸íĪÃþÀü¿ëº¸Áõ±Ý¿ù¼¼°ÇÃà
25.11.28õ¿ì³×¿ÀÁ¨¾ÆÆÄÆ® 9Â÷ ¹× ¿ÀÇǽºÅÚ326.391,000552009
25.11.25õ¿ì³×¿ÀÁ¨¾ÆÆÄÆ® 9Â÷ ¹× ¿ÀÇǽºÅÚ226.391,000602009
25.11.12õ¿ì³×¿ÀÁ¨¾ÆÆÄÆ® 9Â÷ ¹× ¿ÀÇǽºÅÚ926.392,000502009
25.09.11õ¿ì³×¿ÀÁ¨¾ÆÆÄÆ® 9Â÷ ¹× ¿ÀÇǽºÅÚ7231,000602009
25.09.03õ¿ì³×¿ÀÁ¨¾ÆÆÄÆ® 9Â÷ ¹× ¿ÀÇǽºÅÚ52311,69002009

µî±âºÎµîº» ¿ä¾à(°Ç¹°)

  Á¢¼öÀÏÀÚ µî±â¸ñÀû/±Ç¸®ÀÚ ±Ç¸®±Ý¾× ±âÁØ
1 2020³â11¿ù5ÀÏ
¼ÒÀ¯±Ç
·ùOO
¼Ò¸ê
2 2022³â10¿ù28ÀÏ
°¡¾Ð·ù
ÁÖOOOO
1,449,000,000 ¼Ò¸ê±âÁØ
3 2022³â12¿ù16ÀÏ
¾Ð·ù
±¹
¼Ò¸ê
4 2024³â5¿ù21ÀÏ
ÀÓÂ÷±Ç¼³Á¤
ÇÑOOOO
120,000,000 ¼Ò¸ê
5 2025³â10¿ù21ÀÏ
°­Á¦°æ¸Å
¼­OOOO
¼Ò¸ê

ÀÓÂ÷ÀÎÇöȲ (¹è´ç¿ä±¸Á¾±âÀÏ: 2026-01-21)



¸Å°¢±âÀÏ 7ÀÏÀü¿¡ ¸Å°¢¹°°Ç¸í¼¼¼­°¡ °ø°íµÇ¿À´Ï È®ÀÎÇϽñ⠹ٶø´Ï´Ù.

ÀÓÂ÷ÀÎ ¿ëµµ/Á¡À¯ º¸Áõ±Ý/¿ù¼¼ ´ëÇ×·Â
ÀüÀÔÀÏ/È®Á¤ÀÏ ¹è´ç¿ä±¸ ºñ°í
ÇÑOOOOOOO ÀüºÎ 120,000,000
[¿ù]150,000
O
2022.05.09.
2022.04.14.
2022.05.09.
ºñ°í
(¸Å°¢¹°°Ç
¸í¼¼¼­)
½Åûä±ÇÀÚÀÎ ¼­¿ïº¸Áõº¸Çè ÁÖ½Äȸ»ç´Â Çѱ¹ÅäÁöÁÖÅðø»çÀÇ ÀÓÂ÷º¸Áõ±Ý¹Ýȯä±ÇÀ» ¾ç¼öÇÔ

¿©ÀÇÁÖ°æ¸Å Á¶¾ð ÇÑ ¸¶µð

¼±¼øÀ§ ÀÓÂ÷±Çµî±â°¡ µÇ¾î ÀÖ½À´Ï´Ù
´ëÇ×·ÂÀÌ ÀÖ´Â ¼±¼øÀ§ ÀÓÂ÷±Çµî±â ±Ç¸®ÀÚ°¡ ¹è´çÀ» Àü¾× ¹ÞÁö ¸øÇÒ °æ¿ì ³«ÂûÀÚ°¡ ÀÜ¿© º¸Áõ±ÝÀ» ÀμöÇØ¾ßÇÏ´Â °æ¿ìµµ ÀÖ½À´Ï´Ù.

ÁÖÀÇ»çÇ× (ÃÖ¼±¼øÀ§ ¼³Á¤ÀÏ: 2022.10.28. °¡¾Ð·ù ¼³Á¤)

¸Å°¢À¸·Î ¼Ò¸êµÇÁö ¾Ê´Â µî±âºÎ±Ç¸®:
¸Å°¢À¸·Î ¼³Á¤µÈ °ÍÀ¸·Î º¸´Â Áö»ó±Ç:
½Åûä±ÇÀÚ´Â ¸Å¼öÀο¡°Ô ¹è´ç¹ÞÁö ¸øÇÏ´Â ÀÜ¾× »ó´ç ÀÓ´ëÂ÷º¸Áõ±Ý¹Ýȯû±¸±ÇÀ» Æ÷±âÇϰí, ÀÓÂ÷±Çµî±â¸¦ ¸»¼ÒÇÏ´Â °ÍÀ» Á¶°Ç À¸·Î ¸Å°¢
¡Ø¹Ì³³°ü¸®ºñ(°ø¿ë) Àμö¿©ºÎ¸¦ ÀÔÂû Àü¿¡ È®ÀÎÇϽñ⠹ٶø´Ï´Ù

 

Áö¿ªºÐ¼®

ÁöÇÏö¸í Á÷¼±°Å¸®

Çб³¸í ÀüÈ­¹øÈ£ ÁÖ¼Ò Á÷¼±°Å¸®

¹ý¿ø

¼­¿ï³²ºÎÁö¹æ¹ý¿ø (080-88)¼­¿ïƯº°½Ã ¾çõ±¸ ½Å¿ù·Î 386(½ÅÁ¤µ¿)
´ëÇ¥ : 02)2192-1114
°üÇÒÁö¿ª : ¿µµîÆ÷±¸, °­¼­±¸, ¾çõ±¸, ±¸·Î±¸, ±Ýõ±¸

µî±â¼Ò ¼­¿ï³²ºÎÁö¹æ¹ý¿ø º»¿ø µî±â±¹ (´ëÇ¥:1544-0773, ÆÑ½º:(02)2629-7307, ¼­¿ïƯº°½Ã ¿µµîÆ÷±¸ °æÀηΠ772 (¹®·¡µ¿ 1°¡))
¼¼¹«¼­ °­¼­¼¼¹«¼­ (´ëÇ¥:02-2630-42, ÆÑ½º:02-2679-8777, ¼­¿ïƯº°½Ã °­¼­±¸ ¸¶°î¼­1·Î 60 (¸¶°îµ¿))

Àαٳ«ÂûÅë°è

±â°£ ¸Å°¢°Ç¼ö Æò±Õ°¨Á¤°¡
Æò±Õ¸Å°¢°¡
¸Å°¢°¡À²
Æò±ÕÀ¯Âû¼ö


º» °æ¸ÅÁ¤º¸´Â ¹ý¿øÀÚ·á¿Í ÀÏÄ¡Çϵµ·Ï ÇÏ¿´À¸³ª ±Ç¸®»çÇ׺¯µ¿, ÀÔ·ÂÂø¿À µîÀÇ ¿øÀÎÀ¸·Î »ç½Ç°ú ´Ù¸¦ ¼ö ÀÖ½À´Ï´Ù. ÀÌ¿ë¾à°ü¿¡ ÀǰЏéÃ¥Á¶°ÇÀ¸·Î Á¦°øµÊÀ» ¾Ë¸®¸ç, °æ¸ÅÀÔÂû½Ã ¹Ýµå½Ã °ü·Ã °øºÎ¸¦ ÀçÈ®ÀÎÇϽñ⠹ٶø´Ï´Ù. º¸´Ù Æí¸®ÇÑ °æ¸ÅÁ¤º¸ Á¦°øÀ» À§ÇØ Áö¼ÓÀûÀ¸·Î °³¼±ÇϰڽÀ´Ï´Ù. ÀÌ¿ëÇØ Áּż­ °¨»çÇÕ´Ï´Ù.