·Î±×ÀÎ
31
ÁÖÅÃ
ûÁÖÁö¹æ¹ý¿ø ÃæÁÖÁö¿ø
 °¨Á¤°¡455,426,720 ¿ø
 ÃÖÀú°¡(100%) 455,426,720 ¿ø
 º¸Áõ±Ý(10%) 45,542,672 ¿ø
 Ã»±¸¾×343,796,362 ¿ø
ÃæÃ»ºÏµµ À½¼º±º °¨°î¸é ´ÜÆò¸® 59-12
»ç°Ç¹øÈ£ 2024Ÿ°æ2926
°æ¸ÅÁ¾·ùºÎµ¿»êÀÓÀǰæ¸Å
¸Å°¢´ë»óÅäÁö ¹× °Ç¹°Àϰý¸Å°¢
¸Å°¢±âÀÏ    2026.03.09(¿ù) 10:00 ÀÔÂû 8ÀÏÀü    
ÅäÁö¸éÀû990.00§³(299.48 Æò)
°Ç¹°¸éÀû282.77§³(85.54 Æò)
乫/¼ÒÀ¯ÀÚ¸Á OOOO OOOO OOOOO OOO OOO / ÀÌOO¿Ü 1¸í
ä±ÇÀÚºÎOOOOOOOOOOO(OOO O OOOOOOOOOOOO)
ÆäÀ̽ººÏ Æ®À§ÅÍ ±¸±Û+
īī¿À½ºÅ丮
īī¿ÀÅå sms¹®ÀÚº¸³»±â
 

±âÀϳ»¿ª

°æ°ú ³¯Â¥ Àú°¨ ÃÖÀú°¡ °á°ú
Á¢¼öÀÏ 2024-09-19 °æ¸ÅÁ¢¼ö
~47ÀÏ 
2024-11-05 °æ¸Å°³½Ã°áÁ¤
~139ÀÏ 
2025-02-05 ¹è´ç¿ä±¸Á¾±âÀÏ
~536ÀÏ 
2026-03-09 100%
455,426,720
ÁøÇà
¹°°Ç¸í¼¼¼­ ÇöȲÁ¶»ç¼­ ¹®°ÇÁ¢¼ö ¼Û´Þ³»¿ª

°¨Á¤Æò°¡ÇöȲ

¸ñ·Ï ÁÖ¼Ò ±¸Á¶/¿ëµµ/´ëÁö±Ç ¸éÀû ºñ°í
ÅäÁö
´ÜÆò¸® 59-12 ´ë 864 §³
(261.36Æò)
´ÜÆò¸® 59-2 µµ·Î 27 §³
(8.17Æò)
´ÜÆò¸® 59-5 µµ·Î 99 §³
(29.95Æò)
°Ç¹°
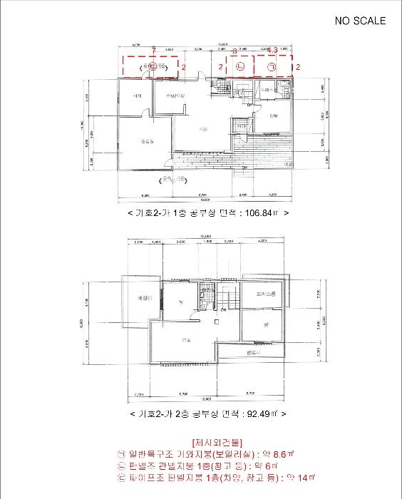
´ÜÆò¸® 59-12 1Ãþ ´Üµ¶ÁÖÅà ö±ÙÄÜÅ©¸®Æ®Á¶ 106.84 §³
(32.32Æò)
´ÜÆò¸® 59-12 1Ãþ ´Üµ¶ÁÖÅà ö±ÙÄÜÅ©¸®Æ®Á¶ 54.84 §³
(16.59Æò)
´ÜÆò¸® 59-12 2Ãþ ´Üµ¶ÁÖÅà ö±ÙÄÜÅ©¸®Æ®Á¶ 92.49 §³
(27.98Æò)
Á¦½Ã¿Ü
°Ç¹°
´ÜÆò¸® 59-12 º¸ÀÏ·¯½Ç 8.6 §³
(2.60Æò)
Æ÷ÇÔ
´ÜÆò¸® 59-12 â°í µî 6 §³
(1.82Æò)
Æ÷ÇÔ
´ÜÆò¸® 59-12 Â÷¾ç, â°í µî 14 §³
(4.24Æò)
Æ÷ÇÔ
1) À§Ä¡/³ó¸²Áö¿ª/³ó¾÷º¸È£±¸¿ª/¹ö½ºÁ¤·ùÀå/°£¼±µµ·Î/ö±ÙÄÜÅ©¸®Æ®Á¶/±â¿ÍÁöºØ ´õº¸±â
°¨Á¤Æò°¡ ¿äÇ×Ç¥
1)À§Ä¡ ¹× ÁÖÀ§È¯°æ
º»°ÇÀº ÃæÃ»ºÏµµ À½¼º±º °¨°î¸é ´ÜÆò¸® ¼ÒÀç "´ë°îÀú¼öÁö" ³²Ãø Àαٿ¡ À§Ä¡Çϸç ÁÖÀ§´Â ´Üµ¶ÁÖÅÃ, ³ó°æÁö, ÀÓ¾ß µîÀÌ ¼ÒÀçÇÏ´Â µî Á¦¹Ý ÁÖÀ§È¯°æÀº º¸Åë½Ã µÊ.

2)±³Åë»óȲ
º»°Ç±îÁö Â÷·®ÁøÃâÀÔÀÌ °¡´ÉÇϸç, ±Ù°Å¸®¿¡ ¹ö½ºÁ¤·ùÀå ¹× °£¼±µµ·Î µîÀÌ ¼ÒÀçÇÏ´Â µî Á¦¹Ý ÁÖÀ§ ±³Åë»óȲÀº º¸Åë½Ã µÊ.

3)ÇüÅ ¹× ÀÌ¿ë»óÅÂ
1 : ºÎÁ¤Çü ¿Ï°æ»ç ÅäÁö·Î¼­, ´Üµ¶ÁÖÅà °ÇºÎÁö·Î ÀÌ¿ëÁßÀÓ.
3,4 : ºÎÁ¤Çü ¿Ï°æ»ç ÅäÁö·Î¼­, µµ·Î·Î ÀÌ¿ë ÁßÀÓ.

4)ÀÎÁ¢ µµ·Î»óÅÂ
1 : ºÏ¼­ÃøÀ¸·Î ³ëÆø ¾à 3¹ÌÅÍ ³»¿ÜÀÇ µµ·Î°¡ ¼ÒÀçÇÔ.
3,4 : º»°ÇÀÌ µµ·ÎÀÓ

5)ÅäÁöÀÌ¿ë°èȹ ¹× Á¦ÇÑ»óÅÂ
1 : ³ó¸²Áö¿ª(³ó¸²Áö¿ª) °¡Ãà»çÀ°Á¦Çѱ¸¿ª(2024-10-25)(ÀϺÎÁ¦Çѱ¸¿ª)<°¡ÃàºÐ´¢ÀÇ °ü¸® ¹× À̿뿡 °üÇÑ ¹ý·ü>, ³ó¾÷º¸È£±¸¿ª(2016-06-30)(³ó¾÷º¸È£±¸¿ª)<³óÁö¹ý>, ¹èÃâ½Ã¼³¼³Ä¡Á¦ÇÑÁö¿ª<¹°È¯°æº¸Àü¹ý>
3 : ³ó¸²Áö¿ª(³ó¸²Áö¿ª) °¡Ãà»çÀ°Á¦Çѱ¸¿ª(2024-10-25)(ÀϺÎÁ¦Çѱ¸¿ª)<°¡ÃàºÐ´¢ÀÇ °ü¸® ¹× À̿뿡 °üÇÑ ¹ý·ü>, ³ó¾÷º¸È£±¸¿ª(2016-06-30)(³ó¾÷º¸È£±¸¿ª)<³óÁö¹ý>, ¹èÃâ½Ã¼³¼³Ä¡Á¦ÇÑÁö¿ª<¹°È¯°æº¸Àü¹ý>
4 : ³ó¸²Áö¿ª(³ó¸²Áö¿ª) °¡Ãà»çÀ°Á¦Çѱ¸¿ª(2024-10-25)(ÀϺÎÁ¦Çѱ¸¿ª)<°¡ÃàºÐ´¢ÀÇ °ü¸® ¹× À̿뿡 °üÇÑ ¹ý·ü>, ³ó¾÷º¸È£±¸¿ª(2016-06-30)(³ó¾÷º¸È£±¸¿ª)<³óÁö¹ý>, ¹èÃâ½Ã¼³¼³Ä¡Á¦ÇÑÁö¿ª<¹°È¯°æº¸Àü¹ý>

6)Á¦½Ã¸ñ·Ï ¿ÜÀÇ ¹°°Ç
ÈÄ÷ "ÁöÀû ¹× °Ç¹°°³È²µµ" ÂüÁ¶

7)°øºÎ¿ÍÀÇ Â÷ÀÌ
-

8)±âŸÂü°í»çÇ×(ÀÓ´ë°ü·Ê ¹× ±âŸ)
ÈÄ÷ "°Ç¹° °¨Á¤Æò°¡¿äÇ×Ç¥" ÂüÁ¶

1)°Ç¹°ÀÇ ±¸Á¶
(2-°¡) : ö±ÙÄÜÅ©¸®Æ®Á¶ ¹× ÀϹݸñ±¸Á¶ ½º¶óºê ¹× ±â¿ÍÁöºØ 2Ãþ °Ç¹°·Î¼­,
¿Üº® : ·Î±×»çÀ̵ù ¸¶°¨,
³»º® : ȲÅäȸº® À§ ¸ñÀçÄ¡Àå(È÷³ë³¢, È«¼º µî) ¹× º®Áö¸¶°¨,
âȣ : ÇÏÀ̼¦½Ã âȣÀÓ.

2)ÀÌ¿ë»óÅÂ
2-°¡) : ´Üµ¶ÁÖÅÃÀ¸·Î ÀÌ¿ëÁßÀÓ.

3)¼³ºñ³»¿ª
³Ã³­¹æ¼³ºñ, À§»ý ¹× ±Þ¹è¼ö¼³ºñ µî ±¸ºñµÇ¾î ÀÖÀ½.

4)ºÎÇÕ¹° ¹× Á¾¹°
ÈÄ÷ "ÁöÀû ¹× °Ç¹°°³È²µµ" ÂüÁ¶

5)°øºÎ¿ÍÀÇ Â÷ÀÌ
-



6)±âŸÂü°í»çÇ×(ÀÓ´ë°ü·Ê ¹× ±âŸ)
ÀÓ´ë°ü°è ¹Ì»óÀ̸ç, ±âŸ»çÇ×¾øÀ½.

Âü°í
»çÇ×
Àϰý¸Å°¢. Á¦½Ã¿Ü °Ç¹° Æ÷ÇÔ
¸ñÀû¹° 2¹ø¿¡ ¸Á ÀÌżºÀÇ »ó¼ÓÀÎ ¹Ú¼ºÈñ¿Ü 3¸í ¼ÒÀ¯ÀÇ ÆÄÀÌÇÁÁ¶ ÆÇ³ÚÁöºØ °¡Ãß, ÆÇ³ÚÁ¶ ÆÇ³ÚÁöºØ â°í ¼ÒÀç, 1¹ø¿¡ Á¶°æ¼ö ¼öÁÖ ½ÄÀçµÇ¾î ÀÖÀ½.


±¹ÅäºÎ½Ç°Å·¡°¡ ÃæÃ»ºÏµµ À½¼º±º °¨°î¸é ´ÜÆò¸®

¡Ü ¸Å¸Å

¸éÀû(§³), ±Ý¾×(¸¸¿ø)

¡Ü Àü¼¼

¸éÀû(§³), ±Ý¾×(¸¸¿ø)

°è¾àÀÏ¿¬¸éÀûº¸Áõ±Ý¿ù¼¼°ÇÃà
25.10.21100.59,5002009
25.09.23267.3940,0001970
25.06.29198.33,0000
25.04.1084.64,5001994

µî±âºÎµîº» ¿ä¾à(ÅäÁö)

  Á¢¼öÀÏÀÚ µî±â¸ñÀû/±Ç¸®ÀÚ ±Ç¸®±Ý¾× ±âÁØ
1 2024³â10¿ù22ÀÏ
¼ÒÀ¯±Ç
ÀÌOO
¼Ò¸ê
2 2024³â10¿ù22ÀÏ
¼ÒÀ¯±Ç
ÀÌOO
¼Ò¸ê
3 2024³â10¿ù22ÀÏ
¼ÒÀ¯±Ç
ÀÌOO
¼Ò¸ê
4 2024³â10¿ù22ÀÏ
¼ÒÀ¯±Ç
¹ÚOO
¼Ò¸ê
5 2012³â4¿ù6ÀÏ
±ÙÀú´ç±Ç
ºÎOOOO
372,000,000 ¼Ò¸ê±âÁØ
6 2019³â9¿ù27ÀÏ
±ÙÀú´ç±Ç
¾ÈOO
130,000,000 ¼Ò¸ê
7 2023³â7¿ù24ÀÏ
°¡¾Ð·ù
½ÅOOOO
232,000,000 ¼Ò¸ê
8 2023³â8¿ù25ÀÏ
°¡¾Ð·ù
°æOOOO
168,000,000 ¼Ò¸ê
9 2024³â11¿ù5ÀÏ
ÀÓÀǰæ¸Å
ºÎOOOO
¼Ò¸ê

µî±âºÎµîº» ¿ä¾à(°Ç¹°)

  Á¢¼öÀÏÀÚ µî±â¸ñÀû/±Ç¸®ÀÚ ±Ç¸®±Ý¾× ±âÁØ
1 2020³â10¿ù28ÀÏ
¼ÒÀ¯±Ç
ÀÌOO
¼Ò¸ê
2 2012³â4¿ù6ÀÏ
±ÙÀú´ç±Ç
ºÎOOOO
372,000,000 ¼Ò¸ê±âÁØ
3 2019³â9¿ù27ÀÏ
±ÙÀú´ç±Ç
¾ÈOO
130,000,000 ¼Ò¸ê
4 2024³â11¿ù5ÀÏ
ÀÓÀǰæ¸Å
ºÎOOOO
¼Ò¸ê

ÀÓÂ÷ÀÎÇöȲ (¹è´ç¿ä±¸Á¾±âÀÏ: 2025-02-05)



¸Å°¢±âÀÏ 7ÀÏÀü¿¡ ¸Å°¢¹°°Ç¸í¼¼¼­°¡ °ø°íµÇ¿À´Ï È®ÀÎÇϽñ⠹ٶø´Ï´Ù.

ÀÓÂ÷ÀÎ ¿ëµµ/Á¡À¯ º¸Áõ±Ý/¿ù¼¼ ´ëÇ×·Â
ÀüÀÔÀÏ/È®Á¤ÀÏ ¹è´ç¿ä±¸ ºñ°í
±èOO ÀüºÎ 80,000,000

2025. 1. 16.
2025.1.16. 2018. 6.27.ºÎÅÍÇöÀç±îÁöÁ¡À¯ Áß
¹ÎOO 1Ãþ,2ÃþÀüºÎ 250,000,000
X
2021. 7. 21.
¾øÀ½
2025.2.5. 2018.8.
ºñ°í
(¸Å°¢¹°°Ç
¸í¼¼¼­)
±è¹Î±â:°è¾à¼­»ó Â÷ÀÓ 2,000,000¿ø ¹Î¸íÁø:±è¹Î±âÀÇ Ã³³²´ìÀ̶ó°í ÇÔ ¹Î¸íÁø:°è¾à¼­»ó º¸Áõ±Ý 350,000,000¿ø

¿©ÀÇÁÖ°æ¸Å Á¶¾ð ÇÑ ¸¶µð

Á¦½Ã¿Ü ¹°°ÇÀÌ Æ÷ÇԵǾî ÀÖ½À´Ï´Ù
¡®Á¦½Ã¿Ü ¹°°Ç¡¯Àº ÇØ´ç °øºÎ»ó¿¡´Â Á¸ÀçÇÏÁö ¾ÊÁö¸¸, ÇöÀå¿¡ Á¸Àç°¡ È®ÀεǴ ¿©·¯ ÇüÅÂÀÇ °Ç¹°, ±â°è±â±¸ µîÀ» ¸»ÇÕ´Ï´Ù. ÀÌµé ´ëºÎºÐÀº ¹«Çã°¡, ¹«½Å°íÀ̰ųª »ç¿ë½ÂÀÎÀ» ¹ÞÁö ¾ÊÀº °ÍÀÔ´Ï´Ù. ¡®Á¦½Ã¿Ü ¹°°Ç¡¯ÀÌ °æ¸Å´ë»ó¿¡ Æ÷ÇԵǾî ÀÖ´Ù¸é ³«ÂûÀÚÀÇ ¼ÒÀ¯±Ç Ãëµæ¿¡´Â ¾Æ¹«·± ¹®Á¦°¡ ¾ø½À´Ï´Ù.

ÁÖÀÇ»çÇ× (ÃÖ¼±¼øÀ§ ¼³Á¤ÀÏ: 2012. 4. 6. ±ÙÀú´ç±Ç ¼³Á¤)

¸Å°¢À¸·Î ¼Ò¸êµÇÁö ¾Ê´Â µî±âºÎ±Ç¸®:
¸Å°¢À¸·Î ¼³Á¤µÈ °ÍÀ¸·Î º¸´Â Áö»ó±Ç:
Àϰý¸Å°¢. Á¦½Ã¿Ü °Ç¹° Æ÷ÇÔ
¡Ø¹Ì³³°ü¸®ºñ(°ø¿ë) Àμö¿©ºÎ¸¦ ÀÔÂû Àü¿¡ È®ÀÎÇϽñ⠹ٶø´Ï´Ù

 

Áö¿ªºÐ¼®

ÁöÇÏö¸í Á÷¼±°Å¸®

Çб³¸í ÀüÈ­¹øÈ£ ÁÖ¼Ò Á÷¼±°Å¸®

¹ý¿ø

ûÁÖÁö¹æ¹ý¿ø ÃæÁÖÁö¿ø (273-57)ÃæÃ»ºÏµµ ÃæÁֽà °è¸í´ë·Î 103 (±³Çö2µ¿ 720-2)
´ëÇ¥ : 043)841-9119
°üÇÒÁö¿ª : À½¼º±º, ÃæÁÖ½Ã

µî±â¼Ò ûÁÖÁö¹æ¹ý¿ø º»¿ø À½¼ºµî±â¼Ò (´ëÇ¥:1544-0773, ÆÑ½º:(043)873-2292, ÃæºÏ À½¼º±º À½¼ºÀ¾ ¿ë±¤·Î 55 (À¾³»¸® 725-2))
¼¼¹«¼­ ÃæÁÖ¼¼¹«¼­ (´ëÇ¥:043-841-62, ÆÑ½º:043-845-3320, ÃæÃ»ºÏµµ ÃæÁÖ½Ã Ãæ¿ø´ë·Î 724 (±Ý¸ªµ¿))

Àαٳ«ÂûÅë°è

±â°£ ¸Å°¢°Ç¼ö Æò±Õ°¨Á¤°¡
Æò±Õ¸Å°¢°¡
¸Å°¢°¡À²
Æò±ÕÀ¯Âû¼ö


º» °æ¸ÅÁ¤º¸´Â ¹ý¿øÀÚ·á¿Í ÀÏÄ¡Çϵµ·Ï ÇÏ¿´À¸³ª ±Ç¸®»çÇ׺¯µ¿, ÀÔ·ÂÂø¿À µîÀÇ ¿øÀÎÀ¸·Î »ç½Ç°ú ´Ù¸¦ ¼ö ÀÖ½À´Ï´Ù. ÀÌ¿ë¾à°ü¿¡ ÀǰЏéÃ¥Á¶°ÇÀ¸·Î Á¦°øµÊÀ» ¾Ë¸®¸ç, °æ¸ÅÀÔÂû½Ã ¹Ýµå½Ã °ü·Ã °øºÎ¸¦ ÀçÈ®ÀÎÇϽñ⠹ٶø´Ï´Ù. º¸´Ù Æí¸®ÇÑ °æ¸ÅÁ¤º¸ Á¦°øÀ» À§ÇØ Áö¼ÓÀûÀ¸·Î °³¼±ÇϰڽÀ´Ï´Ù. ÀÌ¿ëÇØ Áּż­ °¨»çÇÕ´Ï´Ù.