·Î±×ÀÎ
23
¿ÀÇǽºÅÚ
¼ö¿øÁö¹æ¹ý¿ø
 °¨Á¤°¡132,000,000 ¿ø
 ÃÖÀú°¡(100%) 132,000,000 ¿ø
 º¸Áõ±Ý(10%) 13,200,000 ¿ø
 Ã»±¸¾×148,000,000 ¿ø
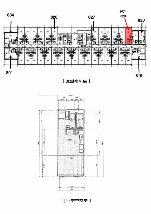
°æ±âµµ È­¼º½Ã ¼®¿ìµ¿ 36-1 µ¿Åº»ï¼º½¦¸£ºô 8Ãþ823È£
»ç°Ç¹øÈ£ 2025Ÿ°æ54470
°æ¸ÅÁ¾·ùºÎµ¿»ê°­Á¦°æ¸Å
¸Å°¢´ë»óÅäÁö ¹× °Ç¹°Àϰý ¸Å°¢
¸Å°¢±âÀÏ    2026.03.09(¿ù) 10:00 ÀÔÂû 13ÀÏÀü    
ÅäÁö¸éÀû11.41§³(3.45 Æò)
°Ç¹°¸éÀû36.71§³(11.10 Æò)
乫/¼ÒÀ¯ÀÚÇÑOO / ÇÑOO
ä±ÇÀÚÃÖOO
ÆäÀ̽ººÏ Æ®À§ÅÍ ±¸±Û+
īī¿À½ºÅ丮
īī¿ÀÅå sms¹®ÀÚº¸³»±â
 

±âÀϳ»¿ª

°æ°ú ³¯Â¥ Àú°¨ ÃÖÀú°¡ °á°ú
Á¢¼öÀÏ 2025-02-14 °æ¸ÅÁ¢¼ö
~3ÀÏ 
2025-02-17 °æ¸Å°³½Ã°áÁ¤
~82ÀÏ 
2025-05-07 ¹è´ç¿ä±¸Á¾±âÀÏ
~388ÀÏ 
2026-03-09 100%
132,000,000
ÁøÇà
¹°°Ç¸í¼¼¼­ ÇöȲÁ¶»ç¼­ ¹®°ÇÁ¢¼ö ¼Û´Þ³»¿ª

°¨Á¤Æò°¡ÇöȲ

¸ñ·Ï ÁÖ¼Ò ±¸Á¶/¿ëµµ/´ëÁö±Ç ¸éÀû ºñ°í
´ëÁö±Ç
¼®¿ìµ¿ 36-1 4059ºÐÀÇ 11.408 11.408 §³
(3.45Æò)
°Ç¹°
¼®¿ìµ¿ 36-1 8Ãþ823È£ ö±ÙÄÜÅ©¸®Æ®±¸Á¶ 36.707 §³
(11.10Æò)
1) À§Ä¡/±Ù¸°»ó¾÷Áö¿ª/Áö±¸´ÜÀ§°èȹ±¸¿ª/¹ö½ºÁ¤·ùÀå/ÁÖÂ÷Àå/ö±ÙÄÜÅ©¸®Æ®±¸Á¶ ´õº¸±â
°¨Á¤Æò°¡ ¿äÇ×Ç¥
1)À§Ä¡ ¹× ÁÖÀ§È¯°æ
º»°ÇÀº °æ±âµµ È­¼º½Ã ¼®¿ìµ¿ ¼ÒÀç ""ÇѸ²´ëÇб³ µ¿Åº¼º½Éº´¿ø"" ºÏ¼­Ãø Àαٿ¡ À§Ä¡Çϸç, ÁÖÀ§´Â ¿ÀÇǽºÅÚ, ±Ù¸°»ýȰ½Ã¼³, º´¿ø µîÀÌ ¼ÒÀçÇϴ¹٠Á¦¹Ý ÁÖÀ§È¯°æÀº º¸ÅëÀÓ.
2)±³Åë»óȲ
º»°Ç±îÁö Â÷·®Á¢±Ù °¡´ÉÇϰí Àαٿ¡ ¹ö½ºÁ¤·ùÀåÀÌ ¼ÒÀçÇÏ´Â µî Á¦¹Ý ±³Åë»óȲÀº º¸ÅëÀÓ.
3)°Ç¹°ÀÇ ±¸Á¶
ö±ÙÄÜÅ©¸®Æ®±¸Á¶ (ö±Ù)ÄÜÅ©¸®Æ®ÁöºØ 10Ãþ°Ç³» 8Ãþ 823È£·Î¼­

¿Üº® : ¼®ÀçºÙÀÓ ¸¶°¨ µî,
âȣ : ¼¦½Ã âȣÀÓ.
4)ÀÌ¿ë»óÅÂ
¿ÀÇǽºÅÚ·Î ÀÌ¿ëÁßÀÓ.
5)¼³ºñ³»¿ª
À§»ý¼³ºñ, ±Þ¹è¼ö¼³ºñ, ³­¹æ¼³ºñ, ½Â°­±â¼³ºñ, ¼ÒÈ­Àü¼³ºñ, È­ÀçŽÁö ¹× °æº¸¼³ºñ, ÁÖÂ÷Àå µî ±¸ºñµÇ¾î ÀÖÀ½.
6)ÅäÁöÀÇ Çü»ó ¹× ÀÌ¿ë»óÅÂ
2ÇÊ ÀÏ´ÜÀÇ °¡ÀåÇüÀÇ ÅäÁö·Î¼­, ¾÷¹«½Ã¼³ ¹× ÆÇ¸Å½Ã¼³ °ÇºÎÁö·Î ÀÌ¿ëÁßÀÓ.
7)ÀÎÁ¢ µµ·Î»óŵî
ºÏ¼­Ãø ¹× ³²¼­ÃøÀ¸·Î ³ëÆø ¾à 10m, ³²µ¿ÃøÀ¸·Î ³ëÆø ¾à 12mÀÇ Æ÷Àåµµ·Î¿Í °¢°¢ Á¢ÇÔ.
8)ÅäÁöÀÌ¿ë°èȹ ¹× Á¦ÇÑ»óÅÂ
¼®¿ìµ¿ 36-1 : ±Ù¸°»ó¾÷Áö¿ª, Áö±¸´ÜÀ§°èȹ±¸¿ª(È­¼ºµ¿Åº(1)), ¼Ò·Î1·ù(Æø 10m~12m)(Á¢ÇÕ), Áß·Î3·ù(Æø 12m~15m)(Á¢ÇÕ), °¡Ãà»çÀ°Á¦Çѱ¸¿ª(ÀüºÎÁ¦ÇÑ)<°¡ÃàºÐ´¢ÀÇ °ü¸® ¹× À̿뿡 °üÇÑ ¹ý·ü>, ¼ºÀå°ü¸®±Ç¿ª<¼öµµ±ÇÁ¤ºñ°èȹ¹ý>.

¼®¿ìµ¿ 36-2 : ±Ù¸°»ó¾÷Áö¿ª, Áö±¸´ÜÀ§°èȹ±¸¿ª(È­¼ºµ¿Åº(1)), ¼Ò·Î1·ù(Æø 10m~12m)(Á¢ÇÕ), Áß·Î3·ù(Æø 12m~15m)(Á¢ÇÕ), °¡Ãà»çÀ°Á¦Çѱ¸¿ª(ÀüºÎÁ¦ÇÑ)<°¡ÃàºÐ´¢ÀÇ °ü¸® ¹× À̿뿡 °üÇÑ ¹ý·ü>, ¼ºÀå°ü¸®±Ç¿ª<¼öµµ±ÇÁ¤ºñ°èȹ¹ý>.
9)°øºÎ¿ÍÀÇ Â÷ÀÌ
¾ø À½.
10)±âŸÂü°í»çÇ×(ÀÓ´ë°ü·Ê ¹× ±âŸ)
ÀÓ´ë°ü°è´Â ¹Ì»óÀÓ.
Âü°í
»çÇ×
´ëÇ×·ÂÀÖ´Â ÀÓÂ÷ÀÎ ÀÖÀ½. ÀÓÂ÷º¸Áõ±Ý Àü¾×ÀÌ ¹è´çµÇÁö ¾ÊÀ¸¸é Àܾ×À» ¸Å¼öÀÎÀÌ ÀμöÇÔ.
ÇØ´ç ºÎµ¿»êÀÇ ÇöȲÀº ¿Ü


±¹ÅäºÎ½Ç°Å·¡°¡ °æ±âµµ È­¼º½Ã ¼®¿ìµ¿

¡Ü ¸Å¸Å

¸éÀû(§³), ±Ý¾×(¸¸¿ø)

¡Ü Àü¼¼

¸éÀû(§³), ±Ý¾×(¸¸¿ø)

°è¾àÀϰǹ°¸íĪÃþÀü¿ëº¸Áõ±Ý¿ù¼¼°ÇÃà
25.10.13µ¿Åº »ï¼º½¦¸£ºô736.71300652011
25.10.02µ¿Åº »ï¼º½¦¸£ºô336.71500652011
25.10.01µ¿Åº »ï¼º½¦¸£ºô436.7113,20002011
25.09.27µ¿Åº »ï¼º½¦¸£ºô429.69,50002011
25.09.18µ¿Åº »ï¼º½¦¸£ºô736.7110,500202011
¢Ñ ´õº¸±â

µî±âºÎµîº» ¿ä¾à(°Ç¹°)

  Á¢¼öÀÏÀÚ µî±â¸ñÀû/±Ç¸®ÀÚ ±Ç¸®±Ý¾× ±âÁØ
1 2024³â1¿ù15ÀÏ
¼ÒÀ¯±Ç
ÇÑOO
¼Ò¸ê
2 2024³â6¿ù27ÀÏ
ÀÓÂ÷±Ç¼³Á¤
ÃÖOO
148,000,000 Àμö
3 2025³â2¿ù17ÀÏ
°­Á¦°æ¸Å
ÃÖOO
¼Ò¸ê±âÁØ
4 2025³â11¿ù26ÀÏ
¾Ð·ù
È­OO
¼Ò¸ê
5 2026³â1¿ù28ÀÏ
¾Ð·ù
°­OO
¼Ò¸ê

ÀÓÂ÷ÀÎÇöȲ (¹è´ç¿ä±¸Á¾±âÀÏ: 2025-05-07)



¸Å°¢±âÀÏ 7ÀÏÀü¿¡ ¸Å°¢¹°°Ç¸í¼¼¼­°¡ °ø°íµÇ¿À´Ï È®ÀÎÇϽñ⠹ٶø´Ï´Ù.

ÀÓÂ÷ÀÎ ¿ëµµ/Á¡À¯ º¸Áõ±Ý/¿ù¼¼ ´ëÇ×·Â
ÀüÀÔÀÏ/È®Á¤ÀÏ ¹è´ç¿ä±¸ ºñ°í
ÃÖOO 823È£ 148,000,000
O
2022.06.23.
2022.06.14.
2025.4.22. 2022.06.23.~2024.06.23.
ºñ°í
(¸Å°¢¹°°Ç
¸í¼¼¼­)
ÃÖ¿µÈÆ:2024.06.27.ÀÓÂ÷±Çµî±â

¿©ÀÇÁÖ°æ¸Å Á¶¾ð ÇÑ ¸¶µð

¼±¼øÀ§ ÀÓÂ÷±Çµî±â°¡ µÇ¾î ÀÖ½À´Ï´Ù
´ëÇ×·ÂÀÌ ÀÖ´Â ¼±¼øÀ§ ÀÓÂ÷±Çµî±â ±Ç¸®ÀÚ°¡ ¹è´çÀ» Àü¾× ¹ÞÁö ¸øÇÒ °æ¿ì ³«ÂûÀÚ°¡ ÀÜ¿© º¸Áõ±ÝÀ» ÀμöÇØ¾ßÇÏ´Â °æ¿ìµµ ÀÖ½À´Ï´Ù.

ÁÖÀÇ»çÇ× (ÃÖ¼±¼øÀ§ ¼³Á¤ÀÏ: 2025.02.17.°æ¸Å°³½Ã°áÁ¤ ¼³Á¤)

¸Å°¢À¸·Î ¼Ò¸êµÇÁö ¾Ê´Â µî±âºÎ±Ç¸®: º¸Áõ±Ý Àü¾×ÀÌ ¹è´çµÇÁö ¾ÊÀ¸¸é ¸»¼ÒµÇÁö ¾Ê´Â À»±¸3¹ø ÁÖÅÃÀÓÂ÷±Çµî±â(2024.06.27.Á¢¼ö) ÀÖÀ½.
¸Å°¢À¸·Î ¼³Á¤µÈ °ÍÀ¸·Î º¸´Â Áö»ó±Ç: ÇØ´ç»çÇ×¾øÀ½
´ëÇ×·ÂÀÖ´Â ÀÓÂ÷ÀÎ ÀÖÀ½. ÀÓÂ÷º¸Áõ±Ý Àü¾×ÀÌ ¹è´çµÇÁö ¾ÊÀ¸¸é Àܾ×À» ¸Å¼öÀÎÀÌ ÀμöÇÔ.
¡Ø¹Ì³³°ü¸®ºñ(°ø¿ë) Àμö¿©ºÎ¸¦ ÀÔÂû Àü¿¡ È®ÀÎÇϽñ⠹ٶø´Ï´Ù

 

Áö¿ªºÐ¼®

ÁöÇÏö¸í Á÷¼±°Å¸®

Çб³¸í ÀüÈ­¹øÈ£ ÁÖ¼Ò Á÷¼±°Å¸®

¹ý¿ø

¼ö¿øÁö¹æ¹ý¿ø (165-12)°æ±âµµ ¼ö¿ø½Ã ¿µÅ뱸 ¹ýÁ¶·Î 105, Çϵ¿, ¼ö¿ø¹ý¿øÁ¾ÇÕû»ç
´ëÇ¥ : 031)210-1114, ¾ß°£ : 031)210-1111
°üÇÒÁö¿ª : ¼ö¿ø½Ã, ¿À»ê½Ã, È­¼º½Ã, ¿ëÀνÃ

µî±â¼Ò ¼ö¿øÁö¹æ¹ý¿ø º»¿ø È­¼ºµî±â¼Ò (´ëÇ¥:1544-0773, ÆÑ½º:(031)375-3964, °æ±âµµ ¿À»ê½Ã ¹ý¿ø·Î 65 (±Èµ¿ 662))
¼¼¹«¼­ µ¿¼ö¿ø¼¼¹«¼­ (´ëÇ¥:031-695-42, ÆÑ½º:031-273-2416, °æ±âµµ ¼ö¿ø½Ã ¿µÅ뱸 û¸í³²·Î 13 (¿µÅ뵿))

Àαٳ«ÂûÅë°è

±â°£ ¸Å°¢°Ç¼ö Æò±Õ°¨Á¤°¡
Æò±Õ¸Å°¢°¡
¸Å°¢°¡À²
Æò±ÕÀ¯Âû¼ö


º» °æ¸ÅÁ¤º¸´Â ¹ý¿øÀÚ·á¿Í ÀÏÄ¡Çϵµ·Ï ÇÏ¿´À¸³ª ±Ç¸®»çÇ׺¯µ¿, ÀÔ·ÂÂø¿À µîÀÇ ¿øÀÎÀ¸·Î »ç½Ç°ú ´Ù¸¦ ¼ö ÀÖ½À´Ï´Ù. ÀÌ¿ë¾à°ü¿¡ ÀǰЏéÃ¥Á¶°ÇÀ¸·Î Á¦°øµÊÀ» ¾Ë¸®¸ç, °æ¸ÅÀÔÂû½Ã ¹Ýµå½Ã °ü·Ã °øºÎ¸¦ ÀçÈ®ÀÎÇϽñ⠹ٶø´Ï´Ù. º¸´Ù Æí¸®ÇÑ °æ¸ÅÁ¤º¸ Á¦°øÀ» À§ÇØ Áö¼ÓÀûÀ¸·Î °³¼±ÇϰڽÀ´Ï´Ù. ÀÌ¿ëÇØ Áּż­ °¨»çÇÕ´Ï´Ù.