·Î±×ÀÎ
41
ÁÖÅÃ
ÀÇÁ¤ºÎÁö¹æ¹ý¿ø ³²¾çÁÖÁö¿ø
 °¨Á¤°¡447,626,570 ¿ø
 ÃÖÀú°¡(100%) 447,626,570 ¿ø
 º¸Áõ±Ý(10%) 44,762,657 ¿ø
 Ã»±¸¾×91,734,071 ¿ø
°æ±âµµ ³²¾çÁֽà ȭµµÀ¾ ³ìÃ̸® 88-1
»ç°Ç¹øÈ£ 2025Ÿ°æ71770
°æ¸ÅÁ¾·ùºÎµ¿»êÀÓÀǰæ¸Å
¸Å°¢´ë»óÅäÁö ¹× °Ç¹°Àϰý¸Å°¢
¸Å°¢±âÀÏ    2026.03.05(¸ñ) 10:30 ÀÔÂû 7ÀÏÀü    
ÅäÁö¸éÀû300.00§³(90.75 Æò)
°Ç¹°¸éÀû302.66§³(91.55 Æò)
乫/¼ÒÀ¯ÀÚ±èOO / ±èOO
ä±ÇÀÚÇÑOOOOOOO
ÆäÀ̽ººÏ Æ®À§ÅÍ ±¸±Û+
īī¿À½ºÅ丮
īī¿ÀÅå sms¹®ÀÚº¸³»±â
 

±âÀϳ»¿ª

°æ°ú ³¯Â¥ Àú°¨ ÃÖÀú°¡ °á°ú
Á¢¼öÀÏ 2025-05-27 °æ¸ÅÁ¢¼ö
~1ÀÏ 
2025-05-28 °æ¸Å°³½Ã°áÁ¤
~83ÀÏ 
2025-08-18 ¹è´ç¿ä±¸Á¾±âÀÏ
~282ÀÏ 
2026-03-05 100%
447,626,570
ÁøÇà
¹°°Ç¸í¼¼¼­ ÇöȲÁ¶»ç¼­ ¹®°ÇÁ¢¼ö ¼Û´Þ³»¿ª

°¨Á¤Æò°¡ÇöȲ

¸ñ·Ï ÁÖ¼Ò ±¸Á¶/¿ëµµ/´ëÁö±Ç ¸éÀû ºñ°í
ÅäÁö
³ìÃ̸® 88-1 ´ë 300 §³
(90.75Æò)
°Ç¹°
³ìÃ̸® 88-1 1Ãþ ÁÖÅà ö±ÙÄÜÅ©¸®Æ®Á¶ 110.11 §³
(33.31Æò)
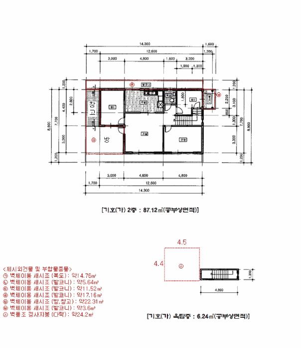
³ìÃ̸® 88-1 2Ãþ ÁÖÅà ö±ÙÄÜÅ©¸®Æ®Á¶ 87.12 §³
(26.35Æò)
³ìÃ̸® 88-1 ¿Áž ö±ÙÄÜÅ©¸®Æ®Á¶ 6.24 §³
(1.89Æò)
Á¦½Ã¿Ü
°Ç¹°
³ìÃ̸® 88-1 º¹µµ 14.76 §³
(4.46Æò)
Æ÷ÇÔ
³ìÃ̸® 88-1 ¹ßÄÚ´Ï 5.64 §³
(1.71Æò)
Æ÷ÇÔ
³ìÃ̸® 88-1 ¹ßÄÚ´Ï 11.52 §³
(3.48Æò)
Æ÷ÇÔ
³ìÃ̸® 88-1 ¹ßÄÚ´Ï 17.16 §³
(5.19Æò)
Æ÷ÇÔ
³ìÃ̸® 88-1 ¹æÃ¢°í 22.31 §³
(6.75Æò)
Æ÷ÇÔ
³ìÃ̸® 88-1 ¹ßÄÚ´Ï 3.6 §³
(1.09Æò)
Æ÷ÇÔ
³ìÃ̸® 88-1 ´Ù¶ô 24.2 §³
(7.32Æò)
Æ÷ÇÔ
1) À§Ä¡/°èȹ°ü¸®Áö¿ª/³ë¼±¹ö½ºÁ¤·ùÀå/ö±ÙÄÜÅ©¸®Æ®Á¶/°æ»çÁöºØ/¹æ4/¿å½Ç3 ´õº¸±â
°¨Á¤Æò°¡ ¿äÇ×Ç¥
1)À§Ä¡ ¹× ÁÖÀ§È¯°æ
º»°ÇÀº °æ±âµµ ³²¾çÁֽà ȭµµÀ¾ ³ìÃ̸® ¼ÒÀç""¸¶¼®°íµîÇб³""¼­Ãø Àαٿ¡ À§Ä¡Çϸç, ÁÖÀ§´Â ¾Æ
ÆÄÆ®´ÜÁö, â°í, ÁÖÅà µîÀÌ È¥ÀçÇÏ´Â Áö¿ªÀ¸·Î Á¦¹Ý ÁÖÀ§È¯°æÀº º¸Åë½Ã µË´Ï´Ù.
2)±³Åë»óȲ
º»°Ç±îÁö Â÷·® ÁøÃâÀÔÀÌ °¡´ÉÇϸç, Àαٿ¡ ³ë¼±¹ö½ºÁ¤·ùÀå µîÀÌ ¼ÒÀçÇÏ´Â µî Á¦¹Ý ±³Åë»óȲ
Àº º¸Åë½Ã µË´Ï´Ù.
3)ÇüÅ ¹× ÀÌ¿ë»óÅÂ
º»°ÇÀº ÀÎÁ¢ ÅäÁö¿Í µî°íÆòźÇÑ »ç´Ù¸®Çü ÅäÁö·Î¼­, ÁÖ°Å¿ë °ÇºÎÁö·Î ÀÌ¿ë ÁßÀÔ´Ï´Ù.
4)ÀÎÁ¢ µµ·Î»óÅÂ
º»°ÇÀº ºÏµ¿ÃøÀ¸·Î ³ëÆø ¾à 4¹ÌÅÍ ³»¿ÜÀÇ ¾Æ½ºÆÈÆ®Æ÷Àåµµ·Î¿Í Á¢Çϰí ÀÖ½À´Ï´Ù.
5)ÅäÁöÀÌ¿ë°èȹ ¹× Á¦ÇÑ»óÅÂ
°èȹ°ü¸®Áö¿ª, ¼ºÀå°ü¸®°èȹ±¸¿ª(»ê¾÷Çü, µµ½Ã°³¹ß°ú ¹®ÀÇ), »ó´ëº¸È£±¸¿ª(¸¶¼®°í(±¸¸®³²¾ç
ÁÖ±³À°Áö¿øÃ»¿¡ ¹®Àǹٶ÷))<±³À°È¯°æ º¸È£¿¡ °üÇÑ ¹ý·ü>, ¿ª»ç¹®È­È¯°æº¸Á¸Áö¿ª(´É¿ø´ë±ºÀÌ
º¸¹¦¿ª º¸È£±¸¿ª¿Ü°û°æ°è·ÎºÎÅÍ200MÀ̳»)<¹®È­À¯»êÀÇ º¸Á¸ ¹× Ȱ¿ë¿¡ °üÇÑ ¹ý·ü>, ¹èÃâ½Ã¼³
¼³Ä¡Á¦ÇÑÁö¿ª<¹°È¯°æº¸Àü¹ý>, ÀÚ¿¬º¸Àü±Ç¿ª<¼öµµ±ÇÁ¤ºñ°èȹ¹ý>, °øÀå¼³¸³½ÂÀÎÁö¿ª(¼öµµ¹ý½Ã
Çà·É Á¦14Á¶ÀÇ3 1È£)<¼öµµ¹ý>, ¼öÁúº¸ÀüƯº°´ëÃ¥Áö¿ª(1±Ç¿ª)<ȯ°æÁ¤Ã¥±âº»¹ý>
6)Á¦½Ã¸ñ·Ï ¿ÜÀÇ ¹°°Ç
-
7)°øºÎ¿ÍÀÇ Â÷ÀÌ
-
8)±âŸÂü°í»çÇ×(ÀÓ´ë°ü·Ê ¹× ±âŸ)
ÀÓ´ë°ü°è : ¹Ì»óÀÔ´Ï´Ù.
±âŸ : ÇØ´ç»çÇ× ¾ø½À´Ï´Ù.
1)°Ç¹°ÀÇ ±¸Á¶
ö±ÙÄÜÅ©¸®Æ®Á¶ °æ»çÁöºØ 2Ãþ °ÇÀ¸·Î¼­.
(»ç¿ë½ÂÀÎÀÏ : 2003.10.31.)

¿Üº® : ¼®ÀçºÙÀÓ ¸¶°¨ µî
³»º® : º®Áöµµ¹è ¹× ŸÀϺÙÀÓ ¸¶°¨ µî
âȣ : ÇÏÀÌ»õ½Ã âȣ µî ÀÔ´Ï´Ù.
2)ÀÌ¿ë»óÅÂ
º»°ÇÀº ´Üµ¶ÁÖÅÃÀ¸·Î ÀÌ¿ë ÁßÀÔ´Ï´Ù.

1Ãþ : ÁÖÅà 2°¡±¸(¹æ4, °Å½Ç, ÁÖ¹æ, °Å½Ç°â ÁÖ¹æ, ¿å½Ç3 µî)
2Ãþ : ÁÖÅà 1°¡±¸(¹æ4, °Å½Ç, ÁÖ¹æ, È­Àå½Ç, â°í µî)
3)¼³ºñ³»¿ª
º»°ÇÀº ±âº»ÀûÀÎ À§»ý ¹× ±Þ¹è¼ö¼³ºñ, LPG°¡½º º¸ÀÏ·¯¿¡ ÀÇÇÑ ³­¹æ¼³ºñ µîÀÌ °®Ãß¾îÁ® ÀÖ½À´Ï´Ù.
4)ºÎÇÕ¹° ¹× Á¾¹°
º»°Ç¿¡ ºÎÇÕ¹° ¹× Á¾¹°(ÈÄ÷""ÁöÀû ¹× °Ç¹°°³È²µµ""ÂüÁ¶) ±âÈ£¨±~¨·ÀÌ ¼ÒÀçÇϳª ´ë»ó¹°°ÇÀÇ »ç¿ë¡¤¼öÀÍ¡¤Ã³ºÐ¿¡ ¿µÇâÀº ¹Ì¹ÌÇÑ °ÍÀ¸·Î ÆÇ´ÜµË´Ï´Ù.
5)°øºÎ¿ÍÀÇ Â÷ÀÌ
ÇØ´ç»çÇ× ¾ø½À´Ï´Ù.
6)±âŸÂü°í»çÇ×(ÀÓ´ë°ü·Ê ¹× ±âŸ)
ÀÓ´ë°ü°è : ¹Ì»óÀÔ´Ï´Ù.
±âŸ : ÇØ´ç»çÇ× ¾ø½À´Ï´Ù.
Âü°í
»çÇ×
Àϰý¸Å°¢. Á¦½Ã¿Ü °Ç¹° Æ÷ÇÔ

°ÇÃ๰ÇöȲ

¼ÒÀçÁö °æ±âµµ ³²¾çÁֽà ȭµµÀ¾ ³ìÃ̸® 88-1¹øÁö
´ëÁö¸éÀû 300§³
(90.91Æò)
¿¬¸éÀû 197.23§³
(59.77Æò)
°ÇÃà¸éÀû 117.18§³
(35.51Æò)
¿ëÀû·ü»êÁ¤
¿¬¸éÀû
197.23§³
(59.77Æò)
°ÇÆóÀ² 39.06% ¿ëÀû·ü 65.74%
Áö»óÃþ¼ö 2Ãþ ÁöÇÏÃþ¼ö  
ÁÖ¿ëµµ ´Üµ¶ÁÖÅà ±¸Á¶ ö±ÙÄÜÅ©¸®Æ®±¸Á¶
Âø°øÀÏÀÚ »ç¿ë½ÂÀÎÀÏÀÚ 2003.10.31
°ÇÃ๰Ãþº°ÇöȲ [º¸±â]


±¹ÅäºÎ½Ç°Å·¡°¡ °æ±âµµ ³²¾çÁֽà ȭµµÀ¾

¡Ü ¸Å¸Å

¸éÀû(§³), ±Ý¾×(¸¸¿ø)

¡Ü Àü¼¼

¸éÀû(§³), ±Ý¾×(¸¸¿ø)

°è¾àÀÏ¿¬¸éÀûº¸Áõ±Ý¿ù¼¼°ÇÃà
26.02.1030300302007
26.02.1030500352009
26.02.0620500402009
26.02.03331,000562011
26.01.2729.4300382002
¢Ñ ´õº¸±â

µî±âºÎµîº» ¿ä¾à(ÅäÁö)

  Á¢¼öÀÏÀÚ µî±â¸ñÀû/±Ç¸®ÀÚ ±Ç¸®±Ý¾× ±âÁØ
1 2016³â11¿ù14ÀÏ
¼ÒÀ¯±Ç
±èOO
¼Ò¸ê
2 2020³â1¿ù10ÀÏ
±ÙÀú´ç±Ç
ÇÑOOOO
99,000,000 ¼Ò¸ê±âÁØ
3 2025³â5¿ù28ÀÏ
ÀÓÀǰæ¸Å
ÇÑOOOO
¼Ò¸ê

µî±âºÎµîº» ¿ä¾à(°Ç¹°)

  Á¢¼öÀÏÀÚ µî±â¸ñÀû/±Ç¸®ÀÚ ±Ç¸®±Ý¾× ±âÁØ
1 2016³â11¿ù14ÀÏ
¼ÒÀ¯±Ç
±èOO
¼Ò¸ê
2 2020³â1¿ù10ÀÏ
±ÙÀú´ç±Ç
ÇÑOOOO
99,000,000 ¼Ò¸ê±âÁØ
3 2025³â5¿ù28ÀÏ
ÀÓÀǰæ¸Å
ÇÑOOOO
¼Ò¸ê

ÀÓÂ÷ÀÎÇöȲ (¹è´ç¿ä±¸Á¾±âÀÏ: 2025-08-18)



¸Å°¢±âÀÏ 7ÀÏÀü¿¡ ¸Å°¢¹°°Ç¸í¼¼¼­°¡ °ø°íµÇ¿À´Ï È®ÀÎÇϽñ⠹ٶø´Ï´Ù.

ÀÓÂ÷ÀÎ ¿ëµµ/Á¡À¯ º¸Áõ±Ý/¿ù¼¼ ´ëÇ×·Â
ÀüÀÔÀÏ/È®Á¤ÀÏ ¹è´ç¿ä±¸ ºñ°í
±¹OO 101È£(1Ãþ¹æ2Ä­) 10,000,000
[¿ù]450,000
X
2024.08.16.
2024.08.16.
2025.6.12. 2024.08.31.~2026.08.31.
±èOO 103È£(1Ãþ¹æ2Ä­) 5,000,000
[¿ù]400,000
X
2025.06.24.
2024.06.14.
2025.7.30. 2024.06.06.~2026.06.06.
½ÅOO
O
2016.11.25.
ºñ°í
(¸Å°¢¹°°Ç
¸í¼¼¼­)
±è°æÁ¾:ÀÓÂ÷ÀÎ ±è°æÁ¾ÀÇ ÀüÀÔÀÏÀÚ´Â °æ¸Å°³½Ã°áÁ¤(2025.5.28.) ÀÌÈÄÀÓ

¿©ÀÇÁÖ°æ¸Å Á¶¾ð ÇÑ ¸¶µð

Á¦½Ã¿Ü ¹°°ÇÀÌ Æ÷ÇԵǾî ÀÖ½À´Ï´Ù
¡®Á¦½Ã¿Ü ¹°°Ç¡¯Àº ÇØ´ç °øºÎ»ó¿¡´Â Á¸ÀçÇÏÁö ¾ÊÁö¸¸, ÇöÀå¿¡ Á¸Àç°¡ È®ÀεǴ ¿©·¯ ÇüÅÂÀÇ °Ç¹°, ±â°è±â±¸ µîÀ» ¸»ÇÕ´Ï´Ù. ÀÌµé ´ëºÎºÐÀº ¹«Çã°¡, ¹«½Å°íÀ̰ųª »ç¿ë½ÂÀÎÀ» ¹ÞÁö ¾ÊÀº °ÍÀÔ´Ï´Ù. ¡®Á¦½Ã¿Ü ¹°°Ç¡¯ÀÌ °æ¸Å´ë»ó¿¡ Æ÷ÇԵǾî ÀÖ´Ù¸é ³«ÂûÀÚÀÇ ¼ÒÀ¯±Ç Ãëµæ¿¡´Â ¾Æ¹«·± ¹®Á¦°¡ ¾ø½À´Ï´Ù.
ÃëÇÏ ¶Ç´Â Ãë¼ÒµÉ °¡´É¼º ÀÖ½À´Ï´Ù
ÀÌ ¹°°ÇÀÇ °¨Á¤°¡°ÝÀº 447,626,570¿øÀÔ´Ï´Ù. °æ¸Å¸¦ ½ÅûÇÑ Ã¤±ÇÀÚ°¡ ¹è´ç ¹Þ¾Æ¾ß ÇÒ ±Ý¾×Àº 91,734,071¿øÀ¸·Î °¨Á¤°¡°Ý ´ëºñ »ó´çÈ÷ ÀûÀº ±Ý¾×ÀÔ´Ï´Ù. ÀÌ·± °æ¿ì, 乫°¡°¡ º¯Á¦ÇÏ¿© °æ¸Å¸¦ ÃëÇϽÃŰ°Å³ª °æ¸Å½Åûä±ÇÀÚ°¡ ¹è´ç¹ÞÀº ±Ý¿øÀÌ ¾ø°ÔµÇ¾î À̸¥ ¹Ù "¹«À׿©¿¡ ÀÇÇÑ Ãë¼Ò"°¡ µÉ °¡´É¼ºÀÌ ÀÖ½À´Ï´Ù.

ÁÖÀÇ»çÇ× (ÃÖ¼±¼øÀ§ ¼³Á¤ÀÏ: 2020.1.10. ±ÙÀú´ç±Ç ¼³Á¤)

¸Å°¢À¸·Î ¼Ò¸êµÇÁö ¾Ê´Â µî±âºÎ±Ç¸®: ÇØ´ç»çÇ×¾øÀ½
¸Å°¢À¸·Î ¼³Á¤µÈ °ÍÀ¸·Î º¸´Â Áö»ó±Ç: ÇØ´ç»çÇ×¾øÀ½
Àϰý¸Å°¢. Á¦½Ã¿Ü °Ç¹° Æ÷ÇÔ
¡Ø¹Ì³³°ü¸®ºñ(°ø¿ë) Àμö¿©ºÎ¸¦ ÀÔÂû Àü¿¡ È®ÀÎÇϽñ⠹ٶø´Ï´Ù

 

Áö¿ªºÐ¼®

ÁöÇÏö¸í Á÷¼±°Å¸®

Çб³¸í ÀüÈ­¹øÈ£ ÁÖ¼Ò Á÷¼±°Å¸®

¹ý¿ø

ÀÇÁ¤ºÎÁö¹æ¹ý¿ø ³²¾çÁÖÁö¿ø (122-49)°æ±âµµ ³²¾çÁֽà ´Ù»êÁß¾Ó·Î82¹ø¾È±æ 161(´Ù»êµ¿)
´ëÇ¥ : 031)869-4114
°üÇÒÁö¿ª : °¡Æò±º, ±¸¸®½Ã, ³²¾çÁÖ½Ã

µî±â¼Ò ÀÇÁ¤ºÎÁö¹æ¹ý¿ø º»¿ø ³²¾çÁÖµî±â¼Ò (´ëÇ¥:1544-0773, ÆÑ½º:(031)551-2010, °æ±âµµ ³²¾çÁֽà °æÃá·Î 514 (Áö±Ýµ¿ 158-4))
¼¼¹«¼­ ³²¾çÁÖ¼¼¹«¼­ (´ëÇ¥:031-550-32, ÆÑ½º:031-566-1808, °æ±âµµ ±¸¸®½Ã ¾È°ñ·Î 36 (±³¹®µ¿))

Àαٳ«ÂûÅë°è

±â°£ ¸Å°¢°Ç¼ö Æò±Õ°¨Á¤°¡
Æò±Õ¸Å°¢°¡
¸Å°¢°¡À²
Æò±ÕÀ¯Âû¼ö


º» °æ¸ÅÁ¤º¸´Â ¹ý¿øÀÚ·á¿Í ÀÏÄ¡Çϵµ·Ï ÇÏ¿´À¸³ª ±Ç¸®»çÇ׺¯µ¿, ÀÔ·ÂÂø¿À µîÀÇ ¿øÀÎÀ¸·Î »ç½Ç°ú ´Ù¸¦ ¼ö ÀÖ½À´Ï´Ù. ÀÌ¿ë¾à°ü¿¡ ÀǰЏéÃ¥Á¶°ÇÀ¸·Î Á¦°øµÊÀ» ¾Ë¸®¸ç, °æ¸ÅÀÔÂû½Ã ¹Ýµå½Ã °ü·Ã °øºÎ¸¦ ÀçÈ®ÀÎÇϽñ⠹ٶø´Ï´Ù. º¸´Ù Æí¸®ÇÑ °æ¸ÅÁ¤º¸ Á¦°øÀ» À§ÇØ Áö¼ÓÀûÀ¸·Î °³¼±ÇϰڽÀ´Ï´Ù. ÀÌ¿ëÇØ Áּż­ °¨»çÇÕ´Ï´Ù.