·Î±×ÀÎ
232
¾ÆÆÄÆ®
¼­¿ïºÏºÎÁö¹æ¹ý¿ø
 °¨Á¤°¡385,000,000 ¿ø
 ÃÖÀú°¡(80%) 308,000,000 ¿ø
 º¸Áõ±Ý(10%) 30,800,000 ¿ø
 Ã»±¸¾×286,345,880 ¿ø
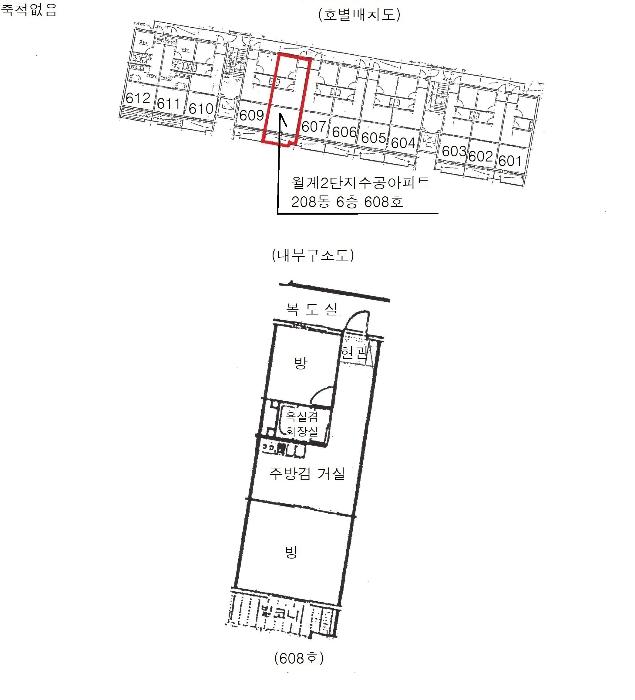
¼­¿ïƯº°½Ã ³ë¿ø±¸ ÃʾȻê·Î1±æ 18, 208µ¿ 6Ãþ608È£ (¿ù°èµ¿,¿ù°è2´ÜÁöÁÖ°ø¾ÆÆÄÆ®)
¼­¿ïƯº°½Ã ³ë¿ø±¸ ¿ù°èµ¿ 556
»ç°Ç¹øÈ£ 2024Ÿ°æ121579
°æ¸ÅÁ¾·ùºÎµ¿»êÀÓÀǰæ¸Å
¸Å°¢´ë»óÅäÁö ¹× °Ç¹°Àϰý ¸Å°¢
¸Å°¢±âÀÏ    2026.04.07(È­) 10:00 ÀÔÂû 1ÀÏÀü    
ÅäÁö¸éÀû25.00§³(7.56 Æò)
°Ç¹°¸éÀû44.52§³(13.47 Æò)
乫/¼ÒÀ¯ÀÚÀ¯OO(OOOOOOO)¿Ü 1¸í / À¯OO(OOOOOOO)¿Ü 1¸í
ä±ÇÀÚÄÉOOOOOOOOOOOOOOOOOOO
ÆäÀ̽ººÏ Æ®À§ÅÍ ±¸±Û+
īī¿À½ºÅ丮
īī¿ÀÅå sms¹®ÀÚº¸³»±â
 

±âÀϳ»¿ª

°æ°ú ³¯Â¥ Àú°¨ ÃÖÀú°¡ °á°ú
Á¢¼öÀÏ 2024-11-21 °æ¸ÅÁ¢¼ö
~0ÀÏ 
2024-11-21 °æ¸Å°³½Ã°áÁ¤
~83ÀÏ 
2025-02-12 ¹è´ç¿ä±¸Á¾±âÀÏ
~201ÀÏ 
2025-06-10 100%
385,000,000
º¯°æ
~468ÀÏ 
2026-03-04 100%
385,000,000
À¯Âû
~502ÀÏ 
2026-04-07 80%
308,000,000
ÁøÇà
¹°°Ç¸í¼¼¼­ ÇöȲÁ¶»ç¼­ ¹®°ÇÁ¢¼ö ¼Û´Þ³»¿ª

°¨Á¤Æò°¡ÇöȲ

¸ñ·Ï ÁÖ¼Ò ±¸Á¶/¿ëµµ/´ëÁö±Ç ¸éÀû ºñ°í
´ëÁö±Ç
¿ù°èµ¿ 556 102425.2ºÐÀÇ 25.0 25.0 §³
(7.56Æò)
°Ç¹°
¿ù°èµ¿ 556 208µ¿ 6Ãþ608È£ ö±ÙÄÜÅ©¸®Æ® º®½ÄÁ¶ 44.52 §³
(13.47Æò)
1) À§Ä¡/µµ½ÃÁö¿ª/Á¦3Á¾ÀϹÝÁÖ°ÅÁö¿ª/Á¦1Á¾Áö±¸´ÜÀ§°èȹ±¸¿ª/ÁÖÂ÷Àå/¸¶À»¹ö½º Á¤·ùÀå/Â÷·® ÃâÀÔ ¿ëÀÌ/ö±ÙÄÜÅ©¸®Æ®Á¶/ö±ÙÄÜÅ©¸®Æ® º®½ÄÁ¶/½º¶óºêÁöºØ/µµ½Ã°¡½º/°¡½ºº¸ÀÏ·¯/¹æ2/È­Àå½Ç1 ´õº¸±â
°¨Á¤Æò°¡ ¿äÇ×Ç¥
1)À§Ä¡ ¹× ÁÖÀ§È¯°æ
º»°ÇÀº ¼­¿ïƯº°½Ã ³ë¿ø±¸ ¿ù°èµ¿ ¼ÒÀç "¼­¿ï¿ù°èÃʵîÇб³" ºÏµ¿Ãø Àαٿ¡ À§Ä¡ÇÏ´Â ¿ù°è2´ÜÁöÁÖ°ø¾ÆÆÄÆ® 208µ¿ 6Ãþ 608È£(ÀüÀ¯¸éÀû 44.52§³)·Î¼­ ÁÖÀ§´Â Áß.¼Ò±Ô¸ðÁ¡Æ÷ ¹× ±Ù¸°»ýȰ½Ã¼³, °¢±ÞÇб³, ´ëÇб³, ±Ù¸°°ø¿ø, °ü°ø¼­ ¹× °ø°ø½Ã¼³, ºñ±³Àû ±Ô¸ð°¡ Å« ¾ÆÆÄÆ®´ÜÁö·Î Çü¼ºµÇ¾î ÀÖ´Â Áö¿ªÀ¸·Î¼­ Á¦¹ÝÁÖ°Åȯ°æÀº º¸Åë½ÃµÊ.
2)±³Åë»óȲ
º»°Ç±îÁö Â÷·® ÃâÀÔ ¿ëÀÌÇϸç, Àαٿ¡ ³ë¼±¹ö½º ¹× ¸¶À»¹ö½º Á¤·ùÀå, ±Ù°Å¸®¿¡ ¿ù°è¿ª(1È£¼±)ÀÌ À§Ä¡ÇÏ¸ç °Å¸® ¹× ¿îÇàºóµµ µîÀ¸·Î º¸¾Æ ´ëÁß±³Åë»çÁ¤Àº ¹«³­ÇÔ.
3)°Ç¹°ÀÇ ±¸Á¶
ö±ÙÄÜÅ©¸®Æ® º®½ÄÁ¶ ö±ÙÄÜÅ©¸®Æ®Á¶ ½º¶óºêÁöºØ 15Ãþ °Ç¹°³» 6Ãþ 608È£·Î¼­
¿Üº® : ¸ôÅ»À§ÆäÀÎÆÃ¸¶°¨
³»º® : º®Áöµµ¹è ¹× ÁÖ¹æÀϺΠŸÀϸ¶°¨
¹Ù´Ú : ºñ´Ò½ÃÆ®¸¶°¨
âȣ : ÇÏÀ̼¦½Ã âȣ¸¶°¨ÀÓ.
4)ÀÌ¿ë»óÅÂ
¾ÆÆÄÆ®: (º¹µµ½Ä:¹æ2, ÁÖ¹æ°â °Å½Ç1, ¿å½Ç°âÈ­Àå½Ç1, ¹ßÄÚ´Ï1)ÀÓ.
5)¼³ºñ³»¿ª
µµ½Ã°¡½ºº¸ÀÏ·¯¿¡ ÀÇÇÑ ³­¹æ½Ã¼³À̰í À§»ý.±Þ¹è¼ö ¹× ±ÞÅÁ¼³ºñ, ¿Á¿Ü¼ÒÈ­Àü¼³ºñ, È­ÀçŽÁö±â¼³ºñ, ½Â°­±â¼³ºñ, ¿Á¿Ü ÁÖÂ÷Àå½Ã¼³ ±¸ºñµÊ.
6)ÅäÁöÀÇ Çü»ó ¹× ÀÌ¿ë»óÅÂ
ºÎÁ¤ÇüÀÇ ÅäÁö·Î ÀÎÁ¢ÅäÁö¿Í µî°íÆòźÇÏ¸ç °ÇºÎÁö(¾ÆÆÄÆ®)·Î ÀÌ¿ëÁßÀÓ.
7)ÀÎÁ¢ µµ·Î»óŵî
¿Ü°û°øµµ¸¦ ÅëÇÏ¿© ´ÜÁö³» °¡·Î¸Á½Ã¼³°ú ¿¬°èµÇ¾î ÀÖ¾î Â÷·®ÀÇ È帧Àº ¹«³­ÇÔ.
8)ÅäÁöÀÌ¿ë°èȹ ¹× Á¦ÇÑ»óÅÂ
ÀϷùøÈ£(1):
µµ½ÃÁö¿ª, Á¦3Á¾ÀϹÝÁÖ°ÅÁö¿ª, Á¦1Á¾Áö±¸´ÜÀ§°èȹ±¸¿ª(¿ù°è4ÅÃÁö), µµ·Î(Á¢ÇÕ) °¡Ãà»çÀ°Á¦Çѱ¸¿ª<°¡ÃàºÐ´¢ÀÇ °ü¸® ¹× À̿뿡 °üÇÑ ¹ý·ü>, ±³À°È¯°æº¸È£±¸¿ª<±³À°È¯°æ º¸È£¿¡ °üÇÑ ¹ý·ü>, ±³À°È¯°æº¸È£±¸¿ª(2017-04-17)(½ÅâÁß. ÃÖÁ¾È®ÀÎÀº °üÇÒ±³À°Ã»¿¡ ¹Ýµå½Ã ¹®ÀÇ)<±³À°È¯°æ º¸È£¿¡ °üÇÑ ¹ý·ü>, ±³À°È¯°æº¸È£±¸¿ª(ÃÖÁ¾È®ÀÎÀº°üÇÒ±³À°Ã»¿¡¹Ýµå½ÃÈ®ÀÎ)<±³À°È¯°æ º¸È£¿¡ °üÇÑ ¹ý·ü>, »ó´ëº¸È£±¸¿ª<±³À°È¯°æ º¸È£¿¡ °üÇÑ ¹ý·ü>, Àý´ëº¸È£±¸¿ª<±³À°È¯°æ º¸È£¿¡ °üÇÑ ¹ý·ü>, ´ë°ø¹æ¾îÇùÁ¶±¸¿ª(À§Å¹°íµµ:77-257m)<±º»ç±âÁö ¹× ±º»ç½Ã¼³ º¸È£¹ý>, °ú¹Ð¾ïÁ¦±Ç¿ª<¼öµµ±ÇÁ¤ºñ°èȹ¹ý>
ÀϷùøÈ£(2):
µµ½ÃÁö¿ª, Á¦3Á¾ÀϹÝÁÖ°ÅÁö¿ª, Á¦1Á¾Áö±¸´ÜÀ§°èȹ±¸¿ª(2003-09-17)(¿ù°è4ÅÃÁö), µµ·Î(2003-09-17)(Á¢ÇÕ), µµ·Î(Á¢ÇÕ) °¡Ãà»çÀ°Á¦Çѱ¸¿ª<°¡ÃàºÐ´¢ÀÇ °ü¸® ¹× À̿뿡 °üÇÑ ¹ý·ü>, ±³À°È¯°æº¸È£±¸¿ª<±³À°È¯°æ º¸È£¿¡ °üÇÑ ¹ý·ü>, ±³À°È¯°æº¸È£±¸¿ª(ÃÖÁ¾È®ÀÎÀº°üÇÒ±³À°Ã»¿¡¹Ýµå½ÃÈ®ÀÎ)<±³À°È¯°æ º¸È£¿¡ °üÇÑ ¹ý·ü>, ´ë°ø¹æ¾îÇùÁ¶±¸¿ª(À§Å¹°íµµ:77-257m)<±º»ç±âÁö ¹× ±º»ç½Ã¼³ º¸È£¹ý>, °ú¹Ð¾ïÁ¦±Ç¿ª<¼öµµ±ÇÁ¤ºñ°èȹ¹ý>
9)°øºÎ¿ÍÀÇ Â÷ÀÌ
ÇØ´ç»çÇ× ¾øÀ½.
10)±âŸÂü°í»çÇ×(ÀÓ´ë°ü·Ê ¹× ±âŸ)
ÀÓ´ë°ü°è´Â ¹Ì»óÀÓ.
Âü°í
»çÇ×

* Æó¹®ºÎÀç·Î ¼ÒÀ¯ÀÚ ¹× Á¡À¯ÀÚµéÀ» ¸¸³ªÁö ¸øÇÏ¿© ³ë

°ÇÃ๰ÇöȲ

¼ÒÀçÁö ¼­¿ïƯº°½Ã ³ë¿ø±¸ ¿ù°èµ¿ 556¹øÁö
´ëÁö¸éÀû   ¿¬¸éÀû 4492.8§³
(1361.45Æò)
°ÇÃà¸éÀû 1156.35§³
(350.41Æò)
¿ëÀû·ü»êÁ¤
¿¬¸éÀû
2998.8§³
(908.73Æò)
°ÇÆóÀ²   ¿ëÀû·ü  
Áö»óÃþ¼ö 3Ãþ ÁöÇÏÃþ¼ö 1Ãþ
ÁÖ¿ëµµ °øµ¿ÁÖÅà ±¸Á¶ ö±ÙÄÜÅ©¸®Æ®±¸Á¶
Âø°øÀÏÀÚ 1990.11.05 »ç¿ë½ÂÀÎÀÏÀÚ 1992.11.19


±¹ÅäºÎ½Ç°Å·¡°¡ ¼­¿ïƯº°½Ã ³ë¿ø±¸ ¿ù°èµ¿

¡Ü ¸Å¸Å

¸éÀû(§³), ±Ý¾×(¸¸¿ø)

¡Ü Àü¼¼

¸éÀû(§³), ±Ý¾×(¸¸¿ø)

°è¾àÀÏARTÃþÀü¿ëº¸Áõ±Ý¿ù¼¼°ÇÃà
26.03.31ÁÖ°ø2938.6410,000401992
26.03.25ÁÖ°ø21244.9436,0001992
26.03.25ÁÖ°ø2459.9727,00001992
26.03.24ÁÖ°ø21038.6431,5001993
26.03.21ÁÖ°ø21044.5218,00001992
¢Ñ ´õº¸±â

µî±âºÎµîº» ¿ä¾à(°Ç¹°)

  Á¢¼öÀÏÀÚ µî±â¸ñÀû/±Ç¸®ÀÚ ±Ç¸®±Ý¾× ±âÁØ
1 2021³â10¿ù20ÀÏ
¼ÒÀ¯±Ç
À¯OO
¼Ò¸ê
2 2021³â10¿ù20ÀÏ
±ÙÀú´ç±Ç
(OOOO
326,700,000 ¼Ò¸ê±âÁØ
3 2024³â5¿ù28ÀÏ
°¡¾Ð·ù
·ÔOOOO
7,160,665 ¼Ò¸ê
4 2024³â6¿ù10ÀÏ
°¡¾Ð·ù
ȕOOOO
13,306,278 ¼Ò¸ê
5 2024³â6¿ù14ÀÏ
°¡¾Ð·ù
ÄÉOOOO
45,594,798 ¼Ò¸ê
6 2024³â6¿ù27ÀÏ
°¡¾Ð·ù
½ÅOOOO
12,753,846 ¼Ò¸ê
7 2024³â7¿ù1ÀÏ
°¡¾Ð·ù
(OOOO
8,449,125 ¼Ò¸ê
8 2024³â10¿ù18ÀÏ
°¡¾Ð·ù
(OOOO
9,115,166 ¼Ò¸ê
9 2024³â11¿ù6ÀÏ
¾Ð·ù
±¹
¼Ò¸ê
10 2024³â11¿ù21ÀÏ
ÀÓÀǰæ¸Å
ÄÉOOOO
¼Ò¸ê
11 2025³â2¿ù7ÀÏ
°¡¾Ð·ù
(OOOO
47,008,603 ¼Ò¸ê
12 2025³â2¿ù13ÀÏ
°¡¾Ð·ù
(OOOO
38,621,249 ¼Ò¸ê
13 2025³â7¿ù22ÀÏ
¾Ð·ù
³ëOO
¼Ò¸ê

ÀÓÂ÷ÀÎÇöȲ (¹è´ç¿ä±¸Á¾±âÀÏ: 2025-02-12)

ÀÓÂ÷ÀÎ ¿ëµµ/Á¡À¯ º¸Áõ±Ý/¿ù¼¼ ´ëÇ×·Â
ÀüÀÔÀÏ/È®Á¤ÀÏ ¹è´ç¿ä±¸ ºñ°í
±èOO ÀüºÎ(¹æ1Ä­) 20,000,000
[¿ù]700,000
X
2023.10.11.
2023.10.11.
2024.12.17. 2023.10.11.ºÎÅÍ2025.10.10.±îÁö

¿©ÀÇÁÖ°æ¸Å Á¶¾ð ÇÑ ¸¶µð


ÁÖÀÇ»çÇ× (ÃÖ¼±¼øÀ§ ¼³Á¤ÀÏ: 2021. 10. 20. ±ÙÀú´ç±Ç ¼³Á¤)

¸Å°¢À¸·Î ¼Ò¸êµÇÁö ¾Ê´Â µî±âºÎ±Ç¸®:
¸Å°¢À¸·Î ¼³Á¤µÈ °ÍÀ¸·Î º¸´Â Áö»ó±Ç:
¡Ø¹Ì³³°ü¸®ºñ(°ø¿ë) Àμö¿©ºÎ¸¦ ÀÔÂû Àü¿¡ È®ÀÎÇϽñ⠹ٶø´Ï´Ù

 

Áö¿ªºÐ¼®

ÁöÇÏö¸í Á÷¼±°Å¸®

Çб³¸í ÀüÈ­¹øÈ£ ÁÖ¼Ò Á÷¼±°Å¸®

¹ý¿ø

¼­¿ïºÏºÎÁö¹æ¹ý¿ø (013-22)¼­¿ïƯº°½Ã µµºÀ±¸ ¸¶µé·Î749 (µµºÀ2µ¿ 626)
´ëÇ¥ : 02)910-3114
°üÇÒÁö¿ª : °­ºÏ±¸, ³ë¿ø±¸, µµºÀ±¸, µ¿´ë¹®±¸, ¼ººÏ±¸, Áß¶û±¸

µî±â¼Ò ¼­¿ïºÏºÎÁö¹æ¹ý¿ø º»¿ø µî±â±¹ (´ëÇ¥:1544-0773, ÆÑ½º:(02)2030-2330, ¼­¿ïƯº°½Ã µµºÀ±¸ ³ëÇØ·Î 325 (⵿ 337¹øÁö))
¼¼¹«¼­ ³ë¿ø¼¼¹«¼­ (´ëÇ¥:02-3499-02, ÆÑ½º:02-992-1485, ¼­¿ïƯº°½Ã µµºÀ±¸ ³ëÇØ·Î69±æ 14 (⵿))

Àαٳ«ÂûÅë°è

±â°£ ¸Å°¢°Ç¼ö Æò±Õ°¨Á¤°¡
Æò±Õ¸Å°¢°¡
¸Å°¢°¡À²
Æò±ÕÀ¯Âû¼ö
3°³¿ù 11°Ç 681,636,364¿ø
620,991,200¿ø
91%
0.9ȸ
6°³¿ù 37°Ç 607,216,216¿ø
534,609,523¿ø
88%
1.1ȸ
12°³¿ù 113°Ç 609,407,080¿ø
540,645,411¿ø
89%
1.1ȸ


º» °æ¸ÅÁ¤º¸´Â ¹ý¿øÀÚ·á¿Í ÀÏÄ¡Çϵµ·Ï ÇÏ¿´À¸³ª ±Ç¸®»çÇ׺¯µ¿, ÀÔ·ÂÂø¿À µîÀÇ ¿øÀÎÀ¸·Î »ç½Ç°ú ´Ù¸¦ ¼ö ÀÖ½À´Ï´Ù. ÀÌ¿ë¾à°ü¿¡ ÀǰЏéÃ¥Á¶°ÇÀ¸·Î Á¦°øµÊÀ» ¾Ë¸®¸ç, °æ¸ÅÀÔÂû½Ã ¹Ýµå½Ã °ü·Ã °øºÎ¸¦ ÀçÈ®ÀÎÇϽñ⠹ٶø´Ï´Ù. º¸´Ù Æí¸®ÇÑ °æ¸ÅÁ¤º¸ Á¦°øÀ» À§ÇØ Áö¼ÓÀûÀ¸·Î °³¼±ÇϰڽÀ´Ï´Ù. ÀÌ¿ëÇØ Áּż­ °¨»çÇÕ´Ï´Ù.