·Î±×ÀÎ
21
¿ÀÇǽºÅÚ
¼­¿ïÁß¾ÓÁö¹æ¹ý¿ø
 °¨Á¤°¡149,000,000 ¿ø
 ÃÖÀú°¡(100%) 149,000,000 ¿ø
 º¸Áõ±Ý(10%) 14,900,000 ¿ø
 Ã»±¸¾×87,132,330 ¿ø
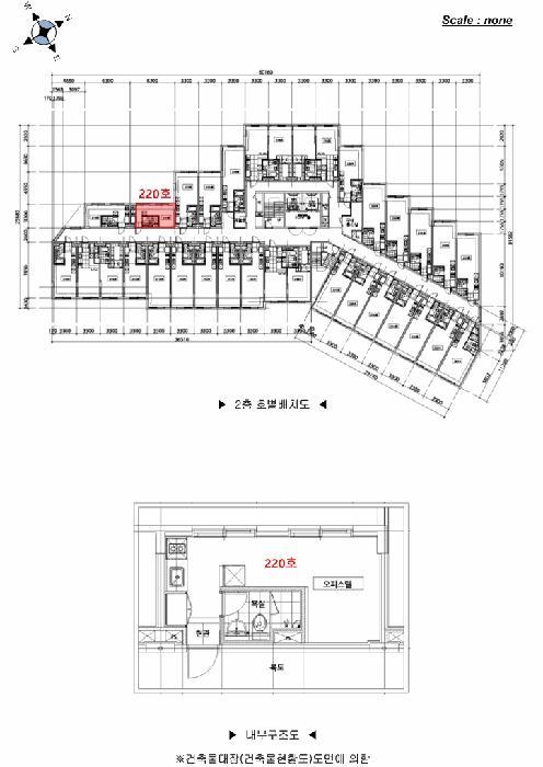
¼­¿ïƯº°½Ã °­³²±¸ Àڰ 662 °­³²ÁöÀ£È¨½º ºñµ¿ 2Ãþ220È£
»ç°Ç¹øÈ£ 2025Ÿ°æ2126
°æ¸ÅÁ¾·ùºÎµ¿»êÀÓÀǰæ¸Å
¸Å°¢´ë»óÅäÁö ¹× °Ç¹°Àϰý ¸Å°¢
¸Å°¢±âÀÏ    2026.03.04(¼ö) 10:00 ÀÔÂû 11ÀÏÀü    
ÅäÁö¸éÀû4.57§³(1.38 Æò)
°Ç¹°¸éÀû20.06§³(6.07 Æò)
乫/¼ÒÀ¯ÀÚ±èOO / ±èOO
ä±ÇÀÚÁÖOOO OOOO
ÆäÀ̽ººÏ Æ®À§ÅÍ ±¸±Û+
īī¿À½ºÅ丮
īī¿ÀÅå sms¹®ÀÚº¸³»±â
 

±âÀϳ»¿ª

°æ°ú ³¯Â¥ Àú°¨ ÃÖÀú°¡ °á°ú
Á¢¼öÀÏ 2025-06-25 °æ¸ÅÁ¢¼ö
~1ÀÏ 
2025-06-26 °æ¸Å°³½Ã°áÁ¤
~76ÀÏ 
2025-09-09 ¹è´ç¿ä±¸Á¾±âÀÏ
~252ÀÏ 
2026-03-04 100%
149,000,000
ÁøÇà
¹°°Ç¸í¼¼¼­ ÇöȲÁ¶»ç¼­ ¹®°ÇÁ¢¼ö ¼Û´Þ³»¿ª

°¨Á¤Æò°¡ÇöȲ

¸ñ·Ï ÁÖ¼Ò ±¸Á¶/¿ëµµ/´ëÁö±Ç ¸éÀû ºñ°í
´ëÁö±Ç
Àڰ 662 4389.1ºÐÀÇ 4.5738 4.5738 §³
(1.38Æò)
°Ç¹°
Àڰ 662 ºñµ¿ 2Ãþ220È£ ö±ÙÄÜÅ©¸®Æ®±¸Á¶ 20.059 §³
(6.07Æò)
1) À§Ä¡/µµ½ÃÁö¿ª/ÀϹݻó¾÷Áö¿ª/Áö±¸´ÜÀ§°èȹ±¸¿ª/ÅäÁö°Å·¡°è¾à¿¡°üÇÑÇã°¡±¸¿ª/ÁÖÂ÷Àå/³ë¼±¹ö½ºÁ¤·ùÀå/ö±ÙÄÜÅ©¸®Æ®±¸Á¶ ´õº¸±â
°¨Á¤Æò°¡ ¿äÇ×Ç¥
1)À§Ä¡ ¹× ÁÖÀ§È¯°æ
º»°ÇÀº ¼­¿ïƯº°½Ã °­³²±¸ Àڰ ¼ÒÀç 'À²ÇöÃʵîÇб³' ¼­Ãø Àαٿ¡ À§Ä¡Çϸç, ÁÖÀ§´Â »ó¾÷¿ë, ¾÷¹«¿ë °Ç¹°, ¿ÀÇǽºÅÚ ¹× ±Ù¸°»ýȰ½Ã¼³ µîÀÌ È¥ÀçÇÏ´Â Áö¿ªÀ¸·Î ÁÖÀ§È¯°æÀº º¸ÅëÀÓ.
2)±³Åë»óȲ
º»°Ç±îÁö Â÷·® ÁøÃâÀÔÀÌ °¡´ÉÇϰí, Àαٿ¡ ³ë¼±¹ö½ºÁ¤·ùÀåÀÌ ¼ÒÀçÇÏ´Â µî ´ëÁß±³Åë»óȲÀº º¸ÅëÀÓ.
3)°Ç¹°ÀÇ ±¸Á¶
ö±ÙÄÜÅ©¸®Æ®±¸Á¶ ÆòÁöºØ 10Ãþ °Ç¹° ³» Á¦2Ãþ Á¦220È£·Î¼­,
(»ç¿ë½ÂÀÎÀÏ 2014.10.15.)

¿Üº®:¿ÜÀå ¼®ÀçºÙÀÓ ¸¶°¨ µî
âȣ:»õ½Ãâȣ ¸¶°¨ µîÀÓ.
4)ÀÌ¿ë»óÅÂ
º»°ÇÀº ÇöȲ ¿ÀÇǽºÅÚ·Î ÀÌ¿ë ÁßÀÓ.(ÈÄ÷ ³»ºÎ±¸Á¶µµ ÂüÁ¶)
5)¼³ºñ³»¿ª
±âº»ÀûÀÎ À§»ý ¹× ±Þ¹è¼ö¼³ºñ, ½Â°­±â, ¼ÒÈ­Àü¼³ºñ, È­ÀçŽÁö¼³ºñ, ÁÖÂ÷Àå µîÀÌ µÇ¾î ÀÖÀ½.




6)ÅäÁöÀÇ Çü»ó ¹× ÀÌ¿ë»óÅÂ
º»°ÇÀº ÀÎÁ¢ÇÊÁö ´ëºñ µî°í ÆòźÇÑ ºÎÁ¤Çü ÅäÁö·Î ¾÷¹«½Ã¼³(¿ÀÇǽºÅÚ), Á¦2Á¾±Ù¸°»ýȰ½Ã¼³(ÀϹÝÀ½½ÄÁ¡) °ÇºÎÁö·Î ÀÌ¿ë ÁßÀÓ.
7)ÀÎÁ¢ µµ·Î»óŵî
º»°Ç ºÏ¼­ÃøÀ¸·Î ³ëÆø ¾à15¹ÌÅÍ ³»¿ÜÀÇ Æ÷Àåµµ·Î¿Í Á¢ÇÔ.
8)ÅäÁöÀÌ¿ë°èȹ ¹× Á¦ÇÑ»óÅÂ
Àڰ 662 :µµ½ÃÁö¿ª, ÀϹݻó¾÷Áö¿ª, Áö±¸´ÜÀ§°èȹ±¸¿ª(¼­¿ï°­³²º¸±ÝÀÚ¸®ÁÖÅÃÁö±¸), µµ·Î(Á¢ÇÕ), °ø°øÁÖÅÃÁö±¸<°ø°øÁÖÅà Ưº°¹ý>, »ó´ëº¸È£±¸¿ª<±³À°È¯°æ º¸È£¿¡ °üÇÑ ¹ý·ü>, ´ë°ø¹æ¾îÇùÁ¶±¸¿ª(À§Å¹°íµµ:77-257m)<±º»ç±âÁö ¹× ±º»ç½Ã¼³ º¸È£¹ý>, ºñÇà¾ÈÀüÁ¦5±¸¿ª(Àü¼ú)<±º»ç±âÁö ¹× ±º»ç½Ã¼³ º¸È£¹ý>, °ú¹Ð¾ïÁ¦±Ç¿ª<¼öµµ±ÇÁ¤ºñ°èȹ¹ý>, ÅäÁö°Å·¡°è¾à¿¡°üÇÑÇã°¡±¸¿ª(2025-03-24)(°ÇÃ๰ÀÇ ¿ëµµ(¾ÆÆÄÆ®)·Î »ç¿ëµÇ´Â ºÎÁö)
9)°øºÎ¿ÍÀÇ Â÷ÀÌ
-.
10)±âŸÂü°í»çÇ×(ÀÓ´ë°ü·Ê ¹× ±âŸ)
¹Ì»óÀÓ.

°ÇÃ๰ÇöȲ

¼ÒÀçÁö ¼­¿ïƯº°½Ã °­³²±¸ Àڰ 662¹øÁö
´ëÁö¸éÀû 4389.1§³
(1330.03Æò)
¿¬¸éÀû 12667.021§³
(3838.49Æò)
°ÇÃà¸éÀû 1440.217§³
(436.43Æò)
¿ëÀû·ü»êÁ¤
¿¬¸éÀû
12412.426§³
(3761.34Æò)
°ÇÆóÀ² 32.81% ¿ëÀû·ü 282.801%
Áö»óÃþ¼ö 10Ãþ ÁöÇÏÃþ¼ö 6Ãþ
ÁÖ¿ëµµ ¾÷¹«½Ã¼³ ±¸Á¶ ö±ÙÄÜÅ©¸®Æ®±¸Á¶
Âø°øÀÏÀÚ 2012.10.22 »ç¿ë½ÂÀÎÀÏÀÚ 2014.10.15
°ÇÃ๰Ãþº°ÇöȲ [º¸±â]


µî±âºÎµîº» ¿ä¾à(°Ç¹°)

  Á¢¼öÀÏÀÚ µî±â¸ñÀû/±Ç¸®ÀÚ ±Ç¸®±Ý¾× ±âÁØ
1 2015³â5¿ù15ÀÏ
¼ÒÀ¯±Ç
±èOO
¼Ò¸ê
2 2015³â5¿ù15ÀÏ
±ÙÀú´ç±Ç
(OOOO
100,800,000 ¼Ò¸ê±âÁØ
3 2024³â10¿ù10ÀÏ
°¡¾Ð·ù
(OOOO
48,628,021 ¼Ò¸ê
4 2024³â10¿ù22ÀÏ
¾Ð·ù
±¹OOOO
¼Ò¸ê
5 2025³â5¿ù13ÀÏ
°¡¾Ð·ù
(OOOO
39,310,848 ¼Ò¸ê
6 2025³â6¿ù26ÀÏ
ÀÓÀǰæ¸Å
(OOOO
¼Ò¸ê

ÀÓÂ÷ÀÎÇöȲ (¹è´ç¿ä±¸Á¾±âÀÏ: 2025-09-09)



¸Å°¢±âÀÏ 7ÀÏÀü¿¡ ¸Å°¢¹°°Ç¸í¼¼¼­°¡ °ø°íµÇ¿À´Ï È®ÀÎÇϽñ⠹ٶø´Ï´Ù.

ÀÓÂ÷ÀÎ ¿ëµµ/Á¡À¯ º¸Áõ±Ý/¿ù¼¼ ´ëÇ×·Â
ÀüÀÔÀÏ/È®Á¤ÀÏ ¹è´ç¿ä±¸ ºñ°í
¹ÚOO Bµ¿220È£ÀüºÎ 40,000,000
[¿ù]500,000
X
2024.09.13.
2024.09.13.
2025.8.22. 2024.09.06.~

¿©ÀÇÁÖ°æ¸Å Á¶¾ð ÇÑ ¸¶µð


ÁÖÀÇ»çÇ× (ÃÖ¼±¼øÀ§ ¼³Á¤ÀÏ: 2015..05.15. ±ÙÀú´ç±Ç ¼³Á¤)

¸Å°¢À¸·Î ¼Ò¸êµÇÁö ¾Ê´Â µî±âºÎ±Ç¸®:
¸Å°¢À¸·Î ¼³Á¤µÈ °ÍÀ¸·Î º¸´Â Áö»ó±Ç:
¡Ø¹Ì³³°ü¸®ºñ(°ø¿ë) Àμö¿©ºÎ¸¦ ÀÔÂû Àü¿¡ È®ÀÎÇϽñ⠹ٶø´Ï´Ù

 

Áö¿ªºÐ¼®

ÁöÇÏö¸í Á÷¼±°Å¸®

Çб³¸í ÀüÈ­¹øÈ£ ÁÖ¼Ò Á÷¼±°Å¸®

¹ý¿ø

¼­¿ïÁß¾ÓÁö¹æ¹ý¿ø (065-94)¼­¿ïƯº°½Ã ¼­Ãʱ¸ ¼­ÃÊÁß¾Ó·Î 157 (¼­Ãʵ¿)
´ëÇ¥ : 02)530-1114, ¾ß°£ : 02)530-1280/536-8003
°üÇÒÁö¿ª : Á¾·Î±¸, Áß±¸, °­³²±¸, ¼­Ãʱ¸, °ü¾Ç±¸, µ¿ÀÛ±¸

µî±â¼Ò ¼­¿ïÁß¾ÓÁö¹æ¹ý¿ø º»¿ø µî±â±¹ (´ëÇ¥:1544-0773, ÆÑ½º:(02)590-1881, ¼­¿ïƯº°½Ã ¼­Ãʱ¸ ¹ý¿ø·Î3±æ 14 (¼­Ãʵ¿ 1707-4))
¼¼¹«¼­ »ï¼º¼¼¹«¼­ (´ëÇ¥:02-3011-72, ÆÑ½º:02-564-1129, ¼­¿ïƯº°½Ã °­³²±¸ Å×Çì¶õ·Î 114 (¿ª»ïµ¿) 1,5,6,9,10Ãþ »ï¼º¼¼¹«¼­)

Àαٳ«ÂûÅë°è

±â°£ ¸Å°¢°Ç¼ö Æò±Õ°¨Á¤°¡
Æò±Õ¸Å°¢°¡
¸Å°¢°¡À²
Æò±ÕÀ¯Âû¼ö


º» °æ¸ÅÁ¤º¸´Â ¹ý¿øÀÚ·á¿Í ÀÏÄ¡Çϵµ·Ï ÇÏ¿´À¸³ª ±Ç¸®»çÇ׺¯µ¿, ÀÔ·ÂÂø¿À µîÀÇ ¿øÀÎÀ¸·Î »ç½Ç°ú ´Ù¸¦ ¼ö ÀÖ½À´Ï´Ù. ÀÌ¿ë¾à°ü¿¡ ÀǰЏéÃ¥Á¶°ÇÀ¸·Î Á¦°øµÊÀ» ¾Ë¸®¸ç, °æ¸ÅÀÔÂû½Ã ¹Ýµå½Ã °ü·Ã °øºÎ¸¦ ÀçÈ®ÀÎÇϽñ⠹ٶø´Ï´Ù. º¸´Ù Æí¸®ÇÑ °æ¸ÅÁ¤º¸ Á¦°øÀ» À§ÇØ Áö¼ÓÀûÀ¸·Î °³¼±ÇϰڽÀ´Ï´Ù. ÀÌ¿ëÇØ Áּż­ °¨»çÇÕ´Ï´Ù.