·Î±×ÀÎ
44
´Ù¼¼´ë(ºô¶ó)
¼ö¿øÁö¹æ¹ý¿ø ¾È»êÁö¿ø
 °¨Á¤°¡239,000,000 ¿ø
 ÃÖÀú°¡(100%) 239,000,000 ¿ø
 º¸Áõ±Ý(10%) 23,900,000 ¿ø
 Ã»±¸¾×255,000,000 ¿ø
°æ±âµµ ½ÃÈï½Ã ÀºÇൿ 327-49 ³ªµ¿ 3Ãþ301È£
»ç°Ç¹øÈ£ 2025Ÿ°æ52079
°æ¸ÅÁ¾·ùºÎµ¿»ê°­Á¦°æ¸Å
¸Å°¢´ë»óÅäÁö ¹× °Ç¹°Àϰý ¸Å°¢
¸Å°¢±âÀÏ    2026.03.03(È­) 10:30 ÀÔÂû 9ÀÏÀü    
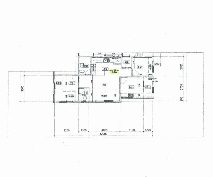
ÅäÁö¸éÀû30.79§³(9.31 Æò)
°Ç¹°¸éÀû49.58§³(15.00 Æò)
乫/¼ÒÀ¯ÀÚÈ«OO / È«OO
ä±ÇÀÚÁÖOOOOOOO
ÆäÀ̽ººÏ Æ®À§ÅÍ ±¸±Û+
īī¿À½ºÅ丮
īī¿ÀÅå sms¹®ÀÚº¸³»±â
 

±âÀϳ»¿ª

°æ°ú ³¯Â¥ Àú°¨ ÃÖÀú°¡ °á°ú
Á¢¼öÀÏ 2025-04-03 °æ¸ÅÁ¢¼ö
~1ÀÏ 
2025-04-04 °æ¸Å°³½Ã°áÁ¤
~81ÀÏ 
2025-06-23 ¹è´ç¿ä±¸Á¾±âÀÏ
~334ÀÏ 
2026-03-03 100%
239,000,000
ÁøÇà
¹°°Ç¸í¼¼¼­ ÇöȲÁ¶»ç¼­ ¹®°ÇÁ¢¼ö ¼Û´Þ³»¿ª

°¨Á¤Æò°¡ÇöȲ

¸ñ·Ï ÁÖ¼Ò ±¸Á¶/¿ëµµ/´ëÁö±Ç ¸éÀû ºñ°í
´ëÁö±Ç
ÀºÇൿ 327-49 700ºÐÀÇ 30.79 30.79 §³
(9.31Æò)
°Ç¹°
ÀºÇൿ 327-49 ³ªµ¿ 3Ãþ301È£ ö±ÙÄÜÅ©¸®Æ®±¸Á¶ 49.58 §³
(15.00Æò)
1) À§Ä¡/µµ½ÃÁö¿ª/Á¦1Á¾ÀϹÝÁÖ°ÅÁö¿ª/¹ö½ºÁ¤·ùÀå/ö±ÙÄÜÅ©¸®Æ®±¸Á¶/µµ½Ã°¡½º/°³º°³­¹æ ´õº¸±â
°¨Á¤Æò°¡ ¿äÇ×Ç¥
1)À§Ä¡ ¹× ÁÖÀ§È¯°æ
º»°ÇÀº °æ±âµµ ½ÃÈï½Ã ÀºÇൿ ¼ÒÀç""°Ë¹ÙÀ§ÃʵîÇб³""³²¼­Ãø ±Ù°Å¸®¿¡ À§Ä¡Çϸç ÁÖÀ§´Â °øµ¿ÁÖ
ÅÃ, ´Üµ¶ÁÖÅÃ, °ø¿ø ¹× ±Ù¸°»ýȰ½Ã¼³ µîÀÌ È¥ÀçÇÏ´Â Áö¿ªÀ¸·Î Á¦¹Ý ÁÖÀ§È¯°æÀº º¸ÅëÀÓ.
2)±³Åë»óȲ
º»°Ç±îÁö Â÷·®ÃâÀÔÀÌ ÀÚÀ¯·Î¿ì¸ç Àαٿ¡ ¹ö½ºÁ¤·ùÀåÀÌ ¼ÒÀçÇÏ´Â µî, Á¦¹Ý ±³Åë»óȲÀº º¸Åë
ÀÓ.
3)°Ç¹°ÀÇ ±¸Á¶
ö±ÙÄÜÅ©¸®Æ®±¸Á¶ (ö±Ù)ÄÜÅ©¸®Æ®ÁöºØ Áö»ó5Ãþ Áß 3Ãþ 301È£·Î¼­
¿Üº® : ¼®ÀçºÙÀÓ ¹× ŸÀϺÙÀÓ ¸¶°¨ µî.
³»º® : º®Áöµµ¹è ¸¶°¨ µî.
âȣ : ÇÏÀÌ»õ½Ã ÀÌÁßâȣÀÓ.

4)ÀÌ¿ë»óÅÂ
µµ½ÃÇü»ýȰÁÖÅÃ(´ÜÁöÇü´Ù¼¼´ëÁÖÅÃ)(ÈÄ÷ ""³»ºÎ±¸Á¶µµ"" ÂüÁ¶)À¸·Î ÀÌ¿ë ÁßÀÓ.

5)¼³ºñ³»¿ª
À§»ý ¹× ±Þ.¹è¼ö¼³ºñ, µµ½Ã°¡½º¿¡ ÀÇÇÑ °³º°³­¹æ¼³ºñ, ½Â°­±â¼³ºñ µî µÇ¾î ÀÖÀ½.
6)ÅäÁöÀÇ Çü»ó ¹× ÀÌ¿ë»óÅÂ
Àα٠ÅäÁö¿Í µî°íÆòźÇÑ ¼¼ÀåÇü ÅäÁö·Î¼­ °øµ¿ÁÖÅà °ÇºÎÁö·Î ÀÌ¿ë ÁßÀÓ.
7)ÀÎÁ¢ µµ·Î»óŵî
ºÏµ¿ÃøÀ¸·Î ³ëÆø ¾à 8mÀÇ Æ÷Àåµµ·Î¿¡ Á¢ÇÔ.
8)ÅäÁöÀÌ¿ë°èȹ ¹× Á¦ÇÑ»óÅÂ
µµ½ÃÁö¿ª, Á¦1Á¾ÀϹÝÁÖ°ÅÁö¿ª, ¼Ò·Î2·ù(Æø8m~10m)(±¹Áöµµ·Î)(Á¢ÇÕ), ¼Ò·Î2·ù(Æø8m~10m)(Á¢
ÇÕ), Áß·Î3·ù(Æø12m~15m)(Á¢ÇÕ), °¡Ãà»çÀ°Á¦Çѱ¸¿ª, »ó´ëº¸È£±¸¿ª(2013-07-18), °ú¹Ð¾ïÁ¦±Ç
¿ªÀÓ.
9)°øºÎ¿ÍÀÇ Â÷ÀÌ
¾øÀ½.
10)±âŸÂü°í»çÇ×(ÀÓ´ë°ü·Ê ¹× ±âŸ)
ÀÓ´ë°ü°è ¹Ì»óÀÓ.
Âü°í
»çÇ×

- °Ç¹° ¸íĪÀÌ

°ÇÃ๰ÇöȲ

¼ÒÀçÁö °æ±âµµ ½ÃÈï½Ã ÀºÇൿ 327-49¹øÁö
´ëÁö¸éÀû 700§³
(212.12Æò)
¿¬¸éÀû 654.07§³
(198.2Æò)
°ÇÃà¸éÀû 205.33§³
(62.22Æò)
¿ëÀû·ü»êÁ¤
¿¬¸éÀû
654.07§³
(198.2Æò)
°ÇÆóÀ² 29.33% ¿ëÀû·ü 93.44%
Áö»óÃþ¼ö 5Ãþ ÁöÇÏÃþ¼ö  
ÁÖ¿ëµµ °øµ¿ÁÖÅà ±¸Á¶ ö±ÙÄÜÅ©¸®Æ®±¸Á¶
Âø°øÀÏÀÚ 2019.08.02 »ç¿ë½ÂÀÎÀÏÀÚ 2021.05.06
°ÇÃ๰Ãþº°ÇöȲ [º¸±â]


±¹ÅäºÎ½Ç°Å·¡°¡ °æ±âµµ ½ÃÈï½Ã ÀºÇൿ

¡Ü ¸Å¸Å

¸éÀû(§³), ±Ý¾×(¸¸¿ø)

¡Ü Àü¼¼

¸éÀû(§³), ±Ý¾×(¸¸¿ø)

°è¾àÀϰǹ°¸íĪÃþ¿¬¸éÀûº¸Áõ±Ý¿ù¼¼°ÇÃà
26.02.09µ¿¾Æ¼¾¼­461.837,00001993
26.02.03µ¿¸íºô¶ó1µ¿-130.410,0001988
26.01.22Ȳ½Ç´Ù¼¼´ë240.56,1001986
26.01.20¸ñÈ­¿¬¸³3µ¿143.83500451986
26.01.19½Å¼ººô¸®Áö446.581,000502002
¢Ñ ´õº¸±â

µî±âºÎµîº» ¿ä¾à(°Ç¹°)

  Á¢¼öÀÏÀÚ µî±â¸ñÀû/±Ç¸®ÀÚ ±Ç¸®±Ý¾× ±âÁØ
1 2021³â6¿ù2ÀÏ
¼ÒÀ¯±Ç
ȫOO
¼Ò¸ê
2 2023³â6¿ù23ÀÏ
ÀÓÂ÷±Ç¼³Á¤
¼ÒOO
255,000,000 Àμö
3 2025³â4¿ù4ÀÏ
°­Á¦°æ¸Å
ÁÖOOOO
¼Ò¸ê±âÁØ
4 2025³â8¿ù28ÀÏ
¾Ð·ù
½ÃOO
¼Ò¸ê
5 2025³â11¿ù14ÀÏ
¾Ð·ù
ÆòOO
¼Ò¸ê

ÀÓÂ÷ÀÎÇöȲ (¹è´ç¿ä±¸Á¾±âÀÏ: 2025-06-23)



¸Å°¢±âÀÏ 7ÀÏÀü¿¡ ¸Å°¢¹°°Ç¸í¼¼¼­°¡ °ø°íµÇ¿À´Ï È®ÀÎÇϽñ⠹ٶø´Ï´Ù.

ÀÓÂ÷ÀÎ ¿ëµµ/Á¡À¯ º¸Áõ±Ý/¿ù¼¼ ´ëÇ×·Â
ÀüÀÔÀÏ/È®Á¤ÀÏ ¹è´ç¿ä±¸ ºñ°í
ÁÖOOOOOOOOOOOOOOOOOOO 301È£ÀüºÎ 255,000,000
O
2021.6.2.
2021.6.2.
2025.6.23. 2021.6.2.~2023.6.2.
ºñ°í
(¸Å°¢¹°°Ç
¸í¼¼¼­)
ÁÖÅõµ½Ãº¸Áõ°ø»ç(ÀÓÂ÷ÀÎ ¼Ò½ÃÀºÀÇ ½Â°èÀÎ):ÁÖÅÃÀÓ´ëÂ÷º¸È£¹ý Á¦3Á¶ÀÇ2 Á¦7Ç׿¡ µû¸¥ º¸Áõ±Ý¹Ýȯä±Ç(ÀÓÂ÷ÀÎ ¼Ò½ÃÀº)ÀÇ ¾ç¼öÀÎ À̸ç, ÀÌ »ç°Ç ½Åûä±ÇÀÚÀÓ

¿©ÀÇÁÖ°æ¸Å Á¶¾ð ÇÑ ¸¶µð

¼±¼øÀ§ ÀÓÂ÷±Çµî±â°¡ µÇ¾î ÀÖ½À´Ï´Ù
´ëÇ×·ÂÀÌ ÀÖ´Â ¼±¼øÀ§ ÀÓÂ÷±Çµî±â ±Ç¸®ÀÚ°¡ ¹è´çÀ» Àü¾× ¹ÞÁö ¸øÇÒ °æ¿ì ³«ÂûÀÚ°¡ ÀÜ¿© º¸Áõ±ÝÀ» ÀμöÇØ¾ßÇÏ´Â °æ¿ìµµ ÀÖ½À´Ï´Ù.

ÁÖÀÇ»çÇ× (ÃÖ¼±¼øÀ§ ¼³Á¤ÀÏ: 2025. 4. 4. ¼³Á¤ °­Á¦°æ¸Å°³½Ã°áÁ¤)

¸Å°¢À¸·Î ¼Ò¸êµÇÁö ¾Ê´Â µî±âºÎ±Ç¸®: ¸Å¼öÀο¡°Ô ´ëÇ×ÇÒ ¼ö ÀÖ´Â À»±¸ ¼øÀ§ 4¹ø ÀÓÂ÷±Çµî±â(2023.6.23. µî±â) ÀÖÀ½(ÀÓ´ëÂ÷º¸Áõ±Ý 255,000,000¿ø, ÀüÀÔÀÏ 2021.6.2., È®Á¤ ÀÏÀÚ 2021.6.2.). ¹è´ç¿¡¼­ º¸Áõ±ÝÀÌ Àü¾× º¯Á¦µÇÁö ¾Æ´ÏÇϸé Àܾ×À» ¸Å¼öÀÎÀÌ ÀμöÇÔ.
¸Å°¢À¸·Î ¼³Á¤µÈ °ÍÀ¸·Î º¸´Â Áö»ó±Ç:
¡Ø¹Ì³³°ü¸®ºñ(°ø¿ë) Àμö¿©ºÎ¸¦ ÀÔÂû Àü¿¡ È®ÀÎÇϽñ⠹ٶø´Ï´Ù

 

Áö¿ªºÐ¼®

ÁöÇÏö¸í Á÷¼±°Å¸®

Çб³¸í ÀüÈ­¹øÈ£ ÁÖ¼Ò Á÷¼±°Å¸®

¹ý¿ø

¼ö¿øÁö¹æ¹ý¿ø ¾È»êÁö¿ø (140-54)°æ±âµµ ¾È»ê½Ã ´Ü¿ø±¸ ±¤´ö¼­·Î 75 (°íÀܵ¿)
´ëÇ¥ : 031)481-1114, ¹Î¿ø : 031)481-1238, ¾ß°£ : 031)481-1112
°üÇÒÁö¿ª : ¾È»ê½Ã, ±¤¸í½Ã, ½ÃÈï½Ã

µî±â¼Ò ¼ö¿øÁö¹æ¹ý¿ø ¾È»êÁö¿ø ½ÃÈïµî±â¼Ò (´ëÇ¥:1544-0773, ÆÑ½º:(031)317-8903, 8904, °æ±âµµ ½ÃÈï½Ã ¿¬¼º·Î 31 (ÇÏÁßµ¿ 872-1))
¼¼¹«¼­ ½ÃÈï¼¼¹«¼­ (´ëÇ¥:031-310-72, ÆÑ½º:02-314-3973, °æ±âµµ ½ÃÈï½Ã ¸¶À¯·Î 368 (Á¤¿Õµ¿))

Àαٳ«ÂûÅë°è

±â°£ ¸Å°¢°Ç¼ö Æò±Õ°¨Á¤°¡
Æò±Õ¸Å°¢°¡
¸Å°¢°¡À²
Æò±ÕÀ¯Âû¼ö


º» °æ¸ÅÁ¤º¸´Â ¹ý¿øÀÚ·á¿Í ÀÏÄ¡Çϵµ·Ï ÇÏ¿´À¸³ª ±Ç¸®»çÇ׺¯µ¿, ÀÔ·ÂÂø¿À µîÀÇ ¿øÀÎÀ¸·Î »ç½Ç°ú ´Ù¸¦ ¼ö ÀÖ½À´Ï´Ù. ÀÌ¿ë¾à°ü¿¡ ÀǰЏéÃ¥Á¶°ÇÀ¸·Î Á¦°øµÊÀ» ¾Ë¸®¸ç, °æ¸ÅÀÔÂû½Ã ¹Ýµå½Ã °ü·Ã °øºÎ¸¦ ÀçÈ®ÀÎÇϽñ⠹ٶø´Ï´Ù. º¸´Ù Æí¸®ÇÑ °æ¸ÅÁ¤º¸ Á¦°øÀ» À§ÇØ Áö¼ÓÀûÀ¸·Î °³¼±ÇϰڽÀ´Ï´Ù. ÀÌ¿ëÇØ Áּż­ °¨»çÇÕ´Ï´Ù.