·Î±×ÀÎ
70
¿ÀÇǽºÅÚ
¼ö¿øÁö¹æ¹ý¿ø ¾È»êÁö¿ø
 °¨Á¤°¡440,000,000 ¿ø
 ÃÖÀú°¡(70%) 308,000,000 ¿ø
 º¸Áõ±Ý(10%) 30,800,000 ¿ø
 Ã»±¸¾×290,171,700 ¿ø
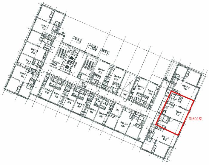
°æ±âµµ ±¤¸í½Ã ÀÏÁ÷µ¿ 511-4 ¾ÆÀ̵𿡽ºÅ¸¿ö 6Ãþ602È£
»ç°Ç¹øÈ£ 2025Ÿ°æ51885
°æ¸ÅÁ¾·ùºÎµ¿»ê°­Á¦°æ¸Å
¸Å°¢´ë»óÅäÁö ¹× °Ç¹°Àϰý ¸Å°¢
¸Å°¢±âÀÏ    2026.04.14(È­) 10:30 ÀÔÂû 38ÀÏÀü    
ÅäÁö¸éÀû12.39§³(3.75 Æò)
°Ç¹°¸éÀû58.49§³(17.69 Æò)
乫/¼ÒÀ¯ÀÚ¿ìOO / ¿ìOO
ä±ÇÀÚ±èOO
ÆäÀ̽ººÏ Æ®À§ÅÍ ±¸±Û+
īī¿À½ºÅ丮
īī¿ÀÅå sms¹®ÀÚº¸³»±â
 

±âÀϳ»¿ª

°æ°ú ³¯Â¥ Àú°¨ ÃÖÀú°¡ °á°ú
Á¢¼öÀÏ 2025-03-10 °æ¸ÅÁ¢¼ö
~1ÀÏ 
2025-03-11 °æ¸Å°³½Ã°áÁ¤
~79ÀÏ 
2025-05-28 ¹è´ç¿ä±¸Á¾±âÀÏ
~358ÀÏ 
2026-03-03 100%
440,000,000
À¯Âû
~400ÀÏ 
2026-04-14 70%
308,000,000
ÁøÇà
¹°°Ç¸í¼¼¼­ ÇöȲÁ¶»ç¼­ ¹®°ÇÁ¢¼ö ¼Û´Þ³»¿ª

°¨Á¤Æò°¡ÇöȲ

¸ñ·Ï ÁÖ¼Ò ±¸Á¶/¿ëµµ/´ëÁö±Ç ¸éÀû ºñ°í
´ëÁö±Ç
ÀÏÁ÷µ¿ 511-4 1476.10ºÐÀÇ 12.39 12.39 §³
(3.75Æò)
°Ç¹°
ÀÏÁ÷µ¿ 511-4 6Ãþ602È£ ö±ÙÄÜÅ©¸®Æ®±¸Á¶ 58.49 §³
(17.69Æò)
1) À§Ä¡/ÀϹݻó¾÷Áö¿ª/Á¦1Á¾Áö±¸´ÜÀ§°èȹ±¸¿ª/³ë¼±¹ö½ºÁ¤·ùÀå/ö±ÙÄÜÅ©¸®Æ®±¸Á¶/¹æ2/È­Àå½Ç2 ´õº¸±â
°¨Á¤Æò°¡ ¿äÇ×Ç¥
1)À§Ä¡ ¹× ÁÖÀ§È¯°æ
º»°ÇÀº °æ±âµµ ±¤¸í½Ã ÀÏÁ÷µ¿ ¼ÒÀç ""KTX ±¤¸í¿ª"" ºÏ¼­Ãø Àαٿ¡ À§Ä¡Çϸç, ÁÖº¯Àº ±Ù¸°»ýȰ½Ã¼³, ¾ÆÆÄÆ®, ¾÷¹«½Ã¼³ µîÀÌ È¥ÀçÇÏ´Â »ó¾÷¾÷¹«Áö´ëÀÓ.
2)±³Åë»óȲ
º»°Ç±îÁö Â÷·®ÁøÃâÀÔÀÌ °¡´ÉÇϸç, Àαٳ뼱¹ö½ºÁ¤·ùÀå±îÁöÀÇ °Å¸® µîÀ» °í·Á½Ã ´ëÁß±³Åëȯ°æÀº ¾çÈ£ÇÔ.
3)°Ç¹°ÀÇ ±¸Á¶
ö±ÙÄÜÅ©¸®Æ®±¸Á¶ (ö±Ù)ÄÜÅ©¸®Æ®ÆòÁö¿õ 14Ãþ °Ç(»ç¿ë½ÂÀÎ: 2018.03.05) ³»,
Á¦6Ãþ Á¦602È£·Î,

¿Üº®: µ¹ºÙÀÓ¸¶°¨ µî,
³»º®: º®Áöµµ¹è ¹× ŸÀϸ¶°¨ µî,
âȣ: ÇÏÀ̼¦½Ãâȣ µî ÀÓ.
4)ÀÌ¿ë»óÅÂ
¿ÀÇǽºÅÚ(¹æ2, ÁÖ¹æ ¹× °Å½Ç, È­Àå½Ç2)·Î ÀÌ¿ëÁßÀÓ.
5)¼³ºñ³»¿ª
±âº»±Þ¹è¼ö ¹× À§»ý¼³ºñ, ½Â°­±â¼³ºñ µîÀ» ±¸ºñÇϰí ÀÖÀ½.

6)ÅäÁöÀÇ Çü»ó ¹× ÀÌ¿ë»óÅÂ
ÀÎÁ¢ÅäÁö¿Í µî°íÆòźÇÑ ¼¼ÀåÇüÀÇ ÅäÁö·Î ÁÖ»óº¹ÇհǺÎÁö·Î ÀÌ¿ëÁßÀÓ.
7)ÀÎÁ¢ µµ·Î»óŵî
º»°Ç ºÏ¼­ÃøÀ¸·Î ³ëÆø ¾à 20m ³»¿ÜÀÇ ¾Æ½ºÆÈÆ®Æ÷Àåµµ·Î¿¡ Á¢ÇÔ.
8)ÅäÁöÀÌ¿ë°èȹ ¹× Á¦ÇÑ»óÅÂ
ÀϹݻó¾÷Áö¿ª , Á¦1Á¾Áö±¸´ÜÀ§°èȹ±¸¿ª , Áß·Î1·ù(Æø 20m~25m)(±¹Áöµµ·Î)(Á¢ÇÕ)
°ú¹Ð¾ïÁ¦±Ç¿ª<¼öµµ±ÇÁ¤ºñ°èȹ¹ý>, ÅÃÁö°³¹ßÁö±¸<ÅÃÁö°³¹ßÃËÁø¹ý> ÀÓ.
9)°øºÎ¿ÍÀÇ Â÷ÀÌ
-
10)±âŸÂü°í»çÇ×(ÀÓ´ë°ü·Ê ¹× ±âŸ)
ÀÓ´ë°ü°è´Â ¹Ì»óÀÓ.
Âü°í
»çÇ×
¿ÀÇǽºÅÚ·Î ÀÌ¿ëÁßÀÓ.(°¨Á¤Æò°¡¼­ Âü°í)

°ÇÃ๰ÇöȲ

¼ÒÀçÁö °æ±âµµ ±¤¸í½Ã ÀÏÁ÷µ¿ 511-4¹øÁö
´ëÁö¸éÀû 1476.1§³
(447.3Æò)
¿¬¸éÀû 17359.66§³
(5260.5Æò)
°ÇÃà¸éÀû 1015.49§³
(307.72Æò)
¿ëÀû·ü»êÁ¤
¿¬¸éÀû
10319.95§³
(3127.26Æò)
°ÇÆóÀ² 68.8% ¿ëÀû·ü 699.14%
Áö»óÃþ¼ö 14Ãþ ÁöÇÏÃþ¼ö 6Ãþ
ÁÖ¿ëµµ ¾÷¹«½Ã¼³ ±¸Á¶ ö±ÙÄÜÅ©¸®Æ®±¸Á¶
Âø°øÀÏÀÚ 2015.10.14 »ç¿ë½ÂÀÎÀÏÀÚ 2018.03.05
°ÇÃ๰Ãþº°ÇöȲ [º¸±â]


±¹ÅäºÎ½Ç°Å·¡°¡ °æ±âµµ ±¤¸í½Ã ÀÏÁ÷µ¿

¡Ü ¸Å¸Å

¸éÀû(§³), ±Ý¾×(¸¸¿ø)

¡Ü Àü¼¼

¸éÀû(§³), ±Ý¾×(¸¸¿ø)

°è¾àÀϰǹ°¸íĪÃþÀü¿ëº¸Áõ±Ý¿ù¼¼°ÇÃà
26.02.20¾ÆÀ̵𿡽ºÅ¸¿ö617.799,000152018
26.02.11¾ÆÀ̵𿡽ºÅ¸¿ö1120.58500652018
26.01.23¾ÆÀ̵𿡽ºÅ¸¿ö1241.6823,00002018
26.01.21¾ÆÀ̵𿡽ºÅ¸¿ö541.6823,80002018
26.01.19¾ÆÀ̵𿡽ºÅ¸¿ö641.6824,00002018
¢Ñ ´õº¸±â

µî±âºÎµîº» ¿ä¾à(°Ç¹°)

  Á¢¼öÀÏÀÚ µî±â¸ñÀû/±Ç¸®ÀÚ ±Ç¸®±Ý¾× ±âÁØ
1 2019³â2¿ù18ÀÏ
¼ÒÀ¯±Ç
¿ìOO
¼Ò¸ê
2 2024³â4¿ù22ÀÏ
°¡¾Ð·ù
¿ìOO
80,600,000 ¼Ò¸ê±âÁØ
3 2024³â7¿ù15ÀÏ
°¡¾Ð·ù
ȍOOOO
13,187,858 ¼Ò¸ê
4 2024³â7¿ù23ÀÏ
°¡¾Ð·ù
°æOOOO
20,000,000 ¼Ò¸ê
5 2024³â8¿ù20ÀÏ
¾Ð·ù
±¹OOOO
¼Ò¸ê
6 2024³â12¿ù6ÀÏ
ÀÓÂ÷±Ç¼³Á¤
±èOO
290,000,000 ¼Ò¸ê
7 2025³â3¿ù11ÀÏ
°­Á¦°æ¸Å
±èOO
¼Ò¸ê
8 2025³â3¿ù31ÀÏ
¾Ð·ù
±¹
¼Ò¸ê
9 2025³â5¿ù14ÀÏ
°¡¾Ð·ù
¼ÒOOOO
34,430,107 ¼Ò¸ê
10 2025³â11¿ù21ÀÏ
¾Ð·ù
±¤OO
¼Ò¸ê

ÀÓÂ÷ÀÎÇöȲ (¹è´ç¿ä±¸Á¾±âÀÏ: 2025-05-28)

ÀÓÂ÷ÀÎ ¿ëµµ/Á¡À¯ º¸Áõ±Ý/¿ù¼¼ ´ëÇ×·Â
ÀüÀÔÀÏ/È®Á¤ÀÏ ¹è´ç¿ä±¸ ºñ°í
±èOO 602È£ÀüºÎ 290,000,000
O
2019.02.18.
2019.01.29.
2025.4.7. 2019.02.18.~2025.02.17.

¿©ÀÇÁÖ°æ¸Å Á¶¾ð ÇÑ ¸¶µð

¼±¼øÀ§ ÀÓÂ÷±Çµî±â°¡ µÇ¾î ÀÖ½À´Ï´Ù
´ëÇ×·ÂÀÌ ÀÖ´Â ¼±¼øÀ§ ÀÓÂ÷±Çµî±â ±Ç¸®ÀÚ°¡ ¹è´çÀ» Àü¾× ¹ÞÁö ¸øÇÒ °æ¿ì ³«ÂûÀÚ°¡ ÀÜ¿© º¸Áõ±ÝÀ» ÀμöÇØ¾ßÇÏ´Â °æ¿ìµµ ÀÖ½À´Ï´Ù.

ÁÖÀÇ»çÇ× (ÃÖ¼±¼øÀ§ ¼³Á¤ÀÏ: 2024. 4. 22. °¡¾Ð·ù ¼³Á¤)

¸Å°¢À¸·Î ¼Ò¸êµÇÁö ¾Ê´Â µî±âºÎ±Ç¸®: ¸Å¼öÀο¡°Ô ´ëÇ×ÇÒ ¼ö ÀÖ´Â À»±¸ ¼øÀ§ 1¹ø ÀÓÂ÷±Çµî±â(2024.12.6. µî±â) ÀÖÀ½(ÀÓ´ëÂ÷º¸Áõ±Ý 290,000,000¿ø, ÀüÀÔÀÏ 2019.2.18., È®Á¤ÀÏÀÚ 2019.1.29.). ¹è´ç¿¡¼­ º¸Áõ±ÝÀÌ Àü¾× º¯Á¦µÇÁö ¾Æ´ÏÇϸé Àܾ×À» ¸Å¼öÀÎÀÌ ÀμöÇÔ.
¸Å°¢À¸·Î ¼³Á¤µÈ °ÍÀ¸·Î º¸´Â Áö»ó±Ç:
¿ÀÇǽºÅÚ·Î ÀÌ¿ëÁßÀÓ.(°¨Á¤Æò°¡¼­ Âü°í)
¡Ø¹Ì³³°ü¸®ºñ(°ø¿ë) Àμö¿©ºÎ¸¦ ÀÔÂû Àü¿¡ È®ÀÎÇϽñ⠹ٶø´Ï´Ù

 

Áö¿ªºÐ¼®

ÁöÇÏö¸í Á÷¼±°Å¸®

Çб³¸í ÀüÈ­¹øÈ£ ÁÖ¼Ò Á÷¼±°Å¸®

¹ý¿ø

¼ö¿øÁö¹æ¹ý¿ø ¾È»êÁö¿ø (140-54)°æ±âµµ ¾È»ê½Ã ´Ü¿ø±¸ ±¤´ö¼­·Î 75 (°íÀܵ¿)
´ëÇ¥ : 031)481-1114, ¹Î¿ø : 031)481-1238, ¾ß°£ : 031)481-1112
°üÇÒÁö¿ª : ¾È»ê½Ã, ±¤¸í½Ã, ½ÃÈï½Ã

µî±â¼Ò ¼ö¿øÁö¹æ¹ý¿ø ¾È»êÁö¿ø ±¤¸íµî±â¼Ò (´ëÇ¥:1544-0773, ÆÑ½º:(02)2616-1901, °æ±âµµ ±¤¸í½Ã ö»ê·Î 3-16 (ö»êµ¿ 252))
¼¼¹«¼­ ±¤¸í¼¼¹«¼­ (´ëÇ¥:02-2610-82, ÆÑ½º:02-3666-0611, °æ±âµµ ±¤¸í½Ã ö»ê·Î 3-12(ö»êµ¿ 251))

Àαٳ«ÂûÅë°è

±â°£ ¸Å°¢°Ç¼ö Æò±Õ°¨Á¤°¡
Æò±Õ¸Å°¢°¡
¸Å°¢°¡À²
Æò±ÕÀ¯Âû¼ö


º» °æ¸ÅÁ¤º¸´Â ¹ý¿øÀÚ·á¿Í ÀÏÄ¡Çϵµ·Ï ÇÏ¿´À¸³ª ±Ç¸®»çÇ׺¯µ¿, ÀÔ·ÂÂø¿À µîÀÇ ¿øÀÎÀ¸·Î »ç½Ç°ú ´Ù¸¦ ¼ö ÀÖ½À´Ï´Ù. ÀÌ¿ë¾à°ü¿¡ ÀǰЏéÃ¥Á¶°ÇÀ¸·Î Á¦°øµÊÀ» ¾Ë¸®¸ç, °æ¸ÅÀÔÂû½Ã ¹Ýµå½Ã °ü·Ã °øºÎ¸¦ ÀçÈ®ÀÎÇϽñ⠹ٶø´Ï´Ù. º¸´Ù Æí¸®ÇÑ °æ¸ÅÁ¤º¸ Á¦°øÀ» À§ÇØ Áö¼ÓÀûÀ¸·Î °³¼±ÇϰڽÀ´Ï´Ù. ÀÌ¿ëÇØ Áּż­ °¨»çÇÕ´Ï´Ù.