·Î±×ÀÎ
382
¿ÀÇǽºÅÚ
¼ö¿øÁö¹æ¹ý¿ø ¾È»êÁö¿ø
 °¨Á¤°¡159,000,000 ¿ø
 ÃÖÀú°¡(49%) 77,910,000 ¿ø
 º¸Áõ±Ý(10%) 7,791,000 ¿ø
 Ã»±¸¾×104,924,905 ¿ø
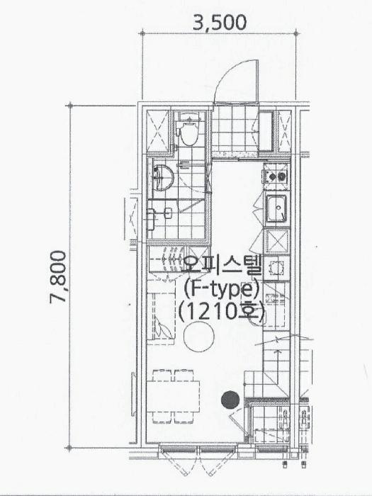
°æ±âµµ ¾È»ê½Ã ´Ü¿ø±¸ °íÀܵ¿ 540-8 ¾ÆÇÇü 12Ãþ1210È£
»ç°Ç¹øÈ£ 2025Ÿ°æ51766
°æ¸ÅÁ¾·ùºÎµ¿»êÀÓÀǰæ¸Å
¸Å°¢´ë»óÅäÁö ¹× °Ç¹°Àϰý ¸Å°¢
¸Å°¢±âÀÏ    2026.05.26(È­) 10:30 ÀÔÂû 5ÀÏÀü    
ÅäÁö¸éÀû5.42§³(1.64 Æò)
°Ç¹°¸éÀû24.03§³(7.27 Æò)
乫/¼ÒÀ¯ÀÚÃÖOO / ÃÖOO
ä±ÇÀÚÀ¯OOOOOOOOOOOO OOOO(OOOO OOOO OOOO)
ÆäÀ̽ººÏ Æ®À§ÅÍ ±¸±Û+
īī¿À½ºÅ丮
īī¿ÀÅå sms¹®ÀÚº¸³»±â
 

±âÀϳ»¿ª

°æ°ú ³¯Â¥ Àú°¨ ÃÖÀú°¡ °á°ú
Á¢¼öÀÏ 2025-02-21 °æ¸ÅÁ¢¼ö
~4ÀÏ 
2025-02-25 °æ¸Å°³½Ã°áÁ¤
~81ÀÏ 
2025-05-13 ¹è´ç¿ä±¸Á¾±âÀÏ
~375ÀÏ 
2026-03-03 100%
159,000,000
À¯Âû
~417ÀÏ 
2026-04-14 70%
111,300,000
À¯Âû
~459ÀÏ 
2026-05-26 49%
77,910,000
ÁøÇà
¹°°Ç¸í¼¼¼­ ÇöȲÁ¶»ç¼­ ¹®°ÇÁ¢¼ö ¼Û´Þ³»¿ª

°¨Á¤Æò°¡ÇöȲ

¸ñ·Ï ÁÖ¼Ò ±¸Á¶/¿ëµµ/´ëÁö±Ç ¸éÀû ºñ°í
´ëÁö±Ç
°íÀܵ¿ 540-8 1277ºÐÀÇ 5.42 5.42 §³
(1.64Æò)
°Ç¹°
°íÀܵ¿ 540-8 12Ãþ1210È£ ö±ÙÄÜÅ©¸®Æ®±¸Á¶ 24.03 §³
(7.27Æò)
1) À§Ä¡/µµ½ÃÁö¿ª/°ü¸®Áö¿ª/ÀϹݻó¾÷Áö¿ª/Áö±¸´ÜÀ§°èȹ±¸¿ª/¹ö½ºÁ¤·ùÀå/ÁöÇÏö/ö±ÙÄÜÅ©¸®Æ®±¸Á¶ ´õº¸±â
°¨Á¤Æò°¡ ¿äÇ×Ç¥
1)À§Ä¡ ¹× ÁÖÀ§È¯°æ
º»°ÇÀº °æ±âµµ ¾È»ê½Ã ´Ü¿ø±¸ °íÀܵ¿ ¼ÒÀç ÁöÇÏö 4È£¼± 'Áß¾Ó¿ª' ºÏµ¿Ãø Àαٿ¡
À§Ä¡Çϸç ÁÖÀ§´Â °¢Á¾ ±Ù¸°»ýȰ½Ã¼³, ¿ÀÇǽºÅÚ, ¿ÀÇǽº, °ü°ø¼­ µîÀÌ ¼ÒÀçÇÏ´Â
»ó¾÷Áö´ëÀÓ.
2)±³Åë»óȲ
º»°Ç±îÁö Â÷·® ÁøÃâÀÔÀÌ ¿ëÀÌÇϸç Àαٿ¡ ¹ö½ºÁ¤·ùÀå ¹× ÁöÇÏö 'Áß¾Ó¿ª'ÀÌ
¼ÒÀçÇÏ¿© ´ëÁß±³Åë»çÁ¤Àº º¸ÅëÀÓ.
3)°Ç¹°ÀÇ ±¸Á¶
ö±ÙÄÜÅ©¸®Æ®±¸Á¶ ÆòÁöºØ ÁöÇÏ5Ãþ Áö»ó12Ãþ °Ç¹° ³» 12Ãþ 1210È£·Î¼­,
¿Üº® : ¼®ÀçºÙÀÓ ¹× º¹ÇÕÆÇ³Ú ¸¶°¨ µî
³»º® : º®Áöµµ¹è ¹× ŸÀϺÙÀÓ (޹®»çÇ×)
âȣ : ¼¦½¬ âȣ µîÀÓ. (޹®»çÇ×)
4)ÀÌ¿ë»óÅÂ
ÁýÇÕ°ÇÃ๰´ëÀå»ó ¿ëµµ´Â ¾÷¹«½Ã¼³(¿ÀÇǽºÅÚ)ÀÓ.
5)¼³ºñ³»¿ª
À§»ý ¹× ±Þ¹è¼ö¼³ºñ, ³­¹æ¼³ºñ, ¿Á³»¼ÒÈ­Àü¼³ºñ, È­ÀçŽÁö¼³ºñ, ½Â°­±â¼³ºñ, ÁÖÂ÷¼³ºñ
µîÀÌ µÇ¾î ÀÖÀ½.

6)ÅäÁöÀÇ Çü»ó ¹× ÀÌ¿ë»óÅÂ
ÀÎÁ¢ µµ·Î¿Í µî°íÆòźÇÑ °¡ÀåÇüÀÇ ÅäÁö·Î¼­ ¾÷¹«½Ã¼³(¿ÀÇǽºÅÚ) °ÇºÎÁö·Î ÀÌ¿ëÁßÀÓ.
7)ÀÎÁ¢ µµ·Î»óŵî
ºÏÃøÀ¸·Î ¼Ò·Î¿¡ Á¢ÇÔ.
8)ÅäÁöÀÌ¿ë°èȹ ¹× Á¦ÇÑ»óÅÂ
µµ½ÃÁö¿ª, ÀϹݻó¾÷Áö¿ª, ¹æÈ­Áö±¸, ½Ã°¡Áö°æ°üÁö±¸(Áß½É), Áö±¸´ÜÀ§°èȹ±¸¿ª,
Áß·Î3·ù(Æø 12m~15m)(Á¢ÇÕ), °¡Ãà»çÀ°Á¦Çѱ¸¿ª<°¡ÃàºÐ´¢ÀÇ °ü¸® ¹× À̿뿡 °üÇÑ
¹ý·ü>, ´ë±â°ü¸®±Ç¿ª<´ë±â°ü¸®±Ç¿ªÀÇ ´ë±âȯ°æ°³¼±¿¡ °üÇÑ Æ¯º°¹ý>, µµ½Ã±³ÅëÁ¤
ºñÁö¿ª<µµ½Ã±³ÅëÁ¤ºñÃËÁø¹ý>, »ýȰ¼ÒÀ½Áøµ¿°ü¸®Áö¿ª<¼ÒÀ½Áøµ¿°ü¸®¹ý>, ¼ºÀå°ü¸®
±Ç¿ª<¼öµµ±ÇÁ¤ºñ°èȹ¹ý>ÀÓ.
9)°øºÎ¿ÍÀÇ Â÷ÀÌ
ÇØ´ç»çÇ× ¾øÀ½.
10)±âŸÂü°í»çÇ×(ÀÓ´ë°ü·Ê ¹× ±âŸ)
- ÀÓ´ë°ü°è ¹Ì»óÀÓ.
- º¹ÃþÇü ±¸Á¶ÀÎ °ÍÀ¸·Î ޹® Á¶»çµÇ¾ú´Â¹Ù, ÀçÈ®ÀÎÇϽñ⠹ٶ÷.
- º»°ÇÀÇ °øºÎ»ó ¿ëµµ°¡ ¾÷¹«½Ã¼³(¿ÀÇǽºÅÚ)ÀιÙ, ÁÖ°Å¿ë ¿©ºÎ¸¦ ÀçÈ®ÀÎÇϽñ⠹ٶ÷.
Âü°í
»çÇ×
ÁýÇÕ°ÇÃ๰´ëÀå»ó ¿ëµµ´Â ¾÷¹«½Ã¼³(¿ÀÇǽºÅÚ)ÀÓ(2025.2.28.±âÁØ)

°ÇÃ๰ÇöȲ

¼ÒÀçÁö °æ±âµµ ¾È»ê½Ã ´Ü¿ø±¸ °íÀܵ¿ 540-8¹øÁö
´ëÁö¸éÀû 1277§³
(386.97Æò)
¿¬¸éÀû 13243.4§³
(4013.15Æò)
°ÇÃà¸éÀû 901.1§³
(273.06Æò)
¿ëÀû·ü»êÁ¤
¿¬¸éÀû
7805.83§³
(2365.4Æò)
°ÇÆóÀ² 70.56% ¿ëÀû·ü 611.26%
Áö»óÃþ¼ö 12Ãþ ÁöÇÏÃþ¼ö 5Ãþ
ÁÖ¿ëµµ ¾÷¹«½Ã¼³ ±¸Á¶ ö±ÙÄÜÅ©¸®Æ®±¸Á¶
Âø°øÀÏÀÚ 2019.12.19 »ç¿ë½ÂÀÎÀÏÀÚ 2023.05.15
°ÇÃ๰Ãþº°ÇöȲ [º¸±â]


µî±âºÎµîº» ¿ä¾à(°Ç¹°)

  Á¢¼öÀÏÀÚ µî±â¸ñÀû/±Ç¸®ÀÚ ±Ç¸®±Ý¾× ±âÁØ
1 2023³â8¿ù10ÀÏ
¼ÒÀ¯±Ç
ÃÖOO
¼Ò¸ê
2 2023³â8¿ù10ÀÏ
±ÙÀú´ç±Ç
(OOOO
120,000,000 ¼Ò¸ê±âÁØ
3 2024³â6¿ù13ÀÏ
±ÙÀú´ç±Ç
³ëOO
50,000,000 ¼Ò¸ê
4 2024³â6¿ù14ÀÏ
°¡¾Ð·ù
¾ÈOOOO
34,198,830 ¼Ò¸ê
5 2024³â7¿ù24ÀÏ
°¡¾Ð·ù
°æOOOO
51,460,000 ¼Ò¸ê
6 2024³â7¿ù25ÀÏ
°¡¾Ð·ù
·ÔOOOO
20,066,086 ¼Ò¸ê
7 2024³â8¿ù5ÀÏ
°¡¾Ð·ù
ÇÏOOOO
25,268,592 ¼Ò¸ê
8 2024³â8¿ù12ÀÏ
°¡¾Ð·ù
ȕOOOO
20,213,732 ¼Ò¸ê
9 2024³â8¿ù19ÀÏ
°¡¾Ð·ù
ÇöOOOO
20,320,437 ¼Ò¸ê
10 2024³â8¿ù19ÀÏ
°¡¾Ð·ù
³óOOOO
18,100,245 ¼Ò¸ê
11 2024³â9¿ù11ÀÏ
°¡¾Ð·ù
(OOOO
20,340,352 ¼Ò¸ê
12 2025³â2¿ù25ÀÏ
ÀÓÀǰæ¸Å
À¯OOOO
¼Ò¸ê
13 2025³â4¿ù11ÀÏ
°¡¾Ð·ù
ÀçOOOO
30,282,920 ¼Ò¸ê

ÀÓÂ÷ÀÎÇöȲ (¹è´ç¿ä±¸Á¾±âÀÏ: 2025-05-13)


Á¶»çµÈ ÀÓÂ÷³»¿ªÀÌ ¾ø½À´Ï´Ù


¿©ÀÇÁÖ°æ¸Å Á¶¾ð ÇÑ ¸¶µð


ÁÖÀÇ»çÇ× (ÃÖ¼±¼øÀ§ ¼³Á¤ÀÏ: 2023. 8. 10. ±ÙÀú´ç±Ç ¼³Á¤)

¸Å°¢À¸·Î ¼Ò¸êµÇÁö ¾Ê´Â µî±âºÎ±Ç¸®:
¸Å°¢À¸·Î ¼³Á¤µÈ °ÍÀ¸·Î º¸´Â Áö»ó±Ç:
ÁýÇÕ°ÇÃ๰´ëÀå»ó ¿ëµµ´Â ¾÷¹«½Ã¼³(¿ÀÇǽºÅÚ)ÀÓ(2025.2.28.±âÁØ)
¡Ø¹Ì³³°ü¸®ºñ(°ø¿ë) Àμö¿©ºÎ¸¦ ÀÔÂû Àü¿¡ È®ÀÎÇϽñ⠹ٶø´Ï´Ù

 

Áö¿ªºÐ¼®

ÁöÇÏö¸í Á÷¼±°Å¸®

Çб³¸í ÀüÈ­¹øÈ£ ÁÖ¼Ò Á÷¼±°Å¸®

¹ý¿ø

¼ö¿øÁö¹æ¹ý¿ø ¾È»êÁö¿ø (140-54)°æ±âµµ ¾È»ê½Ã ´Ü¿ø±¸ ±¤´ö¼­·Î 75 (°íÀܵ¿)
´ëÇ¥ : 031)481-1114, ¹Î¿ø : 031)481-1238, ¾ß°£ : 031)481-1112
°üÇÒÁö¿ª : ¾È»ê½Ã, ±¤¸í½Ã, ½ÃÈï½Ã

µî±â¼Ò ¼ö¿øÁö¹æ¹ý¿ø ¾È»êÁö¿ø µî±â°ú (´ëÇ¥:1544-0773, ÆÑ½º:(031)481-1290~1292, °æ±âµµ ¾È»ê½Ã ´Ü¿ø±¸ ±¤´ö¼­·Î 75 (°íÀܵ¿ 711))
¼¼¹«¼­ ¾È»ê¼¼¹«¼­ (´ëÇ¥:031-412-32, ÆÑ½º:031-412-3268, °æ±âµµ ¾È»ê½Ã ´Ü¿ø±¸ È­¶û·Î 350 (°íÀܵ¿ 517))

Àαٳ«ÂûÅë°è

±â°£ ¸Å°¢°Ç¼ö Æò±Õ°¨Á¤°¡
Æò±Õ¸Å°¢°¡
¸Å°¢°¡À²
Æò±ÕÀ¯Âû¼ö
3°³¿ù 17°Ç 355,882,353¿ø
91,236,293¿ø
44%
3.7ȸ
6°³¿ù 26°Ç 289,803,208¿ø
90,444,115¿ø
48%
3.5ȸ
12°³¿ù 42°Ç 271,211,510¿ø
105,929,148¿ø
53%
2.9ȸ


º» °æ¸ÅÁ¤º¸´Â ¹ý¿øÀÚ·á¿Í ÀÏÄ¡Çϵµ·Ï ÇÏ¿´À¸³ª ±Ç¸®»çÇ׺¯µ¿, ÀÔ·ÂÂø¿À µîÀÇ ¿øÀÎÀ¸·Î »ç½Ç°ú ´Ù¸¦ ¼ö ÀÖ½À´Ï´Ù. ÀÌ¿ë¾à°ü¿¡ ÀǰЏéÃ¥Á¶°ÇÀ¸·Î Á¦°øµÊÀ» ¾Ë¸®¸ç, °æ¸ÅÀÔÂû½Ã ¹Ýµå½Ã °ü·Ã °øºÎ¸¦ ÀçÈ®ÀÎÇϽñ⠹ٶø´Ï´Ù. º¸´Ù Æí¸®ÇÑ °æ¸ÅÁ¤º¸ Á¦°øÀ» À§ÇØ Áö¼ÓÀûÀ¸·Î °³¼±ÇϰڽÀ´Ï´Ù. ÀÌ¿ëÇØ Áּż­ °¨»çÇÕ´Ï´Ù.