·Î±×ÀÎ
79
´Ù¼¼´ë(ºô¶ó)
ÀÇÁ¤ºÎÁö¹æ¹ý¿ø °í¾çÁö¿ø
 °¨Á¤°¡228,000,000 ¿ø
 ÃÖÀú°¡(100%) 228,000,000 ¿ø
 º¸Áõ±Ý(10%) 22,800,000 ¿ø
 Ã»±¸¾×235,000,000 ¿ø
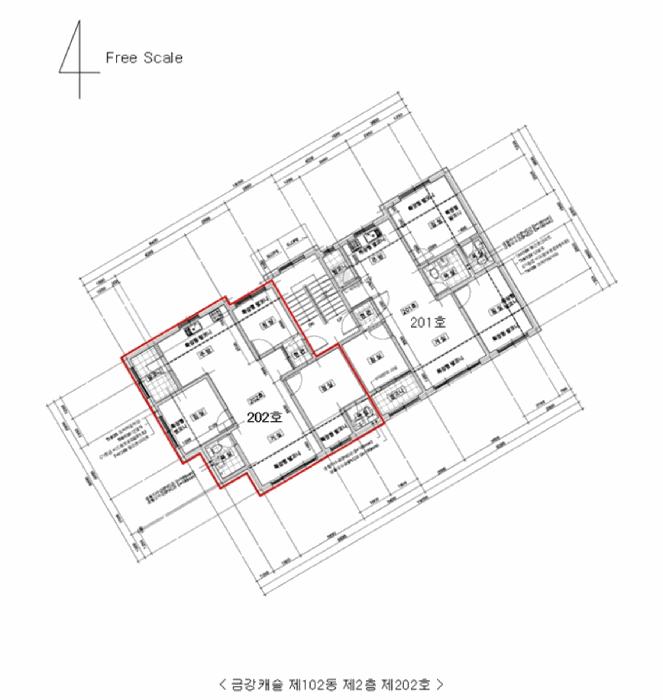
°æ±âµµ ÆÄÁֽà ¾ß´çµ¿ 484-16 ±Ý°­Ä³½½ 102µ¿ 2Ãþ202È£
»ç°Ç¹øÈ£ 2025Ÿ°æ64472
°æ¸ÅÁ¾·ùºÎµ¿»ê°­Á¦°æ¸Å
¸Å°¢´ë»óÅäÁö ¹× °Ç¹°Àϰý ¸Å°¢
¸Å°¢±âÀÏ    2026.03.03(È­) 10:00 ÀÔÂû 7ÀÏÀü    
ÅäÁö¸éÀû66.39§³(20.08 Æò)
°Ç¹°¸éÀû57.75§³(17.47 Æò)
乫/¼ÒÀ¯ÀÚ¹®OO / ¹®OO
ä±ÇÀÚÁÖOOOOOOO
ÆäÀ̽ººÏ Æ®À§ÅÍ ±¸±Û+
īī¿À½ºÅ丮
īī¿ÀÅå sms¹®ÀÚº¸³»±â
 

±âÀϳ»¿ª

°æ°ú ³¯Â¥ Àú°¨ ÃÖÀú°¡ °á°ú
Á¢¼öÀÏ 2025-10-16 °æ¸ÅÁ¢¼ö
~12ÀÏ 
2025-10-28 °æ¸Å°³½Ã°áÁ¤
~105ÀÏ 
2026-01-29 ¹è´ç¿ä±¸Á¾±âÀÏ
~138ÀÏ 
2026-03-03 100%
228,000,000
ÁøÇà
¹°°Ç¸í¼¼¼­ ÇöȲÁ¶»ç¼­ ¹®°ÇÁ¢¼ö ¼Û´Þ³»¿ª

°¨Á¤Æò°¡ÇöȲ

¸ñ·Ï ÁÖ¼Ò ±¸Á¶/¿ëµµ/´ëÁö±Ç ¸éÀû ºñ°í
´ëÁö±Ç
¾ß´çµ¿ 484-16 507ºÐÀÇ 66.393 66.393 §³
(20.08Æò)
°Ç¹°
¾ß´çµ¿ 484-16 102µ¿ 2Ãþ202È£ ö±ÙÄÜÅ©¸®Æ®±¸Á¶ 57.75 §³
(17.47Æò)
1) À§Ä¡/°èȹ°ü¸®Áö¿ª/ÅäÁö°Å·¡°è¾à¿¡°üÇÑÇã°¡±¸¿ª/¹ö½ºÁ¤·ùÀå/Â÷·®Á¢±ÙÀÌ °¡´É/ö±ÙÄÜÅ©¸®Æ®±¸Á¶ ´õº¸±â
°¨Á¤Æò°¡ ¿äÇ×Ç¥
1)À§Ä¡ ¹× ÁÖÀ§È¯°æ
º»°ÇÀº °æ±âµµ ÆÄÁֽà ¾ß´çµ¿ ¼ÒÀç '¿îÁ¤ÁßÇб³' ³²µ¿Ãø Àαٿ¡ À§Ä¡Çϸç ÁÖº¯Àº ´Ù¼¼´ëÁÖÅà ¹× ¾ÆÆÄÆ®´ÜÁö, ±Ù¸°»ýȰ½Ã¼³ µîÀÌ ¼ÒÀçÇÏ´Â Áö¿ªÀ¸·Î¼­, Á¦¹Ý ÀÔÁö¿©°ÇÀº ´ëü·Î º¸Åë½ÃµË´Ï´Ù.
2)±³Åë»óȲ
º»°Ç±îÁö Â÷·®Á¢±ÙÀÌ °¡´ÉÇϸç, Àαٿ¡ ¹ö½ºÁ¤·ùÀåÀÌ ¼ÒÀçÇÏ´Â µî ´ëÁß±³Åë¼ö´ÜÀÌ¿ëÀº º¸ÅëÀÔ´Ï´Ù.
3)°Ç¹°ÀÇ ±¸Á¶
ö±ÙÄÜÅ©¸®Æ®±¸Á¶ (ö±Ù)ÄÜÅ©¸®Æ®ÁöºØ 4Ãþ °Ç ³» Á¦2Ãþ Á¦202È£·Î¼­, ¿Üº® : º®µ¹ÇÇÀå½×±â ¸¶°¨ µî ³»º® : º®Áöµµ¹è ¹× ŸÀϺÙÀÓ ¸¶°¨ µî âȣ : ¼¦½Ãâȣ ¸¶°¨ µîÀ¸·Î °ü¸®»óÅ´ ´ëü·Î ¹«³­½ÃµË´Ï´Ù.
4)ÀÌ¿ë»óÅÂ
º»°ÇÀº ´Ù¼¼´ëÁÖÅÃÀ¸·Î ÀÌ¿ëÁßÀ¸·Î »ó¼¼³»¿ëÀº ÈÄ÷ '³»ºÎ±¸Á¶µµ' ÂüÁ¶¹Ù¶ø´Ï´Ù. - ÀÌÇØ°ü°èÀÎÀÇ ºÎÀç·Î ÀÎÇÏ¿© °ÇÃ๰´ëÀå ÇöȲµµ¸é, ¿ÜºÎ°üÂû, ޹® µîÀ» ÂüÁ¶ÇÑ °ÍÀ¸·Î ÇöȲ°ú ´Ù¼Ò ´Ù¸¦ ¼ö ÀÖ»ç¿À´Ï °æ¸ÅÁøÇà½Ã ÂüÁ¶¹Ù¶ø´Ï´Ù.
5)¼³ºñ³»¿ª
À§»ý ¹× ±Þ¹è¼ö¼³ºñ, ³­¹æ¼³ºñ µîÀÌ ±¸ºñµÇ¾î ÀÖ½À´Ï´Ù.
6)ÅäÁöÀÇ Çü»ó ¹× ÀÌ¿ë»óÅÂ
ÀÎÁ¢Áö ¹× ÀÎÁ¢µµ·Î¿Í µî°í ÆòźÇÑ ºÎÁ¤Çü ÅäÁö·Î¼­ ´Ù¼¼´ëÁÖÅà °ÇºÎÁö·Î ÀÌ¿ëÁßÀÔ´Ï´Ù.
7)ÀÎÁ¢ µµ·Î»óŵî
º»°Ç ºÏ¼­ÃøÀ¸·Î ³ëÆø ¾à 6¹ÌÅÍ ³»¿ÜÀÇ ¾Æ½ºÆÈÆ® Æ÷Àåµµ·Î¿Í Á¢ÇÕ´Ï´Ù.
8)ÅäÁöÀÌ¿ë°èȹ ¹× Á¦ÇÑ»óÅÂ
°èȹ°ü¸®Áö¿ª , ¼ºÀå°ü¸®°èȹ±¸¿ª(2024-01-26)(ÁØÁÖ°Å Zone), °¡Ãà»çÀ°Á¦Çѱ¸¿ª(ÀüºÎÁ¦Çѱ¸¿ª)<°¡ÃàºÐ´¢ÀÇ °ü¸® ¹× À̿뿡 °üÇÑ ¹ý·ü>, ÅäÁö°Å·¡°è¾à¿¡°üÇÑÇã°¡±¸¿ª(25.8.26~26.8.25 ¿Ü±¹ÀÎ µîÀÇ ´Üµ¶ÁÖÅÃ, ´Ù°¡±¸ÁÖÅÃ, ¾ÆÆÄÆ®, ¿¬¸³ÁÖÅÃ, ´Ù¼¼´ëÁÖÅÃ)
9)°øºÎ¿ÍÀÇ Â÷ÀÌ
-
10)±âŸÂü°í»çÇ×(ÀÓ´ë°ü·Ê ¹× ±âŸ)
1) ÀÓ´ë°ü°è : ¹Ì»óÀÔ´Ï´Ù. 2) ±â Ÿ : -
Âü°í
»çÇ×
2023³â12¿ù7ÀÏ Á¢¼öÁ¦89650È£ ÁÖÅÃÀÓÂ÷±Çµî±â¿¡ ´ëÇÏ¿© ÀÓÂ÷±ÇÀÚ À¯Áö¿¬ÀÇ ½Â°èÀÎ ÁÖÅõµ½Ãº¸Áõ°ø»ç°¡ 2026.2.9.ÀÚ È®¾à¼­(ÀÓ´ëÂ÷º¸Áõ±Ý Àü¾×À» ¹è´ç¹ÞÁö ¸øÇÏ´õ¶óµµ ÀÜÁ¸ ÀÓ´ëÂ÷º¸Áõ±Ý ¹Ýȯû±¸±ÇÀ» Æ÷±âÇϰí ÀÓÂ÷±Çµî±â¸¦ ¸»¼ÒÇÏ´Â °Í¿¡ µ¿ÀÇÇÔ)¸¦ Á¦ÃâÇÔ.
-ö±ÙÄÜÅ©¸®Æ®±¸Á¶ (ö±Ù)ÄÜÅ©¸®Æ®ÁöºØ 4Ãþ °øµ¿ÁÖÅÃ

°ÇÃ๰ÇöȲ

¼ÒÀçÁö °æ±âµµ ÆÄÁֽà ¾ß´çµ¿ 484-16¹øÁö
´ëÁö¸éÀû 507§³
(153.64Æò)
¿¬¸éÀû 496.76§³
(150.53Æò)
°ÇÃà¸éÀû 171.61§³
(52Æò)
¿ëÀû·ü»êÁ¤
¿¬¸éÀû
494.76§³
(149.93Æò)
°ÇÆóÀ² 33.85% ¿ëÀû·ü 97.59%
Áö»óÃþ¼ö 4Ãþ ÁöÇÏÃþ¼ö  
ÁÖ¿ëµµ °øµ¿ÁÖÅà ±¸Á¶ ö±ÙÄÜÅ©¸®Æ®±¸Á¶
Âø°øÀÏÀÚ 2014.05.08 »ç¿ë½ÂÀÎÀÏÀÚ 2014.11.24
°ÇÃ๰Ãþº°ÇöȲ [º¸±â]


±¹ÅäºÎ½Ç°Å·¡°¡ °æ±âµµ ÆÄÁֽà ¾ß´çµ¿

¡Ü ¸Å¸Å

¸éÀû(§³), ±Ý¾×(¸¸¿ø)

¡Ü Àü¼¼

¸éÀû(§³), ±Ý¾×(¸¸¿ø)

°è¾àÀϰǹ°¸íĪÃþ¿¬¸éÀûº¸Áõ±Ý¿ù¼¼°ÇÃà
26.02.11ÀÚ¿¬¿¡°¡1Â÷6µ¿372.2126,0002014
26.02.10¾ß´çÀ§´õ½º103µ¿465.961,0001002020
26.02.09¿¹ÀÏ¾ÆÆ®ºô6µ¿258.8216,0002017
26.02.08°¡¿ÂÇϿ콺Cµ¿148.612,58002018
26.02.05¸ð¸®¾È101µ¿153.9712,00002015
¢Ñ ´õº¸±â

µî±âºÎµîº» ¿ä¾à(°Ç¹°)

  Á¢¼öÀÏÀÚ µî±â¸ñÀû/±Ç¸®ÀÚ ±Ç¸®±Ý¾× ±âÁØ
1 2021³â11¿ù29ÀÏ
¼ÒÀ¯±Ç
¹®OO
¼Ò¸ê
2 2023³â12¿ù7ÀÏ
ÀÓÂ÷±Ç¼³Á¤
À¯OO
235,000,000 Àμö
3 2025³â10¿ù29ÀÏ
°­Á¦°æ¸Å
ÁÖOOOO
¼Ò¸ê±âÁØ
4 2026³â1¿ù30ÀÏ
¾Ð·ù
ÆÄOO
¼Ò¸ê

ÀÓÂ÷ÀÎÇöȲ (¹è´ç¿ä±¸Á¾±âÀÏ: 2026-01-29)



¸Å°¢±âÀÏ 7ÀÏÀü¿¡ ¸Å°¢¹°°Ç¸í¼¼¼­°¡ °ø°íµÇ¿À´Ï È®ÀÎÇϽñ⠹ٶø´Ï´Ù.

ÀÓÂ÷ÀÎ ¿ëµµ/Á¡À¯ º¸Áõ±Ý/¿ù¼¼ ´ëÇ×·Â
ÀüÀÔÀÏ/È®Á¤ÀÏ ¹è´ç¿ä±¸ ºñ°í
À¯OO ÀüºÎ 235,000,000
O
2021.11.29.
2021.11.1.
2025.12.26. 2021.11.29.
ºñ°í
(¸Å°¢¹°°Ç
¸í¼¼¼­)
ÁÖÅõµ½Ãº¸Áõ°ø»ç´Â ÀÓÂ÷º¸Áõ±Ý Àü¾×¿¡ ´ëÇÏ¿© ÀÓÂ÷±ÇÀÚ À¯Áö¿¬ÀÇ ±Ç¸®¸¦ ½Â°èÇÑ °æ¸Å½Åûä±ÇÀÚÀÓ.

¿©ÀÇÁÖ°æ¸Å Á¶¾ð ÇÑ ¸¶µð

¼±¼øÀ§ ÀÓÂ÷±Çµî±â°¡ µÇ¾î ÀÖ½À´Ï´Ù
´ëÇ×·ÂÀÌ ÀÖ´Â ¼±¼øÀ§ ÀÓÂ÷±Çµî±â ±Ç¸®ÀÚ°¡ ¹è´çÀ» Àü¾× ¹ÞÁö ¸øÇÒ °æ¿ì ³«ÂûÀÚ°¡ ÀÜ¿© º¸Áõ±ÝÀ» ÀμöÇØ¾ßÇÏ´Â °æ¿ìµµ ÀÖ½À´Ï´Ù.

ÁÖÀÇ»çÇ× (ÃÖ¼±¼øÀ§ ¼³Á¤ÀÏ: 2025.10.29.°æ¸Å°³½Ã°áÁ¤ ¼³Á¤)

¸Å°¢À¸·Î ¼Ò¸êµÇÁö ¾Ê´Â µî±âºÎ±Ç¸®:
¸Å°¢À¸·Î ¼³Á¤µÈ °ÍÀ¸·Î º¸´Â Áö»ó±Ç:
2023³â12¿ù7ÀÏ Á¢¼öÁ¦89650È£ ÁÖÅÃÀÓÂ÷±Çµî±â¿¡ ´ëÇÏ¿© ÀÓÂ÷±ÇÀÚ À¯Áö¿¬ÀÇ ½Â°èÀÎ ÁÖÅõµ½Ãº¸Áõ°ø»ç°¡ 2026.2.9.ÀÚ È®¾à¼­(ÀÓ´ëÂ÷ º¸Áõ±Ý Àü¾×À» ¹è´ç¹ÞÁö ¸øÇÏ´õ¶óµµ ÀÜÁ¸ ÀÓ´ëÂ÷º¸Áõ±Ý ¹Ýȯû±¸±ÇÀ» Æ÷±âÇϰí ÀÓÂ÷±Çµî±â¸¦ ¸»¼ÒÇÏ´Â °Í¿¡ µ¿ÀÇÇÔ)¸¦ Á¦ÃâÇÔ.
¡Ø¹Ì³³°ü¸®ºñ(°ø¿ë) Àμö¿©ºÎ¸¦ ÀÔÂû Àü¿¡ È®ÀÎÇϽñ⠹ٶø´Ï´Ù

 

Áö¿ªºÐ¼®

ÁöÇÏö¸í Á÷¼±°Å¸®

Çб³¸í ÀüÈ­¹øÈ£ ÁÖ¼Ò Á÷¼±°Å¸®

¹ý¿ø

ÀÇÁ¤ºÎÁö¹æ¹ý¿ø °í¾çÁö¿ø (104-13)°æ±âµµ °í¾ç½Ã Àϻ굿±¸ Àå¹é·Î 209
´ëÇ¥ : 031)920-6114, ¾ß°£ : 031)920-6550, ÆÑ½º : 031)920-6119
°üÇÒÁö¿ª : °í¾ç½Ã, ÆÄÁÖ½Ã

µî±â¼Ò ÀÇÁ¤ºÎÁö¹æ¹ý¿ø °í¾çÁö¿ø ÆÄÁÖµî±â¼Ò (´ëÇ¥:1544-0773, ÆÑ½º:(031)945-4764, 3628, °æ±âµµ ÆÄÁֽà ±ÝÁ¤·Î 45 (±ÝÃ̵¿ 947-28))
¼¼¹«¼­ ÆÄÁÖ¼¼¹«¼­ (´ëÇ¥:031-956-02, ÆÑ½º:031-957-0315, °æ±âµµ ÆÄÁֽà ±Ý¸ª¿ª·Î 62 (±ÝÃ̵¿))

Àαٳ«ÂûÅë°è

±â°£ ¸Å°¢°Ç¼ö Æò±Õ°¨Á¤°¡
Æò±Õ¸Å°¢°¡
¸Å°¢°¡À²
Æò±ÕÀ¯Âû¼ö


º» °æ¸ÅÁ¤º¸´Â ¹ý¿øÀÚ·á¿Í ÀÏÄ¡Çϵµ·Ï ÇÏ¿´À¸³ª ±Ç¸®»çÇ׺¯µ¿, ÀÔ·ÂÂø¿À µîÀÇ ¿øÀÎÀ¸·Î »ç½Ç°ú ´Ù¸¦ ¼ö ÀÖ½À´Ï´Ù. ÀÌ¿ë¾à°ü¿¡ ÀǰЏéÃ¥Á¶°ÇÀ¸·Î Á¦°øµÊÀ» ¾Ë¸®¸ç, °æ¸ÅÀÔÂû½Ã ¹Ýµå½Ã °ü·Ã °øºÎ¸¦ ÀçÈ®ÀÎÇϽñ⠹ٶø´Ï´Ù. º¸´Ù Æí¸®ÇÑ °æ¸ÅÁ¤º¸ Á¦°øÀ» À§ÇØ Áö¼ÓÀûÀ¸·Î °³¼±ÇϰڽÀ´Ï´Ù. ÀÌ¿ëÇØ Áּż­ °¨»çÇÕ´Ï´Ù.