·Î±×ÀÎ
136
´Ù¼¼´ë(ºô¶ó)
¼ö¿øÁö¹æ¹ý¿ø ¼º³²Áö¿ø
 °¨Á¤°¡186,000,000 ¿ø
 ÃÖÀú°¡(100%) 186,000,000 ¿ø
 º¸Áõ±Ý(10%) 18,600,000 ¿ø
 Ã»±¸¾×225,000,000 ¿ø
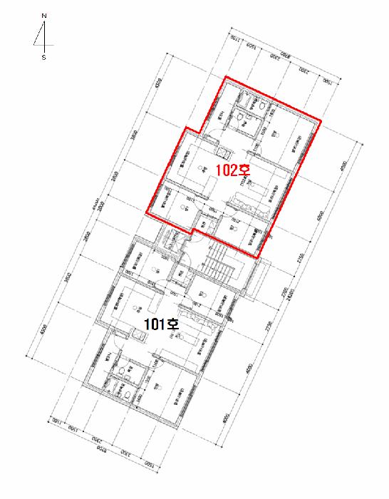
°æ±âµµ ±¤Áֽà ½ÅÇöµ¿ 961-31 ¸¶¿îƾÄɺó 109µ¿ 1Ãþ 102È£
»ç°Ç¹øÈ£ 2025Ÿ°æ52164
°æ¸ÅÁ¾·ùºÎµ¿»ê°­Á¦°æ¸Å
¸Å°¢´ë»óÅäÁö ¹× °Ç¹°Àϰý ¸Å°¢
¸Å°¢±âÀÏ    2026.04.06(¿ù) 10:00 ÀÔÂû 3ÀÏÀü    
ÅäÁö¸éÀû55.84§³(16.89 Æò)
°Ç¹°¸éÀû56.84§³(17.19 Æò)
乫/¼ÒÀ¯ÀÚäOO OOOO OOOOO OOO OOO / äOO OOOO OOOOO OOO OOO
ä±ÇÀÚÁÖOOOOOOO
ÆäÀ̽ººÏ Æ®À§ÅÍ ±¸±Û+
īī¿À½ºÅ丮
īī¿ÀÅå sms¹®ÀÚº¸³»±â
 

±âÀϳ»¿ª

°æ°ú ³¯Â¥ Àú°¨ ÃÖÀú°¡ °á°ú
Á¢¼öÀÏ 2025-05-09 °æ¸ÅÁ¢¼ö
~3ÀÏ 
2025-05-12 °æ¸Å°³½Ã°áÁ¤
~66ÀÏ 
2025-07-14 ¹è´ç¿ä±¸Á¾±âÀÏ
~294ÀÏ 
2026-02-27 100%
186,000,000
º¯°æ
~332ÀÏ 
2026-04-06 100%
186,000,000
ÁøÇà
¹°°Ç¸í¼¼¼­ ÇöȲÁ¶»ç¼­ ¹®°ÇÁ¢¼ö ¼Û´Þ³»¿ª

°¨Á¤Æò°¡ÇöȲ

¸ñ·Ï ÁÖ¼Ò ±¸Á¶/¿ëµµ/´ëÁö±Ç ¸éÀû ºñ°í
´ëÁö±Ç
½ÅÇöµ¿ 961-31 530ºÐÀÇ 55.84 55.84 §³
(16.89Æò)
°Ç¹°
½ÅÇöµ¿ 961-31 109µ¿ 1Ãþ 102È£ ö±ÙÄÜÅ©¸®Æ®±¸Á¶ 56.84 §³
(17.19Æò)
1) À§Ä¡/°èȹ°ü¸®Áö¿ª/½Ã³»¹ö½ºÁ¤·ùÀå/Â÷·®ÀÇ Á¢±ÙÀÌ °¡´É/ö±ÙÄÜÅ©¸®Æ®±¸Á¶/°æ»çÁöºØ/¹æ3/¿å½Ç2 ´õº¸±â
°¨Á¤Æò°¡ ¿äÇ×Ç¥
1)À§Ä¡ ¹× ÁÖÀ§È¯°æ
º»°ÇÀº ±¤Áֽà ½ÅÇöµ¿ ¼ÒÀç '½ÅÇöÃʵîÇб³' ³²¼­Ãø Àαٿ¡ À§Ä¡Çϸç, ÁÖº¯Àº ´Ù¼¼´ëÁÖÅÃ, ¿¬¸³ÁÖÅÃ, ´Üµ¶ÁÖÅÃ, ±Ù¸°»ýȰ½Ã¼³ ¹× Àü/´ä µîÀÌ ¼ÒÀçÇÏ´Â Áö¿ªÀ¸·Î¼­ Á¦¹Ý ÁÖÀ§È¯°æÀº º¸ÅëÀÓ.
2)±³Åë»óȲ
º»°Ç±îÁö Â÷·®ÀÇ Á¢±ÙÀÌ °¡´ÉÇϸç, Àαٿ¡ ½Ã³»¹ö½ºÁ¤·ùÀåÀÌ ¼ÒÀçÇÏ´Â µî ´ëÁß±³Åë»óȲÀº º¸ÅëÀÓ.
3)°Ç¹°ÀÇ ±¸Á¶
ö±ÙÄÜÅ©¸®Æ®±¸Á¶ ¹× (ö±Ù)ÄÜÅ©¸®Æ®(ö±ÙÄÜÅ©¸®Æ®½º¶óºê°æ»çÁöºØ) 4Ãþ ³» Á¦1Ãþ Á¦102È£·Î¼­,
[»ç¿ë½ÂÀÎÀÏ: 2015.09.16.]

¿Üº®: ¼®ÀçºÙÀÓ ¸¶°¨ µî,
³»º®: º®Áö µµ¹è ¹× ÀϺΠŸÀÏ ¸¶°¨ µî,
âȣ: »õ½Ã âȣ µîÀÓ.
4)ÀÌ¿ë»óÅÂ
´Ù¼¼´ëÁÖÅÃ(¹æ3, ÁÖ¹æ, °Å½Ç, ¿å½Ç2, ¹ßÄÚ´Ï µî)À¸·Î ÀÌ¿ëÁßÀÓ.
5)¼³ºñ³»¿ª
±âº»ÀûÀÎ À§»ý ¹× ±Þ¹è¼ö½Ã¼³, ³­¹æ¼³ºñ, ½Â°­±â¼³ºñ µîÀÌ µÇ¾îÀÖÀ½.



6)ÅäÁöÀÇ Çü»ó ¹× ÀÌ¿ë»óÅÂ
ÀÎÁ¢ÇÊÁö ´ëºñ ¿Ï°æ»çÁöÀÇ ¼¼ÀåÇü ÅäÁö·Î¼­, ´Ù¼¼´ëÁÖÅÃÀÇ °ÇºÎÁö·Î ÀÌ¿ëÁßÀÓ.
7)ÀÎÁ¢ µµ·Î»óŵî
º»°ÇÀÇ ºÏµ¿ÃøÀ¸·Î ³ëÆø ¾à 6MÀÇ Æ÷Àåµµ·Î¿Í Á¢ÇÔ.
8)ÅäÁöÀÌ¿ë°èȹ ¹× Á¦ÇÑ»óÅÂ
°èȹ°ü¸®Áö¿ª(°èȹ°ü¸®), ¼ºÀå°ü¸®°èȹ±¸¿ª(¼ºÀå°ü¸®Áö¿ª(ÁÖ°ÅÇü)), °¡Ãà»çÀ°Á¦Çѱ¸¿ª(ÀϺÎÁ¦Çѱ¸¿ª)<°¡ÃàºÐ´¢ÀÇ °ü¸® ¹× À̿뿡 °üÇÑ ¹ý·ü>, ¹èÃâ½Ã¼³¼³Ä¡Á¦ÇÑÁö¿ª<¹°È¯°æº¸Àü¹ý>, ÀÚ¿¬º¸Àü±Ç¿ª<¼öµµ±ÇÁ¤ºñ°èȹ¹ý>, Ưº°´ëÃ¥Áö¿ª<ȯ°æÁ¤Ã¥±âº»¹ý>ÀÓ.
9)°øºÎ¿ÍÀÇ Â÷ÀÌ
¾øÀ½.
10)±âŸÂü°í»çÇ×(ÀÓ´ë°ü·Ê ¹× ±âŸ)
ÀÓ´ë°ü°è´Â ¹Ì»óÀ̳ª µî±â»çÇ×ÀüºÎÁõ¸í¼­ À»±¸ »ó ÁÖÅÃÀÓÂ÷±Ç(¼øÀ§¹øÈ£ 3, Á¢¼ö 2023³â2¿ù 8ÀÏ)ÀÌ µî±âµÈ ¹Ù, °æ¸ÅÁøÇà ½Ã Âü°íÇϽñ⠹ٶ÷.
Âü°í
»çÇ×
2026.2.23.ÀÚ·Î ÁÖÅÃÀÓÂ÷±ÇÀÇ ½Â°èÀÎ ÁÖÅõµ½Ãº¸Áõ°ø»ç´Â ¿ì¼±º¯Á¦±Ç¸¸ ÁÖÀåÇϰí, ´ëÇ×·ÂÀ» Æ÷±âÇÑ´Ù´Â È®¾à¼­ Á¦ÃâÇÔ.

°ÇÃ๰ÇöȲ

¼ÒÀçÁö °æ±âµµ ±¤Áֽà ½ÅÇöµ¿ 961-31¹øÁö
´ëÁö¸éÀû 530§³
(160.61Æò)
¿¬¸éÀû 713.32§³
(216.16Æò)
°ÇÃà¸éÀû 197.07§³
(59.72Æò)
¿ëÀû·ü»êÁ¤
¿¬¸éÀû
526.08§³
(159.42Æò)
°ÇÆóÀ² 37.18% ¿ëÀû·ü 99.26%
Áö»óÃþ¼ö 4Ãþ ÁöÇÏÃþ¼ö 1Ãþ
ÁÖ¿ëµµ °øµ¿ÁÖÅà ±¸Á¶ ö±ÙÄÜÅ©¸®Æ®±¸Á¶
Âø°øÀÏÀÚ 2015.02.09 »ç¿ë½ÂÀÎÀÏÀÚ 2015.09.16
°ÇÃ๰Ãþº°ÇöȲ [º¸±â]


±¹ÅäºÎ½Ç°Å·¡°¡ °æ±âµµ ±¤Áֽà ½ÅÇöµ¿

¡Ü ¸Å¸Å

¸éÀû(§³), ±Ý¾×(¸¸¿ø)

¡Ü Àü¼¼

¸éÀû(§³), ±Ý¾×(¸¸¿ø)

°è¾àÀϰǹ°¸íĪÃþ¿¬¸éÀûº¸Áõ±Ý¿ù¼¼°ÇÃà
26.03.31Çö´ë±×¸°ºô(103µ¿)354.66514,60002014
26.03.31½ÅÇö¸ð¾î(Aµ¿)254.218,40052015
26.03.30¼º½ÉÇÏÀ̺ô(Aµ¿)155.213,0001002016
26.03.30ż֟¿î(3µ¿4µ¿)351.212,000902011
26.03.30·ç¹ÌÆç¸®Ã¼(204µ¿)357.6420,00002019
¢Ñ ´õº¸±â

µî±âºÎµîº» ¿ä¾à(°Ç¹°)

  Á¢¼öÀÏÀÚ µî±â¸ñÀû/±Ç¸®ÀÚ ±Ç¸®±Ý¾× ±âÁØ
1 2021³â1¿ù4ÀÏ
¼ÒÀ¯±Ç
ÀÌOO
¼Ò¸ê
2 2021³â9¿ù10ÀÏ
°¡¾Ð·ù
(OOOO
267,189,979 ¼Ò¸ê±âÁØ
3 2021³â11¿ù16ÀÏ
°¡¾Ð·ù
(OOOO
9,858,344 ¼Ò¸ê
4 2021³â12¿ù21ÀÏ
¾Ð·ù
±¹OOOO
¼Ò¸ê
5 2022³â3¿ù30ÀÏ
°¡¾Ð·ù
¼­OOOO
10,556,401 ¼Ò¸ê
6 2022³â12¿ù6ÀÏ
¾Ð·ù
±¹OOOO
¼Ò¸ê
7 2022³â12¿ù23ÀÏ
¾Ð·ù
±¹OOOO
¼Ò¸ê
8 2023³â2¿ù8ÀÏ
ÀÓÂ÷±Ç¼³Á¤
Á¶OO
225,000,000 ¼Ò¸ê
9 2025³â5¿ù12ÀÏ
°­Á¦°æ¸Å
ÁÖOOOO
¼Ò¸ê
10 2026³â1¿ù2ÀÏ
¾Ð·ù
±¹
¼Ò¸ê

ÀÓÂ÷ÀÎÇöȲ (¹è´ç¿ä±¸Á¾±âÀÏ: 2025-07-14)

ÀÓÂ÷ÀÎ ¿ëµµ/Á¡À¯ º¸Áõ±Ý/¿ù¼¼ ´ëÇ×·Â
ÀüÀÔÀÏ/È®Á¤ÀÏ ¹è´ç¿ä±¸ ºñ°í
Á¶OO 102È£ÀüºÎ 225,000,000
O
2021.1.4.
2020.12.17.,2021.2.15.
ÁÖOOOOOOO ÀüºÎ 225,000,000
O
2021.1.4.
2020.12.17.
2025.7.8. 2021.1.4.-2023.4.18.
ºñ°í
(¸Å°¢¹°°Ç
¸í¼¼¼­)
Á¶¼ºÁÖ:ÁÖÅÃÀÓÂ÷±Çµî±â±ÇÀÚ·Î ÁÖÅÃÀÓÂ÷±Çµî±âÀÏÀº 2023.2.8.ÀÓ. ÁÖÅõµ½Ãº¸Áõ°ø»ç:°æ¸Å½Åûä±ÇÀÚ·Î ÀÓÂ÷ÀÎ Á¶¼ºÁÖÀÇ ÀÓÂ÷º¸Áõ±Ý¹Ýȯä±Ç ¾ç¼öÀÎÀÓ(¿ì¼±º¯Á¦±Ç ½Â°è)

¿©ÀÇÁÖ°æ¸Å Á¶¾ð ÇÑ ¸¶µð


ÁÖÀÇ»çÇ× (ÃÖ¼±¼øÀ§ ¼³Á¤ÀÏ: 2021.9.10. °¡¾Ð·ù ¼³Á¤)

¸Å°¢À¸·Î ¼Ò¸êµÇÁö ¾Ê´Â µî±âºÎ±Ç¸®: ÇØ´ç»çÇ×¾øÀ½
¸Å°¢À¸·Î ¼³Á¤µÈ °ÍÀ¸·Î º¸´Â Áö»ó±Ç: ÇØ´ç»çÇ×¾øÀ½
2026.2.23.ÀÚ·Î ÁÖÅÃÀÓÂ÷±ÇÀÇ ½Â°èÀÎ ÁÖÅõµ½Ãº¸Áõ°ø»ç´Â ¿ì¼±º¯Á¦±Ç¸¸ ÁÖÀåÇϰí, ´ëÇ×·ÂÀ» Æ÷±âÇÑ´Ù´Â È®¾à¼­ Á¦ÃâÇÔ.
¡Ø¹Ì³³°ü¸®ºñ(°ø¿ë) Àμö¿©ºÎ¸¦ ÀÔÂû Àü¿¡ È®ÀÎÇϽñ⠹ٶø´Ï´Ù

 

Áö¿ªºÐ¼®

ÁöÇÏö¸í Á÷¼±°Å¸®

Çб³¸í ÀüÈ­¹øÈ£ ÁÖ¼Ò Á÷¼±°Å¸®

¹ý¿ø

¼ö¿øÁö¹æ¹ý¿ø ¼º³²Áö¿ø (131-43)°æ±âµµ ¼º³²½Ã ¼öÁ¤±¸ »ê¼º´ë·Î 451 (´Ü´ëµ¿)
´ëÇ¥ : 031)737-1558, ¾ß°£ : 031)737-1120
°üÇÒÁö¿ª : ¼º³²½Ã, ±¤ÁÖ½Ã, Çϳ²½Ã

µî±â¼Ò ¼ö¿øÁö¹æ¹ý¿ø ¼º³²Áö¿ø ±¤ÁÖµî±â¼Ò (´ëÇ¥:1544-0773, ÆÑ½º:(031)765-2388, °æ±âµµ ±¤Áֽà ÇàÁ¤Å¸¿î·Î 49-15 (¼ÛÁ¤µ¿ 346-4))
¼¼¹«¼­ °æ±â±¤ÁÖ¼¼¹«¼­ (´ëÇ¥:031-880-92, ÆÑ½º:031-769-0417, °æ±âµµ ±¤Áֽà ¹®È­·Î 127)

Àαٳ«ÂûÅë°è

±â°£ ¸Å°¢°Ç¼ö Æò±Õ°¨Á¤°¡
Æò±Õ¸Å°¢°¡
¸Å°¢°¡À²
Æò±ÕÀ¯Âû¼ö
3°³¿ù 0°Ç 0¿ø
0¿ø
0%
0ȸ
6°³¿ù 1°Ç 143,000,000¿ø
80,561,200¿ø
56%
2ȸ
12°³¿ù 2°Ç 230,000,000¿ø
152,816,150¿ø
64%
1.5ȸ


º» °æ¸ÅÁ¤º¸´Â ¹ý¿øÀÚ·á¿Í ÀÏÄ¡Çϵµ·Ï ÇÏ¿´À¸³ª ±Ç¸®»çÇ׺¯µ¿, ÀÔ·ÂÂø¿À µîÀÇ ¿øÀÎÀ¸·Î »ç½Ç°ú ´Ù¸¦ ¼ö ÀÖ½À´Ï´Ù. ÀÌ¿ë¾à°ü¿¡ ÀǰЏéÃ¥Á¶°ÇÀ¸·Î Á¦°øµÊÀ» ¾Ë¸®¸ç, °æ¸ÅÀÔÂû½Ã ¹Ýµå½Ã °ü·Ã °øºÎ¸¦ ÀçÈ®ÀÎÇϽñ⠹ٶø´Ï´Ù. º¸´Ù Æí¸®ÇÑ °æ¸ÅÁ¤º¸ Á¦°øÀ» À§ÇØ Áö¼ÓÀûÀ¸·Î °³¼±ÇϰڽÀ´Ï´Ù. ÀÌ¿ëÇØ Áּż­ °¨»çÇÕ´Ï´Ù.