·Î±×ÀÎ
81
¿ÀÇǽºÅÚ
¼ö¿øÁö¹æ¹ý¿ø
 °¨Á¤°¡129,000,000 ¿ø
 ÃÖÀú°¡(100%) 129,000,000 ¿ø
 º¸Áõ±Ý(10%) 12,900,000 ¿ø
 Ã»±¸¾×50,806,987 ¿ø
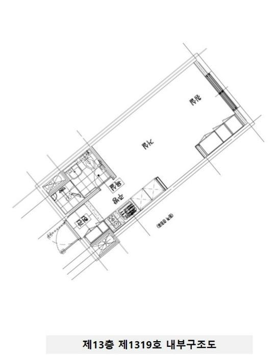
°æ±âµµ È­¼º½Ã °æ±â´ë·Î 1011, 13Ãþ1319È£ (º´Á¡µ¿,º´Á¡¿ª½á¹ÔÇÁ¶ó¿ò¿¡À̵¿)
°æ±âµµ È­¼º½Ã º´Á¡±¸ º´Á¡µ¿ 376-11
»ç°Ç¹øÈ£ 2024Ÿ°æ102034
°æ¸ÅÁ¾·ùºÎµ¿»ê°­Á¦°æ¸Å
¸Å°¢´ë»óÅäÁö ¹× °Ç¹°Àϰý ¸Å°¢
¸Å°¢±âÀÏ    2026.02.27(±Ý) 10:00 ÀÔÂû 1ÀÏÀü    
ÅäÁö¸éÀû4.28§³(1.29 Æò)
°Ç¹°¸éÀû24.12§³(7.30 Æò)
乫/¼ÒÀ¯ÀÚÁÖOOO OOOOOO / ÁÖOOO OOOOOO
ä±ÇÀÚÀ¯OO
ÆäÀ̽ººÏ Æ®À§ÅÍ ±¸±Û+
īī¿À½ºÅ丮
īī¿ÀÅå sms¹®ÀÚº¸³»±â
 

±âÀϳ»¿ª

°æ°ú ³¯Â¥ Àú°¨ ÃÖÀú°¡ °á°ú
Á¢¼öÀÏ 2024-12-12 °æ¸ÅÁ¢¼ö
~5ÀÏ 
2024-12-17 °æ¸Å°³½Ã°áÁ¤
~82ÀÏ 
2025-03-04 ¹è´ç¿ä±¸Á¾±âÀÏ
~442ÀÏ 
2026-02-27 100%
129,000,000
ÁøÇà
¹°°Ç¸í¼¼¼­ ÇöȲÁ¶»ç¼­ ¹®°ÇÁ¢¼ö ¼Û´Þ³»¿ª

°¨Á¤Æò°¡ÇöȲ

¸ñ·Ï ÁÖ¼Ò ±¸Á¶/¿ëµµ/´ëÁö±Ç ¸éÀû ºñ°í
´ëÁö±Ç
º´Á¡µ¿ 376-11 3960ºÐÀÇ 4.2782 4.2782 §³
(1.29Æò)
°Ç¹°
º´Á¡µ¿ 376-11 13Ãþ1319È£ ö±ÙÄÜÅ©¸®Æ®±¸Á¶ 24.12 §³
(7.30Æò)
1) À§Ä¡/ÁØÁÖ°ÅÁö¿ª/ÀϹݻó¾÷Áö¿ª/ÁöÇÏö/ÁöÇÏÁÖÂ÷Àå/ö±ÙÄÜÅ©¸®Æ®±¸Á¶/µµ½Ã°¡½º ´õº¸±â
°¨Á¤Æò°¡ ¿äÇ×Ç¥
1)À§Ä¡ ¹× ÁÖÀ§È¯°æ
º»°ÇÀº °æ±âµµ È­¼º½Ã º´Á¡µ¿ ¼ÒÀç "º´Á¡¿ª"³²µ¿Ãø Àαٿ¡ À§Ä¡Çϸç ÁÖÀ§´Â ¾ÆÆÄÆ®, ¿ÀÇÇ
½ºÅÚ, ±Ù¸°»ýȰ½Ã¼³ µîÀÌ È¥ÀçÇÏ´Â Áö¿ªÀÓ.
2)±³Åë»óȲ
º»°ÇÀº Â÷·® Á¢±ÙÀÌ ¿ëÀÌÇϸç, Àαٿ¡ ¹ö½º Á¤·ùÀå ¹× ±Ù°Å¸®¿¡ ÁöÇÏö¿ªÀÌ ¼ÒÀçÇÏ¿© ´ëÁß±³
Åë»çÁ¤Àº ¹«³­ÇÔ.
3)°Ç¹°ÀÇ ±¸Á¶
ö±ÙÄÜÅ©¸®Æ®±¸Á¶ (ö±Ù)ÄÜÅ©¸®Æ®ÁöºØ 20Ãþ °Ç³» 13Ãþ 1319È£·Î¼­
¿Üº® : ¸ôÅ»À§ ÆäÀÎÆÃ ¹× ¼®Àç µî ¸¶°¨.
³»º® : ½Ã¸à¸ôÅ»À§ º®Áö µµ¹è ¹× ŸÀÏ µî ¸¶°¨.
âȣ : ¼¦½Ã âȣÀÓ.
4)ÀÌ¿ë»óÅÂ
¿ÀÇǽºÅÚ(ÈÄ÷ "³»ºÎ±¸Á¶µµ" ÂüÁ¶).
5)¼³ºñ³»¿ª
±Þ.¹è¼ö¼³ºñ, À§»ý¼³ºñ, ³­¹æ¼³ºñ, µµ½Ã°¡½º¼³ºñ, ¼ÒÈ­¼³ºñ, ½Â°­±â¼³ºñ µîÀÌ µÇ¾îÀÖÀ½.
6)ÅäÁöÀÇ Çü»ó ¹× ÀÌ¿ë»óÅÂ
ºÎÁ¤ÇüÀÇ ÆòźÇÑ ÅäÁö·Î¼­ ±Ù¸°»ýȰ½Ã¼³ ¹× ¾÷¹«½Ã¼³(¿ÀÇǽºÅÚ) °ÇºÎÁö·Î ÀÌ¿ë ÁßÀÓ.
7)ÀÎÁ¢ µµ·Î»óŵî
º»°Ç ºÏµ¿Ãø ¹× ³²µ¿ÃøÀ¸·Î °¢°¢ ´ë·Î ¹× ¼Ò·Î¿Í Á¢Çϸç, Áö»ó ¹× ÁöÇÏÁÖÂ÷Àå µîÀ» °®Ãß°í ÀÖÀ½.
8)ÅäÁöÀÌ¿ë°èȹ ¹× Á¦ÇÑ»óÅÂ
ÀϹݻó¾÷Áö¿ª, ÁØÁÖ°ÅÁö¿ª, Áß·Î3·ù(Æø 12m-15m)(Á¢ÇÕ) °¡Ãà»çÀ°Á¦Çѱ¸¿ª(ÀüºÎÁ¦ÇÑ)<°¡ÃàºÐ´¢ÀÇ °ü¸® ¹× À̿뿡 °üÇÑ ¹ý·ü>, ºñÇà¾ÈÀüÁ¦2±¸¿ª(Àü¼ú)<±º»ç±âÁö ¹× ±º»ç½Ã¼³ º¸È£¹ý>, ±º¿ëºñÇàÀå ¼ÒÀ½´ëÃ¥±¸¿ª Á¦3Á¾±¸¿ª(2021-12-29)<±º¿ëºñÇàÀå¤ý±º»ç°ÝÀå ¼ÒÀ½ ¹æÁö ¹× ÇÇÇØº¸»ó¿¡ °üÇÑ ¹ý·ü>, ¼ºÀå°ü¸®±Ç¿ª<¼öµµ±ÇÁ¤ºñ°èȹ¹ý>.

9)°øºÎ¿ÍÀÇ Â÷ÀÌ
¾øÀ½.
10)±âŸÂü°í»çÇ×(ÀÓ´ë°ü·Ê ¹× ±âŸ)
º»°Ç ÀÓ´ë°ü°è´Â ¹Ì»óÀÓ.

°ÇÃ๰ÇöȲ

¼ÒÀçÁö °æ±âµµ È­¼º½Ã º´Á¡µ¿ 376-11¹øÁö
´ëÁö¸éÀû   ¿¬¸éÀû 13105.297§³
(3971.3Æò)
°ÇÃà¸éÀû 746.36§³
(226.17Æò)
¿ëÀû·ü»êÁ¤
¿¬¸éÀû
13105.297§³
(3971.3Æò)
°ÇÆóÀ²   ¿ëÀû·ü  
Áö»óÃþ¼ö 20Ãþ ÁöÇÏÃþ¼ö  
ÁÖ¿ëµµ ¾÷¹«½Ã¼³ ±¸Á¶ ö±ÙÄÜÅ©¸®Æ®±¸Á¶
Âø°øÀÏÀÚ 2018.04.05 »ç¿ë½ÂÀÎÀÏÀÚ 2020.11.13
°ÇÃ๰Ãþº°ÇöȲ [º¸±â]


±¹ÅäºÎ½Ç°Å·¡°¡ °æ±âµµ È­¼ºº´Á¡±¸ º´Á¡µ¿

¡Ü ¸Å¸Å

¸éÀû(§³), ±Ý¾×(¸¸¿ø)

¡Ü Àü¼¼

¸éÀû(§³), ±Ý¾×(¸¸¿ø)

°è¾àÀϰǹ°¸íĪÃþÀü¿ëº¸Áõ±Ý¿ù¼¼°ÇÃà
26.02.07º´Á¡¿ª ½á¹ÔÇÁ¶ó¿ò724.124,000452020
26.02.07º´Á¡¿ª ½á¹ÔÇÁ¶ó¿ò1324.1212,000152020
26.02.06º´Á¡¿ª ½á¹ÔÇÁ¶ó¿ò824.12500632020
26.02.06º´Á¡¿ª ½á¹ÔÇÁ¶ó¿ò428.2913,000182020
26.02.04º´Á¡¿ª ½á¹ÔÇÁ¶ó¿ò1224.124,000492020
¢Ñ ´õº¸±â

µî±âºÎµîº» ¿ä¾à(°Ç¹°)

  Á¢¼öÀÏÀÚ µî±â¸ñÀû/±Ç¸®ÀÚ ±Ç¸®±Ý¾× ±âÁØ
1 2020³â12¿ù29ÀÏ
¼ÒÀ¯±Ç
(OOOO
¼Ò¸ê
2 2024³â12¿ù17ÀÏ
°­Á¦°æ¸Å
À¯OO
¼Ò¸ê±âÁØ

ÀÓÂ÷ÀÎÇöȲ (¹è´ç¿ä±¸Á¾±âÀÏ: 2025-03-04)

ÀÓÂ÷ÀÎ ¿ëµµ/Á¡À¯ º¸Áõ±Ý/¿ù¼¼ ´ëÇ×·Â
ÀüÀÔÀÏ/È®Á¤ÀÏ ¹è´ç¿ä±¸ ºñ°í
¼ÛOO 1319È£ÀüºÎ 120,000,000
O
2021.01.20.
2021.01.06.
2025.2.2. 2021.01.20.~2023.01.19.

¿©ÀÇÁÖ°æ¸Å Á¶¾ð ÇÑ ¸¶µð


ÁÖÀÇ»çÇ× (ÃÖ¼±¼øÀ§ ¼³Á¤ÀÏ: 2024.12.17. °­Á¦°æ¸Å°³½Ã ¼³Á¤ °áÁ¤)

¸Å°¢À¸·Î ¼Ò¸êµÇÁö ¾Ê´Â µî±âºÎ±Ç¸®:
¸Å°¢À¸·Î ¼³Á¤µÈ °ÍÀ¸·Î º¸´Â Áö»ó±Ç:
¡Ø¹Ì³³°ü¸®ºñ(°ø¿ë) Àμö¿©ºÎ¸¦ ÀÔÂû Àü¿¡ È®ÀÎÇϽñ⠹ٶø´Ï´Ù

 

Áö¿ªºÐ¼®

ÁöÇÏö¸í Á÷¼±°Å¸®

Çб³¸í ÀüÈ­¹øÈ£ ÁÖ¼Ò Á÷¼±°Å¸®

¹ý¿ø

¼ö¿øÁö¹æ¹ý¿ø (165-12)°æ±âµµ ¼ö¿ø½Ã ¿µÅ뱸 ¹ýÁ¶·Î 105, Çϵ¿, ¼ö¿ø¹ý¿øÁ¾ÇÕû»ç
´ëÇ¥ : 031)210-1114, ¾ß°£ : 031)210-1111
°üÇÒÁö¿ª : ¼ö¿ø½Ã, ¿À»ê½Ã, È­¼º½Ã, ¿ëÀνÃ

µî±â¼Ò ¼ö¿øÁö¹æ¹ý¿ø º»¿ø È­¼ºµî±â¼Ò (´ëÇ¥:1544-0773, ÆÑ½º:(031)375-3964, °æ±âµµ ¿À»ê½Ã ¹ý¿ø·Î 65 (±Èµ¿ 662))
¼¼¹«¼­ µ¿¼ö¿ø¼¼¹«¼­ (´ëÇ¥:031-695-42, ÆÑ½º:031-273-2416, °æ±âµµ ¼ö¿ø½Ã ¿µÅ뱸 û¸í³²·Î 13 (¿µÅ뵿))

Àαٳ«ÂûÅë°è

±â°£ ¸Å°¢°Ç¼ö Æò±Õ°¨Á¤°¡
Æò±Õ¸Å°¢°¡
¸Å°¢°¡À²
Æò±ÕÀ¯Âû¼ö


º» °æ¸ÅÁ¤º¸´Â ¹ý¿øÀÚ·á¿Í ÀÏÄ¡Çϵµ·Ï ÇÏ¿´À¸³ª ±Ç¸®»çÇ׺¯µ¿, ÀÔ·ÂÂø¿À µîÀÇ ¿øÀÎÀ¸·Î »ç½Ç°ú ´Ù¸¦ ¼ö ÀÖ½À´Ï´Ù. ÀÌ¿ë¾à°ü¿¡ ÀǰЏéÃ¥Á¶°ÇÀ¸·Î Á¦°øµÊÀ» ¾Ë¸®¸ç, °æ¸ÅÀÔÂû½Ã ¹Ýµå½Ã °ü·Ã °øºÎ¸¦ ÀçÈ®ÀÎÇϽñ⠹ٶø´Ï´Ù. º¸´Ù Æí¸®ÇÑ °æ¸ÅÁ¤º¸ Á¦°øÀ» À§ÇØ Áö¼ÓÀûÀ¸·Î °³¼±ÇϰڽÀ´Ï´Ù. ÀÌ¿ëÇØ Áּż­ °¨»çÇÕ´Ï´Ù.