·Î±×ÀÎ
131
¿ÀÇǽºÅÚ
ºÎ»êÁö¹æ¹ý¿ø
 °¨Á¤°¡125,000,000 ¿ø
 ÃÖÀú°¡(100%) 125,000,000 ¿ø
 º¸Áõ±Ý(10%) 12,500,000 ¿ø
 Ã»±¸¾×93,294,176 ¿ø
ºÎ»ê±¤¿ª½Ã ºÎ»êÁø±¸ ÀüÆ÷µ¿ 143-3 4Ãþ402È£
»ç°Ç¹øÈ£ 2025Ÿ°æ1480
°æ¸ÅÁ¾·ùºÎµ¿»êÀÓÀǰæ¸Å
¸Å°¢´ë»óÅäÁö ¹× °Ç¹°Àϰý ¸Å°¢
¸Å°¢±âÀÏ    2026.02.27(±Ý) 10:00    
ÅäÁö¸éÀû3.62§³(1.10 Æò)
°Ç¹°¸éÀû24.52§³(7.42 Æò)
乫/¼ÒÀ¯ÀÚ¼ÛOO / ¼ÛOO
ä±ÇÀÚÁÖOOO OOOO
ÆäÀ̽ººÏ Æ®À§ÅÍ ±¸±Û+
īī¿À½ºÅ丮
īī¿ÀÅå sms¹®ÀÚº¸³»±â
 

±âÀϳ»¿ª

°æ°ú ³¯Â¥ Àú°¨ ÃÖÀú°¡ °á°ú
Á¢¼öÀÏ 2025-04-11 °æ¸ÅÁ¢¼ö
~3ÀÏ 
2025-04-14 °æ¸Å°³½Ã°áÁ¤
~87ÀÏ 
2025-07-07 ¹è´ç¿ä±¸Á¾±âÀÏ
~322ÀÏ 
2026-02-27 100%
125,000,000
ÁøÇà
¹°°Ç¸í¼¼¼­ ÇöȲÁ¶»ç¼­ ¹®°ÇÁ¢¼ö ¼Û´Þ³»¿ª

°¨Á¤Æò°¡ÇöȲ

¸ñ·Ï ÁÖ¼Ò ±¸Á¶/¿ëµµ/´ëÁö±Ç ¸éÀû ºñ°í
´ëÁö±Ç
ÀüÆ÷µ¿ 143-3 482.3ºÐÀÇ 3.6199 3.6199 §³
(1.10Æò)
°Ç¹°
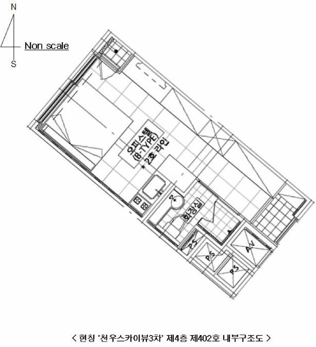
ÀüÆ÷µ¿ 143-3 4Ãþ402È£ ö±ÙÄÜÅ©¸®Æ®±¸Á¶ 24.52 §³
(7.42Æò)
 
1) À§Ä¡/ÀϹݻó¾÷Áö¿ª/Áö±¸´ÜÀ§°èȹ±¸¿ª/¹ö½ºÁ¤·ùÀå/ö±ÙÄÜÅ©¸®Æ®±¸Á¶/µµ½Ã°¡½º/°³º°³­¹æ ´õº¸±â
°¨Á¤Æò°¡ ¿äÇ×Ç¥
1)À§Ä¡ ¹× ÁÖÀ§È¯°æ
º»°ÇÀº ºÎ»ê±¤¿ª½Ã ºÎ»êÁø±¸ ÀüÆ÷µ¿ ¼ÒÀç '¼ºÀüÃʵîÇб³' ºÏÃø Àαٿ¡ À§Ä¡ÇÏ´Â ÇöĪ ""õ¿ì½ºÄ«À̺ä3Â÷"" Á¦4Ãþ Á¦402È£·Î¼­, ÁÖÀ§´Â ´ë´ÜÀ§ ¾ÆÆÄÆ®´ÜÁö, ¿ÀÇǽºÅÚ, ´Üµ¶ÁÖÅÃ, °¢Á¾ ±Ù¸°»ýȰ½Ã¼³ µîÀ¸·Î Çü¼ºµÇ¾î ÀÖ´Â Áö¿ªÀ¸·Î¼­, Á¦¹Ý ÁÖÀ§È¯°æÀº º¸ÅëÀÔ´Ï´Ù.
2)±³Åë»óȲ
º»°Ç±îÁö Â÷·®Á¢±Ù °¡´ÉÇϸç, Àαٿ¡ ¹ö½ºÁ¤·ùÀå ¹× ºÎ»êµµ½Ãöµµ(ºÎÀü¿ª)ÀÌ ¼ÒÀçÇÏ´Â µî Àç¹Ý ±³Åë»óȲÀº ¹«³­ÇÑ ÆíÀÔ´Ï´Ù.
3)°Ç¹°ÀÇ ±¸Á¶
ö±ÙÄÜÅ©¸®Æ®±¸Á¶ (ö±Ù)ÄÜÅ©¸®Æ®(½½·¡ºê)ÁöºØ Áö»ó15Ãþ °Ç¹°³» Á¦4Ãþ Á¦402È£·Î¼­,
- ¿Ü º®: ¸ôÅ»À§ÆäÀÎÆÃ ¹× ¼®ÀçºÙÀÓ ¸¶°¨,
- â È£: ¼¦½ÃâÀÔ´Ï´Ù.
4)ÀÌ¿ë»óÅÂ
ÁÖ°Å¿ë ¿ÀÇǽºÅÚ·Î ÀÌ¿ëÁßÀÔ´Ï´Ù.
5)¼³ºñ³»¿ª
À§»ý ¹× ±Þ¡¤¹è¼ö¼³ºñ, È­ÀçŽÁö ¹× °æº¸¼­¸³, ¼ÒÈ­Àü¼³ºñ, ÁÖÂ÷Ÿ¿ö¼³ºñ, µµ½Ã°¡½º¿¡ ÀÇÇÑ °³º°³­¹æ¼³ºñ µîÀÌ µÇ¾î ÀÖ½À´Ï´Ù.


6)ÅäÁöÀÇ Çü»ó ¹× ÀÌ¿ë»óÅÂ
ÀÎÁ¢Áö ´ëºñ ´ëü·Î µî°íÆòźÇÑ ÀÏ´ÜÀÇ ÅäÁö·Î¼­, ÁÖ»ó¿ë °ÇºÎÁö·Î ÀÌ¿ëÁßÀÔ´Ï´Ù.
7)ÀÎÁ¢ µµ·Î»óŵî
º»°Ç ºÏ¼­ÃøÀ¸·Î ¿Õº¹4Â÷·ÎÀÇ ±¤´ë·Î, ³²µ¿ÃøÀ¸·Î ³ëÆø ¾à8m ³»¿ÜÀÇ ¼Ò·Î¿¡ °¢°¢ Á¢ÇÕ´Ï´Ù.
8)ÅäÁöÀÌ¿ë°èȹ ¹× Á¦ÇÑ»óÅÂ
ÀϹݻó¾÷Áö¿ª, ¹æÈ­Áö±¸, ½Ã°¡Áö°æ°üÁö±¸, Áö±¸´ÜÀ§°èȹ±¸¿ª(2014-01-29), ´ë·Î1·ù(Æø 35m~40m)(Á¢ÇÕ), ¼Ò·Î3·ù(Æø 8m ¹Ì¸¸)(2014-01-29)(Á¢ÇÕ),
°¡·Î±¸¿ªº° ÃÖ°í³ôÀÌ Á¦ÇÑÁö¿ª(2024-06-12)(±âÁسôÀÌ 120m)<°ÇÃà¹ý>, °¡·Î±¸¿ªº° ÃÖ°í³ôÀÌ Á¦ÇÑÁö¿ª(2024-06-12)(ÃÖ°í³ôÀÌ 170m)<°ÇÃà¹ý>, ¿ª»ç¹®È­È¯°æº¸Á¸Áö¿ª(ÀÚ¼¼ÇÑ »çÇ×Àº ¹®È­Ã¼À°°ú·Î ¹®ÀÇ)<¹®È­À¯»êÀÇ º¸Á¸ ¹× Ȱ¿ë¿¡ °üÇÑ ¹ý·ü>, µµ½Ã°ü¸®°èȹ ÀÔ¾ÈÁßÀÔ´Ï´Ù.
9)°øºÎ¿ÍÀÇ Â÷ÀÌ
¾ø½À´Ï´Ù.
10)±âŸÂü°í»çÇ×(ÀÓ´ë°ü·Ê ¹× ±âŸ)
ÀÓ´ë°ü°è ¹Ì»óÀ̸ç, ±âŸ»çÇ× ¾ø½À´Ï´Ù.

°ÇÃ๰ÇöȲ

¼ÒÀçÁö ºÎ»ê±¤¿ª½Ã ºÎ»êÁø±¸ ÀüÆ÷µ¿ 143-3¹øÁö
´ëÁö¸éÀû 482.3§³
(146.15Æò)
¿¬¸éÀû 5054.84§³
(1531.77Æò)
°ÇÃà¸éÀû 308.09§³
(93.36Æò)
¿ëÀû·ü»êÁ¤
¿¬¸éÀû
4490.65§³
(1360.8Æò)
°ÇÆóÀ² 63.88% ¿ëÀû·ü 931.09%
Áö»óÃþ¼ö 15Ãþ ÁöÇÏÃþ¼ö 2Ãþ
ÁÖ¿ëµµ ¾÷¹«½Ã¼³ ±¸Á¶ ö±ÙÄÜÅ©¸®Æ®±¸Á¶
Âø°øÀÏÀÚ 2017.07.19 »ç¿ë½ÂÀÎÀÏÀÚ 2019.02.25
°ÇÃ๰Ãþº°ÇöȲ [º¸±â]


±¹ÅäºÎ½Ç°Å·¡°¡ ºÎ»ê±¤¿ª½Ã ºÎ»êÁø±¸ ÀüÆ÷µ¿

¡Ü ¸Å¸Å

¸éÀû(§³), ±Ý¾×(¸¸¿ø)

¡Ü Àü¼¼

¸éÀû(§³), ±Ý¾×(¸¸¿ø)

°è¾àÀϰǹ°¸íĪÃþÀü¿ëº¸Áõ±Ý¿ù¼¼°ÇÃà
26.01.30(143-3)527.292,000452019
25.12.31(143-3)627.29500502019
25.12.27(143-3)627.29500552019
25.12.20(143-3)924.521,000452019
25.11.25(143-3)1027.291,000502019
¢Ñ ´õº¸±â

µî±âºÎµîº» ¿ä¾à(°Ç¹°)

  Á¢¼öÀÏÀÚ µî±â¸ñÀû/±Ç¸®ÀÚ ±Ç¸®±Ý¾× ±âÁØ
1 2021³â8¿ù3ÀÏ
¼ÒÀ¯±Ç
¼ÛOO
¼Ò¸ê
2 2021³â8¿ù3ÀÏ
±ÙÀú´ç±Ç
(OOOO
99,000,000 ¼Ò¸ê±âÁØ
3 2025³â4¿ù14ÀÏ
ÀÓÀǰæ¸Å
(OOOO
¼Ò¸ê

ÀÓÂ÷ÀÎÇöȲ (¹è´ç¿ä±¸Á¾±âÀÏ: 2025-07-07)

ÀÓÂ÷ÀÎ ¿ëµµ/Á¡À¯ º¸Áõ±Ý/¿ù¼¼ ´ëÇ×·Â
ÀüÀÔÀÏ/È®Á¤ÀÏ ¹è´ç¿ä±¸ ºñ°í
±èOO 402È£ 10,000,000
[¿ù]450,000
X
2022.06.09.
2022.07.28.
2025.5.15.  

¿©ÀÇÁÖ°æ¸Å Á¶¾ð ÇÑ ¸¶µð


ÁÖÀÇ»çÇ× (ÃÖ¼±¼øÀ§ ¼³Á¤ÀÏ: 2021. 8. 3. ±ÙÀú´ç±Ç ¼³Á¤)

¸Å°¢À¸·Î ¼Ò¸êµÇÁö ¾Ê´Â µî±âºÎ±Ç¸®:
¸Å°¢À¸·Î ¼³Á¤µÈ °ÍÀ¸·Î º¸´Â Áö»ó±Ç:
¡Ø¹Ì³³°ü¸®ºñ(°ø¿ë) Àμö¿©ºÎ¸¦ ÀÔÂû Àü¿¡ È®ÀÎÇϽñ⠹ٶø´Ï´Ù

 

Áö¿ªºÐ¼®

ÁöÇÏö¸í Á÷¼±°Å¸®

Çб³¸í ÀüÈ­¹øÈ£ ÁÖ¼Ò Á÷¼±°Å¸®

¹ý¿ø

ºÎ»êÁö¹æ¹ý¿ø (475-10)ºÎ»ê±¤¿ª½Ã ¿¬Á¦±¸ ¹ý¿ø·Î 31(°ÅÁ¦µ¿ 1500)
´ëÇ¥ : 051)590-1114, ¾ß°£ : 051)590-1112
°üÇÒÁö¿ª : Áß±¸, ¼­±¸(µî±â¸¸), µ¿±¸, ¿µµµ±¸, ºÎ»êÁø±¸, µ¿·¡±¸, ¿¬Á¦±¸, ±ÝÁ¤±¸

µî±â¼Ò ºÎ»êÁö¹æ¹ý¿ø º»¿ø ºÎ»êÁøµî±â¼Ò (´ëÇ¥:1544-0773, ÆÑ½º:(051)804-6292, ºÎ»ê±¤¿ª½Ã ºÎ»êÁø±¸ Áß¾Ó´ë·Î783¹ø±æ 9 (ºÎÀüµ¿ 573-5))
¼¼¹«¼­ ºÎ»êÁø¼¼¹«¼­ (´ëÇ¥:051-461-92, ÆÑ½º:051-467-1969, ºÎ»ê±¤¿ª½Ã µ¿±¸ Áø¼º·Î 23 (¼öÁ¤µ¿ 247-7))

Àαٳ«ÂûÅë°è

±â°£ ¸Å°¢°Ç¼ö Æò±Õ°¨Á¤°¡
Æò±Õ¸Å°¢°¡
¸Å°¢°¡À²
Æò±ÕÀ¯Âû¼ö


º» °æ¸ÅÁ¤º¸´Â ¹ý¿øÀÚ·á¿Í ÀÏÄ¡Çϵµ·Ï ÇÏ¿´À¸³ª ±Ç¸®»çÇ׺¯µ¿, ÀÔ·ÂÂø¿À µîÀÇ ¿øÀÎÀ¸·Î »ç½Ç°ú ´Ù¸¦ ¼ö ÀÖ½À´Ï´Ù. ÀÌ¿ë¾à°ü¿¡ ÀǰЏéÃ¥Á¶°ÇÀ¸·Î Á¦°øµÊÀ» ¾Ë¸®¸ç, °æ¸ÅÀÔÂû½Ã ¹Ýµå½Ã °ü·Ã °øºÎ¸¦ ÀçÈ®ÀÎÇϽñ⠹ٶø´Ï´Ù. º¸´Ù Æí¸®ÇÑ °æ¸ÅÁ¤º¸ Á¦°øÀ» À§ÇØ Áö¼ÓÀûÀ¸·Î °³¼±ÇϰڽÀ´Ï´Ù. ÀÌ¿ëÇØ Áּż­ °¨»çÇÕ´Ï´Ù.