·Î±×ÀÎ
130
ÁÖÅÃ
¼ö¿øÁö¹æ¹ý¿ø ¼º³²Áö¿ø
 °¨Á¤°¡430,026,300 ¿ø
 ÃÖÀú°¡(100%) 430,026,300 ¿ø
 º¸Áõ±Ý(10%) 43,002,630 ¿ø
 Ã»±¸¾×286,111,326 ¿ø
°æ±âµµ ±¤Áֽà ÃÊ¿ùÀ¾ ¿ë¼ö¸® 67-19
»ç°Ç¹øÈ£ 2024Ÿ°æ67592
°æ¸ÅÁ¾·ùºÎµ¿»êÀÓÀǰæ¸Å
¸Å°¢´ë»óÅäÁö ¹× °Ç¹°Àϰý¸Å°¢
¸Å°¢±âÀÏ    2026.02.27(±Ý) 10:00    
ÅäÁö¸éÀû330.00§³(99.83 Æò)
°Ç¹°¸éÀû235.86§³(71.35 Æò)
乫/¼ÒÀ¯ÀÚÀÌOO / ÀÌOO
ä±ÇÀÚÇöOOOO OOOO
ÆäÀ̽ººÏ Æ®À§ÅÍ ±¸±Û+
īī¿À½ºÅ丮
īī¿ÀÅå sms¹®ÀÚº¸³»±â
 

±âÀϳ»¿ª

°æ°ú ³¯Â¥ Àú°¨ ÃÖÀú°¡ °á°ú
Á¢¼öÀÏ 2024-10-04 °æ¸ÅÁ¢¼ö
~6ÀÏ 
2024-10-10 °æ¸Å°³½Ã°áÁ¤
~73ÀÏ 
2024-12-16 ¹è´ç¿ä±¸Á¾±âÀÏ
~511ÀÏ 
2026-02-27 100%
430,026,300
ÁøÇà
¹°°Ç¸í¼¼¼­ ÇöȲÁ¶»ç¼­ ¹®°ÇÁ¢¼ö ¼Û´Þ³»¿ª

°¨Á¤Æò°¡ÇöȲ

¸ñ·Ï ÁÖ¼Ò ±¸Á¶/¿ëµµ/´ëÁö±Ç ¸éÀû ºñ°í
ÅäÁö
¿ë¼ö¸® 67-19 ´ë 330 §³
(99.83Æò)
°Ç¹°
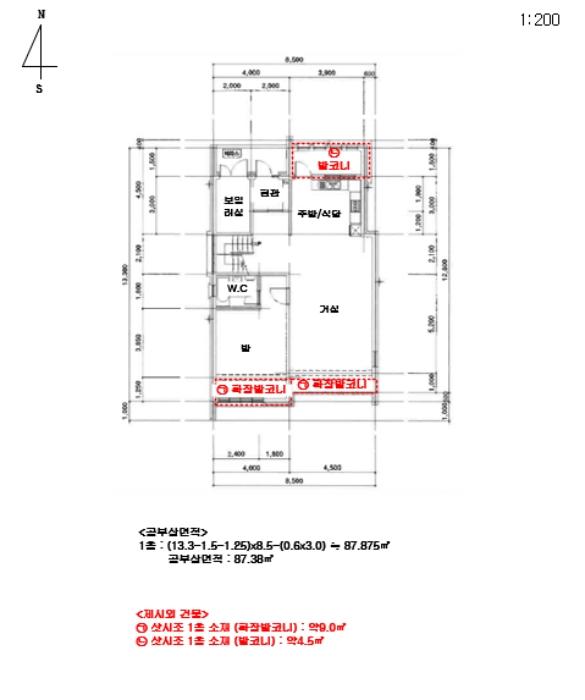
¿ë¼ö¸® 67-19 1Ãþ ÁÖÅà ö±ÙÄÜÅ©¸®Æ®±¸Á¶ 87.38 §³
(26.43Æò)
 
¿ë¼ö¸® 67-19 2Ãþ ÁÖÅà ö±ÙÄÜÅ©¸®Æ®±¸Á¶ 104.08 §³
(31.48Æò)
 
Á¦½Ã¿Ü
°Ç¹°
¿ë¼ö¸® 67-19 È®ÀåÇü ¹ßÄÚ´Ï 9 §³
(2.72Æò)
 
¿ë¼ö¸® 67-19 ¹ßÄÚ´Ï 4.5 §³
(1.36Æò)
 
¿ë¼ö¸® 67-19 È®ÀåÇü ¹ßÄÚ´Ï 16.2 §³
(4.90Æò)
 
¿ë¼ö¸® 67-19 ¹ßÄÚ´Ï 6.3 §³
(1.91Æò)
 
¿ë¼ö¸® 67-19 °è´Ü½Ç ij³ëÇÇ 8.4 §³
(2.54Æò)
 
1) À§Ä¡/°èȹ°ü¸®Áö¿ª/Â÷·®ÀÇ Á¢±ÙÀÌ °¡´É/³ë¼±¹ö½ºÁ¤·ùÀå/ö±ÙÄÜÅ©¸®Æ®±¸Á¶ ´õº¸±â
°¨Á¤Æò°¡ ¿äÇ×Ç¥
1)À§Ä¡ ¹× ÁÖÀ§È¯°æ
°æ±âµµ ±¤Áֽà ÃÊ¿ùÀ¾ ¿ë¼ö¸® ¼ÒÀç "¿ë¼ö1¸® ¸¶À»È¸°ü" ºÏ¼­Ãø Àαٿ¡ À§Ä¡Çϸç,ºÎ±ÙÀº ´Üµ¶ÁÖÅÃ, °øÀå ¹× ÀÓ¾ß µîÀÌ ¼ÒÀçÇÏ´Â Áö¿ªÀ¸·Î¼­, Á¦¹Ý ÁÖÀ§È¯°æÀº º¸ÅëÀÓ.
2)±³Åë»óȲ
º»°Ç±îÁö Â÷·®ÀÇ Á¢±ÙÀÌ °¡´ÉÇϰí, Àαٿ¡ ³ë¼±¹ö½ºÁ¤·ùÀåÀÌ ¼ÒÀçÇÏ´Â µî Àü¹ÝÀûÀÎ ´ëÁß±³Åë ÀÌ¿ëÆíÀǵµ´Â º¸ÅëÀÓ.
3)ÇüÅ ¹× ÀÌ¿ë»óÅÂ
¿Ï°æ»ç Áö´ë ³» ÀÚüÁö¹ÝÀº ´ëü·Î ÆòźÇÏ°Ô Á¶¼ºµÈ »ç´Ù¸®Çü ÅäÁö·Î¼­, ÁÖ°Å¿ë °ÇºÎÁö·Î ÀÌ¿ëÁßÀÓ.
4)ÀÎÁ¢ µµ·Î»óÅÂ
µ¿Ãø¿¡¼­ ¼­ÃøÀ¸·Î À̾îÁö´Â Æø ¾à 6m ³»¿ÜÀÇ Æ÷Àåµµ·Î¿Í Á¢ÇÔ.
5)ÅäÁöÀÌ¿ë°èȹ ¹× Á¦ÇÑ»óÅÂ
°èȹ°ü¸®Áö¿ª(°èȹ°ü¸®), ¼ºÀå°ü¸®°èȹ±¸¿ª(¼ºÀå°ü¸®Áö¿ª(ÁÖ°ÅÇü)), °¡Ãà»çÀ°Á¦Çѱ¸¿ª(ÀϺÎÁ¦Çѱ¸¿ª)<°¡ÃàºÐ´¢ÀÇ °ü¸® ¹× À̿뿡 °üÇÑ ¹ý·ü>, ¹èÃâ½Ã¼³¼³Ä¡Á¦ÇÑÁö¿ª<¹°È¯°æº¸Àü¹ý>, ÀÚ¿¬º¸Àü±Ç¿ª<¼öµµ±ÇÁ¤ºñ°èȹ¹ý>, °øÀå¼³¸³½ÂÀÎÁö¿ª<¼öµµ¹ý>, Ưº°´ëÃ¥Áö¿ª<ȯ°æÁ¤Ã¥±âº»¹ý>
6)Á¦½Ã¸ñ·Ï ¿ÜÀÇ ¹°°Ç
Èĸé "°Ç¹°°¨Á¤Æò°¡¿äÇ×Ç¥" ÂüÁ¶
7)°øºÎ¿ÍÀÇ Â÷ÀÌ
ÀϹݰÇÃ๰´ëÀå(°©)¿¡ ¹«µé·Î 147¹ø±æ 85-35·Î µÇ¾îÀִ¹Ù,
ÀÌ´Â °Ç¹°µî±â»çÇ×ÀüºÎÁõ¸í¼­(¸»¼Ò»çÇ× Æ÷ÇÔ) Ç¥Á¦ºÎ(°Ç¹°ÀÇ Ç¥½Ã,¹«µé·Î 147¹ø±æ 85-37)¿Í ºÒÀÏÄ¡ ÇÔ.
8)±âŸÂü°í»çÇ×(ÀÓ´ë°ü·Ê ¹× ±âŸ)
ÀÓ´ë°ü°è ¹Ì»óÀÓ.
1)°Ç¹°ÀÇ ±¸Á¶
2011³â 05¿ù 11ÀÏ »ç¿ë½ÂÀÎµÈ Ã¶±ÙÄÜÅ©¸®Æ®±¸Á¶ 2Ãþ °Ç¹°·Î¼­,
¿Üº®: ¿Üº® ÆäÀÎÆÃ ¸¶°¨
âȣ: ÇÏÀÌ»õ½Ã âȣ µîÀÓ.
2)ÀÌ¿ë»óÅÂ
´Üµ¶ÁÖÅÃ(¹æ, °Å½Ç, ¿å½Ç, ÁÖ¹æ ¹× ½Ä´ç µî)À¸·Î ÀÌ¿ëÁßÀÓ.
3)¼³ºñ³»¿ª
À§»ý ¹× ±Þ¹è¼ö¼³ºñ, ³­¹æ¼³ºñ µîÀÌ µÇ¾î ÀÖÀ½.
4)ºÎÇÕ¹° ¹× Á¾¹°
Èĸé "°Ç¹°°³È²µµ ¹× ³»ºÎ±¸Á¶µµ" ÂüÁ¶
5)°øºÎ¿ÍÀÇ Â÷ÀÌ
µµ·Î¸í ÁÖ¼Ò »óÀÌ(ÀϹݰÇÃ๰´ëÀå°ú °Ç¹°µî±â»çÇ×ÀüºÎÁõ¸í¼­»ó µµ·Î¸í ÁÖ¼Ò »óÀÌ)
6)±âŸÂü°í»çÇ×(ÀÓ´ë°ü·Ê ¹× ±âŸ)
1) ÀÓ´ë°ü°è: ¹Ì»ó
2) ±âŸ: ÇöÀåÁ¶»ç½Ã Æó¹® ºÎÀç·Î ³»ºÎÁ¶»ç ºÒ°¡·Î °øºÎ ±âÁØÇÏ¿© ÀÛ¼ºÇÏ¿´À½.
Âü°í
»çÇ×
1. Àϰý¸Å°¢. Á¦½Ã¿Ü °Ç¹° ¸Å°¢¿¡ Æ÷ÇÔ Æò°¡ÇÔ. 2. ´Üµ¶ÁÖÅÃÀ¸·Î ÀÌ¿ëÁßÀÓ. °ÇÃ๰´ëÀå°ú °Ç¹°µî±â»çÇ×Áõ¸í¼­»ó µµ·Î¸íÁÖ¼Ò°¡ »óÀÌÇÏ´Ï °³º°È®Àοä¸Á.
- º»°Ç ºÎµ¿»êÀÇ ¸ñ·ÏÀº [¿ë¼ö¸® 67-19(¹«µé·Î 147¹ø±æ 85-37)]·Î Ç¥½ÃµÇ¾î ÀÖÀ¸³ª ÅäÁö¿Í µµ·Î¸í ÁÖ¼Ò°¡ ºÒÀÏÄ¡Çϰí ÇöȲµµ [¿ë¼ö¸® 67-19] Áö¹ø¿¡ [¹«µé·Î 147¹ø±æ 85-35]ÀÇ °Ç¹°ÀÌ ÀÖÀ¸¸ç 乫ÀÚµµ ÇöȲ ÁÖ¼Ò¿¡ °ÅÁÖÇϰí ÀÖÀ½. ºÎµ¿»êÇ¥½Ã È®ÀÎÈÄ ÀçÁ¶»ç ¿ä¸Á(÷ºÎ»çÁøÀº 乫ÀÚ ½ÇÁ¦°ÅÁÖÁö [¿ë¼ö¸® 67-19(¹«µé·Î 147¹ø±æ 85-35)]ÀÇ °Ç¹°ÀÓ.

°ÇÃ๰ÇöȲ

¼ÒÀçÁö °æ±âµµ ±¤Áֽà ÃÊ¿ùÀ¾ ¿ë¼ö¸® 67-19¹øÁö
´ëÁö¸éÀû 330§³
(100Æò)
¿¬¸éÀû 191.46§³
(58.02Æò)
°ÇÃà¸éÀû 126.74§³
(38.41Æò)
¿ëÀû·ü»êÁ¤
¿¬¸éÀû
191.46§³
(58.02Æò)
°ÇÆóÀ² 38.41% ¿ëÀû·ü 58.02%
Áö»óÃþ¼ö 2Ãþ ÁöÇÏÃþ¼ö  
ÁÖ¿ëµµ ´Üµ¶ÁÖÅà ±¸Á¶ ö±ÙÄÜÅ©¸®Æ®±¸Á¶
Âø°øÀÏÀÚ »ç¿ë½ÂÀÎÀÏÀÚ 2011.05.11
°ÇÃ๰Ãþº°ÇöȲ [º¸±â]


±¹ÅäºÎ½Ç°Å·¡°¡ °æ±âµµ ±¤Áֽà ÃÊ¿ùÀ¾

¡Ü ¸Å¸Å

¸éÀû(§³), ±Ý¾×(¸¸¿ø)

¡Ü Àü¼¼

¸éÀû(§³), ±Ý¾×(¸¸¿ø)

°è¾àÀÏ¿¬¸éÀûº¸Áõ±Ý¿ù¼¼°ÇÃà
26.02.09502,000492016
26.02.0626.5300402010
26.02.05454,500432015
26.02.02304,00002011
26.02.0224.486,50002010
¢Ñ ´õº¸±â

µî±âºÎµîº» ¿ä¾à(ÅäÁö)

  Á¢¼öÀÏÀÚ µî±â¸ñÀû/±Ç¸®ÀÚ ±Ç¸®±Ý¾× ±âÁØ
1 2007³â7¿ù9ÀÏ
¼ÒÀ¯±Ç
ÀÌOO
¼Ò¸ê
2 2021³â1¿ù28ÀÏ
±ÙÀú´ç±Ç
ÇöOOOO
373,100,000 ¼Ò¸ê±âÁØ
3 2023³â7¿ù3ÀÏ
±ÙÀú´ç±Ç
Á¤OO
144,000,000 ¼Ò¸ê
4 2024³â8¿ù12ÀÏ
°¡¾Ð·ù
¼ÒOOOO
12,777,840 ¼Ò¸ê
5 2024³â10¿ù10ÀÏ
ÀÓÀǰæ¸Å
ÇöOOOO
¼Ò¸ê
6 2024³â11¿ù12ÀÏ
°¡¾Ð·ù
·ÔOOOO
10,612,638 ¼Ò¸ê
7 2026³â1¿ù7ÀÏ
¾Ð·ù
±¹
¼Ò¸ê

µî±âºÎµîº» ¿ä¾à(°Ç¹°)

  Á¢¼öÀÏÀÚ µî±â¸ñÀû/±Ç¸®ÀÚ ±Ç¸®±Ý¾× ±âÁØ
1 2011³â5¿ù31ÀÏ
¼ÒÀ¯±Ç
ÀÌOO
¼Ò¸ê
2 2021³â1¿ù28ÀÏ
±ÙÀú´ç±Ç
ÇöOOOO
373,100,000 ¼Ò¸ê±âÁØ
3 2023³â7¿ù3ÀÏ
±ÙÀú´ç±Ç
Á¤OO
144,000,000 ¼Ò¸ê
4 2024³â8¿ù12ÀÏ
°¡¾Ð·ù
¼ÒOOOO
12,777,840 ¼Ò¸ê
5 2024³â10¿ù10ÀÏ
ÀÓÀǰæ¸Å
ÇöOOOO
¼Ò¸ê
6 2024³â11¿ù12ÀÏ
°¡¾Ð·ù
·ÔOOOO
10,612,638 ¼Ò¸ê
7 2026³â1¿ù7ÀÏ
¾Ð·ù
±¹
¼Ò¸ê

ÀÓÂ÷ÀÎÇöȲ (¹è´ç¿ä±¸Á¾±âÀÏ: 2024-12-16)


Á¶»çµÈ ÀÓÂ÷³»¿ªÀÌ ¾ø½À´Ï´Ù.


¿©ÀÇÁÖ°æ¸Å Á¶¾ð ÇÑ ¸¶µð

Á¦½Ã¿Ü ¹°°ÇÀÌ Æ÷ÇԵǾî ÀÖ½À´Ï´Ù
¡®Á¦½Ã¿Ü ¹°°Ç¡¯Àº ÇØ´ç °øºÎ»ó¿¡´Â Á¸ÀçÇÏÁö ¾ÊÁö¸¸, ÇöÀå¿¡ Á¸Àç°¡ È®ÀεǴ ¿©·¯ ÇüÅÂÀÇ °Ç¹°, ±â°è±â±¸ µîÀ» ¸»ÇÕ´Ï´Ù. ÀÌµé ´ëºÎºÐÀº ¹«Çã°¡, ¹«½Å°íÀ̰ųª »ç¿ë½ÂÀÎÀ» ¹ÞÁö ¾ÊÀº °ÍÀÔ´Ï´Ù. ¡®Á¦½Ã¿Ü ¹°°Ç¡¯ÀÌ °æ¸Å´ë»ó¿¡ Æ÷ÇԵǾî ÀÖ´Ù¸é ³«ÂûÀÚÀÇ ¼ÒÀ¯±Ç Ãëµæ¿¡´Â ¾Æ¹«·± ¹®Á¦°¡ ¾ø½À´Ï´Ù.

ÁÖÀÇ»çÇ× (ÃÖ¼±¼øÀ§ ¼³Á¤ÀÏ: 2021.01.28. ±ÙÀú´ç±Ç ¼³Á¤ (¸ñ·Ï1,2))

¸Å°¢À¸·Î ¼Ò¸êµÇÁö ¾Ê´Â µî±âºÎ±Ç¸®:
¸Å°¢À¸·Î ¼³Á¤µÈ °ÍÀ¸·Î º¸´Â Áö»ó±Ç:
1. Àϰý¸Å°¢. Á¦½Ã¿Ü °Ç¹° ¸Å°¢¿¡ Æ÷ÇÔ Æò°¡ÇÔ. 2. ´Üµ¶ÁÖÅÃÀ¸·Î ÀÌ¿ëÁßÀÓ. °ÇÃ๰´ëÀå°ú °Ç¹°µî±â»çÇ×Áõ¸í¼­»ó µµ·Î¸íÁÖ¼Ò°¡ »óÀÌÇÏ´Ï °³º°È®Àοä¸Á.
¡Ø¹Ì³³°ü¸®ºñ(°ø¿ë) Àμö¿©ºÎ¸¦ ÀÔÂû Àü¿¡ È®ÀÎÇϽñ⠹ٶø´Ï´Ù

 

Áö¿ªºÐ¼®

ÁöÇÏö¸í Á÷¼±°Å¸®

Çб³¸í ÀüÈ­¹øÈ£ ÁÖ¼Ò Á÷¼±°Å¸®

¹ý¿ø

¼ö¿øÁö¹æ¹ý¿ø ¼º³²Áö¿ø (131-43)°æ±âµµ ¼º³²½Ã ¼öÁ¤±¸ »ê¼º´ë·Î 451 (´Ü´ëµ¿)
´ëÇ¥ : 031)737-1558, ¾ß°£ : 031)737-1120
°üÇÒÁö¿ª : ¼º³²½Ã, ±¤ÁÖ½Ã, Çϳ²½Ã

µî±â¼Ò ¼ö¿øÁö¹æ¹ý¿ø ¼º³²Áö¿ø ±¤ÁÖµî±â¼Ò (´ëÇ¥:1544-0773, ÆÑ½º:(031)765-2388, °æ±âµµ ±¤Áֽà ÇàÁ¤Å¸¿î·Î 49-15 (¼ÛÁ¤µ¿ 346-4))
¼¼¹«¼­ °æ±â±¤ÁÖ¼¼¹«¼­ (´ëÇ¥:031-880-92, ÆÑ½º:031-769-0417, °æ±âµµ ±¤Áֽà ¹®È­·Î 127)

Àαٳ«ÂûÅë°è

±â°£ ¸Å°¢°Ç¼ö Æò±Õ°¨Á¤°¡
Æò±Õ¸Å°¢°¡
¸Å°¢°¡À²
Æò±ÕÀ¯Âû¼ö


º» °æ¸ÅÁ¤º¸´Â ¹ý¿øÀÚ·á¿Í ÀÏÄ¡Çϵµ·Ï ÇÏ¿´À¸³ª ±Ç¸®»çÇ׺¯µ¿, ÀÔ·ÂÂø¿À µîÀÇ ¿øÀÎÀ¸·Î »ç½Ç°ú ´Ù¸¦ ¼ö ÀÖ½À´Ï´Ù. ÀÌ¿ë¾à°ü¿¡ ÀǰЏéÃ¥Á¶°ÇÀ¸·Î Á¦°øµÊÀ» ¾Ë¸®¸ç, °æ¸ÅÀÔÂû½Ã ¹Ýµå½Ã °ü·Ã °øºÎ¸¦ ÀçÈ®ÀÎÇϽñ⠹ٶø´Ï´Ù. º¸´Ù Æí¸®ÇÑ °æ¸ÅÁ¤º¸ Á¦°øÀ» À§ÇØ Áö¼ÓÀûÀ¸·Î °³¼±ÇϰڽÀ´Ï´Ù. ÀÌ¿ëÇØ Áּż­ °¨»çÇÕ´Ï´Ù.