·Î±×ÀÎ
2194
´Ù¼¼´ë(ºô¶ó)
¼­¿ïºÏºÎÁö¹æ¹ý¿ø
 °¨Á¤°¡155,000,000 ¿ø
 ÃÖÀú°¡(64%) 99,200,000 ¿ø
 º¸Áõ±Ý(10%) 9,920,000 ¿ø
 Ã»±¸¾×130,000,000 ¿ø
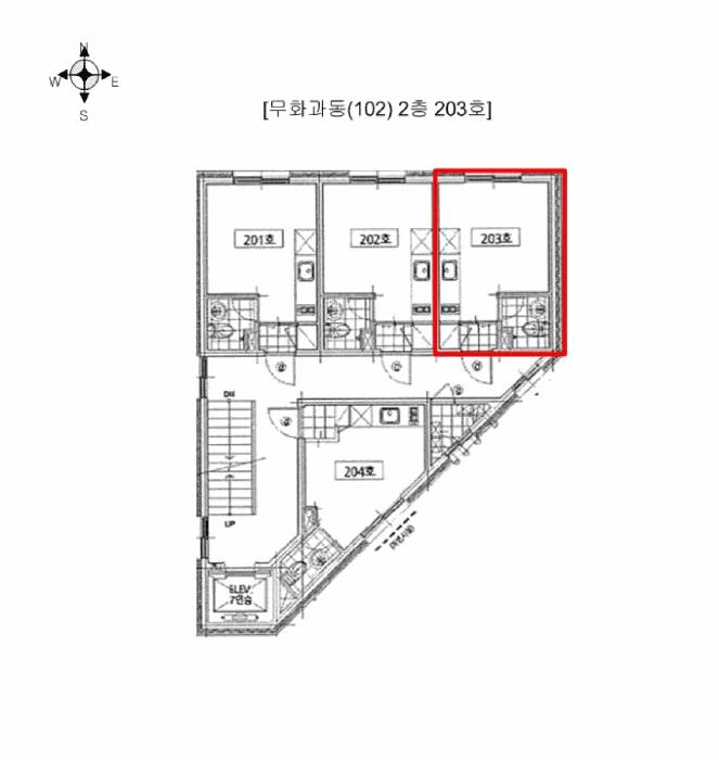
¼­¿ïƯº°½Ã ¼ººÏ±¸ Á¤¸ªµ¿ 685-13 ¹«È­°úµ¿(102) 2Ãþ 203È£
»ç°Ç¹øÈ£ 2025Ÿ°æ12255
°æ¸ÅÁ¾·ùºÎµ¿»ê°­Á¦°æ¸Å
¸Å°¢´ë»óÅäÁö ¹× °Ç¹°Àϰý ¸Å°¢
¸Å°¢±âÀÏ    2026.06.09(È­) 10:00 ÀÔÂû 9ÀÏÀü    
ÅäÁö¸éÀû16.75§³(5.07 Æò)
°Ç¹°¸éÀû15.99§³(4.84 Æò)
乫/¼ÒÀ¯ÀÚÁ¤OO / Á¤OO
ä±ÇÀÚÁÖOOOOOOO
ÆäÀ̽ººÏ Æ®À§ÅÍ ±¸±Û+
īī¿À½ºÅ丮
īī¿ÀÅå sms¹®ÀÚº¸³»±â
 

±âÀϳ»¿ª

°æ°ú ³¯Â¥ Àú°¨ ÃÖÀú°¡ °á°ú
Á¢¼öÀÏ 2025-04-01 °æ¸ÅÁ¢¼ö
~1ÀÏ 
2025-04-02 °æ¸Å°³½Ã°áÁ¤
~77ÀÏ 
2025-06-17 ¹è´ç¿ä±¸Á¾±âÀÏ
~331ÀÏ 
2026-02-26 100%
155,000,000
º¯°æ
~364ÀÏ 
2026-03-31 100%
155,000,000
À¯Âû
~401ÀÏ 
2026-05-07 80%
124,000,000
À¯Âû
~434ÀÏ 
2026-06-09 64%
99,200,000
ÁøÇà
¹°°Ç¸í¼¼¼­ ÇöȲÁ¶»ç¼­ ¹®°ÇÁ¢¼ö ¼Û´Þ³»¿ª

°¨Á¤Æò°¡ÇöȲ

¸ñ·Ï ÁÖ¼Ò ±¸Á¶/¿ëµµ/´ëÁö±Ç ¸éÀû ºñ°í
´ëÁö±Ç
Á¤¸ªµ¿ 685-13 167ºÐÀÇ 16.7542 16.7542 §³
(5.07Æò)
°Ç¹°
Á¤¸ªµ¿ 685-13 2Ãþ 203È£ ö±ÙÄÜÅ©¸®Æ®±¸Á¶ 15.99 §³
(4.84Æò)
1) À§Ä¡/µµ½ÃÁö¿ª/Á¦2Á¾ÀϹÝÁÖ°ÅÁö¿ª/¹ö½ºÁ¤·ùÀå/ö±ÙÄÜÅ©¸®Æ®±¸Á¶/°æ»ç½½·¡ºêÁöºØ/°¡½ºº¸ÀÏ·¯ ´õº¸±â
°¨Á¤Æò°¡ ¿äÇ×Ç¥
1)À§Ä¡ ¹× ÁÖÀ§È¯°æ
º»°ÇÀº ¼­¿ïƯº°½Ã ¼ººÏ±¸ Á¤¸ªµ¿ ¼ÒÀç ""Á¤¸ª3µ¿Áֹμ¾ÅÍ"" µ¿Ãø Àαٿ¡ À§Ä¡Çϰí, ºÎ±ÙÀº
°øµ¿ÁÖÅÃ, ´Üµ¶ÁÖÅÃ, ±Ù¸°»ýȰ½Ã¼³ µîÀÌ È¥ÀçÇÏ´Â Áö´ë·Î¼­ ÁÖÀ§È¯°æÀº º¸ÅëÀÓ.
2)±³Åë»óȲ
º»°Ç±îÁö Â÷·®ÃâÀÔÀÌ °¡´ÉÇϰí, Àαٿ¡ ¹ö½ºÁ¤·ùÀå µîÀÌ ¼ÒÀçÇÏ´Â µî ´ëÁß±³Åë ¿©°ÇÀº º¸
ÅëÀÓ.
3)°Ç¹°ÀÇ ±¸Á¶
ö±ÙÄÜÅ©¸®Æ®±¸Á¶ °æ»ç½½·¡ºêÁöºØ 4Ãþ °Ç¹° ³» 2Ãþ 203È£·Î¼­,
¿Üº®: ¼®ÀçºÙÀÓ ¸¶°¨ µî.
³»º®: º®Áö ¹× ÀϺΠŸÀϺÙÀÓ ¸¶°¨ µî.
âȣ: ¼¦½ÃâÀÓ.
4)ÀÌ¿ë»óÅÂ
º»°ÇÀº µµ½ÃÇü»ýȰÁÖÅÃ(´ÜÁöÇü´Ù¼¼´ë)À¸·Î ÀÌ¿ëÁßÀÓ.
(Èĸé ""³»ºÎ±¸Á¶µµ"" ÂüÁ¶)
5)¼³ºñ³»¿ª
°¡½ºº¸ÀÏ·¯¿¡ ÀÇÇÑ ³­¹æ½Ã¼³, À§»ý¼³ºñ, ±Þ¡¤¹è¼ö½Ã¼³, ½Â°­±â µîÀÌ ±¸ºñµÇ¾îÀÖÀ½.


6)ÅäÁöÀÇ Çü»ó ¹× ÀÌ¿ë»óÅÂ
º»°Ç ¼ÒÀç ÅäÁö´Â 4ÇÊÁö ÀÏ´ÜÁöÀÇ ºÎÁ¤ÇüÀÇ ÅäÁö·Î¼­, µµ½ÃÇü»ýȰÁÖÅÃ(´ÜÁöÇü´Ù¼¼´ë)ºÎÁö µî
À¸·Î ÀÌ¿ëÁßÀÓ.
7)ÀÎÁ¢ µµ·Î»óŵî
º»°Ç ¼ÒÀç ÅäÁö(4ÇÊÁö ÀÏ´ÜÁö)´Â ¼¼·Î°¢ÁöÀÇ Æ÷Àåµµ·Î¿¡ Á¢Çϸç, µµ·Î»óÅ º¸ÅëÀÓ.
8)ÅäÁöÀÌ¿ë°èȹ ¹× Á¦ÇÑ»óÅÂ
ÀϷùøÈ£ 1~4 °øÈ÷
µµ½ÃÁö¿ª, Á¦2Á¾ÀϹÝÁÖ°ÅÁö¿ª(7ÃþÀÌÇÏ), °¡Ãà»çÀ°Á¦Çѱ¸¿ª<°¡ÃàºÐ´¢ÀÇ °ü¸® ¹× À̿뿡 °üÇÑ
¹ý·ü>, ´ë°ø¹æ¾îÇùÁ¶±¸¿ª(À§Å¹°íµµ:77-257m)<±º»ç±âÁö ¹× ±º»ç½Ã¼³ º¸È£¹ý>, Á¦ÇѺ¸È£±¸¿ª
(ÈĹæÁö¿ª:500m)<±º»ç±âÁö ¹× ±º»ç½Ã¼³ º¸È£¹ý>, °ú¹Ð¾ïÁ¦±Ç¿ª<¼öµµ±ÇÁ¤ºñ°èȹ¹ý>, ÁßÁ¡°æ
°ü°ü¸®±¸¿ª(2016-11-24)(ÁÖ¿ä»êÁÖº¯).
9)°øºÎ¿ÍÀÇ Â÷ÀÌ
¾ø À½.
10)±âŸÂü°í»çÇ×(ÀÓ´ë°ü·Ê ¹× ±âŸ)
¾ø À½.
Âü°í
»çÇ×

1) ÇöÁö ¹æ¹®ÇÏ¿´À¸³ª Æó¹®ºÎÀç·Î ¾Æ¹«µµ ¸¸³ªÁö ¸øÇÔ. 2) ¾È³»¹®À» ÃâÀÔ¹®¿¡ ºÎÂøÇÏ¿´À¸³ª ¾Æ¹« ¿¬¶ôÀÌ ¾ø¾î Á¡À¯ÀÚ È®ÀÎ ºÒ´ÉÇÔ.

°ÇÃ๰ÇöȲ

¼ÒÀçÁö ¼­¿ïƯº°½Ã ¼ººÏ±¸ Á¤¸ªµ¿ 685-13¹øÁö
´ëÁö¸éÀû 697.51§³
(211.37Æò)
¿¬¸éÀû 723.04§³
(219.1Æò)
°ÇÃà¸éÀû 176.09§³
(53.36Æò)
¿ëÀû·ü»êÁ¤
¿¬¸éÀû
622.93§³
(188.77Æò)
°ÇÆóÀ² 25.25% ¿ëÀû·ü 89.31%
Áö»óÃþ¼ö 4Ãþ ÁöÇÏÃþ¼ö 1Ãþ
ÁÖ¿ëµµ Á¦2Á¾±Ù¸°»ýȰ½Ã¼³ ±¸Á¶ ö±ÙÄÜÅ©¸®Æ®±¸Á¶
Âø°øÀÏÀÚ 1991.09.19 »ç¿ë½ÂÀÎÀÏÀÚ 1992.04.18
°ÇÃ๰Ãþº°ÇöȲ [º¸±â]


±¹ÅäºÎ½Ç°Å·¡°¡ ¼­¿ïƯº°½Ã ¼ººÏ±¸ Á¤¸ªµ¿

¡Ü ¸Å¸Å

¸éÀû(§³), ±Ý¾×(¸¸¿ø)

¡Ü Àü¼¼

¸éÀû(§³), ±Ý¾×(¸¸¿ø)

°è¾àÀϰǹ°¸íĪÃþ¿¬¸éÀûº¸Áõ±Ý¿ù¼¼°ÇÃà
26.05.18Á¤¸ªÇϴø¶·ç322.268,342132020
26.05.18Á¤¸ªÇϴø¶·ç122.264,291162020
26.05.17Á¤¸ªÇϴø¶·ç326.156,210142020
26.05.16Á¤¸ªÇϴø¶·ç319.75,472222020
26.05.16Á¤¸ªÇϴø¶·ç319.74,94882020
¢Ñ ´õº¸±â

µî±âºÎµîº» ¿ä¾à(°Ç¹°)

  Á¢¼öÀÏÀÚ µî±â¸ñÀû/±Ç¸®ÀÚ ±Ç¸®±Ý¾× ±âÁØ
1 2021³â2¿ù1ÀÏ
¼ÒÀ¯±Ç
Á¤OO
¼Ò¸ê
2 2021³â11¿ù12ÀÏ
¾àÁ¤/±ÝÁö»çÇ×/ȯ¸ÅƯ¾à
Àμö
3 2023³â6¿ù28ÀÏ
¾Ð·ù
±¹
¼Ò¸ê±âÁØ
4 2024³â2¿ù23ÀÏ
°¡¾Ð·ù
¼­OOOO
109,000,000 ¼Ò¸ê
5 2024³â2¿ù28ÀÏ
°¡¾Ð·ù
°æOOOO
30,000,000 ¼Ò¸ê
6 2024³â6¿ù4ÀÏ
ÀÓÂ÷±Ç¼³Á¤
·ùOO
130,000,000 ¼Ò¸ê
7 2024³â9¿ù5ÀÏ
°¡¾Ð·ù
ÁÖOOOO
490,000,000 ¼Ò¸ê
8 2025³â4¿ù2ÀÏ
°­Á¦°æ¸Å
ÁÖOOOO
¼Ò¸ê

ÀÓÂ÷ÀÎÇöȲ (¹è´ç¿ä±¸Á¾±âÀÏ: 2025-06-17)

ÀÓÂ÷ÀÎ ¿ëµµ/Á¡À¯ º¸Áõ±Ý/¿ù¼¼ ´ëÇ×·Â
ÀüÀÔÀÏ/È®Á¤ÀÏ ¹è´ç¿ä±¸ ºñ°í
·ùOO Á¦203È£ 130,000,000
2021³â2¿ù19ÀÏ
2021³â2¿ù19ÀÏ
2021³â3¿ù15ÀÏ~
ÁÖOOOOOOOOOOOO Á¦203È£ 130,000,000
2021³â2¿ù19ÀÏ
2021³â2¿ù19ÀÏ
2025.6.16. 2021³â3¿ù15ÀÏ~
ºñ°í
(¸Å°¢¹°°Ç
¸í¼¼¼­)
·ù¼®±Ô: ÁÖÅÃÀÓÂ÷±Çµî±â ¼³Á¤ÀÏ 2024³â6¿ù4ÀÏ ÁÖÅõµ½Ãº¸Áõ°ø»ç(·ù¼®±Ô): ÀÓÂ÷±ÇÀÚ ·ù¼®±ÔÀÇ ±Ç¸®½Â°èÀÎ

¿©ÀÇÁÖ°æ¸Å Á¶¾ð ÇÑ ¸¶µð

¼±¼øÀ§ ÀÓÂ÷±Çµî±â°¡ µÇ¾î ÀÖ½À´Ï´Ù
´ëÇ×·ÂÀÌ ÀÖ´Â ¼±¼øÀ§ ÀÓÂ÷±Çµî±â ±Ç¸®ÀÚ°¡ ¹è´çÀ» Àü¾× ¹ÞÁö ¸øÇÒ °æ¿ì ³«ÂûÀÚ°¡ ÀÜ¿© º¸Áõ±ÝÀ» ÀμöÇØ¾ßÇÏ´Â °æ¿ìµµ ÀÖ½À´Ï´Ù.

ÁÖÀÇ»çÇ× (ÃÖ¼±¼øÀ§ ¼³Á¤ÀÏ: 2023.06.28 ¾Ð·ù ¼³Á¤)

¸Å°¢À¸·Î ¼Ò¸êµÇÁö ¾Ê´Â µî±âºÎ±Ç¸®:
¸Å°¢À¸·Î ¼³Á¤µÈ °ÍÀ¸·Î º¸´Â Áö»ó±Ç:
ÁÖÅõµ½Ãº¸Áõ°ø»ç : ¹è´ç±Ý¿¡¼­ ÀÓ´ëÂ÷º¸Áõ±Ý Àü¾×À» º¯Á¦¹ÞÁö ¸øÇÏ´õ¶óµµ ¸Å¼öÀο¡ ´ëÇÑ ÀÜÁ¸ ÀÓ´ëÂ÷º¸Áõ±Ý ¹Ýȯû±¸±ÇÀ» Æ÷ ±âÇϰí ÀÓÂ÷±Çµî±â ¸»¼Ò¿¡ µ¿ÀÇÇÏ´Â È®¾à¼­ Á¦ÃâÇÔ(2026. 2. 13. Á¢¼ö).
¡Ø¹Ì³³°ü¸®ºñ(°ø¿ë) Àμö¿©ºÎ¸¦ ÀÔÂû Àü¿¡ È®ÀÎÇϽñ⠹ٶø´Ï´Ù

 

Áö¿ªºÐ¼®

ÁöÇÏö¸í Á÷¼±°Å¸®

Çб³¸í ÀüÈ­¹øÈ£ ÁÖ¼Ò Á÷¼±°Å¸®

¹ý¿ø

¼­¿ïºÏºÎÁö¹æ¹ý¿ø (013-22)¼­¿ïƯº°½Ã µµºÀ±¸ ¸¶µé·Î749 (µµºÀ2µ¿ 626)
´ëÇ¥ : 02)910-3114
°üÇÒÁö¿ª : °­ºÏ±¸, ³ë¿ø±¸, µµºÀ±¸, µ¿´ë¹®±¸, ¼ººÏ±¸, Áß¶û±¸

µî±â¼Ò ¼­¿ïºÏºÎÁö¹æ¹ý¿ø º»¿ø µî±â±¹ (´ëÇ¥:1544-0773, ÆÑ½º:(02)2030-2330, ¼­¿ïƯº°½Ã µµºÀ±¸ ³ëÇØ·Î 325 (⵿ 337¹øÁö))
¼¼¹«¼­ ¼ººÏ¼¼¹«¼­ (´ëÇ¥:02-760-820, ÆÑ½º:02-744-6160, ¼­¿ïƯº°½Ã ¼ººÏ±¸ »ï¼±±³·Î 16±æ 13)

Àαٳ«ÂûÅë°è

±â°£ ¸Å°¢°Ç¼ö Æò±Õ°¨Á¤°¡
Æò±Õ¸Å°¢°¡
¸Å°¢°¡À²
Æò±ÕÀ¯Âû¼ö
3°³¿ù 36°Ç 299,225,556¿ø
210,253,177¿ø
67%
5.2ȸ
6°³¿ù 61°Ç 293,395,410¿ø
210,202,926¿ø
70%
5.3ȸ
12°³¿ù 109°Ç 300,073,761¿ø
220,177,354¿ø
73%
4.3ȸ


º» °æ¸ÅÁ¤º¸´Â ¹ý¿øÀÚ·á¿Í ÀÏÄ¡Çϵµ·Ï ÇÏ¿´À¸³ª ±Ç¸®»çÇ׺¯µ¿, ÀÔ·ÂÂø¿À µîÀÇ ¿øÀÎÀ¸·Î »ç½Ç°ú ´Ù¸¦ ¼ö ÀÖ½À´Ï´Ù. ÀÌ¿ë¾à°ü¿¡ ÀǰЏéÃ¥Á¶°ÇÀ¸·Î Á¦°øµÊÀ» ¾Ë¸®¸ç, °æ¸ÅÀÔÂû½Ã ¹Ýµå½Ã °ü·Ã °øºÎ¸¦ ÀçÈ®ÀÎÇϽñ⠹ٶø´Ï´Ù. º¸´Ù Æí¸®ÇÑ °æ¸ÅÁ¤º¸ Á¦°øÀ» À§ÇØ Áö¼ÓÀûÀ¸·Î °³¼±ÇϰڽÀ´Ï´Ù. ÀÌ¿ëÇØ Áּż­ °¨»çÇÕ´Ï´Ù.