·Î±×ÀÎ
409
´Ù¼¼´ë(ºô¶ó)
¼­¿ï³²ºÎÁö¹æ¹ý¿ø
 °¨Á¤°¡263,000,000 ¿ø
 ÃÖÀú°¡(51%) 134,656,000 ¿ø
 º¸Áõ±Ý(10%) 13,465,600 ¿ø
 Ã»±¸¾×200,000,000 ¿ø
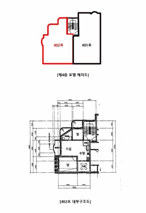
¼­¿ïƯº°½Ã °­¼­±¸ µîÃ̵¿ 532-16 Á¦4Ãþ Á¦402È£
»ç°Ç¹øÈ£ 2025Ÿ°æ10055
°æ¸ÅÁ¾·ùºÎµ¿»ê°­Á¦°æ¸Å
¸Å°¢´ë»óÅäÁö ¹× °Ç¹°Àϰý ¸Å°¢
¸Å°¢±âÀÏ    2026.07.09(¸ñ) 10:00 ÀÔÂû 47ÀÏÀü    
ÅäÁö¸éÀû21.49§³(6.50 Æò)
°Ç¹°¸éÀû50.32§³(15.22 Æò)
乫/¼ÒÀ¯ÀÚÇÔOO / ÇÔOO
ä±ÇÀÚ±ÇOO
ÆäÀ̽ººÏ Æ®À§ÅÍ ±¸±Û+
īī¿À½ºÅ丮
īī¿ÀÅå sms¹®ÀÚº¸³»±â
 

±âÀϳ»¿ª

°æ°ú ³¯Â¥ Àú°¨ ÃÖÀú°¡ °á°ú
Á¢¼öÀÏ 2025-05-21 °æ¸ÅÁ¢¼ö
~5ÀÏ 
2025-05-26 °æ¸Å°³½Ã°áÁ¤
~98ÀÏ 
2025-08-27 ¹è´ç¿ä±¸Á¾±âÀÏ
~281ÀÏ 
2026-02-26 100%
263,000,000
À¯Âû
~322ÀÏ 
2026-04-08 80%
210,400,000
À¯Âû
~364ÀÏ 
2026-05-20 64%
168,320,000
À¯Âû
~414ÀÏ 
2026-07-09 51%
134,656,000
ÁøÇà
¹°°Ç¸í¼¼¼­ ÇöȲÁ¶»ç¼­ ¹®°ÇÁ¢¼ö ¼Û´Þ³»¿ª

°¨Á¤Æò°¡ÇöȲ

¸ñ·Ï ÁÖ¼Ò ±¸Á¶/¿ëµµ/´ëÁö±Ç ¸éÀû ºñ°í
´ëÁö±Ç
µîÃ̵¿ 532-16 229.4ºÐÀÇ 21.49 21.49 §³
(6.50Æò)
°Ç¹°
µîÃ̵¿ 532-16 Á¦4Ãþ Á¦402È£ ö±ÙÄÜÅ©¸®Æ®Á¶ 50.32 §³
(15.22Æò)
1) À§Ä¡/µµ½ÃÁö¿ª/Á¦2Á¾ÀϹÝÁÖ°ÅÁö¿ª/ÁöÇÏö/³ë¼±¹ö½ºÁ¤·ùÀå/Æò½º¶óºêÁöºØ ´õº¸±â
°¨Á¤Æò°¡ ¿äÇ×Ç¥
1)À§Ä¡ ¹× ÁÖÀ§È¯°æ
º»°ÇÀº ¼­¿ïƯº°½Ã °­¼­±¸ µîÃ̵¿ ¼ÒÀç ""µîÃÌÁßÇб³"" ³²µ¿Ãø Àαٿ¡ À§Ä¡Çϸç, ÁÖÀ§´Â ´Ù¼¼´ëÁÖÅðú ´Üµ¶ÁÖÅÃ, ¾ÆÆÄÆ®, ±Ù¸°»ýȰ½Ã¼³ µîÀÌ È¥ÀçÇÏ´Â ±âÁ¸ ÁÖÅÃÁö´ë·Î¼­ ÁÖÀ§È¯°æÀº º¸ÅëÀÓ.
2)±³Åë»óȲ
º»°Ç±îÁö Â÷·®ÁøÃâÀÔÀÌ °¡´ÉÇϰí, Àαٿ¡ ³ë¼±¹ö½ºÁ¤·ùÀå°ú ±Ù°Å¸®¿¡ ÁöÇÏö 9È£¼± ""µîÃÌ¿ª"" ¼ÒÀçÇÏ´Â µî Á¦¹Ý ´ëÁß±³Åë»óȲÀº º¸ÅëÀÎ ÆíÀÓ.
3)°Ç¹°ÀÇ ±¸Á¶
ö±ÙÄÜÅ©¸®Æ® ¶ó¸à±¸Á¶ Æò½º¶óºêÁöºØ Áö»ó 4Ãþ °Ç¹° ³» Á¦4Ãþ Á¦402È£·Î¼­,
¿Üº® : º®µ¹ºÙÀÓ ¸¶°¨ µî,
âȣ : ¼¦½ÃâȣÀÓ.
4)ÀÌ¿ë»óÅÂ
´Ù¼¼´ëÁÖÅÃÀ¸·Î ÀÌ¿ë ÁßÀÓ.(ÈÄ÷""³»ºÎ±¸Á¶µµ"" ÂüÁ¶)
5)¼³ºñ³»¿ª
±âº»ÀûÀÎ À§»ý ¹× ±Þ¹è¼ö¼³ºñ, ³­¹æ¼³ºñ, ÁÖÂ÷½Ã¼³ µîÀ» °®Ãß°í ÀÖÀ½.
6)ÅäÁöÀÇ Çü»ó ¹× ÀÌ¿ë»óÅÂ
ÀÎÁ¢ÇÊÁö ´ëºñ µî°íÆòźÇÑ »ç´Ù¸®Çü ÅäÁö·Î¼­, ´Ù¼¼´ëÁÖÅà °ÇºÎÁö·Î ÀÌ¿ë ÁßÀÓ.
7)ÀÎÁ¢ µµ·Î»óŵî
º»°Ç ºÏÃøÀ¸·Î ³ëÆø ¾à 8m ³»¿Ü, ¼­ÃøÀ¸·Î ³ëÆø ¾à 6m ³»¿Ü, µ¿ÃøÀ¸·Î ³ëÆø ¾à 4m ³»¿ÜÀÇ Æ÷Àåµµ·Î¿¡ °¢°¢ Á¢ÇÔ.
8)ÅäÁöÀÌ¿ë°èȹ ¹× Á¦ÇÑ»óÅÂ
µµ½ÃÁö¿ª , Á¦2Á¾ÀϹÝÁÖ°ÅÁö¿ª(7ÃþÀÌÇÏ) , Áß¿ä½Ã¼³¹°º¸È£Áö±¸(°øÇ×), °¡Ãà»çÀ°Á¦Çѱ¸¿ª(Áö¿ª°æÁ¦°ú È®ÀÎ ¿ä¸Á)<°¡ÃàºÐ´¢ÀÇ °ü¸® ¹× À̿뿡 °üÇÑ ¹ý·ü>, ¿øÃßÇ¥¸é±¸¿ª(¿øÃßÇ¥¸é)<°øÇ׽ü³¹ý>, »ó´ëº¸È£±¸¿ª(°­¼­±³À°Áö¿øÃ»¿¡ ¹Ýµå½Ã È®ÀÎ ¿ä¸Á)<±³À°È¯°æ º¸È£¿¡ °üÇÑ ¹ý·ü>, ´ë°ø¹æ¾îÇùÁ¶±¸¿ª(À§Å¹°íµµ:77-257m)<±º»ç±âÁö ¹× ±º»ç½Ã¼³ º¸È£¹ý>, °ú¹Ð¾ïÁ¦±Ç¿ª<¼öµµ±ÇÁ¤ºñ°èȹ¹ý>ÀÓ.
9)°øºÎ¿ÍÀÇ Â÷ÀÌ
¾øÀ½.
10)±âŸÂü°í»çÇ×(ÀÓ´ë°ü·Ê ¹× ±âŸ)
ÀÓ´ë°ü°è ¹Ì»óÀÓ. º»°ÇÀº ÀÌÇØ°ü°èÀÎÀÇ ºÎÀç·Î ÀÎÇÏ¿© ºÎµæÀÌÇÏ°Ô È£½Ç Ç¥±â¸¦ ±âÁØÇÑ ¿ÜºÎ°üÂû, ÁÖÀ§ ޹® ¹× Ç¥ÁØÀû ÀÌ¿ë»óÅÂ, °ÇÃ๰ÇöȲµµ µîÀ» Âü°íÇÏ¿© Æò°¡ÇÏ¿´´Â¹Ù, ½ÇÁ¦ »çÇ×°ú »óÀÌÇÒ ¼ö ÀÖÀ¸´Ï °æ¸ÅÁøÇà ¹× ÀÔÂû½Ã Âü°íÇϽñ⠹ٶ÷.
Âü°í
»çÇ×

°Ç¹° ¿Üº®¿¡ `Çö´ëºô¶ó`·Î Ç¥½ÃµÊ

°ÇÃ๰ÇöȲ

¼ÒÀçÁö ¼­¿ïƯº°½Ã °­¼­±¸ µîÃ̵¿ 532-16¹øÁö
´ëÁö¸éÀû 229.4§³
(69.52Æò)
¿¬¸éÀû 647.18§³
(196.12Æò)
°ÇÃà¸éÀû 137.61§³
(41.7Æò)
¿ëÀû·ü»êÁ¤
¿¬¸éÀû
521.71§³
(158.09Æò)
°ÇÆóÀ² 59.98% ¿ëÀû·ü 227.42%
Áö»óÃþ¼ö 4Ãþ ÁöÇÏÃþ¼ö 1Ãþ
ÁÖ¿ëµµ °øµ¿ÁÖÅà ±¸Á¶ ö±ÙÄÜÅ©¸®Æ®±¸Á¶
Âø°øÀÏÀÚ 1997.10.29 »ç¿ë½ÂÀÎÀÏÀÚ 1998.03.17
°ÇÃ๰Ãþº°ÇöȲ [º¸±â]


±¹ÅäºÎ½Ç°Å·¡°¡ ¼­¿ïƯº°½Ã °­¼­±¸ µîÃ̵¿

¡Ü ¸Å¸Å

¸éÀû(§³), ±Ý¾×(¸¸¿ø)

¡Ü Àü¼¼

¸éÀû(§³), ±Ý¾×(¸¸¿ø)

°è¾àÀϰǹ°¸íĪÃþ¿¬¸éÀûº¸Áõ±Ý¿ù¼¼°ÇÃà
26.05.18¸â¹ö½ººôAµ¿429.8917,90002016
26.05.16»êÀåºô¶ó243.1115,00001986
26.05.16±×¶ûºô53321,60002016
26.05.16¼­È£ºô¶ó261.2425,12501996
26.05.16»ï¼º¿ÀÅõºô3241,000492002
¢Ñ ´õº¸±â

µî±âºÎµîº» ¿ä¾à(°Ç¹°)

  Á¢¼öÀÏÀÚ µî±â¸ñÀû/±Ç¸®ÀÚ ±Ç¸®±Ý¾× ±âÁØ
1 2022³â3¿ù4ÀÏ
¼ÒÀ¯±Ç
ÇÔOO
¼Ò¸ê
2 2024³â11¿ù8ÀÏ
ÀÓÂ÷±Ç¼³Á¤
±ÇOO
270,000,000 Àμö
3 2025³â5¿ù26ÀÏ
°­Á¦°æ¸Å
±ÇOO
¼Ò¸ê±âÁØ

ÀÓÂ÷ÀÎÇöȲ (¹è´ç¿ä±¸Á¾±âÀÏ: 2025-08-27)

ÀÓÂ÷ÀÎ ¿ëµµ/Á¡À¯ º¸Áõ±Ý/¿ù¼¼ ´ëÇ×·Â
ÀüÀÔÀÏ/È®Á¤ÀÏ ¹è´ç¿ä±¸ ºñ°í
±ÇOO 402È£ 270,000,000
O
2022.03.15.
2022.01.05.
2025.5.21. 2022.02.28.~2024.02.27.
ºñ°í
(¸Å°¢¹°°Ç
¸í¼¼¼­)
±ÇÀ±Á¤:½Åûä±ÇÀÚÀÌ¸ç ¹è´ç¿ä±¸ÀÏÀÚ´Â °æ¸Å½ÅûÀÏÀÓ

¿©ÀÇÁÖ°æ¸Å Á¶¾ð ÇÑ ¸¶µð


ÁÖÀÇ»çÇ× (ÃÖ¼±¼øÀ§ ¼³Á¤ÀÏ: 2025.05.26. °æ¸Å°³½Ã°áÁ¤ ¼³Á¤)

¸Å°¢À¸·Î ¼Ò¸êµÇÁö ¾Ê´Â µî±âºÎ±Ç¸®: ¸Å¼öÀο¡°Ô ´ëÇ×ÇÒ ¼ö ÀÖ´Â ÀÓÂ÷ÀÎÀÌ ÀÖÀ½(ÀÓ´ëÂ÷º¸Áõ±Ý 270,000,000¿ø, ÀüÀÔÀÏÀÚ 2022.03.15., È®Á¤ÀÏÀÚ 2022.01.05.) ¹è´ç¿¡¼­ º¸Áõ±ÝÀÌ Àü¾× º¯Á¦µÇÁö ¾Æ´ÏÇÏ¸é ¸Å¼öÀÎÀÌ ÀμöÇÔ.
¸Å°¢À¸·Î ¼³Á¤µÈ °ÍÀ¸·Î º¸´Â Áö»ó±Ç:
¡Ø¹Ì³³°ü¸®ºñ(°ø¿ë) Àμö¿©ºÎ¸¦ ÀÔÂû Àü¿¡ È®ÀÎÇϽñ⠹ٶø´Ï´Ù

 

Áö¿ªºÐ¼®

ÁöÇÏö¸í Á÷¼±°Å¸®

Çб³¸í ÀüÈ­¹øÈ£ ÁÖ¼Ò Á÷¼±°Å¸®

¹ý¿ø

¼­¿ï³²ºÎÁö¹æ¹ý¿ø (080-88)¼­¿ïƯº°½Ã ¾çõ±¸ ½Å¿ù·Î 386(½ÅÁ¤µ¿)
´ëÇ¥ : 02)2192-1114
°üÇÒÁö¿ª : ¿µµîÆ÷±¸, °­¼­±¸, ¾çõ±¸, ±¸·Î±¸, ±Ýõ±¸

µî±â¼Ò ¼­¿ï³²ºÎÁö¹æ¹ý¿ø º»¿ø µî±â±¹ (´ëÇ¥:1544-0773, ÆÑ½º:(02)2629-7307, ¼­¿ïƯº°½Ã ¿µµîÆ÷±¸ °æÀηΠ772 (¹®·¡µ¿ 1°¡))
¼¼¹«¼­ °­¼­¼¼¹«¼­ (´ëÇ¥:02-2630-42, ÆÑ½º:02-2679-8777, ¼­¿ïƯº°½Ã °­¼­±¸ ¸¶°î¼­1·Î 60 (¸¶°îµ¿))

Àαٳ«ÂûÅë°è

±â°£ ¸Å°¢°Ç¼ö Æò±Õ°¨Á¤°¡
Æò±Õ¸Å°¢°¡
¸Å°¢°¡À²
Æò±ÕÀ¯Âû¼ö
3°³¿ù 207°Ç 275,494,702¿ø
191,082,388¿ø
69%
2.5ȸ
6°³¿ù 499°Ç 266,845,133¿ø
190,523,285¿ø
72%
2.6ȸ
12°³¿ù 1,028°Ç 263,576,098¿ø
195,595,966¿ø
75%
2.4ȸ


º» °æ¸ÅÁ¤º¸´Â ¹ý¿øÀÚ·á¿Í ÀÏÄ¡Çϵµ·Ï ÇÏ¿´À¸³ª ±Ç¸®»çÇ׺¯µ¿, ÀÔ·ÂÂø¿À µîÀÇ ¿øÀÎÀ¸·Î »ç½Ç°ú ´Ù¸¦ ¼ö ÀÖ½À´Ï´Ù. ÀÌ¿ë¾à°ü¿¡ ÀǰЏéÃ¥Á¶°ÇÀ¸·Î Á¦°øµÊÀ» ¾Ë¸®¸ç, °æ¸ÅÀÔÂû½Ã ¹Ýµå½Ã °ü·Ã °øºÎ¸¦ ÀçÈ®ÀÎÇϽñ⠹ٶø´Ï´Ù. º¸´Ù Æí¸®ÇÑ °æ¸ÅÁ¤º¸ Á¦°øÀ» À§ÇØ Áö¼ÓÀûÀ¸·Î °³¼±ÇϰڽÀ´Ï´Ù. ÀÌ¿ëÇØ Áּż­ °¨»çÇÕ´Ï´Ù.