·Î±×ÀÎ
131
¾ÆÆÄÆ®
±¤ÁÖÁö¹æ¹ý¿ø
 °¨Á¤°¡154,000,000 ¿ø
 ÃÖÀú°¡(70%) 107,800,000 ¿ø
 º¸Áõ±Ý(10%) 10,780,000 ¿ø
 Ã»±¸¾×126,256,483 ¿ø
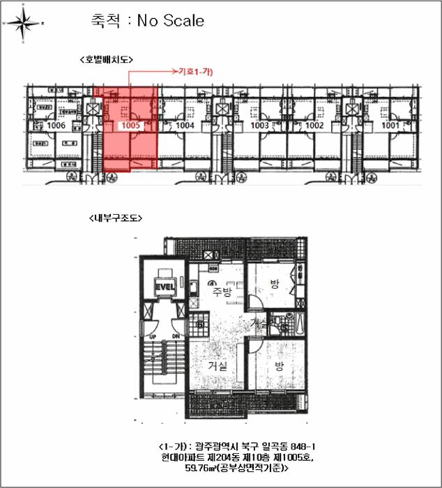
±¤ÁÖ±¤¿ª½Ã ºÏ±¸ Àϰ 848-1 Çö´ë¾ÆÆÄÆ® Á¦204µ¿ Á¦10Ãþ Á¦1005È£
»ç°Ç¹øÈ£ 2025Ÿ°æ33499
°æ¸ÅÁ¾·ùºÎµ¿»êÀÓÀǰæ¸Å
¸Å°¢´ë»óÅäÁö ¹× °Ç¹°Àϰý ¸Å°¢
¸Å°¢±âÀÏ    2026.04.08(¼ö) 10:00 ÀÔÂû 40ÀÏÀü    
ÅäÁö¸éÀû33.76§³(10.21 Æò)
°Ç¹°¸éÀû59.76§³(18.08 Æò)
乫/¼ÒÀ¯ÀÚÀÌOO / ÀÌOO
ä±ÇÀÚÁÖOOO OOOOO
ÆäÀ̽ººÏ Æ®À§ÅÍ ±¸±Û+
īī¿À½ºÅ丮
īī¿ÀÅå sms¹®ÀÚº¸³»±â
 

±âÀϳ»¿ª

°æ°ú ³¯Â¥ Àú°¨ ÃÖÀú°¡ °á°ú
Á¢¼öÀÏ 2025-08-04 °æ¸ÅÁ¢¼ö
~7ÀÏ 
2025-08-11 °æ¸Å°³½Ã°áÁ¤
~88ÀÏ 
2025-10-31 ¹è´ç¿ä±¸Á¾±âÀÏ
~205ÀÏ 
2026-02-25 100%
154,000,000
À¯Âû
~247ÀÏ 
2026-04-08 70%
107,800,000
ÁøÇà
¹°°Ç¸í¼¼¼­ ÇöȲÁ¶»ç¼­ ¹®°ÇÁ¢¼ö ¼Û´Þ³»¿ª

°¨Á¤Æò°¡ÇöȲ

¸ñ·Ï ÁÖ¼Ò ±¸Á¶/¿ëµµ/´ëÁö±Ç ¸éÀû ºñ°í
´ëÁö±Ç
Àϰ 848-1 19941.6ºÐÀÇ 33.757 33.757 §³
(10.21Æò)
°Ç¹°
Àϰ 848-1 Á¦204µ¿ Á¦10Ãþ Á¦1005È£ ö±ÙÄÜÅ©¸®Æ® º®½ÄÁ¶ 59.76 §³
(18.08Æò)
1) À§Ä¡/Á¦3Á¾ÀϹÝÁÖ°ÅÁö¿ª/Á¦1Á¾Áö±¸´ÜÀ§°èȹ±¸¿ª/ö±ÙÄÜÅ©¸®Æ® º®½Ä±¸Á¶/½º¶óºêÁöºØ/µµ½Ã°¡½º/°³º°³­¹æ ´õº¸±â
°¨Á¤Æò°¡ ¿äÇ×Ç¥
1)À§Ä¡ ¹× ÁÖÀ§È¯°æ
º»°ÇÀº ±¤ÁÖ±¤¿ª½Ã ºÏ±¸ Àϰ ¼ÒÀç ""Àϵ¿ÃʵîÇб³"" ³²µ¿Ãø Àαٿ¡ À§Ä¡Çϸç, ÁÖÀ§´Â ¾ÆÆÄÆ®, ±Ù¸°»ýȰ½Ã¼³ µîÀÌ ¼ÒÀçÇÏ´Â ¾ÆÆÄÆ®Áö´ë·Î¼­ Á¦¹ÝÁÖÀ§È¯°æÀº º¸ÅëÀÓ.
2)±³Åë»óȲ
º»°Ç±îÁö Â÷·®ÀÇ Á¢±ÙÀÌ ¿ëÀÌÇϸç, Àαٿ¡ ´Ù¼öÀÇ ½Ã³»¹ö½º ½Â°­ÀåÀÌ ¼ÒÀçÇÏ´Â µî Á¦¹Ý±³Åë»çÁ¤Àº º¸ÅëÀÓ.
3)°Ç¹°ÀÇ ±¸Á¶
º»°Ç ±âÈ£1-°¡)´Â ö±ÙÄÜÅ©¸®Æ® º®½Ä±¸Á¶ ½º¶óºêÁöºØ Áö»ó15Ãþ/ÁöÇÏ1Ãþ °Ç¹°(»ç¿ë½ÂÀÎ:1998.02.11.)·Î¼­,
- ¿Üº® : Á¦¹°Ä¡Àå ÄÜÅ©¸®Æ®À§ ÆäÀÎÆÃ µî ¸¶°¨,
- âȣ : »õ½Ã µî ¸¶°¨ÀÓ.
4)ÀÌ¿ë»óÅÂ
º»°Ç ±âÈ£1-°¡)´Â '¾ÆÆÄÆ®'·Î ÀÌ¿ë ÁßÀÓ.
5)¼³ºñ³»¿ª
º»°ÇÀº ±âº»ÀûÀÎ À§»ý ¹× ±Þ¹è¼ö¼³ºñ, µµ½Ã°¡½º¿¡ ÀÇÇÑ °³º°³­¹æ¼³ºñ, ½Â°­±â¼³ºñ, ¼ÒÈ­Àü¼³ºñ, È­ÀçŽÁö ¹× °æº¸¼³ºñ µîÀÌ ¼³Ä¡µÇ¾î ÀÖÀ½.
6)ÅäÁöÀÇ Çü»ó ¹× ÀÌ¿ë»óÅÂ
º»°ÇÀº '»ç´Ù¸® ÆòÁö'À̸ç, '¾ÆÆÄÆ®' °ÇºÎÁö·Î ÀÌ¿ë ÁßÀÓ.
7)ÀÎÁ¢ µµ·Î»óŵî
º»°ÇÀº ¼­ÃøÀ¸·Î ³ëÆø ¾à 24¹ÌÅÍ ³»¿ÜÀÇ ¾Æ½ºÆÈÆ® Æ÷Àåµµ·Î ¹× ºÏÃø, µ¿ÃøÀ¸·Î ³ëÆø ¾à 20¹ÌÅÍ ³»¿ÜÀÇ ¾Æ½ºÆÈÆ® Æ÷Àåµµ·Î¿¡ °¢°¢ Á¢ÇÔ.
8)ÅäÁöÀÌ¿ë°èȹ ¹× Á¦ÇÑ»óÅÂ
º»°ÇÀº Á¦3Á¾ÀϹÝÁÖ°ÅÁö¿ª, Á¦1Á¾Áö±¸´ÜÀ§°èȹ±¸¿ª, ´ë·Î3·ù(Æø 25m~30m)(Á¢ÇÕ), Áß·Î1·ù(Æø 20m~25m)(Á¢ÇÕ), »ó´ëº¸È£±¸¿ª<±³À°È¯°æ º¸È£¿¡ °üÇÑ ¹ý·ü>, »ó´ëº¸È£±¸¿ª(Àϵ¿ÃʵîÇб³)<±³À°È¯°æ º¸È£¿¡ °üÇÑ ¹ý·ü>ÀÓ.
9)°øºÎ¿ÍÀÇ Â÷ÀÌ
¾øÀ½.
10)±âŸÂü°í»çÇ×(ÀÓ´ë°ü·Ê ¹× ±âŸ)
- ÀÓ´ë°ü°è : ¹Ì»óÀÓ.
- ¾øÀ½.

°ÇÃ๰ÇöȲ

¼ÒÀçÁö ±¤ÁÖ±¤¿ª½Ã ºÏ±¸ Àϰ 848-1¹øÁö
´ëÁö¸éÀû   ¿¬¸éÀû 5278.008§³
(1599.4Æò)
°ÇÃà¸éÀû 389.3762§³
(117.99Æò)
¿ëÀû·ü»êÁ¤
¿¬¸éÀû
4951.632§³
(1500.49Æò)
°ÇÆóÀ²   ¿ëÀû·ü  
Áö»óÃþ¼ö 18Ãþ ÁöÇÏÃþ¼ö 1Ãþ
ÁÖ¿ëµµ °øµ¿ÁÖÅà ±¸Á¶ ö±ÙÄÜÅ©¸®Æ®±¸Á¶
Âø°øÀÏÀÚ 1996.04.00 »ç¿ë½ÂÀÎÀÏÀÚ 1998.02.11
°ÇÃ๰Ãþº°ÇöȲ [º¸±â]


±¹ÅäºÎ½Ç°Å·¡°¡ ±¤ÁÖ±¤¿ª½Ã ºÏ±¸ Àϰ

¡Ü ¸Å¸Å

¸éÀû(§³), ±Ý¾×(¸¸¿ø)

¡Ü Àü¼¼

¸éÀû(§³), ±Ý¾×(¸¸¿ø)

°è¾àÀÏARTÃþÀü¿ëº¸Áõ±Ý¿ù¼¼°ÇÃà
26.02.13Çö´ë21859.3619,0001998
26.02.12Çö´ë2459.7614,5001998
26.02.10Çö´ë21959.3615,3501998
26.01.30Çö´ë2259.3614,0001998
26.01.29Çö´ë21159.362,000701998
¢Ñ ´õº¸±â

µî±âºÎµîº» ¿ä¾à(°Ç¹°)

  Á¢¼öÀÏÀÚ µî±â¸ñÀû/±Ç¸®ÀÚ ±Ç¸®±Ý¾× ±âÁØ
1 2021³â3¿ù10ÀÏ
¼ÒÀ¯±Ç
ÀÌOO
¼Ò¸ê
2 2023³â7¿ù14ÀÏ
±ÙÀú´ç±Ç
(OOOO
134,750,000 ¼Ò¸ê±âÁØ
3 2025³â8¿ù11ÀÏ
ÀÓÀǰæ¸Å
(OOOO
¼Ò¸ê

ÀÓÂ÷ÀÎÇöȲ (¹è´ç¿ä±¸Á¾±âÀÏ: 2025-10-31)


Á¶»çµÈ ÀÓÂ÷³»¿ªÀÌ ¾ø½À´Ï´Ù


¾ÆÆÄÆ® Á¤º¸ Çö´ë2Â÷

ÁÖ¼Ò ±¤ÁÖ ºÏ±¸ Àϰ 848-1
½Ã°ø»ç Çö´ë»ê¾÷°³¹ß ´ÜÁö±Ô¸ð 6°³µ¿ 574°¡±¸(5°³µ¿)¼¼´ë
³­¹æ Áß¾Ó/µµ½Ã°¡½º »ç¿ë½ÂÀÎ 1998-02
°ü¸®¼Ò 062)571-4170
Àü¿ë¸éÀû 59~59 ¼¼´ë¼ö 574°¡±¸(5°³µ¿)
´ëÁö±Ç
Çö°ü/±¸Á¶ °è´Ü½Ä / ¹æ, ¿å½Ç
  • Çб³ ÀϰîÃʱ³,ÀϰîÁß±³,»ì·¹½Ã¿À°í±³,±¤½Å´ëÇб³
  • ÁÖº¯½Ã¼³ Àϰ¿ø, Àϰ»ç¹«¼Ò, ¸¶Æ®¿£¸¶Æ®, ±Ù¸°°ø¿ø,
  • ´ëÁß±³Åë null

¿©ÀÇÁÖ°æ¸Å Á¶¾ð ÇÑ ¸¶µð


ÁÖÀÇ»çÇ× (ÃÖ¼±¼øÀ§ ¼³Á¤ÀÏ: 2023. 7. 14. ±ÙÀú´ç±Ç ¼³Á¤)

¸Å°¢À¸·Î ¼Ò¸êµÇÁö ¾Ê´Â µî±âºÎ±Ç¸®:
¸Å°¢À¸·Î ¼³Á¤µÈ °ÍÀ¸·Î º¸´Â Áö»ó±Ç:
¡Ø¹Ì³³°ü¸®ºñ(°ø¿ë) Àμö¿©ºÎ¸¦ ÀÔÂû Àü¿¡ È®ÀÎÇϽñ⠹ٶø´Ï´Ù

 

Áö¿ªºÐ¼®

ÁöÇÏö¸í Á÷¼±°Å¸®

Çб³¸í ÀüÈ­¹øÈ£ ÁÖ¼Ò Á÷¼±°Å¸®

¹ý¿ø

±¤ÁÖÁö¹æ¹ý¿ø (614-41)±¤ÁÖ±¤¿ª½Ã µ¿±¸ Áعý·Î 7-12(Áö»ê2µ¿)
´ëÇ¥ : 062)239-1114
°üÇÒÁö¿ª : ±¤ÁÖ±¤¿ª½Ã, ³ªÁÖ½Ã, È­¼ø±º, À强±º, ´ã¾ç±º, °î¼º±º, ¿µ±¤±º

µî±â¼Ò ±¤ÁÖÁö¹æ¹ý¿ø º»¿ø µî±â±¹ (´ëÇ¥:1544-0773, ÆÑ½º:(062)381-0856, 381-0876, ±¤ÁÖ±¤¿ª½Ã ¼­±¸ ½Ãû·Î 106 (Ä¡Æòµ¿ 1205))
¼¼¹«¼­ ºÏ±¤ÁÖ¼¼¹«¼­ (´ëÇ¥:062-520-92, ÆÑ½º:062-716-7280, ±¤ÁÖ±¤¿ª½Ã ºÏ±¸ ±ÝÈ£·Î 70 (¿î¾Ïµ¿))

Àαٳ«ÂûÅë°è

±â°£ ¸Å°¢°Ç¼ö Æò±Õ°¨Á¤°¡
Æò±Õ¸Å°¢°¡
¸Å°¢°¡À²
Æò±ÕÀ¯Âû¼ö


º» °æ¸ÅÁ¤º¸´Â ¹ý¿øÀÚ·á¿Í ÀÏÄ¡Çϵµ·Ï ÇÏ¿´À¸³ª ±Ç¸®»çÇ׺¯µ¿, ÀÔ·ÂÂø¿À µîÀÇ ¿øÀÎÀ¸·Î »ç½Ç°ú ´Ù¸¦ ¼ö ÀÖ½À´Ï´Ù. ÀÌ¿ë¾à°ü¿¡ ÀǰЏéÃ¥Á¶°ÇÀ¸·Î Á¦°øµÊÀ» ¾Ë¸®¸ç, °æ¸ÅÀÔÂû½Ã ¹Ýµå½Ã °ü·Ã °øºÎ¸¦ ÀçÈ®ÀÎÇϽñ⠹ٶø´Ï´Ù. º¸´Ù Æí¸®ÇÑ °æ¸ÅÁ¤º¸ Á¦°øÀ» À§ÇØ Áö¼ÓÀûÀ¸·Î °³¼±ÇϰڽÀ´Ï´Ù. ÀÌ¿ëÇØ Áּż­ °¨»çÇÕ´Ï´Ù.