·Î±×ÀÎ
327
¿ÀÇǽºÅÚ
¼­¿ïÁß¾ÓÁö¹æ¹ý¿ø
 °¨Á¤°¡262,000,000 ¿ø
 ÃÖÀú°¡(100%) 262,000,000 ¿ø
 º¸Áõ±Ý(10%) 26,200,000 ¿ø
 Ã»±¸¾×290,049,056 ¿ø
¼­¿ïƯº°½Ã °ü¾Ç±¸ ³²ºÎ¼øÈ¯·Î 1466, 4Ãþ406È£ (½Å¸²µ¿,¸ù»ß¿¡¶ß°ñµå)
¼­¿ïƯº°½Ã °ü¾Ç±¸ ½Å¸²µ¿ 1474-15
»ç°Ç¹øÈ£ 2024Ÿ°æ126346
°æ¸ÅÁ¾·ùºÎµ¿»ê°­Á¦°æ¸Å
¸Å°¢´ë»óÅäÁö ¹× °Ç¹°Àϰý ¸Å°¢
¸Å°¢±âÀÏ    2026.05.06(¼ö) 10:00 ÀÔÂû 24ÀÏÀü    
ÅäÁö¸éÀû5.72§³(1.73 Æò)
°Ç¹°¸éÀû24.18§³(7.31 Æò)
乫/¼ÒÀ¯ÀÚ±èOO / ±èOO
ä±ÇÀÚÇÑOOOOOOO
ÆäÀ̽ººÏ Æ®À§ÅÍ ±¸±Û+
īī¿À½ºÅ丮
īī¿ÀÅå sms¹®ÀÚº¸³»±â
 

±âÀϳ»¿ª

°æ°ú ³¯Â¥ Àú°¨ ÃÖÀú°¡ °á°ú
Á¢¼öÀÏ 2024-12-31 °æ¸ÅÁ¢¼ö
~3ÀÏ 
2025-01-03 °æ¸Å°³½Ã°áÁ¤
~78ÀÏ 
2025-03-19 ¹è´ç¿ä±¸Á¾±âÀÏ
~421ÀÏ 
2026-02-25 100%
262,000,000
À¯Âû
~456ÀÏ 
2026-04-01 80%
209,600,000
º¯°æ
~491ÀÏ 
2026-05-06 100%
262,000,000
ÁøÇà
¹°°Ç¸í¼¼¼­ ÇöȲÁ¶»ç¼­ ¹®°ÇÁ¢¼ö ¼Û´Þ³»¿ª

°¨Á¤Æò°¡ÇöȲ

¸ñ·Ï ÁÖ¼Ò ±¸Á¶/¿ëµµ/´ëÁö±Ç ¸éÀû ºñ°í
´ëÁö±Ç
½Å¸²µ¿ 1474-15 507.4ºÐÀÇ 5.72 5.72 §³
(1.73Æò)
°Ç¹°
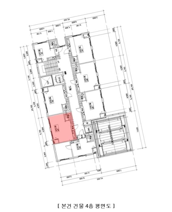
½Å¸²µ¿ 1474-15 4Ãþ406È£ ö±ÙÄÜÅ©¸®Æ®±¸Á¶ 24.18 §³
(7.31Æò)

°ÇÃ๰ÇöȲ

¼ÒÀçÁö ¼­¿ïƯº°½Ã °ü¾Ç±¸ ½Å¸²µ¿ 1474-15¹øÁö
´ëÁö¸éÀû 507.4§³
(153.76Æò)
¿¬¸éÀû 2977.74§³
(902.35Æò)
°ÇÃà¸éÀû 289.4§³
(87.7Æò)
¿ëÀû·ü»êÁ¤
¿¬¸éÀû
2783.75§³
(843.56Æò)
°ÇÆóÀ² 57.04% ¿ëÀû·ü 548.63%
Áö»óÃþ¼ö 13Ãþ ÁöÇÏÃþ¼ö 1Ãþ
ÁÖ¿ëµµ ¾÷¹«½Ã¼³ ±¸Á¶ ö±ÙÄÜÅ©¸®Æ®±¸Á¶
Âø°øÀÏÀÚ 2019.08.12 »ç¿ë½ÂÀÎÀÏÀÚ 2020.09.04
°ÇÃ๰Ãþº°ÇöȲ [º¸±â]


±¹ÅäºÎ½Ç°Å·¡°¡ ¼­¿ïƯº°½Ã °ü¾Ç±¸ ½Å¸²µ¿

¡Ü ¸Å¸Å

¸éÀû(§³), ±Ý¾×(¸¸¿ø)

¡Ü Àü¼¼

¸éÀû(§³), ±Ý¾×(¸¸¿ø)

°è¾àÀϰǹ°¸íĪÃþÀü¿ëº¸Áõ±Ý¿ù¼¼°ÇÃà
26.02.07¸ù»ß¿¡¶ß°ñµå1324.1822,00002020
25.12.27¸ù»ß¿¡¶ß°ñµå415.6120,00052020
25.12.23¸ù»ß¿¡¶ß°ñµå627.5725,00002020
25.12.07¸ù»ß¿¡¶ß°ñµå527.5724,50002020
25.08.25¸ù»ß¿¡¶ß°ñµå615.6121,80002020
¢Ñ ´õº¸±â

µî±âºÎµîº» ¿ä¾à(°Ç¹°)

  Á¢¼öÀÏÀÚ µî±â¸ñÀû/±Ç¸®ÀÚ ±Ç¸®±Ý¾× ±âÁØ
1 2021³â3¿ù31ÀÏ
¼ÒÀ¯±Ç
±èOO
¼Ò¸ê
2 2021³â3¿ù31ÀÏ
¾àÁ¤/±ÝÁö»çÇ×/ȯ¸ÅƯ¾à
Àμö
3 2023³â2¿ù28ÀÏ
¾Ð·ù
±¹
¼Ò¸ê±âÁØ
4 2023³â4¿ù18ÀÏ
ÀÓÂ÷±Ç¼³Á¤
ȲOO
250,000,000 ¼Ò¸ê
5 2023³â10¿ù17ÀÏ
°¡¾Ð·ù
ÁÖOOOO
1,012,800,000 ¼Ò¸ê
6 2025³â1¿ù3ÀÏ
°­Á¦°æ¸Å
ÇÑOOOO
¼Ò¸ê
7 2025³â1¿ù23ÀÏ
¾Ð·ù
±¹OOOO
¼Ò¸ê

ÀÓÂ÷ÀÎÇöȲ (¹è´ç¿ä±¸Á¾±âÀÏ: 2025-03-19)

ÀÓÂ÷ÀÎ ¿ëµµ/Á¡À¯ º¸Áõ±Ý/¿ù¼¼ ´ëÇ×·Â
ÀüÀÔÀÏ/È®Á¤ÀÏ ¹è´ç¿ä±¸ ºñ°í
ȲOO ÀüÀ¯ºÎºÐÀüºÎ 250,000,000
O
2021. 3. 31.
2021. 2. 23.
2024.12.31. 2021.3.31.~
ºñ°í
(¸Å°¢¹°°Ç
¸í¼¼¼­)
Ȳȭ¸ñ:ÁÖÅõµ½Ãº¸Áõ°ø»ç°¡ ÀÓÂ÷±ÇÀÚ È²È­¸ñÀÇ ½Â°èÀÎÀ¸·Î ±Ç¸®½Å°í ¹× ¹è´ç¿ä±¸½Åû. ÀÌ »ç°Ç °æ¸Å½ÅûÀÎÀÓ

¿©ÀÇÁÖ°æ¸Å Á¶¾ð ÇÑ ¸¶µð

¼±¼øÀ§ ÀÓÂ÷±Çµî±â°¡ µÇ¾î ÀÖ½À´Ï´Ù
´ëÇ×·ÂÀÌ ÀÖ´Â ¼±¼øÀ§ ÀÓÂ÷±Çµî±â ±Ç¸®ÀÚ°¡ ¹è´çÀ» Àü¾× ¹ÞÁö ¸øÇÒ °æ¿ì ³«ÂûÀÚ°¡ ÀÜ¿© º¸Áõ±ÝÀ» ÀμöÇØ¾ßÇÏ´Â °æ¿ìµµ ÀÖ½À´Ï´Ù.

ÁÖÀÇ»çÇ× (ÃÖ¼±¼øÀ§ ¼³Á¤ÀÏ: )

¸Å°¢À¸·Î ¼Ò¸êµÇÁö ¾Ê´Â µî±âºÎ±Ç¸®: ¸Å¼öÀο¡°Ô ´ëÇ×ÇÒ ¼ö ÀÖ´Â À»±¸ 1¹ø ÀÓÂ÷±Çµî±â(ÀÓ´ëÂ÷º¸Áõ±Ý 250,000,000¿ø, ÀüÀÔÀÏÀÚ 2021.03.31. È®Á¤ÀÏÀÚ 2021.02.23.)°¡ ÀÖÀ¸¹Ç·Î ¹è´ç¿¡¼­ Àü¾× º¯Á¦µÇÁö ¾Æ´ÏÇϸé Àܾ×À» ¸Å¼öÀÎÀÌ ÀμöÇÔ(¶Ç´Â Àܾ×Àº ¸Å¼öÀο¡°Ô ÀμöµÉ ¼ö ÀÖÀ½)
¸Å°¢À¸·Î ¼³Á¤µÈ °ÍÀ¸·Î º¸´Â Áö»ó±Ç:
¡Ø¹Ì³³°ü¸®ºñ(°ø¿ë) Àμö¿©ºÎ¸¦ ÀÔÂû Àü¿¡ È®ÀÎÇϽñ⠹ٶø´Ï´Ù

 

Áö¿ªºÐ¼®

ÁöÇÏö¸í Á÷¼±°Å¸®

Çб³¸í ÀüÈ­¹øÈ£ ÁÖ¼Ò Á÷¼±°Å¸®

¹ý¿ø

¼­¿ïÁß¾ÓÁö¹æ¹ý¿ø (065-94)¼­¿ïƯº°½Ã ¼­Ãʱ¸ ¼­ÃÊÁß¾Ó·Î 157 (¼­Ãʵ¿)
´ëÇ¥ : 02)530-1114, ¾ß°£ : 02)530-1280/536-8003
°üÇÒÁö¿ª : Á¾·Î±¸, Áß±¸, °­³²±¸, ¼­Ãʱ¸, °ü¾Ç±¸, µ¿ÀÛ±¸

µî±â¼Ò ¼­¿ïÁß¾ÓÁö¹æ¹ý¿ø º»¿ø µî±â±¹ (´ëÇ¥:1544-0773, ÆÑ½º:(02)590-1881, ¼­¿ïƯº°½Ã ¼­Ãʱ¸ ¹ý¿ø·Î3±æ 14 (¼­Ãʵ¿ 1707-4))
¼¼¹«¼­ °ü¾Ç¼¼¹«¼­ (´ëÇ¥:02-2173-42, ÆÑ½º:02-2173-4269, ¼­¿ïƯº°½Ã °ü¾Ç±¸ ¹®¼º·Î 187(½Å¸²µ¿))

Àαٳ«ÂûÅë°è

±â°£ ¸Å°¢°Ç¼ö Æò±Õ°¨Á¤°¡
Æò±Õ¸Å°¢°¡
¸Å°¢°¡À²
Æò±ÕÀ¯Âû¼ö
3°³¿ù 8°Ç 426,017,335¿ø
358,083,635¿ø
75%
1.8ȸ
6°³¿ù 15°Ç 308,282,579¿ø
261,185,786¿ø
79%
2ȸ
12°³¿ù 21°Ç 640,943,457¿ø
522,935,455¿ø
81%
1.9ȸ


º» °æ¸ÅÁ¤º¸´Â ¹ý¿øÀÚ·á¿Í ÀÏÄ¡Çϵµ·Ï ÇÏ¿´À¸³ª ±Ç¸®»çÇ׺¯µ¿, ÀÔ·ÂÂø¿À µîÀÇ ¿øÀÎÀ¸·Î »ç½Ç°ú ´Ù¸¦ ¼ö ÀÖ½À´Ï´Ù. ÀÌ¿ë¾à°ü¿¡ ÀǰЏéÃ¥Á¶°ÇÀ¸·Î Á¦°øµÊÀ» ¾Ë¸®¸ç, °æ¸ÅÀÔÂû½Ã ¹Ýµå½Ã °ü·Ã °øºÎ¸¦ ÀçÈ®ÀÎÇϽñ⠹ٶø´Ï´Ù. º¸´Ù Æí¸®ÇÑ °æ¸ÅÁ¤º¸ Á¦°øÀ» À§ÇØ Áö¼ÓÀûÀ¸·Î °³¼±ÇϰڽÀ´Ï´Ù. ÀÌ¿ëÇØ Áּż­ °¨»çÇÕ´Ï´Ù.