·Î±×ÀÎ
313
´Ù¼¼´ë(ºô¶ó)
¼­¿ï³²ºÎÁö¹æ¹ý¿ø
 °¨Á¤°¡210,000,000 ¿ø
 ÃÖÀú°¡(64%) 134,400,000 ¿ø
 º¸Áõ±Ý(10%) 13,440,000 ¿ø
 Ã»±¸¾×240,000,000 ¿ø
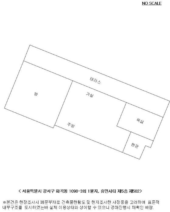
¼­¿ïƯº°½Ã °­¼­±¸ È­°îµ¿ 1098-3 ÈÞ¸Õ½ÃÆ¼ Á¦5Ãþ Á¦502È£
»ç°Ç¹øÈ£ 2025Ÿ°æ11001
°æ¸ÅÁ¾·ùºÎµ¿»ê°­Á¦°æ¸Å
¸Å°¢´ë»óÅäÁö ¹× °Ç¹°Àϰý ¸Å°¢
¸Å°¢±âÀÏ    2026.05.14(¸ñ) 10:00 ÀÔÂû 35ÀÏÀü    
ÅäÁö¸éÀû14.61§³(4.42 Æò)
°Ç¹°¸éÀû20.43§³(6.18 Æò)
乫/¼ÒÀ¯ÀÚ¿ÀOO / ¿ÀOO
ä±ÇÀÚÁÖOOOOOOO
ÆäÀ̽ººÏ Æ®À§ÅÍ ±¸±Û+
īī¿À½ºÅ丮
īī¿ÀÅå sms¹®ÀÚº¸³»±â
 

±âÀϳ»¿ª

°æ°ú ³¯Â¥ Àú°¨ ÃÖÀú°¡ °á°ú
Á¢¼öÀÏ 2025-07-15 °æ¸ÅÁ¢¼ö
~1ÀÏ 
2025-07-16 °æ¸Å°³½Ã°áÁ¤
~93ÀÏ 
2025-10-16 ¹è´ç¿ä±¸Á¾±âÀÏ
~224ÀÏ 
2026-02-24 100%
210,000,000
À¯Âû
~261ÀÏ 
2026-04-02 80%
168,000,000
À¯Âû
~303ÀÏ 
2026-05-14 64%
134,400,000
ÁøÇà
¹°°Ç¸í¼¼¼­ ÇöȲÁ¶»ç¼­ ¹®°ÇÁ¢¼ö ¼Û´Þ³»¿ª

°¨Á¤Æò°¡ÇöȲ

¸ñ·Ï ÁÖ¼Ò ±¸Á¶/¿ëµµ/´ëÁö±Ç ¸éÀû ºñ°í
´ëÁö±Ç
È­°îµ¿ 1098-3 350.7ºÐÀÇ 14.61 14.61 §³
(4.42Æò)
°Ç¹°
È­°îµ¿ 1098-3 Á¦5Ãþ Á¦502È£ ö±ÙÄÜÅ©¸®Æ®±¸Á¶ 20.43 §³
(6.18Æò)
1) À§Ä¡/µµ½ÃÁö¿ª/Á¦3Á¾ÀϹÝÁÖ°ÅÁö¿ª/¹ö½ºÁ¤·ùÀå/ö±ÙÄÜÅ©¸®Æ®±¸Á¶/Æò½º¶óºêÁöºØ ´õº¸±â
°¨Á¤Æò°¡ ¿äÇ×Ç¥
1)À§Ä¡ ¹× ÁÖÀ§È¯°æ
º»°ÇÀº ¼­¿ïƯº°½Ã °­¼­±¸ È­°îµ¿ ¼ÒÀç""°­¼­±¸Ã»""ºÏÃø Àαٿ¡ À§Ä¡Çϸç, ÁÖÀ§´Â ´Ù¼¼´ëÁÖÅÃ, ´Üµ¶ÁÖÅÃ, ¾ÆÆÄÆ®´ÜÁö, ±Ù¸°»ýȰ½Ã¼³ µîÀÌ ¼ÒÀçÇÏ´Â Áö¿ªÀ¸·Î ÁÖ°Å¿ëÀ¸·ÎÀÇ Á¦¹Ý ÁÖÀ§È¯°æÀº º¸Åë½Ã µÊ.
2)±³Åë»óȲ
º»°Ç±îÁö Â÷·®ÀÇ Áø¡¤ÃâÀÔÀÌ °¡´ÉÇϸç, Àαٿ¡ ¹ö½ºÁ¤·ùÀå µîÀÌ ¼ÒÀçÇÏ¿© Á¦¹Ý ´ëÁß±³Åë »óȲÀº º¸Åë½Ã µÊ.
3)°Ç¹°ÀÇ ±¸Á¶
ö±ÙÄÜÅ©¸®Æ®±¸Á¶ Æò½º¶óºêÁöºØ ÁöÇÏ1Ãþ Áö»ó6Ãþ °Ç¹° ³» Á¦5Ãþ Á¦502È£·Î¼­,
(»ç¿ë½ÂÀÎÀÏ: 2020.06.04.)

¿Üº® : ¼®ÀçºÙÀÓ ¸¶°¨ µî
âȣ : »þ½Ã âȣ µî ¸¶°¨ ÀÓ.
4)ÀÌ¿ë»óÅÂ
±âÁؽÃÁ¡ ´Ù¼¼´ëÁÖÅÃÀ¸·Î ÀÌ¿ë ÁßÀÓ.
5)¼³ºñ³»¿ª
±âº»ÀûÀÎ À§»ý ¹× ±Þ¹è¼ö¼³ºñ, ¼Ò¹æ¼³ºñ, ³­¹æ¼³ºñ, ½Â°­±â¼³ºñ µîÀ» °®Ãß°í ÀÖÀ½.
6)ÅäÁöÀÇ Çü»ó ¹× ÀÌ¿ë»óÅÂ
º»°Ç ÅäÁö´Â 2ÇÊÁö ÀÏ´ÜÀ¸·Î ÀÎÁ¢ÅäÁö¿Í µî°íÆòźÇÑ ¼¼ÀåÇü ÅäÁö·Î¼­, ´Ù¼¼´ëÁÖÅÃÀÇ °ÇºÎÁö·Î ÀÌ¿ë Áß ÀÓ.
7)ÀÎÁ¢ µµ·Î»óŵî
º»°Ç ÀÏ´ÜÀÇ ÅäÁö ³²µ¿ÃøÀ¸·Î ³ëÆø ¾à 5M ³»¿Ü µµ·Î¿¡ Á¢ÇÔ.
8)ÅäÁöÀÌ¿ë°èȹ ¹× Á¦ÇÑ»óÅÂ
1098-3
µµ½ÃÁö¿ª, Á¦3Á¾ÀϹÝÁÖ°ÅÁö¿ª, Áß¿ä½Ã¼³¹°º¸È£Áö±¸(°øÇ×), °¡Ãà»çÀ°Á¦Çѱ¸¿ª(Áö¿ª°æÁ¦°ú È®ÀÎ ¿ä¸Á)<°¡ÃàºÐ´¢ÀÇ °ü¸® ¹× À̿뿡 °üÇÑ ¹ý·ü>, ¼öÆòÇ¥¸é±¸¿ª(¼öÆòÇ¥¸é)<°øÇ׽ü³¹ý>, ´ë°ø¹æ¾îÇùÁ¶±¸¿ª(À§Å¹°íµµ:77-257m)<±º»ç±âÁö ¹× ±º»ç½Ã¼³ º¸È£¹ý>, °ú¹Ð¾ïÁ¦±Ç¿ª<¼öµµ±ÇÁ¤ºñ°èȹ¹ý>

1098-5
µµ½ÃÁö¿ª, Á¦3Á¾ÀϹÝÁÖ°ÅÁö¿ª, Áß¿ä½Ã¼³¹°º¸È£Áö±¸(°øÇ×), °¡Ãà»çÀ°Á¦Çѱ¸¿ª(Áö¿ª°æÁ¦°ú È®ÀÎ ¿ä¸Á)<°¡ÃàºÐ´¢ÀÇ °ü¸® ¹× À̿뿡 °üÇÑ ¹ý·ü>, ¼öÆòÇ¥¸é±¸¿ª(¼öÆòÇ¥¸é)<°øÇ׽ü³¹ý>, ´ë°ø¹æ¾îÇùÁ¶±¸¿ª(À§Å¹°íµµ:77-257m)<±º»ç±âÁö ¹× ±º»ç½Ã¼³ º¸È£¹ý>, °ú¹Ð¾ïÁ¦±Ç¿ª<¼öµµ±ÇÁ¤ºñ°èȹ¹ý>, <Ãß°¡±âÀç>°ÇÃà¹ý Á¦2Á¶Á¦1Ç×Á¦11È£³ª¸ñ¿¡ µû¸¥ µµ·Î(µµ·ÎÀÏºÎÆ÷ÇÔ) ÀÓ.
9)°øºÎ¿ÍÀÇ Â÷ÀÌ
¾øÀ½.
10)±âŸÂü°í»çÇ×(ÀÓ´ë°ü·Ê ¹× ±âŸ)
ÀÓ´ë°ü°è´Â ¹Ì»óÀÓ.
Âü°í
»çÇ×
ÀÓÂ÷ÀÎ ¹× ÁÖÅÃÀÓÂ÷±Ç ½Â°èÀÎ ÁÖÅõµ½Ãº¸Áõ°ø»çÀÇ ¸Å¼öÀο¡ ´ëÇÑ ´ëÇ×·Â Æ÷±â Á¶°Ç ¸Å°¢

°ÇÃ๰ÇöȲ

¼ÒÀçÁö ¼­¿ïƯº°½Ã °­¼­±¸ È­°îµ¿ 1098-3¹øÁö
´ëÁö¸éÀû 348.4§³
(105.58Æò)
¿¬¸éÀû 658.95§³
(199.68Æò)
°ÇÃà¸éÀû 173.2§³
(52.48Æò)
¿ëÀû·ü»êÁ¤
¿¬¸éÀû
627.63§³
(190.19Æò)
°ÇÆóÀ² 49.71% ¿ëÀû·ü 180.15%
Áö»óÃþ¼ö 6Ãþ ÁöÇÏÃþ¼ö 1Ãþ
ÁÖ¿ëµµ °øµ¿ÁÖÅà ±¸Á¶ ö±ÙÄÜÅ©¸®Æ®±¸Á¶
Âø°øÀÏÀÚ 2019.03.15 »ç¿ë½ÂÀÎÀÏÀÚ 2020.06.04
°ÇÃ๰Ãþº°ÇöȲ [º¸±â]


±¹ÅäºÎ½Ç°Å·¡°¡ ¼­¿ïƯº°½Ã °­¼­±¸ È­°îµ¿

¡Ü ¸Å¸Å

¸éÀû(§³), ±Ý¾×(¸¸¿ø)

¡Ü Àü¼¼

¸éÀû(§³), ±Ý¾×(¸¸¿ø)

°è¾àÀϰǹ°¸íĪÃþ¿¬¸éÀûº¸Áõ±Ý¿ù¼¼°ÇÃà
26.03.31(772-22)439.1623,52002021
26.03.31û¼ÛÆòÈ­ÇコÇϿ콺339.8422,68062016
26.03.31û¼ÛÆòÈ­ÇコÇϿ콺339.8422,68002016
26.03.30¹Ì·¡ÇϿ콺224.2420,00022018
26.03.30³ª»ê¸Ç¼Ç2Â÷428.89,100252002
¢Ñ ´õº¸±â

µî±âºÎµîº» ¿ä¾à(°Ç¹°)

  Á¢¼öÀÏÀÚ µî±â¸ñÀû/±Ç¸®ÀÚ ±Ç¸®±Ý¾× ±âÁØ
1 2021³â12¿ù30ÀÏ
¼ÒÀ¯±Ç
¿ÀOO
¼Ò¸ê
2 2023³â12¿ù8ÀÏ
ÀÓÂ÷±Ç¼³Á¤
ÀÌO
240,000,000 Àμö
3 2024³â4¿ù12ÀÏ
¾Ð·ù
°­OO
¼Ò¸ê±âÁØ
4 2024³â9¿ù10ÀÏ
¾Ð·ù
±¹OOOO
¼Ò¸ê
5 2025³â7¿ù16ÀÏ
°­Á¦°æ¸Å
ÁÖOOOO
¼Ò¸ê

ÀÓÂ÷ÀÎÇöȲ (¹è´ç¿ä±¸Á¾±âÀÏ: 2025-10-16)

ÀÓÂ÷ÀÎ ¿ëµµ/Á¡À¯ º¸Áõ±Ý/¿ù¼¼ ´ëÇ×·Â
ÀüÀÔÀÏ/È®Á¤ÀÏ ¹è´ç¿ä±¸ ºñ°í
ÀÌO ÀüºÎ 240,000,000
O
2021.11.30
2021.10.18
2021.11.30
ÁÖOOOOOOO ÀüºÎ 240,000,000
O
2021.11.30.
2021.10.18.
2025.10.15. 2021.11.30.~2023.11.29.
ºñ°í
(¸Å°¢¹°°Ç
¸í¼¼¼­)
À̽Å:ÁÖÅÃÀÓÂ÷±Çµî±âÀÏ 2023. 12. 8. ÁÖÅõµ½Ãº¸Áõ°ø»ç:ÀÌ »ç°Ç ½Åûä±ÇÀÚ·Î ÁÖÅÃÀÓÂ÷±ÇÀÚ À̽ÅÀÇ ÁöÀ§¸¦ ½Â°èÇÏ¿© ±Ç¸®½Å°í ¹× ¹è´ç¿ä±¸

¿©ÀÇÁÖ°æ¸Å Á¶¾ð ÇÑ ¸¶µð

¼±¼øÀ§ ÀÓÂ÷±Çµî±â°¡ µÇ¾î ÀÖ½À´Ï´Ù
´ëÇ×·ÂÀÌ ÀÖ´Â ¼±¼øÀ§ ÀÓÂ÷±Çµî±â ±Ç¸®ÀÚ°¡ ¹è´çÀ» Àü¾× ¹ÞÁö ¸øÇÒ °æ¿ì ³«ÂûÀÚ°¡ ÀÜ¿© º¸Áõ±ÝÀ» ÀμöÇØ¾ßÇÏ´Â °æ¿ìµµ ÀÖ½À´Ï´Ù.

ÁÖÀÇ»çÇ× (ÃÖ¼±¼øÀ§ ¼³Á¤ÀÏ: 2024. 4. 12. ¾Ð·ù ¼³Á¤)

¸Å°¢À¸·Î ¼Ò¸êµÇÁö ¾Ê´Â µî±âºÎ±Ç¸®:
¸Å°¢À¸·Î ¼³Á¤µÈ °ÍÀ¸·Î º¸´Â Áö»ó±Ç:
Ưº°¸Å°¢Á¶°Ç : ä±ÇÀÚ´Â ¸Å¼öÀο¡ ´ëÇØ ¹è´ç¹ÞÁö ¸øÇÏ´Â Àܾ׿¡ ´ëÇÑ ÀÓ´ëÂ÷º¸Áõ±Ý ¹Ýȯû±¸±ÇÀ» Æ÷±âÇϰí, ÀÓÂ÷±Çµî±â¸¦ ¸» ¼ÒÇÏ´Â °ÍÀ» Á¶°ÇÀ¸·Î ¸Å°¢
¡Ø¹Ì³³°ü¸®ºñ(°ø¿ë) Àμö¿©ºÎ¸¦ ÀÔÂû Àü¿¡ È®ÀÎÇϽñ⠹ٶø´Ï´Ù

 

Áö¿ªºÐ¼®

ÁöÇÏö¸í Á÷¼±°Å¸®

Çб³¸í ÀüÈ­¹øÈ£ ÁÖ¼Ò Á÷¼±°Å¸®

¹ý¿ø

¼­¿ï³²ºÎÁö¹æ¹ý¿ø (080-88)¼­¿ïƯº°½Ã ¾çõ±¸ ½Å¿ù·Î 386(½ÅÁ¤µ¿)
´ëÇ¥ : 02)2192-1114
°üÇÒÁö¿ª : ¿µµîÆ÷±¸, °­¼­±¸, ¾çõ±¸, ±¸·Î±¸, ±Ýõ±¸

µî±â¼Ò ¼­¿ï³²ºÎÁö¹æ¹ý¿ø º»¿ø µî±â±¹ (´ëÇ¥:1544-0773, ÆÑ½º:(02)2629-7307, ¼­¿ïƯº°½Ã ¿µµîÆ÷±¸ °æÀηΠ772 (¹®·¡µ¿ 1°¡))
¼¼¹«¼­ °­¼­¼¼¹«¼­ (´ëÇ¥:02-2630-42, ÆÑ½º:02-2679-8777, ¼­¿ïƯº°½Ã °­¼­±¸ ¸¶°î¼­1·Î 60 (¸¶°îµ¿))

Àαٳ«ÂûÅë°è

±â°£ ¸Å°¢°Ç¼ö Æò±Õ°¨Á¤°¡
Æò±Õ¸Å°¢°¡
¸Å°¢°¡À²
Æò±ÕÀ¯Âû¼ö
3°³¿ù 247°Ç 267,540,802¿ø
192,838,266¿ø
72%
2.5ȸ
6°³¿ù 581°Ç 263,493,496¿ø
192,732,051¿ø
73%
2.4ȸ
12°³¿ù 1,006°Ç 262,063,720¿ø
197,497,392¿ø
76%
2.4ȸ


º» °æ¸ÅÁ¤º¸´Â ¹ý¿øÀÚ·á¿Í ÀÏÄ¡Çϵµ·Ï ÇÏ¿´À¸³ª ±Ç¸®»çÇ׺¯µ¿, ÀÔ·ÂÂø¿À µîÀÇ ¿øÀÎÀ¸·Î »ç½Ç°ú ´Ù¸¦ ¼ö ÀÖ½À´Ï´Ù. ÀÌ¿ë¾à°ü¿¡ ÀǰЏéÃ¥Á¶°ÇÀ¸·Î Á¦°øµÊÀ» ¾Ë¸®¸ç, °æ¸ÅÀÔÂû½Ã ¹Ýµå½Ã °ü·Ã °øºÎ¸¦ ÀçÈ®ÀÎÇϽñ⠹ٶø´Ï´Ù. º¸´Ù Æí¸®ÇÑ °æ¸ÅÁ¤º¸ Á¦°øÀ» À§ÇØ Áö¼ÓÀûÀ¸·Î °³¼±ÇϰڽÀ´Ï´Ù. ÀÌ¿ëÇØ Áּż­ °¨»çÇÕ´Ï´Ù.