·Î±×ÀÎ
85
¾ÆÆÄÆ®
ºÎ»êÁö¹æ¹ý¿ø ºÎ»ê¼­ºÎÁö¿ø
 °¨Á¤°¡234,000,000 ¿ø
 ÃÖÀú°¡(70%) 163,800,000 ¿ø
 º¸Áõ±Ý(10%) 16,380,000 ¿ø
 Ã»±¸¾×240,591,304 ¿ø
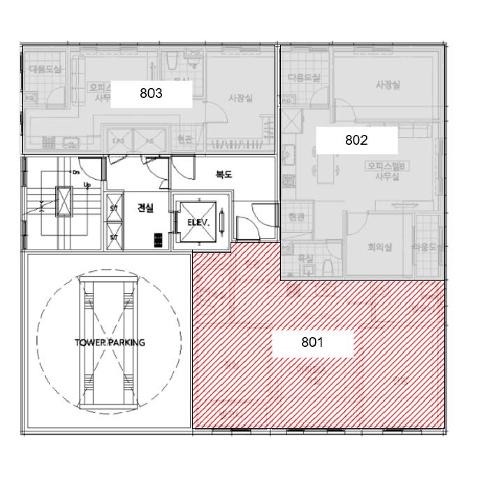
ºÎ»ê±¤¿ª½Ã »ç»ó±¸ ±¥¹ýµ¿ 523-10 ÀϷ罺Ÿ 8Ãþ801È£
»ç°Ç¹øÈ£ 2025Ÿ°æ101871
°æ¸ÅÁ¾·ùºÎµ¿»ê°­Á¦°æ¸Å
¸Å°¢´ë»óÅäÁö ¹× °Ç¹°Àϰý ¸Å°¢
¸Å°¢±âÀÏ    2026.03.31(È­) 10:00 ÀÔÂû 30ÀÏÀü    
ÅäÁö¸éÀû7.40§³(2.24 Æò)
°Ç¹°¸éÀû52.55§³(15.90 Æò)
乫/¼ÒÀ¯ÀÚÀÌOO / ÀÌOO
ä±ÇÀÚÁÖOOOOOOO
ÆäÀ̽ººÏ Æ®À§ÅÍ ±¸±Û+
īī¿À½ºÅ丮
īī¿ÀÅå sms¹®ÀÚº¸³»±â
 

±âÀϳ»¿ª

°æ°ú ³¯Â¥ Àú°¨ ÃÖÀú°¡ °á°ú
Á¢¼öÀÏ 2025-08-28 °æ¸ÅÁ¢¼ö
~15ÀÏ 
2025-09-12 °æ¸Å°³½Ã°áÁ¤
~99ÀÏ 
2025-12-05 ¹è´ç¿ä±¸Á¾±âÀÏ
~180ÀÏ 
2026-02-24 100%
234,000,000
À¯Âû
~215ÀÏ 
2026-03-31 70%
163,800,000
ÁøÇà
¹°°Ç¸í¼¼¼­ ÇöȲÁ¶»ç¼­ ¹®°ÇÁ¢¼ö ¼Û´Þ³»¿ª

°¨Á¤Æò°¡ÇöȲ

¸ñ·Ï ÁÖ¼Ò ±¸Á¶/¿ëµµ/´ëÁö±Ç ¸éÀû ºñ°í
´ëÁö±Ç
±¥¹ýµ¿ 523-10 351.7ºÐÀÇ 7.4029 7.4029 §³
(2.24Æò)
°Ç¹°
±¥¹ýµ¿ 523-10 8Ãþ801È£ ö±ÙÄÜÅ©¸®Æ®±¸Á¶ 52.55 §³
(15.90Æò)
1) À§Ä¡/ÀϹݻó¾÷Áö¿ª/½Ã³»¹ö½ºÁ¤·ùÀå/ö±ÙÄÜÅ©¸®Æ®±¸Á¶/µµ½Ã°¡½º/°³º°³­¹æ ´õº¸±â
°¨Á¤Æò°¡ ¿äÇ×Ç¥
1)À§Ä¡ ¹× ÁÖÀ§È¯°æ
º»°ÇÀº ºÎ»ê±¤¿ª½Ã »ç»ó±¸ ±¥¹ýµ¿ ¼ÒÀç"âÁøÃʵîÇб³" ºÏµ¿Ãø Àαٿ¡ À§Ä¡ÇÏ´Â ÀϷ罺 Ÿ Á¦8Ãþ Á¦801È£·Î¼­, ÁÖÀ§´Â °øµ¿ÁÖÅÃ, ¿ÀÇǽºÅÚ ¹× °¢Á¾ ±Ù¸°»ýȰ½Ã¼³ µîÀ¸·Î Çü¼ºµÇ¾î ÀÖÀ¸¸ç, ÁÖÀ§ ȯ°æ ¹× Á¦¹ÝÀÔÁöÁ¶°ÇÀº º¸Åë½ÃµÊ.
2)±³Åë»óȲ
º»°Ç±îÁö Â÷·®Á¢±Ù °¡´ÉÇϸç, Àαٿ¡ ½Ã³»¹ö½ºÁ¤·ùÀåÀÌ ¼ÒÀçÇϴ¹Ù, Á¦¹Ý ±³Åë»çÁ¤Àº º¸Åë½ÃµÊ.
3)°Ç¹°ÀÇ ±¸Á¶
ö±ÙÄÜÅ©¸®Æ®±¸Á¶ (ö±Ù)ÄÜÅ©¸®Æ®ÁöºØ ÁöÇÏ1Ãþ Áö»ó17Ãþ °Ç¹°³» Á¦8Ãþ 801È£·Î¼­, ¿Üº® : ¸ôÅ»À§ ÆäÀÎÆÃ ¹× Ä¡Àå¼® ºÙÀÓ ¸¶°¨ µî. ³»º® : º®Áö ¹× ÀϺΠŸÀÏ ¸¶°¨(ÃßÁ¤). âȣ : ¼¦½Ãâ ±¸Á¶ÀÓ.
4)ÀÌ¿ë»óÅÂ
°øµ¿ÁÖÅÃ(¾ÆÆÄÆ®)À¸·Î ÀÌ¿ëÁßÀÓ.
5)¼³ºñ³»¿ª
À§»ý¼³ºñ ¹× ±Þ¹è¼ö½Ã¼³, È­ÀçŽÁö ¹× °æº¸¼³ºñ, ½Â°­±â¼³ºñ, ÁÖÂ÷Ÿ¿ö¼³ºñ ¹× µµ½Ã°¡½º¿¡ ÀÇÇÑ °³º°³­¹æ¼³ºñ µîÀÌ µÇ¾îÀÖÀ½.
6)ÅäÁöÀÇ Çü»ó ¹× ÀÌ¿ë»óÅÂ
ÀÎÁ¢Áö¿Í ´ëü·Î µî°íÆòźÇÏ°Ô Á¶¼ºµÈ Á¤¹æÇü ÅäÁö·Î¼­, ¾÷¹«½Ã¼³(¿ÀÇǽºÅÚ) ¹× °øµ¿ÁÖÅÃ(¾ÆÆÄÆ®) °ÇºÎÁö·Î ÀÌ¿ëÁßÀÓ.
7)ÀÎÁ¢ µµ·Î»óŵî
º»°Ç ºÏÃøÀ¸·Î ³ëÆø ¾à 8¹ÌÅÍ µµ·Î¿¡ Á¢Çϸç, ±â°è½Ä ÁÖÂ÷½Ã¼³ µÇ¾îÀÖÀ½.
8)ÅäÁöÀÌ¿ë°èȹ ¹× Á¦ÇÑ»óÅÂ
±¥¹ýµ¿ 523-10 :ÀϹݻó¾÷Áö¿ª, ¹æÈ­Áö±¸, °¡Ãà»çÀ°Á¦Çѱ¸¿ª<°¡ÃàºÐ´¢ÀÇ °ü¸® ¹× À̿뿡 °üÇÑ ¹ý·ü>, °¡·Î±¸¿ªº° ÃÖ°í³ôÀÌ Á¦ÇÑÁö¿ª(2024-06-12)(±âÁسôÀÌ 125m, ÃÖ°í³ôÀÌ 150m)<°ÇÃà¹ý>, »ó´ëº¸È£±¸¿ª(2024-08-21)<±³À°È¯°æ º¸È£¿¡ °üÇÑ ¹ý·ü>, ºñÇà¾ÈÀüÁ¦6±¸¿ª(Àü¼ú)(6±¸¿ª)<±º»ç±âÁö ¹× ±º»ç½Ã¼³ º¸È£¹ý>
9)°øºÎ¿ÍÀÇ Â÷ÀÌ
¾ø À½.
10)±âŸÂü°í»çÇ×(ÀÓ´ë°ü·Ê ¹× ±âŸ)
1) ÀÓ´ë°ü°è: ¹Ì »ó ÀÓ. 2) ±â Ÿ: ¾ø À½

°ÇÃ๰ÇöȲ

¼ÒÀçÁö ºÎ»ê±¤¿ª½Ã »ç»ó±¸ ±¥¹ýµ¿ 523-10¹øÁö
´ëÁö¸éÀû 351.7§³
(106.58Æò)
¿¬¸éÀû 3535.72§³
(1071.43Æò)
°ÇÃà¸éÀû 273.05§³
(82.74Æò)
¿ëÀû·ü»êÁ¤
¿¬¸éÀû
3291.94§³
(997.56Æò)
°ÇÆóÀ² 77.64% ¿ëÀû·ü 936.01%
Áö»óÃþ¼ö 17Ãþ ÁöÇÏÃþ¼ö 1Ãþ
ÁÖ¿ëµµ ¾÷¹«½Ã¼³ ±¸Á¶ ö±ÙÄÜÅ©¸®Æ®±¸Á¶
Âø°øÀÏÀÚ 2017.07.26 »ç¿ë½ÂÀÎÀÏÀÚ 2019.05.15
°ÇÃ๰Ãþº°ÇöȲ [º¸±â]


±¹ÅäºÎ½Ç°Å·¡°¡ ºÎ»ê±¤¿ª½Ã »ç»ó±¸ ±¥¹ýµ¿

¡Ü ¸Å¸Å

¸éÀû(§³), ±Ý¾×(¸¸¿ø)

¡Ü Àü¼¼

¸éÀû(§³), ±Ý¾×(¸¸¿ø)

°è¾àÀÏARTÃþÀü¿ëº¸Áõ±Ý¿ù¼¼°ÇÃà
25.03.28ÀϷ罺Ÿ1052.5518,5002019

µî±âºÎµîº» ¿ä¾à(°Ç¹°)

  Á¢¼öÀÏÀÚ µî±â¸ñÀû/±Ç¸®ÀÚ ±Ç¸®±Ý¾× ±âÁØ
1 2020³â8¿ù5ÀÏ
¼ÒÀ¯±Ç
ÀÌOO
¼Ò¸ê
2 2023³â2¿ù2ÀÏ
°¡¾Ð·ù
(OOOO
1,500,000,000 ¼Ò¸ê±âÁØ
3 2023³â3¿ù28ÀÏ
°¡¾Ð·ù
ÁøOOOO
600,000,000 ¼Ò¸ê
4 2023³â7¿ù20ÀÏ
°¡¾Ð·ù
±¹
14,929,900,001 ¼Ò¸ê
5 2024³â7¿ù11ÀÏ
¾Ð·ù
±¹
¼Ò¸ê
6 2024³â8¿ù7ÀÏ
ÀÓÂ÷±Ç¼³Á¤
Á¤OO
230,000,000 ¼Ò¸ê
7 2024³â12¿ù12ÀÏ
¾Ð·ù
ȍOO
¼Ò¸ê
8 2025³â9¿ù15ÀÏ
°­Á¦°æ¸Å
ÁÖOOOO
¼Ò¸ê
9 2025³â11¿ù24ÀÏ
¾Ð·ù
±ÝOO
¼Ò¸ê

ÀÓÂ÷ÀÎÇöȲ (¹è´ç¿ä±¸Á¾±âÀÏ: 2025-12-05)

ÀÓÂ÷ÀÎ ¿ëµµ/Á¡À¯ º¸Áõ±Ý/¿ù¼¼ ´ëÇ×·Â
ÀüÀÔÀÏ/È®Á¤ÀÏ ¹è´ç¿ä±¸ ºñ°í
Á¤OO ÀüºÎ 230,000,000
O
2022.08.04.
2022.06.21
2022.08.04.
ÁÖOOOOOOO ÀüºÎ 230,000,000
O
2022.08.04.
2022.06.21.
2025.8.28. 2022.08.04.~2024.08.03.
ºñ°í
(¸Å°¢¹°°Ç
¸í¼¼¼­)
Á¤¿ÁÁø: ÁÖÅÃÀÓÂ÷±Çµî±â±ÇÀڷμ­ ÁÖÅÃÀÓÂ÷±Çµî±âÀÏÀº 2024.08.07.ÀÓ ÁÖÅõµ½Ãº¸Áõ°ø»ç: °æ¸Å½Åûä±ÇÀÚ·Î ÀÓÂ÷±ÇÀÚ Á¤¿ÁÁøÀÇ ÀÓÂ÷º¸Áõ±Ý¹Ýȯä±Ç ¾ç¼öÀÎ(´ëÇ×·Â ¹× ¿ì¼±º¯Á¦±Ç ½Â°è)À̸ç, ¹è´ç¿ä ±¸ÀÏÀÚ´Â °æ¸Å½ÅûÀÏÀÓ

¿©ÀÇÁÖ°æ¸Å Á¶¾ð ÇÑ ¸¶µð

¼±¼øÀ§ ÀÓÂ÷±Çµî±â°¡ µÇ¾î ÀÖ½À´Ï´Ù
´ëÇ×·ÂÀÌ ÀÖ´Â ¼±¼øÀ§ ÀÓÂ÷±Çµî±â ±Ç¸®ÀÚ°¡ ¹è´çÀ» Àü¾× ¹ÞÁö ¸øÇÒ °æ¿ì ³«ÂûÀÚ°¡ ÀÜ¿© º¸Áõ±ÝÀ» ÀμöÇØ¾ßÇÏ´Â °æ¿ìµµ ÀÖ½À´Ï´Ù.

ÁÖÀÇ»çÇ× (ÃÖ¼±¼øÀ§ ¼³Á¤ÀÏ: 2023. 2. 2. °¡¾Ð·ù ¼³Á¤)

¸Å°¢À¸·Î ¼Ò¸êµÇÁö ¾Ê´Â µî±âºÎ±Ç¸®: À»±¸ 1¹ø ÁÖÅÃÀÓÂ÷±Çµî±â(2024.08.07.µî±â)´Â ¸Å¼öÀο¡°Ô ´ëÇ×ÇÒ ¼ö ÀÖ´Â ÀÓÂ÷±ÇÀ¸·Î ¹è´ç¿¡¼­ º¸Áõ±ÝÀÌ Àü¾× º¯Á¦µÇÁö ¾ÊÀ» °æ¿ì ¸»¼ÒµÇÁö ¾Æ´ÏÇÏ°í ¸Å¼öÀÎÀÌ ÀμöÇÔ
¸Å°¢À¸·Î ¼³Á¤µÈ °ÍÀ¸·Î º¸´Â Áö»ó±Ç:
¡Ø¹Ì³³°ü¸®ºñ(°ø¿ë) Àμö¿©ºÎ¸¦ ÀÔÂû Àü¿¡ È®ÀÎÇϽñ⠹ٶø´Ï´Ù

 

Áö¿ªºÐ¼®

ÁöÇÏö¸í Á÷¼±°Å¸®

Çб³¸í ÀüÈ­¹øÈ£ ÁÖ¼Ò Á÷¼±°Å¸®

¹ý¿ø

ºÎ»êÁö¹æ¹ý¿ø ¼­ºÎÁö¿ø (467-26)ºÎ»ê±¤¿ª½Ã °­¼­±¸ ¸íÁö±¹Á¦7·Î 77 (¸íÁöµ¿)
´ëÇ¥ : 051)812-1114~5
°üÇÒÁö¿ª : ¼­±¸, ºÏ±¸, »ç»ó±¸, »çÇϱ¸, °­¼­±¸

µî±â¼Ò ºÎ»êÁö¹æ¹ý¿ø ¼­ºÎÁö¿ø ºÏºÎ»êµî±â¼Ò (´ëÇ¥:1544-0773, ÆÑ½º:(051)304-6230, ºÎ»ê±¤¿ª½Ã ºÏ±¸ »ç»ó·Î583¹ø±æ 14 (±¸Æ÷µ¿ 1186-26))
¼¼¹«¼­ ºÏºÎ»ê¼¼¹«¼­ (´ëÇ¥:051-310-62, ÆÑ½º:051-310-6549, ºÎ»ê±¤¿ª½Ã »ç»ó±¸ Çа¨´ë·Î 263(°¨Àüµ¿))

Àαٳ«ÂûÅë°è

±â°£ ¸Å°¢°Ç¼ö Æò±Õ°¨Á¤°¡
Æò±Õ¸Å°¢°¡
¸Å°¢°¡À²
Æò±ÕÀ¯Âû¼ö


º» °æ¸ÅÁ¤º¸´Â ¹ý¿øÀÚ·á¿Í ÀÏÄ¡Çϵµ·Ï ÇÏ¿´À¸³ª ±Ç¸®»çÇ׺¯µ¿, ÀÔ·ÂÂø¿À µîÀÇ ¿øÀÎÀ¸·Î »ç½Ç°ú ´Ù¸¦ ¼ö ÀÖ½À´Ï´Ù. ÀÌ¿ë¾à°ü¿¡ ÀǰЏéÃ¥Á¶°ÇÀ¸·Î Á¦°øµÊÀ» ¾Ë¸®¸ç, °æ¸ÅÀÔÂû½Ã ¹Ýµå½Ã °ü·Ã °øºÎ¸¦ ÀçÈ®ÀÎÇϽñ⠹ٶø´Ï´Ù. º¸´Ù Æí¸®ÇÑ °æ¸ÅÁ¤º¸ Á¦°øÀ» À§ÇØ Áö¼ÓÀûÀ¸·Î °³¼±ÇϰڽÀ´Ï´Ù. ÀÌ¿ëÇØ Áּż­ °¨»çÇÕ´Ï´Ù.