·Î±×ÀÎ
54
´Ù¼¼´ë(ºô¶ó)
¼ö¿øÁö¹æ¹ý¿ø ¾È»êÁö¿ø
 °¨Á¤°¡205,000,000 ¿ø
 ÃÖÀú°¡(100%) 205,000,000 ¿ø
 º¸Áõ±Ý(10%) 20,500,000 ¿ø
 Ã»±¸¾×34,399,980 ¿ø
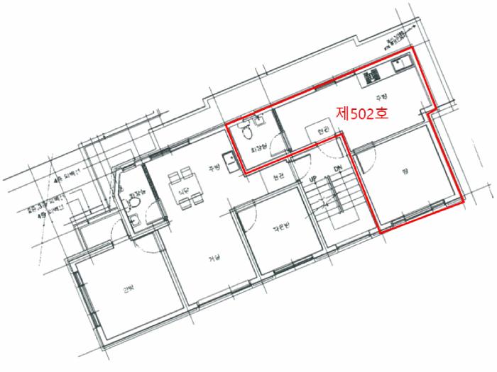
°æ±âµµ ±¤¸í½Ã ¼ÒÇϵ¿ 924-11 5Ãþ502È£
»ç°Ç¹øÈ£ 2025Ÿ°æ52916
°æ¸ÅÁ¾·ùºÎµ¿»ê°­Á¦°æ¸Å
¸Å°¢´ë»óÅäÁö ¹× °Ç¹°Àϰý ¸Å°¢
¸Å°¢±âÀÏ    2026.02.24(È­) 10:30 ÀÔÂû 1ÀÏÀü    
ÅäÁö¸éÀû20.08§³(6.07 Æò)
°Ç¹°¸éÀû33.01§³(9.99 Æò)
乫/¼ÒÀ¯ÀÚ±èOO / ±èOO
ä±ÇÀÚÇöOOO OOOO
ÆäÀ̽ººÏ Æ®À§ÅÍ ±¸±Û+
īī¿À½ºÅ丮
īī¿ÀÅå sms¹®ÀÚº¸³»±â
 

±âÀϳ»¿ª

°æ°ú ³¯Â¥ Àú°¨ ÃÖÀú°¡ °á°ú
Á¢¼öÀÏ 2025-07-24 °æ¸ÅÁ¢¼ö
~11ÀÏ 
2025-08-04 °æ¸Å°³½Ã°áÁ¤
~88ÀÏ 
2025-10-20 ¹è´ç¿ä±¸Á¾±âÀÏ
~215ÀÏ 
2026-02-24 100%
205,000,000
ÁøÇà
¹°°Ç¸í¼¼¼­ ÇöȲÁ¶»ç¼­ ¹®°ÇÁ¢¼ö ¼Û´Þ³»¿ª

°¨Á¤Æò°¡ÇöȲ

¸ñ·Ï ÁÖ¼Ò ±¸Á¶/¿ëµµ/´ëÁö±Ç ¸éÀû ºñ°í
´ëÁö±Ç
¼ÒÇϵ¿ 924-11 263ºÐÀÇ 20.076 20.076 §³
(6.07Æò)
°Ç¹°
¼ÒÇϵ¿ 924-11 5Ãþ502È£ ö±ÙÄÜÅ©¸®Æ®±¸Á¶ 33.01 §³
(9.99Æò)
1) À§Ä¡/Á¦2Á¾ÀϹÝÁÖ°ÅÁö¿ª/³ë¼±¹ö½ºÁ¤·ùÀå/ö±ÙÄÜÅ©¸®Æ®Á¶/Æò½º¶óºêÁöºØ/µµ½Ã°¡½º/¹æ1 ´õº¸±â
°¨Á¤Æò°¡ ¿äÇ×Ç¥
1)À§Ä¡ ¹× ÁÖÀ§È¯°æ
º»°ÇÀº °æ±âµµ ±¤¸í½Ã ¼ÒÇϵ¿ ¼ÒÀç ""¼­¸éÃʵîÇб³"" ³²¼­Ãø Àαٿ¡ À§Ä¡Çϸç, ÁÖº¯Àº ±Ù¸°»ýȰ½Ã¼³, ´Ù¼¼´ëÁÖÅÃ, ¾ÆÆÄÆ® µîÀÌ È¥ÀçÇÏ´Â ±âÁ¸ÁÖ°ÅÁö´ëÀÓ.
2)±³Åë»óȲ
º»°Ç±îÁö Â÷·®ÁøÃâÀÔÀÌ °¡´ÉÇϸç Àαٳ뼱¹ö½ºÁ¤·ùÀå±îÁöÀÇ °Å¸® µîÀ» °í·Á½Ã ´ëÁß±³Åëȯ°æÀº º¸ÅëÀÓ.
3)°Ç¹°ÀÇ ±¸Á¶
ö±ÙÄÜÅ©¸®Æ®Á¶ Æò½º¶óºêÁöºØ 5Ãþ °Ç(»ç¿ë½ÂÀÎ: 2008.10.29) ³»,
Á¦5Ãþ Á¦502È£·Î,

¿Üº®: Ä¡À庮µ¹¸¶°¨ µî,
³»º®: º®Áöµµ¹è ¹× ŸÀϸ¶°¨ µî,
âȣ: ÇÏÀ̼¦½Ãâȣ µî ÀÓ.
4)ÀÌ¿ë»óÅÂ
´Ù¼¼´ëÁÖÅÃ(¹æ1, ÁÖ¹æ ¹× °Å½Ç, È­Àå½Ç)À¸·Î ÀÌ¿ëÁßÀÓ.
5)¼³ºñ³»¿ª
±âº»±Þ¹è¼ö ¹× À§»ý¼³ºñ, µµ½Ã°¡½º¼³ºñ µîÀ» ±¸ºñÇϰí ÀÖÀ½.

6)ÅäÁöÀÇ Çü»ó ¹× ÀÌ¿ë»óÅÂ
ÀÎÁ¢ÅäÁö¿Í µî°íÆòźÇÑ »ç´Ù¸®ÇüÀÇ ÅäÁö·Î ´Ù¼¼´ëÁÖÅðǺÎÁö·Î ÀÌ¿ëÁßÀÓ.
7)ÀÎÁ¢ µµ·Î»óŵî
º»°Ç ¼­ÃøÀ¸·Î ³ëÆø ¾à 8m ³»¿ÜÀÇ ¾Æ½ºÆÈÆ®Æ÷Àåµµ·Î¿¡ Á¢ÇÔ.
8)ÅäÁöÀÌ¿ë°èȹ ¹× Á¦ÇÑ»óÅÂ
Á¦2Á¾ÀϹÝÁÖ°ÅÁö¿ª
»ó´ëº¸È£±¸¿ª(¹àÀººûÀ¯Ä¡¿øÇØ´ç ±³À°Ã»¿¡ ¹®ÀÇ)<±³À°È¯°æ º¸È£¿¡ °üÇÑ ¹ý·ü>, »ó´ëº¸È£±¸¿ª(¼­¸éÃʵîÇб³ÇØ´ç ±³À°Ã»¿¡ ¹®ÀÇ)<±³À°È¯°æ º¸È£¿¡ °üÇÑ ¹ý·ü>, »ó´ëº¸È£±¸¿ª(¾Æ¶õÀ¯Ä¡¿øÇØ´ç ±³À°Ã»¿¡ ¹®ÀÇ)<±³À°È¯°æ º¸È£¿¡ °üÇÑ ¹ý·ü>, °ú¹Ð¾ïÁ¦±Ç¿ª<¼öµµ±ÇÁ¤ºñ°èȹ¹ý> ÀÓ.
9)°øºÎ¿ÍÀÇ Â÷ÀÌ
-
10)±âŸÂü°í»çÇ×(ÀÓ´ë°ü·Ê ¹× ±âŸ)
ÀÓ´ë°ü°è´Â ¹Ì»óÀÓ.
Âü°í
»çÇ×

- 5Ãþ

°ÇÃ๰ÇöȲ

¼ÒÀçÁö °æ±âµµ ±¤¸í½Ã ¼ÒÇϵ¿ 924-11¹øÁö
´ëÁö¸éÀû 263§³
(79.7Æò)
¿¬¸éÀû 515.63§³
(156.25Æò)
°ÇÃà¸éÀû 156.96§³
(47.56Æò)
¿ëÀû·ü»êÁ¤
¿¬¸éÀû
515.63§³
(156.25Æò)
°ÇÆóÀ² 59.68% ¿ëÀû·ü 196.06%
Áö»óÃþ¼ö 5Ãþ ÁöÇÏÃþ¼ö  
ÁÖ¿ëµµ °øµ¿ÁÖÅà ±¸Á¶ ö±ÙÄÜÅ©¸®Æ®±¸Á¶
Âø°øÀÏÀÚ 2008.06.19 »ç¿ë½ÂÀÎÀÏÀÚ 2008.10.29
°ÇÃ๰Ãþº°ÇöȲ [º¸±â]


±¹ÅäºÎ½Ç°Å·¡°¡ °æ±âµµ ±¤¸í½Ã ¼ÒÇϵ¿

¡Ü ¸Å¸Å

¸éÀû(§³), ±Ý¾×(¸¸¿ø)

¡Ü Àü¼¼

¸éÀû(§³), ±Ý¾×(¸¸¿ø)

°è¾àÀϰǹ°¸íĪÃþ¿¬¸éÀûº¸Áõ±Ý¿ù¼¼°ÇÃà
26.02.05µµ½ÃÇü»ýȰÁÖÅÃÈÞ¸ÕÆ÷·¹½ºÆ®1560.5233,3002013
26.02.03¼ºÈ­ºô¶óCµ¿-155.217,00001993
26.02.02º¸±¤ºô¶ó³ªµ¿142.121,500351993
26.01.30¿¡ÀÌ¿£Ä³½½431.4324,00002017
26.01.28¸íÁöŸ¿î110µ¿-159.8415,00001992
¢Ñ ´õº¸±â

µî±âºÎµîº» ¿ä¾à(°Ç¹°)

  Á¢¼öÀÏÀÚ µî±â¸ñÀû/±Ç¸®ÀÚ ±Ç¸®±Ý¾× ±âÁØ
1 2009³â7¿ù3ÀÏ
¼ÒÀ¯±Ç
±èOO
¼Ò¸ê
2 2025³â3¿ù6ÀÏ
°¡¾Ð·ù
ÇöOOOO
32,668,620 ¼Ò¸ê±âÁØ
3 2025³â8¿ù4ÀÏ
°­Á¦°æ¸Å
ÇöOOOO
¼Ò¸ê

ÀÓÂ÷ÀÎÇöȲ (¹è´ç¿ä±¸Á¾±âÀÏ: 2025-10-20)

ÀÓÂ÷ÀÎ ¿ëµµ/Á¡À¯ º¸Áõ±Ý/¿ù¼¼ ´ëÇ×·Â
ÀüÀÔÀÏ/È®Á¤ÀÏ ¹è´ç¿ä±¸ ºñ°í
Á¤OO ÀüºÎ 110,000,000
O
2024.04.11.
2024.02.26
2025.8.21. 2024.03.25.-2026.03.25.

¿©ÀÇÁÖ°æ¸Å Á¶¾ð ÇÑ ¸¶µð

ÃëÇÏ ¶Ç´Â Ãë¼ÒµÉ °¡´É¼º ÀÖ½À´Ï´Ù
ÀÌ ¹°°ÇÀÇ °¨Á¤°¡°ÝÀº 205,000,000¿øÀÔ´Ï´Ù. °æ¸Å¸¦ ½ÅûÇÑ Ã¤±ÇÀÚ°¡ ¹è´ç ¹Þ¾Æ¾ß ÇÒ ±Ý¾×Àº 34,399,980¿øÀ¸·Î °¨Á¤°¡°Ý ´ëºñ »ó´çÈ÷ ÀûÀº ±Ý¾×ÀÔ´Ï´Ù. ÀÌ·± °æ¿ì, 乫°¡°¡ º¯Á¦ÇÏ¿© °æ¸Å¸¦ ÃëÇϽÃŰ°Å³ª °æ¸Å½Åûä±ÇÀÚ°¡ ¹è´ç¹ÞÀº ±Ý¿øÀÌ ¾ø°ÔµÇ¾î À̸¥ ¹Ù "¹«À׿©¿¡ ÀÇÇÑ Ãë¼Ò"°¡ µÉ °¡´É¼ºÀÌ ÀÖ½À´Ï´Ù.

ÁÖÀÇ»çÇ× (ÃÖ¼±¼øÀ§ ¼³Á¤ÀÏ: 2025. 3. 6.°¡¾Ð·ù ¼³Á¤)

¸Å°¢À¸·Î ¼Ò¸êµÇÁö ¾Ê´Â µî±âºÎ±Ç¸®:
¸Å°¢À¸·Î ¼³Á¤µÈ °ÍÀ¸·Î º¸´Â Áö»ó±Ç:
¡Ø¹Ì³³°ü¸®ºñ(°ø¿ë) Àμö¿©ºÎ¸¦ ÀÔÂû Àü¿¡ È®ÀÎÇϽñ⠹ٶø´Ï´Ù

 

Áö¿ªºÐ¼®

ÁöÇÏö¸í Á÷¼±°Å¸®

Çб³¸í ÀüÈ­¹øÈ£ ÁÖ¼Ò Á÷¼±°Å¸®

¹ý¿ø

¼ö¿øÁö¹æ¹ý¿ø ¾È»êÁö¿ø (140-54)°æ±âµµ ¾È»ê½Ã ´Ü¿ø±¸ ±¤´ö¼­·Î 75 (°íÀܵ¿)
´ëÇ¥ : 031)481-1114, ¹Î¿ø : 031)481-1238, ¾ß°£ : 031)481-1112
°üÇÒÁö¿ª : ¾È»ê½Ã, ±¤¸í½Ã, ½ÃÈï½Ã

µî±â¼Ò ¼ö¿øÁö¹æ¹ý¿ø ¾È»êÁö¿ø ±¤¸íµî±â¼Ò (´ëÇ¥:1544-0773, ÆÑ½º:(02)2616-1901, °æ±âµµ ±¤¸í½Ã ö»ê·Î 3-16 (ö»êµ¿ 252))
¼¼¹«¼­ ±¤¸í¼¼¹«¼­ (´ëÇ¥:02-2610-82, ÆÑ½º:02-3666-0611, °æ±âµµ ±¤¸í½Ã ö»ê·Î 3-12(ö»êµ¿ 251))

Àαٳ«ÂûÅë°è

±â°£ ¸Å°¢°Ç¼ö Æò±Õ°¨Á¤°¡
Æò±Õ¸Å°¢°¡
¸Å°¢°¡À²
Æò±ÕÀ¯Âû¼ö


º» °æ¸ÅÁ¤º¸´Â ¹ý¿øÀÚ·á¿Í ÀÏÄ¡Çϵµ·Ï ÇÏ¿´À¸³ª ±Ç¸®»çÇ׺¯µ¿, ÀÔ·ÂÂø¿À µîÀÇ ¿øÀÎÀ¸·Î »ç½Ç°ú ´Ù¸¦ ¼ö ÀÖ½À´Ï´Ù. ÀÌ¿ë¾à°ü¿¡ ÀǰЏéÃ¥Á¶°ÇÀ¸·Î Á¦°øµÊÀ» ¾Ë¸®¸ç, °æ¸ÅÀÔÂû½Ã ¹Ýµå½Ã °ü·Ã °øºÎ¸¦ ÀçÈ®ÀÎÇϽñ⠹ٶø´Ï´Ù. º¸´Ù Æí¸®ÇÑ °æ¸ÅÁ¤º¸ Á¦°øÀ» À§ÇØ Áö¼ÓÀûÀ¸·Î °³¼±ÇϰڽÀ´Ï´Ù. ÀÌ¿ëÇØ Áּż­ °¨»çÇÕ´Ï´Ù.