·Î±×ÀÎ
231
±Ù¸°»ó°¡
¼ö¿øÁö¹æ¹ý¿ø ¾È¾çÁö¿ø
 °¨Á¤°¡356,000,000 ¿ø
 ÃÖÀú°¡(64%) 227,840,000 ¿ø
 º¸Áõ±Ý(10%) 22,784,000 ¿ø
 Ã»±¸¾×247,059,597 ¿ø
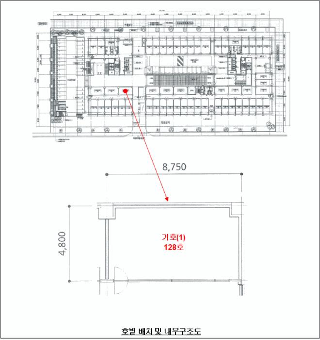
°æ±âµµ ¾È¾ç½Ã µ¿¾È±¸ È£°èµ¿ 555-42 ¾È¾ç¿¡½ºÄÉÀ̺êÀÌ1¼¾ÅÍ 1Ãþ128È£
»ç°Ç¹øÈ£ 2025Ÿ°æ588
°æ¸ÅÁ¾·ùºÎµ¿»êÀÓÀǰæ¸Å
¸Å°¢´ë»óÅäÁö ¹× °Ç¹°Àϰý ¸Å°¢
¸Å°¢±âÀÏ    2026.04.28(È­) 10:00 ÀÔÂû 9ÀÏÀü    
ÅäÁö¸éÀû11.41§³(3.45 Æò)
°Ç¹°¸éÀû41.76§³(12.63 Æò)
乫/¼ÒÀ¯ÀÚÁÖOOO OOOO(OOOOOOOOOOOO OOOO) / ÁÖOOO OOOO(OOOOOOOOOOOO OOOO)
ä±ÇÀÚ³óOOO OOOO
ÆäÀ̽ººÏ Æ®À§ÅÍ ±¸±Û+
īī¿À½ºÅ丮
īī¿ÀÅå sms¹®ÀÚº¸³»±â
 

±âÀϳ»¿ª

°æ°ú ³¯Â¥ Àú°¨ ÃÖÀú°¡ °á°ú
Á¢¼öÀÏ 2025-04-09 °æ¸ÅÁ¢¼ö
~1ÀÏ 
2025-04-10 °æ¸Å°³½Ã°áÁ¤
~75ÀÏ 
2025-06-23 ¹è´ç¿ä±¸Á¾±âÀÏ
~321ÀÏ 
2026-02-24 100%
356,000,000
À¯Âû
~356ÀÏ 
2026-03-31 80%
284,800,000
À¯Âû
~384ÀÏ 
2026-04-28 64%
227,840,000
ÁøÇà
¹°°Ç¸í¼¼¼­ ÇöȲÁ¶»ç¼­ ¹®°ÇÁ¢¼ö ¼Û´Þ³»¿ª

°¨Á¤Æò°¡ÇöȲ

¸ñ·Ï ÁÖ¼Ò ±¸Á¶/¿ëµµ/´ëÁö±Ç ¸éÀû ºñ°í
´ëÁö±Ç
È£°èµ¿ 555-42 8717.4ºÐÀÇ 11.41 11.41 §³
(3.45Æò)
°Ç¹°
È£°èµ¿ 555-42 1Ãþ128È£ ö±ÙÄÜÅ©¸®Æ®±¸Á¶ 41.76 §³
(12.63Æò)
1) À§Ä¡/µµ½ÃÁö¿ª/Áذø¾÷Áö¿ª/Áö±¸´ÜÀ§°èȹ±¸¿ª/¹ö½ºÁ¤·ùÀå/Â÷·®Á¢±ÙÀÌ °¡´É/ö±ÙÄÜÅ©¸®Æ®±¸Á¶ ´õº¸±â
°¨Á¤Æò°¡ ¿äÇ×Ç¥
1)À§Ä¡ ¹× ÁÖÀ§È¯°æ
º»°ÇÀº °æ±âµµ ¾È¾ç½Ã µ¿¾È±¸ È£°èµ¿ ¼ÒÀç '¾È¾ç±¹Á¦À¯Åë´ÜÁö' ºÏ¼­Ãø Àαٿ¡ À§Ä¡Çϰí ÀÖÀ¸¸ç, ÁÖÀ§´Â Áö½Ä»ê¾÷¼¾ÅÍ, °øÀå ¹× Ã¢°í, »ó°¡Á¡Æ÷, °øµ¿ÁÖÅà µîÀÌ È¥ÀçÇϰí ÀÖ´Â Áö¿ªÀÓ.
2)±³Åë»óȲ
º»°Ç±îÁö Â÷·®Á¢±ÙÀÌ °¡´ÉÇϸç, Àαٿ¡ ¹ö½ºÁ¤·ùÀå, Àüö¿ª(±ÝÁ¤¿ª)ÀÌ ¼ÒÀçÇÏ´Â µî Àü¹ÝÀûÀÎ ±³Åë¿©°ÇÀº ¹«³­ÇÑ ÆíÀÓ.
3)°Ç¹°ÀÇ ±¸Á¶
ö±ÙÄÜÅ©¸®Æ®±¸Á¶ (ö±Ù)ÄÜÅ©¸®Æ®ÁöºØ ÁöÇÏ3Ãþ~Áö»ó10Ãþ °Ç¹° ³» Á¦1Ãþ Á¦128È£·Î¼­
- ¿Üº® : ¿ÜÀåÆÇ³Ú, ¿ÜÀåŸÀÏ ºÙÀÓ µî
- ³»º® : ¸ôÅ», º¸µå À§ ÆäÀÎÆÃ µî
- õÀå : ÅØ½º µî
- ¹Ù´Ú : ¹Ù´Ú ŸÀÏ, ½¬Æ®±ò±â µî ¸¶°¨ÀÓ.
4)ÀÌ¿ë»óÅÂ
±Ù¸°»ýȰ½Ã¼³·Î ÀÌ¿ë ÁßÀÓ.
5)¼³ºñ³»¿ª
À§»ý ¹× ±Þ¹è¼ö¼³ºñ, ½Â°­±â¼³ºñ, ¼Ò¹æ¼³ºñ µîÀ» °®Ãß¾úÀ½.
6)ÅäÁöÀÇ Çü»ó ¹× ÀÌ¿ë»óÅÂ
ÀαÙÁö ´ëºñ ´ëü·Î ÆòźÇÏ°Ô Á¶¼ºµÈ 2ÇÊÁö ÀÏ´ÜÀÇ °¡ÀåÇü ÅäÁö·Î¼­ Áö½Ä»ê¾÷¼¾ÅÍ ¹× Áö¿ø½Ã¼³(±Ù¸°»ýȰ½Ã¼³) µî °ÇºÎÁö·Î ÀÌ¿ë ÁßÀÓ.
7)ÀÎÁ¢ µµ·Î»óŵî
º»°Ç ³²¼­ÃøÀ¸·Î ³ëÆø ¾à 15m ³»¿ÜÀÇ µµ·Î¿¡ Á¢Çϰí ÀÖÀ½.
8)ÅäÁöÀÌ¿ë°èȹ ¹× Á¦ÇÑ»óÅÂ
´ëÁö±Ç ¸ñÀûÀÎ 2ÇÊÁöÀÇ ÅäÁö °øÈ÷ µµ½ÃÁö¿ª, Áذø¾÷Áö¿ª, Áö±¸´ÜÀ§°èȹ±¸¿ª, Áß·Î2·ù(Æø 15m~20m)(Á¢ÇÕ), ´ë±â°ü¸®±Ç¿ª, ±³Åë±âŸ¿ëµµÁö¿ªÁö±¸¹ÌºÐ·ù(´ëµµ½Ã±Ç), µµ½Ã±³ÅëÁ¤ºñÁö¿ª, °ú¹Ð¾ïÁ¦±Ç¿ª, (ÇѰ­)Æó±â¹°¸Å¸³½Ã¼³ ¼³Ä¡Á¦ÇÑÁö¿ª ÀÓ.
9)°øºÎ¿ÍÀÇ Â÷ÀÌ
ƯÀÌ»çÇ× ¾øÀ½.
10)±âŸÂü°í»çÇ×(ÀÓ´ë°ü·Ê ¹× ±âŸ)
ÀÓ´ë°ü°è ¹Ì»óÀÓ.
Âü°í
»çÇ×
±Ù¸°»ýȰ½Ã¼³·Î ÀÌ¿ëÁßÀÓ

°ÇÃ๰ÇöȲ

¼ÒÀçÁö °æ±âµµ ¾È¾ç½Ã µ¿¾È±¸ È£°èµ¿ 555-42¹øÁö
´ëÁö¸éÀû 8717.4§³
(2641.64Æò)
¿¬¸éÀû 63763.8§³
(19322.36Æò)
°ÇÃà¸éÀû 5227.91§³
(1584.22Æò)
¿ëÀû·ü»êÁ¤
¿¬¸éÀû
30468.8§³
(9232.97Æò)
°ÇÆóÀ² 59.97% ¿ëÀû·ü 349.52%
Áö»óÃþ¼ö 10Ãþ ÁöÇÏÃþ¼ö 3Ãþ
ÁÖ¿ëµµ °øÀå ±¸Á¶ ö±ÙÄÜÅ©¸®Æ®±¸Á¶
Âø°øÀÏÀÚ 2016.10.27 »ç¿ë½ÂÀÎÀÏÀÚ 2018.10.26
°ÇÃ๰Ãþº°ÇöȲ [º¸±â]


µî±âºÎµîº» ¿ä¾à(°Ç¹°)

  Á¢¼öÀÏÀÚ µî±â¸ñÀû/±Ç¸®ÀÚ ±Ç¸®±Ý¾× ±âÁØ
1 2023³â4¿ù7ÀÏ
¼ÒÀ¯±Ç
ÇÑOOOO
¼Ò¸ê
2 2023³â4¿ù7ÀÏ
±ÙÀú´ç±Ç
³óOOOO
286,800,000 ¼Ò¸ê±âÁØ
3 2024³â8¿ù30ÀÏ
°¡¾Ð·ù
½ÅOOOO
350,000,000 ¼Ò¸ê
4 2025³â4¿ù10ÀÏ
ÀÓÀǰæ¸Å
³óOOOO
¼Ò¸ê
5 2025³â6¿ù2ÀÏ
°¡¾Ð·ù
ÁßOOOO
100,557,213 ¼Ò¸ê

ÀÓÂ÷ÀÎÇöȲ (¹è´ç¿ä±¸Á¾±âÀÏ: 2025-06-23)

ÀÓÂ÷ÀÎ ¿ëµµ/Á¡À¯ º¸Áõ±Ý/¿ù¼¼ ´ëÇ×·Â
ÀüÀÔÀÏ/È®Á¤ÀÏ ¹è´ç¿ä±¸ ºñ°í
¹ÙOOOOOO 128È£,41.76§³ ¹Ì»ó
X
2023.10.11
¹Ì»ó
2023.10.10~2026.10.31

¿©ÀÇÁÖ°æ¸Å Á¶¾ð ÇÑ ¸¶µð


ÁÖÀÇ»çÇ× (ÃÖ¼±¼øÀ§ ¼³Á¤ÀÏ: 2023.4.7. ±ÙÀú´ç±Ç ¼³Á¤)

¸Å°¢À¸·Î ¼Ò¸êµÇÁö ¾Ê´Â µî±âºÎ±Ç¸®:
¸Å°¢À¸·Î ¼³Á¤µÈ °ÍÀ¸·Î º¸´Â Áö»ó±Ç:
±Ù¸°»ýȰ½Ã¼³·Î ÀÌ¿ëÁßÀÓ
¡Ø¹Ì³³°ü¸®ºñ(°ø¿ë) Àμö¿©ºÎ¸¦ ÀÔÂû Àü¿¡ È®ÀÎÇϽñ⠹ٶø´Ï´Ù

 

Áö¿ªºÐ¼®

ÁöÇÏö¸í Á÷¼±°Å¸®

Çб³¸í ÀüÈ­¹øÈ£ ÁÖ¼Ò Á÷¼±°Å¸®

¹ý¿ø

¼ö¿øÁö¹æ¹ý¿ø ¾È¾çÁö¿ø (140-54)°æ±âµµ ¾È¾ç½Ã µ¿¾È±¸ °üÆò·Î 212¹ø±æ 70 (°ü¾çµ¿)
´ëÇ¥ : 031)8086-1114, ¾ß°£ : 031)8086-1380
°üÇÒÁö¿ª : ¾È¾ç½Ã, ±ºÆ÷½Ã, ÀǿսÃ, °úõ½Ã

µî±â¼Ò ¼ö¿øÁö¹æ¹ý¿ø ¾È¾çÁö¿ø ¾È¾çµî±â¼Ò (´ëÇ¥:1544-0773, ÆÑ½º:(031)8086-4599, °æ±âµµ ¾È¾ç½Ã µ¿¾È±¸ °üÆò·Î212¹ø±æ 69 (°ü¾çµ¿ 1588-18))
¼¼¹«¼­ µ¿¾È¾ç¼¼¹«¼­ (´ëÇ¥:031-389-82, ÆÑ½º:0503-112-9375, °æ±âµµ ¾È¾ç½Ã µ¿¾È±¸ °üÆò·Î202¹ø±æ 27 (°ü¾çµ¿))

Àαٳ«ÂûÅë°è

±â°£ ¸Å°¢°Ç¼ö Æò±Õ°¨Á¤°¡
Æò±Õ¸Å°¢°¡
¸Å°¢°¡À²
Æò±ÕÀ¯Âû¼ö
3°³¿ù 1°Ç 65,000,000¿ø
53,110,000¿ø
82%
2ȸ
6°³¿ù 1°Ç 65,000,000¿ø
53,110,000¿ø
82%
2ȸ
12°³¿ù 6°Ç 409,333,333¿ø
210,990,000¿ø
66%
4.5ȸ


º» °æ¸ÅÁ¤º¸´Â ¹ý¿øÀÚ·á¿Í ÀÏÄ¡Çϵµ·Ï ÇÏ¿´À¸³ª ±Ç¸®»çÇ׺¯µ¿, ÀÔ·ÂÂø¿À µîÀÇ ¿øÀÎÀ¸·Î »ç½Ç°ú ´Ù¸¦ ¼ö ÀÖ½À´Ï´Ù. ÀÌ¿ë¾à°ü¿¡ ÀǰЏéÃ¥Á¶°ÇÀ¸·Î Á¦°øµÊÀ» ¾Ë¸®¸ç, °æ¸ÅÀÔÂû½Ã ¹Ýµå½Ã °ü·Ã °øºÎ¸¦ ÀçÈ®ÀÎÇϽñ⠹ٶø´Ï´Ù. º¸´Ù Æí¸®ÇÑ °æ¸ÅÁ¤º¸ Á¦°øÀ» À§ÇØ Áö¼ÓÀûÀ¸·Î °³¼±ÇϰڽÀ´Ï´Ù. ÀÌ¿ëÇØ Áּż­ °¨»çÇÕ´Ï´Ù.