·Î±×ÀÎ
126
¾ÆÆÄÆ®
¼ö¿øÁö¹æ¹ý¿ø
 °¨Á¤°¡358,000,000 ¿ø
 ÃÖÀú°¡(100%) 358,000,000 ¿ø
 º¸Áõ±Ý(10%) 35,800,000 ¿ø
 Ã»±¸¾×157,548,203 ¿ø
°æ±âµµ ¼ö¿ø½Ã ±Ç¼±±¸ »ïõº´¸¶·Î1598¹ø±æ 28-16, 106µ¿ 13Ãþ1301È£ (¿À¸ñõµ¿,³²±¤ÇϿ콺Å丮)
°æ±âµµ ¼ö¿ø½Ã ±Ç¼±±¸ ¿À¸ñõµ¿ 962
»ç°Ç¹øÈ£ 2024Ÿ°æ92458
°æ¸ÅÁ¾·ùºÎµ¿»êÀÓÀǰæ¸Å
¸Å°¢´ë»óÅäÁö ¹× °Ç¹°Àϰý ¸Å°¢
¸Å°¢±âÀÏ    2026.02.24(È­) 10:00    
ÅäÁö¸éÀû33.40§³(10.10 Æò)
°Ç¹°¸éÀû59.75§³(18.07 Æò)
乫/¼ÒÀ¯ÀÚÁÖOOOOOOOOOOO / ±èOO
ä±ÇÀÚ¿¡OOOOOOOOOOOOOOOOO(OOOOOOOO OOOOOO)
ÆäÀ̽ººÏ Æ®À§ÅÍ ±¸±Û+
īī¿À½ºÅ丮
īī¿ÀÅå sms¹®ÀÚº¸³»±â
 

±âÀϳ»¿ª

°æ°ú ³¯Â¥ Àú°¨ ÃÖÀú°¡ °á°ú
Á¢¼öÀÏ 2024-10-08 °æ¸ÅÁ¢¼ö
~50ÀÏ 
2024-11-27 °æ¸Å°³½Ã°áÁ¤
~141ÀÏ 
2025-02-26 ¹è´ç¿ä±¸Á¾±âÀÏ
~504ÀÏ 
2026-02-24 100%
358,000,000
ÁøÇà
¹°°Ç¸í¼¼¼­ ÇöȲÁ¶»ç¼­ ¹®°ÇÁ¢¼ö ¼Û´Þ³»¿ª

°¨Á¤Æò°¡ÇöȲ

¸ñ·Ï ÁÖ¼Ò ±¸Á¶/¿ëµµ/´ëÁö±Ç ¸éÀû ºñ°í
´ëÁö±Ç
¿À¸ñõµ¿ 962 16228.3ºÐÀÇ 33.4032 33.4032 §³
(10.10Æò)
°Ç¹°
¿À¸ñõµ¿ 962 106µ¿ 13Ãþ1301È£ ö±ÙÄÜÅ©¸®Æ®Á¶ 59.75 §³
(18.07Æò)
 
1) À§Ä¡/µµ½ÃÁö¿ª/Á¦2Á¾ÀϹÝÁÖ°ÅÁö¿ª/Áö±¸´ÜÀ§°èȹ±¸¿ª/¹ö½ºÁ¤·ùÀå/ÁöÇÏÁÖÂ÷Àå/ö±ÙÄÜÅ©¸®Æ®±¸Á¶/µµ½Ã°¡½º ´õº¸±â
°¨Á¤Æò°¡ ¿äÇ×Ç¥
1)À§Ä¡ ¹× ÁÖÀ§È¯°æ
º»°ÇÀº °æ±âµµ ¼ö¿ø½Ã ±Ç¼±±¸ ¿À¸ñõµ¿ ¼ÒÀç¡®¿µ½Å¿©ÀÚ°íµîÇб³¡¯ºÏÃø Àαٿ¡ À§Ä¡Çϸç ÁÖº¯Àº ¾ÆÆÄÆ®´ÜÁö, ±Ù¸°»ýȰ½Ã¼³, °ø¿ø µîÀÌ ¼ÒÀçÇÔ.
2)±³Åë»óȲ
º»°Ç±îÁö Â÷·® ÃâÀÔÀÌ ¿ëÀÌÇÏ°í ³²¼­ÃøÀ¸·Î ¼öÀκд缱 ¿À¸ñõ¿ªÀÌ À§Ä¡Çϸç Àαٿ¡
¹ö½ºÁ¤·ùÀåÀÌ ¼ÒÀçÇÔ.
3)°Ç¹°ÀÇ ±¸Á¶
ö±ÙÄÜÅ©¸®Æ®±¸Á¶ (ö±Ù)ÄÜÅ©¸®Æ®ÁöºØ Áö»ó15Ãþ °øµ¿ÁÖÅÃ(¾ÆÆÄÆ®) ³» 13Ãþ 1301È£·Î¼­,
¿Üº®: ¸ôÅ» À§ ÆäÀÎÆÃ, ÀϺΠ¼®Àç µî ¸¶°¨
³»º®: º®Áö ¹× ÀϺΠŸÀÏ µî ¸¶°¨
âȣ: ¼¨½Ã âȣÀÓ.
4)ÀÌ¿ë»óÅÂ
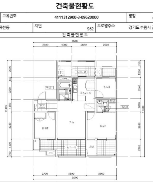
¾ÆÆÄÆ®(¹æ, °Å½Ç, ÁÖ¹æ/½Ä´ç, ¿å½Ç, ¹ßÄÚ´Ï µî)·Î ÀÌ¿ë ÁßÀÓ.(ÈÄ÷ ³»ºÎ±¸Á¶µµ ÂüÁ¶)
5)¼³ºñ³»¿ª
À§»ý ¹× ±Þ¹è¼ö¼³ºñ, ½Â°­±â¼³ºñ, µµ½Ã°¡½º¼³ºñ, ÁöÇÏÁÖÂ÷Àå µî.
6)ÅäÁöÀÇ Çü»ó ¹× ÀÌ¿ë»óÅÂ
´ëü·Î ÆòÁöÀÇ ºÎÁ¤Çü ÅäÁö·Î¼­ ¾ÆÆÄÆ® °ÇºÎÁö·Î ÀÌ¿ë ÁßÀÓ.
7)ÀÎÁ¢ µµ·Î»óŵî
¼Ò·Î1·ù(Æø 10m-12m)(Á¢ÇÕ), ¼Ò·Î3·ù(Æø 8m ¹Ì¸¸)(Á¢ÇÕ)
8)ÅäÁöÀÌ¿ë°èȹ ¹× Á¦ÇÑ»óÅÂ
µµ½ÃÁö¿ª, Á¦2Á¾ÀϹÝÁÖ°ÅÁö¿ª, Áö±¸´ÜÀ§°èȹ±¸¿ª, ¼Ò·Î1·ù(Æø 10m-12m)(Á¢ÇÕ), ¼Ò·Î3·ù(Æø 8m ¹Ì¸¸)(Á¢ÇÕ) »ó´ëº¸È£±¸¿ª(¿ÀÇöÃʵîÇб³(¼ö¿ø±³À°Áö¿øÃ»¹®ÀÇ))<±³À°È¯°æ º¸È£¿¡ °üÇÑ ¹ý·ü>, »ó´ëº¸È£±¸¿ª(ÆÄ¶ó´ÙÀ̽ºÀ¯Ä¡¿ø(¼ö¿ø±³À°Áö¿øÃ»¹®ÀÇ))<±³À°È¯°æ º¸È£¿¡ °üÇÑ ¹ý·ü>, ºñÇà¾ÈÀüÁ¦6±¸¿ª(Àü¼ú)<±º»ç±âÁö ¹× ±º»ç½Ã¼³ º¸È£¹ý>, µµ½Ã±³ÅëÁ¤ºñÁö¿ª<µµ½Ã±³ÅëÁ¤ºñÃËÁø¹ý>, °ú¹Ð¾ïÁ¦±Ç¿ª<¼öµµ±ÇÁ¤ºñ°èȹ¹ý>
9)°øºÎ¿ÍÀÇ Â÷ÀÌ
¾øÀ½.
10)±âŸÂü°í»çÇ×(ÀÓ´ë°ü·Ê ¹× ±âŸ)
1.ÀÓ´ë°ü°è-¹Ì»óÀÓ.

2.º»°ÇÀº ÁýÇհǹ°·Î °ÅÁÖÀÚÀÇ ÇÁ¶óÀ̹ö½Ã Ä§ÇØ¹®Á¦, ÀÌÇØ°ü°èÀκÎÀç, Àá±ÝÀåÄ¡µîÀ¸·Î ÀÎÇÏ¿©, ÀÚ¼¼ÇÑ ³»ºÎ±¸Á¶µîÀº Á¶»çºÒ°¡´ÉÇÏ¿©, ¿ÜºÎ°üÂû, ޹®, µ¿·ùÇüÀÇ Ç¥ÁØÀûÀÌ¿ë»óȲ(°ÇÃ๰´ëÀåµµ¸é ȤÀº ½ÃÁ߾ȳ»µµ¸é)µî¿¡ ÀǰÅÇÏ¿© Æò°¡ÇÏ¿´°í, ³»ºÎ±¸Á¶º¯°æÀ̳ª ÇÏÀÚÀ¯¹«´Â ±¸Ã¼ÀûÈ®ÀÎÀÌ ºÒ°¡´ÉÇϹǷÎ, °æ¸ÅÂü°¡½Ã À̸¦ °¨¾ÈÇϽñ⠹ٶø´Ï´Ù.
Âü°í
»çÇ×

ÇØ´ç ºÎµ¿»êÀÇ ÇöȲÀº ¿Ü°ü»ó °øºÎÀÇ ³»¿ë°ú ÀÏÄ¡ÇÏ´Â °ÍÀ¸·Î º¸ÀÓ.

°ÇÃ๰ÇöȲ

¼ÒÀçÁö °æ±âµµ ¼ö¿ø½Ã ±Ç¼±±¸ ¿À¸ñõµ¿ 962¹øÁö
´ëÁö¸éÀû   ¿¬¸éÀû 6473.18§³
(1961.57Æò)
°ÇÃà¸éÀû 533§³
(161.52Æò)
¿ëÀû·ü»êÁ¤
¿¬¸éÀû
6473.18§³
(1961.57Æò)
°ÇÆóÀ²   ¿ëÀû·ü  
Áö»óÃþ¼ö 15Ãþ ÁöÇÏÃþ¼ö  
ÁÖ¿ëµµ °øµ¿ÁÖÅà ±¸Á¶ ö±ÙÄÜÅ©¸®Æ®±¸Á¶
Âø°øÀÏÀÚ 2005.07.08 »ç¿ë½ÂÀÎÀÏÀÚ 2007.08.29
°ÇÃ๰Ãþº°ÇöȲ [º¸±â]


µî±âºÎµîº» ¿ä¾à(°Ç¹°)

  Á¢¼öÀÏÀÚ µî±â¸ñÀû/±Ç¸®ÀÚ ±Ç¸®±Ý¾× ±âÁØ
1 2007³â10¿ù25ÀÏ
¼ÒÀ¯±Ç
±èOO
¼Ò¸ê
2 2021³â1¿ù29ÀÏ
±ÙÀú´ç±Ç
(OOOO
117,600,000 ¼Ò¸ê±âÁØ
3 2021³â1¿ù29ÀÏ
±ÙÀú´ç±Ç
(OOOO
199,200,000 ¼Ò¸ê
4 2022³â8¿ù31ÀÏ
¾Ð·ù
±¹
¼Ò¸ê
5 2022³â12¿ù30ÀÏ
±ÙÀú´ç±Ç
(OOOO
100,000,000 ¼Ò¸ê
6 2024³â11¿ù28ÀÏ
ÀÓÀǰæ¸Å
¿¡OOOO
¼Ò¸ê

ÀÓÂ÷ÀÎÇöȲ (¹è´ç¿ä±¸Á¾±âÀÏ: 2025-02-26)

ÀÓÂ÷ÀÎ ¿ëµµ/Á¡À¯ º¸Áõ±Ý/¿ù¼¼ ´ëÇ×·Â
ÀüÀÔÀÏ/È®Á¤ÀÏ ¹è´ç¿ä±¸ ºñ°í
¼ÕOO
X
2021.03.08
 

¿©ÀÇÁÖ°æ¸Å Á¶¾ð ÇÑ ¸¶µð


ÁÖÀÇ»çÇ× (ÃÖ¼±¼øÀ§ ¼³Á¤ÀÏ: 2021. 1. 29. ±ÙÀú´ç±Ç ¼³Á¤)

¸Å°¢À¸·Î ¼Ò¸êµÇÁö ¾Ê´Â µî±âºÎ±Ç¸®:
¸Å°¢À¸·Î ¼³Á¤µÈ °ÍÀ¸·Î º¸´Â Áö»ó±Ç:
¡Ø¹Ì³³°ü¸®ºñ(°ø¿ë) Àμö¿©ºÎ¸¦ ÀÔÂû Àü¿¡ È®ÀÎÇϽñ⠹ٶø´Ï´Ù

 

Áö¿ªºÐ¼®

ÁöÇÏö¸í Á÷¼±°Å¸®

Çб³¸í ÀüÈ­¹øÈ£ ÁÖ¼Ò Á÷¼±°Å¸®

¹ý¿ø

¼ö¿øÁö¹æ¹ý¿ø (165-12)°æ±âµµ ¼ö¿ø½Ã ¿µÅ뱸 ¹ýÁ¶·Î 105, Çϵ¿, ¼ö¿ø¹ý¿øÁ¾ÇÕû»ç
´ëÇ¥ : 031)210-1114, ¾ß°£ : 031)210-1111
°üÇÒÁö¿ª : ¼ö¿ø½Ã, ¿À»ê½Ã, È­¼º½Ã, ¿ëÀνÃ

µî±â¼Ò ¼ö¿øÁö¹æ¹ý¿ø º»¿ø µ¿¼ö¿øµî±â¼Ò (´ëÇ¥:1544-0773, ÆÑ½º:(031)206-1934, 204-4677, °æ±âµµ ¼ö¿ø½Ã ¿µÅ뱸 û¸í·Î 127 (¿µÅ뵿 961-16))
¼¼¹«¼­ ¼ö¿ø¼¼¹«¼­ (´ëÇ¥:031-250-42, ÆÑ½º:031-258-9411, °æ±âµµ ¼ö¿ø½Ã ÆÈ´Þ±¸ ¸Å»ê·Î 61 (¸Å»ê·Î3°¡))

Àαٳ«ÂûÅë°è

±â°£ ¸Å°¢°Ç¼ö Æò±Õ°¨Á¤°¡
Æò±Õ¸Å°¢°¡
¸Å°¢°¡À²
Æò±ÕÀ¯Âû¼ö


º» °æ¸ÅÁ¤º¸´Â ¹ý¿øÀÚ·á¿Í ÀÏÄ¡Çϵµ·Ï ÇÏ¿´À¸³ª ±Ç¸®»çÇ׺¯µ¿, ÀÔ·ÂÂø¿À µîÀÇ ¿øÀÎÀ¸·Î »ç½Ç°ú ´Ù¸¦ ¼ö ÀÖ½À´Ï´Ù. ÀÌ¿ë¾à°ü¿¡ ÀǰЏéÃ¥Á¶°ÇÀ¸·Î Á¦°øµÊÀ» ¾Ë¸®¸ç, °æ¸ÅÀÔÂû½Ã ¹Ýµå½Ã °ü·Ã °øºÎ¸¦ ÀçÈ®ÀÎÇϽñ⠹ٶø´Ï´Ù. º¸´Ù Æí¸®ÇÑ °æ¸ÅÁ¤º¸ Á¦°øÀ» À§ÇØ Áö¼ÓÀûÀ¸·Î °³¼±ÇϰڽÀ´Ï´Ù. ÀÌ¿ëÇØ Áּż­ °¨»çÇÕ´Ï´Ù.