·Î±×ÀÎ
89
¿ÀÇǽºÅÚ
¼ö¿øÁö¹æ¹ý¿ø
 °¨Á¤°¡336,000,000 ¿ø
 ÃÖÀú°¡(70%) 235,200,000 ¿ø
 º¸Áõ±Ý(10%) 23,520,000 ¿ø
 Ã»±¸¾×264,219,177 ¿ø
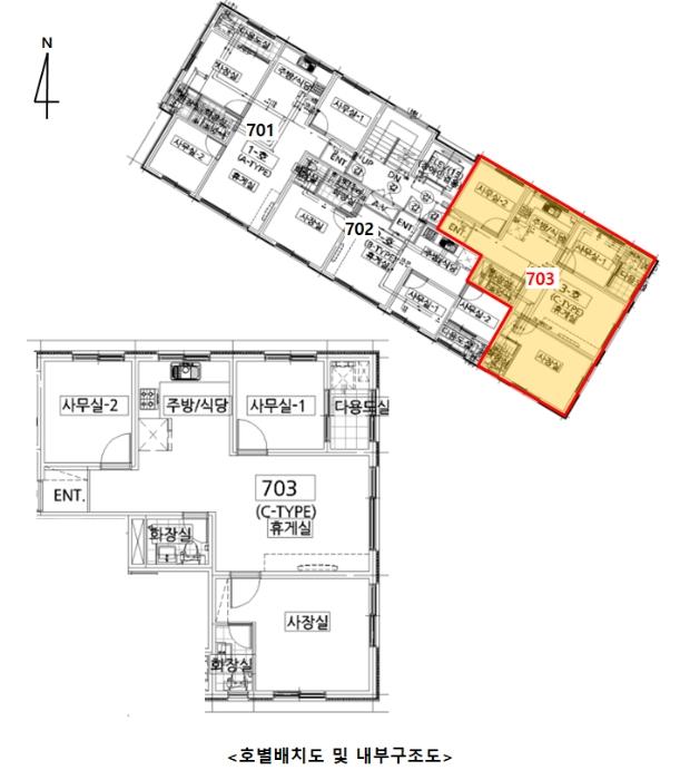
°æ±âµµ ¿ëÀνà ±âÈﱸ ¸¶ºÏ·Î47¹ø±æ 9, ¿¡À̵¿ 7Ãþ703È£ (¸¶ºÏµ¿,°¡¿Â´©¸®ºô¸®Áö)
°æ±âµµ ¿ëÀνà ±âÈﱸ ¸¶ºÏµ¿ 314-1
»ç°Ç¹øÈ£ 2024Ÿ°æ87883
°æ¸ÅÁ¾·ùºÎµ¿»ê°­Á¦°æ¸Å
¸Å°¢´ë»óÅäÁö ¹× °Ç¹°Àϰý ¸Å°¢
¸Å°¢±âÀÏ    2026.03.30(¿ù) 10:00 ÀÔÂû 23ÀÏÀü    
ÅäÁö¸éÀû33.19§³(10.04 Æò)
°Ç¹°¸éÀû69.06§³(20.89 Æò)
乫/¼ÒÀ¯ÀÚ¿¡OOOOOOOOOOO / ¿¡OOOOOOOOOOO
ä±ÇÀÚ¹®OO
ÆäÀ̽ººÏ Æ®À§ÅÍ ±¸±Û+
īī¿À½ºÅ丮
īī¿ÀÅå sms¹®ÀÚº¸³»±â
 

±âÀϳ»¿ª

°æ°ú ³¯Â¥ Àú°¨ ÃÖÀú°¡ °á°ú
Á¢¼öÀÏ 2024-09-05 °æ¸ÅÁ¢¼ö
~15ÀÏ 
2024-09-20 °æ¸Å°³½Ã°áÁ¤
~91ÀÏ 
2024-12-05 ¹è´ç¿ä±¸Á¾±âÀÏ
~537ÀÏ 
2026-02-24 100%
336,000,000
À¯Âû
~571ÀÏ 
2026-03-30 70%
235,200,000
ÁøÇà
¹°°Ç¸í¼¼¼­ ÇöȲÁ¶»ç¼­ ¹®°ÇÁ¢¼ö ¼Û´Þ³»¿ª

°¨Á¤Æò°¡ÇöȲ

¸ñ·Ï ÁÖ¼Ò ±¸Á¶/¿ëµµ/´ëÁö±Ç ¸éÀû ºñ°í
´ëÁö±Ç
¸¶ºÏµ¿ 314-1 1103ºÐÀÇ 33.19 33.19 §³
(10.04Æò)
°Ç¹°
¸¶ºÏµ¿ 314-1 ¿¡À̵¿ 7Ãþ703È£ ö±ÙÄÜÅ©¸®Æ®±¸Á¶ 69.06 §³
(20.89Æò)
1) À§Ä¡/µµ½ÃÁö¿ª/Á¦2Á¾ÀϹÝÁÖ°ÅÁö¿ª/¹ö½ºÁ¤·ùÀå/ö±ÙÄÜÅ©¸®Æ®±¸Á¶ ´õº¸±â
°¨Á¤Æò°¡ ¿äÇ×Ç¥
1)À§Ä¡ ¹× ÁÖÀ§È¯°æ
º»°ÇÀº °æ±âµµ ¿ëÀνà ±âÈﱸ ¸¶ºÏµ¿ ¼ÒÀç "±¸¼ºÃʵîÇб³" µ¿Ãø Àαٿ¡ À§Ä¡Çϸç, ÁÖÀ§´Â ´Ù¼¼´ëÁÖÅÃ, ´Üµ¶ÁÖÅÃ, ¾ÆÆÄÆ®´ÜÁö, ±Ù¸°»ýȰ½Ã¼³, °ø°ø½Ã¼³µîÀÌ È¥ÀçÇÔ.
2)±³Åë»óȲ
º»°Ç±îÁö Â÷·®Á¢±Ù °¡´ÉÇϸç, Àαٿ¡ ¹ö½ºÁ¤·ùÀåÀÌ ¼ÒÀçÇÏ´Â µî ´ëÁß±³Åë »çÁ¤Àº º¸ÅëÀÓ.
3)°Ç¹°ÀÇ ±¸Á¶
ö±ÙÄÜÅ©¸®Æ®±¸Á¶ (ö±Ù)ÄÜÅ©¸®Æ®ÁöºØ Áö»ó8Ãþ, ÁöÇÏ1Ãþ °ÇÁß 7Ãþ 703È£·Î¼­,
(»ç¿ë½ÂÀÎÀÏ: 2019.11.11)

¿Üº® : ¸ôÅ»À§ ÆäÀÎÆÃ, ¼®ÀçºÙÀÓ ¸¶°¨µî.
³»º® : º®Áöµµ¹è ºû ÀϺΠŸÀϸ¶°¨µî.
âȣ : ¼¦½Ã âȣµî.


4)ÀÌ¿ë»óÅÂ
¿ÀÇǽºÅÚ(ÈÄ÷ "³»ºÎ±¸Á¶µµ" ÂüÁ¶)·Î ÀÌ¿ëÁßÀÓ.
5)¼³ºñ³»¿ª
±Þ¹è¼ö¼³ºñ, À§»ý¼³ºñ, ³­¹æ¼³ºñ, °øµ¿Çö°ü º¸¾È¼³ºñ, ½Â°­±â¼³ºñµîÀÌ ±¸ºñµÇ¾î ÀÖÀ½.
6)ÅäÁöÀÇ Çü»ó ¹× ÀÌ¿ë»óÅÂ
´ëü·Î »ç´Ù¸®Çü, ÆòÁöÀÇ ÅäÁö·Î¼­ ´Ù¼¼´ëÁÖÅà ¹× ¿ÀÇǽºÅÚÀÇ °ÇºÎÁö·Î ÀÌ¿ëÁßÀÓ.
7)ÀÎÁ¢ µµ·Î»óŵî
º»°Ç ºÏµ¿Ãø ¹× ³²µ¿ÃøÀ¸·Î ³ëÆø ¾à 6¹ÌÅͳ»¿ÜÀÇ Æ÷Àåµµ·Î¿¡ Á¢ÇÔ.
8)ÅäÁöÀÌ¿ë°èȹ ¹× Á¦ÇÑ»óÅÂ
µµ½ÃÁö¿ª , Á¦2Á¾ÀϹÝÁÖ°ÅÁö¿ª , ¼Ò·Î2·ù(Æø 8m-10m)(±¹Áöµµ·Î)(Á¢ÇÕ),°¡Ãà»çÀ°Á¦Çѱ¸¿ª<°¡ÃàºÐ´¢ÀÇ °ü¸® ¹× À̿뿡 °üÇÑ ¹ý·ü>, »ó´ëº¸È£±¸¿ª<±³À°È¯°æ º¸È£¿¡ °üÇÑ ¹ý·ü>, ºñÇà¾ÈÀüÁ¦3±¸¿ª(Àü¼ú)(2013-09-30)<±º»ç±âÁö ¹× ±º»ç½Ã¼³ º¸È£¹ý>, Á¤ºñ¿¹Á¤±¸¿ª<µµ½Ã ¹× ÁÖ°Åȯ°æÁ¤ºñ¹ý>, ¿ª»ç¹®È­È¯°æº¸Á¸Áö¿ª<¹®È­À¯»êÀÇ º¸Á¸ ¹× Ȱ¿ë¿¡ °üÇÑ ¹ý·ü>, ¼ºÀå°ü¸®±Ç¿ª<¼öµµ±ÇÁ¤ºñ°èȹ¹ý>, (ÇѰ­)Æó±â¹°¸Å¸³½Ã¼³ ¼³Ä¡Á¦ÇÑÁö¿ª<ÇѰ­¼ö°è »ó¼ö¿ø¼öÁú°³¼± ¹× ÁÖ¹ÎÁö¿ø µî¿¡ °üÇÑ ¹ý·ü>ÀÓ.
9)°øºÎ¿ÍÀÇ Â÷ÀÌ
¾ø À½.
10)±âŸÂü°í»çÇ×(ÀÓ´ë°ü·Ê ¹× ±âŸ)
ÀÓ´ë¹Ì»óÀÓ.

º»°Ç ³»ºÎ±¸Á¶´Â ÇöÀåÁ¶»ç½Ã ¹× ÀÌÇØ°ü°èÀÎÀÇ ºÎÀçµîÀ¸·Î ÀÎÇÏ¿© °ÇÃ๰ ÇöȲµµ¸é ¹× ޹®Á¶»çµîÀ» ÅëÇÏ¿© Ç¥ÁØÀû ÀÌ¿ë»óȲÀ» ±âÁØÇÏ¿´°í, ½ÇÁ¦¿Í ´Ù¼Ò »óÀÌÇÒ ¼ö ÀÖ´Â ¹Ù °æ¸ÅÁøÇà½Ã ÂüÁ¶ÇϽñ⠹ٶ÷.
Âü°í
»çÇ×

ÇØ´ç ºÎµ¿»êÀÇ ÇöȲÀº ¿Ü°ü»ó °øºÎÀÇ ³»¿ë°ú ÀÏÄ¡ÇÏ´Â °ÍÀ¸·Î º¸ÀÓ.

°ÇÃ๰ÇöȲ

¼ÒÀçÁö °æ±âµµ ¿ëÀνà ±âÈﱸ ¸¶ºÏµ¿ 314-1¹øÁö
´ëÁö¸éÀû 1103§³
(334.24Æò)
¿¬¸éÀû 1277.44§³
(387.1Æò)
°ÇÃà¸éÀû 218.01§³
(66.06Æò)
¿ëÀû·ü»êÁ¤
¿¬¸éÀû
1217.98§³
(369.08Æò)
°ÇÆóÀ² 19.77% ¿ëÀû·ü 110.42%
Áö»óÃþ¼ö 8Ãþ ÁöÇÏÃþ¼ö 1Ãþ
ÁÖ¿ëµµ °øµ¿ÁÖÅà ±¸Á¶ ö±ÙÄÜÅ©¸®Æ®±¸Á¶
Âø°øÀÏÀÚ 2016.09.28 »ç¿ë½ÂÀÎÀÏÀÚ 2019.11.11


µî±âºÎµîº» ¿ä¾à(°Ç¹°)

  Á¢¼öÀÏÀÚ µî±â¸ñÀû/±Ç¸®ÀÚ ±Ç¸®±Ý¾× ±âÁØ
1 2020³â3¿ù23ÀÏ
¼ÒÀ¯±Ç
¿¡OOOO
¼Ò¸ê
2 2022³â5¿ù6ÀÏ
±ÙÀú´ç±Ç
¿±OO
300,000,000 ¼Ò¸ê±âÁØ
3 2023³â9¿ù25ÀÏ
¾Ð·ù
±¹
¼Ò¸ê
4 2024³â3¿ù15ÀÏ
ÀÓÂ÷±Ç¼³Á¤
¹®OO
250,000,000 ¼Ò¸ê
5 2024³â9¿ù20ÀÏ
°­Á¦°æ¸Å
¹®OO
¼Ò¸ê
6 2026³â1¿ù9ÀÏ
¾Ð·ù
±¹
¼Ò¸ê

ÀÓÂ÷ÀÎÇöȲ (¹è´ç¿ä±¸Á¾±âÀÏ: 2024-12-05)

ÀÓÂ÷ÀÎ ¿ëµµ/Á¡À¯ º¸Áõ±Ý/¿ù¼¼ ´ëÇ×·Â
ÀüÀÔÀÏ/È®Á¤ÀÏ ¹è´ç¿ä±¸ ºñ°í
¹®OO 703È£ 250,000,000
O
2022.03.10.
2022.02.21.
ºñ°í
(¸Å°¢¹°°Ç
¸í¼¼¼­)
¹®Çö¹Î:°æ¸Å½Åûä±ÇÀÚ·Î ¹è´ç¿ä±¸ÀÏÀÚ´Â °æ¸Å½ÅûÀÏÀÓ. ÁÖÅÃÀÓÂ÷±Çµî±â±ÇÀÚ·Î ÁÖÅÃÀÓÂ÷±Çµî±âÀÏÀº 2024.03.15.ÀÓ

¿©ÀÇÁÖ°æ¸Å Á¶¾ð ÇÑ ¸¶µð

¼±¼øÀ§ ÀÓÂ÷±Çµî±â°¡ µÇ¾î ÀÖ½À´Ï´Ù
´ëÇ×·ÂÀÌ ÀÖ´Â ¼±¼øÀ§ ÀÓÂ÷±Çµî±â ±Ç¸®ÀÚ°¡ ¹è´çÀ» Àü¾× ¹ÞÁö ¸øÇÒ °æ¿ì ³«ÂûÀÚ°¡ ÀÜ¿© º¸Áõ±ÝÀ» ÀμöÇØ¾ßÇÏ´Â °æ¿ìµµ ÀÖ½À´Ï´Ù.

ÁÖÀÇ»çÇ× (ÃÖ¼±¼øÀ§ ¼³Á¤ÀÏ: 2022. 5. 6. ±ÙÀú´ç±Ç ¼³Á¤)

¸Å°¢À¸·Î ¼Ò¸êµÇÁö ¾Ê´Â µî±âºÎ±Ç¸®: ¸Å¼öÀο¡°Ô ´ëÇ×ÇÒ ¼ö ÀÖ´Â À»±¸ 6¹ø ÀÓÂ÷±Çµî±â(ÀÓ´ëÂ÷º¸Áõ±Ý 250,000,000¿ø, ÀüÀÔÀÏÀÚ 2022.03.10. È®Á¤ÀÏÀÚ 2022.02.21.)°¡ ÀÖÀ¸¹Ç·Î ¹è´ç¿¡¼­ Àü¾× º¯Á¦µÇÁö ¾Æ´ÏÇϸé Àܾ×À» ¸Å¼öÀÎÀÌ ÀμöÇÔ
¸Å°¢À¸·Î ¼³Á¤µÈ °ÍÀ¸·Î º¸´Â Áö»ó±Ç:
¡Ø¹Ì³³°ü¸®ºñ(°ø¿ë) Àμö¿©ºÎ¸¦ ÀÔÂû Àü¿¡ È®ÀÎÇϽñ⠹ٶø´Ï´Ù

 

Áö¿ªºÐ¼®

ÁöÇÏö¸í Á÷¼±°Å¸®

Çб³¸í ÀüÈ­¹øÈ£ ÁÖ¼Ò Á÷¼±°Å¸®

¹ý¿ø

¼ö¿øÁö¹æ¹ý¿ø (165-12)°æ±âµµ ¼ö¿ø½Ã ¿µÅ뱸 ¹ýÁ¶·Î 105, Çϵ¿, ¼ö¿ø¹ý¿øÁ¾ÇÕû»ç
´ëÇ¥ : 031)210-1114, ¾ß°£ : 031)210-1111
°üÇÒÁö¿ª : ¼ö¿ø½Ã, ¿À»ê½Ã, È­¼º½Ã, ¿ëÀνÃ

µî±â¼Ò ¼ö¿øÁö¹æ¹ý¿ø º»¿ø ¿ëÀεî±â¼Ò (´ëÇ¥:1544-0773, ÆÑ½º:(031)321-3919, °æ±âµµ ¿ëÀνà óÀα¸ ¼º»ê·Î 7 (¿ªºÏµ¿ 391-28))
¼¼¹«¼­ ±âÈï¼¼¹«¼­ (´ëÇ¥:031-8007-1, ÆÑ½º:031-895-4902, °æ±âµµ ¿ëÀνà ±âÈﱸ Èï´ö2·Î117¹ø±æ 15(¿µ´öµ¿))

Àαٳ«ÂûÅë°è

±â°£ ¸Å°¢°Ç¼ö Æò±Õ°¨Á¤°¡
Æò±Õ¸Å°¢°¡
¸Å°¢°¡À²
Æò±ÕÀ¯Âû¼ö


º» °æ¸ÅÁ¤º¸´Â ¹ý¿øÀÚ·á¿Í ÀÏÄ¡Çϵµ·Ï ÇÏ¿´À¸³ª ±Ç¸®»çÇ׺¯µ¿, ÀÔ·ÂÂø¿À µîÀÇ ¿øÀÎÀ¸·Î »ç½Ç°ú ´Ù¸¦ ¼ö ÀÖ½À´Ï´Ù. ÀÌ¿ë¾à°ü¿¡ ÀǰЏéÃ¥Á¶°ÇÀ¸·Î Á¦°øµÊÀ» ¾Ë¸®¸ç, °æ¸ÅÀÔÂû½Ã ¹Ýµå½Ã °ü·Ã °øºÎ¸¦ ÀçÈ®ÀÎÇϽñ⠹ٶø´Ï´Ù. º¸´Ù Æí¸®ÇÑ °æ¸ÅÁ¤º¸ Á¦°øÀ» À§ÇØ Áö¼ÓÀûÀ¸·Î °³¼±ÇϰڽÀ´Ï´Ù. ÀÌ¿ëÇØ Áּż­ °¨»çÇÕ´Ï´Ù.